Ontario Building Code Deck Requirements . anyone is allowed to construct the deck once a building permit has been issued to the home/property owner. Anyone is permitted to construct the deck once a building permit has been obtained. Distance from the finished ground to the finished. A building permit is required for all decks except where: It is the responsibility of the homeowner to. any proposed deck construction on a property with a septic system shall comply with the required clearances in part 8 of. A deck must comply with the building code and zoning requirements. For more information, contact the city of oshawa’s. the information and details within the guide have been vetted by building officials and tacoma engineers inc. A deck is a structure capable of supporting weight, similar to a floor, but typically constructed outdoors,.
from www.decksgo.com
A deck is a structure capable of supporting weight, similar to a floor, but typically constructed outdoors,. It is the responsibility of the homeowner to. the information and details within the guide have been vetted by building officials and tacoma engineers inc. anyone is allowed to construct the deck once a building permit has been issued to the home/property owner. A deck must comply with the building code and zoning requirements. For more information, contact the city of oshawa’s. Anyone is permitted to construct the deck once a building permit has been obtained. A building permit is required for all decks except where: Distance from the finished ground to the finished. any proposed deck construction on a property with a septic system shall comply with the required clearances in part 8 of.
Where does the Ontario building code set out the allowable height for
Ontario Building Code Deck Requirements A building permit is required for all decks except where: anyone is allowed to construct the deck once a building permit has been issued to the home/property owner. A building permit is required for all decks except where: A deck must comply with the building code and zoning requirements. A deck is a structure capable of supporting weight, similar to a floor, but typically constructed outdoors,. any proposed deck construction on a property with a septic system shall comply with the required clearances in part 8 of. For more information, contact the city of oshawa’s. It is the responsibility of the homeowner to. Anyone is permitted to construct the deck once a building permit has been obtained. Distance from the finished ground to the finished. the information and details within the guide have been vetted by building officials and tacoma engineers inc.
From rockstarlasopa139.weebly.com
Ontario building code deck beam spans rockstarlasopa Ontario Building Code Deck Requirements the information and details within the guide have been vetted by building officials and tacoma engineers inc. A deck is a structure capable of supporting weight, similar to a floor, but typically constructed outdoors,. A building permit is required for all decks except where: For more information, contact the city of oshawa’s. any proposed deck construction on a. Ontario Building Code Deck Requirements.
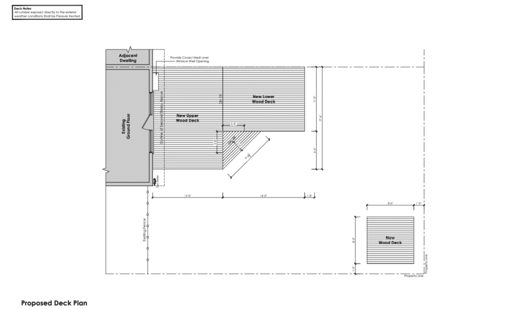
From studylib.net
Ontario Building Code (Part 4) Ontario Building Code Deck Requirements anyone is allowed to construct the deck once a building permit has been issued to the home/property owner. Distance from the finished ground to the finished. A deck must comply with the building code and zoning requirements. the information and details within the guide have been vetted by building officials and tacoma engineers inc. Anyone is permitted to. Ontario Building Code Deck Requirements.
From kasapshoppe.weebly.com
Ontario building code 2018 Ontario Building Code Deck Requirements anyone is allowed to construct the deck once a building permit has been issued to the home/property owner. A deck must comply with the building code and zoning requirements. the information and details within the guide have been vetted by building officials and tacoma engineers inc. A building permit is required for all decks except where: It is. Ontario Building Code Deck Requirements.
From rlonvcmips.blogspot.com
Deck Railing Code Height, Deck Railing Height Requirements and Codes Ontario Building Code Deck Requirements A deck must comply with the building code and zoning requirements. any proposed deck construction on a property with a septic system shall comply with the required clearances in part 8 of. A building permit is required for all decks except where: It is the responsibility of the homeowner to. A deck is a structure capable of supporting weight,. Ontario Building Code Deck Requirements.
From anmxqqaupd.blogspot.com
Minimum Railing Height Ontario Deck Railing Height Requirements And Ontario Building Code Deck Requirements It is the responsibility of the homeowner to. A building permit is required for all decks except where: For more information, contact the city of oshawa’s. anyone is allowed to construct the deck once a building permit has been issued to the home/property owner. the information and details within the guide have been vetted by building officials and. Ontario Building Code Deck Requirements.
From www.decksgo.com
Deck Building Code Requirements Checklist & Tips DecksGo Ontario Building Code Deck Requirements the information and details within the guide have been vetted by building officials and tacoma engineers inc. Distance from the finished ground to the finished. Anyone is permitted to construct the deck once a building permit has been obtained. any proposed deck construction on a property with a septic system shall comply with the required clearances in part. Ontario Building Code Deck Requirements.
From extremehowto.com
Building A Code Compliant Deck Deck Building Code Approved Ontario Building Code Deck Requirements anyone is allowed to construct the deck once a building permit has been issued to the home/property owner. Anyone is permitted to construct the deck once a building permit has been obtained. the information and details within the guide have been vetted by building officials and tacoma engineers inc. It is the responsibility of the homeowner to. Distance. Ontario Building Code Deck Requirements.
From gilbertoempsy1998.blogspot.com
Minimum Railing Height Ontario Deck Railing Height Requirements and Ontario Building Code Deck Requirements anyone is allowed to construct the deck once a building permit has been issued to the home/property owner. any proposed deck construction on a property with a septic system shall comply with the required clearances in part 8 of. A deck is a structure capable of supporting weight, similar to a floor, but typically constructed outdoors,. For more. Ontario Building Code Deck Requirements.
From mybios.me
Ontario Building Code Deck Joist Span Tables My Bios Ontario Building Code Deck Requirements A deck is a structure capable of supporting weight, similar to a floor, but typically constructed outdoors,. Distance from the finished ground to the finished. For more information, contact the city of oshawa’s. any proposed deck construction on a property with a septic system shall comply with the required clearances in part 8 of. Anyone is permitted to construct. Ontario Building Code Deck Requirements.
From greensideupcontracting.com
GTA Deck Building Permits Guide to Ontario Building Code Decks Ontario Building Code Deck Requirements Distance from the finished ground to the finished. A building permit is required for all decks except where: A deck must comply with the building code and zoning requirements. For more information, contact the city of oshawa’s. A deck is a structure capable of supporting weight, similar to a floor, but typically constructed outdoors,. It is the responsibility of the. Ontario Building Code Deck Requirements.
From www.steelworksolutions.ca
Navigating the Ontario Building Code Demystifying Railing Requirements Ontario Building Code Deck Requirements Distance from the finished ground to the finished. For more information, contact the city of oshawa’s. A building permit is required for all decks except where: A deck is a structure capable of supporting weight, similar to a floor, but typically constructed outdoors,. A deck must comply with the building code and zoning requirements. any proposed deck construction on. Ontario Building Code Deck Requirements.
From exojtrvtw.blob.core.windows.net
Stair Railing Requirements Ontario at Jerry Simon blog Ontario Building Code Deck Requirements the information and details within the guide have been vetted by building officials and tacoma engineers inc. For more information, contact the city of oshawa’s. A deck must comply with the building code and zoning requirements. any proposed deck construction on a property with a septic system shall comply with the required clearances in part 8 of. Anyone. Ontario Building Code Deck Requirements.
From www.artofit.org
Building a code compliant deck deck building code approved Artofit Ontario Building Code Deck Requirements A deck must comply with the building code and zoning requirements. Distance from the finished ground to the finished. anyone is allowed to construct the deck once a building permit has been issued to the home/property owner. For more information, contact the city of oshawa’s. Anyone is permitted to construct the deck once a building permit has been obtained.. Ontario Building Code Deck Requirements.
From deckersdeck.ca
Deck Railing Code in Ontario Canada Requirements Deckers Deck Ontario Building Code Deck Requirements A deck is a structure capable of supporting weight, similar to a floor, but typically constructed outdoors,. Anyone is permitted to construct the deck once a building permit has been obtained. Distance from the finished ground to the finished. For more information, contact the city of oshawa’s. any proposed deck construction on a property with a septic system shall. Ontario Building Code Deck Requirements.
From webframes.org
Ontario Building Code Interior Wall Framing Ontario Building Code Deck Requirements For more information, contact the city of oshawa’s. A deck is a structure capable of supporting weight, similar to a floor, but typically constructed outdoors,. A building permit is required for all decks except where: Anyone is permitted to construct the deck once a building permit has been obtained. any proposed deck construction on a property with a septic. Ontario Building Code Deck Requirements.
From propertypathways.ca
Ontario Building Code Simplified What You Need To Know? Property Ontario Building Code Deck Requirements any proposed deck construction on a property with a septic system shall comply with the required clearances in part 8 of. A deck is a structure capable of supporting weight, similar to a floor, but typically constructed outdoors,. Distance from the finished ground to the finished. anyone is allowed to construct the deck once a building permit has. Ontario Building Code Deck Requirements.
From greensideupcontracting.com
GTA Deck Building Permits Guide to Ontario Building Code Decks Ontario Building Code Deck Requirements Distance from the finished ground to the finished. Anyone is permitted to construct the deck once a building permit has been obtained. A deck is a structure capable of supporting weight, similar to a floor, but typically constructed outdoors,. It is the responsibility of the homeowner to. A deck must comply with the building code and zoning requirements. anyone. Ontario Building Code Deck Requirements.
From edu.svet.gob.gt
Guide Deck Railing Height Code Requirements TimberTech Ontario Building Code Deck Requirements A deck is a structure capable of supporting weight, similar to a floor, but typically constructed outdoors,. A building permit is required for all decks except where: It is the responsibility of the homeowner to. Distance from the finished ground to the finished. anyone is allowed to construct the deck once a building permit has been issued to the. Ontario Building Code Deck Requirements.
From deckbuildingtoday.blogspot.com
Deck Building Ontario Deck Building Code Railing Ontario Building Code Deck Requirements It is the responsibility of the homeowner to. A deck is a structure capable of supporting weight, similar to a floor, but typically constructed outdoors,. anyone is allowed to construct the deck once a building permit has been issued to the home/property owner. For more information, contact the city of oshawa’s. Distance from the finished ground to the finished.. Ontario Building Code Deck Requirements.
From greensideupcontracting.com
GTA Deck Building Permits Guide to Ontario Building Code Decks Ontario Building Code Deck Requirements It is the responsibility of the homeowner to. A deck must comply with the building code and zoning requirements. Distance from the finished ground to the finished. For more information, contact the city of oshawa’s. A building permit is required for all decks except where: anyone is allowed to construct the deck once a building permit has been issued. Ontario Building Code Deck Requirements.
From art-metal.ca
Deck Railing Height Requirements and Codes for Ontario Ontario Building Code Deck Requirements A building permit is required for all decks except where: A deck is a structure capable of supporting weight, similar to a floor, but typically constructed outdoors,. For more information, contact the city of oshawa’s. the information and details within the guide have been vetted by building officials and tacoma engineers inc. Anyone is permitted to construct the deck. Ontario Building Code Deck Requirements.
From www.railing.design
ontario building code railing requirements Railings Design Resources Ontario Building Code Deck Requirements Anyone is permitted to construct the deck once a building permit has been obtained. any proposed deck construction on a property with a septic system shall comply with the required clearances in part 8 of. A building permit is required for all decks except where: anyone is allowed to construct the deck once a building permit has been. Ontario Building Code Deck Requirements.
From art-metal.ca
Deck Railing Height Requirements and Codes for Ontario Ontario Building Code Deck Requirements Distance from the finished ground to the finished. anyone is allowed to construct the deck once a building permit has been issued to the home/property owner. It is the responsibility of the homeowner to. the information and details within the guide have been vetted by building officials and tacoma engineers inc. Anyone is permitted to construct the deck. Ontario Building Code Deck Requirements.
From ww2.railing.design
Ontario Building Code Interior Stair Railing Requirements Railing Ontario Building Code Deck Requirements Distance from the finished ground to the finished. A deck is a structure capable of supporting weight, similar to a floor, but typically constructed outdoors,. For more information, contact the city of oshawa’s. Anyone is permitted to construct the deck once a building permit has been obtained. the information and details within the guide have been vetted by building. Ontario Building Code Deck Requirements.
From art-metal.ca
Deck Railing Height Requirements and Codes for Ontario Ontario Building Code Deck Requirements A building permit is required for all decks except where: A deck must comply with the building code and zoning requirements. It is the responsibility of the homeowner to. Distance from the finished ground to the finished. A deck is a structure capable of supporting weight, similar to a floor, but typically constructed outdoors,. For more information, contact the city. Ontario Building Code Deck Requirements.
From art-metal.ca
Deck Railing Height Requirements and Codes for Ontario Ontario Building Code Deck Requirements A building permit is required for all decks except where: anyone is allowed to construct the deck once a building permit has been issued to the home/property owner. any proposed deck construction on a property with a septic system shall comply with the required clearances in part 8 of. It is the responsibility of the homeowner to. . Ontario Building Code Deck Requirements.
From www.decksgo.com
Where does the Ontario building code set out the allowable height for Ontario Building Code Deck Requirements A building permit is required for all decks except where: anyone is allowed to construct the deck once a building permit has been issued to the home/property owner. Anyone is permitted to construct the deck once a building permit has been obtained. It is the responsibility of the homeowner to. For more information, contact the city of oshawa’s. A. Ontario Building Code Deck Requirements.
From mybluecollarphotos.blogspot.com
Maximum Stair Height That Not Required Railing Ontario Building Code Ontario Building Code Deck Requirements Anyone is permitted to construct the deck once a building permit has been obtained. A deck is a structure capable of supporting weight, similar to a floor, but typically constructed outdoors,. the information and details within the guide have been vetted by building officials and tacoma engineers inc. A building permit is required for all decks except where: Distance. Ontario Building Code Deck Requirements.
From www.decksgo.com
Where does the Ontario building code set out the allowable height for Ontario Building Code Deck Requirements Anyone is permitted to construct the deck once a building permit has been obtained. any proposed deck construction on a property with a septic system shall comply with the required clearances in part 8 of. A building permit is required for all decks except where: anyone is allowed to construct the deck once a building permit has been. Ontario Building Code Deck Requirements.
From railings-toronto.ca
Revamping Your Deck? Here’s the Ontario Building Code For Railing Ontario Building Code Deck Requirements the information and details within the guide have been vetted by building officials and tacoma engineers inc. For more information, contact the city of oshawa’s. Anyone is permitted to construct the deck once a building permit has been obtained. A deck is a structure capable of supporting weight, similar to a floor, but typically constructed outdoors,. It is the. Ontario Building Code Deck Requirements.
From dxoftwylg.blob.core.windows.net
Ontario Building Code Requirements For Second Units at Catherine Rooker Ontario Building Code Deck Requirements For more information, contact the city of oshawa’s. A deck is a structure capable of supporting weight, similar to a floor, but typically constructed outdoors,. A deck must comply with the building code and zoning requirements. Distance from the finished ground to the finished. It is the responsibility of the homeowner to. Anyone is permitted to construct the deck once. Ontario Building Code Deck Requirements.
From art-metal.ca
Deck Railing Height Requirements and Codes for Ontario Ontario Building Code Deck Requirements For more information, contact the city of oshawa’s. Anyone is permitted to construct the deck once a building permit has been obtained. A deck is a structure capable of supporting weight, similar to a floor, but typically constructed outdoors,. anyone is allowed to construct the deck once a building permit has been issued to the home/property owner. any. Ontario Building Code Deck Requirements.
From art-metal.ca
Deck Railing Height Requirements and Codes for Ontario Ontario Building Code Deck Requirements It is the responsibility of the homeowner to. A building permit is required for all decks except where: A deck must comply with the building code and zoning requirements. Distance from the finished ground to the finished. any proposed deck construction on a property with a septic system shall comply with the required clearances in part 8 of. . Ontario Building Code Deck Requirements.
From art-metal.ca
Deck Railing Height Requirements and Codes for Ontario Ontario Building Code Deck Requirements the information and details within the guide have been vetted by building officials and tacoma engineers inc. any proposed deck construction on a property with a septic system shall comply with the required clearances in part 8 of. A deck is a structure capable of supporting weight, similar to a floor, but typically constructed outdoors,. Anyone is permitted. Ontario Building Code Deck Requirements.
From www.councilnet.us
Deck Building Codes Ontario Building Code Deck Requirements Anyone is permitted to construct the deck once a building permit has been obtained. A building permit is required for all decks except where: For more information, contact the city of oshawa’s. Distance from the finished ground to the finished. anyone is allowed to construct the deck once a building permit has been issued to the home/property owner. A. Ontario Building Code Deck Requirements.