How Many Blocks Can Build 3 Bedroom Duplex . Utilize a cement block calculator. This estimate would be based on. in this piece, we will be taking a look at the blocks required to complete a standard 3 bedroom flat, resting on a 450 sqm piece of. Enter the dimensions of your wall and the block size, and. browse a variety of duplex house plans, featuring two units of living space side by side or stacked. how many blocks can build a 3 bedroom? It will approximately take 3032 blocks to build a 3 bedroom. in this video we learn how to calculate materials for building a 3 bedroom house. calculate how many concrete blocks you need for a wall or foundation, and learn how to estimate concrete block and mortar for a project. find out how many concrete blocks you need for your wall project with this online tool. today we will be discussing on how to calculate how many blocks for 3 bedroom flat in nigeria.
from www.pinterest.jp
in this video we learn how to calculate materials for building a 3 bedroom house. find out how many concrete blocks you need for your wall project with this online tool. Enter the dimensions of your wall and the block size, and. This estimate would be based on. today we will be discussing on how to calculate how many blocks for 3 bedroom flat in nigeria. calculate how many concrete blocks you need for a wall or foundation, and learn how to estimate concrete block and mortar for a project. how many blocks can build a 3 bedroom? It will approximately take 3032 blocks to build a 3 bedroom. in this piece, we will be taking a look at the blocks required to complete a standard 3 bedroom flat, resting on a 450 sqm piece of. Utilize a cement block calculator.
Beautiful duplex with 3 bedrooms, 1 1/2 bathrooms per unit. Aspen Lodge
How Many Blocks Can Build 3 Bedroom Duplex It will approximately take 3032 blocks to build a 3 bedroom. in this piece, we will be taking a look at the blocks required to complete a standard 3 bedroom flat, resting on a 450 sqm piece of. how many blocks can build a 3 bedroom? find out how many concrete blocks you need for your wall project with this online tool. calculate how many concrete blocks you need for a wall or foundation, and learn how to estimate concrete block and mortar for a project. browse a variety of duplex house plans, featuring two units of living space side by side or stacked. today we will be discussing on how to calculate how many blocks for 3 bedroom flat in nigeria. in this video we learn how to calculate materials for building a 3 bedroom house. Enter the dimensions of your wall and the block size, and. This estimate would be based on. It will approximately take 3032 blocks to build a 3 bedroom. Utilize a cement block calculator.
From www.architecturaldesigns.com
Duplex House Plans Architectural Designs How Many Blocks Can Build 3 Bedroom Duplex in this piece, we will be taking a look at the blocks required to complete a standard 3 bedroom flat, resting on a 450 sqm piece of. It will approximately take 3032 blocks to build a 3 bedroom. browse a variety of duplex house plans, featuring two units of living space side by side or stacked. find. How Many Blocks Can Build 3 Bedroom Duplex.
From www.pinterest.com.au
Pin on Craftsmen Homes How Many Blocks Can Build 3 Bedroom Duplex Enter the dimensions of your wall and the block size, and. how many blocks can build a 3 bedroom? This estimate would be based on. in this piece, we will be taking a look at the blocks required to complete a standard 3 bedroom flat, resting on a 450 sqm piece of. in this video we learn. How Many Blocks Can Build 3 Bedroom Duplex.
From www.architecturaldesigns.com
Spacious Three Bedroom Duplex 5103MM Architectural Designs House How Many Blocks Can Build 3 Bedroom Duplex It will approximately take 3032 blocks to build a 3 bedroom. Utilize a cement block calculator. browse a variety of duplex house plans, featuring two units of living space side by side or stacked. Enter the dimensions of your wall and the block size, and. in this video we learn how to calculate materials for building a 3. How Many Blocks Can Build 3 Bedroom Duplex.
From exoqelpak.blob.core.windows.net
How Many Blocks Can Build A Three Bedroom House at Rebecca Lyles blog How Many Blocks Can Build 3 Bedroom Duplex It will approximately take 3032 blocks to build a 3 bedroom. today we will be discussing on how to calculate how many blocks for 3 bedroom flat in nigeria. This estimate would be based on. in this video we learn how to calculate materials for building a 3 bedroom house. calculate how many concrete blocks you need. How Many Blocks Can Build 3 Bedroom Duplex.
From www.stkittsvilla.com
5 Bedroom Duplex Design Preston House Plans How Many Blocks Can Build 3 Bedroom Duplex browse a variety of duplex house plans, featuring two units of living space side by side or stacked. in this piece, we will be taking a look at the blocks required to complete a standard 3 bedroom flat, resting on a 450 sqm piece of. today we will be discussing on how to calculate how many blocks. How Many Blocks Can Build 3 Bedroom Duplex.
From mungfali.com
Free 4 Bedroom Duplex House Plans Krkfm C8F How Many Blocks Can Build 3 Bedroom Duplex calculate how many concrete blocks you need for a wall or foundation, and learn how to estimate concrete block and mortar for a project. today we will be discussing on how to calculate how many blocks for 3 bedroom flat in nigeria. browse a variety of duplex house plans, featuring two units of living space side by. How Many Blocks Can Build 3 Bedroom Duplex.
From www.stkittsvilla.com
4 Bedroom Duplex Rf D4011 Nigerian Building Designs How Many Blocks Can Build 3 Bedroom Duplex find out how many concrete blocks you need for your wall project with this online tool. Enter the dimensions of your wall and the block size, and. calculate how many concrete blocks you need for a wall or foundation, and learn how to estimate concrete block and mortar for a project. in this video we learn how. How Many Blocks Can Build 3 Bedroom Duplex.
From www.pinterest.com
The Making Of The Enugu 6 Bedroom Duplex Properties (3) Nigeria How Many Blocks Can Build 3 Bedroom Duplex This estimate would be based on. Enter the dimensions of your wall and the block size, and. browse a variety of duplex house plans, featuring two units of living space side by side or stacked. find out how many concrete blocks you need for your wall project with this online tool. Utilize a cement block calculator. calculate. How Many Blocks Can Build 3 Bedroom Duplex.
From www.architecturaldesigns.com
3 Bedroom Duplex House Plan 72745DA Architectural Designs House Plans How Many Blocks Can Build 3 Bedroom Duplex in this piece, we will be taking a look at the blocks required to complete a standard 3 bedroom flat, resting on a 450 sqm piece of. Utilize a cement block calculator. Enter the dimensions of your wall and the block size, and. how many blocks can build a 3 bedroom? find out how many concrete blocks. How Many Blocks Can Build 3 Bedroom Duplex.
From nigeriapropertycentre.com
For Rent Luxury Newly Build 3 Bedroom Duplex Self Service, Thomas How Many Blocks Can Build 3 Bedroom Duplex find out how many concrete blocks you need for your wall project with this online tool. browse a variety of duplex house plans, featuring two units of living space side by side or stacked. This estimate would be based on. how many blocks can build a 3 bedroom? Utilize a cement block calculator. today we will. How Many Blocks Can Build 3 Bedroom Duplex.
From www.etsy.com
Duplex House Plans 6 Bedrooms Corner Lot Duplex House Plans Etsy How Many Blocks Can Build 3 Bedroom Duplex calculate how many concrete blocks you need for a wall or foundation, and learn how to estimate concrete block and mortar for a project. in this video we learn how to calculate materials for building a 3 bedroom house. today we will be discussing on how to calculate how many blocks for 3 bedroom flat in nigeria.. How Many Blocks Can Build 3 Bedroom Duplex.
From www.stkittsvilla.com
Apartment Block Of 8 Units 2 Bedroom Flats Preston House Plans How Many Blocks Can Build 3 Bedroom Duplex today we will be discussing on how to calculate how many blocks for 3 bedroom flat in nigeria. in this video we learn how to calculate materials for building a 3 bedroom house. how many blocks can build a 3 bedroom? find out how many concrete blocks you need for your wall project with this online. How Many Blocks Can Build 3 Bedroom Duplex.
From infoupdate.org
How Many Blocks Do I Need To Build A 3 Bedroom House How Many Blocks Can Build 3 Bedroom Duplex calculate how many concrete blocks you need for a wall or foundation, and learn how to estimate concrete block and mortar for a project. This estimate would be based on. in this video we learn how to calculate materials for building a 3 bedroom house. in this piece, we will be taking a look at the blocks. How Many Blocks Can Build 3 Bedroom Duplex.
From www.architecturaldesigns.com
Beautiful 3 Bedroom Duplex in Many Sizes 51114MM Architectural How Many Blocks Can Build 3 Bedroom Duplex Utilize a cement block calculator. Enter the dimensions of your wall and the block size, and. calculate how many concrete blocks you need for a wall or foundation, and learn how to estimate concrete block and mortar for a project. in this piece, we will be taking a look at the blocks required to complete a standard 3. How Many Blocks Can Build 3 Bedroom Duplex.
From floorplans.click
2 Bhk Duplex Floor Plan floorplans.click How Many Blocks Can Build 3 Bedroom Duplex Enter the dimensions of your wall and the block size, and. find out how many concrete blocks you need for your wall project with this online tool. browse a variety of duplex house plans, featuring two units of living space side by side or stacked. This estimate would be based on. Utilize a cement block calculator. It will. How Many Blocks Can Build 3 Bedroom Duplex.
From www.pinterest.com
Modular Duplex TLC Modular Homes Duplex floor plans, Duplex plans How Many Blocks Can Build 3 Bedroom Duplex find out how many concrete blocks you need for your wall project with this online tool. This estimate would be based on. how many blocks can build a 3 bedroom? browse a variety of duplex house plans, featuring two units of living space side by side or stacked. today we will be discussing on how to. How Many Blocks Can Build 3 Bedroom Duplex.
From nigerianhouseplans.com
3 bedroom duplex (Ref.3038) NIGERIAN HOUSE PLANS How Many Blocks Can Build 3 Bedroom Duplex calculate how many concrete blocks you need for a wall or foundation, and learn how to estimate concrete block and mortar for a project. Utilize a cement block calculator. This estimate would be based on. in this piece, we will be taking a look at the blocks required to complete a standard 3 bedroom flat, resting on a. How Many Blocks Can Build 3 Bedroom Duplex.
From www.nairaland.com
Renovation Of A 4bedroom Duplex To 3 Bedroom Duplex Oral Estate, Lekki How Many Blocks Can Build 3 Bedroom Duplex This estimate would be based on. Utilize a cement block calculator. browse a variety of duplex house plans, featuring two units of living space side by side or stacked. It will approximately take 3032 blocks to build a 3 bedroom. today we will be discussing on how to calculate how many blocks for 3 bedroom flat in nigeria.. How Many Blocks Can Build 3 Bedroom Duplex.
From guardianconstructors.com
How to Calculate The Number Of Blocks Required For 2 Bedroom flat How Many Blocks Can Build 3 Bedroom Duplex in this video we learn how to calculate materials for building a 3 bedroom house. Enter the dimensions of your wall and the block size, and. how many blocks can build a 3 bedroom? in this piece, we will be taking a look at the blocks required to complete a standard 3 bedroom flat, resting on a. How Many Blocks Can Build 3 Bedroom Duplex.
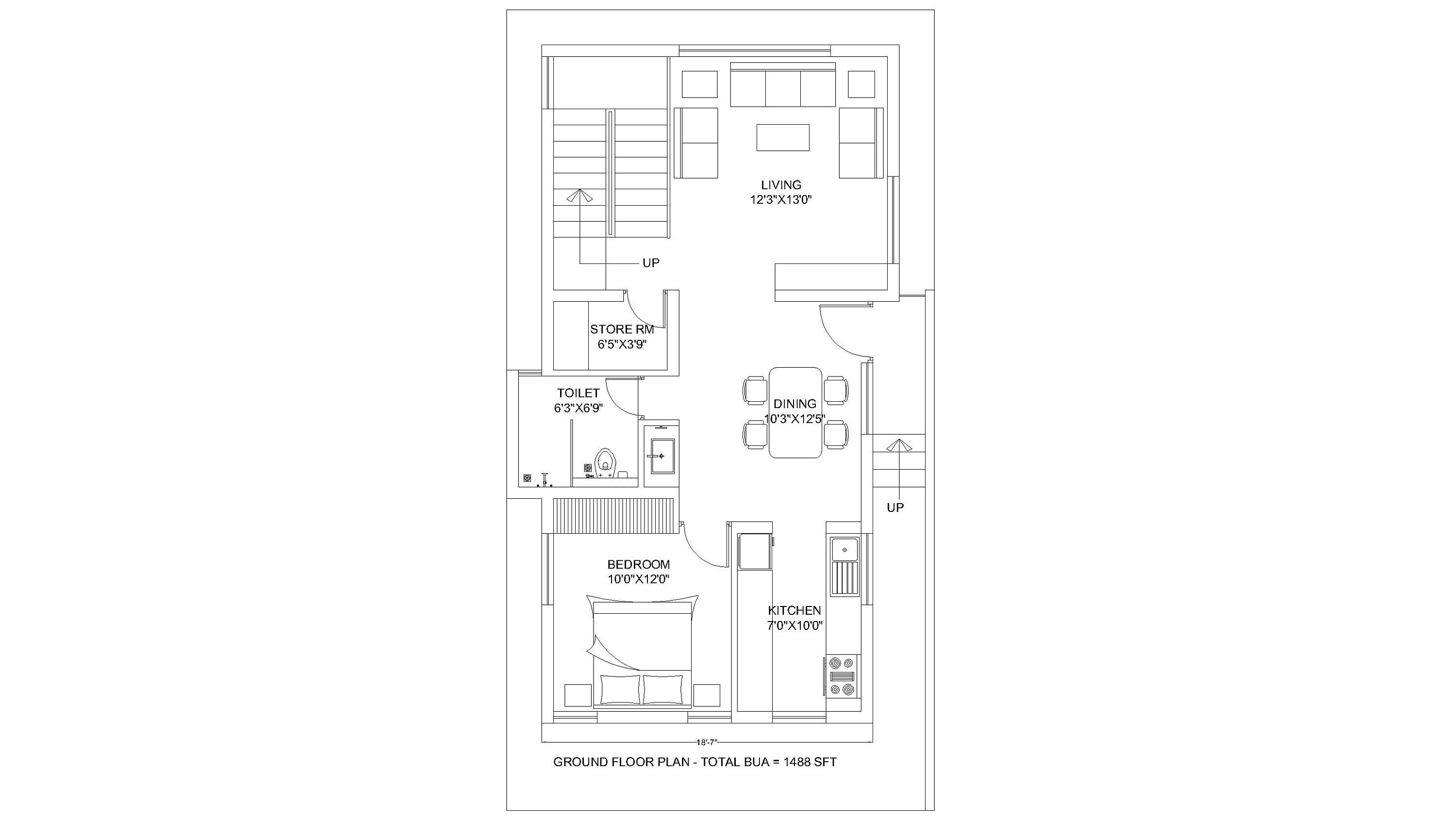
From www.etsy.com
3 Bedroom Duplex House Plan With 1488 Sft Built up Area Home Etsy How Many Blocks Can Build 3 Bedroom Duplex browse a variety of duplex house plans, featuring two units of living space side by side or stacked. It will approximately take 3032 blocks to build a 3 bedroom. how many blocks can build a 3 bedroom? calculate how many concrete blocks you need for a wall or foundation, and learn how to estimate concrete block and. How Many Blocks Can Build 3 Bedroom Duplex.
From www.stkittsvilla.com
How To Calculate The Number Of Blocks Required Complete A 3 Bedroom How Many Blocks Can Build 3 Bedroom Duplex in this piece, we will be taking a look at the blocks required to complete a standard 3 bedroom flat, resting on a 450 sqm piece of. how many blocks can build a 3 bedroom? calculate how many concrete blocks you need for a wall or foundation, and learn how to estimate concrete block and mortar for. How Many Blocks Can Build 3 Bedroom Duplex.
From houseplansz.netlify.app
Primary Single Story 3 Bedroom Duplex House Plans Comfortable New How Many Blocks Can Build 3 Bedroom Duplex today we will be discussing on how to calculate how many blocks for 3 bedroom flat in nigeria. in this piece, we will be taking a look at the blocks required to complete a standard 3 bedroom flat, resting on a 450 sqm piece of. It will approximately take 3032 blocks to build a 3 bedroom. how. How Many Blocks Can Build 3 Bedroom Duplex.
From www.privateproperty.com.ng
8 bedroom Duplex For Sale Comes With A Garage, Generator House And 2 How Many Blocks Can Build 3 Bedroom Duplex how many blocks can build a 3 bedroom? today we will be discussing on how to calculate how many blocks for 3 bedroom flat in nigeria. calculate how many concrete blocks you need for a wall or foundation, and learn how to estimate concrete block and mortar for a project. Utilize a cement block calculator. This estimate. How Many Blocks Can Build 3 Bedroom Duplex.
From www.pinterest.com
8 Bedroom 4 Bathroom ! duplex house plans Duplex Design 269.6DU Mar How Many Blocks Can Build 3 Bedroom Duplex find out how many concrete blocks you need for your wall project with this online tool. It will approximately take 3032 blocks to build a 3 bedroom. how many blocks can build a 3 bedroom? This estimate would be based on. in this piece, we will be taking a look at the blocks required to complete a. How Many Blocks Can Build 3 Bedroom Duplex.
From www.nairaland.com
Urgent Help Needed Quotation For A 3 Bedroom Bungalow Properties How Many Blocks Can Build 3 Bedroom Duplex in this piece, we will be taking a look at the blocks required to complete a standard 3 bedroom flat, resting on a 450 sqm piece of. today we will be discussing on how to calculate how many blocks for 3 bedroom flat in nigeria. calculate how many concrete blocks you need for a wall or foundation,. How Many Blocks Can Build 3 Bedroom Duplex.
From www.pinterest.jp
Beautiful duplex with 3 bedrooms, 1 1/2 bathrooms per unit. Aspen Lodge How Many Blocks Can Build 3 Bedroom Duplex calculate how many concrete blocks you need for a wall or foundation, and learn how to estimate concrete block and mortar for a project. find out how many concrete blocks you need for your wall project with this online tool. Utilize a cement block calculator. today we will be discussing on how to calculate how many blocks. How Many Blocks Can Build 3 Bedroom Duplex.
From www.houseplans.pro
Duplex House Plans & Designs One Story Ranch, 2 Story Bruinier How Many Blocks Can Build 3 Bedroom Duplex find out how many concrete blocks you need for your wall project with this online tool. Enter the dimensions of your wall and the block size, and. in this piece, we will be taking a look at the blocks required to complete a standard 3 bedroom flat, resting on a 450 sqm piece of. browse a variety. How Many Blocks Can Build 3 Bedroom Duplex.
From www.stkittsvilla.com
5 Bedroom Duplex Id 5509 5921 Preston House Plans How Many Blocks Can Build 3 Bedroom Duplex today we will be discussing on how to calculate how many blocks for 3 bedroom flat in nigeria. find out how many concrete blocks you need for your wall project with this online tool. in this video we learn how to calculate materials for building a 3 bedroom house. Utilize a cement block calculator. how many. How Many Blocks Can Build 3 Bedroom Duplex.
From www.stkittsvilla.com
How To Calculate The Number Of Blocks Required Complete A 3 Bedroom How Many Blocks Can Build 3 Bedroom Duplex find out how many concrete blocks you need for your wall project with this online tool. how many blocks can build a 3 bedroom? today we will be discussing on how to calculate how many blocks for 3 bedroom flat in nigeria. This estimate would be based on. in this piece, we will be taking a. How Many Blocks Can Build 3 Bedroom Duplex.
From www.pinterest.com
Floor Plans of Corner Park Apartments in West Chester, PA Town house How Many Blocks Can Build 3 Bedroom Duplex in this video we learn how to calculate materials for building a 3 bedroom house. find out how many concrete blocks you need for your wall project with this online tool. today we will be discussing on how to calculate how many blocks for 3 bedroom flat in nigeria. calculate how many concrete blocks you need. How Many Blocks Can Build 3 Bedroom Duplex.
From nigerianbuildingdesigns.com
3 BEDROOM DUPLEX (RF D3005) NIGERIAN BUILDING DESIGNS How Many Blocks Can Build 3 Bedroom Duplex calculate how many concrete blocks you need for a wall or foundation, and learn how to estimate concrete block and mortar for a project. It will approximately take 3032 blocks to build a 3 bedroom. in this piece, we will be taking a look at the blocks required to complete a standard 3 bedroom flat, resting on a. How Many Blocks Can Build 3 Bedroom Duplex.
From homeminimalisite.com
2 Bedroom Duplex House Plans In Nigeria How Many Blocks Can Build 3 Bedroom Duplex This estimate would be based on. Utilize a cement block calculator. Enter the dimensions of your wall and the block size, and. in this piece, we will be taking a look at the blocks required to complete a standard 3 bedroom flat, resting on a 450 sqm piece of. today we will be discussing on how to calculate. How Many Blocks Can Build 3 Bedroom Duplex.
From buildersvilla.com
How much does a duplex cost to build Builders Villa How Many Blocks Can Build 3 Bedroom Duplex Utilize a cement block calculator. Enter the dimensions of your wall and the block size, and. find out how many concrete blocks you need for your wall project with this online tool. today we will be discussing on how to calculate how many blocks for 3 bedroom flat in nigeria. in this piece, we will be taking. How Many Blocks Can Build 3 Bedroom Duplex.
From www.pinterest.com
How Many Blocks Can Build 2bedroom Flat ? Owning a house is a great How Many Blocks Can Build 3 Bedroom Duplex browse a variety of duplex house plans, featuring two units of living space side by side or stacked. in this video we learn how to calculate materials for building a 3 bedroom house. It will approximately take 3032 blocks to build a 3 bedroom. calculate how many concrete blocks you need for a wall or foundation, and. How Many Blocks Can Build 3 Bedroom Duplex.
From www.stkittsvilla.com
Average Cost Of Building A 3 Bedroom House Complete Guide How Many Blocks Can Build 3 Bedroom Duplex Enter the dimensions of your wall and the block size, and. calculate how many concrete blocks you need for a wall or foundation, and learn how to estimate concrete block and mortar for a project. in this video we learn how to calculate materials for building a 3 bedroom house. find out how many concrete blocks you. How Many Blocks Can Build 3 Bedroom Duplex.