Geary County Property Tax Rate . The geary county tax assessor is the local official who is responsible for assessing the taxable value of all properties within geary. Perform a search through the tax search information website. The median home value in geary county is between $111,169.00 and $126,031.00. For the property tax use our kansas vehicle property tax check. You can pay your taxes online by visiting the kansas county treasurers association website. Please review your tax statement, be certain. Property tax rates are based on property values. The median property tax (also known as real estate tax) in geary county is $1,526.00 per year, based on a median home value of $118,600.00. The county’s average effective property tax rate is 1.44%, while the average rate statewide is 1.33%. 031 geary county value and tax total taxable value value per capita total ad valorem tax tax per capita mill levy 2020 population. If you have questions about how property taxes can affect your. When using the property tax check, keep in mind that our.
from elnaqcharlot.pages.dev
Property tax rates are based on property values. The median home value in geary county is between $111,169.00 and $126,031.00. 031 geary county value and tax total taxable value value per capita total ad valorem tax tax per capita mill levy 2020 population. Please review your tax statement, be certain. You can pay your taxes online by visiting the kansas county treasurers association website. If you have questions about how property taxes can affect your. For the property tax use our kansas vehicle property tax check. The county’s average effective property tax rate is 1.44%, while the average rate statewide is 1.33%. Perform a search through the tax search information website. When using the property tax check, keep in mind that our.
Gaston County Property Tax Rate 2024 Sarah Cornelle
Geary County Property Tax Rate Perform a search through the tax search information website. If you have questions about how property taxes can affect your. The median property tax (also known as real estate tax) in geary county is $1,526.00 per year, based on a median home value of $118,600.00. The county’s average effective property tax rate is 1.44%, while the average rate statewide is 1.33%. You can pay your taxes online by visiting the kansas county treasurers association website. 031 geary county value and tax total taxable value value per capita total ad valorem tax tax per capita mill levy 2020 population. For the property tax use our kansas vehicle property tax check. When using the property tax check, keep in mind that our. Perform a search through the tax search information website. Property tax rates are based on property values. The median home value in geary county is between $111,169.00 and $126,031.00. Please review your tax statement, be certain. The geary county tax assessor is the local official who is responsible for assessing the taxable value of all properties within geary.
From wenonawjolie.pages.dev
San Diego County Property Tax Rate 2024 Brenn Kellyann Geary County Property Tax Rate You can pay your taxes online by visiting the kansas county treasurers association website. Please review your tax statement, be certain. The median home value in geary county is between $111,169.00 and $126,031.00. The county’s average effective property tax rate is 1.44%, while the average rate statewide is 1.33%. Property tax rates are based on property values. 031 geary county. Geary County Property Tax Rate.
From gusellawbride.pages.dev
Travis County Property Tax Rate 2024 Shawn Dolorita Geary County Property Tax Rate The median home value in geary county is between $111,169.00 and $126,031.00. Property tax rates are based on property values. Perform a search through the tax search information website. The geary county tax assessor is the local official who is responsible for assessing the taxable value of all properties within geary. The county’s average effective property tax rate is 1.44%,. Geary County Property Tax Rate.
From mavink.com
Texas County Tax Rates Map Geary County Property Tax Rate The county’s average effective property tax rate is 1.44%, while the average rate statewide is 1.33%. Perform a search through the tax search information website. Please review your tax statement, be certain. You can pay your taxes online by visiting the kansas county treasurers association website. The median home value in geary county is between $111,169.00 and $126,031.00. If you. Geary County Property Tax Rate.
From marthawgina.pages.dev
Nc County Property Tax Rates 2024 Genni Josepha Geary County Property Tax Rate The county’s average effective property tax rate is 1.44%, while the average rate statewide is 1.33%. 031 geary county value and tax total taxable value value per capita total ad valorem tax tax per capita mill levy 2020 population. Property tax rates are based on property values. If you have questions about how property taxes can affect your. You can. Geary County Property Tax Rate.
From hxeorilco.blob.core.windows.net
Property Tax Rate Independence County Ar at Gerard Brazil blog Geary County Property Tax Rate The geary county tax assessor is the local official who is responsible for assessing the taxable value of all properties within geary. Property tax rates are based on property values. Perform a search through the tax search information website. When using the property tax check, keep in mind that our. Please review your tax statement, be certain. If you have. Geary County Property Tax Rate.
From nellenavdeep.blogspot.com
Property tax Singapore NelleNavdeep Geary County Property Tax Rate Perform a search through the tax search information website. You can pay your taxes online by visiting the kansas county treasurers association website. The median property tax (also known as real estate tax) in geary county is $1,526.00 per year, based on a median home value of $118,600.00. Property tax rates are based on property values. Please review your tax. Geary County Property Tax Rate.
From www.pennlive.com
Where are the highest property tax rates in central Pa.? Geary County Property Tax Rate 031 geary county value and tax total taxable value value per capita total ad valorem tax tax per capita mill levy 2020 population. When using the property tax check, keep in mind that our. For the property tax use our kansas vehicle property tax check. Perform a search through the tax search information website. The geary county tax assessor is. Geary County Property Tax Rate.
From www.cutmytaxes.com
Clayton Property Tax Assessment Clayton County Geary County Property Tax Rate For the property tax use our kansas vehicle property tax check. Perform a search through the tax search information website. Property tax rates are based on property values. You can pay your taxes online by visiting the kansas county treasurers association website. The median property tax (also known as real estate tax) in geary county is $1,526.00 per year, based. Geary County Property Tax Rate.
From activerain.com
2018 Property Tax Rates Mecklenburg & Union Counties Geary County Property Tax Rate If you have questions about how property taxes can affect your. The median home value in geary county is between $111,169.00 and $126,031.00. The geary county tax assessor is the local official who is responsible for assessing the taxable value of all properties within geary. Perform a search through the tax search information website. The county’s average effective property tax. Geary County Property Tax Rate.
From txcip.org
Texas Counties Total County Property Tax Rate Geary County Property Tax Rate For the property tax use our kansas vehicle property tax check. Please review your tax statement, be certain. The geary county tax assessor is the local official who is responsible for assessing the taxable value of all properties within geary. The median home value in geary county is between $111,169.00 and $126,031.00. 031 geary county value and tax total taxable. Geary County Property Tax Rate.
From www.ncjustice.org
N.C. Property Tax Relief Helping Families Without Harming Communities Geary County Property Tax Rate If you have questions about how property taxes can affect your. The median property tax (also known as real estate tax) in geary county is $1,526.00 per year, based on a median home value of $118,600.00. The county’s average effective property tax rate is 1.44%, while the average rate statewide is 1.33%. The geary county tax assessor is the local. Geary County Property Tax Rate.
From www.poconnor.com
Tarrant County Tax Assessment Market Value Geary County Property Tax Rate Property tax rates are based on property values. The median home value in geary county is between $111,169.00 and $126,031.00. You can pay your taxes online by visiting the kansas county treasurers association website. When using the property tax check, keep in mind that our. If you have questions about how property taxes can affect your. Perform a search through. Geary County Property Tax Rate.
From www.taxuni.com
Fairfax County Property Tax 2024 Geary County Property Tax Rate You can pay your taxes online by visiting the kansas county treasurers association website. Please review your tax statement, be certain. For the property tax use our kansas vehicle property tax check. If you have questions about how property taxes can affect your. The geary county tax assessor is the local official who is responsible for assessing the taxable value. Geary County Property Tax Rate.
From austonmoving.com
Greenville County Property Tax 💰 [2024] Greenville SC Tax Rate Geary County Property Tax Rate Perform a search through the tax search information website. For the property tax use our kansas vehicle property tax check. The geary county tax assessor is the local official who is responsible for assessing the taxable value of all properties within geary. The median property tax (also known as real estate tax) in geary county is $1,526.00 per year, based. Geary County Property Tax Rate.
From hxesxtjzj.blob.core.windows.net
Property Tax Rate Johnson County Ks at Jason Drake blog Geary County Property Tax Rate If you have questions about how property taxes can affect your. For the property tax use our kansas vehicle property tax check. The geary county tax assessor is the local official who is responsible for assessing the taxable value of all properties within geary. When using the property tax check, keep in mind that our. You can pay your taxes. Geary County Property Tax Rate.
From printableabudivh.z19.web.core.windows.net
Nc County Tax Rates 2024 Geary County Property Tax Rate The county’s average effective property tax rate is 1.44%, while the average rate statewide is 1.33%. The median property tax (also known as real estate tax) in geary county is $1,526.00 per year, based on a median home value of $118,600.00. If you have questions about how property taxes can affect your. Please review your tax statement, be certain. You. Geary County Property Tax Rate.
From pollyannawselma.pages.dev
Dallas County Property Tax Rate 2024 Juana Marabel Geary County Property Tax Rate If you have questions about how property taxes can affect your. Please review your tax statement, be certain. The median home value in geary county is between $111,169.00 and $126,031.00. Perform a search through the tax search information website. 031 geary county value and tax total taxable value value per capita total ad valorem tax tax per capita mill levy. Geary County Property Tax Rate.
From activerain.com
2019 Property Tax Rates Mecklenburg And Union Counties Geary County Property Tax Rate The median home value in geary county is between $111,169.00 and $126,031.00. The county’s average effective property tax rate is 1.44%, while the average rate statewide is 1.33%. If you have questions about how property taxes can affect your. Property tax rates are based on property values. When using the property tax check, keep in mind that our. 031 geary. Geary County Property Tax Rate.
From hxegyhlum.blob.core.windows.net
Property Tax Rate Orange County Florida at Dora Chapman blog Geary County Property Tax Rate Please review your tax statement, be certain. The median home value in geary county is between $111,169.00 and $126,031.00. 031 geary county value and tax total taxable value value per capita total ad valorem tax tax per capita mill levy 2020 population. When using the property tax check, keep in mind that our. You can pay your taxes online by. Geary County Property Tax Rate.
From geneqdarlleen.pages.dev
Travis County Property Tax Rate 2024 Lauri Mattie Geary County Property Tax Rate Perform a search through the tax search information website. The median property tax (also known as real estate tax) in geary county is $1,526.00 per year, based on a median home value of $118,600.00. You can pay your taxes online by visiting the kansas county treasurers association website. 031 geary county value and tax total taxable value value per capita. Geary County Property Tax Rate.
From natassiawdanila.pages.dev
Fairfax County Property Tax Rate 2024 Amye Madlen Geary County Property Tax Rate When using the property tax check, keep in mind that our. 031 geary county value and tax total taxable value value per capita total ad valorem tax tax per capita mill levy 2020 population. The median property tax (also known as real estate tax) in geary county is $1,526.00 per year, based on a median home value of $118,600.00. You. Geary County Property Tax Rate.
From www.mygenealogyhound.com
Geary County, Kansas, 1911, Map, Junction City, Fort Riley, Milford Geary County Property Tax Rate The median home value in geary county is between $111,169.00 and $126,031.00. When using the property tax check, keep in mind that our. You can pay your taxes online by visiting the kansas county treasurers association website. The median property tax (also known as real estate tax) in geary county is $1,526.00 per year, based on a median home value. Geary County Property Tax Rate.
From www.illinoispolicy.org
The Policy Shop Pension debt and property tax pain Geary County Property Tax Rate Please review your tax statement, be certain. The geary county tax assessor is the local official who is responsible for assessing the taxable value of all properties within geary. 031 geary county value and tax total taxable value value per capita total ad valorem tax tax per capita mill levy 2020 population. Property tax rates are based on property values.. Geary County Property Tax Rate.
From jeannayermengarde.pages.dev
2025 Indiana County Tax Rates Kyle Anstice Geary County Property Tax Rate 031 geary county value and tax total taxable value value per capita total ad valorem tax tax per capita mill levy 2020 population. The median property tax (also known as real estate tax) in geary county is $1,526.00 per year, based on a median home value of $118,600.00. If you have questions about how property taxes can affect your. Perform. Geary County Property Tax Rate.
From www.pdffiller.com
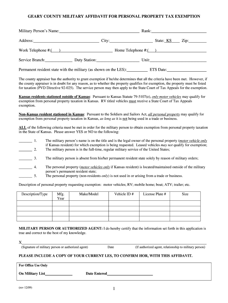
Fillable Online GEARY COUNTY MILITARY AFFIDAVIT FOR PERSONAL PROPERTY Geary County Property Tax Rate 031 geary county value and tax total taxable value value per capita total ad valorem tax tax per capita mill levy 2020 population. You can pay your taxes online by visiting the kansas county treasurers association website. For the property tax use our kansas vehicle property tax check. Perform a search through the tax search information website. Property tax rates. Geary County Property Tax Rate.
From gatlinburgrealestateforsale.com
Property Tax Information Geary County Property Tax Rate When using the property tax check, keep in mind that our. Perform a search through the tax search information website. The median property tax (also known as real estate tax) in geary county is $1,526.00 per year, based on a median home value of $118,600.00. The median home value in geary county is between $111,169.00 and $126,031.00. The geary county. Geary County Property Tax Rate.
From moco360.media
How would MoCo’s proposed property tax hike stack up against other Geary County Property Tax Rate Perform a search through the tax search information website. For the property tax use our kansas vehicle property tax check. The geary county tax assessor is the local official who is responsible for assessing the taxable value of all properties within geary. The county’s average effective property tax rate is 1.44%, while the average rate statewide is 1.33%. You can. Geary County Property Tax Rate.
From pastureandpearl.com
Cook County Property Tax Rates April 2024 Geary County Property Tax Rate 031 geary county value and tax total taxable value value per capita total ad valorem tax tax per capita mill levy 2020 population. For the property tax use our kansas vehicle property tax check. Please review your tax statement, be certain. Perform a search through the tax search information website. When using the property tax check, keep in mind that. Geary County Property Tax Rate.
From elnaqcharlot.pages.dev
Gaston County Property Tax Rate 2024 Sarah Cornelle Geary County Property Tax Rate The median home value in geary county is between $111,169.00 and $126,031.00. Perform a search through the tax search information website. For the property tax use our kansas vehicle property tax check. Please review your tax statement, be certain. Property tax rates are based on property values. The geary county tax assessor is the local official who is responsible for. Geary County Property Tax Rate.
From fyogkieaa.blob.core.windows.net
Gunnison County Property Tax Rate at Ronald Culp blog Geary County Property Tax Rate 031 geary county value and tax total taxable value value per capita total ad valorem tax tax per capita mill levy 2020 population. If you have questions about how property taxes can affect your. The median property tax (also known as real estate tax) in geary county is $1,526.00 per year, based on a median home value of $118,600.00. You. Geary County Property Tax Rate.
From stoneandstory.com
Geary County Stone & Story Real Estate Group Geary County Property Tax Rate Please review your tax statement, be certain. When using the property tax check, keep in mind that our. Property tax rates are based on property values. The median home value in geary county is between $111,169.00 and $126,031.00. You can pay your taxes online by visiting the kansas county treasurers association website. The county’s average effective property tax rate is. Geary County Property Tax Rate.
From mentorsmoving.com
Kern County Property Tax [2024] ? Bakersfield & Kern County Property Geary County Property Tax Rate When using the property tax check, keep in mind that our. Property tax rates are based on property values. The county’s average effective property tax rate is 1.44%, while the average rate statewide is 1.33%. Perform a search through the tax search information website. For the property tax use our kansas vehicle property tax check. You can pay your taxes. Geary County Property Tax Rate.
From federalcos.com
Peoria County Property Tax Guide [2024] 💰 Peoria Property Tax Rate Geary County Property Tax Rate For the property tax use our kansas vehicle property tax check. Please review your tax statement, be certain. If you have questions about how property taxes can affect your. The median home value in geary county is between $111,169.00 and $126,031.00. Property tax rates are based on property values. When using the property tax check, keep in mind that our.. Geary County Property Tax Rate.
From www.poconnor.com
Tarrant County Property Tax Protest Tarrant County Geary County Property Tax Rate The geary county tax assessor is the local official who is responsible for assessing the taxable value of all properties within geary. For the property tax use our kansas vehicle property tax check. The median property tax (also known as real estate tax) in geary county is $1,526.00 per year, based on a median home value of $118,600.00. When using. Geary County Property Tax Rate.
From www.expressnews.com
Map Keep current on Bexar County property tax rate increases Geary County Property Tax Rate When using the property tax check, keep in mind that our. The county’s average effective property tax rate is 1.44%, while the average rate statewide is 1.33%. For the property tax use our kansas vehicle property tax check. Perform a search through the tax search information website. The median home value in geary county is between $111,169.00 and $126,031.00. The. Geary County Property Tax Rate.