How To Make A Lead Chimney Apron . a recent video of me marking a lead chimney apron for a client. peter scholey of just lead shows you how to fit a sheet lead front apron. these front aprons are all made to order to ensure you get the best product for your property. Also learn about stepped lead flashing and sealing chased mortar joints and lead soakers. One coat is all that is needed. Apply the oil before any rain and at the end of the day’s work. The back has a similar piece called the pan. we make and supply lead chimney front aprons to suit any chimney and orientation. The front of the chimney has a single piece of flashing, the apron, as the first layer; All are made from code 4 sheet lead. in this project you will find out about lead chimney flashing and how to fit the sheet lead front and side apron when flashing a chimney to ensure that your chimney and roof both remain waterproof.
from www.trustinaplus.com
The back has a similar piece called the pan. these front aprons are all made to order to ensure you get the best product for your property. One coat is all that is needed. The front of the chimney has a single piece of flashing, the apron, as the first layer; a recent video of me marking a lead chimney apron for a client. peter scholey of just lead shows you how to fit a sheet lead front apron. in this project you will find out about lead chimney flashing and how to fit the sheet lead front and side apron when flashing a chimney to ensure that your chimney and roof both remain waterproof. Apply the oil before any rain and at the end of the day’s work. Also learn about stepped lead flashing and sealing chased mortar joints and lead soakers. we make and supply lead chimney front aprons to suit any chimney and orientation.
How to install chimney flashing in lead
How To Make A Lead Chimney Apron in this project you will find out about lead chimney flashing and how to fit the sheet lead front and side apron when flashing a chimney to ensure that your chimney and roof both remain waterproof. a recent video of me marking a lead chimney apron for a client. One coat is all that is needed. Apply the oil before any rain and at the end of the day’s work. Also learn about stepped lead flashing and sealing chased mortar joints and lead soakers. we make and supply lead chimney front aprons to suit any chimney and orientation. All are made from code 4 sheet lead. The back has a similar piece called the pan. The front of the chimney has a single piece of flashing, the apron, as the first layer; these front aprons are all made to order to ensure you get the best product for your property. peter scholey of just lead shows you how to fit a sheet lead front apron. in this project you will find out about lead chimney flashing and how to fit the sheet lead front and side apron when flashing a chimney to ensure that your chimney and roof both remain waterproof.
From www.justlead.co.uk
Chimney Front Apron Halfs Just Lead Suppliers of Lead How To Make A Lead Chimney Apron The front of the chimney has a single piece of flashing, the apron, as the first layer; All are made from code 4 sheet lead. we make and supply lead chimney front aprons to suit any chimney and orientation. in this project you will find out about lead chimney flashing and how to fit the sheet lead front. How To Make A Lead Chimney Apron.
From www.youtube.com
How to Install Chimney Flashing Shingle Roof Install Guide YouTube How To Make A Lead Chimney Apron The back has a similar piece called the pan. we make and supply lead chimney front aprons to suit any chimney and orientation. All are made from code 4 sheet lead. peter scholey of just lead shows you how to fit a sheet lead front apron. One coat is all that is needed. The front of the chimney. How To Make A Lead Chimney Apron.
From completeroofingyorkshire.co.uk
Leadwork & Flashing Complete Roofline How To Make A Lead Chimney Apron Also learn about stepped lead flashing and sealing chased mortar joints and lead soakers. these front aprons are all made to order to ensure you get the best product for your property. One coat is all that is needed. The back has a similar piece called the pan. The front of the chimney has a single piece of flashing,. How To Make A Lead Chimney Apron.
From www.reliableroofingbelfast.co.uk
Chimney Lead Services In Belfast Reliable Roofing Belfast How To Make A Lead Chimney Apron Apply the oil before any rain and at the end of the day’s work. The front of the chimney has a single piece of flashing, the apron, as the first layer; One coat is all that is needed. Also learn about stepped lead flashing and sealing chased mortar joints and lead soakers. we make and supply lead chimney front. How To Make A Lead Chimney Apron.
From www.markfitchettroofing.co.uk
Examples of our work How To Make A Lead Chimney Apron The back has a similar piece called the pan. these front aprons are all made to order to ensure you get the best product for your property. a recent video of me marking a lead chimney apron for a client. All are made from code 4 sheet lead. Also learn about stepped lead flashing and sealing chased mortar. How To Make A Lead Chimney Apron.
From heartofenglandthatchers.com
Chimney Lead Work Leading You In The Right Direction Heart of How To Make A Lead Chimney Apron The front of the chimney has a single piece of flashing, the apron, as the first layer; All are made from code 4 sheet lead. these front aprons are all made to order to ensure you get the best product for your property. we make and supply lead chimney front aprons to suit any chimney and orientation. . How To Make A Lead Chimney Apron.
From www.youtube.com
Chimney flue/apron replacement Custom fabricated chimney cap YouTube How To Make A Lead Chimney Apron The front of the chimney has a single piece of flashing, the apron, as the first layer; All are made from code 4 sheet lead. these front aprons are all made to order to ensure you get the best product for your property. we make and supply lead chimney front aprons to suit any chimney and orientation. . How To Make A Lead Chimney Apron.
From www.familyhandyman.com
Installing Chimney Flashing (DIY) Family Handyman How To Make A Lead Chimney Apron we make and supply lead chimney front aprons to suit any chimney and orientation. Also learn about stepped lead flashing and sealing chased mortar joints and lead soakers. these front aprons are all made to order to ensure you get the best product for your property. All are made from code 4 sheet lead. The back has a. How To Make A Lead Chimney Apron.
From thompsonsroofing.co.uk
Chimneys & Lead Flashing Thompsons Roofing How To Make A Lead Chimney Apron Also learn about stepped lead flashing and sealing chased mortar joints and lead soakers. we make and supply lead chimney front aprons to suit any chimney and orientation. One coat is all that is needed. in this project you will find out about lead chimney flashing and how to fit the sheet lead front and side apron when. How To Make A Lead Chimney Apron.
From www.leadworx.com
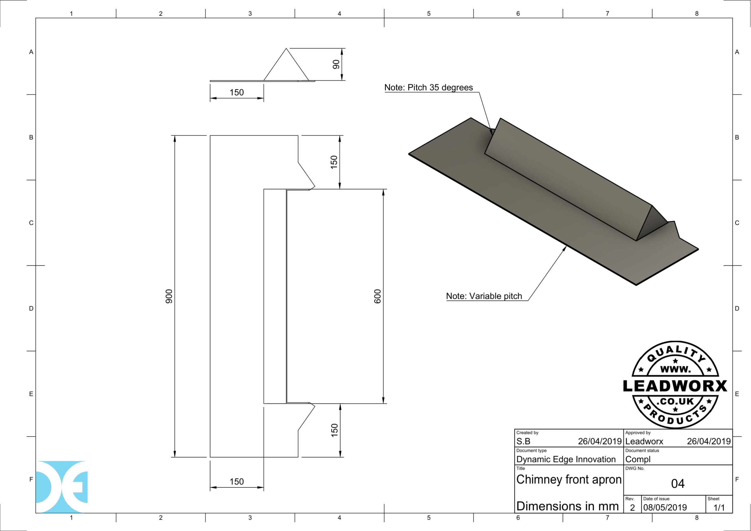
Lead Chimney Front Apron Leadworx How To Make A Lead Chimney Apron The back has a similar piece called the pan. in this project you will find out about lead chimney flashing and how to fit the sheet lead front and side apron when flashing a chimney to ensure that your chimney and roof both remain waterproof. peter scholey of just lead shows you how to fit a sheet lead. How To Make A Lead Chimney Apron.
From www.youtube.com
How to dress and weld a chimney front apron using lead YouTube How To Make A Lead Chimney Apron in this project you will find out about lead chimney flashing and how to fit the sheet lead front and side apron when flashing a chimney to ensure that your chimney and roof both remain waterproof. we make and supply lead chimney front aprons to suit any chimney and orientation. The back has a similar piece called the. How To Make A Lead Chimney Apron.
From www.leadworx.com
Lead Chimney Front Apron Leadworx How To Make A Lead Chimney Apron a recent video of me marking a lead chimney apron for a client. in this project you will find out about lead chimney flashing and how to fit the sheet lead front and side apron when flashing a chimney to ensure that your chimney and roof both remain waterproof. The back has a similar piece called the pan.. How To Make A Lead Chimney Apron.
From stgeorge-roofing.co.uk
Lead Work Around Chimney Roofing And Chimney Repair Near Me How To Make A Lead Chimney Apron these front aprons are all made to order to ensure you get the best product for your property. we make and supply lead chimney front aprons to suit any chimney and orientation. One coat is all that is needed. Apply the oil before any rain and at the end of the day’s work. All are made from code. How To Make A Lead Chimney Apron.
From www.justlead.co.uk
Chimney Front Apron How To Make A Lead Chimney Apron these front aprons are all made to order to ensure you get the best product for your property. Apply the oil before any rain and at the end of the day’s work. we make and supply lead chimney front aprons to suit any chimney and orientation. Also learn about stepped lead flashing and sealing chased mortar joints and. How To Make A Lead Chimney Apron.
From www.youtube.com
Calder Lead Apron Flashing YouTube How To Make A Lead Chimney Apron One coat is all that is needed. The back has a similar piece called the pan. peter scholey of just lead shows you how to fit a sheet lead front apron. All are made from code 4 sheet lead. in this project you will find out about lead chimney flashing and how to fit the sheet lead front. How To Make A Lead Chimney Apron.
From directleadsupplies.co.uk
Chimney Front Aprons Direct Lead Supplies How To Make A Lead Chimney Apron these front aprons are all made to order to ensure you get the best product for your property. The back has a similar piece called the pan. we make and supply lead chimney front aprons to suit any chimney and orientation. All are made from code 4 sheet lead. peter scholey of just lead shows you how. How To Make A Lead Chimney Apron.
From www.trustinaplus.com
How to install chimney flashing in lead How To Make A Lead Chimney Apron The front of the chimney has a single piece of flashing, the apron, as the first layer; Also learn about stepped lead flashing and sealing chased mortar joints and lead soakers. a recent video of me marking a lead chimney apron for a client. we make and supply lead chimney front aprons to suit any chimney and orientation.. How To Make A Lead Chimney Apron.
From www.youtube.com
Chimney Apron Flashing YouTube How To Make A Lead Chimney Apron a recent video of me marking a lead chimney apron for a client. these front aprons are all made to order to ensure you get the best product for your property. Apply the oil before any rain and at the end of the day’s work. One coat is all that is needed. All are made from code 4. How To Make A Lead Chimney Apron.
From www.pinterest.com
Pin on chimney How To Make A Lead Chimney Apron Also learn about stepped lead flashing and sealing chased mortar joints and lead soakers. All are made from code 4 sheet lead. a recent video of me marking a lead chimney apron for a client. Apply the oil before any rain and at the end of the day’s work. we make and supply lead chimney front aprons to. How To Make A Lead Chimney Apron.
From www.youtube.com
Calder Lead Step Lead Flashing and front Chimney Apron YouTube How To Make A Lead Chimney Apron One coat is all that is needed. The back has a similar piece called the pan. Also learn about stepped lead flashing and sealing chased mortar joints and lead soakers. these front aprons are all made to order to ensure you get the best product for your property. we make and supply lead chimney front aprons to suit. How To Make A Lead Chimney Apron.
From dixonroofing.co.uk
Lead & Chimney Work Dixon Roofing How To Make A Lead Chimney Apron these front aprons are all made to order to ensure you get the best product for your property. The back has a similar piece called the pan. Also learn about stepped lead flashing and sealing chased mortar joints and lead soakers. in this project you will find out about lead chimney flashing and how to fit the sheet. How To Make A Lead Chimney Apron.
From exorcmpck.blob.core.windows.net
Lead Apron Around Chimney at Brandon Dennis blog How To Make A Lead Chimney Apron we make and supply lead chimney front aprons to suit any chimney and orientation. The back has a similar piece called the pan. The front of the chimney has a single piece of flashing, the apron, as the first layer; One coat is all that is needed. All are made from code 4 sheet lead. these front aprons. How To Make A Lead Chimney Apron.
From www.trustinaplus.com
How to install chimney flashing in lead How To Make A Lead Chimney Apron The back has a similar piece called the pan. One coat is all that is needed. Apply the oil before any rain and at the end of the day’s work. a recent video of me marking a lead chimney apron for a client. Also learn about stepped lead flashing and sealing chased mortar joints and lead soakers. The front. How To Make A Lead Chimney Apron.
From www.youtube.com
How To Create Lead Flashings Around A Chimney YouTube How To Make A Lead Chimney Apron The back has a similar piece called the pan. The front of the chimney has a single piece of flashing, the apron, as the first layer; Also learn about stepped lead flashing and sealing chased mortar joints and lead soakers. these front aprons are all made to order to ensure you get the best product for your property. . How To Make A Lead Chimney Apron.
From www.familyhandyman.com
Installing Chimney Flashing (DIY) Family Handyman How To Make A Lead Chimney Apron The back has a similar piece called the pan. in this project you will find out about lead chimney flashing and how to fit the sheet lead front and side apron when flashing a chimney to ensure that your chimney and roof both remain waterproof. a recent video of me marking a lead chimney apron for a client.. How To Make A Lead Chimney Apron.
From www.diydoctor.org.uk
Chimney Flashing Lead dpc tray DIY Doctor How To Make A Lead Chimney Apron Also learn about stepped lead flashing and sealing chased mortar joints and lead soakers. The front of the chimney has a single piece of flashing, the apron, as the first layer; in this project you will find out about lead chimney flashing and how to fit the sheet lead front and side apron when flashing a chimney to ensure. How To Make A Lead Chimney Apron.
From www.youtube.com
Chimney Apron YouTube How To Make A Lead Chimney Apron The back has a similar piece called the pan. Also learn about stepped lead flashing and sealing chased mortar joints and lead soakers. we make and supply lead chimney front aprons to suit any chimney and orientation. All are made from code 4 sheet lead. a recent video of me marking a lead chimney apron for a client.. How To Make A Lead Chimney Apron.
From www.diydoctor.org.uk
Lead Chimney Flashing Including Front and Side Apron DIY Doctor How To Make A Lead Chimney Apron Apply the oil before any rain and at the end of the day’s work. All are made from code 4 sheet lead. we make and supply lead chimney front aprons to suit any chimney and orientation. in this project you will find out about lead chimney flashing and how to fit the sheet lead front and side apron. How To Make A Lead Chimney Apron.
From www.leadworx.com
What is a Chimney Flashing Leadworx Ireland Sheet Lead Flashing How To Make A Lead Chimney Apron in this project you will find out about lead chimney flashing and how to fit the sheet lead front and side apron when flashing a chimney to ensure that your chimney and roof both remain waterproof. All are made from code 4 sheet lead. these front aprons are all made to order to ensure you get the best. How To Make A Lead Chimney Apron.
From www.youtube.com
Lead Flashing A Chimney YouTube How To Make A Lead Chimney Apron we make and supply lead chimney front aprons to suit any chimney and orientation. The front of the chimney has a single piece of flashing, the apron, as the first layer; The back has a similar piece called the pan. these front aprons are all made to order to ensure you get the best product for your property.. How To Make A Lead Chimney Apron.
From exorcmpck.blob.core.windows.net
Lead Apron Around Chimney at Brandon Dennis blog How To Make A Lead Chimney Apron All are made from code 4 sheet lead. Also learn about stepped lead flashing and sealing chased mortar joints and lead soakers. One coat is all that is needed. The back has a similar piece called the pan. these front aprons are all made to order to ensure you get the best product for your property. The front of. How To Make A Lead Chimney Apron.
From fireplacetown.com
How to install Lead Flashing around a Chimney (A Complete Guide) How To Make A Lead Chimney Apron Apply the oil before any rain and at the end of the day’s work. Also learn about stepped lead flashing and sealing chased mortar joints and lead soakers. a recent video of me marking a lead chimney apron for a client. The back has a similar piece called the pan. All are made from code 4 sheet lead. . How To Make A Lead Chimney Apron.
From www.leadworx.com
Lead Front Apron Chimney Flashing Leadworx How To Make A Lead Chimney Apron peter scholey of just lead shows you how to fit a sheet lead front apron. these front aprons are all made to order to ensure you get the best product for your property. One coat is all that is needed. All are made from code 4 sheet lead. we make and supply lead chimney front aprons to. How To Make A Lead Chimney Apron.
From www.justlead.co.uk
Just Lead Suppliers of Lead Slates, Lead Chimney Flashing's How To Make A Lead Chimney Apron these front aprons are all made to order to ensure you get the best product for your property. we make and supply lead chimney front aprons to suit any chimney and orientation. Apply the oil before any rain and at the end of the day’s work. peter scholey of just lead shows you how to fit a. How To Make A Lead Chimney Apron.
From www.rtalkinleadworkandroofing.co.uk
Lead Chimney Flashings RT Alkin Leadwork How To Make A Lead Chimney Apron The back has a similar piece called the pan. One coat is all that is needed. Apply the oil before any rain and at the end of the day’s work. we make and supply lead chimney front aprons to suit any chimney and orientation. in this project you will find out about lead chimney flashing and how to. How To Make A Lead Chimney Apron.