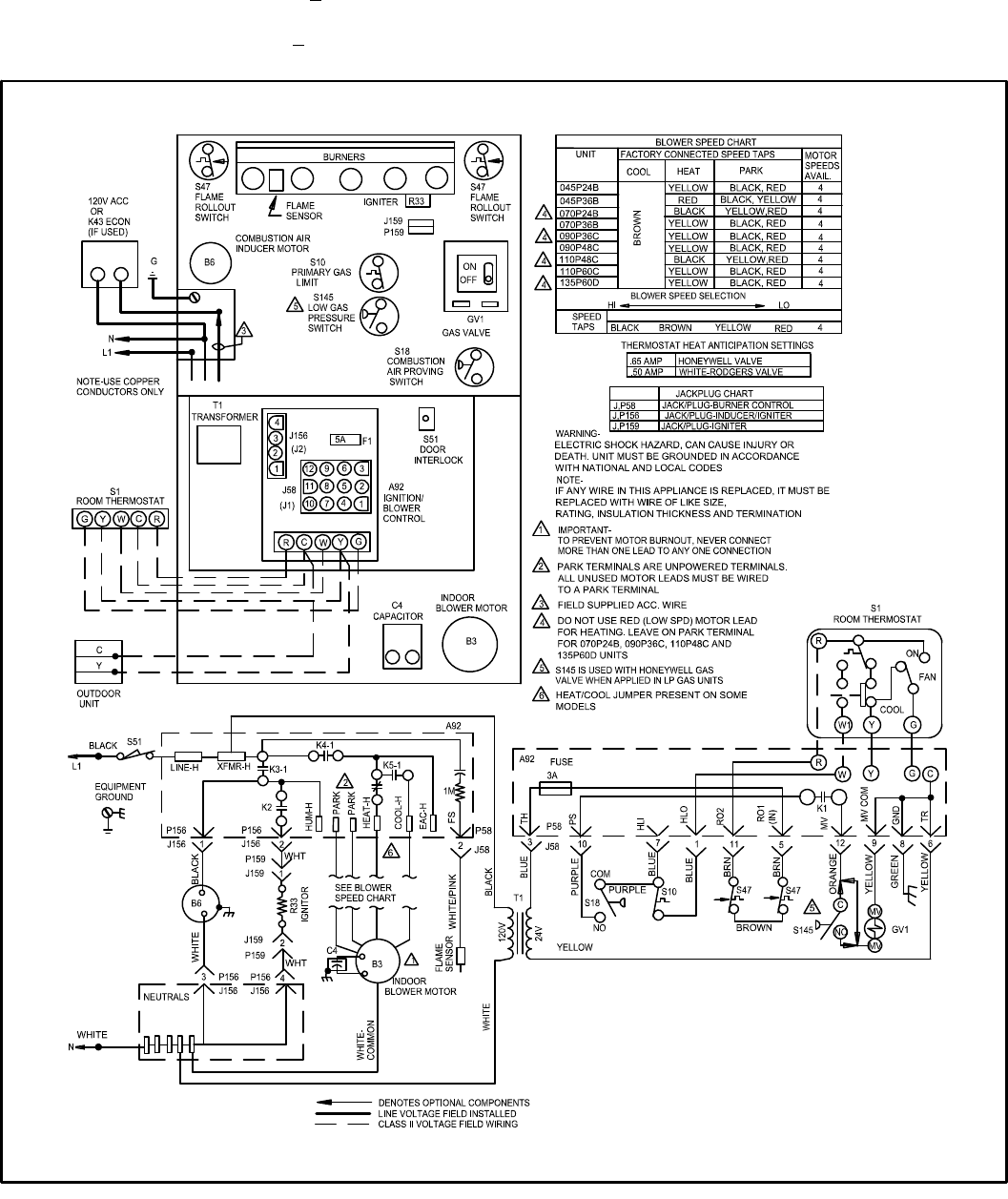
Furnace Fan Wiring Colors . To understand how this works, let’s look at the wiring on your furnace’s blower. Typical setups include these wire colors with associated blower speeds. This is about 120 volt blower motor speeds and wire colors! We will go over which speed each. That will tell you how to wire everything. Attach the green wire to the g terminal (fan). There are often five wire colors coming from your blower to your ifc. Again, refer to the wiring diagram for the correct connections and secure them with wire nuts and electrical tape. Each is associated with a different blower speed. Each color corresponds to a specific. The most commonly used colors for furnace wiring include red, green, yellow, white, and blue. Next, connect the speed tap wires to the motor. Attach the red wire to the r terminal (call for heating and/or cooling). Here’s how to wire a thermostat using the color code and, fyi, each terminal’s purpose. Attach the yellow wire to the y terminal (ac).
from circuitlibfriedman.z19.web.core.windows.net
Each color corresponds to a specific. According to the new motor white = l1 (neutral), black = high. Using the wiring diagram as a guide, identify the different wires coming from the blower motor. Attach the yellow wire to the y terminal (ac). Again, refer to the wiring diagram for the correct connections and secure them with wire nuts and electrical tape. This is about 120 volt blower motor speeds and wire colors! To understand how this works, let’s look at the wiring on your furnace’s blower. Attach the green wire to the g terminal (fan). Each is associated with a different blower speed. Typical setups include these wire colors with associated blower speeds.
Furnace And Ac Wiring Diagram
Furnace Fan Wiring Colors Each color corresponds to a specific. Each color corresponds to a specific. Follow the wires from those splices, back to the control board, or check the schematic. Attach the white wire to the w terminal (heat). Attach the yellow wire to the y terminal (ac). The most commonly used colors for furnace wiring include red, green, yellow, white, and blue. Again, refer to the wiring diagram for the correct connections and secure them with wire nuts and electrical tape. We will go over which speed each. Attach the red wire to the r terminal (call for heating and/or cooling). The furnace blower motor wire diagram typically includes information on the various colors of wires used, as well as their functions. Next, connect the speed tap wires to the motor. This is about 120 volt blower motor speeds and wire colors! There are often five wire colors coming from your blower to your ifc. According to the new motor white = l1 (neutral), black = high. Using the wiring diagram as a guide, identify the different wires coming from the blower motor. Typical setups include these wire colors with associated blower speeds.
From ar.inspiredpencil.com
Furnace Fan Wiring Diagram Furnace Fan Wiring Colors Next, connect the speed tap wires to the motor. Attach the green wire to the g terminal (fan). Each is associated with a different blower speed. Each color corresponds to a specific. We will go over which speed each. There are often five wire colors coming from your blower to your ifc. These are typically labeled as “high,” “medium,” and. Furnace Fan Wiring Colors.
From ar.inspiredpencil.com
Furnace Fan Wiring Diagram Furnace Fan Wiring Colors We will go over which speed each. These are typically labeled as “high,” “medium,” and “low” and correspond to different speed settings for the blower motor. Each is associated with a different blower speed. Typical setups include these wire colors with associated blower speeds. Next, connect the speed tap wires to the motor. Attach the yellow wire to the y. Furnace Fan Wiring Colors.
From updapper.blogspot.com
Furnace Fan Motor Wiring Diagram Updapper Furnace Fan Wiring Colors Using the wiring diagram as a guide, identify the different wires coming from the blower motor. Next, connect the speed tap wires to the motor. There are often five wire colors coming from your blower to your ifc. The most commonly used colors for furnace wiring include red, green, yellow, white, and blue. To understand how this works, let’s look. Furnace Fan Wiring Colors.
From diagramlibrarypooh.z19.web.core.windows.net
Furnace Fan Wire Color Code Furnace Fan Wiring Colors These are typically labeled as “high,” “medium,” and “low” and correspond to different speed settings for the blower motor. To understand how this works, let’s look at the wiring on your furnace’s blower. Attach the white wire to the w terminal (heat). This is about 120 volt blower motor speeds and wire colors! Here’s how to wire a thermostat using. Furnace Fan Wiring Colors.
From www.wiringdraw.com
Miller Mobile Home Furnace Wiring Diagram Furnace Fan Wiring Colors Each is associated with a different blower speed. Using the wiring diagram as a guide, identify the different wires coming from the blower motor. We will go over which speed each. Attach the red wire to the r terminal (call for heating and/or cooling). To understand how this works, let’s look at the wiring on your furnace’s blower. Attach the. Furnace Fan Wiring Colors.
From manuallistjana.z19.web.core.windows.net
Furnace Blower Motor Wire Color Code Furnace Fan Wiring Colors The furnace blower motor wire diagram typically includes information on the various colors of wires used, as well as their functions. Each color corresponds to a specific. Using the wiring diagram as a guide, identify the different wires coming from the blower motor. Next, connect the speed tap wires to the motor. Again, refer to the wiring diagram for the. Furnace Fan Wiring Colors.
From schematicdbnonracial.z4.web.core.windows.net
Furnace Fan Wire Color Code Furnace Fan Wiring Colors Attach the white wire to the w terminal (heat). According to the new motor white = l1 (neutral), black = high. Using the wiring diagram as a guide, identify the different wires coming from the blower motor. This is about 120 volt blower motor speeds and wire colors! Attach the red wire to the r terminal (call for heating and/or. Furnace Fan Wiring Colors.
From circuitlibleveled.z21.web.core.windows.net
Furnace Fan Wire Color Code Furnace Fan Wiring Colors We will go over which speed each. These are typically labeled as “high,” “medium,” and “low” and correspond to different speed settings for the blower motor. Attach the yellow wire to the y terminal (ac). The furnace blower motor wire diagram typically includes information on the various colors of wires used, as well as their functions. There are often five. Furnace Fan Wiring Colors.
From wiring01.blogspot.com
Goodman Fan Control Board Wiring Diagram / Goodman Furnace Control Furnace Fan Wiring Colors Each is associated with a different blower speed. Attach the yellow wire to the y terminal (ac). These are typically labeled as “high,” “medium,” and “low” and correspond to different speed settings for the blower motor. Again, refer to the wiring diagram for the correct connections and secure them with wire nuts and electrical tape. The furnace blower motor wire. Furnace Fan Wiring Colors.
From ar.inspiredpencil.com
Furnace Fan Wiring Diagram Furnace Fan Wiring Colors Next, connect the speed tap wires to the motor. Follow the wires from those splices, back to the control board, or check the schematic. Attach the green wire to the g terminal (fan). According to the new motor white = l1 (neutral), black = high. Again, refer to the wiring diagram for the correct connections and secure them with wire. Furnace Fan Wiring Colors.
From diy.stackexchange.com
wiring External furnace fan switch energizes AC Home Improvement Furnace Fan Wiring Colors This is about 120 volt blower motor speeds and wire colors! Attach the red wire to the r terminal (call for heating and/or cooling). Each color corresponds to a specific. Next, connect the speed tap wires to the motor. Typical setups include these wire colors with associated blower speeds. These are typically labeled as “high,” “medium,” and “low” and correspond. Furnace Fan Wiring Colors.
From radiowiring.blogspot.com
77 Lovely Furnace Fan Wiring Diagram Furnace Fan Wiring Colors There are often five wire colors coming from your blower to your ifc. Attach the white wire to the w terminal (heat). Attach the red wire to the r terminal (call for heating and/or cooling). Attach the green wire to the g terminal (fan). We will go over which speed each. Again, refer to the wiring diagram for the correct. Furnace Fan Wiring Colors.
From ar.inspiredpencil.com
Furnace Fan Wiring Diagram Furnace Fan Wiring Colors Follow the wires from those splices, back to the control board, or check the schematic. That will tell you how to wire everything. Here’s how to wire a thermostat using the color code and, fyi, each terminal’s purpose. To understand how this works, let’s look at the wiring on your furnace’s blower. These are typically labeled as “high,” “medium,” and. Furnace Fan Wiring Colors.
From www.chanish.org
Hvac Blower Motor Wiring Diagram Furnace Fan Wiring Colors There are often five wire colors coming from your blower to your ifc. According to the new motor white = l1 (neutral), black = high. The furnace blower motor wire diagram typically includes information on the various colors of wires used, as well as their functions. Attach the green wire to the g terminal (fan). Each color corresponds to a. Furnace Fan Wiring Colors.
From circuitlibfriedman.z19.web.core.windows.net
Furnace And Ac Wiring Diagram Furnace Fan Wiring Colors Each is associated with a different blower speed. Again, refer to the wiring diagram for the correct connections and secure them with wire nuts and electrical tape. Each color corresponds to a specific. We will go over which speed each. Attach the yellow wire to the y terminal (ac). Follow the wires from those splices, back to the control board,. Furnace Fan Wiring Colors.
From www.circuitdiagram.co
Electric Furnace Fan Relay Wiring Diagram Circuit Diagram Furnace Fan Wiring Colors Each color corresponds to a specific. We will go over which speed each. Attach the red wire to the r terminal (call for heating and/or cooling). Attach the white wire to the w terminal (heat). Again, refer to the wiring diagram for the correct connections and secure them with wire nuts and electrical tape. These are typically labeled as “high,”. Furnace Fan Wiring Colors.
From guideozariib.z21.web.core.windows.net
Furnace Fan Wire Color Code Furnace Fan Wiring Colors Again, refer to the wiring diagram for the correct connections and secure them with wire nuts and electrical tape. Attach the green wire to the g terminal (fan). Attach the yellow wire to the y terminal (ac). Follow the wires from those splices, back to the control board, or check the schematic. Attach the white wire to the w terminal. Furnace Fan Wiring Colors.
From faceitsalon.com
Furnace Fan Motor Wiring Diagram Download Wiring Diagram Sample Furnace Fan Wiring Colors These are typically labeled as “high,” “medium,” and “low” and correspond to different speed settings for the blower motor. Here’s how to wire a thermostat using the color code and, fyi, each terminal’s purpose. Again, refer to the wiring diagram for the correct connections and secure them with wire nuts and electrical tape. There are often five wire colors coming. Furnace Fan Wiring Colors.
From techdiagrammer.com
How to Properly Wire Furnace Fan Control for Efficient Heating Furnace Fan Wiring Colors These are typically labeled as “high,” “medium,” and “low” and correspond to different speed settings for the blower motor. The most commonly used colors for furnace wiring include red, green, yellow, white, and blue. Each color corresponds to a specific. To understand how this works, let’s look at the wiring on your furnace’s blower. This is about 120 volt blower. Furnace Fan Wiring Colors.
From faceitsalon.com
Furnace Fan Motor Wiring Diagram Download Wiring Diagram Sample Furnace Fan Wiring Colors Follow the wires from those splices, back to the control board, or check the schematic. Again, refer to the wiring diagram for the correct connections and secure them with wire nuts and electrical tape. Attach the red wire to the r terminal (call for heating and/or cooling). Attach the yellow wire to the y terminal (ac). Using the wiring diagram. Furnace Fan Wiring Colors.
From wiringdiagram.2bitboer.com
Furnace Fan Center Wiring Diagram Wiring Diagram Furnace Fan Wiring Colors Each color corresponds to a specific. Typical setups include these wire colors with associated blower speeds. Here’s how to wire a thermostat using the color code and, fyi, each terminal’s purpose. This is about 120 volt blower motor speeds and wire colors! According to the new motor white = l1 (neutral), black = high. Next, connect the speed tap wires. Furnace Fan Wiring Colors.
From circuitlibsanturs.z21.web.core.windows.net
How To Wire Blower Fan Furnace Fan Wiring Colors To understand how this works, let’s look at the wiring on your furnace’s blower. Here’s how to wire a thermostat using the color code and, fyi, each terminal’s purpose. That will tell you how to wire everything. According to the new motor white = l1 (neutral), black = high. The furnace blower motor wire diagram typically includes information on the. Furnace Fan Wiring Colors.
From ar.inspiredpencil.com
Furnace Fan Wiring Diagram Furnace Fan Wiring Colors To understand how this works, let’s look at the wiring on your furnace’s blower. Each is associated with a different blower speed. This is about 120 volt blower motor speeds and wire colors! Follow the wires from those splices, back to the control board, or check the schematic. Attach the green wire to the g terminal (fan). Each color corresponds. Furnace Fan Wiring Colors.
From schematiccanakins.z14.web.core.windows.net
Furnace Fan Wire Color Code Furnace Fan Wiring Colors Attach the green wire to the g terminal (fan). The furnace blower motor wire diagram typically includes information on the various colors of wires used, as well as their functions. Follow the wires from those splices, back to the control board, or check the schematic. This is about 120 volt blower motor speeds and wire colors! Attach the white wire. Furnace Fan Wiring Colors.
From ar.inspiredpencil.com
Furnace Fan Wiring Diagram Furnace Fan Wiring Colors There are often five wire colors coming from your blower to your ifc. This is about 120 volt blower motor speeds and wire colors! That will tell you how to wire everything. Attach the white wire to the w terminal (heat). Attach the yellow wire to the y terminal (ac). Each is associated with a different blower speed. To understand. Furnace Fan Wiring Colors.
From www.organised-sound.com
Miller Mobile Home Furnace Wiring Diagram » Wiring Diagram Furnace Fan Wiring Colors Again, refer to the wiring diagram for the correct connections and secure them with wire nuts and electrical tape. These are typically labeled as “high,” “medium,” and “low” and correspond to different speed settings for the blower motor. The furnace blower motor wire diagram typically includes information on the various colors of wires used, as well as their functions. Follow. Furnace Fan Wiring Colors.
From www.stxaviersschooljaipur.com
Sale > 15kw electric furnace wiring > in stock Furnace Fan Wiring Colors Next, connect the speed tap wires to the motor. There are often five wire colors coming from your blower to your ifc. According to the new motor white = l1 (neutral), black = high. Attach the red wire to the r terminal (call for heating and/or cooling). Attach the white wire to the w terminal (heat). Attach the green wire. Furnace Fan Wiring Colors.
From schematicfochesd6.z21.web.core.windows.net
Furnace Fan Wire Color Code Furnace Fan Wiring Colors These are typically labeled as “high,” “medium,” and “low” and correspond to different speed settings for the blower motor. Again, refer to the wiring diagram for the correct connections and secure them with wire nuts and electrical tape. The furnace blower motor wire diagram typically includes information on the various colors of wires used, as well as their functions. Next,. Furnace Fan Wiring Colors.
From www.wiringcore.com
Typical 4 Wire Condenser Fan Motor Wiring Diagram » Wiring Core Furnace Fan Wiring Colors Attach the red wire to the r terminal (call for heating and/or cooling). The furnace blower motor wire diagram typically includes information on the various colors of wires used, as well as their functions. This is about 120 volt blower motor speeds and wire colors! Here’s how to wire a thermostat using the color code and, fyi, each terminal’s purpose.. Furnace Fan Wiring Colors.
From fixlistjens.z19.web.core.windows.net
Wesco Furnace Blower Wiring Diagram Furnace Fan Wiring Colors The most commonly used colors for furnace wiring include red, green, yellow, white, and blue. The furnace blower motor wire diagram typically includes information on the various colors of wires used, as well as their functions. Attach the white wire to the w terminal (heat). Follow the wires from those splices, back to the control board, or check the schematic.. Furnace Fan Wiring Colors.
From wiringdiagram.2bitboer.com
Carrier Wiring Diagrams Furnaces Wiring Diagram Furnace Fan Wiring Colors We will go over which speed each. Each is associated with a different blower speed. According to the new motor white = l1 (neutral), black = high. Attach the yellow wire to the y terminal (ac). There are often five wire colors coming from your blower to your ifc. Follow the wires from those splices, back to the control board,. Furnace Fan Wiring Colors.
From saadransford.blogspot.com
20+ Furnace Wiring Color Code SaadRansford Furnace Fan Wiring Colors We will go over which speed each. Here’s how to wire a thermostat using the color code and, fyi, each terminal’s purpose. Using the wiring diagram as a guide, identify the different wires coming from the blower motor. There are often five wire colors coming from your blower to your ifc. That will tell you how to wire everything. The. Furnace Fan Wiring Colors.
From manuallibmooter.z19.web.core.windows.net
Furnace Blower Motor Wire Diagram Furnace Fan Wiring Colors We will go over which speed each. The most commonly used colors for furnace wiring include red, green, yellow, white, and blue. Using the wiring diagram as a guide, identify the different wires coming from the blower motor. Each is associated with a different blower speed. Again, refer to the wiring diagram for the correct connections and secure them with. Furnace Fan Wiring Colors.
From diy.stackexchange.com
hvac Correct Wiring for Furnace Blower Motor Home Improvement Stack Furnace Fan Wiring Colors The furnace blower motor wire diagram typically includes information on the various colors of wires used, as well as their functions. This is about 120 volt blower motor speeds and wire colors! Here’s how to wire a thermostat using the color code and, fyi, each terminal’s purpose. Follow the wires from those splices, back to the control board, or check. Furnace Fan Wiring Colors.
From wiringdbmalvoisie.z19.web.core.windows.net
How To Wire Furnace Blower Motor Furnace Fan Wiring Colors There are often five wire colors coming from your blower to your ifc. Attach the red wire to the r terminal (call for heating and/or cooling). Using the wiring diagram as a guide, identify the different wires coming from the blower motor. Attach the green wire to the g terminal (fan). This is about 120 volt blower motor speeds and. Furnace Fan Wiring Colors.