What Is A Wastewater Discharge Permit . Under normal installation circumstances you will not need to have an ea permit for your small domestic sewage treatment plant to discharge to a watercourse providing the daily. Guides covering how the environment agency sets and assesses compliance for surface water discharge activity and groundwater activity. What are water discharge permits? Any business that creates wastewater in the course of its operations must seek permission. The new general binding rules for small sewage discharges is part of the ea’s work to protect water resources from pollution caused by small sewage discharges. For the environmental permitting (england and wales) regulations. A discharge to surface water is: If your sewage discharge is to surface water and is 5 cubic. To a river, stream, canal, lake, estuary, or the sea. The environment agency regulates waste water treatment works (wwtw) by assessing the quality of the waste water they.
from studylib.net
If your sewage discharge is to surface water and is 5 cubic. The environment agency regulates waste water treatment works (wwtw) by assessing the quality of the waste water they. A discharge to surface water is: For the environmental permitting (england and wales) regulations. To a river, stream, canal, lake, estuary, or the sea. The new general binding rules for small sewage discharges is part of the ea’s work to protect water resources from pollution caused by small sewage discharges. Any business that creates wastewater in the course of its operations must seek permission. Guides covering how the environment agency sets and assesses compliance for surface water discharge activity and groundwater activity. Under normal installation circumstances you will not need to have an ea permit for your small domestic sewage treatment plant to discharge to a watercourse providing the daily. What are water discharge permits?
REGULATED INDUSTRIAL WASTEWATER DISCHARGE PERMIT
What Is A Wastewater Discharge Permit The environment agency regulates waste water treatment works (wwtw) by assessing the quality of the waste water they. To a river, stream, canal, lake, estuary, or the sea. Guides covering how the environment agency sets and assesses compliance for surface water discharge activity and groundwater activity. For the environmental permitting (england and wales) regulations. A discharge to surface water is: What are water discharge permits? If your sewage discharge is to surface water and is 5 cubic. The environment agency regulates waste water treatment works (wwtw) by assessing the quality of the waste water they. Any business that creates wastewater in the course of its operations must seek permission. The new general binding rules for small sewage discharges is part of the ea’s work to protect water resources from pollution caused by small sewage discharges. Under normal installation circumstances you will not need to have an ea permit for your small domestic sewage treatment plant to discharge to a watercourse providing the daily.
From www.scribd.com
Application of Discharge Permit PDF Wastewater Sewage Treatment What Is A Wastewater Discharge Permit The environment agency regulates waste water treatment works (wwtw) by assessing the quality of the waste water they. What are water discharge permits? Guides covering how the environment agency sets and assesses compliance for surface water discharge activity and groundwater activity. Any business that creates wastewater in the course of its operations must seek permission. For the environmental permitting (england. What Is A Wastewater Discharge Permit.
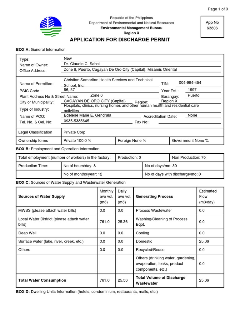
From r8.emb.gov.ph
WASTE WATER DISCHARGE PERMIT (WWDP) EMB Region 8 What Is A Wastewater Discharge Permit Guides covering how the environment agency sets and assesses compliance for surface water discharge activity and groundwater activity. What are water discharge permits? The environment agency regulates waste water treatment works (wwtw) by assessing the quality of the waste water they. For the environmental permitting (england and wales) regulations. If your sewage discharge is to surface water and is 5. What Is A Wastewater Discharge Permit.
From www.templateroller.com
City of Bethlehem, Pennsylvania Industrial Wastewater Discharge Permit What Is A Wastewater Discharge Permit Guides covering how the environment agency sets and assesses compliance for surface water discharge activity and groundwater activity. Any business that creates wastewater in the course of its operations must seek permission. To a river, stream, canal, lake, estuary, or the sea. A discharge to surface water is: The new general binding rules for small sewage discharges is part of. What Is A Wastewater Discharge Permit.
From www.pdffiller.com
Fillable Online WASTEWATER DISCHARGE PERMIT DATA Fax Email Print What Is A Wastewater Discharge Permit Any business that creates wastewater in the course of its operations must seek permission. Under normal installation circumstances you will not need to have an ea permit for your small domestic sewage treatment plant to discharge to a watercourse providing the daily. A discharge to surface water is: For the environmental permitting (england and wales) regulations. What are water discharge. What Is A Wastewater Discharge Permit.
From www.templateroller.com
DeKalb County, (United States) Industrial Wastewater Discharge What Is A Wastewater Discharge Permit Guides covering how the environment agency sets and assesses compliance for surface water discharge activity and groundwater activity. For the environmental permitting (england and wales) regulations. A discharge to surface water is: The environment agency regulates waste water treatment works (wwtw) by assessing the quality of the waste water they. Under normal installation circumstances you will not need to have. What Is A Wastewater Discharge Permit.
From dokumen.tips
(PDF) APPLICATION FOR WASTEWATER DISCHARGE · PDF fileAPPLICATION FOR What Is A Wastewater Discharge Permit A discharge to surface water is: The new general binding rules for small sewage discharges is part of the ea’s work to protect water resources from pollution caused by small sewage discharges. For the environmental permitting (england and wales) regulations. What are water discharge permits? Any business that creates wastewater in the course of its operations must seek permission. Under. What Is A Wastewater Discharge Permit.
From www.slideserve.com
PPT Clean Water Act (RA 9275) and Its Implementing Rules and What Is A Wastewater Discharge Permit Any business that creates wastewater in the course of its operations must seek permission. What are water discharge permits? The environment agency regulates waste water treatment works (wwtw) by assessing the quality of the waste water they. If your sewage discharge is to surface water and is 5 cubic. The new general binding rules for small sewage discharges is part. What Is A Wastewater Discharge Permit.
From www.pdffiller.com
Permit Application for Wastewater Discharges from Domestic Sewage What Is A Wastewater Discharge Permit Guides covering how the environment agency sets and assesses compliance for surface water discharge activity and groundwater activity. The new general binding rules for small sewage discharges is part of the ea’s work to protect water resources from pollution caused by small sewage discharges. To a river, stream, canal, lake, estuary, or the sea. A discharge to surface water is:. What Is A Wastewater Discharge Permit.
From sfma.org
WASTEWATER PERMITTING BASICS DO I NEED A DISCHARGE PERMIT? South What Is A Wastewater Discharge Permit Any business that creates wastewater in the course of its operations must seek permission. The new general binding rules for small sewage discharges is part of the ea’s work to protect water resources from pollution caused by small sewage discharges. Guides covering how the environment agency sets and assesses compliance for surface water discharge activity and groundwater activity. If your. What Is A Wastewater Discharge Permit.
From naturalstarvina.com
Wastewater Discharge Permit to Water Source » Natural Star Vina Xử Lý What Is A Wastewater Discharge Permit Guides covering how the environment agency sets and assesses compliance for surface water discharge activity and groundwater activity. The environment agency regulates waste water treatment works (wwtw) by assessing the quality of the waste water they. Any business that creates wastewater in the course of its operations must seek permission. What are water discharge permits? A discharge to surface water. What Is A Wastewater Discharge Permit.
From studylib.net
Wastewater Discharge Permit What Is A Wastewater Discharge Permit A discharge to surface water is: For the environmental permitting (england and wales) regulations. Guides covering how the environment agency sets and assesses compliance for surface water discharge activity and groundwater activity. The new general binding rules for small sewage discharges is part of the ea’s work to protect water resources from pollution caused by small sewage discharges. If your. What Is A Wastewater Discharge Permit.
From www.templateroller.com
Form ECY040179 Download Printable PDF or Fill Online Application for a What Is A Wastewater Discharge Permit Under normal installation circumstances you will not need to have an ea permit for your small domestic sewage treatment plant to discharge to a watercourse providing the daily. The new general binding rules for small sewage discharges is part of the ea’s work to protect water resources from pollution caused by small sewage discharges. To a river, stream, canal, lake,. What Is A Wastewater Discharge Permit.
From august-10ent.com
Discharge Permit August 10 Enterprises What Is A Wastewater Discharge Permit Under normal installation circumstances you will not need to have an ea permit for your small domestic sewage treatment plant to discharge to a watercourse providing the daily. A discharge to surface water is: To a river, stream, canal, lake, estuary, or the sea. Guides covering how the environment agency sets and assesses compliance for surface water discharge activity and. What Is A Wastewater Discharge Permit.
From studylib.net
INDUSTRIAL WASTEWATER DISCHARGE PERMIT APPLICATION What Is A Wastewater Discharge Permit For the environmental permitting (england and wales) regulations. If your sewage discharge is to surface water and is 5 cubic. Any business that creates wastewater in the course of its operations must seek permission. Guides covering how the environment agency sets and assesses compliance for surface water discharge activity and groundwater activity. A discharge to surface water is: What are. What Is A Wastewater Discharge Permit.
From studylib.net
REGULATED INDUSTRIAL WASTEWATER DISCHARGE PERMIT What Is A Wastewater Discharge Permit The environment agency regulates waste water treatment works (wwtw) by assessing the quality of the waste water they. Under normal installation circumstances you will not need to have an ea permit for your small domestic sewage treatment plant to discharge to a watercourse providing the daily. Guides covering how the environment agency sets and assesses compliance for surface water discharge. What Is A Wastewater Discharge Permit.
From www.pdffiller.com
General Permit Registration for the Discharge of Wastewaters from What Is A Wastewater Discharge Permit To a river, stream, canal, lake, estuary, or the sea. For the environmental permitting (england and wales) regulations. A discharge to surface water is: What are water discharge permits? Under normal installation circumstances you will not need to have an ea permit for your small domestic sewage treatment plant to discharge to a watercourse providing the daily. Guides covering how. What Is A Wastewater Discharge Permit.
From dokumen.tips
(PDF) Waste Discharge Permit Application...Waste Discharge Permit What Is A Wastewater Discharge Permit Under normal installation circumstances you will not need to have an ea permit for your small domestic sewage treatment plant to discharge to a watercourse providing the daily. The environment agency regulates waste water treatment works (wwtw) by assessing the quality of the waste water they. To a river, stream, canal, lake, estuary, or the sea. A discharge to surface. What Is A Wastewater Discharge Permit.
From cleanassetenvironmental.com
NPDES & Wastewater Discharge Permits Clean Asset Environmental What Is A Wastewater Discharge Permit To a river, stream, canal, lake, estuary, or the sea. What are water discharge permits? Guides covering how the environment agency sets and assesses compliance for surface water discharge activity and groundwater activity. The new general binding rules for small sewage discharges is part of the ea’s work to protect water resources from pollution caused by small sewage discharges. A. What Is A Wastewater Discharge Permit.
From www.scribd.com
Wastewater Discharge Form, Emb, Denr Wastewater Drinking Water What Is A Wastewater Discharge Permit The new general binding rules for small sewage discharges is part of the ea’s work to protect water resources from pollution caused by small sewage discharges. For the environmental permitting (england and wales) regulations. To a river, stream, canal, lake, estuary, or the sea. A discharge to surface water is: If your sewage discharge is to surface water and is. What Is A Wastewater Discharge Permit.
From digital.library.unt.edu
State waste discharge permit application Hydrotest, maintenance and What Is A Wastewater Discharge Permit The environment agency regulates waste water treatment works (wwtw) by assessing the quality of the waste water they. For the environmental permitting (england and wales) regulations. Guides covering how the environment agency sets and assesses compliance for surface water discharge activity and groundwater activity. The new general binding rules for small sewage discharges is part of the ea’s work to. What Is A Wastewater Discharge Permit.
From studylib.net
wastewater discharge permit What Is A Wastewater Discharge Permit The new general binding rules for small sewage discharges is part of the ea’s work to protect water resources from pollution caused by small sewage discharges. For the environmental permitting (england and wales) regulations. Under normal installation circumstances you will not need to have an ea permit for your small domestic sewage treatment plant to discharge to a watercourse providing. What Is A Wastewater Discharge Permit.
From www.scribd.com
Wastewater Discharge Permit PDF Wastewater Water What Is A Wastewater Discharge Permit Guides covering how the environment agency sets and assesses compliance for surface water discharge activity and groundwater activity. For the environmental permitting (england and wales) regulations. Any business that creates wastewater in the course of its operations must seek permission. The new general binding rules for small sewage discharges is part of the ea’s work to protect water resources from. What Is A Wastewater Discharge Permit.
From dokumen.tips
(PDF) INDUSTRIAL WASTEWATER DISCHARGE PERMIT · PDF fileIndustrial What Is A Wastewater Discharge Permit To a river, stream, canal, lake, estuary, or the sea. Under normal installation circumstances you will not need to have an ea permit for your small domestic sewage treatment plant to discharge to a watercourse providing the daily. The new general binding rules for small sewage discharges is part of the ea’s work to protect water resources from pollution caused. What Is A Wastewater Discharge Permit.
From www.youtube.com
STEPS ON HOW TO APPLY FOR A WASTEWATER DISCHARGE PERMIT IN What Is A Wastewater Discharge Permit What are water discharge permits? A discharge to surface water is: For the environmental permitting (england and wales) regulations. Guides covering how the environment agency sets and assesses compliance for surface water discharge activity and groundwater activity. To a river, stream, canal, lake, estuary, or the sea. The environment agency regulates waste water treatment works (wwtw) by assessing the quality. What Is A Wastewater Discharge Permit.
From www.scribd.com
Application for Discharge Permit Wastewater Sewage Treatment What Is A Wastewater Discharge Permit What are water discharge permits? Under normal installation circumstances you will not need to have an ea permit for your small domestic sewage treatment plant to discharge to a watercourse providing the daily. The new general binding rules for small sewage discharges is part of the ea’s work to protect water resources from pollution caused by small sewage discharges. Any. What Is A Wastewater Discharge Permit.
From netsolwater.com
What is the reason for the changes in Wastewater discharge permits What Is A Wastewater Discharge Permit The new general binding rules for small sewage discharges is part of the ea’s work to protect water resources from pollution caused by small sewage discharges. A discharge to surface water is: If your sewage discharge is to surface water and is 5 cubic. For the environmental permitting (england and wales) regulations. What are water discharge permits? To a river,. What Is A Wastewater Discharge Permit.
From www.templateroller.com
Form ECY040178 Fill Out, Sign Online and Download Printable PDF What Is A Wastewater Discharge Permit Guides covering how the environment agency sets and assesses compliance for surface water discharge activity and groundwater activity. For the environmental permitting (england and wales) regulations. What are water discharge permits? If your sewage discharge is to surface water and is 5 cubic. Any business that creates wastewater in the course of its operations must seek permission. The new general. What Is A Wastewater Discharge Permit.
From www.pdffiller.com
Fillable Online Wastewater Discharge Permit Application B Fax Email What Is A Wastewater Discharge Permit Guides covering how the environment agency sets and assesses compliance for surface water discharge activity and groundwater activity. To a river, stream, canal, lake, estuary, or the sea. For the environmental permitting (england and wales) regulations. What are water discharge permits? Under normal installation circumstances you will not need to have an ea permit for your small domestic sewage treatment. What Is A Wastewater Discharge Permit.
From dokumen.tips
(PDF) Wastewater Discharge Permit Application Attachment 9.1 What Is A Wastewater Discharge Permit A discharge to surface water is: What are water discharge permits? Under normal installation circumstances you will not need to have an ea permit for your small domestic sewage treatment plant to discharge to a watercourse providing the daily. The new general binding rules for small sewage discharges is part of the ea’s work to protect water resources from pollution. What Is A Wastewater Discharge Permit.
From studylib.net
Permanent Wastewater Discharge Permit Application What Is A Wastewater Discharge Permit Any business that creates wastewater in the course of its operations must seek permission. The new general binding rules for small sewage discharges is part of the ea’s work to protect water resources from pollution caused by small sewage discharges. Under normal installation circumstances you will not need to have an ea permit for your small domestic sewage treatment plant. What Is A Wastewater Discharge Permit.
From www.templateroller.com
City of Bethlehem, Pennsylvania Industrial Wastewater Discharge Permit What Is A Wastewater Discharge Permit To a river, stream, canal, lake, estuary, or the sea. A discharge to surface water is: Guides covering how the environment agency sets and assesses compliance for surface water discharge activity and groundwater activity. What are water discharge permits? Any business that creates wastewater in the course of its operations must seek permission. Under normal installation circumstances you will not. What Is A Wastewater Discharge Permit.
From www.templateroller.com
Form DEEPWPEDAPP001 Fill Out, Sign Online and Download Printable What Is A Wastewater Discharge Permit Under normal installation circumstances you will not need to have an ea permit for your small domestic sewage treatment plant to discharge to a watercourse providing the daily. A discharge to surface water is: What are water discharge permits? For the environmental permitting (england and wales) regulations. To a river, stream, canal, lake, estuary, or the sea. Any business that. What Is A Wastewater Discharge Permit.
From www.templateroller.com
Form ECY040179 Fill Out, Sign Online and Download Printable PDF What Is A Wastewater Discharge Permit If your sewage discharge is to surface water and is 5 cubic. Any business that creates wastewater in the course of its operations must seek permission. Under normal installation circumstances you will not need to have an ea permit for your small domestic sewage treatment plant to discharge to a watercourse providing the daily. A discharge to surface water is:. What Is A Wastewater Discharge Permit.
From www.scribd.com
Llda Discharge Permit Application Form PDF Sewage Treatment Water What Is A Wastewater Discharge Permit If your sewage discharge is to surface water and is 5 cubic. Under normal installation circumstances you will not need to have an ea permit for your small domestic sewage treatment plant to discharge to a watercourse providing the daily. Any business that creates wastewater in the course of its operations must seek permission. To a river, stream, canal, lake,. What Is A Wastewater Discharge Permit.
From www.scribd.com
WASTEWATER Discharge Permit PDF What Is A Wastewater Discharge Permit Under normal installation circumstances you will not need to have an ea permit for your small domestic sewage treatment plant to discharge to a watercourse providing the daily. What are water discharge permits? Guides covering how the environment agency sets and assesses compliance for surface water discharge activity and groundwater activity. If your sewage discharge is to surface water and. What Is A Wastewater Discharge Permit.