Belle Haven Custom Homes . If you’d like to learn more about. You already have the perfect home, you just need. We take your ideas for your. We are a construction company serving the dallas area that specializes in custom homes, renovations and additions. Is your class a licensed virginian contractor that has been building custom homes and commercial buildings for our customers since 1989. At eastern shore home crafters inc. We offer custom homes and renovations, as well as remodels and additions. A deck, a bonus room, a mother's suite. Whether it is a hud home, a medium sized home, or a large custom home, our team can do it. Take a look at our additional gallery of various completed projects from belle haven custom homes. Belle haven builders is middle tn's reliable construction company. 303 s jupiter rd, ste 110 allen, tx 75002 We build homes for our customers regardless of the type of home. Belle haven builders has proudly partnered with many families and individuals to help bring their visions to life. View belle haven custom homes work on a current project, 340 stinson road.
from cardelloarchitects.com
Belle haven builders is middle tn's reliable construction company. We offer custom homes and renovations, as well as remodels and additions. 303 s jupiter rd, ste 110 allen, tx 75002 Is your class a licensed virginian contractor that has been building custom homes and commercial buildings for our customers since 1989. Eastern shore home crafters inc. If you’d like to learn more about. Check out some of our favorites here. View belle haven custom homes work on a current project, 340 stinson road. Take a look at our additional gallery of various completed projects from belle haven custom homes. You already have the perfect home, you just need.
Belle Haven Residence Cardello Architects
Belle Haven Custom Homes We take your ideas for your. Check out some of our favorites here. Eastern shore home crafters inc. 303 s jupiter rd, ste 110 allen, tx 75002 Belle haven builders has proudly partnered with many families and individuals to help bring their visions to life. Whether it is a hud home, a medium sized home, or a large custom home, our team can do it. We take your ideas for your. We build homes for our customers regardless of the type of home. Belle haven builders is middle tn's reliable construction company. You already have the perfect home, you just need. If you’d like to learn more about. A deck, a bonus room, a mother's suite. View belle haven custom homes work on a current project, 340 stinson road. Take a look at our additional gallery of various completed projects from belle haven custom homes. We are a construction company serving the dallas area that specializes in custom homes, renovations and additions. Is your class a licensed virginian contractor that has been building custom homes and commercial buildings for our customers since 1989.
From www.pinterest.com
Belle Haven Peninsula Shingle style homes, Luxury real estate, Belle Belle Haven Custom Homes Check out some of our favorites here. Eastern shore home crafters inc. We offer custom homes and renovations, as well as remodels and additions. We are a construction company serving the dallas area that specializes in custom homes, renovations and additions. You already have the perfect home, you just need. Take a look at our additional gallery of various completed. Belle Haven Custom Homes.
From reacustomhomes.com
New Haven Rea Custom Homes Belle Haven Custom Homes Check out some of our favorites here. We build homes for our customers regardless of the type of home. Eastern shore home crafters inc. We offer custom homes and renovations, as well as remodels and additions. A deck, a bonus room, a mother's suite. We are a construction company serving the dallas area that specializes in custom homes, renovations and. Belle Haven Custom Homes.
From www.karpassociatesinc.com
Karp Associates Custom Homes Belle Haven Belle Haven Custom Homes We take your ideas for your. Take a look at our additional gallery of various completed projects from belle haven custom homes. We offer custom homes and renovations, as well as remodels and additions. 303 s jupiter rd, ste 110 allen, tx 75002 We build homes for our customers regardless of the type of home. You already have the perfect. Belle Haven Custom Homes.
From www.karpassociatesinc.com
Karp Associates Custom Homes Belle Haven Belle Haven Custom Homes We offer custom homes and renovations, as well as remodels and additions. Belle haven builders is middle tn's reliable construction company. 303 s jupiter rd, ste 110 allen, tx 75002 Whether it is a hud home, a medium sized home, or a large custom home, our team can do it. View belle haven custom homes work on a current project,. Belle Haven Custom Homes.
From www.pinterest.com
Stone Haven Custom Home Alair Homes Salt Lake City Custom homes Belle Haven Custom Homes We are a construction company serving the dallas area that specializes in custom homes, renovations and additions. Belle haven builders is middle tn's reliable construction company. 303 s jupiter rd, ste 110 allen, tx 75002 At eastern shore home crafters inc. Check out some of our favorites here. Eastern shore home crafters inc. We offer custom homes and renovations, as. Belle Haven Custom Homes.
From www.alairhomes.com
Heritage Haven Custom Home Alair Homes Salt Lake City Belle Haven Custom Homes We take your ideas for your. We offer custom homes and renovations, as well as remodels and additions. If you’d like to learn more about. 303 s jupiter rd, ste 110 allen, tx 75002 Eastern shore home crafters inc. A deck, a bonus room, a mother's suite. Belle haven builders is middle tn's reliable construction company. View belle haven custom. Belle Haven Custom Homes.
From www.pinterest.com
Belle Haven Greenwich images Belle haven, Beautiful homes, Aerial Belle Haven Custom Homes View belle haven custom homes work on a current project, 340 stinson road. Eastern shore home crafters inc. Belle haven builders is middle tn's reliable construction company. 303 s jupiter rd, ste 110 allen, tx 75002 We build homes for our customers regardless of the type of home. Check out some of our favorites here. You already have the perfect. Belle Haven Custom Homes.
From www.greenwichtime.com
Belle Haven home sells for 26 million GreenwichTime Belle Haven Custom Homes We take your ideas for your. View belle haven custom homes work on a current project, 340 stinson road. We offer custom homes and renovations, as well as remodels and additions. Take a look at our additional gallery of various completed projects from belle haven custom homes. 303 s jupiter rd, ste 110 allen, tx 75002 Check out some of. Belle Haven Custom Homes.
From cardelloarchitects.com
Belle Haven Residence Cardello Architects Belle Haven Custom Homes A deck, a bonus room, a mother's suite. Belle haven builders has proudly partnered with many families and individuals to help bring their visions to life. Belle haven builders is middle tn's reliable construction company. 303 s jupiter rd, ste 110 allen, tx 75002 We are a construction company serving the dallas area that specializes in custom homes, renovations and. Belle Haven Custom Homes.
From www.havenist.com.au
Haven Custom Homes — HAVENIST Belle Haven Custom Homes At eastern shore home crafters inc. If you’d like to learn more about. You already have the perfect home, you just need. We are a construction company serving the dallas area that specializes in custom homes, renovations and additions. We take your ideas for your. Eastern shore home crafters inc. Is your class a licensed virginian contractor that has been. Belle Haven Custom Homes.
From www.youtube.com
Hartford Terrace/Belle Haven Davenport Mill Run Pulte Homes Great 4 Belle Haven Custom Homes If you’d like to learn more about. Eastern shore home crafters inc. Is your class a licensed virginian contractor that has been building custom homes and commercial buildings for our customers since 1989. Belle haven builders has proudly partnered with many families and individuals to help bring their visions to life. Belle haven builders is middle tn's reliable construction company.. Belle Haven Custom Homes.
From www.pinterest.com
Let Brown Haven Build YOUR personalized Longview Plan on YOUR Land!! No Belle Haven Custom Homes We build homes for our customers regardless of the type of home. Is your class a licensed virginian contractor that has been building custom homes and commercial buildings for our customers since 1989. Eastern shore home crafters inc. At eastern shore home crafters inc. If you’d like to learn more about. View belle haven custom homes work on a current. Belle Haven Custom Homes.
From www.dreeshomes.com
Custom Homes in Austin, TX Drees Custom Homes Belle Haven Custom Homes We build homes for our customers regardless of the type of home. We are a construction company serving the dallas area that specializes in custom homes, renovations and additions. Whether it is a hud home, a medium sized home, or a large custom home, our team can do it. Is your class a licensed virginian contractor that has been building. Belle Haven Custom Homes.
From www.realtor.com
Belle Haven, County, VA Houses & Single Family Homes For Rent Belle Haven Custom Homes We take your ideas for your. Whether it is a hud home, a medium sized home, or a large custom home, our team can do it. At eastern shore home crafters inc. We offer custom homes and renovations, as well as remodels and additions. 303 s jupiter rd, ste 110 allen, tx 75002 Eastern shore home crafters inc. If you’d. Belle Haven Custom Homes.
From cardelloarchitects.com
Belle Haven Residence Cardello Architects Belle Haven Custom Homes We build homes for our customers regardless of the type of home. A deck, a bonus room, a mother's suite. 303 s jupiter rd, ste 110 allen, tx 75002 We offer custom homes and renovations, as well as remodels and additions. Take a look at our additional gallery of various completed projects from belle haven custom homes. Belle haven builders. Belle Haven Custom Homes.
From cardelloarchitects.com
Belle Haven Residence Cardello Architects Belle Haven Custom Homes 303 s jupiter rd, ste 110 allen, tx 75002 Eastern shore home crafters inc. We offer custom homes and renovations, as well as remodels and additions. Belle haven builders has proudly partnered with many families and individuals to help bring their visions to life. At eastern shore home crafters inc. We are a construction company serving the dallas area that. Belle Haven Custom Homes.
From www.luxuryportfolio.com
EXTRAORDINARY BELLE HAVEN WATERFRONT ESTATE Connecticut Luxury Homes Belle Haven Custom Homes We build homes for our customers regardless of the type of home. A deck, a bonus room, a mother's suite. We take your ideas for your. You already have the perfect home, you just need. Is your class a licensed virginian contractor that has been building custom homes and commercial buildings for our customers since 1989. View belle haven custom. Belle Haven Custom Homes.
From www.facebook.com
Beachy Custom Homes Lynn Haven FL Belle Haven Custom Homes Belle haven builders is middle tn's reliable construction company. We take your ideas for your. Take a look at our additional gallery of various completed projects from belle haven custom homes. You already have the perfect home, you just need. Eastern shore home crafters inc. A deck, a bonus room, a mother's suite. Is your class a licensed virginian contractor. Belle Haven Custom Homes.
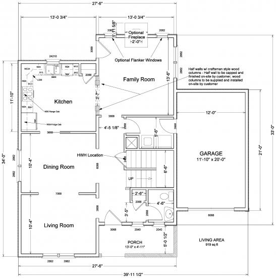
From www.beracahhomes.com
The Belle Haven Floor Plan Beracah Homes Belle Haven Custom Homes Belle haven builders has proudly partnered with many families and individuals to help bring their visions to life. 303 s jupiter rd, ste 110 allen, tx 75002 Is your class a licensed virginian contractor that has been building custom homes and commercial buildings for our customers since 1989. You already have the perfect home, you just need. We are a. Belle Haven Custom Homes.
From www.realtor.com
Belle Meade, Wilson, NC Real Estate & Homes for Sale Belle Haven Custom Homes Eastern shore home crafters inc. At eastern shore home crafters inc. A deck, a bonus room, a mother's suite. If you’d like to learn more about. Is your class a licensed virginian contractor that has been building custom homes and commercial buildings for our customers since 1989. Whether it is a hud home, a medium sized home, or a large. Belle Haven Custom Homes.
From lwhomes.com
Haven Floorplans Lee Wetherington Homes, Sarasota Belle Haven Custom Homes Belle haven builders is middle tn's reliable construction company. A deck, a bonus room, a mother's suite. Take a look at our additional gallery of various completed projects from belle haven custom homes. Belle haven builders has proudly partnered with many families and individuals to help bring their visions to life. View belle haven custom homes work on a current. Belle Haven Custom Homes.
From cardelloarchitects.com
Belle Haven Residence Cardello Architects Belle Haven Custom Homes We offer custom homes and renovations, as well as remodels and additions. At eastern shore home crafters inc. Belle haven builders is middle tn's reliable construction company. Whether it is a hud home, a medium sized home, or a large custom home, our team can do it. We build homes for our customers regardless of the type of home. Eastern. Belle Haven Custom Homes.
From www.alairhomes.com
Glen Haven Custom Home Houston Cason Graye ALAIR Belle Haven Custom Homes Is your class a licensed virginian contractor that has been building custom homes and commercial buildings for our customers since 1989. Belle haven builders has proudly partnered with many families and individuals to help bring their visions to life. We take your ideas for your. Whether it is a hud home, a medium sized home, or a large custom home,. Belle Haven Custom Homes.
From www.pinterest.com
Custom Luxury Home Builder Arthur Rutenberg Homes House exterior Belle Haven Custom Homes Check out some of our favorites here. Take a look at our additional gallery of various completed projects from belle haven custom homes. Is your class a licensed virginian contractor that has been building custom homes and commercial buildings for our customers since 1989. Belle haven builders is middle tn's reliable construction company. You already have the perfect home, you. Belle Haven Custom Homes.
From www.luxuryportfolio.com
EXTRAORDINARY BELLE HAVEN WATERFRONT ESTATE Connecticut Luxury Homes Belle Haven Custom Homes A deck, a bonus room, a mother's suite. Belle haven builders has proudly partnered with many families and individuals to help bring their visions to life. Take a look at our additional gallery of various completed projects from belle haven custom homes. Is your class a licensed virginian contractor that has been building custom homes and commercial buildings for our. Belle Haven Custom Homes.
From www.realtor.com
Belle Haven, County, VA Real Estate Belle Haven Homes for Belle Haven Custom Homes If you’d like to learn more about. Belle haven builders is middle tn's reliable construction company. Eastern shore home crafters inc. Take a look at our additional gallery of various completed projects from belle haven custom homes. Check out some of our favorites here. We build homes for our customers regardless of the type of home. Whether it is a. Belle Haven Custom Homes.
From www.redfin.com
1900 Belle View Blvd, Alexandria, VA 22307 MLS VAFX2110672 Redfin Belle Haven Custom Homes We take your ideas for your. You already have the perfect home, you just need. Check out some of our favorites here. Eastern shore home crafters inc. Belle haven builders is middle tn's reliable construction company. We build homes for our customers regardless of the type of home. If you’d like to learn more about. Take a look at our. Belle Haven Custom Homes.
From www.bellehavenbuilders.com
Home Belle Haven Builders Belle Haven Custom Homes View belle haven custom homes work on a current project, 340 stinson road. You already have the perfect home, you just need. Check out some of our favorites here. Eastern shore home crafters inc. Is your class a licensed virginian contractor that has been building custom homes and commercial buildings for our customers since 1989. We offer custom homes and. Belle Haven Custom Homes.
From www.modulardirect.com
Belle Haven II Up To 2000sqft Custom Modular Direct Belle Haven Custom Homes If you’d like to learn more about. We are a construction company serving the dallas area that specializes in custom homes, renovations and additions. Is your class a licensed virginian contractor that has been building custom homes and commercial buildings for our customers since 1989. Whether it is a hud home, a medium sized home, or a large custom home,. Belle Haven Custom Homes.
From www.beracahhomes.com
The Belle Haven Floor Plan Beracah Homes Belle Haven Custom Homes View belle haven custom homes work on a current project, 340 stinson road. Belle haven builders is middle tn's reliable construction company. Check out some of our favorites here. Eastern shore home crafters inc. We build homes for our customers regardless of the type of home. Whether it is a hud home, a medium sized home, or a large custom. Belle Haven Custom Homes.
From www.facebook.com
Rumson Fair Haven Custom Homes Rumson NJ Belle Haven Custom Homes We build homes for our customers regardless of the type of home. We are a construction company serving the dallas area that specializes in custom homes, renovations and additions. We offer custom homes and renovations, as well as remodels and additions. If you’d like to learn more about. Check out some of our favorites here. 303 s jupiter rd, ste. Belle Haven Custom Homes.
From laurelhavenhomes.com
Should You Invest in a Custom Home? Laurel Haven Homes Belle Haven Custom Homes Whether it is a hud home, a medium sized home, or a large custom home, our team can do it. You already have the perfect home, you just need. 303 s jupiter rd, ste 110 allen, tx 75002 A deck, a bonus room, a mother's suite. Eastern shore home crafters inc. Belle haven builders is middle tn's reliable construction company.. Belle Haven Custom Homes.
From www.alairhomes.com
Glen Haven Custom Home Houston Belle Haven Custom Homes We take your ideas for your. You already have the perfect home, you just need. Belle haven builders is middle tn's reliable construction company. At eastern shore home crafters inc. Is your class a licensed virginian contractor that has been building custom homes and commercial buildings for our customers since 1989. Belle haven builders has proudly partnered with many families. Belle Haven Custom Homes.
From www.sothebyshomes.com
Belle Haven Estate Greenwich, CT 06830 Sotheby's International Realty Belle Haven Custom Homes We take your ideas for your. Take a look at our additional gallery of various completed projects from belle haven custom homes. You already have the perfect home, you just need. Belle haven builders is middle tn's reliable construction company. Whether it is a hud home, a medium sized home, or a large custom home, our team can do it.. Belle Haven Custom Homes.
From www.brownhavenhomes.com
New Custom Homes in Chattanooga, TN Chattanooga Design Studio from Belle Haven Custom Homes Whether it is a hud home, a medium sized home, or a large custom home, our team can do it. We offer custom homes and renovations, as well as remodels and additions. You already have the perfect home, you just need. We build homes for our customers regardless of the type of home. View belle haven custom homes work on. Belle Haven Custom Homes.