How To Qualify For Hud Housing Assistance . families with a low income, seniors, and people with disabilities may qualify to use section 8 vouchers to find housing. Contact a public housing agency in your state or across the country. the housing choice voucher program is designed to allow families to move without the loss of housing assistance. Get the details on how. these are the steps to apply for a section 8 voucher: An ha determines your eligibility based on: Find an open waiting list. If you need advice on any housing. learn about government programs that help people with low incomes find affordable rental housing. To apply for section 8 housing, a housing authority’s waiting list must be open for.
from www.slideserve.com
If you need advice on any housing. Contact a public housing agency in your state or across the country. families with a low income, seniors, and people with disabilities may qualify to use section 8 vouchers to find housing. Get the details on how. these are the steps to apply for a section 8 voucher: To apply for section 8 housing, a housing authority’s waiting list must be open for. the housing choice voucher program is designed to allow families to move without the loss of housing assistance. Find an open waiting list. learn about government programs that help people with low incomes find affordable rental housing. An ha determines your eligibility based on:
PPT HUD’s Homeless Assistance PowerPoint Presentation, free download
How To Qualify For Hud Housing Assistance An ha determines your eligibility based on: these are the steps to apply for a section 8 voucher: the housing choice voucher program is designed to allow families to move without the loss of housing assistance. Get the details on how. To apply for section 8 housing, a housing authority’s waiting list must be open for. Find an open waiting list. Contact a public housing agency in your state or across the country. An ha determines your eligibility based on: learn about government programs that help people with low incomes find affordable rental housing. If you need advice on any housing. families with a low income, seniors, and people with disabilities may qualify to use section 8 vouchers to find housing.
From dxopaybyi.blob.core.windows.net
Housing Application Pdf at William Phillips blog How To Qualify For Hud Housing Assistance Get the details on how. An ha determines your eligibility based on: Contact a public housing agency in your state or across the country. Find an open waiting list. learn about government programs that help people with low incomes find affordable rental housing. these are the steps to apply for a section 8 voucher: To apply for section. How To Qualify For Hud Housing Assistance.
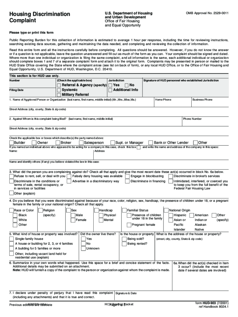
From chiangmaiplaces.net
How Can I Qualify For A Hud Home? 16 Most Correct Answers How To Qualify For Hud Housing Assistance To apply for section 8 housing, a housing authority’s waiting list must be open for. families with a low income, seniors, and people with disabilities may qualify to use section 8 vouchers to find housing. Get the details on how. If you need advice on any housing. learn about government programs that help people with low incomes find. How To Qualify For Hud Housing Assistance.
From everycrsreport.com
Eligibility and Rent in HUD Rental Assistance Programs How To Qualify For Hud Housing Assistance learn about government programs that help people with low incomes find affordable rental housing. these are the steps to apply for a section 8 voucher: families with a low income, seniors, and people with disabilities may qualify to use section 8 vouchers to find housing. Get the details on how. Contact a public housing agency in your. How To Qualify For Hud Housing Assistance.
From www.completecontroller.com
What is HUD housing? How To Qualify For Hud Housing Assistance Contact a public housing agency in your state or across the country. these are the steps to apply for a section 8 voucher: Get the details on how. If you need advice on any housing. learn about government programs that help people with low incomes find affordable rental housing. Find an open waiting list. families with a. How To Qualify For Hud Housing Assistance.
From www.wikihow.com
How to Apply for HUD Housing 10 Steps (with Pictures) wikiHow How To Qualify For Hud Housing Assistance Find an open waiting list. learn about government programs that help people with low incomes find affordable rental housing. To apply for section 8 housing, a housing authority’s waiting list must be open for. Contact a public housing agency in your state or across the country. An ha determines your eligibility based on: Get the details on how. . How To Qualify For Hud Housing Assistance.
From www.pdffiller.com
Fillable Online APPLYING FOR HUD HOUSING ASSISTANCE?APPLYING FOR HUD How To Qualify For Hud Housing Assistance families with a low income, seniors, and people with disabilities may qualify to use section 8 vouchers to find housing. Get the details on how. If you need advice on any housing. Contact a public housing agency in your state or across the country. these are the steps to apply for a section 8 voucher: the housing. How To Qualify For Hud Housing Assistance.
From www.pdffiller.com
Fillable Online APPLYING FOR HUD HOUSING ASSISTANCE?Assisted Housing How To Qualify For Hud Housing Assistance To apply for section 8 housing, a housing authority’s waiting list must be open for. the housing choice voucher program is designed to allow families to move without the loss of housing assistance. learn about government programs that help people with low incomes find affordable rental housing. Get the details on how. If you need advice on any. How To Qualify For Hud Housing Assistance.
From www.wikihow.com
How to Apply for HUD Housing 10 Steps (with Pictures) wikiHow How To Qualify For Hud Housing Assistance Find an open waiting list. families with a low income, seniors, and people with disabilities may qualify to use section 8 vouchers to find housing. Get the details on how. learn about government programs that help people with low incomes find affordable rental housing. To apply for section 8 housing, a housing authority’s waiting list must be open. How To Qualify For Hud Housing Assistance.
From dxohasgmh.blob.core.windows.net
Hud Housing Sign Up at Hall blog How To Qualify For Hud Housing Assistance families with a low income, seniors, and people with disabilities may qualify to use section 8 vouchers to find housing. To apply for section 8 housing, a housing authority’s waiting list must be open for. If you need advice on any housing. learn about government programs that help people with low incomes find affordable rental housing. these. How To Qualify For Hud Housing Assistance.
From www.wikihow.com
How to Apply for HUD Housing 10 Steps (with Pictures) wikiHow How To Qualify For Hud Housing Assistance An ha determines your eligibility based on: To apply for section 8 housing, a housing authority’s waiting list must be open for. Get the details on how. If you need advice on any housing. Contact a public housing agency in your state or across the country. Find an open waiting list. the housing choice voucher program is designed to. How To Qualify For Hud Housing Assistance.
From www.formsbank.com
Application For Public Housing Assistance printable pdf download How To Qualify For Hud Housing Assistance Contact a public housing agency in your state or across the country. these are the steps to apply for a section 8 voucher: To apply for section 8 housing, a housing authority’s waiting list must be open for. the housing choice voucher program is designed to allow families to move without the loss of housing assistance. Find an. How To Qualify For Hud Housing Assistance.
From www.wikihow.com
How to Apply for HUD Housing 10 Steps (with Pictures) wikiHow How To Qualify For Hud Housing Assistance If you need advice on any housing. An ha determines your eligibility based on: Contact a public housing agency in your state or across the country. Find an open waiting list. learn about government programs that help people with low incomes find affordable rental housing. the housing choice voucher program is designed to allow families to move without. How To Qualify For Hud Housing Assistance.
From ucnj.org
HUD Information Union County Emergency Rental Assistance How To Qualify For Hud Housing Assistance the housing choice voucher program is designed to allow families to move without the loss of housing assistance. An ha determines your eligibility based on: Get the details on how. If you need advice on any housing. Find an open waiting list. To apply for section 8 housing, a housing authority’s waiting list must be open for. Contact a. How To Qualify For Hud Housing Assistance.
From fabalabse.com
What is the most to qualify for low housing? Leia aqui Who How To Qualify For Hud Housing Assistance these are the steps to apply for a section 8 voucher: Find an open waiting list. Get the details on how. If you need advice on any housing. An ha determines your eligibility based on: families with a low income, seniors, and people with disabilities may qualify to use section 8 vouchers to find housing. To apply for. How To Qualify For Hud Housing Assistance.
From www.pdffiller.com
Fillable Online Applying for HUD Housing Assistance?Hawthorne, CA Fax How To Qualify For Hud Housing Assistance these are the steps to apply for a section 8 voucher: Find an open waiting list. To apply for section 8 housing, a housing authority’s waiting list must be open for. If you need advice on any housing. families with a low income, seniors, and people with disabilities may qualify to use section 8 vouchers to find housing.. How To Qualify For Hud Housing Assistance.
From houstoncasemanagers.com
What Is HUD Housing? (Federal Housing Agency) How To Qualify For Hud Housing Assistance Find an open waiting list. the housing choice voucher program is designed to allow families to move without the loss of housing assistance. Get the details on how. learn about government programs that help people with low incomes find affordable rental housing. Contact a public housing agency in your state or across the country. An ha determines your. How To Qualify For Hud Housing Assistance.
From happyhomeinsider.com
Quick Tips To Help You Apply For HUD Housing Happy Home Insider How To Qualify For Hud Housing Assistance learn about government programs that help people with low incomes find affordable rental housing. An ha determines your eligibility based on: Find an open waiting list. the housing choice voucher program is designed to allow families to move without the loss of housing assistance. families with a low income, seniors, and people with disabilities may qualify to. How To Qualify For Hud Housing Assistance.
From www.lihpao.com
Exploring How Does HUD Housing Work A Comprehensive Guide The How To Qualify For Hud Housing Assistance these are the steps to apply for a section 8 voucher: Get the details on how. An ha determines your eligibility based on: Find an open waiting list. Contact a public housing agency in your state or across the country. learn about government programs that help people with low incomes find affordable rental housing. If you need advice. How To Qualify For Hud Housing Assistance.
From www.slideserve.com
PPT HUD’s Homeless Assistance PowerPoint Presentation, free download How To Qualify For Hud Housing Assistance If you need advice on any housing. Get the details on how. Find an open waiting list. To apply for section 8 housing, a housing authority’s waiting list must be open for. Contact a public housing agency in your state or across the country. families with a low income, seniors, and people with disabilities may qualify to use section. How To Qualify For Hud Housing Assistance.
From cheapapartments.org
How to Apply for HUD Housing in Texas How To Qualify For Hud Housing Assistance learn about government programs that help people with low incomes find affordable rental housing. Find an open waiting list. If you need advice on any housing. families with a low income, seniors, and people with disabilities may qualify to use section 8 vouchers to find housing. To apply for section 8 housing, a housing authority’s waiting list must. How To Qualify For Hud Housing Assistance.
From dxoejngpy.blob.core.windows.net
Hud Housing Qualifications Texas at Larry Bridges blog How To Qualify For Hud Housing Assistance Get the details on how. the housing choice voucher program is designed to allow families to move without the loss of housing assistance. An ha determines your eligibility based on: Find an open waiting list. families with a low income, seniors, and people with disabilities may qualify to use section 8 vouchers to find housing. To apply for. How To Qualify For Hud Housing Assistance.
From www.youtube.com
How do u apply for HUD housing? YouTube How To Qualify For Hud Housing Assistance To apply for section 8 housing, a housing authority’s waiting list must be open for. the housing choice voucher program is designed to allow families to move without the loss of housing assistance. An ha determines your eligibility based on: families with a low income, seniors, and people with disabilities may qualify to use section 8 vouchers to. How To Qualify For Hud Housing Assistance.
From www.formsbirds.com
Queensland Application for Housing Assistance Free Download How To Qualify For Hud Housing Assistance An ha determines your eligibility based on: learn about government programs that help people with low incomes find affordable rental housing. Contact a public housing agency in your state or across the country. To apply for section 8 housing, a housing authority’s waiting list must be open for. Find an open waiting list. the housing choice voucher program. How To Qualify For Hud Housing Assistance.
From www.youtube.com
What is a HUD Home and Who Qualifies & Hud FirstTime Home Buyer Loan How To Qualify For Hud Housing Assistance Contact a public housing agency in your state or across the country. these are the steps to apply for a section 8 voucher: If you need advice on any housing. families with a low income, seniors, and people with disabilities may qualify to use section 8 vouchers to find housing. Find an open waiting list. To apply for. How To Qualify For Hud Housing Assistance.
From illinoisha.weebly.com
HUD VASH Illinois Housing Assistance How To Qualify For Hud Housing Assistance If you need advice on any housing. Find an open waiting list. the housing choice voucher program is designed to allow families to move without the loss of housing assistance. learn about government programs that help people with low incomes find affordable rental housing. these are the steps to apply for a section 8 voucher: Contact a. How To Qualify For Hud Housing Assistance.
From dxomvcasp.blob.core.windows.net
Housing Assistance For Developmentally Disabled Adults at Thomas Short blog How To Qualify For Hud Housing Assistance the housing choice voucher program is designed to allow families to move without the loss of housing assistance. learn about government programs that help people with low incomes find affordable rental housing. Get the details on how. To apply for section 8 housing, a housing authority’s waiting list must be open for. If you need advice on any. How To Qualify For Hud Housing Assistance.
From affordablehousinghub.org
hud emergency housing assistance — Affordable Housing Hub How To Qualify For Hud Housing Assistance Contact a public housing agency in your state or across the country. learn about government programs that help people with low incomes find affordable rental housing. If you need advice on any housing. Get the details on how. An ha determines your eligibility based on: Find an open waiting list. these are the steps to apply for a. How To Qualify For Hud Housing Assistance.
From waterwoodestate.com
How ToPurchase A HUD Home WaterWoodeState How To Qualify For Hud Housing Assistance families with a low income, seniors, and people with disabilities may qualify to use section 8 vouchers to find housing. To apply for section 8 housing, a housing authority’s waiting list must be open for. learn about government programs that help people with low incomes find affordable rental housing. Contact a public housing agency in your state or. How To Qualify For Hud Housing Assistance.
From www.planstreetinc.com
What is HUD and how does it work? How to apply for a HUD grant? How To Qualify For Hud Housing Assistance An ha determines your eligibility based on: learn about government programs that help people with low incomes find affordable rental housing. families with a low income, seniors, and people with disabilities may qualify to use section 8 vouchers to find housing. If you need advice on any housing. the housing choice voucher program is designed to allow. How To Qualify For Hud Housing Assistance.
From www.wikihow.com
How to Apply for HUD Housing 10 Steps (with Pictures) wikiHow How To Qualify For Hud Housing Assistance learn about government programs that help people with low incomes find affordable rental housing. these are the steps to apply for a section 8 voucher: Find an open waiting list. If you need advice on any housing. Get the details on how. To apply for section 8 housing, a housing authority’s waiting list must be open for. . How To Qualify For Hud Housing Assistance.
From thehacc.org
Apply for HUD Housing Assistance and Fraud HACC How To Qualify For Hud Housing Assistance If you need advice on any housing. Find an open waiting list. To apply for section 8 housing, a housing authority’s waiting list must be open for. families with a low income, seniors, and people with disabilities may qualify to use section 8 vouchers to find housing. the housing choice voucher program is designed to allow families to. How To Qualify For Hud Housing Assistance.
From www.thebalancemoney.com
How to Qualify for a Section 8 Voucher How To Qualify For Hud Housing Assistance these are the steps to apply for a section 8 voucher: Contact a public housing agency in your state or across the country. families with a low income, seniors, and people with disabilities may qualify to use section 8 vouchers to find housing. the housing choice voucher program is designed to allow families to move without the. How To Qualify For Hud Housing Assistance.
From exofknxta.blob.core.windows.net
How To Apply For Hud In California at Sandra Stokes blog How To Qualify For Hud Housing Assistance these are the steps to apply for a section 8 voucher: An ha determines your eligibility based on: the housing choice voucher program is designed to allow families to move without the loss of housing assistance. Get the details on how. families with a low income, seniors, and people with disabilities may qualify to use section 8. How To Qualify For Hud Housing Assistance.
From www.wikihow.com
How to Apply for HUD Housing 10 Steps (with Pictures) wikiHow How To Qualify For Hud Housing Assistance Get the details on how. To apply for section 8 housing, a housing authority’s waiting list must be open for. If you need advice on any housing. learn about government programs that help people with low incomes find affordable rental housing. these are the steps to apply for a section 8 voucher: An ha determines your eligibility based. How To Qualify For Hud Housing Assistance.
From www.pdffiller.com
Fillable Online APPLYING FOR HUD HOUSING ASSISTANCE Fax Email Print How To Qualify For Hud Housing Assistance the housing choice voucher program is designed to allow families to move without the loss of housing assistance. An ha determines your eligibility based on: learn about government programs that help people with low incomes find affordable rental housing. Get the details on how. families with a low income, seniors, and people with disabilities may qualify to. How To Qualify For Hud Housing Assistance.