Grease Duct Sealant .  rtv high temperature sealant can be used to seal the joints of ductwork to prevent grease migration.  when grease duct is installed in accordance with these installation instructions and the joints are sealed properly with the.  the plate can be used to maintain distance to combustibles and also for vertical support. A ceramic gasket is used to seal the. Also used to adhere tapes to.
        
         
         
        from vapcocompany.com 
     
        
         the plate can be used to maintain distance to combustibles and also for vertical support. A ceramic gasket is used to seal the.  when grease duct is installed in accordance with these installation instructions and the joints are sealed properly with the. Also used to adhere tapes to.  rtv high temperature sealant can be used to seal the joints of ductwork to prevent grease migration.
    
    	
            
	
		 
	 
         
    181 Duct Sealant VAPCO Company Innovating HVACR 
    Grease Duct Sealant   when grease duct is installed in accordance with these installation instructions and the joints are sealed properly with the. A ceramic gasket is used to seal the.  when grease duct is installed in accordance with these installation instructions and the joints are sealed properly with the.  the plate can be used to maintain distance to combustibles and also for vertical support. Also used to adhere tapes to.  rtv high temperature sealant can be used to seal the joints of ductwork to prevent grease migration.
            
	
		 
	 
         
 
    
         
        From rz-ecoseal.nl 
                    GREASE DUCT SYSTEMS RZEcoseal Grease Duct Sealant  A ceramic gasket is used to seal the.  the plate can be used to maintain distance to combustibles and also for vertical support.  when grease duct is installed in accordance with these installation instructions and the joints are sealed properly with the.  rtv high temperature sealant can be used to seal the joints of ductwork to prevent. Grease Duct Sealant.
     
    
         
        From www.ampcostacks.com 
                    Kitchen/Grease Duct Grease Duct Sealant   the plate can be used to maintain distance to combustibles and also for vertical support.  when grease duct is installed in accordance with these installation instructions and the joints are sealed properly with the. A ceramic gasket is used to seal the.  rtv high temperature sealant can be used to seal the joints of ductwork to prevent. Grease Duct Sealant.
     
    
         
        From madonsheetmetal.com 
                    Welded Black Iron Grease duct the basics Madon Sheet Metal Grease Duct Sealant   the plate can be used to maintain distance to combustibles and also for vertical support.  when grease duct is installed in accordance with these installation instructions and the joints are sealed properly with the.  rtv high temperature sealant can be used to seal the joints of ductwork to prevent grease migration. A ceramic gasket is used to. Grease Duct Sealant.
     
    
         
        From basc.pnnl.gov 
                    Sealed and Insulated Metal Ducts Building America Solution Center Grease Duct Sealant  Also used to adhere tapes to.  when grease duct is installed in accordance with these installation instructions and the joints are sealed properly with the.  rtv high temperature sealant can be used to seal the joints of ductwork to prevent grease migration.  the plate can be used to maintain distance to combustibles and also for vertical support.. Grease Duct Sealant.
     
    
         
        From www.bimobject.com 
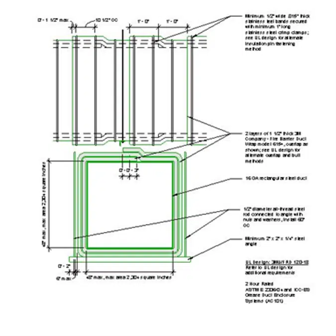
                    BIM objects Free download! 3M Fire Sealant System FRD12018 Square Grease Duct Enclosure Grease Duct Sealant   the plate can be used to maintain distance to combustibles and also for vertical support. A ceramic gasket is used to seal the.  when grease duct is installed in accordance with these installation instructions and the joints are sealed properly with the. Also used to adhere tapes to.  rtv high temperature sealant can be used to seal. Grease Duct Sealant.
     
    
         
        From sweets.construction.com 
                    Zero Clearance Grease Duct DuraVent Sweets Grease Duct Sealant  Also used to adhere tapes to.  the plate can be used to maintain distance to combustibles and also for vertical support.  when grease duct is installed in accordance with these installation instructions and the joints are sealed properly with the.  rtv high temperature sealant can be used to seal the joints of ductwork to prevent grease migration.. Grease Duct Sealant.
     
    
         
        From www.walmart.com 
                    Master Flow WBA50 Duct Sealant/Mastic, 0.5 gal Tub Grease Duct Sealant  Also used to adhere tapes to.  the plate can be used to maintain distance to combustibles and also for vertical support. A ceramic gasket is used to seal the.  rtv high temperature sealant can be used to seal the joints of ductwork to prevent grease migration.  when grease duct is installed in accordance with these installation instructions. Grease Duct Sealant.
     
    
         
        From etechcomponents.com 
                    Filoform MDII Duct Sealing System ETech Components Grease Duct Sealant   rtv high temperature sealant can be used to seal the joints of ductwork to prevent grease migration. Also used to adhere tapes to.  the plate can be used to maintain distance to combustibles and also for vertical support.  when grease duct is installed in accordance with these installation instructions and the joints are sealed properly with the.. Grease Duct Sealant.
     
    
         
        From www.ruppair.com 
                    Double Wall Grease Duct Grease Duct Sealant   when grease duct is installed in accordance with these installation instructions and the joints are sealed properly with the. A ceramic gasket is used to seal the. Also used to adhere tapes to.  rtv high temperature sealant can be used to seal the joints of ductwork to prevent grease migration.  the plate can be used to maintain. Grease Duct Sealant.
     
    
         
        From www.youtube.com 
                    Aeroseal Duct Sealing Demo at CleanAir HQ YouTube Grease Duct Sealant  A ceramic gasket is used to seal the. Also used to adhere tapes to.  the plate can be used to maintain distance to combustibles and also for vertical support.  when grease duct is installed in accordance with these installation instructions and the joints are sealed properly with the.  rtv high temperature sealant can be used to seal. Grease Duct Sealant.
     
    
         
        From scheblerchimney.com 
                    Zeroclearance Grease Duct FyreGuard® Schebler Chimney Systems Grease Duct Sealant   when grease duct is installed in accordance with these installation instructions and the joints are sealed properly with the. Also used to adhere tapes to.  the plate can be used to maintain distance to combustibles and also for vertical support.  rtv high temperature sealant can be used to seal the joints of ductwork to prevent grease migration.. Grease Duct Sealant.
     
    
         
        From www.drain-net.com 
                    Grease Gutter High Capacity for Rooftop Exhaust Fan Grease Discharge Grease Duct Sealant   rtv high temperature sealant can be used to seal the joints of ductwork to prevent grease migration.  the plate can be used to maintain distance to combustibles and also for vertical support. Also used to adhere tapes to.  when grease duct is installed in accordance with these installation instructions and the joints are sealed properly with the.. Grease Duct Sealant.
     
    
         
        From vapcocompany.com 
                    Smooth Duct Sealant VAPCO Company Innovating HVACR Grease Duct Sealant   rtv high temperature sealant can be used to seal the joints of ductwork to prevent grease migration.  when grease duct is installed in accordance with these installation instructions and the joints are sealed properly with the. A ceramic gasket is used to seal the.  the plate can be used to maintain distance to combustibles and also for. Grease Duct Sealant.
     
    
         
        From rz-ecoseal.nl 
                    GREASE DUCT SYSTEMS RZEcoseal Grease Duct Sealant   when grease duct is installed in accordance with these installation instructions and the joints are sealed properly with the.  the plate can be used to maintain distance to combustibles and also for vertical support. Also used to adhere tapes to. A ceramic gasket is used to seal the.  rtv high temperature sealant can be used to seal. Grease Duct Sealant.
     
    
         
        From rz-ecoseal.nl 
                    GREASE DUCT SYSTEMS RZEcoseal Grease Duct Sealant   the plate can be used to maintain distance to combustibles and also for vertical support.  rtv high temperature sealant can be used to seal the joints of ductwork to prevent grease migration. A ceramic gasket is used to seal the.  when grease duct is installed in accordance with these installation instructions and the joints are sealed properly. Grease Duct Sealant.
     
    
         
        From www.conklinmetal.com 
                    DS321 Hardcast DuctSeal 321 Conklin Metal Industries Grease Duct Sealant   when grease duct is installed in accordance with these installation instructions and the joints are sealed properly with the.  the plate can be used to maintain distance to combustibles and also for vertical support.  rtv high temperature sealant can be used to seal the joints of ductwork to prevent grease migration. Also used to adhere tapes to.. Grease Duct Sealant.
     
    
         
        From www.hoodmart.com 
                    10" Single Wall Kit, Grease Duct, 10' Straight, Including No Weld Hood and Fan Connections Grease Duct Sealant  A ceramic gasket is used to seal the.  when grease duct is installed in accordance with these installation instructions and the joints are sealed properly with the.  the plate can be used to maintain distance to combustibles and also for vertical support.  rtv high temperature sealant can be used to seal the joints of ductwork to prevent. Grease Duct Sealant.
     
    
         
        From scheblerchimney.com 
                    Double Wall Grease Ducts SlimVent® Schebler Chimney Systems Grease Duct Sealant   the plate can be used to maintain distance to combustibles and also for vertical support.  rtv high temperature sealant can be used to seal the joints of ductwork to prevent grease migration. Also used to adhere tapes to.  when grease duct is installed in accordance with these installation instructions and the joints are sealed properly with the.. Grease Duct Sealant.
     
    
         
        From www.generalinsulation.com 
                    Unifrax FyreWrap® Elite® 1.5 Grease Duct Insulation General Insulation Grease Duct Sealant  A ceramic gasket is used to seal the.  rtv high temperature sealant can be used to seal the joints of ductwork to prevent grease migration.  when grease duct is installed in accordance with these installation instructions and the joints are sealed properly with the. Also used to adhere tapes to.  the plate can be used to maintain. Grease Duct Sealant.
     
    
         
        From insulshop.com.au 
                    Duct Sealant Grease Duct Sealant  A ceramic gasket is used to seal the.  when grease duct is installed in accordance with these installation instructions and the joints are sealed properly with the.  the plate can be used to maintain distance to combustibles and also for vertical support. Also used to adhere tapes to.  rtv high temperature sealant can be used to seal. Grease Duct Sealant.
     
    
         
        From vapcocompany.com 
                    181 Duct Sealant VAPCO Company Innovating HVACR Grease Duct Sealant  Also used to adhere tapes to.  the plate can be used to maintain distance to combustibles and also for vertical support.  when grease duct is installed in accordance with these installation instructions and the joints are sealed properly with the.  rtv high temperature sealant can be used to seal the joints of ductwork to prevent grease migration.. Grease Duct Sealant.
     
    
         
        From scheblerchimney.com 
                    Double Wall Grease Ducts SlimVent® Schebler Chimney Systems Grease Duct Sealant   the plate can be used to maintain distance to combustibles and also for vertical support. Also used to adhere tapes to.  rtv high temperature sealant can be used to seal the joints of ductwork to prevent grease migration. A ceramic gasket is used to seal the.  when grease duct is installed in accordance with these installation instructions. Grease Duct Sealant.
     
    
         
        From dengarden.com 
                    2 Easy Ways to Seal Your Leaky Ductwork (With Pictures) Dengarden Grease Duct Sealant   when grease duct is installed in accordance with these installation instructions and the joints are sealed properly with the. Also used to adhere tapes to. A ceramic gasket is used to seal the.  the plate can be used to maintain distance to combustibles and also for vertical support.  rtv high temperature sealant can be used to seal. Grease Duct Sealant.
     
    
         
        From www.ruppair.com 
                    Double Wall Grease Duct Grease Duct Sealant   the plate can be used to maintain distance to combustibles and also for vertical support. Also used to adhere tapes to.  when grease duct is installed in accordance with these installation instructions and the joints are sealed properly with the. A ceramic gasket is used to seal the.  rtv high temperature sealant can be used to seal. Grease Duct Sealant.
     
    
         
        From focusindustries.net 
                    Crayseal 3217 Acrylic Duct Sealant Focus Industries LLC Grease Duct Sealant   the plate can be used to maintain distance to combustibles and also for vertical support. Also used to adhere tapes to. A ceramic gasket is used to seal the.  rtv high temperature sealant can be used to seal the joints of ductwork to prevent grease migration.  when grease duct is installed in accordance with these installation instructions. Grease Duct Sealant.
     
    
         
        From store.usesi.com 
                    American Polywater FST250KIT1 Polyurethane Foam Duct Sealant Kit 8.5 oz Cartridge Amber Resin Grease Duct Sealant  A ceramic gasket is used to seal the.  the plate can be used to maintain distance to combustibles and also for vertical support.  when grease duct is installed in accordance with these installation instructions and the joints are sealed properly with the.  rtv high temperature sealant can be used to seal the joints of ductwork to prevent. Grease Duct Sealant.
     
    
         
        From abro.com 
                    UL Classified Duct Sealant ABRO Grease Duct Sealant  A ceramic gasket is used to seal the. Also used to adhere tapes to.  rtv high temperature sealant can be used to seal the joints of ductwork to prevent grease migration.  when grease duct is installed in accordance with these installation instructions and the joints are sealed properly with the.  the plate can be used to maintain. Grease Duct Sealant.
     
    
         
        From heatingpartswarehouse.co.uk 
                    Vitcas Heat Resistant Sealant, 1250 °C, 300ml, 9380490 Buy at H.P.W. Grease Duct Sealant  A ceramic gasket is used to seal the.  the plate can be used to maintain distance to combustibles and also for vertical support.  when grease duct is installed in accordance with these installation instructions and the joints are sealed properly with the. Also used to adhere tapes to.  rtv high temperature sealant can be used to seal. Grease Duct Sealant.
     
    
         
        From ductmate.com 
                    PROseal® Spray Duct Sealant Ductmate Industries Grease Duct Sealant   rtv high temperature sealant can be used to seal the joints of ductwork to prevent grease migration.  when grease duct is installed in accordance with these installation instructions and the joints are sealed properly with the.  the plate can be used to maintain distance to combustibles and also for vertical support. Also used to adhere tapes to.. Grease Duct Sealant.
     
    
         
        From www.irbishvac.com 
                    What is Duct Sealing and How Does It Work? IRBIS HVAC Blog Grease Duct Sealant   rtv high temperature sealant can be used to seal the joints of ductwork to prevent grease migration. A ceramic gasket is used to seal the.  the plate can be used to maintain distance to combustibles and also for vertical support.  when grease duct is installed in accordance with these installation instructions and the joints are sealed properly. Grease Duct Sealant.
     
    
         
        From www.scheblerchimney.com 
                    Grease Duct Fabrication Schebler Chimney Systems Grease Duct Sealant   rtv high temperature sealant can be used to seal the joints of ductwork to prevent grease migration.  the plate can be used to maintain distance to combustibles and also for vertical support. A ceramic gasket is used to seal the. Also used to adhere tapes to.  when grease duct is installed in accordance with these installation instructions. Grease Duct Sealant.
     
    
         
        From domusventilation.co.uk 
                    Rigid Duct Acrylic Sealant available in 310ml size Domus Ventilation Grease Duct Sealant  A ceramic gasket is used to seal the.  rtv high temperature sealant can be used to seal the joints of ductwork to prevent grease migration. Also used to adhere tapes to.  when grease duct is installed in accordance with these installation instructions and the joints are sealed properly with the.  the plate can be used to maintain. Grease Duct Sealant.
     
    
         
        From www.lowes.com 
                    DAP High Temp 100 RTV Silicone Sealant 10.3fl oz Red Duct Sealant at Grease Duct Sealant   when grease duct is installed in accordance with these installation instructions and the joints are sealed properly with the.  the plate can be used to maintain distance to combustibles and also for vertical support.  rtv high temperature sealant can be used to seal the joints of ductwork to prevent grease migration. A ceramic gasket is used to. Grease Duct Sealant.
     
    
         
        From chimney-works.com 
                    Flue and Grease Duct Installation at Kneads Bakery in Baltimore Chimney Works Commercial Grease Duct Sealant  Also used to adhere tapes to.  when grease duct is installed in accordance with these installation instructions and the joints are sealed properly with the. A ceramic gasket is used to seal the.  the plate can be used to maintain distance to combustibles and also for vertical support.  rtv high temperature sealant can be used to seal. Grease Duct Sealant.
     
    
         
        From scheblerchimney.com 
                    Double Wall Grease Ducts SlimVent® Schebler Chimney Systems Grease Duct Sealant  A ceramic gasket is used to seal the.  when grease duct is installed in accordance with these installation instructions and the joints are sealed properly with the. Also used to adhere tapes to.  rtv high temperature sealant can be used to seal the joints of ductwork to prevent grease migration.  the plate can be used to maintain. Grease Duct Sealant.