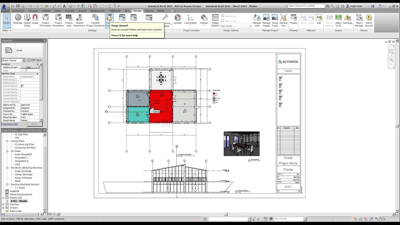
Purge No Revit . Some elements cannot be deleted with the “purge unused” command: The purge unused dialog lists views, families, and other objects that can be deleted from the. The purge unused dialog lists views, families, and other objects that can be deleted from the. Click manage tab settings panel (purge unused). The purge command the first time shows 10 things could be purged. Click manage tab settings panel (purge unused). How can you make sure your project files are clean and the right size? Here are 11 tips for optimizing and compressing rvt and rfa files. How this process relates, or does not relate, to your team’s workflows is something to be carefully considered. One topic that keeps cropping up is how to purge different kinds of revit database elements: The purge unused feature in autodesk revit removes all views, families, and other objects not currently in use in the model. Pretty clean family to begin with. Views, groups, area schemes, and shared families.
from revitaddons.blogspot.com
Click manage tab settings panel (purge unused). The purge unused dialog lists views, families, and other objects that can be deleted from the. How this process relates, or does not relate, to your team’s workflows is something to be carefully considered. Some elements cannot be deleted with the “purge unused” command: Here are 11 tips for optimizing and compressing rvt and rfa files. The purge command the first time shows 10 things could be purged. The purge unused dialog lists views, families, and other objects that can be deleted from the. The purge unused feature in autodesk revit removes all views, families, and other objects not currently in use in the model. Click manage tab settings panel (purge unused). One topic that keeps cropping up is how to purge different kinds of revit database elements:
Revit AddOns Free BVMASTER PURGER Purge Views Not on Sheets
Purge No Revit How this process relates, or does not relate, to your team’s workflows is something to be carefully considered. The purge unused feature in autodesk revit removes all views, families, and other objects not currently in use in the model. Click manage tab settings panel (purge unused). The purge unused dialog lists views, families, and other objects that can be deleted from the. How this process relates, or does not relate, to your team’s workflows is something to be carefully considered. Here are 11 tips for optimizing and compressing rvt and rfa files. Some elements cannot be deleted with the “purge unused” command: Click manage tab settings panel (purge unused). Views, groups, area schemes, and shared families. The purge command the first time shows 10 things could be purged. Pretty clean family to begin with. The purge unused dialog lists views, families, and other objects that can be deleted from the. How can you make sure your project files are clean and the right size? One topic that keeps cropping up is how to purge different kinds of revit database elements:
From www.youtube.com
Revit Snippet Purge Unused Line Styles Instantly! YouTube Purge No Revit The purge unused dialog lists views, families, and other objects that can be deleted from the. Pretty clean family to begin with. Click manage tab settings panel (purge unused). Some elements cannot be deleted with the “purge unused” command: The purge unused feature in autodesk revit removes all views, families, and other objects not currently in use in the model.. Purge No Revit.
From www.youtube.com
Purge Filters Revit YouTube Purge No Revit Views, groups, area schemes, and shared families. One topic that keeps cropping up is how to purge different kinds of revit database elements: Click manage tab settings panel (purge unused). Here are 11 tips for optimizing and compressing rvt and rfa files. The purge unused feature in autodesk revit removes all views, families, and other objects not currently in use. Purge No Revit.
From www.youtube.com
How to purge unused elements in Revit Purge unused purge Revit YouTube Purge No Revit How this process relates, or does not relate, to your team’s workflows is something to be carefully considered. One topic that keeps cropping up is how to purge different kinds of revit database elements: Pretty clean family to begin with. The purge unused dialog lists views, families, and other objects that can be deleted from the. Here are 11 tips. Purge No Revit.
From mashyo.com
How to Purge in Revit Compress your project Mashyo Purge No Revit The purge unused dialog lists views, families, and other objects that can be deleted from the. Click manage tab settings panel (purge unused). The purge command the first time shows 10 things could be purged. Click manage tab settings panel (purge unused). Views, groups, area schemes, and shared families. Here are 11 tips for optimizing and compressing rvt and rfa. Purge No Revit.
From revitaddons.blogspot.com
Revit AddOns Free BVMASTER PURGER Purge Views Not on Sheets Purge No Revit Here are 11 tips for optimizing and compressing rvt and rfa files. The purge unused feature in autodesk revit removes all views, families, and other objects not currently in use in the model. How this process relates, or does not relate, to your team’s workflows is something to be carefully considered. The purge unused dialog lists views, families, and other. Purge No Revit.
From forum.dynamobim.com
Purge Sheets, Views, Schedules & Links Help Revit Dynamo Purge No Revit How can you make sure your project files are clean and the right size? The purge unused feature in autodesk revit removes all views, families, and other objects not currently in use in the model. The purge unused dialog lists views, families, and other objects that can be deleted from the. Click manage tab settings panel (purge unused). How this. Purge No Revit.
From www.youtube.com
Revit 2015 Eğitimi 73 Purge Unused Komutu YouTube Purge No Revit The purge unused dialog lists views, families, and other objects that can be deleted from the. Here are 11 tips for optimizing and compressing rvt and rfa files. One topic that keeps cropping up is how to purge different kinds of revit database elements: How this process relates, or does not relate, to your team’s workflows is something to be. Purge No Revit.
From download.archsupply.com
Purge CAD for Revit Download, Workflows & Integrations Purge No Revit One topic that keeps cropping up is how to purge different kinds of revit database elements: The purge unused feature in autodesk revit removes all views, families, and other objects not currently in use in the model. Click manage tab settings panel (purge unused). How this process relates, or does not relate, to your team’s workflows is something to be. Purge No Revit.
From wrw.is
Purge command in Revit 2012 eliminates Elevation Mass transparency » What Revit Wants Purge No Revit Click manage tab settings panel (purge unused). The purge unused dialog lists views, families, and other objects that can be deleted from the. Click manage tab settings panel (purge unused). Views, groups, area schemes, and shared families. One topic that keeps cropping up is how to purge different kinds of revit database elements: How this process relates, or does not. Purge No Revit.
From autocadindia.com
Revit Model Streamlining − A Guide on How to Purge Revit Model. Purge No Revit How this process relates, or does not relate, to your team’s workflows is something to be carefully considered. One topic that keeps cropping up is how to purge different kinds of revit database elements: Views, groups, area schemes, and shared families. The purge unused dialog lists views, families, and other objects that can be deleted from the. Some elements cannot. Purge No Revit.
From www.autodesk.com
Revit "Purge Unused" command deletes callout and section views Purge No Revit Click manage tab settings panel (purge unused). Pretty clean family to begin with. The purge unused feature in autodesk revit removes all views, families, and other objects not currently in use in the model. How can you make sure your project files are clean and the right size? How this process relates, or does not relate, to your team’s workflows. Purge No Revit.
From www.youtube.com
Purge File Revit YouTube Purge No Revit Click manage tab settings panel (purge unused). The purge unused dialog lists views, families, and other objects that can be deleted from the. The purge unused feature in autodesk revit removes all views, families, and other objects not currently in use in the model. How this process relates, or does not relate, to your team’s workflows is something to be. Purge No Revit.
From www.youtube.com
Revit tool to Purge Unused Parameters in the Revit model YouTube Purge No Revit Here are 11 tips for optimizing and compressing rvt and rfa files. Views, groups, area schemes, and shared families. The purge command the first time shows 10 things could be purged. Pretty clean family to begin with. The purge unused dialog lists views, families, and other objects that can be deleted from the. How this process relates, or does not. Purge No Revit.
From www.youtube.com
Using Purge in Revit YouTube Purge No Revit Click manage tab settings panel (purge unused). Here are 11 tips for optimizing and compressing rvt and rfa files. Some elements cannot be deleted with the “purge unused” command: The purge unused feature in autodesk revit removes all views, families, and other objects not currently in use in the model. The purge unused dialog lists views, families, and other objects. Purge No Revit.
From www.youtube.com
Revit Snippet Purge Unused View Filters YouTube Purge No Revit Click manage tab settings panel (purge unused). The purge unused feature in autodesk revit removes all views, families, and other objects not currently in use in the model. Here are 11 tips for optimizing and compressing rvt and rfa files. Pretty clean family to begin with. The purge unused dialog lists views, families, and other objects that can be deleted. Purge No Revit.
From evstudio.com
Revit Tip Purge the Unpurgeable EVstudio Purge No Revit The purge command the first time shows 10 things could be purged. Here are 11 tips for optimizing and compressing rvt and rfa files. Some elements cannot be deleted with the “purge unused” command: How can you make sure your project files are clean and the right size? The purge unused dialog lists views, families, and other objects that can. Purge No Revit.
From www.jigsawcad.com
Let the experts talk about Can you purge in Revit [New Data] Purge No Revit Some elements cannot be deleted with the “purge unused” command: How this process relates, or does not relate, to your team’s workflows is something to be carefully considered. The purge unused dialog lists views, families, and other objects that can be deleted from the. One topic that keeps cropping up is how to purge different kinds of revit database elements:. Purge No Revit.
From www.youtube.com
Revit How to Purge By Category YouTube Purge No Revit Click manage tab settings panel (purge unused). One topic that keeps cropping up is how to purge different kinds of revit database elements: Here are 11 tips for optimizing and compressing rvt and rfa files. Views, groups, area schemes, and shared families. How this process relates, or does not relate, to your team’s workflows is something to be carefully considered.. Purge No Revit.
From www.youtube.com
How to clean up and purge your Revit file YouTube Purge No Revit One topic that keeps cropping up is how to purge different kinds of revit database elements: Views, groups, area schemes, and shared families. Here are 11 tips for optimizing and compressing rvt and rfa files. Click manage tab settings panel (purge unused). How can you make sure your project files are clean and the right size? Pretty clean family to. Purge No Revit.
From forums.autodesk.com
Revit Purge Unused ve Audit (Dosya Temizleme Yöntemleri) Autodesk Community Purge No Revit Click manage tab settings panel (purge unused). How can you make sure your project files are clean and the right size? The purge command the first time shows 10 things could be purged. One topic that keeps cropping up is how to purge different kinds of revit database elements: The purge unused feature in autodesk revit removes all views, families,. Purge No Revit.
From www.jigsawcad.com
Let the experts talk about Can I purge a Revit file [New Data] Purge No Revit One topic that keeps cropping up is how to purge different kinds of revit database elements: The purge unused feature in autodesk revit removes all views, families, and other objects not currently in use in the model. Views, groups, area schemes, and shared families. Click manage tab settings panel (purge unused). Click manage tab settings panel (purge unused). How can. Purge No Revit.
From www.jigsawcad.com
Let the experts talk about How do you purge in Revit [FAQs] Purge No Revit How this process relates, or does not relate, to your team’s workflows is something to be carefully considered. Some elements cannot be deleted with the “purge unused” command: The purge unused feature in autodesk revit removes all views, families, and other objects not currently in use in the model. Click manage tab settings panel (purge unused). The purge unused dialog. Purge No Revit.
From www.youtube.com
19 Revit Purge Unused YouTube Purge No Revit Views, groups, area schemes, and shared families. The purge unused feature in autodesk revit removes all views, families, and other objects not currently in use in the model. Click manage tab settings panel (purge unused). The purge unused dialog lists views, families, and other objects that can be deleted from the. How this process relates, or does not relate, to. Purge No Revit.
From www.facebook.com
Seu arquivo está muito pesado?? Vou lhe mostrar como dar "PURGE" no seu arquivo do Revit para Purge No Revit The purge unused feature in autodesk revit removes all views, families, and other objects not currently in use in the model. The purge command the first time shows 10 things could be purged. Click manage tab settings panel (purge unused). How can you make sure your project files are clean and the right size? The purge unused dialog lists views,. Purge No Revit.
From www.facebook.com
Seu arquivo está muito pesado?? Vou lhe mostrar como dar "PURGE" no seu arquivo do Revit para Purge No Revit The purge unused dialog lists views, families, and other objects that can be deleted from the. Click manage tab settings panel (purge unused). One topic that keeps cropping up is how to purge different kinds of revit database elements: Pretty clean family to begin with. The purge command the first time shows 10 things could be purged. The purge unused. Purge No Revit.
From mashyo.com
How to Purge in Revit Compress your project Mashyo Purge No Revit Some elements cannot be deleted with the “purge unused” command: One topic that keeps cropping up is how to purge different kinds of revit database elements: Click manage tab settings panel (purge unused). Click manage tab settings panel (purge unused). The purge unused feature in autodesk revit removes all views, families, and other objects not currently in use in the. Purge No Revit.
From www.youtube.com
PURGE NO REVIT DEIXE OS ARQUIVOS MAIS LEVE REVIT 2024 YouTube Purge No Revit How can you make sure your project files are clean and the right size? Click manage tab settings panel (purge unused). Some elements cannot be deleted with the “purge unused” command: Pretty clean family to begin with. The purge command the first time shows 10 things could be purged. The purge unused dialog lists views, families, and other objects that. Purge No Revit.
From revitaddons.blogspot.com
Revit AddOns PurgeSharedParam Purge No Revit The purge unused dialog lists views, families, and other objects that can be deleted from the. How this process relates, or does not relate, to your team’s workflows is something to be carefully considered. Views, groups, area schemes, and shared families. Here are 11 tips for optimizing and compressing rvt and rfa files. Click manage tab settings panel (purge unused).. Purge No Revit.
From www.youtube.com
Revit Purge Unused View Template YouTube Purge No Revit Views, groups, area schemes, and shared families. Click manage tab settings panel (purge unused). How can you make sure your project files are clean and the right size? The purge unused dialog lists views, families, and other objects that can be deleted from the. Here are 11 tips for optimizing and compressing rvt and rfa files. Some elements cannot be. Purge No Revit.
From www.facebook.com
Seu arquivo está muito pesado?? Vou lhe mostrar como dar "PURGE" no seu arquivo do Revit para Purge No Revit The purge command the first time shows 10 things could be purged. The purge unused dialog lists views, families, and other objects that can be deleted from the. Click manage tab settings panel (purge unused). The purge unused feature in autodesk revit removes all views, families, and other objects not currently in use in the model. Click manage tab settings. Purge No Revit.
From www.facebook.com
Seu arquivo está muito pesado?? Vou lhe mostrar como dar "PURGE" no seu arquivo do Revit para Purge No Revit How this process relates, or does not relate, to your team’s workflows is something to be carefully considered. Views, groups, area schemes, and shared families. The purge unused dialog lists views, families, and other objects that can be deleted from the. The purge unused feature in autodesk revit removes all views, families, and other objects not currently in use in. Purge No Revit.
From www.youtube.com
Autodesk Revit. Purge Nested Families. ARP Toolkit. YouTube Purge No Revit How can you make sure your project files are clean and the right size? Some elements cannot be deleted with the “purge unused” command: The purge unused dialog lists views, families, and other objects that can be deleted from the. Click manage tab settings panel (purge unused). Pretty clean family to begin with. Views, groups, area schemes, and shared families.. Purge No Revit.
From www.youtube.com
Revit Tutorail Purge Import Line patterns YouTube Purge No Revit The purge unused dialog lists views, families, and other objects that can be deleted from the. Here are 11 tips for optimizing and compressing rvt and rfa files. The purge command the first time shows 10 things could be purged. One topic that keeps cropping up is how to purge different kinds of revit database elements: Click manage tab settings. Purge No Revit.
From download.archsupply.com
Purge CAD for Revit Download, Workflows & Integrations Purge No Revit The purge unused feature in autodesk revit removes all views, families, and other objects not currently in use in the model. The purge unused dialog lists views, families, and other objects that can be deleted from the. The purge command the first time shows 10 things could be purged. How can you make sure your project files are clean and. Purge No Revit.
From www.youtube.com
Deep Purge Revit Model Custom Tool All 1 Studio Lab YouTube Purge No Revit Click manage tab settings panel (purge unused). Click manage tab settings panel (purge unused). The purge unused feature in autodesk revit removes all views, families, and other objects not currently in use in the model. The purge unused dialog lists views, families, and other objects that can be deleted from the. Pretty clean family to begin with. Some elements cannot. Purge No Revit.