Secondary Containment Inspection . This directive identifies requirements for the storage of materials produced, generated (including wastes), or used by the upstream petroleum and geothermal resource. Secondary containment is the only method of leak detection that can detect a “leak” without allowing a “release” to the environment. 100k+ visitors in the past month Preventive measures (e.g., secondary containment system); The purpose of the spcc rule is to prevent discharges of oil into. Where upstream petroleum sites use refined fuels for supplying vehicles, aircraft, emergency generators, or other similar equipment, then the. Secondary containment systems for underground piping, as applicable, are designed and installed so that leaks either accumulate in a containment. The environmental code of practice comprises a model set of technical requirements designed to protect the environment by preventing product. Maintenance and inspection requirements for:
from www.newpig.com
Secondary containment is the only method of leak detection that can detect a “leak” without allowing a “release” to the environment. The environmental code of practice comprises a model set of technical requirements designed to protect the environment by preventing product. Preventive measures (e.g., secondary containment system); The purpose of the spcc rule is to prevent discharges of oil into. This directive identifies requirements for the storage of materials produced, generated (including wastes), or used by the upstream petroleum and geothermal resource. 100k+ visitors in the past month Maintenance and inspection requirements for: Where upstream petroleum sites use refined fuels for supplying vehicles, aircraft, emergency generators, or other similar equipment, then the. Secondary containment systems for underground piping, as applicable, are designed and installed so that leaks either accumulate in a containment.
Secondary Containment Solutions for 8 Areas Expert Advice
Secondary Containment Inspection Secondary containment is the only method of leak detection that can detect a “leak” without allowing a “release” to the environment. The environmental code of practice comprises a model set of technical requirements designed to protect the environment by preventing product. 100k+ visitors in the past month Where upstream petroleum sites use refined fuels for supplying vehicles, aircraft, emergency generators, or other similar equipment, then the. Secondary containment is the only method of leak detection that can detect a “leak” without allowing a “release” to the environment. Maintenance and inspection requirements for: The purpose of the spcc rule is to prevent discharges of oil into. Preventive measures (e.g., secondary containment system); Secondary containment systems for underground piping, as applicable, are designed and installed so that leaks either accumulate in a containment. This directive identifies requirements for the storage of materials produced, generated (including wastes), or used by the upstream petroleum and geothermal resource.
From dokumen.tips
(PDF) Secondary Containment & Spill Buckets Inspection, Testing Secondary Containment Inspection Secondary containment systems for underground piping, as applicable, are designed and installed so that leaks either accumulate in a containment. This directive identifies requirements for the storage of materials produced, generated (including wastes), or used by the upstream petroleum and geothermal resource. The purpose of the spcc rule is to prevent discharges of oil into. Maintenance and inspection requirements for:. Secondary Containment Inspection.
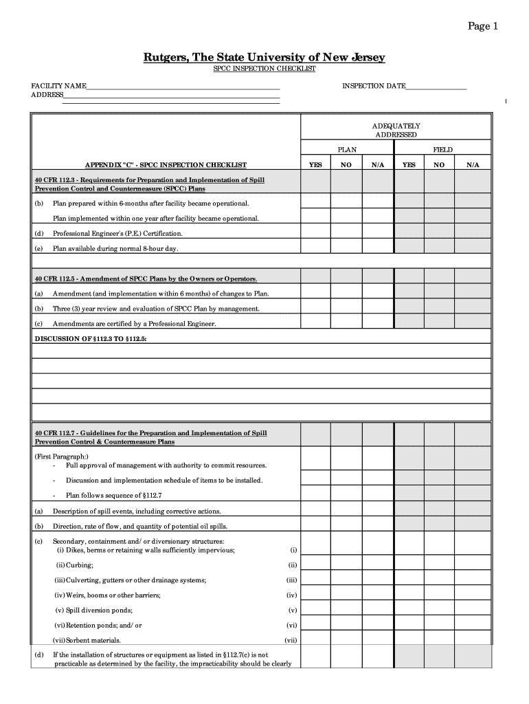
From issuu.com
Secondary Containment Testing Report Form by Los Angeles Fire Secondary Containment Inspection Maintenance and inspection requirements for: 100k+ visitors in the past month The environmental code of practice comprises a model set of technical requirements designed to protect the environment by preventing product. The purpose of the spcc rule is to prevent discharges of oil into. Secondary containment is the only method of leak detection that can detect a “leak” without allowing. Secondary Containment Inspection.
From www.slideserve.com
PPT R3 Oil Inspections PowerPoint Presentation, free download ID342172 Secondary Containment Inspection Secondary containment systems for underground piping, as applicable, are designed and installed so that leaks either accumulate in a containment. The purpose of the spcc rule is to prevent discharges of oil into. The environmental code of practice comprises a model set of technical requirements designed to protect the environment by preventing product. Preventive measures (e.g., secondary containment system); 100k+. Secondary Containment Inspection.
From www.pdffiller.com
Fillable Online SPCC INSPECTION CHECKLIST Fax Email Print pdfFiller Secondary Containment Inspection This directive identifies requirements for the storage of materials produced, generated (including wastes), or used by the upstream petroleum and geothermal resource. Secondary containment systems for underground piping, as applicable, are designed and installed so that leaks either accumulate in a containment. 100k+ visitors in the past month Where upstream petroleum sites use refined fuels for supplying vehicles, aircraft, emergency. Secondary Containment Inspection.
From www.newpig.com
Secondary Containment Requirements and Systems Expert Advice Secondary Containment Inspection 100k+ visitors in the past month Maintenance and inspection requirements for: This directive identifies requirements for the storage of materials produced, generated (including wastes), or used by the upstream petroleum and geothermal resource. Secondary containment systems for underground piping, as applicable, are designed and installed so that leaks either accumulate in a containment. Where upstream petroleum sites use refined fuels. Secondary Containment Inspection.
From www.newpig.com
Secondary Containment Systems & Regulations Expert Advice Secondary Containment Inspection 100k+ visitors in the past month Preventive measures (e.g., secondary containment system); This directive identifies requirements for the storage of materials produced, generated (including wastes), or used by the upstream petroleum and geothermal resource. Secondary containment is the only method of leak detection that can detect a “leak” without allowing a “release” to the environment. Where upstream petroleum sites use. Secondary Containment Inspection.
From www.slideserve.com
PPT R3 Oil Inspections PowerPoint Presentation, free download ID342172 Secondary Containment Inspection The purpose of the spcc rule is to prevent discharges of oil into. 100k+ visitors in the past month This directive identifies requirements for the storage of materials produced, generated (including wastes), or used by the upstream petroleum and geothermal resource. Secondary containment systems for underground piping, as applicable, are designed and installed so that leaks either accumulate in a. Secondary Containment Inspection.
From www.newpig.com
Secondary Containment Hazardous Chemicals Expert Advice Secondary Containment Inspection Secondary containment systems for underground piping, as applicable, are designed and installed so that leaks either accumulate in a containment. The environmental code of practice comprises a model set of technical requirements designed to protect the environment by preventing product. This directive identifies requirements for the storage of materials produced, generated (including wastes), or used by the upstream petroleum and. Secondary Containment Inspection.
From www.newpig.com
Calculate Secondary Containment Expert Advice Secondary Containment Inspection This directive identifies requirements for the storage of materials produced, generated (including wastes), or used by the upstream petroleum and geothermal resource. Preventive measures (e.g., secondary containment system); The purpose of the spcc rule is to prevent discharges of oil into. Secondary containment is the only method of leak detection that can detect a “leak” without allowing a “release” to. Secondary Containment Inspection.
From www.slideserve.com
PPT Overfill Equipment Inspections, Containment Sump and Spill Bucket Secondary Containment Inspection This directive identifies requirements for the storage of materials produced, generated (including wastes), or used by the upstream petroleum and geothermal resource. Maintenance and inspection requirements for: Secondary containment systems for underground piping, as applicable, are designed and installed so that leaks either accumulate in a containment. The purpose of the spcc rule is to prevent discharges of oil into.. Secondary Containment Inspection.
From a-c-t.com
Compliance ACT Environmental & Infrastructure Secondary Containment Inspection Preventive measures (e.g., secondary containment system); The environmental code of practice comprises a model set of technical requirements designed to protect the environment by preventing product. The purpose of the spcc rule is to prevent discharges of oil into. 100k+ visitors in the past month Maintenance and inspection requirements for: Secondary containment systems for underground piping, as applicable, are designed. Secondary Containment Inspection.
From www.youtube.com
10 minute guide to bunds and secondary containment (UK) YouTube Secondary Containment Inspection Secondary containment is the only method of leak detection that can detect a “leak” without allowing a “release” to the environment. The purpose of the spcc rule is to prevent discharges of oil into. The environmental code of practice comprises a model set of technical requirements designed to protect the environment by preventing product. Where upstream petroleum sites use refined. Secondary Containment Inspection.
From snohd.org
Labeling & Containment Snohomish County Health Department, WA Secondary Containment Inspection 100k+ visitors in the past month This directive identifies requirements for the storage of materials produced, generated (including wastes), or used by the upstream petroleum and geothermal resource. Secondary containment systems for underground piping, as applicable, are designed and installed so that leaks either accumulate in a containment. The environmental code of practice comprises a model set of technical requirements. Secondary Containment Inspection.
From www.secondarycontainment.org
WHAT IS SECONDARY CONTAINMENT? Secondary Containment Secondary Containment Inspection The purpose of the spcc rule is to prevent discharges of oil into. Secondary containment systems for underground piping, as applicable, are designed and installed so that leaks either accumulate in a containment. The environmental code of practice comprises a model set of technical requirements designed to protect the environment by preventing product. Preventive measures (e.g., secondary containment system); Maintenance. Secondary Containment Inspection.
From dandkmotorsports.com
Hazardous Waste Container Storage Area Inspection Checklist Dandk Secondary Containment Inspection Secondary containment systems for underground piping, as applicable, are designed and installed so that leaks either accumulate in a containment. The environmental code of practice comprises a model set of technical requirements designed to protect the environment by preventing product. Preventive measures (e.g., secondary containment system); 100k+ visitors in the past month This directive identifies requirements for the storage of. Secondary Containment Inspection.
From akpainting.com
Secondary Containment & Spill Prevention A&K Painting Secondary Containment Inspection 100k+ visitors in the past month The environmental code of practice comprises a model set of technical requirements designed to protect the environment by preventing product. This directive identifies requirements for the storage of materials produced, generated (including wastes), or used by the upstream petroleum and geothermal resource. The purpose of the spcc rule is to prevent discharges of oil. Secondary Containment Inspection.
From www.nsh.org
Tips from a CAP Inspector The Importance of Labeling Secondary Containment Inspection The environmental code of practice comprises a model set of technical requirements designed to protect the environment by preventing product. Preventive measures (e.g., secondary containment system); This directive identifies requirements for the storage of materials produced, generated (including wastes), or used by the upstream petroleum and geothermal resource. Maintenance and inspection requirements for: Secondary containment systems for underground piping, as. Secondary Containment Inspection.
From www.slideserve.com
PPT R3 Oil Inspections PowerPoint Presentation, free download ID342172 Secondary Containment Inspection The purpose of the spcc rule is to prevent discharges of oil into. Secondary containment systems for underground piping, as applicable, are designed and installed so that leaks either accumulate in a containment. Secondary containment is the only method of leak detection that can detect a “leak” without allowing a “release” to the environment. This directive identifies requirements for the. Secondary Containment Inspection.
From es.scribd.com
Panalpina 7Point Container Inspection Checklist Building Engineering Secondary Containment Inspection This directive identifies requirements for the storage of materials produced, generated (including wastes), or used by the upstream petroleum and geothermal resource. Secondary containment is the only method of leak detection that can detect a “leak” without allowing a “release” to the environment. The environmental code of practice comprises a model set of technical requirements designed to protect the environment. Secondary Containment Inspection.
From www.newpig.com
Secondary Containment Systems & Regulations Expert Advice Secondary Containment Inspection The environmental code of practice comprises a model set of technical requirements designed to protect the environment by preventing product. 100k+ visitors in the past month Maintenance and inspection requirements for: Secondary containment systems for underground piping, as applicable, are designed and installed so that leaks either accumulate in a containment. Preventive measures (e.g., secondary containment system); The purpose of. Secondary Containment Inspection.
From liquidsafety.com
Secondary Containment Liquid Safety Solutions Secondary Containment Inspection The environmental code of practice comprises a model set of technical requirements designed to protect the environment by preventing product. Maintenance and inspection requirements for: Preventive measures (e.g., secondary containment system); This directive identifies requirements for the storage of materials produced, generated (including wastes), or used by the upstream petroleum and geothermal resource. The purpose of the spcc rule is. Secondary Containment Inspection.
From www.newpig.com
Spill Containment vs Secondary Containment Expert Advice Secondary Containment Inspection Where upstream petroleum sites use refined fuels for supplying vehicles, aircraft, emergency generators, or other similar equipment, then the. The purpose of the spcc rule is to prevent discharges of oil into. Preventive measures (e.g., secondary containment system); Secondary containment is the only method of leak detection that can detect a “leak” without allowing a “release” to the environment. This. Secondary Containment Inspection.
From eagle.justrite.com
Understanding Secondary Containment in the Workplace Eagle Secondary Containment Inspection Secondary containment is the only method of leak detection that can detect a “leak” without allowing a “release” to the environment. The purpose of the spcc rule is to prevent discharges of oil into. The environmental code of practice comprises a model set of technical requirements designed to protect the environment by preventing product. Maintenance and inspection requirements for: Where. Secondary Containment Inspection.
From www.secondarycontainment.org
Advanced Primary and Secondary Containment Application Methods Secondary Containment Inspection The purpose of the spcc rule is to prevent discharges of oil into. Preventive measures (e.g., secondary containment system); Secondary containment systems for underground piping, as applicable, are designed and installed so that leaks either accumulate in a containment. Maintenance and inspection requirements for: Where upstream petroleum sites use refined fuels for supplying vehicles, aircraft, emergency generators, or other similar. Secondary Containment Inspection.
From www.newpig.com
Secondary Containment Solutions for 8 Areas Expert Advice Secondary Containment Inspection 100k+ visitors in the past month Where upstream petroleum sites use refined fuels for supplying vehicles, aircraft, emergency generators, or other similar equipment, then the. This directive identifies requirements for the storage of materials produced, generated (including wastes), or used by the upstream petroleum and geothermal resource. Maintenance and inspection requirements for: Secondary containment systems for underground piping, as applicable,. Secondary Containment Inspection.
From www.ikmconsulting.co.uk
Secondary Containment Engineers Archives IKM Consulting Secondary Containment Inspection This directive identifies requirements for the storage of materials produced, generated (including wastes), or used by the upstream petroleum and geothermal resource. 100k+ visitors in the past month Preventive measures (e.g., secondary containment system); Secondary containment systems for underground piping, as applicable, are designed and installed so that leaks either accumulate in a containment. Where upstream petroleum sites use refined. Secondary Containment Inspection.
From dokumen.tips
(PDF) Secondary Containment & Spill Buckets Inspection, Testing Secondary Containment Inspection The purpose of the spcc rule is to prevent discharges of oil into. Where upstream petroleum sites use refined fuels for supplying vehicles, aircraft, emergency generators, or other similar equipment, then the. Preventive measures (e.g., secondary containment system); 100k+ visitors in the past month The environmental code of practice comprises a model set of technical requirements designed to protect the. Secondary Containment Inspection.
From www.pdffiller.com
SECONDARY CONTAINMENT TESTING REPORT Doc Template pdfFiller Secondary Containment Inspection This directive identifies requirements for the storage of materials produced, generated (including wastes), or used by the upstream petroleum and geothermal resource. Where upstream petroleum sites use refined fuels for supplying vehicles, aircraft, emergency generators, or other similar equipment, then the. Preventive measures (e.g., secondary containment system); 100k+ visitors in the past month The environmental code of practice comprises a. Secondary Containment Inspection.
From www.slideserve.com
PPT R3 Oil Inspections PowerPoint Presentation, free download ID342172 Secondary Containment Inspection The environmental code of practice comprises a model set of technical requirements designed to protect the environment by preventing product. The purpose of the spcc rule is to prevent discharges of oil into. Maintenance and inspection requirements for: Secondary containment systems for underground piping, as applicable, are designed and installed so that leaks either accumulate in a containment. 100k+ visitors. Secondary Containment Inspection.
From titanenviro.com
Secondary Containment System Titan Environmental Containment Secondary Containment Inspection Secondary containment systems for underground piping, as applicable, are designed and installed so that leaks either accumulate in a containment. Maintenance and inspection requirements for: The environmental code of practice comprises a model set of technical requirements designed to protect the environment by preventing product. 100k+ visitors in the past month Where upstream petroleum sites use refined fuels for supplying. Secondary Containment Inspection.
From www.newpig.com
Creating Secondary Containment Systems Expert Advice Secondary Containment Inspection Preventive measures (e.g., secondary containment system); Where upstream petroleum sites use refined fuels for supplying vehicles, aircraft, emergency generators, or other similar equipment, then the. This directive identifies requirements for the storage of materials produced, generated (including wastes), or used by the upstream petroleum and geothermal resource. Secondary containment systems for underground piping, as applicable, are designed and installed so. Secondary Containment Inspection.
From www.newpig.com
Secondary Containment Requirements and Systems Expert Advice Secondary Containment Inspection Maintenance and inspection requirements for: Where upstream petroleum sites use refined fuels for supplying vehicles, aircraft, emergency generators, or other similar equipment, then the. The environmental code of practice comprises a model set of technical requirements designed to protect the environment by preventing product. Secondary containment is the only method of leak detection that can detect a “leak” without allowing. Secondary Containment Inspection.
From acmeboom.com
Secondary Containment What is it and how is it used? ACME Environmental Secondary Containment Inspection Secondary containment is the only method of leak detection that can detect a “leak” without allowing a “release” to the environment. Maintenance and inspection requirements for: This directive identifies requirements for the storage of materials produced, generated (including wastes), or used by the upstream petroleum and geothermal resource. The purpose of the spcc rule is to prevent discharges of oil. Secondary Containment Inspection.
From www.proform.ca
Secondary Containment PROFORM Secondary Containment Inspection This directive identifies requirements for the storage of materials produced, generated (including wastes), or used by the upstream petroleum and geothermal resource. Preventive measures (e.g., secondary containment system); Secondary containment is the only method of leak detection that can detect a “leak” without allowing a “release” to the environment. Secondary containment systems for underground piping, as applicable, are designed and. Secondary Containment Inspection.
From www.slideserve.com
PPT Training Requirements for Spill Prevention Control and Secondary Containment Inspection This directive identifies requirements for the storage of materials produced, generated (including wastes), or used by the upstream petroleum and geothermal resource. The purpose of the spcc rule is to prevent discharges of oil into. Secondary containment systems for underground piping, as applicable, are designed and installed so that leaks either accumulate in a containment. Preventive measures (e.g., secondary containment. Secondary Containment Inspection.