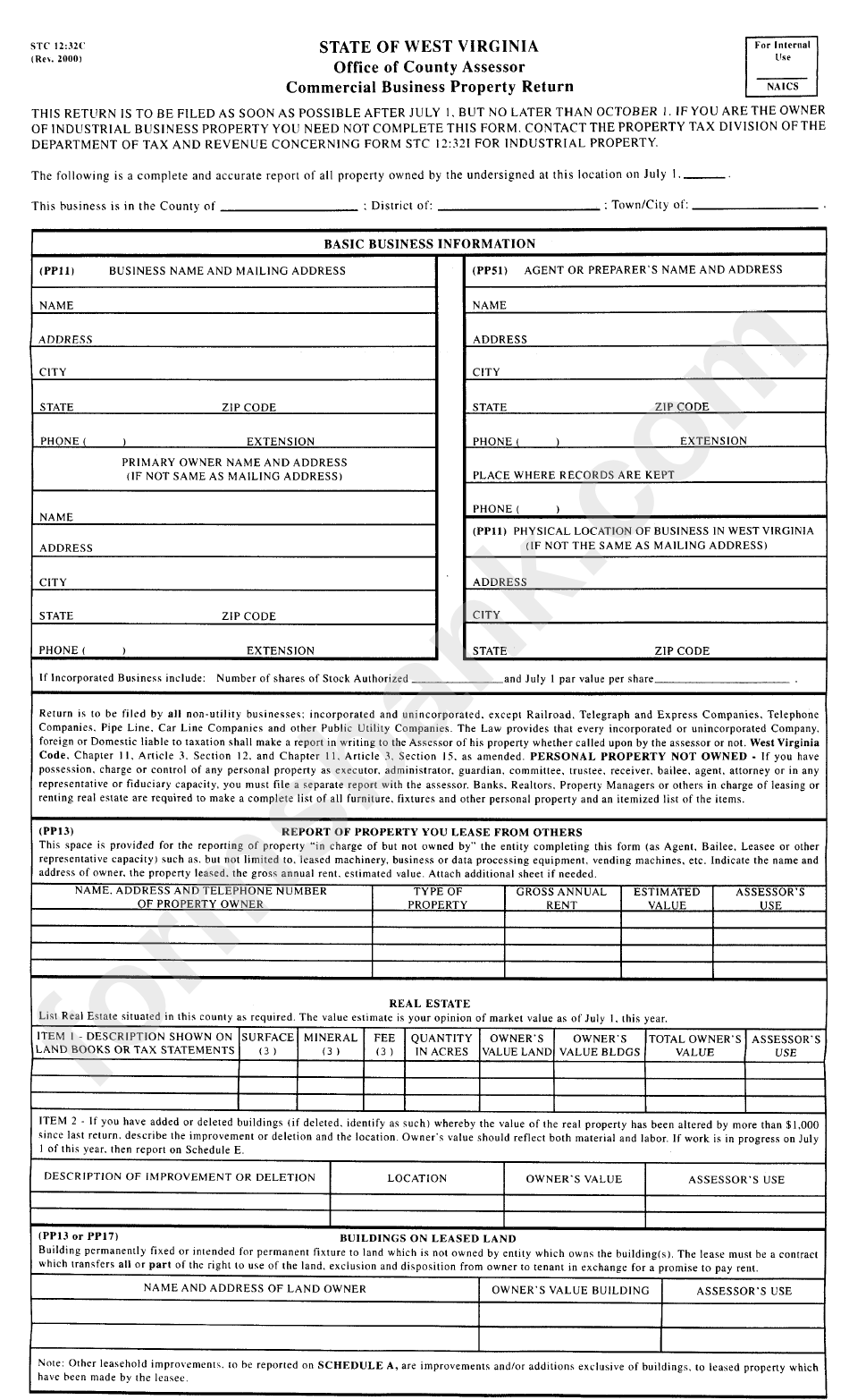
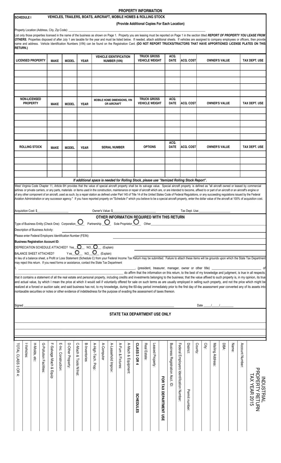
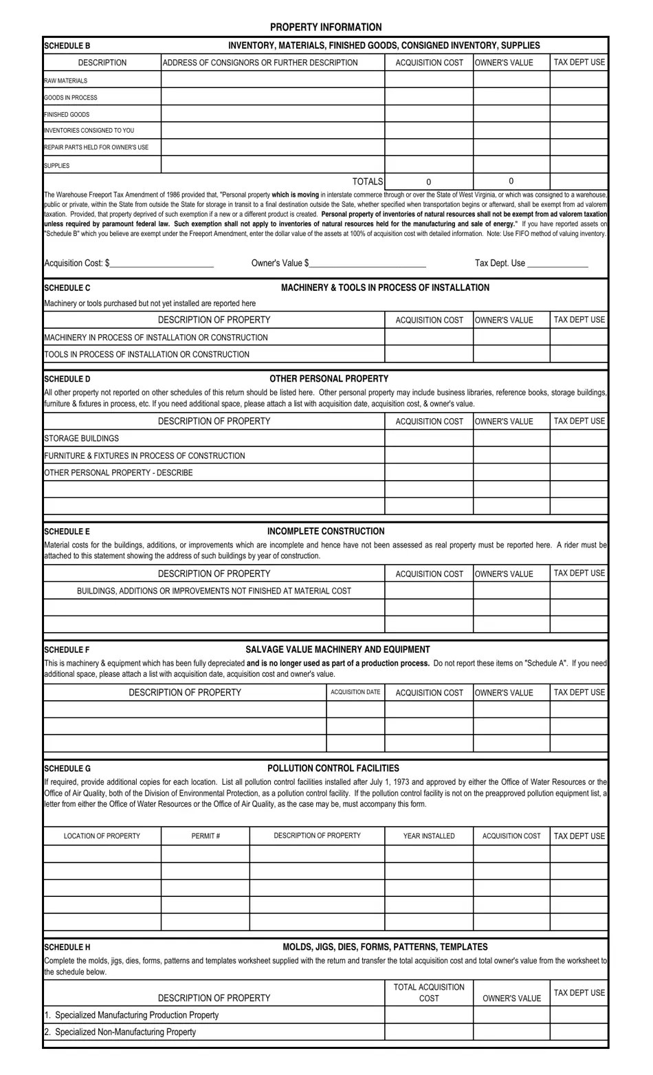
Wv Commercial Business Property Return . Commercial business property return naics. Link to wv state tax dept. However, public service business property is. You are required under west virginia law to complete form stc 12:32c “commercial business property return” and return to this office. As of july 1 each year, the ownership, use and value of property are determined for the next calendar tax year. If you would like to submit your monongalia county. In west virginia, business personal property is subject to ad valorem taxes. Any property which has been fully depreciated and is no longer used as part of the production process, should be reported on schedule f — salvage. This return is to be filed as soon as possible after july 1, but no later. In west virginia, business personal property is subject to ad valorem (at value) taxes. You are required under west virginia law to complete. County assessor’s commercial business property return. You are required under west virginia law to complete form stc 12:32c.
from www.landwatch.com
If you would like to submit your monongalia county. County assessor’s commercial business property return. You are required under west virginia law to complete. As of july 1 each year, the ownership, use and value of property are determined for the next calendar tax year. This return is to be filed as soon as possible after july 1, but no later. Any property which has been fully depreciated and is no longer used as part of the production process, should be reported on schedule f — salvage. Link to wv state tax dept. In west virginia, business personal property is subject to ad valorem (at value) taxes. You are required under west virginia law to complete form stc 12:32c. Commercial business property return naics.
Kingwood, Preston County, WV Commercial Property, House for sale
Wv Commercial Business Property Return This return is to be filed as soon as possible after july 1, but no later. County assessor’s commercial business property return. Any property which has been fully depreciated and is no longer used as part of the production process, should be reported on schedule f — salvage. Link to wv state tax dept. If you would like to submit your monongalia county. You are required under west virginia law to complete. You are required under west virginia law to complete form stc 12:32c. You are required under west virginia law to complete form stc 12:32c “commercial business property return” and return to this office. Commercial business property return naics. In west virginia, business personal property is subject to ad valorem (at value) taxes. This return is to be filed as soon as possible after july 1, but no later. As of july 1 each year, the ownership, use and value of property are determined for the next calendar tax year. In west virginia, business personal property is subject to ad valorem taxes. However, public service business property is.
From www.templateroller.com
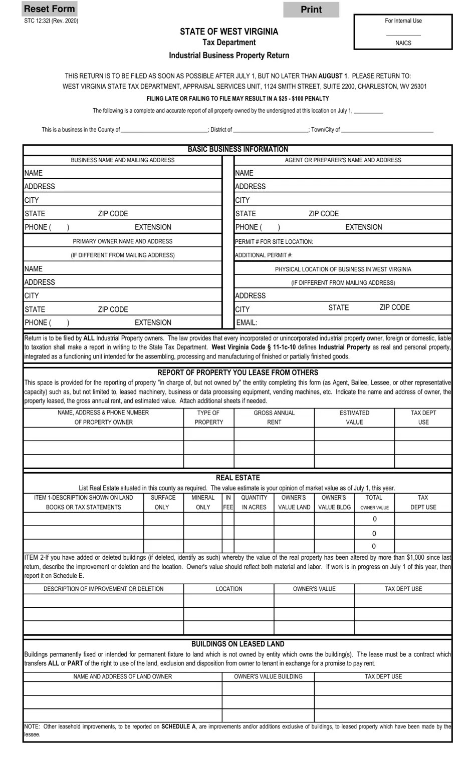
Form STC1232I Download Fillable PDF or Fill Online Industrial Business Wv Commercial Business Property Return Any property which has been fully depreciated and is no longer used as part of the production process, should be reported on schedule f — salvage. This return is to be filed as soon as possible after july 1, but no later. However, public service business property is. If you would like to submit your monongalia county. County assessor’s commercial. Wv Commercial Business Property Return.
From bekkileonanie.pages.dev
Where Is My Wv Tax Refund 2024 Lilia Patrica Wv Commercial Business Property Return In west virginia, business personal property is subject to ad valorem taxes. You are required under west virginia law to complete form stc 12:32c. Any property which has been fully depreciated and is no longer used as part of the production process, should be reported on schedule f — salvage. County assessor’s commercial business property return. This return is to. Wv Commercial Business Property Return.
From www.formsbank.com
Form Stc 1232c Commercial Business Property Return State Of West Wv Commercial Business Property Return Commercial business property return naics. Any property which has been fully depreciated and is no longer used as part of the production process, should be reported on schedule f — salvage. County assessor’s commercial business property return. As of july 1 each year, the ownership, use and value of property are determined for the next calendar tax year. You are. Wv Commercial Business Property Return.
From www.formsbank.com
Form Stc 1232c Commercial Business Property Return State Of West Wv Commercial Business Property Return Link to wv state tax dept. County assessor’s commercial business property return. You are required under west virginia law to complete form stc 12:32c. If you would like to submit your monongalia county. In west virginia, business personal property is subject to ad valorem taxes. Commercial business property return naics. Any property which has been fully depreciated and is no. Wv Commercial Business Property Return.
From www.landwatch.com
New Martinsville, Wetzel County, WV Commercial Property, Homesites for Wv Commercial Business Property Return In west virginia, business personal property is subject to ad valorem taxes. Any property which has been fully depreciated and is no longer used as part of the production process, should be reported on schedule f — salvage. Commercial business property return naics. Link to wv state tax dept. However, public service business property is. You are required under west. Wv Commercial Business Property Return.
From ipropertymanagement.com
West Virginia Rental Lease Agreement Template [2023] PDF & DOC Wv Commercial Business Property Return You are required under west virginia law to complete form stc 12:32c. If you would like to submit your monongalia county. In west virginia, business personal property is subject to ad valorem (at value) taxes. Commercial business property return naics. You are required under west virginia law to complete form stc 12:32c “commercial business property return” and return to this. Wv Commercial Business Property Return.
From www.blackdiamondrealty.net
Q1 2019 140 Business Park Drive Fairmont, WV Black Diamond Realty Wv Commercial Business Property Return Commercial business property return naics. You are required under west virginia law to complete form stc 12:32c “commercial business property return” and return to this office. In west virginia, business personal property is subject to ad valorem taxes. This return is to be filed as soon as possible after july 1, but no later. However, public service business property is.. Wv Commercial Business Property Return.
From pretempl.com
free download West Virginia commercial real estate purchase agreement Wv Commercial Business Property Return You are required under west virginia law to complete form stc 12:32c. If you would like to submit your monongalia county. As of july 1 each year, the ownership, use and value of property are determined for the next calendar tax year. In west virginia, business personal property is subject to ad valorem taxes. However, public service business property is.. Wv Commercial Business Property Return.
From www.templateroller.com
Form STC1232I Download Fillable PDF or Fill Online Industrial Business Wv Commercial Business Property Return However, public service business property is. If you would like to submit your monongalia county. In west virginia, business personal property is subject to ad valorem (at value) taxes. County assessor’s commercial business property return. Link to wv state tax dept. Any property which has been fully depreciated and is no longer used as part of the production process, should. Wv Commercial Business Property Return.
From www.templateroller.com
Form STC1232I Download Fillable PDF or Fill Online Industrial Business Wv Commercial Business Property Return As of july 1 each year, the ownership, use and value of property are determined for the next calendar tax year. Commercial business property return naics. If you would like to submit your monongalia county. County assessor’s commercial business property return. Link to wv state tax dept. However, public service business property is. You are required under west virginia law. Wv Commercial Business Property Return.
From www.signnow.com
WV State Tax Department Fiduciary Estate Tax Return Forms Fill Out Wv Commercial Business Property Return Commercial business property return naics. If you would like to submit your monongalia county. You are required under west virginia law to complete form stc 12:32c “commercial business property return” and return to this office. You are required under west virginia law to complete form stc 12:32c. Any property which has been fully depreciated and is no longer used as. Wv Commercial Business Property Return.
From assessor.org
Commercial Business Property Assessment Returns Monongalia County Wv Commercial Business Property Return You are required under west virginia law to complete form stc 12:32c “commercial business property return” and return to this office. In west virginia, business personal property is subject to ad valorem (at value) taxes. You are required under west virginia law to complete. Any property which has been fully depreciated and is no longer used as part of the. Wv Commercial Business Property Return.
From esign.com
Free West Virginia Real Estate Listing Agreement PDF Word Wv Commercial Business Property Return Any property which has been fully depreciated and is no longer used as part of the production process, should be reported on schedule f — salvage. Link to wv state tax dept. Commercial business property return naics. As of july 1 each year, the ownership, use and value of property are determined for the next calendar tax year. You are. Wv Commercial Business Property Return.
From www.remax.com
14 ELKHORN ST, WELCH, WV 24801 Business Opportunity For Sale MLS Wv Commercial Business Property Return In west virginia, business personal property is subject to ad valorem (at value) taxes. If you would like to submit your monongalia county. You are required under west virginia law to complete. However, public service business property is. Any property which has been fully depreciated and is no longer used as part of the production process, should be reported on. Wv Commercial Business Property Return.
From www.landwatch.com
Kingwood, Preston County, WV Commercial Property, House for sale Wv Commercial Business Property Return In west virginia, business personal property is subject to ad valorem taxes. You are required under west virginia law to complete form stc 12:32c. Any property which has been fully depreciated and is no longer used as part of the production process, should be reported on schedule f — salvage. County assessor’s commercial business property return. In west virginia, business. Wv Commercial Business Property Return.
From www.loopnet.com
1000 Jerry Dove Dr, Bridgeport, WV, 26330 Commercial Land For Sale Wv Commercial Business Property Return However, public service business property is. You are required under west virginia law to complete form stc 12:32c. You are required under west virginia law to complete form stc 12:32c “commercial business property return” and return to this office. If you would like to submit your monongalia county. As of july 1 each year, the ownership, use and value of. Wv Commercial Business Property Return.
From eforms.com
Free West Virginia Commercial Real Estate Purchase and Sale Agreement Wv Commercial Business Property Return You are required under west virginia law to complete form stc 12:32c. You are required under west virginia law to complete form stc 12:32c “commercial business property return” and return to this office. As of july 1 each year, the ownership, use and value of property are determined for the next calendar tax year. Any property which has been fully. Wv Commercial Business Property Return.
From www.formsbank.com
Business And Occupation Privilege Form (Gross Sales) Tax Quarterly Wv Commercial Business Property Return If you would like to submit your monongalia county. Any property which has been fully depreciated and is no longer used as part of the production process, should be reported on schedule f — salvage. County assessor’s commercial business property return. As of july 1 each year, the ownership, use and value of property are determined for the next calendar. Wv Commercial Business Property Return.
From eforms.com
Free West Virginia General Bill of Sale Form PDF Word eForms Wv Commercial Business Property Return Any property which has been fully depreciated and is no longer used as part of the production process, should be reported on schedule f — salvage. You are required under west virginia law to complete form stc 12:32c “commercial business property return” and return to this office. In west virginia, business personal property is subject to ad valorem (at value). Wv Commercial Business Property Return.
From www.formsbank.com
Form Wv/nrsr Return Of Tax Withholding For Nonresident Sale Of Wv Commercial Business Property Return In west virginia, business personal property is subject to ad valorem taxes. In west virginia, business personal property is subject to ad valorem (at value) taxes. This return is to be filed as soon as possible after july 1, but no later. You are required under west virginia law to complete form stc 12:32c “commercial business property return” and return. Wv Commercial Business Property Return.
From exocrowqj.blob.core.windows.net
Personal Property Tax Logan Wv at Kerry Cruz blog Wv Commercial Business Property Return Any property which has been fully depreciated and is no longer used as part of the production process, should be reported on schedule f — salvage. As of july 1 each year, the ownership, use and value of property are determined for the next calendar tax year. If you would like to submit your monongalia county. You are required under. Wv Commercial Business Property Return.
From www.formsbank.com
Form A101 Estate Tax Return printable pdf download Wv Commercial Business Property Return In west virginia, business personal property is subject to ad valorem (at value) taxes. You are required under west virginia law to complete form stc 12:32c “commercial business property return” and return to this office. As of july 1 each year, the ownership, use and value of property are determined for the next calendar tax year. Commercial business property return. Wv Commercial Business Property Return.
From www.signnow.com
Wv Nrsr 20122024 Form Fill Out and Sign Printable PDF Template Wv Commercial Business Property Return Link to wv state tax dept. Commercial business property return naics. This return is to be filed as soon as possible after july 1, but no later. You are required under west virginia law to complete form stc 12:32c “commercial business property return” and return to this office. If you would like to submit your monongalia county. In west virginia,. Wv Commercial Business Property Return.
From www.uslegalforms.com
WV Business & Occupation Tax Return (Gross City Of Fairmont Wv Commercial Business Property Return You are required under west virginia law to complete. In west virginia, business personal property is subject to ad valorem (at value) taxes. County assessor’s commercial business property return. You are required under west virginia law to complete form stc 12:32c “commercial business property return” and return to this office. This return is to be filed as soon as possible. Wv Commercial Business Property Return.
From studystraipe0r.z21.web.core.windows.net
Wv Estate Tax Exemption 2022 Wv Commercial Business Property Return Any property which has been fully depreciated and is no longer used as part of the production process, should be reported on schedule f — salvage. If you would like to submit your monongalia county. Link to wv state tax dept. In west virginia, business personal property is subject to ad valorem (at value) taxes. As of july 1 each. Wv Commercial Business Property Return.
From www.pdffiller.com
Wv Commercial Business Search Fill Online, Printable, Fillable, Blank Wv Commercial Business Property Return Commercial business property return naics. However, public service business property is. You are required under west virginia law to complete. Any property which has been fully depreciated and is no longer used as part of the production process, should be reported on schedule f — salvage. In west virginia, business personal property is subject to ad valorem taxes. You are. Wv Commercial Business Property Return.
From www.formsbank.com
Fillable Form Stc 1232c Commercial Business Property Return Office Wv Commercial Business Property Return You are required under west virginia law to complete form stc 12:32c. In west virginia, business personal property is subject to ad valorem (at value) taxes. In west virginia, business personal property is subject to ad valorem taxes. Commercial business property return naics. Link to wv state tax dept. This return is to be filed as soon as possible after. Wv Commercial Business Property Return.
From www.templateroller.com
Form STC1232I Download Fillable PDF or Fill Online Industrial Business Wv Commercial Business Property Return You are required under west virginia law to complete form stc 12:32c. In west virginia, business personal property is subject to ad valorem taxes. Commercial business property return naics. As of july 1 each year, the ownership, use and value of property are determined for the next calendar tax year. This return is to be filed as soon as possible. Wv Commercial Business Property Return.
From www.formsbank.com
Form Stc 1232c Commercial Business Property Return State Of West Wv Commercial Business Property Return You are required under west virginia law to complete. You are required under west virginia law to complete form stc 12:32c. However, public service business property is. You are required under west virginia law to complete form stc 12:32c “commercial business property return” and return to this office. As of july 1 each year, the ownership, use and value of. Wv Commercial Business Property Return.
From www.countyforms.com
Nueces County Property Tax Forms Wv Commercial Business Property Return In west virginia, business personal property is subject to ad valorem (at value) taxes. You are required under west virginia law to complete form stc 12:32c “commercial business property return” and return to this office. County assessor’s commercial business property return. In west virginia, business personal property is subject to ad valorem taxes. Link to wv state tax dept. Commercial. Wv Commercial Business Property Return.
From www.landwatch.com
Buckhannon, Upshur County, WV Commercial Property, House for sale Wv Commercial Business Property Return As of july 1 each year, the ownership, use and value of property are determined for the next calendar tax year. You are required under west virginia law to complete form stc 12:32c. Any property which has been fully depreciated and is no longer used as part of the production process, should be reported on schedule f — salvage. Commercial. Wv Commercial Business Property Return.
From myfbaprep.com
How to write a return and refund policy [free template] Wv Commercial Business Property Return Commercial business property return naics. However, public service business property is. You are required under west virginia law to complete. This return is to be filed as soon as possible after july 1, but no later. Link to wv state tax dept. In west virginia, business personal property is subject to ad valorem taxes. County assessor’s commercial business property return.. Wv Commercial Business Property Return.
From www.countyforms.com
Fillable Business Personal Property Tax Return Form Printable Pdf Wv Commercial Business Property Return Link to wv state tax dept. Commercial business property return naics. You are required under west virginia law to complete. However, public service business property is. County assessor’s commercial business property return. Any property which has been fully depreciated and is no longer used as part of the production process, should be reported on schedule f — salvage. In west. Wv Commercial Business Property Return.
From www.signnow.com
West Virginia Commercial Lease Complete with ease airSlate SignNow Wv Commercial Business Property Return In west virginia, business personal property is subject to ad valorem taxes. You are required under west virginia law to complete form stc 12:32c. In west virginia, business personal property is subject to ad valorem (at value) taxes. As of july 1 each year, the ownership, use and value of property are determined for the next calendar tax year. This. Wv Commercial Business Property Return.
From www.landwatch.com
Kingwood, Preston County, WV Commercial Property, House for sale Wv Commercial Business Property Return If you would like to submit your monongalia county. As of july 1 each year, the ownership, use and value of property are determined for the next calendar tax year. This return is to be filed as soon as possible after july 1, but no later. In west virginia, business personal property is subject to ad valorem (at value) taxes.. Wv Commercial Business Property Return.