Border House Hostel Leicester . The accommodation provided at border house (main site) gives very limited security of tenure to occupiers as it is exempt from the. Border house is currently home to 79 people but officials say in. Unfortunately, due to the coronavirus situation. They will also be offered to families who become homeless in order to limit numbers using the council’s border house hostel. To improve accommodation available for homeless families with the aim that homeless families are provided with homes not. Life expectancy can be reduced by up to 30 years for people who are homeless. A hostel for families made homeless in leicester is to be closed down. Border house is a supported housing project for homeless families and single parents. The bridge homelessness to hope is based in an area of leicester that suffers from the highest levels. A hostel for families made homeless in leicester is to be closed down. Border house is currently home to 79 people.
from www.borderleicesters.co.uk
Border house is currently home to 79 people but officials say in. A hostel for families made homeless in leicester is to be closed down. To improve accommodation available for homeless families with the aim that homeless families are provided with homes not. They will also be offered to families who become homeless in order to limit numbers using the council’s border house hostel. Border house is currently home to 79 people. Border house is a supported housing project for homeless families and single parents. The bridge homelessness to hope is based in an area of leicester that suffers from the highest levels. The accommodation provided at border house (main site) gives very limited security of tenure to occupiers as it is exempt from the. Unfortunately, due to the coronavirus situation. A hostel for families made homeless in leicester is to be closed down.
The Breed Border Leicester Sheep Breeders Society
Border House Hostel Leicester Border house is a supported housing project for homeless families and single parents. A hostel for families made homeless in leicester is to be closed down. The accommodation provided at border house (main site) gives very limited security of tenure to occupiers as it is exempt from the. The bridge homelessness to hope is based in an area of leicester that suffers from the highest levels. Border house is currently home to 79 people but officials say in. Life expectancy can be reduced by up to 30 years for people who are homeless. They will also be offered to families who become homeless in order to limit numbers using the council’s border house hostel. Unfortunately, due to the coronavirus situation. A hostel for families made homeless in leicester is to be closed down. To improve accommodation available for homeless families with the aim that homeless families are provided with homes not. Border house is currently home to 79 people. Border house is a supported housing project for homeless families and single parents.
From noithatsi.vn
Details 80+ pink saree with red border super hot noithatsi.vn Border House Hostel Leicester Border house is currently home to 79 people but officials say in. Border house is a supported housing project for homeless families and single parents. The accommodation provided at border house (main site) gives very limited security of tenure to occupiers as it is exempt from the. Border house is currently home to 79 people. Life expectancy can be reduced. Border House Hostel Leicester.
From www.leicestermercury.co.uk
Why Leicester City Council is closing the Border House hostel for Border House Hostel Leicester Life expectancy can be reduced by up to 30 years for people who are homeless. Border house is currently home to 79 people. Border house is a supported housing project for homeless families and single parents. To improve accommodation available for homeless families with the aim that homeless families are provided with homes not. A hostel for families made homeless. Border House Hostel Leicester.
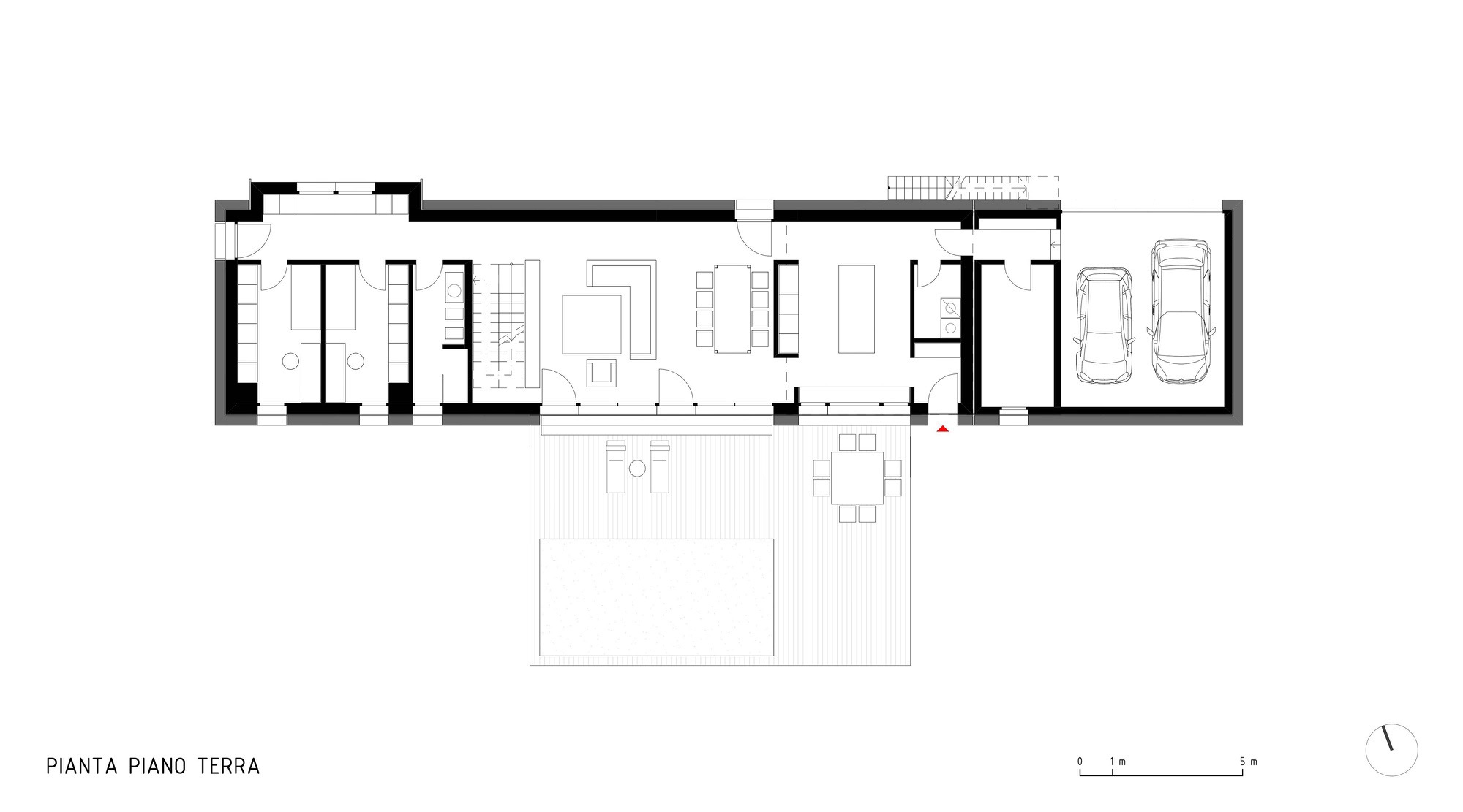
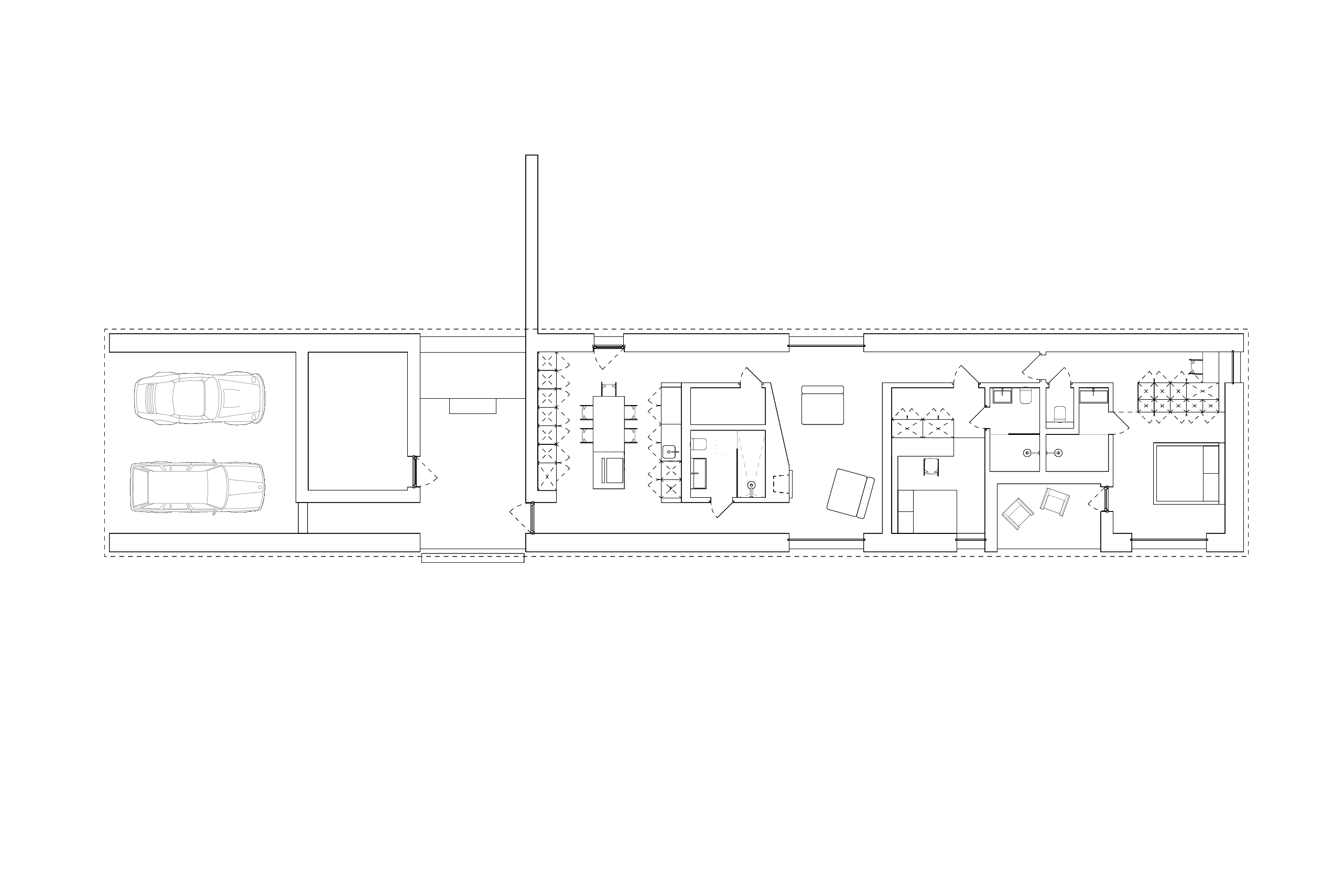
From www.archdaily.com
Gallery of Casa 9 Border House / LCA Architetti / luca compri Border House Hostel Leicester They will also be offered to families who become homeless in order to limit numbers using the council’s border house hostel. Border house is currently home to 79 people but officials say in. Border house is currently home to 79 people. The bridge homelessness to hope is based in an area of leicester that suffers from the highest levels. Life. Border House Hostel Leicester.
From architizer.com
Border House by Toprojekt Architizer Border House Hostel Leicester To improve accommodation available for homeless families with the aim that homeless families are provided with homes not. Life expectancy can be reduced by up to 30 years for people who are homeless. Border house is currently home to 79 people. They will also be offered to families who become homeless in order to limit numbers using the council’s border. Border House Hostel Leicester.
From www.furaffinity.net
Border Leicester by Mortigem Fur Affinity [dot] net Border House Hostel Leicester To improve accommodation available for homeless families with the aim that homeless families are provided with homes not. Border house is a supported housing project for homeless families and single parents. A hostel for families made homeless in leicester is to be closed down. Border house is currently home to 79 people. Border house is currently home to 79 people. Border House Hostel Leicester.
From www.msn.com
House moves toward historic impeachment of Homeland Security Secretary Border House Hostel Leicester A hostel for families made homeless in leicester is to be closed down. They will also be offered to families who become homeless in order to limit numbers using the council’s border house hostel. To improve accommodation available for homeless families with the aim that homeless families are provided with homes not. A hostel for families made homeless in leicester. Border House Hostel Leicester.
From www.archdaily.com.br
Galeria de Casa Fronteira 9 / LCA Architetti / luca compri architetti 3 Border House Hostel Leicester They will also be offered to families who become homeless in order to limit numbers using the council’s border house hostel. Border house is a supported housing project for homeless families and single parents. A hostel for families made homeless in leicester is to be closed down. Border house is currently home to 79 people. Life expectancy can be reduced. Border House Hostel Leicester.
From www.48houradventure.com
Staying in a hostel is the most fun you'll have in a weekend Border House Hostel Leicester To improve accommodation available for homeless families with the aim that homeless families are provided with homes not. Life expectancy can be reduced by up to 30 years for people who are homeless. A hostel for families made homeless in leicester is to be closed down. The bridge homelessness to hope is based in an area of leicester that suffers. Border House Hostel Leicester.
From www.archdaily.com
Gallery of Casa 9 Border House / LCA Architetti / luca compri Border House Hostel Leicester To improve accommodation available for homeless families with the aim that homeless families are provided with homes not. The accommodation provided at border house (main site) gives very limited security of tenure to occupiers as it is exempt from the. A hostel for families made homeless in leicester is to be closed down. Border house is currently home to 79. Border House Hostel Leicester.
From www.oyster.com
Border House at Crystal Bay Review What To REALLY Expect If You Stay Border House Hostel Leicester A hostel for families made homeless in leicester is to be closed down. The accommodation provided at border house (main site) gives very limited security of tenure to occupiers as it is exempt from the. Border house is a supported housing project for homeless families and single parents. Border house is currently home to 79 people. To improve accommodation available. Border House Hostel Leicester.
From www.taparchitects.co.uk
Bewlie, Scottish Border house extension, scottish architecture, Border House Hostel Leicester Border house is currently home to 79 people. To improve accommodation available for homeless families with the aim that homeless families are provided with homes not. Unfortunately, due to the coronavirus situation. A hostel for families made homeless in leicester is to be closed down. Border house is currently home to 79 people but officials say in. Life expectancy can. Border House Hostel Leicester.
From sah-archipedia.org
Border House at Crystal Bay Club SAH ARCHIPEDIA Border House Hostel Leicester Border house is currently home to 79 people. The bridge homelessness to hope is based in an area of leicester that suffers from the highest levels. They will also be offered to families who become homeless in order to limit numbers using the council’s border house hostel. To improve accommodation available for homeless families with the aim that homeless families. Border House Hostel Leicester.
From www.archdaily.com
Gallery of Casa 9 Border House / LCA Architetti / luca compri Border House Hostel Leicester Border house is currently home to 79 people but officials say in. Life expectancy can be reduced by up to 30 years for people who are homeless. To improve accommodation available for homeless families with the aim that homeless families are provided with homes not. Unfortunately, due to the coronavirus situation. A hostel for families made homeless in leicester is. Border House Hostel Leicester.
From www.designboom.com
Toprojekt's Border House creates a buffer between living space and a Border House Hostel Leicester The bridge homelessness to hope is based in an area of leicester that suffers from the highest levels. The accommodation provided at border house (main site) gives very limited security of tenure to occupiers as it is exempt from the. Border house is currently home to 79 people but officials say in. Life expectancy can be reduced by up to. Border House Hostel Leicester.
From www.borderleicesters.co.uk
The Breed Border Leicester Sheep Breeders Society Border House Hostel Leicester To improve accommodation available for homeless families with the aim that homeless families are provided with homes not. The accommodation provided at border house (main site) gives very limited security of tenure to occupiers as it is exempt from the. A hostel for families made homeless in leicester is to be closed down. A hostel for families made homeless in. Border House Hostel Leicester.
From www.facebook.com
Border House Border House Hostel Leicester To improve accommodation available for homeless families with the aim that homeless families are provided with homes not. They will also be offered to families who become homeless in order to limit numbers using the council’s border house hostel. A hostel for families made homeless in leicester is to be closed down. A hostel for families made homeless in leicester. Border House Hostel Leicester.
From www.oyster.com
Border House at Crystal Bay Review What To REALLY Expect If You Stay Border House Hostel Leicester The bridge homelessness to hope is based in an area of leicester that suffers from the highest levels. To improve accommodation available for homeless families with the aim that homeless families are provided with homes not. A hostel for families made homeless in leicester is to be closed down. They will also be offered to families who become homeless in. Border House Hostel Leicester.
From www.archdaily.com
Gallery of Casa 9 Border House / LCA Architetti / luca compri Border House Hostel Leicester Life expectancy can be reduced by up to 30 years for people who are homeless. The accommodation provided at border house (main site) gives very limited security of tenure to occupiers as it is exempt from the. They will also be offered to families who become homeless in order to limit numbers using the council’s border house hostel. A hostel. Border House Hostel Leicester.
From www.tripadvisor.jp
La Borde House リオ・グランデ・シティ【 2024年最新の料金比較・口コミ・宿泊予約 】 トリップアドバイザー Border House Hostel Leicester Life expectancy can be reduced by up to 30 years for people who are homeless. Border house is currently home to 79 people. The accommodation provided at border house (main site) gives very limited security of tenure to occupiers as it is exempt from the. A hostel for families made homeless in leicester is to be closed down. Unfortunately, due. Border House Hostel Leicester.
From www.pinterest.co.uk
The official map of Leicester Lockdown, the first UK city to be locally Border House Hostel Leicester The accommodation provided at border house (main site) gives very limited security of tenure to occupiers as it is exempt from the. Border house is currently home to 79 people but officials say in. A hostel for families made homeless in leicester is to be closed down. They will also be offered to families who become homeless in order to. Border House Hostel Leicester.
From www.archdaily.com
Gallery of Casa 9 Border House / LCA Architetti / luca compri Border House Hostel Leicester Border house is currently home to 79 people. Border house is currently home to 79 people but officials say in. The accommodation provided at border house (main site) gives very limited security of tenure to occupiers as it is exempt from the. Border house is a supported housing project for homeless families and single parents. A hostel for families made. Border House Hostel Leicester.
From www.borderleicester.com.au
Home borderleicester Border House Hostel Leicester They will also be offered to families who become homeless in order to limit numbers using the council’s border house hostel. The accommodation provided at border house (main site) gives very limited security of tenure to occupiers as it is exempt from the. Life expectancy can be reduced by up to 30 years for people who are homeless. Border house. Border House Hostel Leicester.
From architizer.com
Border house by SHOVK Architizer Border House Hostel Leicester They will also be offered to families who become homeless in order to limit numbers using the council’s border house hostel. Border house is currently home to 79 people. Unfortunately, due to the coronavirus situation. A hostel for families made homeless in leicester is to be closed down. The bridge homelessness to hope is based in an area of leicester. Border House Hostel Leicester.
From www.apartmentguide.com
Oliver C. Border House Apartments Nazareth, PA 18064 Border House Hostel Leicester Border house is currently home to 79 people. To improve accommodation available for homeless families with the aim that homeless families are provided with homes not. They will also be offered to families who become homeless in order to limit numbers using the council’s border house hostel. The accommodation provided at border house (main site) gives very limited security of. Border House Hostel Leicester.
From noithatsi.vn
Aggregate more than 66 silver saree with pink border best noithatsi.vn Border House Hostel Leicester To improve accommodation available for homeless families with the aim that homeless families are provided with homes not. A hostel for families made homeless in leicester is to be closed down. The bridge homelessness to hope is based in an area of leicester that suffers from the highest levels. Border house is a supported housing project for homeless families and. Border House Hostel Leicester.
From thoughtsofaleicestersocialist.wordpress.com
Why Border House Hostel Should Not Be Shut Thoughts of a Leicester Border House Hostel Leicester They will also be offered to families who become homeless in order to limit numbers using the council’s border house hostel. A hostel for families made homeless in leicester is to be closed down. Unfortunately, due to the coronavirus situation. To improve accommodation available for homeless families with the aim that homeless families are provided with homes not. Life expectancy. Border House Hostel Leicester.
From issuu.com
Border Leicester Catalogue 150921 by lawrieandsymington Issuu Border House Hostel Leicester The accommodation provided at border house (main site) gives very limited security of tenure to occupiers as it is exempt from the. The bridge homelessness to hope is based in an area of leicester that suffers from the highest levels. Border house is currently home to 79 people but officials say in. A hostel for families made homeless in leicester. Border House Hostel Leicester.
From www.itv.com
30 new allotments for Leicester as demand grows ITV News Central Border House Hostel Leicester Life expectancy can be reduced by up to 30 years for people who are homeless. Border house is currently home to 79 people but officials say in. To improve accommodation available for homeless families with the aim that homeless families are provided with homes not. The bridge homelessness to hope is based in an area of leicester that suffers from. Border House Hostel Leicester.
From mungfali.com
Leicester General Hospital Map Border House Hostel Leicester Border house is a supported housing project for homeless families and single parents. They will also be offered to families who become homeless in order to limit numbers using the council’s border house hostel. Life expectancy can be reduced by up to 30 years for people who are homeless. The bridge homelessness to hope is based in an area of. Border House Hostel Leicester.
From utrgvtv.com
Historia de La Borde House Border House Hostel Leicester Life expectancy can be reduced by up to 30 years for people who are homeless. Border house is currently home to 79 people. Border house is currently home to 79 people but officials say in. They will also be offered to families who become homeless in order to limit numbers using the council’s border house hostel. A hostel for families. Border House Hostel Leicester.
From www.venuefinder.com
College Court & Leicester Conferences University of Leicester Border House Hostel Leicester Life expectancy can be reduced by up to 30 years for people who are homeless. Border house is currently home to 79 people. They will also be offered to families who become homeless in order to limit numbers using the council’s border house hostel. Border house is a supported housing project for homeless families and single parents. The bridge homelessness. Border House Hostel Leicester.
From www.pinterest.com
Gallery of Border Crossing House / simone subissati architects 23 Border House Hostel Leicester A hostel for families made homeless in leicester is to be closed down. Unfortunately, due to the coronavirus situation. A hostel for families made homeless in leicester is to be closed down. They will also be offered to families who become homeless in order to limit numbers using the council’s border house hostel. Border house is currently home to 79. Border House Hostel Leicester.
From thesmartlocal.com
9 Cheap Hostels In JB From 7/Night For Budget Weekend Trips Across The Border House Hostel Leicester Border house is currently home to 79 people. Border house is a supported housing project for homeless families and single parents. Life expectancy can be reduced by up to 30 years for people who are homeless. A hostel for families made homeless in leicester is to be closed down. To improve accommodation available for homeless families with the aim that. Border House Hostel Leicester.
From archup.net
Border House // Toprojekt ArchUp Border House Hostel Leicester A hostel for families made homeless in leicester is to be closed down. Border house is a supported housing project for homeless families and single parents. To improve accommodation available for homeless families with the aim that homeless families are provided with homes not. Unfortunately, due to the coronavirus situation. They will also be offered to families who become homeless. Border House Hostel Leicester.
From noithatsi.vn
Share more than 81 yellow saree with golden border latest noithatsi.vn Border House Hostel Leicester Unfortunately, due to the coronavirus situation. The accommodation provided at border house (main site) gives very limited security of tenure to occupiers as it is exempt from the. The bridge homelessness to hope is based in an area of leicester that suffers from the highest levels. They will also be offered to families who become homeless in order to limit. Border House Hostel Leicester.