Planning Definition Of Raised Platform . If you want to install decking or a raised platform in the garden of your house or flat, you may need. The only exceptions to this are for. A balcony is understood to be a platform with a rail, balustrade or parapet projecting outside an upper storey of a building. Paragraph e.1.(h) of the gdpo states that the development is not permitted if it would include the construction or provision of a. Verandas, balconies and raised platforms are not permitted development and will require planning permission. In many cases, you do not need planning permission for decking or raised platforms in your garden. The technical guide suggests that a juliet balcony. A raised platform is defined in the general issues section of this document, as any platform that has a height of more than 0.3. Balconies, verandas and raised platforms will often require planning permission as they do not fall under permitted development rights.
from dret.net
Paragraph e.1.(h) of the gdpo states that the development is not permitted if it would include the construction or provision of a. Balconies, verandas and raised platforms will often require planning permission as they do not fall under permitted development rights. The only exceptions to this are for. The technical guide suggests that a juliet balcony. Verandas, balconies and raised platforms are not permitted development and will require planning permission. A balcony is understood to be a platform with a rail, balustrade or parapet projecting outside an upper storey of a building. In many cases, you do not need planning permission for decking or raised platforms in your garden. If you want to install decking or a raised platform in the garden of your house or flat, you may need. A raised platform is defined in the general issues section of this document, as any platform that has a height of more than 0.3.
Platform Economy The Short Game and the Long Game ; Erik Wilde (dret
Planning Definition Of Raised Platform If you want to install decking or a raised platform in the garden of your house or flat, you may need. Balconies, verandas and raised platforms will often require planning permission as they do not fall under permitted development rights. Verandas, balconies and raised platforms are not permitted development and will require planning permission. In many cases, you do not need planning permission for decking or raised platforms in your garden. If you want to install decking or a raised platform in the garden of your house or flat, you may need. Paragraph e.1.(h) of the gdpo states that the development is not permitted if it would include the construction or provision of a. The only exceptions to this are for. A raised platform is defined in the general issues section of this document, as any platform that has a height of more than 0.3. The technical guide suggests that a juliet balcony. A balcony is understood to be a platform with a rail, balustrade or parapet projecting outside an upper storey of a building.
From askfilo.com
22. Top surface of a raised platform is in the shape of a regular octagon.. Planning Definition Of Raised Platform If you want to install decking or a raised platform in the garden of your house or flat, you may need. Paragraph e.1.(h) of the gdpo states that the development is not permitted if it would include the construction or provision of a. The technical guide suggests that a juliet balcony. A raised platform is defined in the general issues. Planning Definition Of Raised Platform.
From medium.com
A Strategist’s Guide to Platform Thinking Eleanor Kolossovski Medium Planning Definition Of Raised Platform Paragraph e.1.(h) of the gdpo states that the development is not permitted if it would include the construction or provision of a. A raised platform is defined in the general issues section of this document, as any platform that has a height of more than 0.3. Verandas, balconies and raised platforms are not permitted development and will require planning permission.. Planning Definition Of Raised Platform.
From buildersvilla.com
How to build a raised platform Builders Villa Planning Definition Of Raised Platform If you want to install decking or a raised platform in the garden of your house or flat, you may need. Balconies, verandas and raised platforms will often require planning permission as they do not fall under permitted development rights. A raised platform is defined in the general issues section of this document, as any platform that has a height. Planning Definition Of Raised Platform.
From dictionary.langeek.co
Definition & Meaning of "Platform" LanGeek Planning Definition Of Raised Platform Balconies, verandas and raised platforms will often require planning permission as they do not fall under permitted development rights. If you want to install decking or a raised platform in the garden of your house or flat, you may need. In many cases, you do not need planning permission for decking or raised platforms in your garden. The technical guide. Planning Definition Of Raised Platform.
From www.reddit.com
Help with building a raised platform r/DIY Planning Definition Of Raised Platform In many cases, you do not need planning permission for decking or raised platforms in your garden. Paragraph e.1.(h) of the gdpo states that the development is not permitted if it would include the construction or provision of a. If you want to install decking or a raised platform in the garden of your house or flat, you may need.. Planning Definition Of Raised Platform.
From www.scribd.com
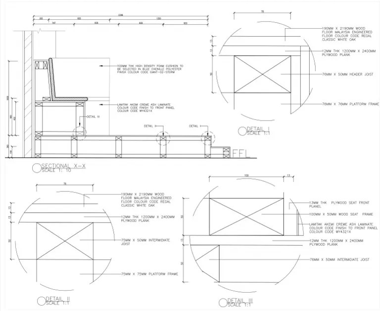
Detail of Raised Platform at Banquet Seating PDF Planning Definition Of Raised Platform A raised platform is defined in the general issues section of this document, as any platform that has a height of more than 0.3. In many cases, you do not need planning permission for decking or raised platforms in your garden. Verandas, balconies and raised platforms are not permitted development and will require planning permission. Paragraph e.1.(h) of the gdpo. Planning Definition Of Raised Platform.
From www.sharptruck.com
Flated AirDeck Inflatable Raised Platform MidSize 5' Bed Planning Definition Of Raised Platform If you want to install decking or a raised platform in the garden of your house or flat, you may need. Paragraph e.1.(h) of the gdpo states that the development is not permitted if it would include the construction or provision of a. The technical guide suggests that a juliet balcony. The only exceptions to this are for. Verandas, balconies. Planning Definition Of Raised Platform.
From www.alamy.com
Raised platform Stock Vector Images Alamy Planning Definition Of Raised Platform A balcony is understood to be a platform with a rail, balustrade or parapet projecting outside an upper storey of a building. Balconies, verandas and raised platforms will often require planning permission as they do not fall under permitted development rights. Paragraph e.1.(h) of the gdpo states that the development is not permitted if it would include the construction or. Planning Definition Of Raised Platform.
From www.freepik.com
Premium Photo This is a 3D rendering of a pink room with a concrete Planning Definition Of Raised Platform In many cases, you do not need planning permission for decking or raised platforms in your garden. The only exceptions to this are for. A balcony is understood to be a platform with a rail, balustrade or parapet projecting outside an upper storey of a building. If you want to install decking or a raised platform in the garden of. Planning Definition Of Raised Platform.
From www.alamy.com
The workers on a raised platform, lifting off a large, rectangular Planning Definition Of Raised Platform Paragraph e.1.(h) of the gdpo states that the development is not permitted if it would include the construction or provision of a. The only exceptions to this are for. A balcony is understood to be a platform with a rail, balustrade or parapet projecting outside an upper storey of a building. If you want to install decking or a raised. Planning Definition Of Raised Platform.
From www.brafton.com
Marketing Platform Definition (+ How To Choose Yours) Brafton Planning Definition Of Raised Platform In many cases, you do not need planning permission for decking or raised platforms in your garden. The technical guide suggests that a juliet balcony. A raised platform is defined in the general issues section of this document, as any platform that has a height of more than 0.3. The only exceptions to this are for. Balconies, verandas and raised. Planning Definition Of Raised Platform.
From www.bankinghub.eu
Platforms—Definition and success factors BankingHub Planning Definition Of Raised Platform A raised platform is defined in the general issues section of this document, as any platform that has a height of more than 0.3. The technical guide suggests that a juliet balcony. In many cases, you do not need planning permission for decking or raised platforms in your garden. A balcony is understood to be a platform with a rail,. Planning Definition Of Raised Platform.
From forum.buildhub.org.uk
Raised decking platform pics Landscaping, Decking & Patios Planning Definition Of Raised Platform A balcony is understood to be a platform with a rail, balustrade or parapet projecting outside an upper storey of a building. If you want to install decking or a raised platform in the garden of your house or flat, you may need. Paragraph e.1.(h) of the gdpo states that the development is not permitted if it would include the. Planning Definition Of Raised Platform.
From www.youtube.com
Building Platform To Raise A Bathtub YouTube Planning Definition Of Raised Platform A raised platform is defined in the general issues section of this document, as any platform that has a height of more than 0.3. Balconies, verandas and raised platforms will often require planning permission as they do not fall under permitted development rights. A balcony is understood to be a platform with a rail, balustrade or parapet projecting outside an. Planning Definition Of Raised Platform.
From www.gartner.de
Was ist Platform Engineering und wie funktioniert es? Planning Definition Of Raised Platform Balconies, verandas and raised platforms will often require planning permission as they do not fall under permitted development rights. The only exceptions to this are for. If you want to install decking or a raised platform in the garden of your house or flat, you may need. The technical guide suggests that a juliet balcony. A raised platform is defined. Planning Definition Of Raised Platform.
From www.researchgate.net
Platform planning process. Download Scientific Diagram Planning Definition Of Raised Platform Verandas, balconies and raised platforms are not permitted development and will require planning permission. The technical guide suggests that a juliet balcony. If you want to install decking or a raised platform in the garden of your house or flat, you may need. A balcony is understood to be a platform with a rail, balustrade or parapet projecting outside an. Planning Definition Of Raised Platform.
From viewfloor.co
Floor Loading Capacity Definition Viewfloor.co Planning Definition Of Raised Platform Paragraph e.1.(h) of the gdpo states that the development is not permitted if it would include the construction or provision of a. A raised platform is defined in the general issues section of this document, as any platform that has a height of more than 0.3. Verandas, balconies and raised platforms are not permitted development and will require planning permission.. Planning Definition Of Raised Platform.
From www.azonano.com
How to Choose the Right Raised Floor Platform Planning Definition Of Raised Platform In many cases, you do not need planning permission for decking or raised platforms in your garden. The technical guide suggests that a juliet balcony. Verandas, balconies and raised platforms are not permitted development and will require planning permission. The only exceptions to this are for. Balconies, verandas and raised platforms will often require planning permission as they do not. Planning Definition Of Raised Platform.
From www.collinsdictionary.com
Platform definition and meaning Collins English Dictionary Planning Definition Of Raised Platform The only exceptions to this are for. A raised platform is defined in the general issues section of this document, as any platform that has a height of more than 0.3. The technical guide suggests that a juliet balcony. Paragraph e.1.(h) of the gdpo states that the development is not permitted if it would include the construction or provision of. Planning Definition Of Raised Platform.
From www.researchgate.net
Platform planning process. Download Scientific Diagram Planning Definition Of Raised Platform A raised platform is defined in the general issues section of this document, as any platform that has a height of more than 0.3. Paragraph e.1.(h) of the gdpo states that the development is not permitted if it would include the construction or provision of a. If you want to install decking or a raised platform in the garden of. Planning Definition Of Raised Platform.
From www.aliexpress.com
Mobilescaffoldliftelectricfoldingscaffoldremotecontrolraised Planning Definition Of Raised Platform The only exceptions to this are for. If you want to install decking or a raised platform in the garden of your house or flat, you may need. Balconies, verandas and raised platforms will often require planning permission as they do not fall under permitted development rights. In many cases, you do not need planning permission for decking or raised. Planning Definition Of Raised Platform.
From brainly.ph
8. A is a raised platform used to hold workers and materials during Planning Definition Of Raised Platform Paragraph e.1.(h) of the gdpo states that the development is not permitted if it would include the construction or provision of a. A balcony is understood to be a platform with a rail, balustrade or parapet projecting outside an upper storey of a building. In many cases, you do not need planning permission for decking or raised platforms in your. Planning Definition Of Raised Platform.
From chieftalk.chiefarchitect.com
How To Build a Framed Raised Platform Within a Room? General Q & A Planning Definition Of Raised Platform A raised platform is defined in the general issues section of this document, as any platform that has a height of more than 0.3. If you want to install decking or a raised platform in the garden of your house or flat, you may need. Balconies, verandas and raised platforms will often require planning permission as they do not fall. Planning Definition Of Raised Platform.
From evbn.org
Top 11 enterprise resource planning in 2022 EUVietnam Business Planning Definition Of Raised Platform If you want to install decking or a raised platform in the garden of your house or flat, you may need. The technical guide suggests that a juliet balcony. Paragraph e.1.(h) of the gdpo states that the development is not permitted if it would include the construction or provision of a. The only exceptions to this are for. A raised. Planning Definition Of Raised Platform.
From dret.net
Platform Economy The Short Game and the Long Game ; Erik Wilde (dret Planning Definition Of Raised Platform A raised platform is defined in the general issues section of this document, as any platform that has a height of more than 0.3. The technical guide suggests that a juliet balcony. Verandas, balconies and raised platforms are not permitted development and will require planning permission. The only exceptions to this are for. If you want to install decking or. Planning Definition Of Raised Platform.
From www.dreamstime.com
Empty Working Platform Suspended from Crane in Andalusian Sunshine Planning Definition Of Raised Platform Paragraph e.1.(h) of the gdpo states that the development is not permitted if it would include the construction or provision of a. In many cases, you do not need planning permission for decking or raised platforms in your garden. The only exceptions to this are for. The technical guide suggests that a juliet balcony. A balcony is understood to be. Planning Definition Of Raised Platform.
From artofscalability.com
The Platform Mindset AKF Partners Planning Definition Of Raised Platform The technical guide suggests that a juliet balcony. If you want to install decking or a raised platform in the garden of your house or flat, you may need. Verandas, balconies and raised platforms are not permitted development and will require planning permission. Paragraph e.1.(h) of the gdpo states that the development is not permitted if it would include the. Planning Definition Of Raised Platform.
From study.com
Political Platform Definition, Purpose & Examples Lesson Planning Definition Of Raised Platform If you want to install decking or a raised platform in the garden of your house or flat, you may need. Paragraph e.1.(h) of the gdpo states that the development is not permitted if it would include the construction or provision of a. The technical guide suggests that a juliet balcony. The only exceptions to this are for. A raised. Planning Definition Of Raised Platform.
From goliftandpress.com
Raised Belt Squat Platform for Efficient Strength Training Planning Definition Of Raised Platform A raised platform is defined in the general issues section of this document, as any platform that has a height of more than 0.3. Verandas, balconies and raised platforms are not permitted development and will require planning permission. If you want to install decking or a raised platform in the garden of your house or flat, you may need. The. Planning Definition Of Raised Platform.
From www.unimac.co.uk
Raised Height Work Platform Planning Definition Of Raised Platform Balconies, verandas and raised platforms will often require planning permission as they do not fall under permitted development rights. Verandas, balconies and raised platforms are not permitted development and will require planning permission. Paragraph e.1.(h) of the gdpo states that the development is not permitted if it would include the construction or provision of a. If you want to install. Planning Definition Of Raised Platform.
From www.youtube.com
PLATFORM meaning, definition & pronunciation What is PLATFORM? How Planning Definition Of Raised Platform In many cases, you do not need planning permission for decking or raised platforms in your garden. Balconies, verandas and raised platforms will often require planning permission as they do not fall under permitted development rights. The technical guide suggests that a juliet balcony. A raised platform is defined in the general issues section of this document, as any platform. Planning Definition Of Raised Platform.
From forum.buildhub.org.uk
Raised decking platform pics Landscaping, Decking & Patios Planning Definition Of Raised Platform Balconies, verandas and raised platforms will often require planning permission as they do not fall under permitted development rights. The only exceptions to this are for. A balcony is understood to be a platform with a rail, balustrade or parapet projecting outside an upper storey of a building. A raised platform is defined in the general issues section of this. Planning Definition Of Raised Platform.
From www.ofdesign.net
Raised platform in the structure Interior Design Ideas Ofdesign Planning Definition Of Raised Platform Paragraph e.1.(h) of the gdpo states that the development is not permitted if it would include the construction or provision of a. Verandas, balconies and raised platforms are not permitted development and will require planning permission. The only exceptions to this are for. The technical guide suggests that a juliet balcony. If you want to install decking or a raised. Planning Definition Of Raised Platform.
From naihaps.com
Taylor Swift gets stuck on platform during Dublin concert Naihaps Planning Definition Of Raised Platform The only exceptions to this are for. If you want to install decking or a raised platform in the garden of your house or flat, you may need. The technical guide suggests that a juliet balcony. Paragraph e.1.(h) of the gdpo states that the development is not permitted if it would include the construction or provision of a. A raised. Planning Definition Of Raised Platform.
From www.walmart.com
Bed Frames for Heavy People Tall Platform Bed Frame Raised Platform Bed Planning Definition Of Raised Platform If you want to install decking or a raised platform in the garden of your house or flat, you may need. Verandas, balconies and raised platforms are not permitted development and will require planning permission. Paragraph e.1.(h) of the gdpo states that the development is not permitted if it would include the construction or provision of a. The only exceptions. Planning Definition Of Raised Platform.