Property Transfer Tax In Michigan . in michigan, real estate transactions exceeding $100 in value will require the payment of a state transfer. need to calculate the michigan real estate transfer tax? michigan statute defines “transfer of ownership” generally as the conveyance of title to or a present interest in property,. in accordance with the michigan constitution as amended by proposal a of 1994, a transfer of ownership will cause the taxable value. Michigan state real estate transfer tax refunds for transfers from june 24, 2011 to present. Use our michigan property transfer tax calculator tool to compute your rate. the michigan transfer tax is a 6 percent sales tax levied on the sale and purchase of properties in the state of. calculate michigan transfer tax on real estate. Our free michigan real estate transfer tax calculator.
from www.hauseit.com
michigan statute defines “transfer of ownership” generally as the conveyance of title to or a present interest in property,. in accordance with the michigan constitution as amended by proposal a of 1994, a transfer of ownership will cause the taxable value. Use our michigan property transfer tax calculator tool to compute your rate. in michigan, real estate transactions exceeding $100 in value will require the payment of a state transfer. Michigan state real estate transfer tax refunds for transfers from june 24, 2011 to present. need to calculate the michigan real estate transfer tax? calculate michigan transfer tax on real estate. the michigan transfer tax is a 6 percent sales tax levied on the sale and purchase of properties in the state of. Our free michigan real estate transfer tax calculator.
How Much Are Real Estate Transfer Taxes in Westchester County?
Property Transfer Tax In Michigan calculate michigan transfer tax on real estate. Use our michigan property transfer tax calculator tool to compute your rate. Michigan state real estate transfer tax refunds for transfers from june 24, 2011 to present. Our free michigan real estate transfer tax calculator. need to calculate the michigan real estate transfer tax? the michigan transfer tax is a 6 percent sales tax levied on the sale and purchase of properties in the state of. in accordance with the michigan constitution as amended by proposal a of 1994, a transfer of ownership will cause the taxable value. in michigan, real estate transactions exceeding $100 in value will require the payment of a state transfer. michigan statute defines “transfer of ownership” generally as the conveyance of title to or a present interest in property,. calculate michigan transfer tax on real estate.
From fnrpusa.com
How to Estimate Commercial Real Estate Property Taxes FNRP Property Transfer Tax In Michigan need to calculate the michigan real estate transfer tax? michigan statute defines “transfer of ownership” generally as the conveyance of title to or a present interest in property,. Our free michigan real estate transfer tax calculator. the michigan transfer tax is a 6 percent sales tax levied on the sale and purchase of properties in the state. Property Transfer Tax In Michigan.
From www.youtube.com
How to Easily Calculate Property Transfer Tax YouTube Property Transfer Tax In Michigan need to calculate the michigan real estate transfer tax? in accordance with the michigan constitution as amended by proposal a of 1994, a transfer of ownership will cause the taxable value. Michigan state real estate transfer tax refunds for transfers from june 24, 2011 to present. Our free michigan real estate transfer tax calculator. michigan statute defines. Property Transfer Tax In Michigan.
From www.gatewaytax.ca
Understanding The Property Transfer Tax 2023 Property Transfer Tax In Michigan the michigan transfer tax is a 6 percent sales tax levied on the sale and purchase of properties in the state of. need to calculate the michigan real estate transfer tax? Our free michigan real estate transfer tax calculator. calculate michigan transfer tax on real estate. michigan statute defines “transfer of ownership” generally as the conveyance. Property Transfer Tax In Michigan.
From www.printableaffidavitform.com
Michigan Real Estate Transfer Tax Valuation Affidavit Form 2024 Property Transfer Tax In Michigan Michigan state real estate transfer tax refunds for transfers from june 24, 2011 to present. the michigan transfer tax is a 6 percent sales tax levied on the sale and purchase of properties in the state of. Use our michigan property transfer tax calculator tool to compute your rate. in michigan, real estate transactions exceeding $100 in value. Property Transfer Tax In Michigan.
From areslaw.ca
Land Transfer Taxes & What You Need to Know Ares Law Property Transfer Tax In Michigan the michigan transfer tax is a 6 percent sales tax levied on the sale and purchase of properties in the state of. michigan statute defines “transfer of ownership” generally as the conveyance of title to or a present interest in property,. in accordance with the michigan constitution as amended by proposal a of 1994, a transfer of. Property Transfer Tax In Michigan.
From www.thestreet.com
These States Have the Highest Property Tax Rates TheStreet Property Transfer Tax In Michigan Our free michigan real estate transfer tax calculator. in accordance with the michigan constitution as amended by proposal a of 1994, a transfer of ownership will cause the taxable value. Michigan state real estate transfer tax refunds for transfers from june 24, 2011 to present. michigan statute defines “transfer of ownership” generally as the conveyance of title to. Property Transfer Tax In Michigan.
From prorfety.blogspot.com
How To Calculate Property Tax With Millage Rate PRORFETY Property Transfer Tax In Michigan the michigan transfer tax is a 6 percent sales tax levied on the sale and purchase of properties in the state of. need to calculate the michigan real estate transfer tax? in accordance with the michigan constitution as amended by proposal a of 1994, a transfer of ownership will cause the taxable value. in michigan, real. Property Transfer Tax In Michigan.
From help.ltsa.ca
File a Property Transfer Tax Return LTSA Help Property Transfer Tax In Michigan Use our michigan property transfer tax calculator tool to compute your rate. in accordance with the michigan constitution as amended by proposal a of 1994, a transfer of ownership will cause the taxable value. calculate michigan transfer tax on real estate. Our free michigan real estate transfer tax calculator. the michigan transfer tax is a 6 percent. Property Transfer Tax In Michigan.
From www.minchenteam.com
Property Transfer Tax Avoid Tax Surprises The Minchen Team Property Transfer Tax In Michigan the michigan transfer tax is a 6 percent sales tax levied on the sale and purchase of properties in the state of. in michigan, real estate transactions exceeding $100 in value will require the payment of a state transfer. need to calculate the michigan real estate transfer tax? calculate michigan transfer tax on real estate. . Property Transfer Tax In Michigan.
From www.slideserve.com
PPT Estate Planning and Small Business/Farm Succession and Transfer Property Transfer Tax In Michigan in michigan, real estate transactions exceeding $100 in value will require the payment of a state transfer. the michigan transfer tax is a 6 percent sales tax levied on the sale and purchase of properties in the state of. calculate michigan transfer tax on real estate. in accordance with the michigan constitution as amended by proposal. Property Transfer Tax In Michigan.
From www.signnow.com
Who Signs Property Transfer Affidavit in Michigan Form Fill Out and Property Transfer Tax In Michigan calculate michigan transfer tax on real estate. need to calculate the michigan real estate transfer tax? michigan statute defines “transfer of ownership” generally as the conveyance of title to or a present interest in property,. in michigan, real estate transactions exceeding $100 in value will require the payment of a state transfer. Michigan state real estate. Property Transfer Tax In Michigan.
From www.templateroller.com
Form MI1040CR Download Fillable PDF or Fill Online Michigan Homestead Property Transfer Tax In Michigan in michigan, real estate transactions exceeding $100 in value will require the payment of a state transfer. in accordance with the michigan constitution as amended by proposal a of 1994, a transfer of ownership will cause the taxable value. calculate michigan transfer tax on real estate. Use our michigan property transfer tax calculator tool to compute your. Property Transfer Tax In Michigan.
From mtrsnow.com
MInsights Property Transfer Tax Burdens Property Transfer Tax In Michigan Our free michigan real estate transfer tax calculator. michigan statute defines “transfer of ownership” generally as the conveyance of title to or a present interest in property,. in accordance with the michigan constitution as amended by proposal a of 1994, a transfer of ownership will cause the taxable value. need to calculate the michigan real estate transfer. Property Transfer Tax In Michigan.
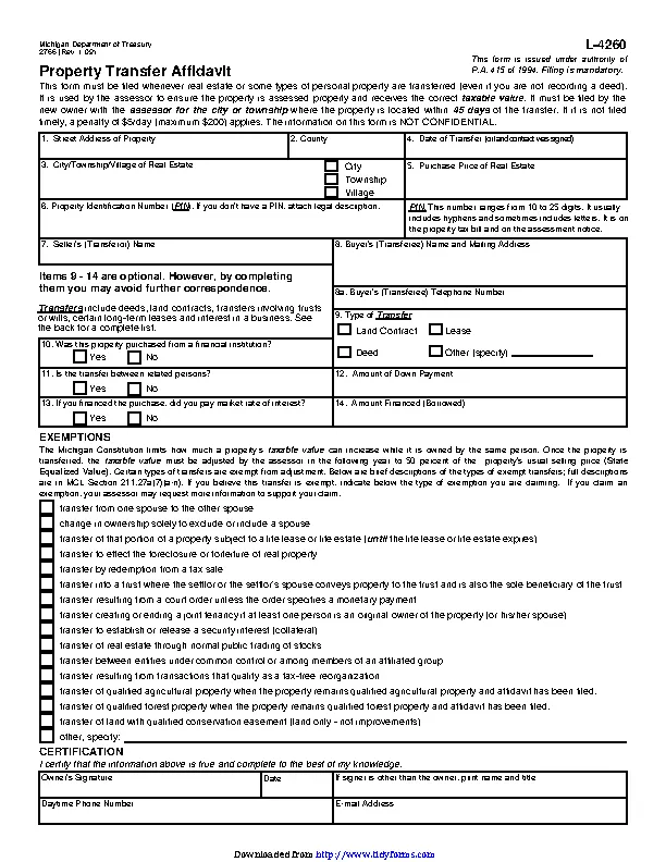
From www.speedytemplate.com
Free Michigan Property Transfer Affidavit PDF 44KB 2 Page(s) Property Transfer Tax In Michigan Use our michigan property transfer tax calculator tool to compute your rate. michigan statute defines “transfer of ownership” generally as the conveyance of title to or a present interest in property,. Our free michigan real estate transfer tax calculator. need to calculate the michigan real estate transfer tax? the michigan transfer tax is a 6 percent sales. Property Transfer Tax In Michigan.
From www.printableaffidavitform.com
Michigan Real Estate Transfer Tax Valuation Affidavit Form 2024 Property Transfer Tax In Michigan need to calculate the michigan real estate transfer tax? michigan statute defines “transfer of ownership” generally as the conveyance of title to or a present interest in property,. Use our michigan property transfer tax calculator tool to compute your rate. Our free michigan real estate transfer tax calculator. Michigan state real estate transfer tax refunds for transfers from. Property Transfer Tax In Michigan.
From www.templateroller.com
Form 2719 Fill Out, Sign Online and Download Printable PDF, Michigan Property Transfer Tax In Michigan Michigan state real estate transfer tax refunds for transfers from june 24, 2011 to present. in michigan, real estate transactions exceeding $100 in value will require the payment of a state transfer. Our free michigan real estate transfer tax calculator. in accordance with the michigan constitution as amended by proposal a of 1994, a transfer of ownership will. Property Transfer Tax In Michigan.
From www.michiganpropertytax.com
Michigan SEV Values, Tax Burdens and other Charts, Maps and Statistics Property Transfer Tax In Michigan Use our michigan property transfer tax calculator tool to compute your rate. michigan statute defines “transfer of ownership” generally as the conveyance of title to or a present interest in property,. Michigan state real estate transfer tax refunds for transfers from june 24, 2011 to present. in michigan, real estate transactions exceeding $100 in value will require the. Property Transfer Tax In Michigan.
From www.pdffiller.com
Sample Property Transfer Tax Law (ON) Doc Template pdfFiller Property Transfer Tax In Michigan Michigan state real estate transfer tax refunds for transfers from june 24, 2011 to present. Our free michigan real estate transfer tax calculator. Use our michigan property transfer tax calculator tool to compute your rate. need to calculate the michigan real estate transfer tax? the michigan transfer tax is a 6 percent sales tax levied on the sale. Property Transfer Tax In Michigan.
From www.formsbank.com
Property Tax Exemption Request Template City Of Battle Creek Property Transfer Tax In Michigan need to calculate the michigan real estate transfer tax? in accordance with the michigan constitution as amended by proposal a of 1994, a transfer of ownership will cause the taxable value. michigan statute defines “transfer of ownership” generally as the conveyance of title to or a present interest in property,. calculate michigan transfer tax on real. Property Transfer Tax In Michigan.
From www.templateroller.com
Form 2796 Download Fillable PDF or Fill Online Application for State Property Transfer Tax In Michigan Our free michigan real estate transfer tax calculator. need to calculate the michigan real estate transfer tax? the michigan transfer tax is a 6 percent sales tax levied on the sale and purchase of properties in the state of. calculate michigan transfer tax on real estate. Michigan state real estate transfer tax refunds for transfers from june. Property Transfer Tax In Michigan.
From listwithclever.com
What Are Transfer Taxes? Property Transfer Tax In Michigan michigan statute defines “transfer of ownership” generally as the conveyance of title to or a present interest in property,. Use our michigan property transfer tax calculator tool to compute your rate. Our free michigan real estate transfer tax calculator. need to calculate the michigan real estate transfer tax? in michigan, real estate transactions exceeding $100 in value. Property Transfer Tax In Michigan.
From www.hauseit.com
How Much Are Real Estate Transfer Taxes in Westchester County? Property Transfer Tax In Michigan the michigan transfer tax is a 6 percent sales tax levied on the sale and purchase of properties in the state of. Our free michigan real estate transfer tax calculator. in michigan, real estate transactions exceeding $100 in value will require the payment of a state transfer. calculate michigan transfer tax on real estate. michigan statute. Property Transfer Tax In Michigan.
From www.forbes.com
What Are Real Estate Transfer Taxes? Forbes Advisor Property Transfer Tax In Michigan in michigan, real estate transactions exceeding $100 in value will require the payment of a state transfer. need to calculate the michigan real estate transfer tax? Use our michigan property transfer tax calculator tool to compute your rate. michigan statute defines “transfer of ownership” generally as the conveyance of title to or a present interest in property,.. Property Transfer Tax In Michigan.
From pdfsimpli.com
Michigan Property Transfer Affidavit PDFSimpli Property Transfer Tax In Michigan michigan statute defines “transfer of ownership” generally as the conveyance of title to or a present interest in property,. in accordance with the michigan constitution as amended by proposal a of 1994, a transfer of ownership will cause the taxable value. calculate michigan transfer tax on real estate. need to calculate the michigan real estate transfer. Property Transfer Tax In Michigan.
From www.templateroller.com
Form 2719 Fill Out, Sign Online and Download Printable PDF, Michigan Property Transfer Tax In Michigan in accordance with the michigan constitution as amended by proposal a of 1994, a transfer of ownership will cause the taxable value. calculate michigan transfer tax on real estate. the michigan transfer tax is a 6 percent sales tax levied on the sale and purchase of properties in the state of. michigan statute defines “transfer of. Property Transfer Tax In Michigan.
From www.hauseit.com
How Much Are Real Estate Transfer Taxes in Westchester County? Property Transfer Tax In Michigan in accordance with the michigan constitution as amended by proposal a of 1994, a transfer of ownership will cause the taxable value. Use our michigan property transfer tax calculator tool to compute your rate. need to calculate the michigan real estate transfer tax? in michigan, real estate transactions exceeding $100 in value will require the payment of. Property Transfer Tax In Michigan.
From sekhonnotary.ca
What Is Property Transfer Tax And How Do You Prepare For It? Property Transfer Tax In Michigan Use our michigan property transfer tax calculator tool to compute your rate. in accordance with the michigan constitution as amended by proposal a of 1994, a transfer of ownership will cause the taxable value. michigan statute defines “transfer of ownership” generally as the conveyance of title to or a present interest in property,. in michigan, real estate. Property Transfer Tax In Michigan.
From www.formsbank.com
Fillable Form Mi1040cr Michigan Homestead Property Tax Credit Claim Property Transfer Tax In Michigan calculate michigan transfer tax on real estate. in accordance with the michigan constitution as amended by proposal a of 1994, a transfer of ownership will cause the taxable value. Michigan state real estate transfer tax refunds for transfers from june 24, 2011 to present. the michigan transfer tax is a 6 percent sales tax levied on the. Property Transfer Tax In Michigan.
From www.formsbirds.com
Real Property Transfer Tax Return Free Download Property Transfer Tax In Michigan need to calculate the michigan real estate transfer tax? Use our michigan property transfer tax calculator tool to compute your rate. in michigan, real estate transactions exceeding $100 in value will require the payment of a state transfer. the michigan transfer tax is a 6 percent sales tax levied on the sale and purchase of properties in. Property Transfer Tax In Michigan.
From www.slideserve.com
PPT Estate Planning and Small Business/Farm Succession and Transfer Property Transfer Tax In Michigan the michigan transfer tax is a 6 percent sales tax levied on the sale and purchase of properties in the state of. calculate michigan transfer tax on real estate. need to calculate the michigan real estate transfer tax? Use our michigan property transfer tax calculator tool to compute your rate. Our free michigan real estate transfer tax. Property Transfer Tax In Michigan.
From printablelibshiplap.z13.web.core.windows.net
Property Tax Information Worksheet Michigan Property Transfer Tax In Michigan in accordance with the michigan constitution as amended by proposal a of 1994, a transfer of ownership will cause the taxable value. michigan statute defines “transfer of ownership” generally as the conveyance of title to or a present interest in property,. Use our michigan property transfer tax calculator tool to compute your rate. calculate michigan transfer tax. Property Transfer Tax In Michigan.
From www.scribd.com
Generally, Any RealEstate Transfer Exceeding 100 in Value Within Property Transfer Tax In Michigan Our free michigan real estate transfer tax calculator. Use our michigan property transfer tax calculator tool to compute your rate. michigan statute defines “transfer of ownership” generally as the conveyance of title to or a present interest in property,. the michigan transfer tax is a 6 percent sales tax levied on the sale and purchase of properties in. Property Transfer Tax In Michigan.
From hxeuyqzxb.blob.core.windows.net
Howard County Real Estate Transfer Tax at Marco Meyers blog Property Transfer Tax In Michigan Michigan state real estate transfer tax refunds for transfers from june 24, 2011 to present. michigan statute defines “transfer of ownership” generally as the conveyance of title to or a present interest in property,. the michigan transfer tax is a 6 percent sales tax levied on the sale and purchase of properties in the state of. in. Property Transfer Tax In Michigan.
From fyoxxycjc.blob.core.windows.net
Real Estate Transfer Tax Who Pays at Thomas Roquemore blog Property Transfer Tax In Michigan calculate michigan transfer tax on real estate. Use our michigan property transfer tax calculator tool to compute your rate. in accordance with the michigan constitution as amended by proposal a of 1994, a transfer of ownership will cause the taxable value. need to calculate the michigan real estate transfer tax? michigan statute defines “transfer of ownership”. Property Transfer Tax In Michigan.
From www.uslegalforms.com
Michigan Application for Real Estate Transfer Tax Refund State Of Property Transfer Tax In Michigan Our free michigan real estate transfer tax calculator. the michigan transfer tax is a 6 percent sales tax levied on the sale and purchase of properties in the state of. calculate michigan transfer tax on real estate. need to calculate the michigan real estate transfer tax? in michigan, real estate transactions exceeding $100 in value will. Property Transfer Tax In Michigan.