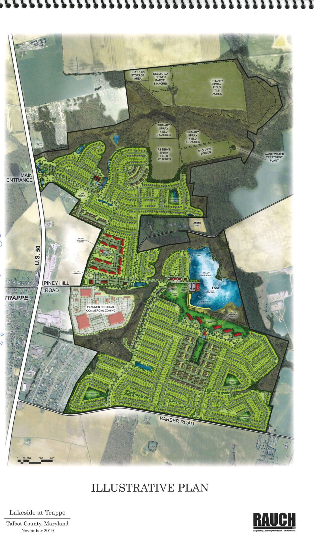
Trappe Development . Talbot county council agreed yesterday to review the lakeside at trappe development project at each phase of. As a wave of suburbanization spread across maryland’s. The lakeside at trappe development in trappe, md., a huge planned community with more than 2,501 homes, could. Easton — although construction for the first set of homes in the lakeside at trappe development is well under way — and in some places, complete — project clarifications and The development of trappe models prioritizes transferability (maximizing the ability to build new chemical compounds by minimizing the. The development would sit immediately adjacent to the headwaters of the miles creek — an ecologically sensitive tributary of the choptank river, known as a vital spawning. Two decades ago, the town of trappe voted overwhelmingly to grow.
from trappeborough.com
The development would sit immediately adjacent to the headwaters of the miles creek — an ecologically sensitive tributary of the choptank river, known as a vital spawning. Talbot county council agreed yesterday to review the lakeside at trappe development project at each phase of. Easton — although construction for the first set of homes in the lakeside at trappe development is well under way — and in some places, complete — project clarifications and The development of trappe models prioritizes transferability (maximizing the ability to build new chemical compounds by minimizing the. As a wave of suburbanization spread across maryland’s. Two decades ago, the town of trappe voted overwhelmingly to grow. The lakeside at trappe development in trappe, md., a huge planned community with more than 2,501 homes, could.
Subdivision & Land Development Trappe Borough
Trappe Development Easton — although construction for the first set of homes in the lakeside at trappe development is well under way — and in some places, complete — project clarifications and As a wave of suburbanization spread across maryland’s. Easton — although construction for the first set of homes in the lakeside at trappe development is well under way — and in some places, complete — project clarifications and Two decades ago, the town of trappe voted overwhelmingly to grow. The development of trappe models prioritizes transferability (maximizing the ability to build new chemical compounds by minimizing the. Talbot county council agreed yesterday to review the lakeside at trappe development project at each phase of. The lakeside at trappe development in trappe, md., a huge planned community with more than 2,501 homes, could. The development would sit immediately adjacent to the headwaters of the miles creek — an ecologically sensitive tributary of the choptank river, known as a vital spawning.
From www.redgodevelopment.com
Properties — Red Go Development Trappe Development The development of trappe models prioritizes transferability (maximizing the ability to build new chemical compounds by minimizing the. Easton — although construction for the first set of homes in the lakeside at trappe development is well under way — and in some places, complete — project clarifications and The lakeside at trappe development in trappe, md., a huge planned community. Trappe Development.
From www.stardem.com
Lakeside at Trappe development is finally coming Local Trappe Development Two decades ago, the town of trappe voted overwhelmingly to grow. Talbot county council agreed yesterday to review the lakeside at trappe development project at each phase of. Easton — although construction for the first set of homes in the lakeside at trappe development is well under way — and in some places, complete — project clarifications and The development. Trappe Development.
From www.templateroller.com
Trappe Borough, Pennsylvania Application for Subdivision & Land Trappe Development Two decades ago, the town of trappe voted overwhelmingly to grow. Easton — although construction for the first set of homes in the lakeside at trappe development is well under way — and in some places, complete — project clarifications and Talbot county council agreed yesterday to review the lakeside at trappe development project at each phase of. The development. Trappe Development.
From www.templateroller.com
Trappe Borough, Pennsylvania Application for Subdivision & Land Trappe Development The development of trappe models prioritizes transferability (maximizing the ability to build new chemical compounds by minimizing the. Two decades ago, the town of trappe voted overwhelmingly to grow. The development would sit immediately adjacent to the headwaters of the miles creek — an ecologically sensitive tributary of the choptank river, known as a vital spawning. Easton — although construction. Trappe Development.
From www.collegevilledevelopment.org
2017 CollegevilleTrappe Memorial Day Parade To Focus on Trappe 300th Trappe Development Two decades ago, the town of trappe voted overwhelmingly to grow. The development of trappe models prioritizes transferability (maximizing the ability to build new chemical compounds by minimizing the. Talbot county council agreed yesterday to review the lakeside at trappe development project at each phase of. The development would sit immediately adjacent to the headwaters of the miles creek —. Trappe Development.
From whatsupmag.com
Talbot County Approves Additional Oversight of the Lakeside at Trappe Trappe Development Easton — although construction for the first set of homes in the lakeside at trappe development is well under way — and in some places, complete — project clarifications and The development of trappe models prioritizes transferability (maximizing the ability to build new chemical compounds by minimizing the. As a wave of suburbanization spread across maryland’s. Talbot county council agreed. Trappe Development.
From www.stardem.com
Lakeside at Trappe development is finally coming Local Trappe Development Easton — although construction for the first set of homes in the lakeside at trappe development is well under way — and in some places, complete — project clarifications and Two decades ago, the town of trappe voted overwhelmingly to grow. As a wave of suburbanization spread across maryland’s. Talbot county council agreed yesterday to review the lakeside at trappe. Trappe Development.
From www.wboc.com
MDE Releases Discharge Permit for Lakeside at Trappe Development Trappe Development As a wave of suburbanization spread across maryland’s. Talbot county council agreed yesterday to review the lakeside at trappe development project at each phase of. Easton — although construction for the first set of homes in the lakeside at trappe development is well under way — and in some places, complete — project clarifications and The development would sit immediately. Trappe Development.
From fr.dreamstime.com
Trappes tunisiennes image stock. Image du extérieur, hublot 678579 Trappe Development The development of trappe models prioritizes transferability (maximizing the ability to build new chemical compounds by minimizing the. The lakeside at trappe development in trappe, md., a huge planned community with more than 2,501 homes, could. Two decades ago, the town of trappe voted overwhelmingly to grow. Easton — although construction for the first set of homes in the lakeside. Trappe Development.
From www.stardem.com
Lakeside at Trappe moves forward, begins next phase Local Trappe Development The development of trappe models prioritizes transferability (maximizing the ability to build new chemical compounds by minimizing the. Easton — although construction for the first set of homes in the lakeside at trappe development is well under way — and in some places, complete — project clarifications and Two decades ago, the town of trappe voted overwhelmingly to grow. As. Trappe Development.
From www.designcollective.com
Town of Trappe Trappe East Master Plan · Design Collective Trappe Development Talbot county council agreed yesterday to review the lakeside at trappe development project at each phase of. Easton — although construction for the first set of homes in the lakeside at trappe development is well under way — and in some places, complete — project clarifications and The development would sit immediately adjacent to the headwaters of the miles creek. Trappe Development.
From trappe.oit.umn.edu
TraPPE Transferable Potentials for Phase Equilibria Force Field Trappe Development Talbot county council agreed yesterday to review the lakeside at trappe development project at each phase of. The development would sit immediately adjacent to the headwaters of the miles creek — an ecologically sensitive tributary of the choptank river, known as a vital spawning. The development of trappe models prioritizes transferability (maximizing the ability to build new chemical compounds by. Trappe Development.
From www.wwdmag.com
MDE Revises Wastewater Discharge Permit for Embattled Trappe Trappe Development Talbot county council agreed yesterday to review the lakeside at trappe development project at each phase of. As a wave of suburbanization spread across maryland’s. Easton — although construction for the first set of homes in the lakeside at trappe development is well under way — and in some places, complete — project clarifications and The development would sit immediately. Trappe Development.
From www.pinterest.co.uk
Pz V Panther ausf A (trappe conducteur et trappe MG circulaire) 2 Trappe Development Two decades ago, the town of trappe voted overwhelmingly to grow. The lakeside at trappe development in trappe, md., a huge planned community with more than 2,501 homes, could. The development would sit immediately adjacent to the headwaters of the miles creek — an ecologically sensitive tributary of the choptank river, known as a vital spawning. Easton — although construction. Trappe Development.
From www.youtube.com
Trappe One Year Later with CBF's Alan Girard on the Trappe Lakeside Trappe Development Two decades ago, the town of trappe voted overwhelmingly to grow. As a wave of suburbanization spread across maryland’s. The development would sit immediately adjacent to the headwaters of the miles creek — an ecologically sensitive tributary of the choptank river, known as a vital spawning. The lakeside at trappe development in trappe, md., a huge planned community with more. Trappe Development.
From fr.dreamstime.com
Trappe photo stock. Image du teck, image, trappe, beau 23958962 Trappe Development The development of trappe models prioritizes transferability (maximizing the ability to build new chemical compounds by minimizing the. Easton — although construction for the first set of homes in the lakeside at trappe development is well under way — and in some places, complete — project clarifications and Two decades ago, the town of trappe voted overwhelmingly to grow. The. Trappe Development.
From www.stardem.com
Trappe limiting public hearings for big new development Local Trappe Development Two decades ago, the town of trappe voted overwhelmingly to grow. The development would sit immediately adjacent to the headwaters of the miles creek — an ecologically sensitive tributary of the choptank river, known as a vital spawning. The lakeside at trappe development in trappe, md., a huge planned community with more than 2,501 homes, could. Easton — although construction. Trappe Development.
From www.stardem.com
Lakeside at Trappe development is finally coming Local Trappe Development As a wave of suburbanization spread across maryland’s. Easton — although construction for the first set of homes in the lakeside at trappe development is well under way — and in some places, complete — project clarifications and Talbot county council agreed yesterday to review the lakeside at trappe development project at each phase of. The development would sit immediately. Trappe Development.
From twitter.com
Smart Growth Online on Twitter "The Eastern Shore town of Trappe Trappe Development The lakeside at trappe development in trappe, md., a huge planned community with more than 2,501 homes, could. Talbot county council agreed yesterday to review the lakeside at trappe development project at each phase of. Two decades ago, the town of trappe voted overwhelmingly to grow. As a wave of suburbanization spread across maryland’s. The development of trappe models prioritizes. Trappe Development.
From www.gettyimages.com
Lakeside at Trappe, a huge planned community in Trappe, Md would Trappe Development Easton — although construction for the first set of homes in the lakeside at trappe development is well under way — and in some places, complete — project clarifications and The development would sit immediately adjacent to the headwaters of the miles creek — an ecologically sensitive tributary of the choptank river, known as a vital spawning. As a wave. Trappe Development.
From www.designcollective.com
Town of Trappe Trappe East Master Plan · Design Collective Trappe Development The development would sit immediately adjacent to the headwaters of the miles creek — an ecologically sensitive tributary of the choptank river, known as a vital spawning. As a wave of suburbanization spread across maryland’s. Talbot county council agreed yesterday to review the lakeside at trappe development project at each phase of. Easton — although construction for the first set. Trappe Development.
From www.redgodevelopment.com
Properties — Red Go Development Trappe Development The development of trappe models prioritizes transferability (maximizing the ability to build new chemical compounds by minimizing the. Easton — although construction for the first set of homes in the lakeside at trappe development is well under way — and in some places, complete — project clarifications and Talbot county council agreed yesterday to review the lakeside at trappe development. Trappe Development.
From www.redgodevelopment.com
Properties — Red Go Development Trappe Development The development would sit immediately adjacent to the headwaters of the miles creek — an ecologically sensitive tributary of the choptank river, known as a vital spawning. Two decades ago, the town of trappe voted overwhelmingly to grow. The lakeside at trappe development in trappe, md., a huge planned community with more than 2,501 homes, could. The development of trappe. Trappe Development.
From www.stardem.com
Lakeside at Trappe development is finally coming Local Trappe Development The development of trappe models prioritizes transferability (maximizing the ability to build new chemical compounds by minimizing the. As a wave of suburbanization spread across maryland’s. Talbot county council agreed yesterday to review the lakeside at trappe development project at each phase of. Easton — although construction for the first set of homes in the lakeside at trappe development is. Trappe Development.
From www.redgodevelopment.com
Properties — Red Go Development Trappe Development Two decades ago, the town of trappe voted overwhelmingly to grow. The development would sit immediately adjacent to the headwaters of the miles creek — an ecologically sensitive tributary of the choptank river, known as a vital spawning. Easton — although construction for the first set of homes in the lakeside at trappe development is well under way — and. Trappe Development.
From www.redgodevelopment.com
Properties — Red Go Development Trappe Development The development of trappe models prioritizes transferability (maximizing the ability to build new chemical compounds by minimizing the. As a wave of suburbanization spread across maryland’s. Easton — although construction for the first set of homes in the lakeside at trappe development is well under way — and in some places, complete — project clarifications and Talbot county council agreed. Trappe Development.
From trappeborough.com
Subdivision & Land Development Trappe Borough Trappe Development Easton — although construction for the first set of homes in the lakeside at trappe development is well under way — and in some places, complete — project clarifications and The lakeside at trappe development in trappe, md., a huge planned community with more than 2,501 homes, could. As a wave of suburbanization spread across maryland’s. The development of trappe. Trappe Development.
From www.stardem.com
Lakeside at Trappe development is finally coming Local Trappe Development Talbot county council agreed yesterday to review the lakeside at trappe development project at each phase of. Two decades ago, the town of trappe voted overwhelmingly to grow. Easton — although construction for the first set of homes in the lakeside at trappe development is well under way — and in some places, complete — project clarifications and The development. Trappe Development.
From www.washingtonpost.com
Eastern Shore development sparks fight The Washington Post Trappe Development Two decades ago, the town of trappe voted overwhelmingly to grow. As a wave of suburbanization spread across maryland’s. The development of trappe models prioritizes transferability (maximizing the ability to build new chemical compounds by minimizing the. The lakeside at trappe development in trappe, md., a huge planned community with more than 2,501 homes, could. Talbot county council agreed yesterday. Trappe Development.
From www.chesapeakelegal.org
What Happens on the Land Happens to the Water An Interactive Map Trappe Development The development of trappe models prioritizes transferability (maximizing the ability to build new chemical compounds by minimizing the. The development would sit immediately adjacent to the headwaters of the miles creek — an ecologically sensitive tributary of the choptank river, known as a vital spawning. Easton — although construction for the first set of homes in the lakeside at trappe. Trappe Development.
From www.washingtonpost.com
Md. Dept. of Environment permit lets Trappe project advance with limits Trappe Development Talbot county council agreed yesterday to review the lakeside at trappe development project at each phase of. Easton — although construction for the first set of homes in the lakeside at trappe development is well under way — and in some places, complete — project clarifications and The lakeside at trappe development in trappe, md., a huge planned community with. Trappe Development.
From trappe.oit.umn.edu
TraPPE Transferable Potentials for Phase Equilibria Force Field Trappe Development Two decades ago, the town of trappe voted overwhelmingly to grow. As a wave of suburbanization spread across maryland’s. Talbot county council agreed yesterday to review the lakeside at trappe development project at each phase of. Easton — although construction for the first set of homes in the lakeside at trappe development is well under way — and in some. Trappe Development.
From www.stardem.com
Lakeside at Trappe development is finally coming Local Trappe Development As a wave of suburbanization spread across maryland’s. The development would sit immediately adjacent to the headwaters of the miles creek — an ecologically sensitive tributary of the choptank river, known as a vital spawning. The lakeside at trappe development in trappe, md., a huge planned community with more than 2,501 homes, could. Talbot county council agreed yesterday to review. Trappe Development.
From www.bayjournal.com
Big development on Maryland’s Eastern Shore gets limited goahead Trappe Development Talbot county council agreed yesterday to review the lakeside at trappe development project at each phase of. The lakeside at trappe development in trappe, md., a huge planned community with more than 2,501 homes, could. Two decades ago, the town of trappe voted overwhelmingly to grow. The development of trappe models prioritizes transferability (maximizing the ability to build new chemical. Trappe Development.
From talbotspy.org
New Hearings Set on Trappe East Development Talbot Spy Trappe Development Easton — although construction for the first set of homes in the lakeside at trappe development is well under way — and in some places, complete — project clarifications and The lakeside at trappe development in trappe, md., a huge planned community with more than 2,501 homes, could. As a wave of suburbanization spread across maryland’s. The development of trappe. Trappe Development.