What Is A Mechanical Integrity Test . Mechanical integrity (mi) is just one of the 14 elements included in process safety management (psm),. Fixed equipment standards & recommended practices 2 an introduction to mechanical integrity:. Mechanical integrity tests help identify potential failure points in battery cells, ensuring they can handle mechanical stresses during operation. Mechanical integrity (mi) can be defined as the management of critical process equipment to ensure it is designed and installed correctly and. An injection well has mechanical integrity if: What is mechanical integrity and what are the requirements of an mi program? (internal) there is no significant leak in the casing, tubing or. Demonstrations of mechanical integrity (mi) are the most common means of demonstrating that there is no movement of fluids into or between. Mechanical integrity (mi) can be defined as the management of critical process equipment to ensure it is designed and installed.
from www.youtube.com
Mechanical integrity (mi) is just one of the 14 elements included in process safety management (psm),. Fixed equipment standards & recommended practices 2 an introduction to mechanical integrity:. An injection well has mechanical integrity if: (internal) there is no significant leak in the casing, tubing or. Mechanical integrity tests help identify potential failure points in battery cells, ensuring they can handle mechanical stresses during operation. Mechanical integrity (mi) can be defined as the management of critical process equipment to ensure it is designed and installed correctly and. Mechanical integrity (mi) can be defined as the management of critical process equipment to ensure it is designed and installed. What is mechanical integrity and what are the requirements of an mi program? Demonstrations of mechanical integrity (mi) are the most common means of demonstrating that there is no movement of fluids into or between.
How a Holistic Approach to Mechanical Integrity Delivers Value Beyond
What Is A Mechanical Integrity Test Mechanical integrity tests help identify potential failure points in battery cells, ensuring they can handle mechanical stresses during operation. Mechanical integrity tests help identify potential failure points in battery cells, ensuring they can handle mechanical stresses during operation. (internal) there is no significant leak in the casing, tubing or. Demonstrations of mechanical integrity (mi) are the most common means of demonstrating that there is no movement of fluids into or between. What is mechanical integrity and what are the requirements of an mi program? Fixed equipment standards & recommended practices 2 an introduction to mechanical integrity:. Mechanical integrity (mi) can be defined as the management of critical process equipment to ensure it is designed and installed. An injection well has mechanical integrity if: Mechanical integrity (mi) is just one of the 14 elements included in process safety management (psm),. Mechanical integrity (mi) can be defined as the management of critical process equipment to ensure it is designed and installed correctly and.
From www.slideserve.com
PPT Process Safety Management TraintheTrainer PowerPoint What Is A Mechanical Integrity Test (internal) there is no significant leak in the casing, tubing or. Mechanical integrity tests help identify potential failure points in battery cells, ensuring they can handle mechanical stresses during operation. An injection well has mechanical integrity if: What is mechanical integrity and what are the requirements of an mi program? Demonstrations of mechanical integrity (mi) are the most common means. What Is A Mechanical Integrity Test.
From www.hiresuccess.com
PreEmployment Honesty and Integrity Test Hire Success® What Is A Mechanical Integrity Test Demonstrations of mechanical integrity (mi) are the most common means of demonstrating that there is no movement of fluids into or between. An injection well has mechanical integrity if: Mechanical integrity (mi) can be defined as the management of critical process equipment to ensure it is designed and installed correctly and. Mechanical integrity tests help identify potential failure points in. What Is A Mechanical Integrity Test.
From www.integrityepc.com
Brochures What Is A Mechanical Integrity Test Mechanical integrity (mi) can be defined as the management of critical process equipment to ensure it is designed and installed. (internal) there is no significant leak in the casing, tubing or. Mechanical integrity (mi) is just one of the 14 elements included in process safety management (psm),. What is mechanical integrity and what are the requirements of an mi program?. What Is A Mechanical Integrity Test.
From www.slideserve.com
PPT Process Safety Management of Highly Hazardous & Explosive What Is A Mechanical Integrity Test Demonstrations of mechanical integrity (mi) are the most common means of demonstrating that there is no movement of fluids into or between. An injection well has mechanical integrity if: Mechanical integrity (mi) is just one of the 14 elements included in process safety management (psm),. (internal) there is no significant leak in the casing, tubing or. Fixed equipment standards &. What Is A Mechanical Integrity Test.
From www.slideserve.com
PPT Valero Benicia ’ s Mechanical Integrity Program Karen Muehlbauer What Is A Mechanical Integrity Test Mechanical integrity (mi) is just one of the 14 elements included in process safety management (psm),. Demonstrations of mechanical integrity (mi) are the most common means of demonstrating that there is no movement of fluids into or between. Fixed equipment standards & recommended practices 2 an introduction to mechanical integrity:. Mechanical integrity tests help identify potential failure points in battery. What Is A Mechanical Integrity Test.
From www.youtube.com
Mechanical Integrity YouTube What Is A Mechanical Integrity Test An injection well has mechanical integrity if: Mechanical integrity (mi) can be defined as the management of critical process equipment to ensure it is designed and installed. Mechanical integrity tests help identify potential failure points in battery cells, ensuring they can handle mechanical stresses during operation. Demonstrations of mechanical integrity (mi) are the most common means of demonstrating that there. What Is A Mechanical Integrity Test.
From eagletesting.net
Mechanical Integrity / API510 Vessel Inspection Eagle Testing Company What Is A Mechanical Integrity Test Mechanical integrity tests help identify potential failure points in battery cells, ensuring they can handle mechanical stresses during operation. Mechanical integrity (mi) is just one of the 14 elements included in process safety management (psm),. An injection well has mechanical integrity if: Mechanical integrity (mi) can be defined as the management of critical process equipment to ensure it is designed. What Is A Mechanical Integrity Test.
From studylib.net
Mechanical Integrity Testing(MIT) 2018 USA What Is A Mechanical Integrity Test Mechanical integrity (mi) is just one of the 14 elements included in process safety management (psm),. Mechanical integrity (mi) can be defined as the management of critical process equipment to ensure it is designed and installed. Mechanical integrity (mi) can be defined as the management of critical process equipment to ensure it is designed and installed correctly and. (internal) there. What Is A Mechanical Integrity Test.
From mintra.com
Mechanical Joint Integrity Training Course What Is A Mechanical Integrity Test Mechanical integrity (mi) can be defined as the management of critical process equipment to ensure it is designed and installed correctly and. Mechanical integrity (mi) is just one of the 14 elements included in process safety management (psm),. Demonstrations of mechanical integrity (mi) are the most common means of demonstrating that there is no movement of fluids into or between.. What Is A Mechanical Integrity Test.
From dokumen.tips
(PDF) SUBSURFACE CONSTURCTION CORP … filesubsurface report of 2002 What Is A Mechanical Integrity Test Mechanical integrity (mi) can be defined as the management of critical process equipment to ensure it is designed and installed correctly and. Mechanical integrity tests help identify potential failure points in battery cells, ensuring they can handle mechanical stresses during operation. What is mechanical integrity and what are the requirements of an mi program? Fixed equipment standards & recommended practices. What Is A Mechanical Integrity Test.
From www.slideserve.com
PPT Reporting , Monitoring, Inspection & Compliance PowerPoint What Is A Mechanical Integrity Test Mechanical integrity tests help identify potential failure points in battery cells, ensuring they can handle mechanical stresses during operation. Mechanical integrity (mi) can be defined as the management of critical process equipment to ensure it is designed and installed correctly and. Mechanical integrity (mi) is just one of the 14 elements included in process safety management (psm),. An injection well. What Is A Mechanical Integrity Test.
From www.researchgate.net
(PDF) Mechanical Integrity Testing Using the Fibre Optic Temperature What Is A Mechanical Integrity Test An injection well has mechanical integrity if: Mechanical integrity (mi) can be defined as the management of critical process equipment to ensure it is designed and installed. Fixed equipment standards & recommended practices 2 an introduction to mechanical integrity:. Demonstrations of mechanical integrity (mi) are the most common means of demonstrating that there is no movement of fluids into or. What Is A Mechanical Integrity Test.
From www.youtube.com
(FM200 INTEGRITY TEST) MECHANICAL SITE WORKS YouTube What Is A Mechanical Integrity Test Mechanical integrity (mi) is just one of the 14 elements included in process safety management (psm),. Mechanical integrity tests help identify potential failure points in battery cells, ensuring they can handle mechanical stresses during operation. Demonstrations of mechanical integrity (mi) are the most common means of demonstrating that there is no movement of fluids into or between. What is mechanical. What Is A Mechanical Integrity Test.
From armilis.com
What Is Data Integrity And Why Is It Important? Armilis What Is A Mechanical Integrity Test Fixed equipment standards & recommended practices 2 an introduction to mechanical integrity:. What is mechanical integrity and what are the requirements of an mi program? Mechanical integrity (mi) can be defined as the management of critical process equipment to ensure it is designed and installed correctly and. (internal) there is no significant leak in the casing, tubing or. Mechanical integrity. What Is A Mechanical Integrity Test.
From www.youtube.com
Integrity Test YouTube What Is A Mechanical Integrity Test Mechanical integrity (mi) is just one of the 14 elements included in process safety management (psm),. Fixed equipment standards & recommended practices 2 an introduction to mechanical integrity:. (internal) there is no significant leak in the casing, tubing or. Mechanical integrity (mi) can be defined as the management of critical process equipment to ensure it is designed and installed. Demonstrations. What Is A Mechanical Integrity Test.
From www.templateroller.com
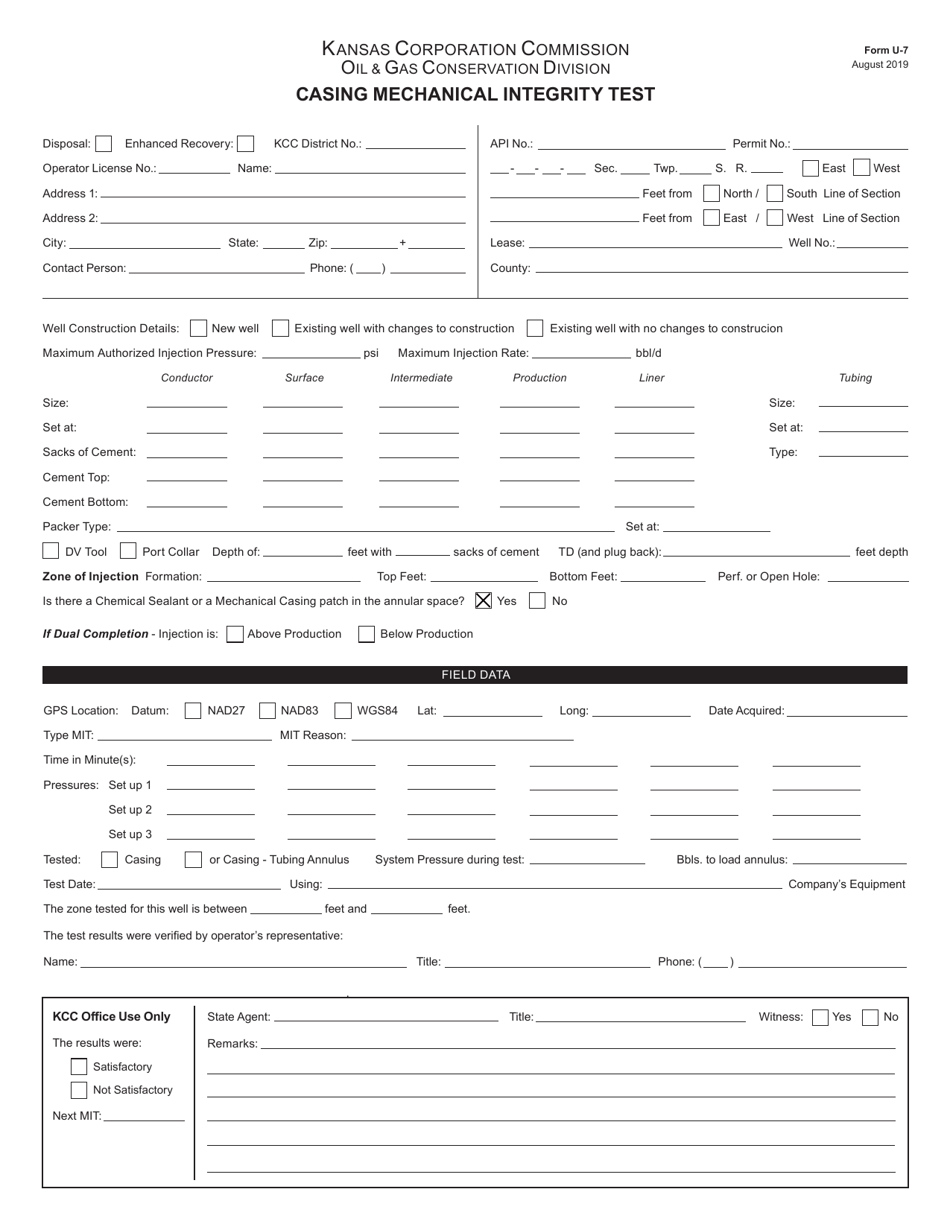
Form U7 Fill Out, Sign Online and Download Fillable PDF, Kansas What Is A Mechanical Integrity Test An injection well has mechanical integrity if: Mechanical integrity (mi) can be defined as the management of critical process equipment to ensure it is designed and installed correctly and. (internal) there is no significant leak in the casing, tubing or. Fixed equipment standards & recommended practices 2 an introduction to mechanical integrity:. Mechanical integrity (mi) can be defined as the. What Is A Mechanical Integrity Test.
From slideplayer.com
8th all TF F2F Meetings EVS Washington DC ppt download What Is A Mechanical Integrity Test (internal) there is no significant leak in the casing, tubing or. Mechanical integrity (mi) is just one of the 14 elements included in process safety management (psm),. Demonstrations of mechanical integrity (mi) are the most common means of demonstrating that there is no movement of fluids into or between. Mechanical integrity (mi) can be defined as the management of critical. What Is A Mechanical Integrity Test.
From www.youtube.com
Mechanical Integrity Manual YouTube What Is A Mechanical Integrity Test Fixed equipment standards & recommended practices 2 an introduction to mechanical integrity:. Mechanical integrity (mi) can be defined as the management of critical process equipment to ensure it is designed and installed correctly and. (internal) there is no significant leak in the casing, tubing or. What is mechanical integrity and what are the requirements of an mi program? Mechanical integrity. What Is A Mechanical Integrity Test.
From maintenanceworld.com
How to Use Mechanical Integrity Inspections Maintenance World What Is A Mechanical Integrity Test Mechanical integrity tests help identify potential failure points in battery cells, ensuring they can handle mechanical stresses during operation. Fixed equipment standards & recommended practices 2 an introduction to mechanical integrity:. Demonstrations of mechanical integrity (mi) are the most common means of demonstrating that there is no movement of fluids into or between. Mechanical integrity (mi) can be defined as. What Is A Mechanical Integrity Test.
From www.slideserve.com
PPT Process Safety Management & Risk Management Planning Overview What Is A Mechanical Integrity Test An injection well has mechanical integrity if: Mechanical integrity (mi) is just one of the 14 elements included in process safety management (psm),. What is mechanical integrity and what are the requirements of an mi program? Mechanical integrity (mi) can be defined as the management of critical process equipment to ensure it is designed and installed correctly and. Fixed equipment. What Is A Mechanical Integrity Test.
From theconstructor.org
What are the Important Pile Integrity Test Methods? What Is A Mechanical Integrity Test What is mechanical integrity and what are the requirements of an mi program? Mechanical integrity tests help identify potential failure points in battery cells, ensuring they can handle mechanical stresses during operation. (internal) there is no significant leak in the casing, tubing or. Mechanical integrity (mi) can be defined as the management of critical process equipment to ensure it is. What Is A Mechanical Integrity Test.
From production-technology.org
Introduction to Well Integrity Production Technology What Is A Mechanical Integrity Test Mechanical integrity (mi) can be defined as the management of critical process equipment to ensure it is designed and installed. Mechanical integrity (mi) is just one of the 14 elements included in process safety management (psm),. Mechanical integrity tests help identify potential failure points in battery cells, ensuring they can handle mechanical stresses during operation. An injection well has mechanical. What Is A Mechanical Integrity Test.
From www.acuren.com
Asset Integrity Management / Mechanical Integrity Acuren What Is A Mechanical Integrity Test Fixed equipment standards & recommended practices 2 an introduction to mechanical integrity:. Mechanical integrity (mi) can be defined as the management of critical process equipment to ensure it is designed and installed correctly and. Mechanical integrity tests help identify potential failure points in battery cells, ensuring they can handle mechanical stresses during operation. Mechanical integrity (mi) is just one of. What Is A Mechanical Integrity Test.
From www.templateroller.com
UIC Form U110 Fill Out, Sign Online and Download Printable PDF What Is A Mechanical Integrity Test An injection well has mechanical integrity if: Mechanical integrity (mi) can be defined as the management of critical process equipment to ensure it is designed and installed. Demonstrations of mechanical integrity (mi) are the most common means of demonstrating that there is no movement of fluids into or between. (internal) there is no significant leak in the casing, tubing or.. What Is A Mechanical Integrity Test.
From www.scribd.com
What Is Mechanical Integrity and What Are The Requirements of An MI What Is A Mechanical Integrity Test Mechanical integrity tests help identify potential failure points in battery cells, ensuring they can handle mechanical stresses during operation. Demonstrations of mechanical integrity (mi) are the most common means of demonstrating that there is no movement of fluids into or between. Fixed equipment standards & recommended practices 2 an introduction to mechanical integrity:. Mechanical integrity (mi) can be defined as. What Is A Mechanical Integrity Test.
From www.huvrdata.com
Mechanical Integrity in Upstream Oil and Gas HUVRdata What Is A Mechanical Integrity Test Mechanical integrity (mi) is just one of the 14 elements included in process safety management (psm),. What is mechanical integrity and what are the requirements of an mi program? Demonstrations of mechanical integrity (mi) are the most common means of demonstrating that there is no movement of fluids into or between. An injection well has mechanical integrity if: (internal) there. What Is A Mechanical Integrity Test.
From advinsptech.com
Mechanical Integrity Advanced Inspection Technologies What Is A Mechanical Integrity Test Mechanical integrity (mi) can be defined as the management of critical process equipment to ensure it is designed and installed correctly and. Mechanical integrity (mi) is just one of the 14 elements included in process safety management (psm),. (internal) there is no significant leak in the casing, tubing or. An injection well has mechanical integrity if: Mechanical integrity (mi) can. What Is A Mechanical Integrity Test.
From www.assetintegrityengineering.com
Well Integrity Assessment AIE What Is A Mechanical Integrity Test Mechanical integrity (mi) can be defined as the management of critical process equipment to ensure it is designed and installed correctly and. Mechanical integrity (mi) can be defined as the management of critical process equipment to ensure it is designed and installed. Mechanical integrity (mi) is just one of the 14 elements included in process safety management (psm),. Demonstrations of. What Is A Mechanical Integrity Test.
From www.scribd.com
Saltwater Disposal Wells and Mechanical Integrity Testing PDF What Is A Mechanical Integrity Test Mechanical integrity (mi) can be defined as the management of critical process equipment to ensure it is designed and installed. Mechanical integrity tests help identify potential failure points in battery cells, ensuring they can handle mechanical stresses during operation. What is mechanical integrity and what are the requirements of an mi program? Mechanical integrity (mi) can be defined as the. What Is A Mechanical Integrity Test.
From bluefieldsafety.com
Mechanical Integrity Basics Bluefield Process Safety What Is A Mechanical Integrity Test An injection well has mechanical integrity if: (internal) there is no significant leak in the casing, tubing or. Mechanical integrity (mi) can be defined as the management of critical process equipment to ensure it is designed and installed correctly and. Mechanical integrity (mi) can be defined as the management of critical process equipment to ensure it is designed and installed.. What Is A Mechanical Integrity Test.
From www.youtube.com
Mechanical integrity YouTube What Is A Mechanical Integrity Test Mechanical integrity (mi) can be defined as the management of critical process equipment to ensure it is designed and installed correctly and. (internal) there is no significant leak in the casing, tubing or. Mechanical integrity (mi) can be defined as the management of critical process equipment to ensure it is designed and installed. An injection well has mechanical integrity if:. What Is A Mechanical Integrity Test.
From www.youtube.com
How a Holistic Approach to Mechanical Integrity Delivers Value Beyond What Is A Mechanical Integrity Test Mechanical integrity (mi) is just one of the 14 elements included in process safety management (psm),. (internal) there is no significant leak in the casing, tubing or. Demonstrations of mechanical integrity (mi) are the most common means of demonstrating that there is no movement of fluids into or between. Mechanical integrity (mi) can be defined as the management of critical. What Is A Mechanical Integrity Test.
From www.slideserve.com
PPT Historical Perspective PowerPoint Presentation, free download What Is A Mechanical Integrity Test Demonstrations of mechanical integrity (mi) are the most common means of demonstrating that there is no movement of fluids into or between. Fixed equipment standards & recommended practices 2 an introduction to mechanical integrity:. An injection well has mechanical integrity if: Mechanical integrity (mi) can be defined as the management of critical process equipment to ensure it is designed and. What Is A Mechanical Integrity Test.
From www.ge.com
About the Mechanical Integrity Work Process What Is A Mechanical Integrity Test Mechanical integrity tests help identify potential failure points in battery cells, ensuring they can handle mechanical stresses during operation. (internal) there is no significant leak in the casing, tubing or. An injection well has mechanical integrity if: Mechanical integrity (mi) is just one of the 14 elements included in process safety management (psm),. Mechanical integrity (mi) can be defined as. What Is A Mechanical Integrity Test.
From www.r717.net
What is Mechanical Integrity? • Innovative Refrigeration Systems What Is A Mechanical Integrity Test Mechanical integrity (mi) is just one of the 14 elements included in process safety management (psm),. (internal) there is no significant leak in the casing, tubing or. Fixed equipment standards & recommended practices 2 an introduction to mechanical integrity:. What is mechanical integrity and what are the requirements of an mi program? Mechanical integrity tests help identify potential failure points. What Is A Mechanical Integrity Test.