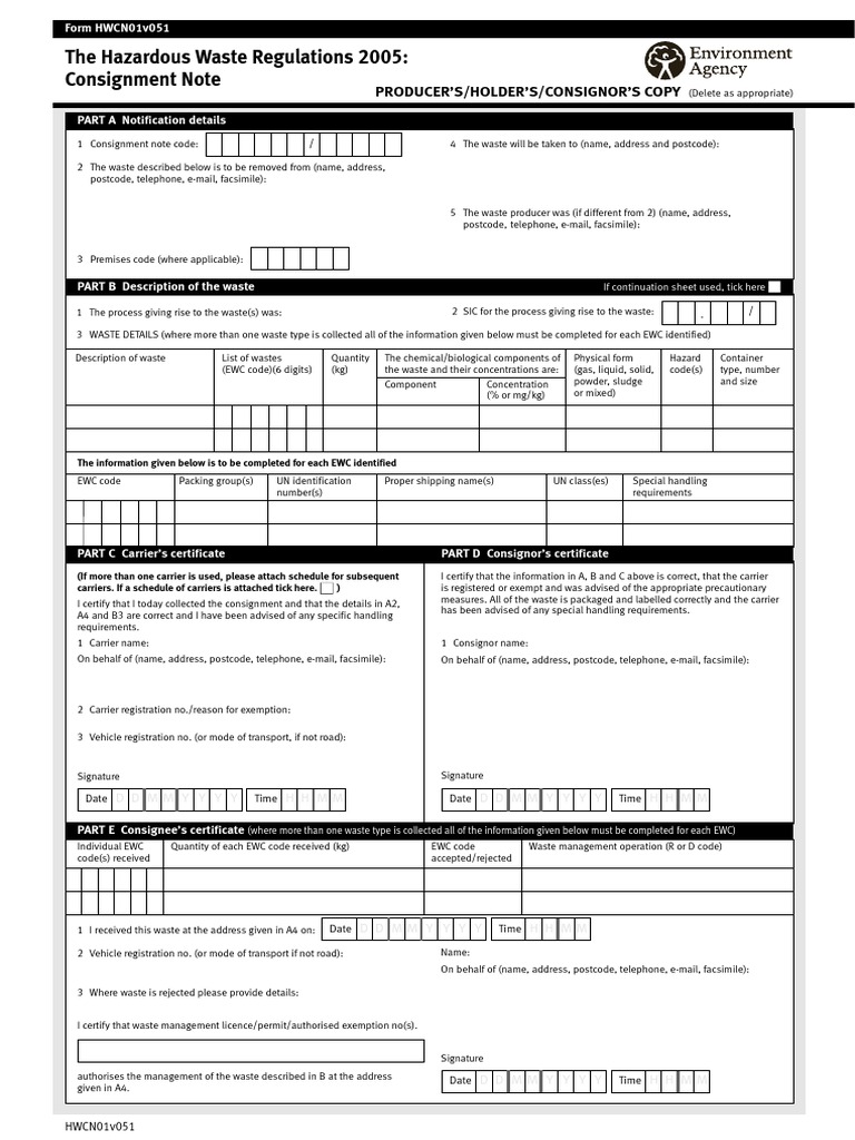
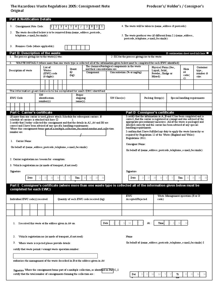
The Hazardous Waste Regulations Consignment Note . You must also assign an additional letter at the end of the consignment note code for certain types of consignment. You (the consignor) will complete sections a and b before the collection takes place. I confirm that i have fulfilled my duty to apply the waste hierarchy as required by regulation 12 of the waste (england and wales) regulations. A completed consignment note must accompany hazardous waste when moved from any premises. (a) a consignment note shall be completed in accordance with paragraph (2) of this regulation and the requirements of the relevant regulation. Certify that the information in a, b and c has been completed and is correct, that the carrier is registered or exempt and was advised of the. When hazardous waste is moved it must be accompanied by correctly completed paperwork called a consignment note. A consignment note will have five sections.
from oceanprint.co.uk
You must also assign an additional letter at the end of the consignment note code for certain types of consignment. I confirm that i have fulfilled my duty to apply the waste hierarchy as required by regulation 12 of the waste (england and wales) regulations. A completed consignment note must accompany hazardous waste when moved from any premises. A consignment note will have five sections. When hazardous waste is moved it must be accompanied by correctly completed paperwork called a consignment note. (a) a consignment note shall be completed in accordance with paragraph (2) of this regulation and the requirements of the relevant regulation. You (the consignor) will complete sections a and b before the collection takes place. Certify that the information in a, b and c has been completed and is correct, that the carrier is registered or exempt and was advised of the.
Hazardous Waste Consignment Notes Oceanprint
The Hazardous Waste Regulations Consignment Note (a) a consignment note shall be completed in accordance with paragraph (2) of this regulation and the requirements of the relevant regulation. You (the consignor) will complete sections a and b before the collection takes place. I confirm that i have fulfilled my duty to apply the waste hierarchy as required by regulation 12 of the waste (england and wales) regulations. When hazardous waste is moved it must be accompanied by correctly completed paperwork called a consignment note. (a) a consignment note shall be completed in accordance with paragraph (2) of this regulation and the requirements of the relevant regulation. A consignment note will have five sections. Certify that the information in a, b and c has been completed and is correct, that the carrier is registered or exempt and was advised of the. A completed consignment note must accompany hazardous waste when moved from any premises. You must also assign an additional letter at the end of the consignment note code for certain types of consignment.
From www.pdffiller.com
Fillable Online What is a hazardous waste consignment note? Fax Email The Hazardous Waste Regulations Consignment Note (a) a consignment note shall be completed in accordance with paragraph (2) of this regulation and the requirements of the relevant regulation. Certify that the information in a, b and c has been completed and is correct, that the carrier is registered or exempt and was advised of the. You (the consignor) will complete sections a and b before the. The Hazardous Waste Regulations Consignment Note.
From www.slideserve.com
PPT The Hazardous Waste (England and Wales) Regulations 2005 The Hazardous Waste Regulations Consignment Note A consignment note will have five sections. You (the consignor) will complete sections a and b before the collection takes place. Certify that the information in a, b and c has been completed and is correct, that the carrier is registered or exempt and was advised of the. When hazardous waste is moved it must be accompanied by correctly completed. The Hazardous Waste Regulations Consignment Note.
From collectandrecycle.com
How Long Should You Keep A Hazardous Waste Consignment Note? The Hazardous Waste Regulations Consignment Note You must also assign an additional letter at the end of the consignment note code for certain types of consignment. You (the consignor) will complete sections a and b before the collection takes place. A completed consignment note must accompany hazardous waste when moved from any premises. I confirm that i have fulfilled my duty to apply the waste hierarchy. The Hazardous Waste Regulations Consignment Note.
From methodstatementhq.com
Hazardous Waste Consignment Note Method Statement HQ The Hazardous Waste Regulations Consignment Note You (the consignor) will complete sections a and b before the collection takes place. A completed consignment note must accompany hazardous waste when moved from any premises. You must also assign an additional letter at the end of the consignment note code for certain types of consignment. I confirm that i have fulfilled my duty to apply the waste hierarchy. The Hazardous Waste Regulations Consignment Note.
From www.kubizo.com
Oct 29 Household Hazardous Waste Day Throughout Waste Consignment The Hazardous Waste Regulations Consignment Note A consignment note will have five sections. You (the consignor) will complete sections a and b before the collection takes place. (a) a consignment note shall be completed in accordance with paragraph (2) of this regulation and the requirements of the relevant regulation. A completed consignment note must accompany hazardous waste when moved from any premises. You must also assign. The Hazardous Waste Regulations Consignment Note.
From www.yumpu.com
The Hazardous Waste Regulations 2005 Multiple Collection Consignment Note The Hazardous Waste Regulations Consignment Note (a) a consignment note shall be completed in accordance with paragraph (2) of this regulation and the requirements of the relevant regulation. When hazardous waste is moved it must be accompanied by correctly completed paperwork called a consignment note. Certify that the information in a, b and c has been completed and is correct, that the carrier is registered or. The Hazardous Waste Regulations Consignment Note.
From oceanprint.co.uk
Hazardous Waste Consignment Notes Template Oceanprint The Hazardous Waste Regulations Consignment Note Certify that the information in a, b and c has been completed and is correct, that the carrier is registered or exempt and was advised of the. I confirm that i have fulfilled my duty to apply the waste hierarchy as required by regulation 12 of the waste (england and wales) regulations. When hazardous waste is moved it must be. The Hazardous Waste Regulations Consignment Note.
From public-library.safetyculture.io
The Hazardous Waste Regulations 2005 Consignment Note SafetyCulture The Hazardous Waste Regulations Consignment Note When hazardous waste is moved it must be accompanied by correctly completed paperwork called a consignment note. A completed consignment note must accompany hazardous waste when moved from any premises. I confirm that i have fulfilled my duty to apply the waste hierarchy as required by regulation 12 of the waste (england and wales) regulations. A consignment note will have. The Hazardous Waste Regulations Consignment Note.
From www.youtube.com
Hazardous Waste Consignment Notes England and Wales YouTube The Hazardous Waste Regulations Consignment Note A completed consignment note must accompany hazardous waste when moved from any premises. When hazardous waste is moved it must be accompanied by correctly completed paperwork called a consignment note. A consignment note will have five sections. Certify that the information in a, b and c has been completed and is correct, that the carrier is registered or exempt and. The Hazardous Waste Regulations Consignment Note.
From www.scribd.com
Hazardous Waste Regulations 2005 Consignment Note Carrier Copy PDF The Hazardous Waste Regulations Consignment Note (a) a consignment note shall be completed in accordance with paragraph (2) of this regulation and the requirements of the relevant regulation. When hazardous waste is moved it must be accompanied by correctly completed paperwork called a consignment note. You must also assign an additional letter at the end of the consignment note code for certain types of consignment. A. The Hazardous Waste Regulations Consignment Note.
From www.sampletemplates.com
FREE 8+ Consignment Note Samples in MS Word PDF The Hazardous Waste Regulations Consignment Note (a) a consignment note shall be completed in accordance with paragraph (2) of this regulation and the requirements of the relevant regulation. I confirm that i have fulfilled my duty to apply the waste hierarchy as required by regulation 12 of the waste (england and wales) regulations. A consignment note will have five sections. When hazardous waste is moved it. The Hazardous Waste Regulations Consignment Note.
From www.youtube.com
How to complete hazardous waste consignment notes YouTube The Hazardous Waste Regulations Consignment Note A completed consignment note must accompany hazardous waste when moved from any premises. When hazardous waste is moved it must be accompanied by correctly completed paperwork called a consignment note. You must also assign an additional letter at the end of the consignment note code for certain types of consignment. I confirm that i have fulfilled my duty to apply. The Hazardous Waste Regulations Consignment Note.
From www.legislation.gov.uk
The Hazardous Waste (England and Wales)Regulations 2005 The Hazardous Waste Regulations Consignment Note A consignment note will have five sections. When hazardous waste is moved it must be accompanied by correctly completed paperwork called a consignment note. A completed consignment note must accompany hazardous waste when moved from any premises. I confirm that i have fulfilled my duty to apply the waste hierarchy as required by regulation 12 of the waste (england and. The Hazardous Waste Regulations Consignment Note.
From www.amazon.co.uk
Ocean Pads Hazardous Waste Consignment Note Pad HWCN01v112, A4, 3Parts The Hazardous Waste Regulations Consignment Note A completed consignment note must accompany hazardous waste when moved from any premises. I confirm that i have fulfilled my duty to apply the waste hierarchy as required by regulation 12 of the waste (england and wales) regulations. When hazardous waste is moved it must be accompanied by correctly completed paperwork called a consignment note. You (the consignor) will complete. The Hazardous Waste Regulations Consignment Note.
From www.oceanpads.co.uk
Environment Agency Hazardous Waste Consignment Note HWCN01v112 (70208 The Hazardous Waste Regulations Consignment Note You (the consignor) will complete sections a and b before the collection takes place. A consignment note will have five sections. You must also assign an additional letter at the end of the consignment note code for certain types of consignment. Certify that the information in a, b and c has been completed and is correct, that the carrier is. The Hazardous Waste Regulations Consignment Note.
From www.mywastesolution.com
Hazardous Waste Regulation Forms Your Ultimate Guide The Hazardous Waste Regulations Consignment Note A completed consignment note must accompany hazardous waste when moved from any premises. You (the consignor) will complete sections a and b before the collection takes place. Certify that the information in a, b and c has been completed and is correct, that the carrier is registered or exempt and was advised of the. I confirm that i have fulfilled. The Hazardous Waste Regulations Consignment Note.
From www.scribd.com
Hazardous Consignment Note Blank PDF Hazardous Waste Email The Hazardous Waste Regulations Consignment Note (a) a consignment note shall be completed in accordance with paragraph (2) of this regulation and the requirements of the relevant regulation. A consignment note will have five sections. I confirm that i have fulfilled my duty to apply the waste hierarchy as required by regulation 12 of the waste (england and wales) regulations. A completed consignment note must accompany. The Hazardous Waste Regulations Consignment Note.
From www.vrogue.co
Hazardous Waste Consignment Note Fill Out And Sign Pr vrogue.co The Hazardous Waste Regulations Consignment Note I confirm that i have fulfilled my duty to apply the waste hierarchy as required by regulation 12 of the waste (england and wales) regulations. A completed consignment note must accompany hazardous waste when moved from any premises. (a) a consignment note shall be completed in accordance with paragraph (2) of this regulation and the requirements of the relevant regulation.. The Hazardous Waste Regulations Consignment Note.
From exopfunpd.blob.core.windows.net
How To Fill In A Hazardous Waste Consignment Note at Kelly Rosales blog The Hazardous Waste Regulations Consignment Note I confirm that i have fulfilled my duty to apply the waste hierarchy as required by regulation 12 of the waste (england and wales) regulations. You (the consignor) will complete sections a and b before the collection takes place. (a) a consignment note shall be completed in accordance with paragraph (2) of this regulation and the requirements of the relevant. The Hazardous Waste Regulations Consignment Note.
From www.wastenotes.co.uk
Hazardous Waste Consignment Notes The Hazardous Waste Regulations Consignment Note You (the consignor) will complete sections a and b before the collection takes place. Certify that the information in a, b and c has been completed and is correct, that the carrier is registered or exempt and was advised of the. I confirm that i have fulfilled my duty to apply the waste hierarchy as required by regulation 12 of. The Hazardous Waste Regulations Consignment Note.
From www.scribd.com
Guidelines On Using Waste Consignment Notes PDF Waste Hazardous Waste The Hazardous Waste Regulations Consignment Note I confirm that i have fulfilled my duty to apply the waste hierarchy as required by regulation 12 of the waste (england and wales) regulations. A consignment note will have five sections. (a) a consignment note shall be completed in accordance with paragraph (2) of this regulation and the requirements of the relevant regulation. A completed consignment note must accompany. The Hazardous Waste Regulations Consignment Note.
From www.vrogue.co
Hazardous Waste Consignment Note Fill Out And Sign Pr vrogue.co The Hazardous Waste Regulations Consignment Note Certify that the information in a, b and c has been completed and is correct, that the carrier is registered or exempt and was advised of the. (a) a consignment note shall be completed in accordance with paragraph (2) of this regulation and the requirements of the relevant regulation. I confirm that i have fulfilled my duty to apply the. The Hazardous Waste Regulations Consignment Note.
From www.360environmental.co.uk
360 Environmental Limited Hazardous Waste The Hazardous Waste Regulations Consignment Note A completed consignment note must accompany hazardous waste when moved from any premises. I confirm that i have fulfilled my duty to apply the waste hierarchy as required by regulation 12 of the waste (england and wales) regulations. (a) a consignment note shall be completed in accordance with paragraph (2) of this regulation and the requirements of the relevant regulation.. The Hazardous Waste Regulations Consignment Note.
From dsposal.uk
What is a hazardous waste consignment note? Dsposal The Hazardous Waste Regulations Consignment Note A consignment note will have five sections. Certify that the information in a, b and c has been completed and is correct, that the carrier is registered or exempt and was advised of the. I confirm that i have fulfilled my duty to apply the waste hierarchy as required by regulation 12 of the waste (england and wales) regulations. You. The Hazardous Waste Regulations Consignment Note.
From mdprintshop.co.uk
We Print Hazardous Waste Consignment Notes MD Print Shop The Hazardous Waste Regulations Consignment Note You must also assign an additional letter at the end of the consignment note code for certain types of consignment. I confirm that i have fulfilled my duty to apply the waste hierarchy as required by regulation 12 of the waste (england and wales) regulations. When hazardous waste is moved it must be accompanied by correctly completed paperwork called a. The Hazardous Waste Regulations Consignment Note.
From studylib.net
Premises notification for the hazardous waste regulations The Hazardous Waste Regulations Consignment Note A consignment note will have five sections. (a) a consignment note shall be completed in accordance with paragraph (2) of this regulation and the requirements of the relevant regulation. You must also assign an additional letter at the end of the consignment note code for certain types of consignment. You (the consignor) will complete sections a and b before the. The Hazardous Waste Regulations Consignment Note.
From oceanprint.co.uk
Hazardous Waste Consignment Notes Oceanprint The Hazardous Waste Regulations Consignment Note Certify that the information in a, b and c has been completed and is correct, that the carrier is registered or exempt and was advised of the. When hazardous waste is moved it must be accompanied by correctly completed paperwork called a consignment note. You must also assign an additional letter at the end of the consignment note code for. The Hazardous Waste Regulations Consignment Note.
From www.yumpu.com
The Hazardous Waste Regulations 2005 Multiple Collection Consignment Note The Hazardous Waste Regulations Consignment Note A consignment note will have five sections. (a) a consignment note shall be completed in accordance with paragraph (2) of this regulation and the requirements of the relevant regulation. I confirm that i have fulfilled my duty to apply the waste hierarchy as required by regulation 12 of the waste (england and wales) regulations. Certify that the information in a,. The Hazardous Waste Regulations Consignment Note.
From www.youtube.com
How to complete a hazardous waste consignment note. YouTube The Hazardous Waste Regulations Consignment Note I confirm that i have fulfilled my duty to apply the waste hierarchy as required by regulation 12 of the waste (england and wales) regulations. Certify that the information in a, b and c has been completed and is correct, that the carrier is registered or exempt and was advised of the. You (the consignor) will complete sections a and. The Hazardous Waste Regulations Consignment Note.
From tradeprintinguk.com
Hazardous Waste Consignment Books £95 printed NCR triplicate Books The Hazardous Waste Regulations Consignment Note (a) a consignment note shall be completed in accordance with paragraph (2) of this regulation and the requirements of the relevant regulation. A consignment note will have five sections. A completed consignment note must accompany hazardous waste when moved from any premises. Certify that the information in a, b and c has been completed and is correct, that the carrier. The Hazardous Waste Regulations Consignment Note.
From support.powerednow.com
Hazardous Waste Consignment Note (HWCN) The Hazardous Waste Regulations Consignment Note You (the consignor) will complete sections a and b before the collection takes place. Certify that the information in a, b and c has been completed and is correct, that the carrier is registered or exempt and was advised of the. A consignment note will have five sections. A completed consignment note must accompany hazardous waste when moved from any. The Hazardous Waste Regulations Consignment Note.
From dsposal.uk
What is a hazardous waste consignment note? Dsposal The Hazardous Waste Regulations Consignment Note Certify that the information in a, b and c has been completed and is correct, that the carrier is registered or exempt and was advised of the. (a) a consignment note shall be completed in accordance with paragraph (2) of this regulation and the requirements of the relevant regulation. You (the consignor) will complete sections a and b before the. The Hazardous Waste Regulations Consignment Note.
From dsposal.uk
What is a hazardous waste consignment note? Dsposal The Hazardous Waste Regulations Consignment Note I confirm that i have fulfilled my duty to apply the waste hierarchy as required by regulation 12 of the waste (england and wales) regulations. A consignment note will have five sections. You must also assign an additional letter at the end of the consignment note code for certain types of consignment. Certify that the information in a, b and. The Hazardous Waste Regulations Consignment Note.
From dsposal.uk
What is a hazardous waste consignment note? Dsposal The Hazardous Waste Regulations Consignment Note When hazardous waste is moved it must be accompanied by correctly completed paperwork called a consignment note. A completed consignment note must accompany hazardous waste when moved from any premises. (a) a consignment note shall be completed in accordance with paragraph (2) of this regulation and the requirements of the relevant regulation. You (the consignor) will complete sections a and. The Hazardous Waste Regulations Consignment Note.
From www.ebay.co.uk
Hazardous Waste Consignment Note (Triplicate A4) HWCN01v112 Pad (50 x 3 The Hazardous Waste Regulations Consignment Note You must also assign an additional letter at the end of the consignment note code for certain types of consignment. A consignment note will have five sections. A completed consignment note must accompany hazardous waste when moved from any premises. When hazardous waste is moved it must be accompanied by correctly completed paperwork called a consignment note. I confirm that. The Hazardous Waste Regulations Consignment Note.