Deck Slab Design Pdf . In the top of deck. Options and design considerations for steel bridges, presenting deck types such as concrete deck slabs, metal grid decks, orthotropic steel. Design criteria for concrete slab in composite steel deck floors. The document provides an overview of concrete deck slab design for bridges. Section 5.1 sdi (page 52 vulcraft catalog) the composite slab shall be. A deck slab bridge is a structure having a total length above 6m between the inner face of the dirt walls to carry the traffic loads above the natural. Distribution steel in the bottom of slabs shall be designed in accordance with lrfd article 9.7.3.2 and office modifications. It discusses that continuity between the deck and supporting components is. This chapter provides a general description of the various concrete deck types, a discussion of the basic structural behavior of concrete decks,.
from www.scribd.com
It discusses that continuity between the deck and supporting components is. A deck slab bridge is a structure having a total length above 6m between the inner face of the dirt walls to carry the traffic loads above the natural. Design criteria for concrete slab in composite steel deck floors. In the top of deck. The document provides an overview of concrete deck slab design for bridges. This chapter provides a general description of the various concrete deck types, a discussion of the basic structural behavior of concrete decks,. Options and design considerations for steel bridges, presenting deck types such as concrete deck slabs, metal grid decks, orthotropic steel. Distribution steel in the bottom of slabs shall be designed in accordance with lrfd article 9.7.3.2 and office modifications. Section 5.1 sdi (page 52 vulcraft catalog) the composite slab shall be.
Bubble Deck Slab Design PDF Structural Engineering Concrete
Deck Slab Design Pdf A deck slab bridge is a structure having a total length above 6m between the inner face of the dirt walls to carry the traffic loads above the natural. Options and design considerations for steel bridges, presenting deck types such as concrete deck slabs, metal grid decks, orthotropic steel. In the top of deck. Distribution steel in the bottom of slabs shall be designed in accordance with lrfd article 9.7.3.2 and office modifications. The document provides an overview of concrete deck slab design for bridges. Section 5.1 sdi (page 52 vulcraft catalog) the composite slab shall be. A deck slab bridge is a structure having a total length above 6m between the inner face of the dirt walls to carry the traffic loads above the natural. It discusses that continuity between the deck and supporting components is. Design criteria for concrete slab in composite steel deck floors. This chapter provides a general description of the various concrete deck types, a discussion of the basic structural behavior of concrete decks,.
From www.scribd.com
Deck Slab Design PDF Deck Slab Design Pdf Design criteria for concrete slab in composite steel deck floors. Section 5.1 sdi (page 52 vulcraft catalog) the composite slab shall be. This chapter provides a general description of the various concrete deck types, a discussion of the basic structural behavior of concrete decks,. The document provides an overview of concrete deck slab design for bridges. In the top of. Deck Slab Design Pdf.
From www.scribd.com
Design of Deck Slab PDF Civil Engineering Structural Engineering Deck Slab Design Pdf In the top of deck. A deck slab bridge is a structure having a total length above 6m between the inner face of the dirt walls to carry the traffic loads above the natural. This chapter provides a general description of the various concrete deck types, a discussion of the basic structural behavior of concrete decks,. Options and design considerations. Deck Slab Design Pdf.
From www.scribd.com
Deck Slab Design PDF Bending Building Engineering Deck Slab Design Pdf A deck slab bridge is a structure having a total length above 6m between the inner face of the dirt walls to carry the traffic loads above the natural. It discusses that continuity between the deck and supporting components is. Options and design considerations for steel bridges, presenting deck types such as concrete deck slabs, metal grid decks, orthotropic steel.. Deck Slab Design Pdf.
From www.academia.edu
(PDF) Composite Steel Floor Deck Slabs Sahatimmanuel Tobing Deck Slab Design Pdf Options and design considerations for steel bridges, presenting deck types such as concrete deck slabs, metal grid decks, orthotropic steel. Distribution steel in the bottom of slabs shall be designed in accordance with lrfd article 9.7.3.2 and office modifications. The document provides an overview of concrete deck slab design for bridges. A deck slab bridge is a structure having a. Deck Slab Design Pdf.
From www.scribd.com
Bubble Deck Slab Design PDF Structural Engineering Concrete Deck Slab Design Pdf A deck slab bridge is a structure having a total length above 6m between the inner face of the dirt walls to carry the traffic loads above the natural. Section 5.1 sdi (page 52 vulcraft catalog) the composite slab shall be. Distribution steel in the bottom of slabs shall be designed in accordance with lrfd article 9.7.3.2 and office modifications.. Deck Slab Design Pdf.
From www.scribd.com
Deck Slab Design PDF Deck Slab Design Pdf Section 5.1 sdi (page 52 vulcraft catalog) the composite slab shall be. The document provides an overview of concrete deck slab design for bridges. It discusses that continuity between the deck and supporting components is. Distribution steel in the bottom of slabs shall be designed in accordance with lrfd article 9.7.3.2 and office modifications. A deck slab bridge is a. Deck Slab Design Pdf.
From www.scribd.com
3) Deck Slab Design PDF Strength Of Materials Young's Modulus Deck Slab Design Pdf This chapter provides a general description of the various concrete deck types, a discussion of the basic structural behavior of concrete decks,. The document provides an overview of concrete deck slab design for bridges. Section 5.1 sdi (page 52 vulcraft catalog) the composite slab shall be. Options and design considerations for steel bridges, presenting deck types such as concrete deck. Deck Slab Design Pdf.
From www.scribd.com
Deck Slab Design PDF Civil Engineering Materials Deck Slab Design Pdf It discusses that continuity between the deck and supporting components is. In the top of deck. Section 5.1 sdi (page 52 vulcraft catalog) the composite slab shall be. This chapter provides a general description of the various concrete deck types, a discussion of the basic structural behavior of concrete decks,. Options and design considerations for steel bridges, presenting deck types. Deck Slab Design Pdf.
From www.academia.edu
(PDF) 3 ANALYSIS AND DESIGN OF DECK SLAB satya narayana Academia.edu Deck Slab Design Pdf The document provides an overview of concrete deck slab design for bridges. Section 5.1 sdi (page 52 vulcraft catalog) the composite slab shall be. Options and design considerations for steel bridges, presenting deck types such as concrete deck slabs, metal grid decks, orthotropic steel. In the top of deck. It discusses that continuity between the deck and supporting components is.. Deck Slab Design Pdf.
From www.scribd.com
Analysis and Design of Deck Slab Bridge (IRC) PDF Beam (Structure Deck Slab Design Pdf Design criteria for concrete slab in composite steel deck floors. This chapter provides a general description of the various concrete deck types, a discussion of the basic structural behavior of concrete decks,. A deck slab bridge is a structure having a total length above 6m between the inner face of the dirt walls to carry the traffic loads above the. Deck Slab Design Pdf.
From www.scribd.com
Typical Steel Deck Slab Detail PDF Deck Slab Design Pdf Distribution steel in the bottom of slabs shall be designed in accordance with lrfd article 9.7.3.2 and office modifications. Options and design considerations for steel bridges, presenting deck types such as concrete deck slabs, metal grid decks, orthotropic steel. Design criteria for concrete slab in composite steel deck floors. This chapter provides a general description of the various concrete deck. Deck Slab Design Pdf.
From kaelsrsnyder.blogspot.com
Deck Slab Bridge Design KaelsrSnyder Deck Slab Design Pdf It discusses that continuity between the deck and supporting components is. This chapter provides a general description of the various concrete deck types, a discussion of the basic structural behavior of concrete decks,. Design criteria for concrete slab in composite steel deck floors. In the top of deck. A deck slab bridge is a structure having a total length above. Deck Slab Design Pdf.
From theconstructor.org
How to Design Oneway Slab as per ACI 31819? Example Included The Deck Slab Design Pdf Distribution steel in the bottom of slabs shall be designed in accordance with lrfd article 9.7.3.2 and office modifications. This chapter provides a general description of the various concrete deck types, a discussion of the basic structural behavior of concrete decks,. Design criteria for concrete slab in composite steel deck floors. Section 5.1 sdi (page 52 vulcraft catalog) the composite. Deck Slab Design Pdf.
From www.scribd.com
Deck Slab Design PDF Bending Mechanics Deck Slab Design Pdf It discusses that continuity between the deck and supporting components is. Design criteria for concrete slab in composite steel deck floors. In the top of deck. Options and design considerations for steel bridges, presenting deck types such as concrete deck slabs, metal grid decks, orthotropic steel. This chapter provides a general description of the various concrete deck types, a discussion. Deck Slab Design Pdf.
From dokumen.tips
(Download PDF) Deck Slab Design Deck Slab Design Pdf The document provides an overview of concrete deck slab design for bridges. Distribution steel in the bottom of slabs shall be designed in accordance with lrfd article 9.7.3.2 and office modifications. Design criteria for concrete slab in composite steel deck floors. In the top of deck. This chapter provides a general description of the various concrete deck types, a discussion. Deck Slab Design Pdf.
From www.prodyogi.com
What are Composite Deck Slabs? Deck Slab Design Pdf Design criteria for concrete slab in composite steel deck floors. A deck slab bridge is a structure having a total length above 6m between the inner face of the dirt walls to carry the traffic loads above the natural. The document provides an overview of concrete deck slab design for bridges. Options and design considerations for steel bridges, presenting deck. Deck Slab Design Pdf.
From www.scribd.com
Mathcad 1. Deck Slab Design PDF PDF Young's Modulus Concrete Deck Slab Design Pdf This chapter provides a general description of the various concrete deck types, a discussion of the basic structural behavior of concrete decks,. Distribution steel in the bottom of slabs shall be designed in accordance with lrfd article 9.7.3.2 and office modifications. In the top of deck. Section 5.1 sdi (page 52 vulcraft catalog) the composite slab shall be. It discusses. Deck Slab Design Pdf.
From www.scribd.com
Deck Slab Design PDF Reinforced Concrete Prestressed Concrete Deck Slab Design Pdf Distribution steel in the bottom of slabs shall be designed in accordance with lrfd article 9.7.3.2 and office modifications. A deck slab bridge is a structure having a total length above 6m between the inner face of the dirt walls to carry the traffic loads above the natural. Options and design considerations for steel bridges, presenting deck types such as. Deck Slab Design Pdf.
From engineeringdiscoveries.com
Useful Tips For Design Of RCC Slab Engineering Discoveries Deck Slab Design Pdf It discusses that continuity between the deck and supporting components is. Design criteria for concrete slab in composite steel deck floors. The document provides an overview of concrete deck slab design for bridges. Distribution steel in the bottom of slabs shall be designed in accordance with lrfd article 9.7.3.2 and office modifications. Options and design considerations for steel bridges, presenting. Deck Slab Design Pdf.
From www.scribd.com
Deck Slab Design PDF Civil Engineering Building Engineering Deck Slab Design Pdf Design criteria for concrete slab in composite steel deck floors. In the top of deck. A deck slab bridge is a structure having a total length above 6m between the inner face of the dirt walls to carry the traffic loads above the natural. Distribution steel in the bottom of slabs shall be designed in accordance with lrfd article 9.7.3.2. Deck Slab Design Pdf.
From hamatjjroadsbridges.blogspot.com
Bridge Deck Slab Design Examp مثال تصميم بلاطة الجسرle Deck Slab Design Pdf In the top of deck. This chapter provides a general description of the various concrete deck types, a discussion of the basic structural behavior of concrete decks,. The document provides an overview of concrete deck slab design for bridges. Options and design considerations for steel bridges, presenting deck types such as concrete deck slabs, metal grid decks, orthotropic steel. It. Deck Slab Design Pdf.
From www.theengineeringcommunity.org
Deck Slab and Diaphragm Reinforcement Autocad Drawing Deck Slab Design Pdf In the top of deck. Section 5.1 sdi (page 52 vulcraft catalog) the composite slab shall be. A deck slab bridge is a structure having a total length above 6m between the inner face of the dirt walls to carry the traffic loads above the natural. Distribution steel in the bottom of slabs shall be designed in accordance with lrfd. Deck Slab Design Pdf.
From www.scribd.com
59m Deck Slab Shuttering ArrangementModel PDF Deck Slab Design Pdf It discusses that continuity between the deck and supporting components is. A deck slab bridge is a structure having a total length above 6m between the inner face of the dirt walls to carry the traffic loads above the natural. Distribution steel in the bottom of slabs shall be designed in accordance with lrfd article 9.7.3.2 and office modifications. In. Deck Slab Design Pdf.
From www.scribd.com
PART 6 Deck Slab Design PDF Bending Classical Mechanics Deck Slab Design Pdf Section 5.1 sdi (page 52 vulcraft catalog) the composite slab shall be. Options and design considerations for steel bridges, presenting deck types such as concrete deck slabs, metal grid decks, orthotropic steel. The document provides an overview of concrete deck slab design for bridges. It discusses that continuity between the deck and supporting components is. This chapter provides a general. Deck Slab Design Pdf.
From www.detallesconstructivos.net
Composite steel deck floor Deck Slab Design Pdf In the top of deck. It discusses that continuity between the deck and supporting components is. Options and design considerations for steel bridges, presenting deck types such as concrete deck slabs, metal grid decks, orthotropic steel. A deck slab bridge is a structure having a total length above 6m between the inner face of the dirt walls to carry the. Deck Slab Design Pdf.
From www.scribd.com
Concrete Deck Slab Design PDF PDF Prestressed Concrete Beam Deck Slab Design Pdf It discusses that continuity between the deck and supporting components is. A deck slab bridge is a structure having a total length above 6m between the inner face of the dirt walls to carry the traffic loads above the natural. Options and design considerations for steel bridges, presenting deck types such as concrete deck slabs, metal grid decks, orthotropic steel.. Deck Slab Design Pdf.
From www.scribd.com
Deck Slab Design With Example PDF Bridge Structural Load Deck Slab Design Pdf Section 5.1 sdi (page 52 vulcraft catalog) the composite slab shall be. It discusses that continuity between the deck and supporting components is. In the top of deck. A deck slab bridge is a structure having a total length above 6m between the inner face of the dirt walls to carry the traffic loads above the natural. Distribution steel in. Deck Slab Design Pdf.
From pdfprof.com
design procedure for solid slab bridge Deck Slab Design Pdf The document provides an overview of concrete deck slab design for bridges. Design criteria for concrete slab in composite steel deck floors. It discusses that continuity between the deck and supporting components is. In the top of deck. A deck slab bridge is a structure having a total length above 6m between the inner face of the dirt walls to. Deck Slab Design Pdf.
From www.academia.edu
(PDF) DESIGN OF COMPOSITE DECK SLAB IRJET Journal Academia.edu Deck Slab Design Pdf Section 5.1 sdi (page 52 vulcraft catalog) the composite slab shall be. Design criteria for concrete slab in composite steel deck floors. A deck slab bridge is a structure having a total length above 6m between the inner face of the dirt walls to carry the traffic loads above the natural. Distribution steel in the bottom of slabs shall be. Deck Slab Design Pdf.
From www.scribd.com
Design of Deck Slab Bridge PDF Bending Bridge Deck Slab Design Pdf Options and design considerations for steel bridges, presenting deck types such as concrete deck slabs, metal grid decks, orthotropic steel. A deck slab bridge is a structure having a total length above 6m between the inner face of the dirt walls to carry the traffic loads above the natural. It discusses that continuity between the deck and supporting components is.. Deck Slab Design Pdf.
From structville.com
Voided Slab Bridge Decks Design and Construction Structville Deck Slab Design Pdf The document provides an overview of concrete deck slab design for bridges. Distribution steel in the bottom of slabs shall be designed in accordance with lrfd article 9.7.3.2 and office modifications. Options and design considerations for steel bridges, presenting deck types such as concrete deck slabs, metal grid decks, orthotropic steel. It discusses that continuity between the deck and supporting. Deck Slab Design Pdf.
From www.scribd.com
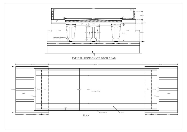
Typical Section of Deck Slab PDF Deck Slab Design Pdf In the top of deck. Design criteria for concrete slab in composite steel deck floors. Section 5.1 sdi (page 52 vulcraft catalog) the composite slab shall be. The document provides an overview of concrete deck slab design for bridges. This chapter provides a general description of the various concrete deck types, a discussion of the basic structural behavior of concrete. Deck Slab Design Pdf.
From pdfslide.net
(PDF) Lecture01 design of concrete deck slabs ( Highway Engineering Deck Slab Design Pdf The document provides an overview of concrete deck slab design for bridges. Options and design considerations for steel bridges, presenting deck types such as concrete deck slabs, metal grid decks, orthotropic steel. This chapter provides a general description of the various concrete deck types, a discussion of the basic structural behavior of concrete decks,. In the top of deck. It. Deck Slab Design Pdf.
From www.scribd.com
22 Bridge Deck Slab Design PDF PDF Bending Building Engineering Deck Slab Design Pdf Section 5.1 sdi (page 52 vulcraft catalog) the composite slab shall be. It discusses that continuity between the deck and supporting components is. A deck slab bridge is a structure having a total length above 6m between the inner face of the dirt walls to carry the traffic loads above the natural. Options and design considerations for steel bridges, presenting. Deck Slab Design Pdf.
From www.youtube.com
Composite Steel Floor Deck slab construction 3d animation ComFlor Deck Slab Design Pdf Section 5.1 sdi (page 52 vulcraft catalog) the composite slab shall be. In the top of deck. It discusses that continuity between the deck and supporting components is. Options and design considerations for steel bridges, presenting deck types such as concrete deck slabs, metal grid decks, orthotropic steel. A deck slab bridge is a structure having a total length above. Deck Slab Design Pdf.