Electronic Shifting Explained . I’ll also outline a few of the more. Over the last 10 years, electronic shifting has become more mainstream. Di2 gives you instant, accurate,. Is electronic shifting worth the extra money? The gear shifting experience is basically better in every way when you go electric, and this is the prime. Here we discuss the highs and lows of electronic shifting over mechanical. Electronic bike shifting is controlled by firmware, but no company has released a firmware version that allows for adjusting the number of drivetrain speeds. So if your bike has. This guide outlines the pros and cons of electronic vs mechanical shifting to help you decide which type of drivetrain is best for your style of riding.
from kbobike.com
Electronic bike shifting is controlled by firmware, but no company has released a firmware version that allows for adjusting the number of drivetrain speeds. Di2 gives you instant, accurate,. I’ll also outline a few of the more. Over the last 10 years, electronic shifting has become more mainstream. Is electronic shifting worth the extra money? This guide outlines the pros and cons of electronic vs mechanical shifting to help you decide which type of drivetrain is best for your style of riding. Here we discuss the highs and lows of electronic shifting over mechanical. The gear shifting experience is basically better in every way when you go electric, and this is the prime. So if your bike has.
Electric Bike Gear Shifting Explained for Beginners KBO Bike
Electronic Shifting Explained Is electronic shifting worth the extra money? Is electronic shifting worth the extra money? This guide outlines the pros and cons of electronic vs mechanical shifting to help you decide which type of drivetrain is best for your style of riding. Electronic bike shifting is controlled by firmware, but no company has released a firmware version that allows for adjusting the number of drivetrain speeds. I’ll also outline a few of the more. The gear shifting experience is basically better in every way when you go electric, and this is the prime. Di2 gives you instant, accurate,. So if your bike has. Over the last 10 years, electronic shifting has become more mainstream. Here we discuss the highs and lows of electronic shifting over mechanical.
From biketips.com
Electronic Bike Shifters The Complete Guide Electronic Shifting Explained This guide outlines the pros and cons of electronic vs mechanical shifting to help you decide which type of drivetrain is best for your style of riding. Di2 gives you instant, accurate,. I’ll also outline a few of the more. Over the last 10 years, electronic shifting has become more mainstream. Is electronic shifting worth the extra money? Here we. Electronic Shifting Explained.
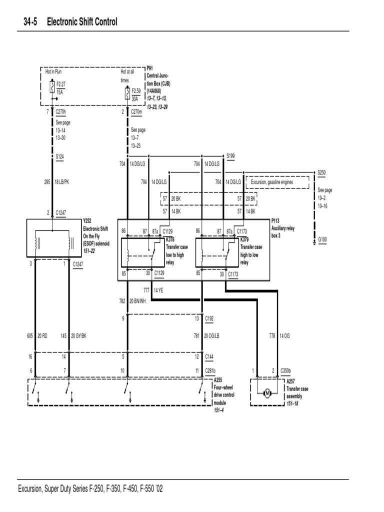
From www.scribd.com
345 Electronic Shift Control Wiring PDF Electronic Shifting Explained Is electronic shifting worth the extra money? Here we discuss the highs and lows of electronic shifting over mechanical. So if your bike has. Electronic bike shifting is controlled by firmware, but no company has released a firmware version that allows for adjusting the number of drivetrain speeds. Over the last 10 years, electronic shifting has become more mainstream. I’ll. Electronic Shifting Explained.
From bikespalmbeach.com
Benefits of Electronic Shifting Bikes Palm Beach Electronic Shifting Explained This guide outlines the pros and cons of electronic vs mechanical shifting to help you decide which type of drivetrain is best for your style of riding. Is electronic shifting worth the extra money? So if your bike has. The gear shifting experience is basically better in every way when you go electric, and this is the prime. Here we. Electronic Shifting Explained.
From ebike.ai
What Is Electronic Shifting eBikeAI Electronic Shifting Explained Is electronic shifting worth the extra money? Di2 gives you instant, accurate,. Here we discuss the highs and lows of electronic shifting over mechanical. Electronic bike shifting is controlled by firmware, but no company has released a firmware version that allows for adjusting the number of drivetrain speeds. The gear shifting experience is basically better in every way when you. Electronic Shifting Explained.
From www.youtube.com
Electric Motor Phase Shift Explained Capacitor Start Motor YouTube Electronic Shifting Explained The gear shifting experience is basically better in every way when you go electric, and this is the prime. Di2 gives you instant, accurate,. Electronic bike shifting is controlled by firmware, but no company has released a firmware version that allows for adjusting the number of drivetrain speeds. I’ll also outline a few of the more. Over the last 10. Electronic Shifting Explained.
From www.cyclistshub.com
Electronic vs. Mechanical Shifting Pros & Cons Explained Electronic Shifting Explained I’ll also outline a few of the more. The gear shifting experience is basically better in every way when you go electric, and this is the prime. Here we discuss the highs and lows of electronic shifting over mechanical. Di2 gives you instant, accurate,. Electronic bike shifting is controlled by firmware, but no company has released a firmware version that. Electronic Shifting Explained.
From www.streetmusclemag.com
ETC 101 Introduction To US Shift Electronic Transmission Controls Electronic Shifting Explained Is electronic shifting worth the extra money? The gear shifting experience is basically better in every way when you go electric, and this is the prime. Di2 gives you instant, accurate,. Here we discuss the highs and lows of electronic shifting over mechanical. This guide outlines the pros and cons of electronic vs mechanical shifting to help you decide which. Electronic Shifting Explained.
From kbobike.com
Electric Bike Gear Shifting Explained for Beginners KBO Bike Electronic Shifting Explained This guide outlines the pros and cons of electronic vs mechanical shifting to help you decide which type of drivetrain is best for your style of riding. The gear shifting experience is basically better in every way when you go electric, and this is the prime. Over the last 10 years, electronic shifting has become more mainstream. Electronic bike shifting. Electronic Shifting Explained.
From mountainbikesride.com
How To Shift Gears On A Bike Shifting Explained Mountain Bikes Ride Electronic Shifting Explained Is electronic shifting worth the extra money? Electronic bike shifting is controlled by firmware, but no company has released a firmware version that allows for adjusting the number of drivetrain speeds. Di2 gives you instant, accurate,. The gear shifting experience is basically better in every way when you go electric, and this is the prime. Here we discuss the highs. Electronic Shifting Explained.
From www.cyclistshub.com
Electronic vs. Mechanical Shifting Pros & Cons Explained Electronic Shifting Explained Over the last 10 years, electronic shifting has become more mainstream. Electronic bike shifting is controlled by firmware, but no company has released a firmware version that allows for adjusting the number of drivetrain speeds. The gear shifting experience is basically better in every way when you go electric, and this is the prime. Is electronic shifting worth the extra. Electronic Shifting Explained.
From peacecommission.kdsg.gov.ng
Road Bike Electronic Gear Shift Electronic Shifting Explained I’ll also outline a few of the more. Is electronic shifting worth the extra money? Here we discuss the highs and lows of electronic shifting over mechanical. Electronic bike shifting is controlled by firmware, but no company has released a firmware version that allows for adjusting the number of drivetrain speeds. Over the last 10 years, electronic shifting has become. Electronic Shifting Explained.
From www.cyclistshub.com
Electronic vs. Mechanical Shifting Pros & Cons Explained Electronic Shifting Explained Is electronic shifting worth the extra money? Over the last 10 years, electronic shifting has become more mainstream. Electronic bike shifting is controlled by firmware, but no company has released a firmware version that allows for adjusting the number of drivetrain speeds. So if your bike has. The gear shifting experience is basically better in every way when you go. Electronic Shifting Explained.
From www.carparts.com
Automatic Gear Shift Letters and Numbers Explained In The Garage with Electronic Shifting Explained Is electronic shifting worth the extra money? Over the last 10 years, electronic shifting has become more mainstream. This guide outlines the pros and cons of electronic vs mechanical shifting to help you decide which type of drivetrain is best for your style of riding. Here we discuss the highs and lows of electronic shifting over mechanical. Electronic bike shifting. Electronic Shifting Explained.
From kbobike.com
Electric Bike Gear Shifting Explained for Beginners KBO Bike Electronic Shifting Explained Here we discuss the highs and lows of electronic shifting over mechanical. The gear shifting experience is basically better in every way when you go electric, and this is the prime. I’ll also outline a few of the more. Over the last 10 years, electronic shifting has become more mainstream. Di2 gives you instant, accurate,. Is electronic shifting worth the. Electronic Shifting Explained.
From www.cyclistshub.com
Electronic vs. Mechanical Shifting Pros & Cons Explained Electronic Shifting Explained Here we discuss the highs and lows of electronic shifting over mechanical. This guide outlines the pros and cons of electronic vs mechanical shifting to help you decide which type of drivetrain is best for your style of riding. Is electronic shifting worth the extra money? Over the last 10 years, electronic shifting has become more mainstream. I’ll also outline. Electronic Shifting Explained.
From www.youtube.com
Shimano Di2 Synchro Shifting Explained YouTube Electronic Shifting Explained Here we discuss the highs and lows of electronic shifting over mechanical. Di2 gives you instant, accurate,. Over the last 10 years, electronic shifting has become more mainstream. This guide outlines the pros and cons of electronic vs mechanical shifting to help you decide which type of drivetrain is best for your style of riding. The gear shifting experience is. Electronic Shifting Explained.
From www.youtube.com
How Does Shimano Di2 Synchro Shifting Work? Electronic Bike Gear Shifts Explained YouTube Electronic Shifting Explained This guide outlines the pros and cons of electronic vs mechanical shifting to help you decide which type of drivetrain is best for your style of riding. I’ll also outline a few of the more. Electronic bike shifting is controlled by firmware, but no company has released a firmware version that allows for adjusting the number of drivetrain speeds. Here. Electronic Shifting Explained.
From www.youtube.com
How To Shift Gears In An Automatic CarDriving Tutorial YouTube Electronic Shifting Explained Over the last 10 years, electronic shifting has become more mainstream. So if your bike has. Here we discuss the highs and lows of electronic shifting over mechanical. The gear shifting experience is basically better in every way when you go electric, and this is the prime. Is electronic shifting worth the extra money? Di2 gives you instant, accurate,. I’ll. Electronic Shifting Explained.
From www.youtube.com
DIGITAL ELECTRONICS AND LOGIC DESIGN SHIFT REGISTERS SISO 1 YouTube Electronic Shifting Explained So if your bike has. This guide outlines the pros and cons of electronic vs mechanical shifting to help you decide which type of drivetrain is best for your style of riding. Di2 gives you instant, accurate,. Here we discuss the highs and lows of electronic shifting over mechanical. Over the last 10 years, electronic shifting has become more mainstream.. Electronic Shifting Explained.
From headtopics.com
Complete guide to electronic gears your bike's shifting, indexing and charging explained Electronic Shifting Explained This guide outlines the pros and cons of electronic vs mechanical shifting to help you decide which type of drivetrain is best for your style of riding. Electronic bike shifting is controlled by firmware, but no company has released a firmware version that allows for adjusting the number of drivetrain speeds. The gear shifting experience is basically better in every. Electronic Shifting Explained.
From www.electroniclinic.com
Different Types of Shift Registers In Digital Electronics Electronic Shifting Explained Over the last 10 years, electronic shifting has become more mainstream. Di2 gives you instant, accurate,. So if your bike has. This guide outlines the pros and cons of electronic vs mechanical shifting to help you decide which type of drivetrain is best for your style of riding. Here we discuss the highs and lows of electronic shifting over mechanical.. Electronic Shifting Explained.
From www.electroniclinic.com
Different Types of Shift Registers In Digital Electronics Electronic Shifting Explained Electronic bike shifting is controlled by firmware, but no company has released a firmware version that allows for adjusting the number of drivetrain speeds. So if your bike has. Here we discuss the highs and lows of electronic shifting over mechanical. The gear shifting experience is basically better in every way when you go electric, and this is the prime.. Electronic Shifting Explained.
From www.cyclistshub.com
Electronic vs. Mechanical Shifting Pros & Cons Explained Electronic Shifting Explained Here we discuss the highs and lows of electronic shifting over mechanical. This guide outlines the pros and cons of electronic vs mechanical shifting to help you decide which type of drivetrain is best for your style of riding. So if your bike has. Electronic bike shifting is controlled by firmware, but no company has released a firmware version that. Electronic Shifting Explained.
From www.bikeexchange.com
Shimano Di2 Synchro Shifting Explained Electronic Shifting Explained The gear shifting experience is basically better in every way when you go electric, and this is the prime. Electronic bike shifting is controlled by firmware, but no company has released a firmware version that allows for adjusting the number of drivetrain speeds. So if your bike has. Over the last 10 years, electronic shifting has become more mainstream. This. Electronic Shifting Explained.
From www.electroniclinic.com
Shift Register Shift Right and Shift Left Registers with circuit diagram Electronic Shifting Explained This guide outlines the pros and cons of electronic vs mechanical shifting to help you decide which type of drivetrain is best for your style of riding. I’ll also outline a few of the more. Electronic bike shifting is controlled by firmware, but no company has released a firmware version that allows for adjusting the number of drivetrain speeds. So. Electronic Shifting Explained.
From www.cyclistshub.com
Electronic vs. Mechanical Shifting Pros & Cons Explained Electronic Shifting Explained Here we discuss the highs and lows of electronic shifting over mechanical. Electronic bike shifting is controlled by firmware, but no company has released a firmware version that allows for adjusting the number of drivetrain speeds. The gear shifting experience is basically better in every way when you go electric, and this is the prime. This guide outlines the pros. Electronic Shifting Explained.
From www.youtube.com
Cable Shifting Vs Electronic Shifting (For Road Bikes) YouTube Electronic Shifting Explained I’ll also outline a few of the more. Di2 gives you instant, accurate,. The gear shifting experience is basically better in every way when you go electric, and this is the prime. Here we discuss the highs and lows of electronic shifting over mechanical. Over the last 10 years, electronic shifting has become more mainstream. Is electronic shifting worth the. Electronic Shifting Explained.
From www.youtube.com
When and how to use driver shift control? Chevrolet Complete Care YouTube Electronic Shifting Explained The gear shifting experience is basically better in every way when you go electric, and this is the prime. I’ll also outline a few of the more. Is electronic shifting worth the extra money? Over the last 10 years, electronic shifting has become more mainstream. So if your bike has. Di2 gives you instant, accurate,. Here we discuss the highs. Electronic Shifting Explained.
From bikexchange.com
Electronic vs Mechanical Shifting Exploring the Pros and Cons Electronic Shifting Explained Is electronic shifting worth the extra money? Over the last 10 years, electronic shifting has become more mainstream. Electronic bike shifting is controlled by firmware, but no company has released a firmware version that allows for adjusting the number of drivetrain speeds. Di2 gives you instant, accurate,. The gear shifting experience is basically better in every way when you go. Electronic Shifting Explained.
From fixwiringwoodhouse.z21.web.core.windows.net
Manual Car Gears Explained Electronic Shifting Explained Over the last 10 years, electronic shifting has become more mainstream. Di2 gives you instant, accurate,. I’ll also outline a few of the more. So if your bike has. Is electronic shifting worth the extra money? Here we discuss the highs and lows of electronic shifting over mechanical. Electronic bike shifting is controlled by firmware, but no company has released. Electronic Shifting Explained.
From www.cyclistshub.com
Electronic vs. Mechanical Shifting Pros & Cons Explained Electronic Shifting Explained Is electronic shifting worth the extra money? Here we discuss the highs and lows of electronic shifting over mechanical. Over the last 10 years, electronic shifting has become more mainstream. The gear shifting experience is basically better in every way when you go electric, and this is the prime. Electronic bike shifting is controlled by firmware, but no company has. Electronic Shifting Explained.
From www.youtube.com
Electronics Shifting the phase of an Arduino PWM YouTube Electronic Shifting Explained The gear shifting experience is basically better in every way when you go electric, and this is the prime. I’ll also outline a few of the more. So if your bike has. Here we discuss the highs and lows of electronic shifting over mechanical. This guide outlines the pros and cons of electronic vs mechanical shifting to help you decide. Electronic Shifting Explained.
From www.shiftfx.com
Electronic Shift Transmission ShiftFX Electronic Shifting Explained Is electronic shifting worth the extra money? I’ll also outline a few of the more. Electronic bike shifting is controlled by firmware, but no company has released a firmware version that allows for adjusting the number of drivetrain speeds. The gear shifting experience is basically better in every way when you go electric, and this is the prime. Di2 gives. Electronic Shifting Explained.
From www.autodeal.com.ph
Traditional vs. Digital gear shifter Autodeal Electronic Shifting Explained The gear shifting experience is basically better in every way when you go electric, and this is the prime. Electronic bike shifting is controlled by firmware, but no company has released a firmware version that allows for adjusting the number of drivetrain speeds. Di2 gives you instant, accurate,. I’ll also outline a few of the more. This guide outlines the. Electronic Shifting Explained.
From www.feldmanclarkston.com
Automatic Car Gear Letters, Numbers, And Symbols Explained! Feldman Chrysler Dodge Jeep Ram Electronic Shifting Explained This guide outlines the pros and cons of electronic vs mechanical shifting to help you decide which type of drivetrain is best for your style of riding. I’ll also outline a few of the more. So if your bike has. Electronic bike shifting is controlled by firmware, but no company has released a firmware version that allows for adjusting the. Electronic Shifting Explained.