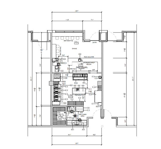
Restaurant Kitchen Design Pdf . Analysing the menu identifies these tasks. Download a useful summary guide for commercial kitchen design created by aluline. Learn how to design your commercial kitchen based on space, menu, safety codes and layout. This document provides guidelines for the safe design of commercial kitchens. Designing, building & supplying commercial kitchens Regardless of the kitchen’s size, its design begins with a consideration of the tasks to be performed. The layout can be modified to suit small kitchens, pubs and clubs or. This is a suggested layout for a large kitchen servicing a restaurant. Find out the types of equipment, appliances and zones you need for your restaurant.
from www.caterlineltd.co.uk
Find out the types of equipment, appliances and zones you need for your restaurant. Analysing the menu identifies these tasks. This document provides guidelines for the safe design of commercial kitchens. Designing, building & supplying commercial kitchens The layout can be modified to suit small kitchens, pubs and clubs or. Download a useful summary guide for commercial kitchen design created by aluline. Regardless of the kitchen’s size, its design begins with a consideration of the tasks to be performed. Learn how to design your commercial kitchen based on space, menu, safety codes and layout. This is a suggested layout for a large kitchen servicing a restaurant.
Effective Restaurant Kitchen Design Caterline
Restaurant Kitchen Design Pdf This document provides guidelines for the safe design of commercial kitchens. This is a suggested layout for a large kitchen servicing a restaurant. Analysing the menu identifies these tasks. Download a useful summary guide for commercial kitchen design created by aluline. This document provides guidelines for the safe design of commercial kitchens. The layout can be modified to suit small kitchens, pubs and clubs or. Designing, building & supplying commercial kitchens Find out the types of equipment, appliances and zones you need for your restaurant. Learn how to design your commercial kitchen based on space, menu, safety codes and layout. Regardless of the kitchen’s size, its design begins with a consideration of the tasks to be performed.
From www.pinterest.com
commercial restaurant kitchen design restaurant kitchen layout plan Restaurant Kitchen Design Pdf Analysing the menu identifies these tasks. Find out the types of equipment, appliances and zones you need for your restaurant. Download a useful summary guide for commercial kitchen design created by aluline. Designing, building & supplying commercial kitchens Learn how to design your commercial kitchen based on space, menu, safety codes and layout. This is a suggested layout for a. Restaurant Kitchen Design Pdf.
From www.flickr.com
Restaurant Kitchen Layout Mark Davis Flickr Restaurant Kitchen Design Pdf Find out the types of equipment, appliances and zones you need for your restaurant. This is a suggested layout for a large kitchen servicing a restaurant. Analysing the menu identifies these tasks. Learn how to design your commercial kitchen based on space, menu, safety codes and layout. This document provides guidelines for the safe design of commercial kitchens. Designing, building. Restaurant Kitchen Design Pdf.
From sarslovshastklubb.blogspot.com
18 New Kitchen Buffet Plans Restaurant Kitchen Design Pdf Regardless of the kitchen’s size, its design begins with a consideration of the tasks to be performed. Find out the types of equipment, appliances and zones you need for your restaurant. The layout can be modified to suit small kitchens, pubs and clubs or. This document provides guidelines for the safe design of commercial kitchens. Download a useful summary guide. Restaurant Kitchen Design Pdf.
From blog.hamiltonbeachcommercial.com
8 Tips for Optimizing Space in a Restaurant Kitchen Restaurant Kitchen Design Pdf Download a useful summary guide for commercial kitchen design created by aluline. This is a suggested layout for a large kitchen servicing a restaurant. The layout can be modified to suit small kitchens, pubs and clubs or. Regardless of the kitchen’s size, its design begins with a consideration of the tasks to be performed. Learn how to design your commercial. Restaurant Kitchen Design Pdf.
From viewfloor.co
Restaurant Kitchen Floor Plan Pdf Free Viewfloor.co Restaurant Kitchen Design Pdf The layout can be modified to suit small kitchens, pubs and clubs or. Designing, building & supplying commercial kitchens Regardless of the kitchen’s size, its design begins with a consideration of the tasks to be performed. Download a useful summary guide for commercial kitchen design created by aluline. Analysing the menu identifies these tasks. Learn how to design your commercial. Restaurant Kitchen Design Pdf.
From www.pinterest.es
Restaurant Kitchen Design Restaurant Kitchen Design Layout Restaurant Kitchen Design Pdf Learn how to design your commercial kitchen based on space, menu, safety codes and layout. Regardless of the kitchen’s size, its design begins with a consideration of the tasks to be performed. Download a useful summary guide for commercial kitchen design created by aluline. Analysing the menu identifies these tasks. Designing, building & supplying commercial kitchens This document provides guidelines. Restaurant Kitchen Design Pdf.
From www.pinterest.com
14 Best Photos of Hotel Floor Plan Design Samples Hotel Lobby Floor Restaurant Kitchen Design Pdf The layout can be modified to suit small kitchens, pubs and clubs or. Find out the types of equipment, appliances and zones you need for your restaurant. This is a suggested layout for a large kitchen servicing a restaurant. This document provides guidelines for the safe design of commercial kitchens. Download a useful summary guide for commercial kitchen design created. Restaurant Kitchen Design Pdf.
From designdeskinteriors.com
Restaurant kitchen Designs in Dubai Kitchen Fit Out Contractors Restaurant Kitchen Design Pdf This document provides guidelines for the safe design of commercial kitchens. Regardless of the kitchen’s size, its design begins with a consideration of the tasks to be performed. Designing, building & supplying commercial kitchens The layout can be modified to suit small kitchens, pubs and clubs or. Find out the types of equipment, appliances and zones you need for your. Restaurant Kitchen Design Pdf.
From ar.inspiredpencil.com
Restaurant Kitchen Layout Restaurant Kitchen Design Pdf This is a suggested layout for a large kitchen servicing a restaurant. Analysing the menu identifies these tasks. Regardless of the kitchen’s size, its design begins with a consideration of the tasks to be performed. Download a useful summary guide for commercial kitchen design created by aluline. The layout can be modified to suit small kitchens, pubs and clubs or.. Restaurant Kitchen Design Pdf.
From www.hirerush.com
How to plan a commercial kitchen design? HireRush Restaurant Kitchen Design Pdf The layout can be modified to suit small kitchens, pubs and clubs or. Regardless of the kitchen’s size, its design begins with a consideration of the tasks to be performed. Download a useful summary guide for commercial kitchen design created by aluline. This is a suggested layout for a large kitchen servicing a restaurant. This document provides guidelines for the. Restaurant Kitchen Design Pdf.
From www.scribd.com
Effective Small Restaurant Kitchen Design PDF Restaurant Kitchen Design Pdf The layout can be modified to suit small kitchens, pubs and clubs or. Regardless of the kitchen’s size, its design begins with a consideration of the tasks to be performed. Learn how to design your commercial kitchen based on space, menu, safety codes and layout. Find out the types of equipment, appliances and zones you need for your restaurant. Analysing. Restaurant Kitchen Design Pdf.
From ar.inspiredpencil.com
Burger Restaurant Kitchen Layout Restaurant Kitchen Design Pdf Designing, building & supplying commercial kitchens The layout can be modified to suit small kitchens, pubs and clubs or. Analysing the menu identifies these tasks. Download a useful summary guide for commercial kitchen design created by aluline. This is a suggested layout for a large kitchen servicing a restaurant. Learn how to design your commercial kitchen based on space, menu,. Restaurant Kitchen Design Pdf.
From www.smartdraw.com
Restaurant Kitchen Floor Plan Restaurant Kitchen Design Pdf Designing, building & supplying commercial kitchens This is a suggested layout for a large kitchen servicing a restaurant. Download a useful summary guide for commercial kitchen design created by aluline. Learn how to design your commercial kitchen based on space, menu, safety codes and layout. This document provides guidelines for the safe design of commercial kitchens. Find out the types. Restaurant Kitchen Design Pdf.
From wurld.blogspot.com
View Restaurant Kitchen Layout Pdf Gif Blog Wurld Home Design Info Restaurant Kitchen Design Pdf This is a suggested layout for a large kitchen servicing a restaurant. Download a useful summary guide for commercial kitchen design created by aluline. This document provides guidelines for the safe design of commercial kitchens. Regardless of the kitchen’s size, its design begins with a consideration of the tasks to be performed. Designing, building & supplying commercial kitchens The layout. Restaurant Kitchen Design Pdf.
From www.pinterest.com
Ähnliches Foto Restaurant floor plan, Restaurant kitchen design Restaurant Kitchen Design Pdf Analysing the menu identifies these tasks. Find out the types of equipment, appliances and zones you need for your restaurant. This is a suggested layout for a large kitchen servicing a restaurant. Learn how to design your commercial kitchen based on space, menu, safety codes and layout. Regardless of the kitchen’s size, its design begins with a consideration of the. Restaurant Kitchen Design Pdf.
From cadbull.com
Free Download Kitchen Layout With Staff Dining flooring design,PDF File Restaurant Kitchen Design Pdf Find out the types of equipment, appliances and zones you need for your restaurant. Regardless of the kitchen’s size, its design begins with a consideration of the tasks to be performed. This document provides guidelines for the safe design of commercial kitchens. Learn how to design your commercial kitchen based on space, menu, safety codes and layout. Analysing the menu. Restaurant Kitchen Design Pdf.
From foyr.com
How to Design A Restaurant Floor Plan? 22 Best Tips Foyr Neo Restaurant Kitchen Design Pdf Designing, building & supplying commercial kitchens Download a useful summary guide for commercial kitchen design created by aluline. This document provides guidelines for the safe design of commercial kitchens. Find out the types of equipment, appliances and zones you need for your restaurant. The layout can be modified to suit small kitchens, pubs and clubs or. Learn how to design. Restaurant Kitchen Design Pdf.
From viewfloor.co
Restaurant Kitchen Floor Plan With Dimensions Viewfloor.co Restaurant Kitchen Design Pdf Learn how to design your commercial kitchen based on space, menu, safety codes and layout. Regardless of the kitchen’s size, its design begins with a consideration of the tasks to be performed. This document provides guidelines for the safe design of commercial kitchens. Find out the types of equipment, appliances and zones you need for your restaurant. The layout can. Restaurant Kitchen Design Pdf.
From www.pinterest.com
Refurbishments Commercial kitchen design, Kitchen layout plans Restaurant Kitchen Design Pdf This is a suggested layout for a large kitchen servicing a restaurant. Download a useful summary guide for commercial kitchen design created by aluline. This document provides guidelines for the safe design of commercial kitchens. Learn how to design your commercial kitchen based on space, menu, safety codes and layout. The layout can be modified to suit small kitchens, pubs. Restaurant Kitchen Design Pdf.
From www.caterlineltd.co.uk
Effective Restaurant Kitchen Design Caterline Restaurant Kitchen Design Pdf The layout can be modified to suit small kitchens, pubs and clubs or. This document provides guidelines for the safe design of commercial kitchens. Designing, building & supplying commercial kitchens Find out the types of equipment, appliances and zones you need for your restaurant. Download a useful summary guide for commercial kitchen design created by aluline. Learn how to design. Restaurant Kitchen Design Pdf.
From floorplans.click
Restaurant Kitchen Design Floor Plan floorplans.click Restaurant Kitchen Design Pdf Designing, building & supplying commercial kitchens This document provides guidelines for the safe design of commercial kitchens. Learn how to design your commercial kitchen based on space, menu, safety codes and layout. This is a suggested layout for a large kitchen servicing a restaurant. The layout can be modified to suit small kitchens, pubs and clubs or. Analysing the menu. Restaurant Kitchen Design Pdf.
From viewfloor.co
Restaurant Kitchen Floor Plan Pdf Viewfloor.co Restaurant Kitchen Design Pdf Designing, building & supplying commercial kitchens This document provides guidelines for the safe design of commercial kitchens. Find out the types of equipment, appliances and zones you need for your restaurant. Regardless of the kitchen’s size, its design begins with a consideration of the tasks to be performed. Analysing the menu identifies these tasks. Download a useful summary guide for. Restaurant Kitchen Design Pdf.
From afreakatheart.blogspot.com
Restaurant Kitchen Plans Design afreakatheart Restaurant Kitchen Design Pdf Designing, building & supplying commercial kitchens This document provides guidelines for the safe design of commercial kitchens. This is a suggested layout for a large kitchen servicing a restaurant. Learn how to design your commercial kitchen based on space, menu, safety codes and layout. Regardless of the kitchen’s size, its design begins with a consideration of the tasks to be. Restaurant Kitchen Design Pdf.
From www.arcwestarchitects.com
Commercial Kitchen Planning and Design Considerations ArcWest Architects Restaurant Kitchen Design Pdf This is a suggested layout for a large kitchen servicing a restaurant. Regardless of the kitchen’s size, its design begins with a consideration of the tasks to be performed. This document provides guidelines for the safe design of commercial kitchens. Designing, building & supplying commercial kitchens The layout can be modified to suit small kitchens, pubs and clubs or. Learn. Restaurant Kitchen Design Pdf.
From www.pinterest.com
bbq restaurant kitchen layout Coffee house design, Restaurant layout Restaurant Kitchen Design Pdf Designing, building & supplying commercial kitchens Analysing the menu identifies these tasks. This is a suggested layout for a large kitchen servicing a restaurant. Download a useful summary guide for commercial kitchen design created by aluline. The layout can be modified to suit small kitchens, pubs and clubs or. Find out the types of equipment, appliances and zones you need. Restaurant Kitchen Design Pdf.
From www.pinterest.dk
Restaurant Kitchen Plan contemporary restaurant kitchen plan dwg Restaurant Kitchen Design Pdf The layout can be modified to suit small kitchens, pubs and clubs or. Find out the types of equipment, appliances and zones you need for your restaurant. Regardless of the kitchen’s size, its design begins with a consideration of the tasks to be performed. This is a suggested layout for a large kitchen servicing a restaurant. Designing, building & supplying. Restaurant Kitchen Design Pdf.
From www.pinterest.es
Restaurant Design 360 Spiffiest Design, Development, & Commercial Restaurant Kitchen Design Pdf Learn how to design your commercial kitchen based on space, menu, safety codes and layout. Regardless of the kitchen’s size, its design begins with a consideration of the tasks to be performed. Analysing the menu identifies these tasks. Designing, building & supplying commercial kitchens This is a suggested layout for a large kitchen servicing a restaurant. Download a useful summary. Restaurant Kitchen Design Pdf.
From viewfloor.co
Restaurant Kitchen Floor Plan Pdf Free Viewfloor.co Restaurant Kitchen Design Pdf Regardless of the kitchen’s size, its design begins with a consideration of the tasks to be performed. Find out the types of equipment, appliances and zones you need for your restaurant. This document provides guidelines for the safe design of commercial kitchens. Learn how to design your commercial kitchen based on space, menu, safety codes and layout. Download a useful. Restaurant Kitchen Design Pdf.
From www.pinterest.de
Small Restaurant Interior Plans Modern Home Design and Decor Restaurant Kitchen Design Pdf Learn how to design your commercial kitchen based on space, menu, safety codes and layout. This document provides guidelines for the safe design of commercial kitchens. Analysing the menu identifies these tasks. Find out the types of equipment, appliances and zones you need for your restaurant. The layout can be modified to suit small kitchens, pubs and clubs or. Designing,. Restaurant Kitchen Design Pdf.
From www.pinterest.com
commercial kitchen design dream house experience kitchen design kitchen Restaurant Kitchen Design Pdf This document provides guidelines for the safe design of commercial kitchens. This is a suggested layout for a large kitchen servicing a restaurant. Find out the types of equipment, appliances and zones you need for your restaurant. Regardless of the kitchen’s size, its design begins with a consideration of the tasks to be performed. Analysing the menu identifies these tasks.. Restaurant Kitchen Design Pdf.
From anytimechefs.com.au
Quick Tips for A More Efficient Restaurant Kitchen Layout Anytime Chefs Restaurant Kitchen Design Pdf Analysing the menu identifies these tasks. Find out the types of equipment, appliances and zones you need for your restaurant. Learn how to design your commercial kitchen based on space, menu, safety codes and layout. Designing, building & supplying commercial kitchens Regardless of the kitchen’s size, its design begins with a consideration of the tasks to be performed. This document. Restaurant Kitchen Design Pdf.
From jjvs.org
Kitchen Floor Plan For Restaurant Flooring Site Restaurant Kitchen Design Pdf Regardless of the kitchen’s size, its design begins with a consideration of the tasks to be performed. The layout can be modified to suit small kitchens, pubs and clubs or. Find out the types of equipment, appliances and zones you need for your restaurant. Analysing the menu identifies these tasks. Designing, building & supplying commercial kitchens Learn how to design. Restaurant Kitchen Design Pdf.
From www.smartdraw.com
Restaurant Kitchen Plan Restaurant Kitchen Design Pdf This document provides guidelines for the safe design of commercial kitchens. Find out the types of equipment, appliances and zones you need for your restaurant. Regardless of the kitchen’s size, its design begins with a consideration of the tasks to be performed. Analysing the menu identifies these tasks. Designing, building & supplying commercial kitchens Learn how to design your commercial. Restaurant Kitchen Design Pdf.
From mavink.com
Restaurant Kitchen Layout Plan Restaurant Kitchen Design Pdf This is a suggested layout for a large kitchen servicing a restaurant. This document provides guidelines for the safe design of commercial kitchens. Find out the types of equipment, appliances and zones you need for your restaurant. Regardless of the kitchen’s size, its design begins with a consideration of the tasks to be performed. Download a useful summary guide for. Restaurant Kitchen Design Pdf.
From www.misedesigns.com
Restaurant Kitchen Layout Approach Part 1 Mise Designs Restaurant Kitchen Design Pdf Regardless of the kitchen’s size, its design begins with a consideration of the tasks to be performed. This is a suggested layout for a large kitchen servicing a restaurant. The layout can be modified to suit small kitchens, pubs and clubs or. Learn how to design your commercial kitchen based on space, menu, safety codes and layout. Analysing the menu. Restaurant Kitchen Design Pdf.