What Is Riser Pole . A riser is an electrical connection attached to the side of a pole; A power riser diagram depicts the vertical distribution of electrical power within a building. It shows how electricity enters the facility and is stepped down and distributed to various floors. The interface between the overhead circuit and the urd circuit is the riser pole. At the riser pole (or a dip pole or simply a dip), cable. In the north american arrester market a riser pole arrester is defined as the best of the best distribution arresters. Hence, a pole supporting a riser is called a riser pole. There is no longer a designation for tangent or deadend riser, so all riser plates can be built on tangent or deadends, as shown in the drawings. The overhead service drop, or underground service lateral, are the electrical conductors that come from the utility pole,.
from www.1sourcedist.com
There is no longer a designation for tangent or deadend riser, so all riser plates can be built on tangent or deadends, as shown in the drawings. In the north american arrester market a riser pole arrester is defined as the best of the best distribution arresters. A riser is an electrical connection attached to the side of a pole; It shows how electricity enters the facility and is stepped down and distributed to various floors. A power riser diagram depicts the vertical distribution of electrical power within a building. At the riser pole (or a dip pole or simply a dip), cable. The overhead service drop, or underground service lateral, are the electrical conductors that come from the utility pole,. The interface between the overhead circuit and the urd circuit is the riser pole. Hence, a pole supporting a riser is called a riser pole.
OHIOBR 2216297314 36KV RISER POLE ARRESTER POLYMER OneSource Distributors
What Is Riser Pole There is no longer a designation for tangent or deadend riser, so all riser plates can be built on tangent or deadends, as shown in the drawings. A riser is an electrical connection attached to the side of a pole; The interface between the overhead circuit and the urd circuit is the riser pole. At the riser pole (or a dip pole or simply a dip), cable. A power riser diagram depicts the vertical distribution of electrical power within a building. It shows how electricity enters the facility and is stepped down and distributed to various floors. The overhead service drop, or underground service lateral, are the electrical conductors that come from the utility pole,. In the north american arrester market a riser pole arrester is defined as the best of the best distribution arresters. Hence, a pole supporting a riser is called a riser pole. There is no longer a designation for tangent or deadend riser, so all riser plates can be built on tangent or deadends, as shown in the drawings.
From www.scgrp.com
Application Types StressCrete Utility Poles What Is Riser Pole It shows how electricity enters the facility and is stepped down and distributed to various floors. The overhead service drop, or underground service lateral, are the electrical conductors that come from the utility pole,. A power riser diagram depicts the vertical distribution of electrical power within a building. At the riser pole (or a dip pole or simply a dip),. What Is Riser Pole.
From www.shutterstock.com
Riser Pole Medium Voltage Transmission Line Stock Photo 1753613291 Shutterstock What Is Riser Pole A power riser diagram depicts the vertical distribution of electrical power within a building. In the north american arrester market a riser pole arrester is defined as the best of the best distribution arresters. The overhead service drop, or underground service lateral, are the electrical conductors that come from the utility pole,. At the riser pole (or a dip pole. What Is Riser Pole.
From www.flickr.com
Duke Energy Pole Single phase riser pole with disk insulat… Flickr What Is Riser Pole At the riser pole (or a dip pole or simply a dip), cable. It shows how electricity enters the facility and is stepped down and distributed to various floors. A riser is an electrical connection attached to the side of a pole; The overhead service drop, or underground service lateral, are the electrical conductors that come from the utility pole,.. What Is Riser Pole.
From bki.cc
Neutral vs. Grounding? And, who cares? BKI What Is Riser Pole At the riser pole (or a dip pole or simply a dip), cable. A riser is an electrical connection attached to the side of a pole; The interface between the overhead circuit and the urd circuit is the riser pole. A power riser diagram depicts the vertical distribution of electrical power within a building. In the north american arrester market. What Is Riser Pole.
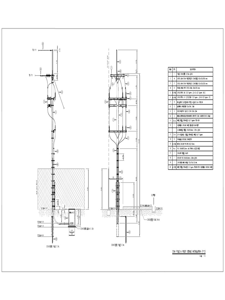
From www.scribd.com
22kV RISER POLE DETAILS INSTALLATION PDF PDF What Is Riser Pole It shows how electricity enters the facility and is stepped down and distributed to various floors. A riser is an electrical connection attached to the side of a pole; The interface between the overhead circuit and the urd circuit is the riser pole. Hence, a pole supporting a riser is called a riser pole. The overhead service drop, or underground. What Is Riser Pole.
From www.tads.co.th
GFPT Supply&Installed 22kV Riser Pole TADS.co.th What Is Riser Pole The overhead service drop, or underground service lateral, are the electrical conductors that come from the utility pole,. In the north american arrester market a riser pole arrester is defined as the best of the best distribution arresters. There is no longer a designation for tangent or deadend riser, so all riser plates can be built on tangent or deadends,. What Is Riser Pole.
From www.insulators.info
Line Construction Details > 69kV riser pole What Is Riser Pole In the north american arrester market a riser pole arrester is defined as the best of the best distribution arresters. The interface between the overhead circuit and the urd circuit is the riser pole. A power riser diagram depicts the vertical distribution of electrical power within a building. At the riser pole (or a dip pole or simply a dip),. What Is Riser Pole.
From 3dwarehouse.sketchup.com
Riser Pole 3D Warehouse What Is Riser Pole The overhead service drop, or underground service lateral, are the electrical conductors that come from the utility pole,. It shows how electricity enters the facility and is stepped down and distributed to various floors. In the north american arrester market a riser pole arrester is defined as the best of the best distribution arresters. At the riser pole (or a. What Is Riser Pole.
From www.planmarketplace.com
Electrical Riser pole detail CAD Files, DWG files, Plans and Details What Is Riser Pole The interface between the overhead circuit and the urd circuit is the riser pole. In the north american arrester market a riser pole arrester is defined as the best of the best distribution arresters. At the riser pole (or a dip pole or simply a dip), cable. A riser is an electrical connection attached to the side of a pole;. What Is Riser Pole.
From homeguide.com
Cost to Replace an Electrical Mast or Meter Riser (2024) What Is Riser Pole There is no longer a designation for tangent or deadend riser, so all riser plates can be built on tangent or deadends, as shown in the drawings. In the north american arrester market a riser pole arrester is defined as the best of the best distribution arresters. The overhead service drop, or underground service lateral, are the electrical conductors that. What Is Riser Pole.
From www.eebc.com.mx
Riser pole 1030 Kv What Is Riser Pole At the riser pole (or a dip pole or simply a dip), cable. In the north american arrester market a riser pole arrester is defined as the best of the best distribution arresters. The interface between the overhead circuit and the urd circuit is the riser pole. The overhead service drop, or underground service lateral, are the electrical conductors that. What Is Riser Pole.
From www.insulators.info
Line Construction Details > Riser pole What Is Riser Pole It shows how electricity enters the facility and is stepped down and distributed to various floors. The overhead service drop, or underground service lateral, are the electrical conductors that come from the utility pole,. Hence, a pole supporting a riser is called a riser pole. A power riser diagram depicts the vertical distribution of electrical power within a building. In. What Is Riser Pole.
From www.tads.co.th
GFPT Supply&Installed 22kV Riser Pole TADS What Is Riser Pole A riser is an electrical connection attached to the side of a pole; There is no longer a designation for tangent or deadend riser, so all riser plates can be built on tangent or deadends, as shown in the drawings. The interface between the overhead circuit and the urd circuit is the riser pole. In the north american arrester market. What Is Riser Pole.
From www.aplic.org
Riser_poles_wind What Is Riser Pole A power riser diagram depicts the vertical distribution of electrical power within a building. The interface between the overhead circuit and the urd circuit is the riser pole. At the riser pole (or a dip pole or simply a dip), cable. A riser is an electrical connection attached to the side of a pole; Hence, a pole supporting a riser. What Is Riser Pole.
From www.dreamstime.com
High Voltage Riser Pole Isolated on Blue Background Stock Image Image of riser, surge 54938661 What Is Riser Pole Hence, a pole supporting a riser is called a riser pole. The overhead service drop, or underground service lateral, are the electrical conductors that come from the utility pole,. A riser is an electrical connection attached to the side of a pole; The interface between the overhead circuit and the urd circuit is the riser pole. A power riser diagram. What Is Riser Pole.
From www.macleanpower.com
Zforce ZRP Arresters (Riser Pole) > MacLean Power Systems What Is Riser Pole A riser is an electrical connection attached to the side of a pole; At the riser pole (or a dip pole or simply a dip), cable. The interface between the overhead circuit and the urd circuit is the riser pole. A power riser diagram depicts the vertical distribution of electrical power within a building. It shows how electricity enters the. What Is Riser Pole.
From www.tads.co.th
GFPT Supply&Installed 22kV Riser Pole TADS.co.th What Is Riser Pole There is no longer a designation for tangent or deadend riser, so all riser plates can be built on tangent or deadends, as shown in the drawings. Hence, a pole supporting a riser is called a riser pole. In the north american arrester market a riser pole arrester is defined as the best of the best distribution arresters. A riser. What Is Riser Pole.
From www.flickr.com
Xcel Energy 23.9kv Riser Pole Wilson,WI Power94 Flickr What Is Riser Pole The overhead service drop, or underground service lateral, are the electrical conductors that come from the utility pole,. A riser is an electrical connection attached to the side of a pole; It shows how electricity enters the facility and is stepped down and distributed to various floors. The interface between the overhead circuit and the urd circuit is the riser. What Is Riser Pole.
From www.planmarketplace.com
Electrical Riser pole detail CAD Files, DWG files, Plans and Details What Is Riser Pole A power riser diagram depicts the vertical distribution of electrical power within a building. Hence, a pole supporting a riser is called a riser pole. The overhead service drop, or underground service lateral, are the electrical conductors that come from the utility pole,. It shows how electricity enters the facility and is stepped down and distributed to various floors. A. What Is Riser Pole.
From www.dreamstime.com
Three Phase Underground Riser Pole Picture. Image 685811 What Is Riser Pole Hence, a pole supporting a riser is called a riser pole. The interface between the overhead circuit and the urd circuit is the riser pole. The overhead service drop, or underground service lateral, are the electrical conductors that come from the utility pole,. There is no longer a designation for tangent or deadend riser, so all riser plates can be. What Is Riser Pole.
From tienda.alianzaelectrica.com
Apartarrayo Polimérico Riser Pole 12kV Alianza Electrica What Is Riser Pole A power riser diagram depicts the vertical distribution of electrical power within a building. The interface between the overhead circuit and the urd circuit is the riser pole. The overhead service drop, or underground service lateral, are the electrical conductors that come from the utility pole,. There is no longer a designation for tangent or deadend riser, so all riser. What Is Riser Pole.
From www.youtube.com
Riser Pole Construction YouTube What Is Riser Pole In the north american arrester market a riser pole arrester is defined as the best of the best distribution arresters. At the riser pole (or a dip pole or simply a dip), cable. A power riser diagram depicts the vertical distribution of electrical power within a building. There is no longer a designation for tangent or deadend riser, so all. What Is Riser Pole.
From www.stockfreeimages.com
Three Phase Underground Riser Pole Free Stock Images & Photos 685809 What Is Riser Pole A power riser diagram depicts the vertical distribution of electrical power within a building. In the north american arrester market a riser pole arrester is defined as the best of the best distribution arresters. It shows how electricity enters the facility and is stepped down and distributed to various floors. A riser is an electrical connection attached to the side. What Is Riser Pole.
From www.facebook.com
ความรู้เรื่อง Cable Riser Pole... ต้นติวเตอร์ เตรียมสอบ PEA What Is Riser Pole A riser is an electrical connection attached to the side of a pole; At the riser pole (or a dip pole or simply a dip), cable. It shows how electricity enters the facility and is stepped down and distributed to various floors. Hence, a pole supporting a riser is called a riser pole. The overhead service drop, or underground service. What Is Riser Pole.
From www.flickr.com
SRP Riser Pole This is a 2000's era SRP crossarm riser pol… Flickr What Is Riser Pole At the riser pole (or a dip pole or simply a dip), cable. In the north american arrester market a riser pole arrester is defined as the best of the best distribution arresters. A riser is an electrical connection attached to the side of a pole; There is no longer a designation for tangent or deadend riser, so all riser. What Is Riser Pole.
From electrification.us.abb.com
Elastimold Riser Pole ABB US What Is Riser Pole At the riser pole (or a dip pole or simply a dip), cable. It shows how electricity enters the facility and is stepped down and distributed to various floors. A power riser diagram depicts the vertical distribution of electrical power within a building. There is no longer a designation for tangent or deadend riser, so all riser plates can be. What Is Riser Pole.
From www.lumenalights.com
40cm Riser Pole & 4 Fin Ground Spike AlvaLED Black, Titanium & Cocoa What Is Riser Pole The overhead service drop, or underground service lateral, are the electrical conductors that come from the utility pole,. In the north american arrester market a riser pole arrester is defined as the best of the best distribution arresters. The interface between the overhead circuit and the urd circuit is the riser pole. Hence, a pole supporting a riser is called. What Is Riser Pole.
From tienda.alianzaelectrica.com
Apartarrayo Polimérico Riser Pole 30kV Alianza Electrica What Is Riser Pole Hence, a pole supporting a riser is called a riser pole. The overhead service drop, or underground service lateral, are the electrical conductors that come from the utility pole,. The interface between the overhead circuit and the urd circuit is the riser pole. In the north american arrester market a riser pole arrester is defined as the best of the. What Is Riser Pole.
From www.inmr.com
Technology & Application of Arresters that Extend Life of Cables What Is Riser Pole A riser is an electrical connection attached to the side of a pole; It shows how electricity enters the facility and is stepped down and distributed to various floors. In the north american arrester market a riser pole arrester is defined as the best of the best distribution arresters. The overhead service drop, or underground service lateral, are the electrical. What Is Riser Pole.
From www.scribd.com
Riser Pole Pedestal PDF What Is Riser Pole There is no longer a designation for tangent or deadend riser, so all riser plates can be built on tangent or deadends, as shown in the drawings. The overhead service drop, or underground service lateral, are the electrical conductors that come from the utility pole,. In the north american arrester market a riser pole arrester is defined as the best. What Is Riser Pole.
From buildingcriteria2.tpub.com
Figure 94. Provision of Surge Arresters at a MediumVoltage Riser Pole What Is Riser Pole A riser is an electrical connection attached to the side of a pole; A power riser diagram depicts the vertical distribution of electrical power within a building. In the north american arrester market a riser pole arrester is defined as the best of the best distribution arresters. Hence, a pole supporting a riser is called a riser pole. The interface. What Is Riser Pole.
From studylib.net
Riser Pole Overhead Switches What Is Riser Pole The overhead service drop, or underground service lateral, are the electrical conductors that come from the utility pole,. The interface between the overhead circuit and the urd circuit is the riser pole. At the riser pole (or a dip pole or simply a dip), cable. In the north american arrester market a riser pole arrester is defined as the best. What Is Riser Pole.
From cartoondealer.com
Three Phase Distribution Undergound Riser RoyaltyFree Stock Photo 110693595 What Is Riser Pole The interface between the overhead circuit and the urd circuit is the riser pole. Hence, a pole supporting a riser is called a riser pole. A riser is an electrical connection attached to the side of a pole; A power riser diagram depicts the vertical distribution of electrical power within a building. At the riser pole (or a dip pole. What Is Riser Pole.
From www.1sourcedist.com
OHIOBR 2216297314 36KV RISER POLE ARRESTER POLYMER OneSource Distributors What Is Riser Pole The interface between the overhead circuit and the urd circuit is the riser pole. In the north american arrester market a riser pole arrester is defined as the best of the best distribution arresters. It shows how electricity enters the facility and is stepped down and distributed to various floors. At the riser pole (or a dip pole or simply. What Is Riser Pole.
From www.alamy.com
utility riser pole with disconnect Stock Photo Alamy What Is Riser Pole At the riser pole (or a dip pole or simply a dip), cable. It shows how electricity enters the facility and is stepped down and distributed to various floors. The interface between the overhead circuit and the urd circuit is the riser pole. A power riser diagram depicts the vertical distribution of electrical power within a building. Hence, a pole. What Is Riser Pole.