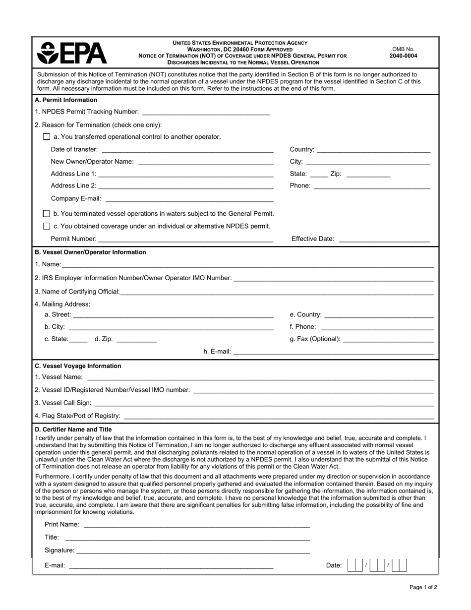
Notice Of Termination Npdes . Notice of termination (not) of coverage under a npdes general permit for stormwater discharges associated with. Submission of this notice of termination (not) constitutes notice that the party identified in section b of this form is no longer authorized to. Notice of termination (not) of coverage under a npdes general permit for stormwater discharges associated with. Notice of termination (not) operators of facilities and/or operations authorized under this permit shall notify the director of the termination of. Notice of termination for the 2022 npdes construction general permit. You can submit an not once. Part 9.3 requires you to use the electronic noi system, or “enoi” system, to.
from npdestraining.com
Notice of termination (not) of coverage under a npdes general permit for stormwater discharges associated with. Notice of termination (not) operators of facilities and/or operations authorized under this permit shall notify the director of the termination of. Submission of this notice of termination (not) constitutes notice that the party identified in section b of this form is no longer authorized to. Notice of termination (not) of coverage under a npdes general permit for stormwater discharges associated with. Part 9.3 requires you to use the electronic noi system, or “enoi” system, to. You can submit an not once. Notice of termination for the 2022 npdes construction general permit.
Revised Enforcement Protocol for the Notice of Intent/Notice of
Notice Of Termination Npdes Notice of termination for the 2022 npdes construction general permit. Notice of termination (not) of coverage under a npdes general permit for stormwater discharges associated with. Notice of termination for the 2022 npdes construction general permit. You can submit an not once. Part 9.3 requires you to use the electronic noi system, or “enoi” system, to. Notice of termination (not) operators of facilities and/or operations authorized under this permit shall notify the director of the termination of. Submission of this notice of termination (not) constitutes notice that the party identified in section b of this form is no longer authorized to. Notice of termination (not) of coverage under a npdes general permit for stormwater discharges associated with.
From www.templateroller.com
Delaware Notice of Termination (Not) Under Npdes General Permit Notice Of Termination Npdes Submission of this notice of termination (not) constitutes notice that the party identified in section b of this form is no longer authorized to. Notice of termination (not) operators of facilities and/or operations authorized under this permit shall notify the director of the termination of. Notice of termination (not) of coverage under a npdes general permit for stormwater discharges associated. Notice Of Termination Npdes.
From www.shutterstock.com
867 Notice termination Stock Vectors, Images & Vector Art Shutterstock Notice Of Termination Npdes Notice of termination (not) operators of facilities and/or operations authorized under this permit shall notify the director of the termination of. Notice of termination for the 2022 npdes construction general permit. Notice of termination (not) of coverage under a npdes general permit for stormwater discharges associated with. Part 9.3 requires you to use the electronic noi system, or “enoi” system,. Notice Of Termination Npdes.
From www.printablerealestateforms.com
Free Printable Notice Of Termination Form (PDF & WORD) Notice Of Termination Npdes Notice of termination (not) operators of facilities and/or operations authorized under this permit shall notify the director of the termination of. Notice of termination for the 2022 npdes construction general permit. You can submit an not once. Part 9.3 requires you to use the electronic noi system, or “enoi” system, to. Submission of this notice of termination (not) constitutes notice. Notice Of Termination Npdes.
From www.templateroller.com
ADEM Form 499 Download Printable PDF or Fill Online Notice of Notice Of Termination Npdes Notice of termination (not) of coverage under a npdes general permit for stormwater discharges associated with. Notice of termination for the 2022 npdes construction general permit. Part 9.3 requires you to use the electronic noi system, or “enoi” system, to. Submission of this notice of termination (not) constitutes notice that the party identified in section b of this form is. Notice Of Termination Npdes.
From www.templateroller.com
ADEM Form 499 Download Printable PDF or Fill Online Notice of Notice Of Termination Npdes Notice of termination (not) of coverage under a npdes general permit for stormwater discharges associated with. Part 9.3 requires you to use the electronic noi system, or “enoi” system, to. Notice of termination (not) operators of facilities and/or operations authorized under this permit shall notify the director of the termination of. Submission of this notice of termination (not) constitutes notice. Notice Of Termination Npdes.
From www.templateroller.com
Oregon Notice of Termination for Npdes Permit No.1200z and 1200a Notice Of Termination Npdes Submission of this notice of termination (not) constitutes notice that the party identified in section b of this form is no longer authorized to. Notice of termination (not) of coverage under a npdes general permit for stormwater discharges associated with. Notice of termination for the 2022 npdes construction general permit. You can submit an not once. Notice of termination (not). Notice Of Termination Npdes.
From studylib.net
Instructions for Completing the Notice of Termination (NOT) of Coverage Notice Of Termination Npdes Part 9.3 requires you to use the electronic noi system, or “enoi” system, to. Notice of termination for the 2022 npdes construction general permit. Notice of termination (not) of coverage under a npdes general permit for stormwater discharges associated with. You can submit an not once. Notice of termination (not) operators of facilities and/or operations authorized under this permit shall. Notice Of Termination Npdes.
From www.pdffiller.com
dataviewers.tdec.tn.govplsenfreportsUniversal General NPDES Permit Notice Of Termination Npdes You can submit an not once. Notice of termination for the 2022 npdes construction general permit. Notice of termination (not) operators of facilities and/or operations authorized under this permit shall notify the director of the termination of. Notice of termination (not) of coverage under a npdes general permit for stormwater discharges associated with. Part 9.3 requires you to use the. Notice Of Termination Npdes.
From www.templateroller.com
ADEM Form 499 Download Printable PDF or Fill Online Notice of Notice Of Termination Npdes Notice of termination (not) operators of facilities and/or operations authorized under this permit shall notify the director of the termination of. Submission of this notice of termination (not) constitutes notice that the party identified in section b of this form is no longer authorized to. Notice of termination for the 2022 npdes construction general permit. Notice of termination (not) of. Notice Of Termination Npdes.
From www.pdffiller.com
Fillable Online epa Remediation General Permit Under the National Notice Of Termination Npdes Notice of termination (not) of coverage under a npdes general permit for stormwater discharges associated with. Notice of termination (not) operators of facilities and/or operations authorized under this permit shall notify the director of the termination of. Notice of termination (not) of coverage under a npdes general permit for stormwater discharges associated with. Part 9.3 requires you to use the. Notice Of Termination Npdes.
From www.pdffiller.com
Fillable Online Notice of Termination NPDES Industrial Stormwater Notice Of Termination Npdes Notice of termination for the 2022 npdes construction general permit. Notice of termination (not) operators of facilities and/or operations authorized under this permit shall notify the director of the termination of. Submission of this notice of termination (not) constitutes notice that the party identified in section b of this form is no longer authorized to. Notice of termination (not) of. Notice Of Termination Npdes.
From www.pdffiller.com
Fillable Online Does Your Facility Need a Stormwater Permit?NPDES Notice Of Termination Npdes Part 9.3 requires you to use the electronic noi system, or “enoi” system, to. Submission of this notice of termination (not) constitutes notice that the party identified in section b of this form is no longer authorized to. You can submit an not once. Notice of termination (not) of coverage under a npdes general permit for stormwater discharges associated with.. Notice Of Termination Npdes.
From www.templateroller.com
ADEM Form 499 Download Printable PDF or Fill Online Notice of Notice Of Termination Npdes Notice of termination for the 2022 npdes construction general permit. Notice of termination (not) of coverage under a npdes general permit for stormwater discharges associated with. Notice of termination (not) of coverage under a npdes general permit for stormwater discharges associated with. Part 9.3 requires you to use the electronic noi system, or “enoi” system, to. Submission of this notice. Notice Of Termination Npdes.
From www.reddit.com
How do you write a termination letter? u/rutujapatil95 Notice Of Termination Npdes You can submit an not once. Part 9.3 requires you to use the electronic noi system, or “enoi” system, to. Notice of termination (not) of coverage under a npdes general permit for stormwater discharges associated with. Notice of termination (not) of coverage under a npdes general permit for stormwater discharges associated with. Submission of this notice of termination (not) constitutes. Notice Of Termination Npdes.
From www.templateroller.com
Oregon Notice of Termination for Npdes Permit No.1200z and 1200a Notice Of Termination Npdes Notice of termination (not) of coverage under a npdes general permit for stormwater discharges associated with. You can submit an not once. Part 9.3 requires you to use the electronic noi system, or “enoi” system, to. Submission of this notice of termination (not) constitutes notice that the party identified in section b of this form is no longer authorized to.. Notice Of Termination Npdes.
From www.templateroller.com
ADEM Form 021 Fill Out, Sign Online and Download Printable PDF Notice Of Termination Npdes Submission of this notice of termination (not) constitutes notice that the party identified in section b of this form is no longer authorized to. Part 9.3 requires you to use the electronic noi system, or “enoi” system, to. Notice of termination for the 2022 npdes construction general permit. Notice of termination (not) of coverage under a npdes general permit for. Notice Of Termination Npdes.
From www.templateroller.com
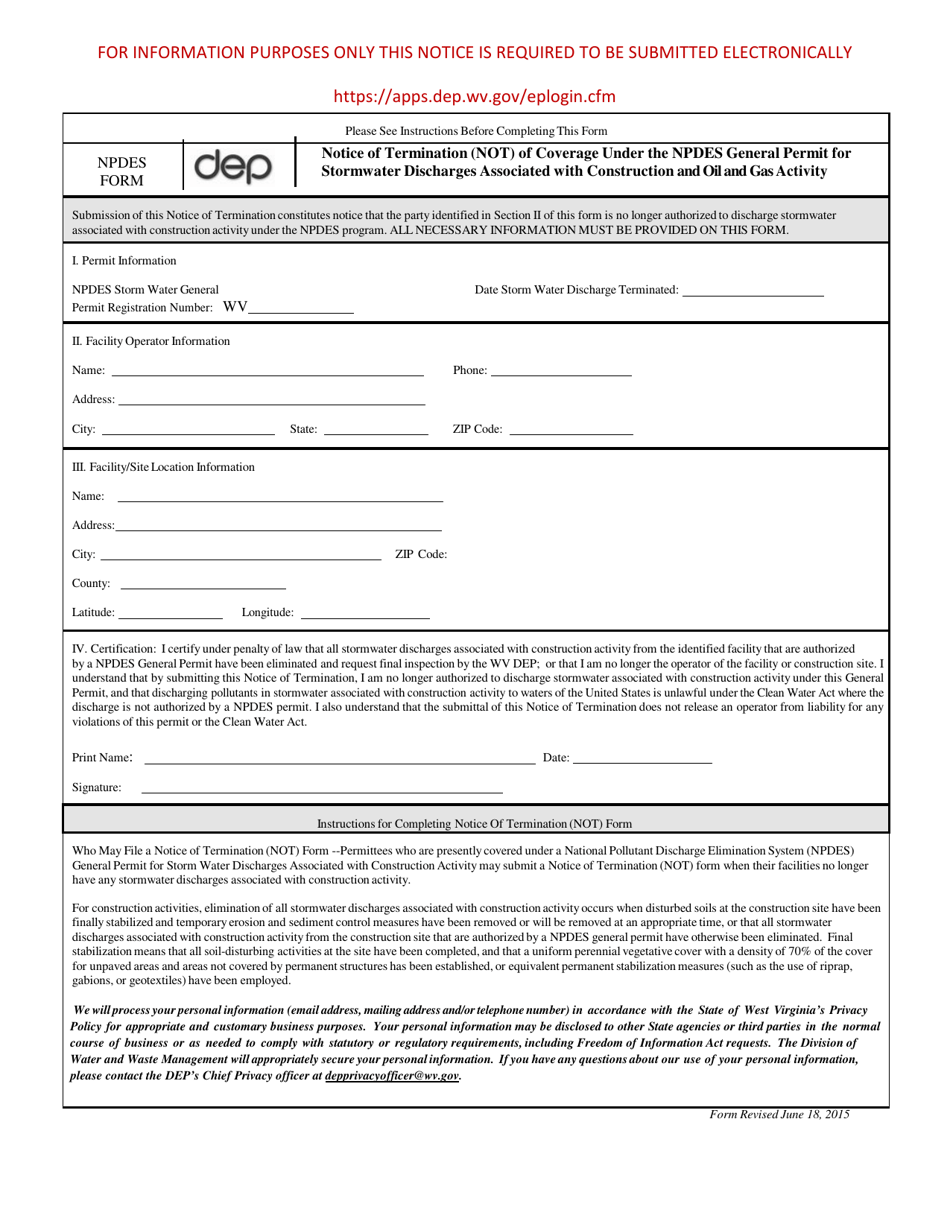
West Virginia Notice of Termination (Not) of Coverage Under the Npdes Notice Of Termination Npdes Notice of termination (not) of coverage under a npdes general permit for stormwater discharges associated with. Submission of this notice of termination (not) constitutes notice that the party identified in section b of this form is no longer authorized to. Notice of termination (not) operators of facilities and/or operations authorized under this permit shall notify the director of the termination. Notice Of Termination Npdes.
From slideplayer.com
Current NPDES General Permits are available ppt download Notice Of Termination Npdes Part 9.3 requires you to use the electronic noi system, or “enoi” system, to. Notice of termination (not) of coverage under a npdes general permit for stormwater discharges associated with. Submission of this notice of termination (not) constitutes notice that the party identified in section b of this form is no longer authorized to. Notice of termination (not) of coverage. Notice Of Termination Npdes.
From www.templateroller.com
ADEM Form 499 Download Printable PDF or Fill Online Notice of Notice Of Termination Npdes Submission of this notice of termination (not) constitutes notice that the party identified in section b of this form is no longer authorized to. Part 9.3 requires you to use the electronic noi system, or “enoi” system, to. You can submit an not once. Notice of termination (not) of coverage under a npdes general permit for stormwater discharges associated with.. Notice Of Termination Npdes.
From www.slideserve.com
PPT NPDES REQUIREMENTS PowerPoint Presentation, free download ID Notice Of Termination Npdes Notice of termination (not) of coverage under a npdes general permit for stormwater discharges associated with. Notice of termination (not) operators of facilities and/or operations authorized under this permit shall notify the director of the termination of. Notice of termination for the 2022 npdes construction general permit. Part 9.3 requires you to use the electronic noi system, or “enoi” system,. Notice Of Termination Npdes.
From templatearchive.com
50 Notice of Termination Letters [Lease, Employment, Contract] Notice Of Termination Npdes Submission of this notice of termination (not) constitutes notice that the party identified in section b of this form is no longer authorized to. You can submit an not once. Part 9.3 requires you to use the electronic noi system, or “enoi” system, to. Notice of termination (not) of coverage under a npdes general permit for stormwater discharges associated with.. Notice Of Termination Npdes.
From www.templateroller.com
West Virginia Notice of Termination (Not) of Coverage Under the Npdes Notice Of Termination Npdes Notice of termination (not) of coverage under a npdes general permit for stormwater discharges associated with. Submission of this notice of termination (not) constitutes notice that the party identified in section b of this form is no longer authorized to. Notice of termination for the 2022 npdes construction general permit. You can submit an not once. Notice of termination (not). Notice Of Termination Npdes.
From www.templateroller.com
ADEM Form 021 Download Printable PDF or Fill Online Notice of Notice Of Termination Npdes Notice of termination (not) operators of facilities and/or operations authorized under this permit shall notify the director of the termination of. Part 9.3 requires you to use the electronic noi system, or “enoi” system, to. Notice of termination (not) of coverage under a npdes general permit for stormwater discharges associated with. Notice of termination (not) of coverage under a npdes. Notice Of Termination Npdes.
From www.pdffiller.com
Fillable Online swrcb ca NPDES Order CAS NOTICE OF TERMINATION FOR Notice Of Termination Npdes You can submit an not once. Notice of termination for the 2022 npdes construction general permit. Notice of termination (not) of coverage under a npdes general permit for stormwater discharges associated with. Notice of termination (not) of coverage under a npdes general permit for stormwater discharges associated with. Part 9.3 requires you to use the electronic noi system, or “enoi”. Notice Of Termination Npdes.
From www.formsbank.com
Fillable National Pollutant Discharge Elimination System (Npdes Notice Of Termination Npdes Notice of termination (not) of coverage under a npdes general permit for stormwater discharges associated with. Notice of termination (not) operators of facilities and/or operations authorized under this permit shall notify the director of the termination of. Notice of termination (not) of coverage under a npdes general permit for stormwater discharges associated with. Submission of this notice of termination (not). Notice Of Termination Npdes.
From www.pdffiller.com
Fillable Online notice of termination npdes generic permit for Notice Of Termination Npdes Notice of termination (not) operators of facilities and/or operations authorized under this permit shall notify the director of the termination of. You can submit an not once. Notice of termination (not) of coverage under a npdes general permit for stormwater discharges associated with. Notice of termination for the 2022 npdes construction general permit. Submission of this notice of termination (not). Notice Of Termination Npdes.
From templatelab.com
45 Eviction Notice Templates & Lease Termination Letters Notice Of Termination Npdes Notice of termination (not) of coverage under a npdes general permit for stormwater discharges associated with. Notice of termination (not) of coverage under a npdes general permit for stormwater discharges associated with. Part 9.3 requires you to use the electronic noi system, or “enoi” system, to. Notice of termination (not) operators of facilities and/or operations authorized under this permit shall. Notice Of Termination Npdes.
From www.templateroller.com
Notice of Termination (Not) of Coverage Under Npdes General Permit for Notice Of Termination Npdes Notice of termination (not) of coverage under a npdes general permit for stormwater discharges associated with. Notice of termination (not) operators of facilities and/or operations authorized under this permit shall notify the director of the termination of. Notice of termination for the 2022 npdes construction general permit. Notice of termination (not) of coverage under a npdes general permit for stormwater. Notice Of Termination Npdes.
From www.pdffiller.com
Fillable Online Notice of Termination (NOT) of Coverage Under an NPDES Notice Of Termination Npdes Notice of termination (not) of coverage under a npdes general permit for stormwater discharges associated with. Notice of termination for the 2022 npdes construction general permit. Notice of termination (not) operators of facilities and/or operations authorized under this permit shall notify the director of the termination of. Part 9.3 requires you to use the electronic noi system, or “enoi” system,. Notice Of Termination Npdes.
From www.templateroller.com
DEP Form 62621.300(6) Fill Out, Sign Online and Download Fillable Notice Of Termination Npdes You can submit an not once. Notice of termination (not) operators of facilities and/or operations authorized under this permit shall notify the director of the termination of. Notice of termination (not) of coverage under a npdes general permit for stormwater discharges associated with. Part 9.3 requires you to use the electronic noi system, or “enoi” system, to. Submission of this. Notice Of Termination Npdes.
From www.templateroller.com
ADEM Form 021 Download Printable PDF or Fill Online Notice of Notice Of Termination Npdes Notice of termination (not) operators of facilities and/or operations authorized under this permit shall notify the director of the termination of. Notice of termination (not) of coverage under a npdes general permit for stormwater discharges associated with. Notice of termination (not) of coverage under a npdes general permit for stormwater discharges associated with. Submission of this notice of termination (not). Notice Of Termination Npdes.
From www.templateroller.com
ADEM Form 499 Download Printable PDF or Fill Online Notice of Notice Of Termination Npdes Notice of termination (not) operators of facilities and/or operations authorized under this permit shall notify the director of the termination of. Submission of this notice of termination (not) constitutes notice that the party identified in section b of this form is no longer authorized to. Notice of termination (not) of coverage under a npdes general permit for stormwater discharges associated. Notice Of Termination Npdes.
From www.templateroller.com
Notice of Termination (Not) of Coverage Under Npdes General Permit for Notice Of Termination Npdes You can submit an not once. Submission of this notice of termination (not) constitutes notice that the party identified in section b of this form is no longer authorized to. Part 9.3 requires you to use the electronic noi system, or “enoi” system, to. Notice of termination (not) of coverage under a npdes general permit for stormwater discharges associated with.. Notice Of Termination Npdes.
From www.slideserve.com
PPT NPDES REQUIREMENTS PowerPoint Presentation, free download ID Notice Of Termination Npdes Part 9.3 requires you to use the electronic noi system, or “enoi” system, to. Notice of termination (not) operators of facilities and/or operations authorized under this permit shall notify the director of the termination of. You can submit an not once. Notice of termination for the 2022 npdes construction general permit. Notice of termination (not) of coverage under a npdes. Notice Of Termination Npdes.
From npdestraining.com
Revised Enforcement Protocol for the Notice of Intent/Notice of Notice Of Termination Npdes You can submit an not once. Notice of termination for the 2022 npdes construction general permit. Part 9.3 requires you to use the electronic noi system, or “enoi” system, to. Notice of termination (not) operators of facilities and/or operations authorized under this permit shall notify the director of the termination of. Submission of this notice of termination (not) constitutes notice. Notice Of Termination Npdes.