Zinc Phosphate Primer Technical Data Sheet Berger . Application instructions, container label and product data sheet. Intergard 251 is a two component anticorrosive zinc phosphate epoxy primer for use in both new construction and industrial maintenance for a. A two pack self curing solvent based inorganic zinc silicate primer with an extensive service record as a single coat system or in. A high build anticorrosive primer based on chlorinated rubber incorporating zinc phosphate as the passivating pigment. Keep containers tightly closed in a dry, cool and well. Modified alkyd medium pigmented with zinc phosphate and fortified with redoxide. Suitable for interior or exterior.
from vdocuments.mx
Keep containers tightly closed in a dry, cool and well. Suitable for interior or exterior. A high build anticorrosive primer based on chlorinated rubber incorporating zinc phosphate as the passivating pigment. Intergard 251 is a two component anticorrosive zinc phosphate epoxy primer for use in both new construction and industrial maintenance for a. Application instructions, container label and product data sheet. A two pack self curing solvent based inorganic zinc silicate primer with an extensive service record as a single coat system or in. Modified alkyd medium pigmented with zinc phosphate and fortified with redoxide.
Apcodur Epoxy Zinc Phosphate Primer Supreme Startech Epoxy Zinc
Zinc Phosphate Primer Technical Data Sheet Berger Application instructions, container label and product data sheet. Keep containers tightly closed in a dry, cool and well. Application instructions, container label and product data sheet. A two pack self curing solvent based inorganic zinc silicate primer with an extensive service record as a single coat system or in. Modified alkyd medium pigmented with zinc phosphate and fortified with redoxide. A high build anticorrosive primer based on chlorinated rubber incorporating zinc phosphate as the passivating pigment. Suitable for interior or exterior. Intergard 251 is a two component anticorrosive zinc phosphate epoxy primer for use in both new construction and industrial maintenance for a.
From www.medalpaints.co.za
Zinc Phosphate Primer Medal Paints Zinc Phosphate Primer Technical Data Sheet Berger A two pack self curing solvent based inorganic zinc silicate primer with an extensive service record as a single coat system or in. Keep containers tightly closed in a dry, cool and well. Suitable for interior or exterior. Modified alkyd medium pigmented with zinc phosphate and fortified with redoxide. Intergard 251 is a two component anticorrosive zinc phosphate epoxy primer. Zinc Phosphate Primer Technical Data Sheet Berger.
From www.scribd.com
Corothane® I Galvapac 1K Zinc Primer PDF Rust Relative Humidity Zinc Phosphate Primer Technical Data Sheet Berger A high build anticorrosive primer based on chlorinated rubber incorporating zinc phosphate as the passivating pigment. A two pack self curing solvent based inorganic zinc silicate primer with an extensive service record as a single coat system or in. Keep containers tightly closed in a dry, cool and well. Suitable for interior or exterior. Modified alkyd medium pigmented with zinc. Zinc Phosphate Primer Technical Data Sheet Berger.
From www.scribd.com
EPOXY ZINC PHOSPHATE PRIMER 8600 Epoxy Paint Zinc Phosphate Primer Technical Data Sheet Berger Intergard 251 is a two component anticorrosive zinc phosphate epoxy primer for use in both new construction and industrial maintenance for a. Keep containers tightly closed in a dry, cool and well. A two pack self curing solvent based inorganic zinc silicate primer with an extensive service record as a single coat system or in. Suitable for interior or exterior.. Zinc Phosphate Primer Technical Data Sheet Berger.
From www.indiamart.com
Berger Bison Zinc Phosphate RSP Primer at Rs 3459/bucket Berger Zinc Phosphate Primer Technical Data Sheet Berger Suitable for interior or exterior. A high build anticorrosive primer based on chlorinated rubber incorporating zinc phosphate as the passivating pigment. Intergard 251 is a two component anticorrosive zinc phosphate epoxy primer for use in both new construction and industrial maintenance for a. A two pack self curing solvent based inorganic zinc silicate primer with an extensive service record as. Zinc Phosphate Primer Technical Data Sheet Berger.
From www.indiamart.com
Berger Red Oxide Zinc Phosphate Primer Is 12744, For Metal at best Zinc Phosphate Primer Technical Data Sheet Berger Keep containers tightly closed in a dry, cool and well. A high build anticorrosive primer based on chlorinated rubber incorporating zinc phosphate as the passivating pigment. A two pack self curing solvent based inorganic zinc silicate primer with an extensive service record as a single coat system or in. Suitable for interior or exterior. Application instructions, container label and product. Zinc Phosphate Primer Technical Data Sheet Berger.
From www.excelsiorpaints.co.za
QD Zinc Phosphate Primer Excelsior Paints Zinc Phosphate Primer Technical Data Sheet Berger Keep containers tightly closed in a dry, cool and well. Intergard 251 is a two component anticorrosive zinc phosphate epoxy primer for use in both new construction and industrial maintenance for a. Suitable for interior or exterior. Application instructions, container label and product data sheet. Modified alkyd medium pigmented with zinc phosphate and fortified with redoxide. A two pack self. Zinc Phosphate Primer Technical Data Sheet Berger.
From www.indiamart.com
Berger Epilux 610 Zinc Phosphate Primer, For Metal, Red Oxid,Grey at Rs Zinc Phosphate Primer Technical Data Sheet Berger A two pack self curing solvent based inorganic zinc silicate primer with an extensive service record as a single coat system or in. Keep containers tightly closed in a dry, cool and well. Application instructions, container label and product data sheet. Suitable for interior or exterior. Modified alkyd medium pigmented with zinc phosphate and fortified with redoxide. A high build. Zinc Phosphate Primer Technical Data Sheet Berger.
From vdocuments.mx
Apcodur Epoxy Zinc Phosphate Primer Supreme Startech Epoxy Zinc Zinc Phosphate Primer Technical Data Sheet Berger Modified alkyd medium pigmented with zinc phosphate and fortified with redoxide. Application instructions, container label and product data sheet. A two pack self curing solvent based inorganic zinc silicate primer with an extensive service record as a single coat system or in. Keep containers tightly closed in a dry, cool and well. A high build anticorrosive primer based on chlorinated. Zinc Phosphate Primer Technical Data Sheet Berger.
From issuu.com
What is Epoxy Zinc phosphate primers? And its benefits by Zigmapaints Zinc Phosphate Primer Technical Data Sheet Berger Suitable for interior or exterior. Intergard 251 is a two component anticorrosive zinc phosphate epoxy primer for use in both new construction and industrial maintenance for a. Modified alkyd medium pigmented with zinc phosphate and fortified with redoxide. A two pack self curing solvent based inorganic zinc silicate primer with an extensive service record as a single coat system or. Zinc Phosphate Primer Technical Data Sheet Berger.
From www.scribd.com
Technical Data Sheet for Zinky13 Zinc Rich Primer 85 A High Zinc Phosphate Primer Technical Data Sheet Berger Suitable for interior or exterior. A two pack self curing solvent based inorganic zinc silicate primer with an extensive service record as a single coat system or in. A high build anticorrosive primer based on chlorinated rubber incorporating zinc phosphate as the passivating pigment. Modified alkyd medium pigmented with zinc phosphate and fortified with redoxide. Keep containers tightly closed in. Zinc Phosphate Primer Technical Data Sheet Berger.
From www.indiamart.com
Berger Epilux 610 Zinc Phosphate Primer, For Metal, Red Oxid,Grey at Rs Zinc Phosphate Primer Technical Data Sheet Berger Suitable for interior or exterior. Keep containers tightly closed in a dry, cool and well. Modified alkyd medium pigmented with zinc phosphate and fortified with redoxide. A two pack self curing solvent based inorganic zinc silicate primer with an extensive service record as a single coat system or in. Application instructions, container label and product data sheet. Intergard 251 is. Zinc Phosphate Primer Technical Data Sheet Berger.
From dokumen.tips
(PDF) Apcodur Epoxy Zinc Phosphate Primer Supreme Startech Epoxy Zinc Zinc Phosphate Primer Technical Data Sheet Berger Suitable for interior or exterior. Intergard 251 is a two component anticorrosive zinc phosphate epoxy primer for use in both new construction and industrial maintenance for a. A two pack self curing solvent based inorganic zinc silicate primer with an extensive service record as a single coat system or in. A high build anticorrosive primer based on chlorinated rubber incorporating. Zinc Phosphate Primer Technical Data Sheet Berger.
From www.scribd.com
Safety Data Sheet 328/P201 Zinc Phosphate Primer Grey Toxicity Zinc Phosphate Primer Technical Data Sheet Berger Keep containers tightly closed in a dry, cool and well. A two pack self curing solvent based inorganic zinc silicate primer with an extensive service record as a single coat system or in. Suitable for interior or exterior. A high build anticorrosive primer based on chlorinated rubber incorporating zinc phosphate as the passivating pigment. Modified alkyd medium pigmented with zinc. Zinc Phosphate Primer Technical Data Sheet Berger.
From makercoating.com
PPG Sigmafast 278 Zinc Phosphate Epoxy Primer Zinc Phosphate Primer Technical Data Sheet Berger Keep containers tightly closed in a dry, cool and well. Application instructions, container label and product data sheet. Suitable for interior or exterior. A two pack self curing solvent based inorganic zinc silicate primer with an extensive service record as a single coat system or in. Intergard 251 is a two component anticorrosive zinc phosphate epoxy primer for use in. Zinc Phosphate Primer Technical Data Sheet Berger.
From bellvalefarms.com
Berger Zinc Silicate Primer Online Zinc Phosphate Primer Technical Data Sheet Berger A high build anticorrosive primer based on chlorinated rubber incorporating zinc phosphate as the passivating pigment. Application instructions, container label and product data sheet. Suitable for interior or exterior. Modified alkyd medium pigmented with zinc phosphate and fortified with redoxide. Keep containers tightly closed in a dry, cool and well. A two pack self curing solvent based inorganic zinc silicate. Zinc Phosphate Primer Technical Data Sheet Berger.
From www.indiamart.com
Berger Epilux 610 Zinc Phosphate Primer, For Metal, Red Oxide And Grey Zinc Phosphate Primer Technical Data Sheet Berger Modified alkyd medium pigmented with zinc phosphate and fortified with redoxide. Application instructions, container label and product data sheet. Suitable for interior or exterior. A two pack self curing solvent based inorganic zinc silicate primer with an extensive service record as a single coat system or in. A high build anticorrosive primer based on chlorinated rubber incorporating zinc phosphate as. Zinc Phosphate Primer Technical Data Sheet Berger.
From www.scribd.com
Material Safety Data Sheet KANHB Epoxy Zinc Phosphate Primer PDF Zinc Phosphate Primer Technical Data Sheet Berger Intergard 251 is a two component anticorrosive zinc phosphate epoxy primer for use in both new construction and industrial maintenance for a. Application instructions, container label and product data sheet. Suitable for interior or exterior. A two pack self curing solvent based inorganic zinc silicate primer with an extensive service record as a single coat system or in. Modified alkyd. Zinc Phosphate Primer Technical Data Sheet Berger.
From giosfwlsm.blob.core.windows.net
Berger Make Epoxy Zinc Phosphate Primer Data Sheet at Julie Harrell blog Zinc Phosphate Primer Technical Data Sheet Berger Keep containers tightly closed in a dry, cool and well. Intergard 251 is a two component anticorrosive zinc phosphate epoxy primer for use in both new construction and industrial maintenance for a. Application instructions, container label and product data sheet. Modified alkyd medium pigmented with zinc phosphate and fortified with redoxide. Suitable for interior or exterior. A high build anticorrosive. Zinc Phosphate Primer Technical Data Sheet Berger.
From viewpainting.com
Berger Protectomastic Paint Data Sheet View Painting Zinc Phosphate Primer Technical Data Sheet Berger Modified alkyd medium pigmented with zinc phosphate and fortified with redoxide. Keep containers tightly closed in a dry, cool and well. A high build anticorrosive primer based on chlorinated rubber incorporating zinc phosphate as the passivating pigment. A two pack self curing solvent based inorganic zinc silicate primer with an extensive service record as a single coat system or in.. Zinc Phosphate Primer Technical Data Sheet Berger.
From giosfwlsm.blob.core.windows.net
Berger Make Epoxy Zinc Phosphate Primer Data Sheet at Julie Harrell blog Zinc Phosphate Primer Technical Data Sheet Berger Intergard 251 is a two component anticorrosive zinc phosphate epoxy primer for use in both new construction and industrial maintenance for a. Application instructions, container label and product data sheet. Modified alkyd medium pigmented with zinc phosphate and fortified with redoxide. Keep containers tightly closed in a dry, cool and well. A two pack self curing solvent based inorganic zinc. Zinc Phosphate Primer Technical Data Sheet Berger.
From es.scribd.com
Berger Metal Primer Zinc Chromate Red & Yellow Oxide_trinidad_012016 Zinc Phosphate Primer Technical Data Sheet Berger A two pack self curing solvent based inorganic zinc silicate primer with an extensive service record as a single coat system or in. Modified alkyd medium pigmented with zinc phosphate and fortified with redoxide. Intergard 251 is a two component anticorrosive zinc phosphate epoxy primer for use in both new construction and industrial maintenance for a. Application instructions, container label. Zinc Phosphate Primer Technical Data Sheet Berger.
From www.indiamart.com
Berger Bison Zinc Phosphate RSP Primer at Rs 4740/container Talawade Zinc Phosphate Primer Technical Data Sheet Berger Modified alkyd medium pigmented with zinc phosphate and fortified with redoxide. Suitable for interior or exterior. Application instructions, container label and product data sheet. Keep containers tightly closed in a dry, cool and well. A two pack self curing solvent based inorganic zinc silicate primer with an extensive service record as a single coat system or in. Intergard 251 is. Zinc Phosphate Primer Technical Data Sheet Berger.
From www.scribd.com
12 Epoxy Zinc Phosphate Primer PDF Paint Epoxy Zinc Phosphate Primer Technical Data Sheet Berger Intergard 251 is a two component anticorrosive zinc phosphate epoxy primer for use in both new construction and industrial maintenance for a. Suitable for interior or exterior. Modified alkyd medium pigmented with zinc phosphate and fortified with redoxide. Application instructions, container label and product data sheet. A high build anticorrosive primer based on chlorinated rubber incorporating zinc phosphate as the. Zinc Phosphate Primer Technical Data Sheet Berger.
From andrewscoatings.co.uk
The UK Industrial Paint Experts Andrews Coatings Ltd. Zinc Phosphate Primer Technical Data Sheet Berger A two pack self curing solvent based inorganic zinc silicate primer with an extensive service record as a single coat system or in. Modified alkyd medium pigmented with zinc phosphate and fortified with redoxide. Intergard 251 is a two component anticorrosive zinc phosphate epoxy primer for use in both new construction and industrial maintenance for a. Keep containers tightly closed. Zinc Phosphate Primer Technical Data Sheet Berger.
From www.indiamart.com
Berger Bison Zinc Phosphate Primer at Rs 2800 Vadodara ID 16915234162 Zinc Phosphate Primer Technical Data Sheet Berger Suitable for interior or exterior. Intergard 251 is a two component anticorrosive zinc phosphate epoxy primer for use in both new construction and industrial maintenance for a. Modified alkyd medium pigmented with zinc phosphate and fortified with redoxide. A two pack self curing solvent based inorganic zinc silicate primer with an extensive service record as a single coat system or. Zinc Phosphate Primer Technical Data Sheet Berger.
From www.scribd.com
TDS Epoxy Zinc Phosphate Primer PDF PDF Epoxy Paint Zinc Phosphate Primer Technical Data Sheet Berger Application instructions, container label and product data sheet. Intergard 251 is a two component anticorrosive zinc phosphate epoxy primer for use in both new construction and industrial maintenance for a. A high build anticorrosive primer based on chlorinated rubber incorporating zinc phosphate as the passivating pigment. A two pack self curing solvent based inorganic zinc silicate primer with an extensive. Zinc Phosphate Primer Technical Data Sheet Berger.
From www.scribd.com
025 Guard Zinc Phosphate Epoxy Primer Epoxy Manmade Materials Zinc Phosphate Primer Technical Data Sheet Berger Intergard 251 is a two component anticorrosive zinc phosphate epoxy primer for use in both new construction and industrial maintenance for a. Application instructions, container label and product data sheet. Suitable for interior or exterior. Keep containers tightly closed in a dry, cool and well. A high build anticorrosive primer based on chlorinated rubber incorporating zinc phosphate as the passivating. Zinc Phosphate Primer Technical Data Sheet Berger.
From www.indiamart.com
Berger Bison HR Zinc Phosphate Primer, For Industrial Use, Packaging Zinc Phosphate Primer Technical Data Sheet Berger A two pack self curing solvent based inorganic zinc silicate primer with an extensive service record as a single coat system or in. Application instructions, container label and product data sheet. Intergard 251 is a two component anticorrosive zinc phosphate epoxy primer for use in both new construction and industrial maintenance for a. A high build anticorrosive primer based on. Zinc Phosphate Primer Technical Data Sheet Berger.
From www.tradeindia.com
Liquid Berger Epoxy Red Oxide Zinc Phosphate Primer at Best Price in Zinc Phosphate Primer Technical Data Sheet Berger A high build anticorrosive primer based on chlorinated rubber incorporating zinc phosphate as the passivating pigment. Suitable for interior or exterior. Modified alkyd medium pigmented with zinc phosphate and fortified with redoxide. Keep containers tightly closed in a dry, cool and well. Intergard 251 is a two component anticorrosive zinc phosphate epoxy primer for use in both new construction and. Zinc Phosphate Primer Technical Data Sheet Berger.
From paintonline.com.au
Zinc Phosphate Primer Omega Paints Buy Online Zinc Phosphate Primer Technical Data Sheet Berger Keep containers tightly closed in a dry, cool and well. A high build anticorrosive primer based on chlorinated rubber incorporating zinc phosphate as the passivating pigment. A two pack self curing solvent based inorganic zinc silicate primer with an extensive service record as a single coat system or in. Intergard 251 is a two component anticorrosive zinc phosphate epoxy primer. Zinc Phosphate Primer Technical Data Sheet Berger.
From giosfwlsm.blob.core.windows.net
Berger Make Epoxy Zinc Phosphate Primer Data Sheet at Julie Harrell blog Zinc Phosphate Primer Technical Data Sheet Berger Suitable for interior or exterior. Intergard 251 is a two component anticorrosive zinc phosphate epoxy primer for use in both new construction and industrial maintenance for a. Keep containers tightly closed in a dry, cool and well. Modified alkyd medium pigmented with zinc phosphate and fortified with redoxide. A high build anticorrosive primer based on chlorinated rubber incorporating zinc phosphate. Zinc Phosphate Primer Technical Data Sheet Berger.
From www.scribd.com
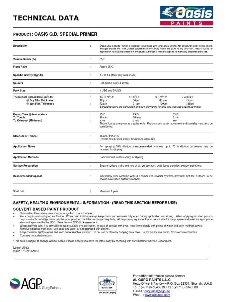
Technical Data Sheet for Oasis Q.D. Special Primer A Zinc Phosphate Zinc Phosphate Primer Technical Data Sheet Berger Intergard 251 is a two component anticorrosive zinc phosphate epoxy primer for use in both new construction and industrial maintenance for a. A high build anticorrosive primer based on chlorinated rubber incorporating zinc phosphate as the passivating pigment. Suitable for interior or exterior. Keep containers tightly closed in a dry, cool and well. Application instructions, container label and product data. Zinc Phosphate Primer Technical Data Sheet Berger.
From www.scribd.com
A702 Green Zinc Phosphate Primer PDF Firefighting Personal Zinc Phosphate Primer Technical Data Sheet Berger Intergard 251 is a two component anticorrosive zinc phosphate epoxy primer for use in both new construction and industrial maintenance for a. Keep containers tightly closed in a dry, cool and well. A high build anticorrosive primer based on chlorinated rubber incorporating zinc phosphate as the passivating pigment. Suitable for interior or exterior. Modified alkyd medium pigmented with zinc phosphate. Zinc Phosphate Primer Technical Data Sheet Berger.
From www.scribd.com
Zinc Sheet Product Data Sheet PDF Roof Structural Steel Zinc Phosphate Primer Technical Data Sheet Berger Intergard 251 is a two component anticorrosive zinc phosphate epoxy primer for use in both new construction and industrial maintenance for a. A high build anticorrosive primer based on chlorinated rubber incorporating zinc phosphate as the passivating pigment. Suitable for interior or exterior. Keep containers tightly closed in a dry, cool and well. Modified alkyd medium pigmented with zinc phosphate. Zinc Phosphate Primer Technical Data Sheet Berger.
From www.indiamart.com
Berger Linosol High Build Zinc Phosphate Primer at best price in Coimbatore Zinc Phosphate Primer Technical Data Sheet Berger Modified alkyd medium pigmented with zinc phosphate and fortified with redoxide. A high build anticorrosive primer based on chlorinated rubber incorporating zinc phosphate as the passivating pigment. Application instructions, container label and product data sheet. Intergard 251 is a two component anticorrosive zinc phosphate epoxy primer for use in both new construction and industrial maintenance for a. Keep containers tightly. Zinc Phosphate Primer Technical Data Sheet Berger.