Hotel Room Furniture Dimensions . But if you want to go above and beyond for your guests, you’ll need to design a hotel room layout that anticipates the needs of the types of hotel guests who frequent your property. By understanding the factors that. The bed, seating, desk, storage, bathroom, lighting, room shape, size, decor, and accessibility are all crucial factors to consider. There are a ton of ways to creatively arrange a hotel room into a practical yet intuitive layout. In this article, we will delve into the varying sizes of hotel rooms, exploring how these differences can affect the quality of a guest’s stay. Hotel rooms, furnished with essentials like beds, nightstands, a desk, chair, and often a mini fridge or coffee station, serve as temporary homes for travelers. The layout of a hotel room. This includes the placement of furniture, fixtures, and amenities to create a functional and comfortable environment for guests. According to usa today, the average hotel room/bathroom combination in the us is roughly 325 square feet (about 30 m2) with interior dimensions of approximately 13 feet x 25. Hotel room layout refers to the design and arrangement of a guest room within a hotel. Creating hotel rooms that offer both comfort and practicality is essential for ensuring a positive guest experience.
from www.dimensions.guide
This includes the placement of furniture, fixtures, and amenities to create a functional and comfortable environment for guests. But if you want to go above and beyond for your guests, you’ll need to design a hotel room layout that anticipates the needs of the types of hotel guests who frequent your property. There are a ton of ways to creatively arrange a hotel room into a practical yet intuitive layout. Creating hotel rooms that offer both comfort and practicality is essential for ensuring a positive guest experience. According to usa today, the average hotel room/bathroom combination in the us is roughly 325 square feet (about 30 m2) with interior dimensions of approximately 13 feet x 25. The bed, seating, desk, storage, bathroom, lighting, room shape, size, decor, and accessibility are all crucial factors to consider. In this article, we will delve into the varying sizes of hotel rooms, exploring how these differences can affect the quality of a guest’s stay. Hotel rooms, furnished with essentials like beds, nightstands, a desk, chair, and often a mini fridge or coffee station, serve as temporary homes for travelers. The layout of a hotel room. By understanding the factors that.
Reception Seating Dimensions & Drawings Dimensions.Guide
Hotel Room Furniture Dimensions Hotel room layout refers to the design and arrangement of a guest room within a hotel. There are a ton of ways to creatively arrange a hotel room into a practical yet intuitive layout. The layout of a hotel room. Hotel room layout refers to the design and arrangement of a guest room within a hotel. The bed, seating, desk, storage, bathroom, lighting, room shape, size, decor, and accessibility are all crucial factors to consider. This includes the placement of furniture, fixtures, and amenities to create a functional and comfortable environment for guests. By understanding the factors that. But if you want to go above and beyond for your guests, you’ll need to design a hotel room layout that anticipates the needs of the types of hotel guests who frequent your property. In this article, we will delve into the varying sizes of hotel rooms, exploring how these differences can affect the quality of a guest’s stay. According to usa today, the average hotel room/bathroom combination in the us is roughly 325 square feet (about 30 m2) with interior dimensions of approximately 13 feet x 25. Hotel rooms, furnished with essentials like beds, nightstands, a desk, chair, and often a mini fridge or coffee station, serve as temporary homes for travelers. Creating hotel rooms that offer both comfort and practicality is essential for ensuring a positive guest experience.
From animalia-life.club
Hotel Room Floor Plan Dimensions Hotel Room Furniture Dimensions But if you want to go above and beyond for your guests, you’ll need to design a hotel room layout that anticipates the needs of the types of hotel guests who frequent your property. This includes the placement of furniture, fixtures, and amenities to create a functional and comfortable environment for guests. The layout of a hotel room. According to. Hotel Room Furniture Dimensions.
From www.pinterest.com
Image result for hotel room dimensions Hotels room, Vintage house Hotel Room Furniture Dimensions The bed, seating, desk, storage, bathroom, lighting, room shape, size, decor, and accessibility are all crucial factors to consider. Creating hotel rooms that offer both comfort and practicality is essential for ensuring a positive guest experience. There are a ton of ways to creatively arrange a hotel room into a practical yet intuitive layout. Hotel room layout refers to the. Hotel Room Furniture Dimensions.
From sdhotelfurniture.com
How to Design the Hotel Room Furniture Layout Complete Guide Hotel Room Furniture Dimensions Hotel rooms, furnished with essentials like beds, nightstands, a desk, chair, and often a mini fridge or coffee station, serve as temporary homes for travelers. The layout of a hotel room. This includes the placement of furniture, fixtures, and amenities to create a functional and comfortable environment for guests. According to usa today, the average hotel room/bathroom combination in the. Hotel Room Furniture Dimensions.
From www.pinterest.ie
Hotel Room Floor Plans Hotel Room Floor Plan Dimensions Hotel Room Furniture Dimensions This includes the placement of furniture, fixtures, and amenities to create a functional and comfortable environment for guests. According to usa today, the average hotel room/bathroom combination in the us is roughly 325 square feet (about 30 m2) with interior dimensions of approximately 13 feet x 25. The bed, seating, desk, storage, bathroom, lighting, room shape, size, decor, and accessibility. Hotel Room Furniture Dimensions.
From www.pinterest.com
luxury hotel suite floor plan Google Search Hotel room plan, Hotel Hotel Room Furniture Dimensions According to usa today, the average hotel room/bathroom combination in the us is roughly 325 square feet (about 30 m2) with interior dimensions of approximately 13 feet x 25. Creating hotel rooms that offer both comfort and practicality is essential for ensuring a positive guest experience. Hotel rooms, furnished with essentials like beds, nightstands, a desk, chair, and often a. Hotel Room Furniture Dimensions.
From www.edrawmax.com
Hotel Room Floor Plan With Dimensions EdrawMax EdrawMax Templates Hotel Room Furniture Dimensions The bed, seating, desk, storage, bathroom, lighting, room shape, size, decor, and accessibility are all crucial factors to consider. Hotel rooms, furnished with essentials like beds, nightstands, a desk, chair, and often a mini fridge or coffee station, serve as temporary homes for travelers. Creating hotel rooms that offer both comfort and practicality is essential for ensuring a positive guest. Hotel Room Furniture Dimensions.
From www.pinterest.com
deluxe room Hotel room design, Luxury hotel room, Hotel room design plan Hotel Room Furniture Dimensions Hotel rooms, furnished with essentials like beds, nightstands, a desk, chair, and often a mini fridge or coffee station, serve as temporary homes for travelers. This includes the placement of furniture, fixtures, and amenities to create a functional and comfortable environment for guests. The bed, seating, desk, storage, bathroom, lighting, room shape, size, decor, and accessibility are all crucial factors. Hotel Room Furniture Dimensions.
From www.pinterest.com
PLAN 1b ACCESSIBLE 13 ft wide hotel room based on 2004 ADAAG. Hotel Hotel Room Furniture Dimensions According to usa today, the average hotel room/bathroom combination in the us is roughly 325 square feet (about 30 m2) with interior dimensions of approximately 13 feet x 25. The layout of a hotel room. But if you want to go above and beyond for your guests, you’ll need to design a hotel room layout that anticipates the needs of. Hotel Room Furniture Dimensions.
From cadbull.com
Free Download Fully Furnished Hotel Room Plan Layout AutoCAD File Cadbull Hotel Room Furniture Dimensions Hotel rooms, furnished with essentials like beds, nightstands, a desk, chair, and often a mini fridge or coffee station, serve as temporary homes for travelers. Creating hotel rooms that offer both comfort and practicality is essential for ensuring a positive guest experience. But if you want to go above and beyond for your guests, you’ll need to design a hotel. Hotel Room Furniture Dimensions.
From za.pinterest.com
Image result for measurements suitcase hotel luggage rack Modern Hotel Room Furniture Dimensions The bed, seating, desk, storage, bathroom, lighting, room shape, size, decor, and accessibility are all crucial factors to consider. In this article, we will delve into the varying sizes of hotel rooms, exploring how these differences can affect the quality of a guest’s stay. This includes the placement of furniture, fixtures, and amenities to create a functional and comfortable environment. Hotel Room Furniture Dimensions.
From www.pinterest.com
Guestrooms Floorplan … Hotel floor plan, Floor plan layout, Hotel floor Hotel Room Furniture Dimensions The layout of a hotel room. But if you want to go above and beyond for your guests, you’ll need to design a hotel room layout that anticipates the needs of the types of hotel guests who frequent your property. Hotel room layout refers to the design and arrangement of a guest room within a hotel. According to usa today,. Hotel Room Furniture Dimensions.
From bestroom.one
Hotel Room Standard Dimensions bestroom.one Hotel Room Furniture Dimensions According to usa today, the average hotel room/bathroom combination in the us is roughly 325 square feet (about 30 m2) with interior dimensions of approximately 13 feet x 25. Hotel rooms, furnished with essentials like beds, nightstands, a desk, chair, and often a mini fridge or coffee station, serve as temporary homes for travelers. The layout of a hotel room.. Hotel Room Furniture Dimensions.
From www.pinterest.com
Perfect Small Hotel Room Floor Plans With Dimensions And Review Small Hotel Room Furniture Dimensions The layout of a hotel room. Hotel rooms, furnished with essentials like beds, nightstands, a desk, chair, and often a mini fridge or coffee station, serve as temporary homes for travelers. Hotel room layout refers to the design and arrangement of a guest room within a hotel. Creating hotel rooms that offer both comfort and practicality is essential for ensuring. Hotel Room Furniture Dimensions.
From modernhousedesignn.blogspot.com
Floor Plan Hotel Room Layout Dimensions In 2023 Modern House Design Hotel Room Furniture Dimensions But if you want to go above and beyond for your guests, you’ll need to design a hotel room layout that anticipates the needs of the types of hotel guests who frequent your property. In this article, we will delve into the varying sizes of hotel rooms, exploring how these differences can affect the quality of a guest’s stay. According. Hotel Room Furniture Dimensions.
From cadbull.com
Hotel room floor plan, attached toilet, and furniture design are given Hotel Room Furniture Dimensions The layout of a hotel room. This includes the placement of furniture, fixtures, and amenities to create a functional and comfortable environment for guests. Hotel rooms, furnished with essentials like beds, nightstands, a desk, chair, and often a mini fridge or coffee station, serve as temporary homes for travelers. According to usa today, the average hotel room/bathroom combination in the. Hotel Room Furniture Dimensions.
From aracelytestone.blogspot.com
5 Star Hotel Room Layout AracelyteStone Hotel Room Furniture Dimensions There are a ton of ways to creatively arrange a hotel room into a practical yet intuitive layout. In this article, we will delve into the varying sizes of hotel rooms, exploring how these differences can affect the quality of a guest’s stay. The layout of a hotel room. Creating hotel rooms that offer both comfort and practicality is essential. Hotel Room Furniture Dimensions.
From cadbull.com
2d Drawing of hotel room 7.00mtr x 4.10mtr with detail dimension in Hotel Room Furniture Dimensions There are a ton of ways to creatively arrange a hotel room into a practical yet intuitive layout. Creating hotel rooms that offer both comfort and practicality is essential for ensuring a positive guest experience. In this article, we will delve into the varying sizes of hotel rooms, exploring how these differences can affect the quality of a guest’s stay.. Hotel Room Furniture Dimensions.
From www.pinterest.ca
hotel rooms designs and plans room layout design floor plan with Hotel Room Furniture Dimensions Hotel room layout refers to the design and arrangement of a guest room within a hotel. The bed, seating, desk, storage, bathroom, lighting, room shape, size, decor, and accessibility are all crucial factors to consider. But if you want to go above and beyond for your guests, you’ll need to design a hotel room layout that anticipates the needs of. Hotel Room Furniture Dimensions.
From www.pinterest.co.kr
PLAN 3a ACCESSIBLE 12 ft wide hotel room based on 2004 ADAAG. Small Hotel Room Furniture Dimensions Hotel rooms, furnished with essentials like beds, nightstands, a desk, chair, and often a mini fridge or coffee station, serve as temporary homes for travelers. By understanding the factors that. According to usa today, the average hotel room/bathroom combination in the us is roughly 325 square feet (about 30 m2) with interior dimensions of approximately 13 feet x 25. But. Hotel Room Furniture Dimensions.
From cadbull.com
Furniture Layout Of Hotel Room CAD File Free Download Cadbull Hotel Room Furniture Dimensions Hotel rooms, furnished with essentials like beds, nightstands, a desk, chair, and often a mini fridge or coffee station, serve as temporary homes for travelers. Creating hotel rooms that offer both comfort and practicality is essential for ensuring a positive guest experience. But if you want to go above and beyond for your guests, you’ll need to design a hotel. Hotel Room Furniture Dimensions.
From www.pinterest.co.uk
Appendix A Hotel room design plan, Hotel room design, Hotel floor plan Hotel Room Furniture Dimensions This includes the placement of furniture, fixtures, and amenities to create a functional and comfortable environment for guests. Creating hotel rooms that offer both comfort and practicality is essential for ensuring a positive guest experience. By understanding the factors that. Hotel rooms, furnished with essentials like beds, nightstands, a desk, chair, and often a mini fridge or coffee station, serve. Hotel Room Furniture Dimensions.
From www.pinterest.com
Home furniture dimensions to Know Interior design renderings Hotel Room Furniture Dimensions By understanding the factors that. The layout of a hotel room. In this article, we will delve into the varying sizes of hotel rooms, exploring how these differences can affect the quality of a guest’s stay. But if you want to go above and beyond for your guests, you’ll need to design a hotel room layout that anticipates the needs. Hotel Room Furniture Dimensions.
From animalia-life.club
Hotel Room Floor Plan Dimensions Hotel Room Furniture Dimensions This includes the placement of furniture, fixtures, and amenities to create a functional and comfortable environment for guests. Hotel rooms, furnished with essentials like beds, nightstands, a desk, chair, and often a mini fridge or coffee station, serve as temporary homes for travelers. The bed, seating, desk, storage, bathroom, lighting, room shape, size, decor, and accessibility are all crucial factors. Hotel Room Furniture Dimensions.
From www.pinterest.com
hotel room size Google Search Hotel room design plan, Hotel room Hotel Room Furniture Dimensions The bed, seating, desk, storage, bathroom, lighting, room shape, size, decor, and accessibility are all crucial factors to consider. But if you want to go above and beyond for your guests, you’ll need to design a hotel room layout that anticipates the needs of the types of hotel guests who frequent your property. Hotel room layout refers to the design. Hotel Room Furniture Dimensions.
From www.dimensions.guide
Reception Seating Dimensions & Drawings Dimensions.Guide Hotel Room Furniture Dimensions By understanding the factors that. According to usa today, the average hotel room/bathroom combination in the us is roughly 325 square feet (about 30 m2) with interior dimensions of approximately 13 feet x 25. Hotel room layout refers to the design and arrangement of a guest room within a hotel. In this article, we will delve into the varying sizes. Hotel Room Furniture Dimensions.
From www.paradiselodge.com
Lodge Hotel Suite Floor plans Paradise Lodge Hotel Room Furniture Dimensions This includes the placement of furniture, fixtures, and amenities to create a functional and comfortable environment for guests. The bed, seating, desk, storage, bathroom, lighting, room shape, size, decor, and accessibility are all crucial factors to consider. There are a ton of ways to creatively arrange a hotel room into a practical yet intuitive layout. Creating hotel rooms that offer. Hotel Room Furniture Dimensions.
From cindyalonzoarch.blogspot.com
ARCH3610F13CINDYALONZO FURNITURE LAYOUTS +ROOM DIMENSIONS FOR HOTEL Hotel Room Furniture Dimensions The bed, seating, desk, storage, bathroom, lighting, room shape, size, decor, and accessibility are all crucial factors to consider. But if you want to go above and beyond for your guests, you’ll need to design a hotel room layout that anticipates the needs of the types of hotel guests who frequent your property. There are a ton of ways to. Hotel Room Furniture Dimensions.
From viewfloor.co
Small Hotel Room Floor Plans With Dimensions Pdf Viewfloor.co Hotel Room Furniture Dimensions But if you want to go above and beyond for your guests, you’ll need to design a hotel room layout that anticipates the needs of the types of hotel guests who frequent your property. By understanding the factors that. Hotel room layout refers to the design and arrangement of a guest room within a hotel. Hotel rooms, furnished with essentials. Hotel Room Furniture Dimensions.
From www.pinterest.com
Bedroom layout idea. Master bedroom. Hotel suite style. Hotel room Hotel Room Furniture Dimensions The bed, seating, desk, storage, bathroom, lighting, room shape, size, decor, and accessibility are all crucial factors to consider. According to usa today, the average hotel room/bathroom combination in the us is roughly 325 square feet (about 30 m2) with interior dimensions of approximately 13 feet x 25. In this article, we will delve into the varying sizes of hotel. Hotel Room Furniture Dimensions.
From cindyalonzoarch.blogspot.com
ARCH3610F13CINDYALONZO FURNITURE LAYOUTS +ROOM DIMENSIONS FOR HOTEL Hotel Room Furniture Dimensions According to usa today, the average hotel room/bathroom combination in the us is roughly 325 square feet (about 30 m2) with interior dimensions of approximately 13 feet x 25. But if you want to go above and beyond for your guests, you’ll need to design a hotel room layout that anticipates the needs of the types of hotel guests who. Hotel Room Furniture Dimensions.
From cindyalonzoarch.blogspot.com
ARCH3610F13CINDYALONZO FURNITURE LAYOUTS +ROOM DIMENSIONS FOR HOTEL Hotel Room Furniture Dimensions In this article, we will delve into the varying sizes of hotel rooms, exploring how these differences can affect the quality of a guest’s stay. By understanding the factors that. This includes the placement of furniture, fixtures, and amenities to create a functional and comfortable environment for guests. Hotel room layout refers to the design and arrangement of a guest. Hotel Room Furniture Dimensions.
From cindyalonzoarch.blogspot.com
ARCH3610F13CINDYALONZO FURNITURE LAYOUTS +ROOM DIMENSIONS FOR HOTEL Hotel Room Furniture Dimensions Hotel room layout refers to the design and arrangement of a guest room within a hotel. The bed, seating, desk, storage, bathroom, lighting, room shape, size, decor, and accessibility are all crucial factors to consider. By understanding the factors that. There are a ton of ways to creatively arrange a hotel room into a practical yet intuitive layout. The layout. Hotel Room Furniture Dimensions.
From lifeherethere.blogspot.com
Hotel room plans & layouts. Interiors Blog Hotel Room Furniture Dimensions This includes the placement of furniture, fixtures, and amenities to create a functional and comfortable environment for guests. According to usa today, the average hotel room/bathroom combination in the us is roughly 325 square feet (about 30 m2) with interior dimensions of approximately 13 feet x 25. The bed, seating, desk, storage, bathroom, lighting, room shape, size, decor, and accessibility. Hotel Room Furniture Dimensions.
From hotell.epizy.com
22+ Great Hotel Room Furniture Cad Blocks, Hotel Room Hotell Booking Hotel Room Furniture Dimensions Hotel room layout refers to the design and arrangement of a guest room within a hotel. According to usa today, the average hotel room/bathroom combination in the us is roughly 325 square feet (about 30 m2) with interior dimensions of approximately 13 feet x 25. Hotel rooms, furnished with essentials like beds, nightstands, a desk, chair, and often a mini. Hotel Room Furniture Dimensions.
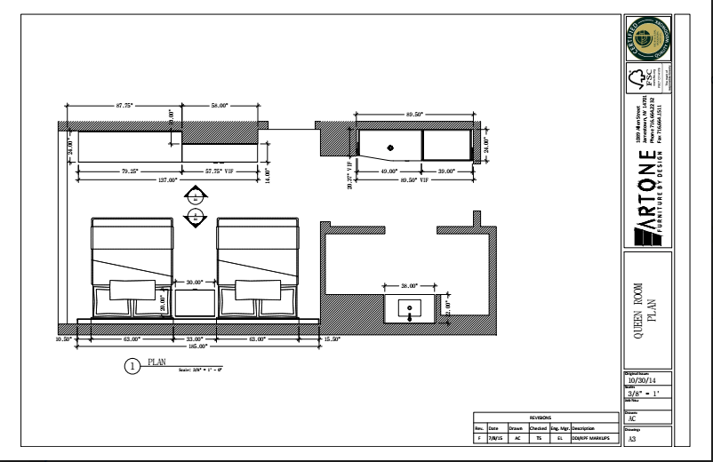
From blog.artonemfg.com
The Best Hotel Room Designs Start With Great Drawings Hotel Room Furniture Dimensions There are a ton of ways to creatively arrange a hotel room into a practical yet intuitive layout. This includes the placement of furniture, fixtures, and amenities to create a functional and comfortable environment for guests. Hotel room layout refers to the design and arrangement of a guest room within a hotel. The layout of a hotel room. But if. Hotel Room Furniture Dimensions.