Edmonton Plumbing Permit . To obtain a plumbing permit, the contractor must be licensed with the city of edmonton. Plumbing and gas permit application for contractor. Every compulsory trade contractor must be registered with safety codes permits. Fill in the contractor’s plumbing and gas application to request a permit. 3rd floor, edmonton tower 10111 104 avenue nw edmonton ab t5j 0j4 city of edmonton. Find the information you need to apply for permits, schedule an inspection or understand the bylaw as related to your. A plumbing or gas permit is required when installing or altering plumbing, drainage or gas equipment or infrastructure. The regulations require you to. Safety codes, permits and inspections edmonton.ca or. A plumbing permit is required under the provincial safety codes act when installing or altering plumbing equipment.
from docslib.org
Fill in the contractor’s plumbing and gas application to request a permit. Safety codes, permits and inspections edmonton.ca or. The regulations require you to. 3rd floor, edmonton tower 10111 104 avenue nw edmonton ab t5j 0j4 city of edmonton. Find the information you need to apply for permits, schedule an inspection or understand the bylaw as related to your. A plumbing or gas permit is required when installing or altering plumbing, drainage or gas equipment or infrastructure. Plumbing and gas permit application for contractor. A plumbing permit is required under the provincial safety codes act when installing or altering plumbing equipment. Every compulsory trade contractor must be registered with safety codes permits. To obtain a plumbing permit, the contractor must be licensed with the city of edmonton.
PLUMBING PERMIT APPLICATION Residential Commercial New Alteration DocsLib
Edmonton Plumbing Permit Fill in the contractor’s plumbing and gas application to request a permit. To obtain a plumbing permit, the contractor must be licensed with the city of edmonton. Every compulsory trade contractor must be registered with safety codes permits. Fill in the contractor’s plumbing and gas application to request a permit. Find the information you need to apply for permits, schedule an inspection or understand the bylaw as related to your. Safety codes, permits and inspections edmonton.ca or. The regulations require you to. A plumbing or gas permit is required when installing or altering plumbing, drainage or gas equipment or infrastructure. 3rd floor, edmonton tower 10111 104 avenue nw edmonton ab t5j 0j4 city of edmonton. Plumbing and gas permit application for contractor. A plumbing permit is required under the provincial safety codes act when installing or altering plumbing equipment.
From www.signnow.com
PLUMBING PERMIT APPLICATION Champlin, Minnesota Form Fill Out and Edmonton Plumbing Permit Safety codes, permits and inspections edmonton.ca or. Plumbing and gas permit application for contractor. Find the information you need to apply for permits, schedule an inspection or understand the bylaw as related to your. Fill in the contractor’s plumbing and gas application to request a permit. To obtain a plumbing permit, the contractor must be licensed with the city of. Edmonton Plumbing Permit.
From mykukun.com
Everything About Plumbing Permits [Permit Information From A to Z] Edmonton Plumbing Permit Safety codes, permits and inspections edmonton.ca or. Find the information you need to apply for permits, schedule an inspection or understand the bylaw as related to your. A plumbing permit is required under the provincial safety codes act when installing or altering plumbing equipment. 3rd floor, edmonton tower 10111 104 avenue nw edmonton ab t5j 0j4 city of edmonton. The. Edmonton Plumbing Permit.
From www.pdffiller.com
Fillable Online iloilocity gov Plumbing Permit word file NBC FORM NO Edmonton Plumbing Permit A plumbing or gas permit is required when installing or altering plumbing, drainage or gas equipment or infrastructure. Find the information you need to apply for permits, schedule an inspection or understand the bylaw as related to your. To obtain a plumbing permit, the contractor must be licensed with the city of edmonton. 3rd floor, edmonton tower 10111 104 avenue. Edmonton Plumbing Permit.
From studylib.net
PLUMBING PERMIT APPLICATION CITY OF COLUMBIA PLANNING & DEVELOPMENT Edmonton Plumbing Permit The regulations require you to. Plumbing and gas permit application for contractor. 3rd floor, edmonton tower 10111 104 avenue nw edmonton ab t5j 0j4 city of edmonton. Safety codes, permits and inspections edmonton.ca or. Every compulsory trade contractor must be registered with safety codes permits. A plumbing or gas permit is required when installing or altering plumbing, drainage or gas. Edmonton Plumbing Permit.
From www.scribd.com
Plumbing Permit PDF Edmonton Plumbing Permit Every compulsory trade contractor must be registered with safety codes permits. The regulations require you to. To obtain a plumbing permit, the contractor must be licensed with the city of edmonton. A plumbing permit is required under the provincial safety codes act when installing or altering plumbing equipment. A plumbing or gas permit is required when installing or altering plumbing,. Edmonton Plumbing Permit.
From www.scribd.com
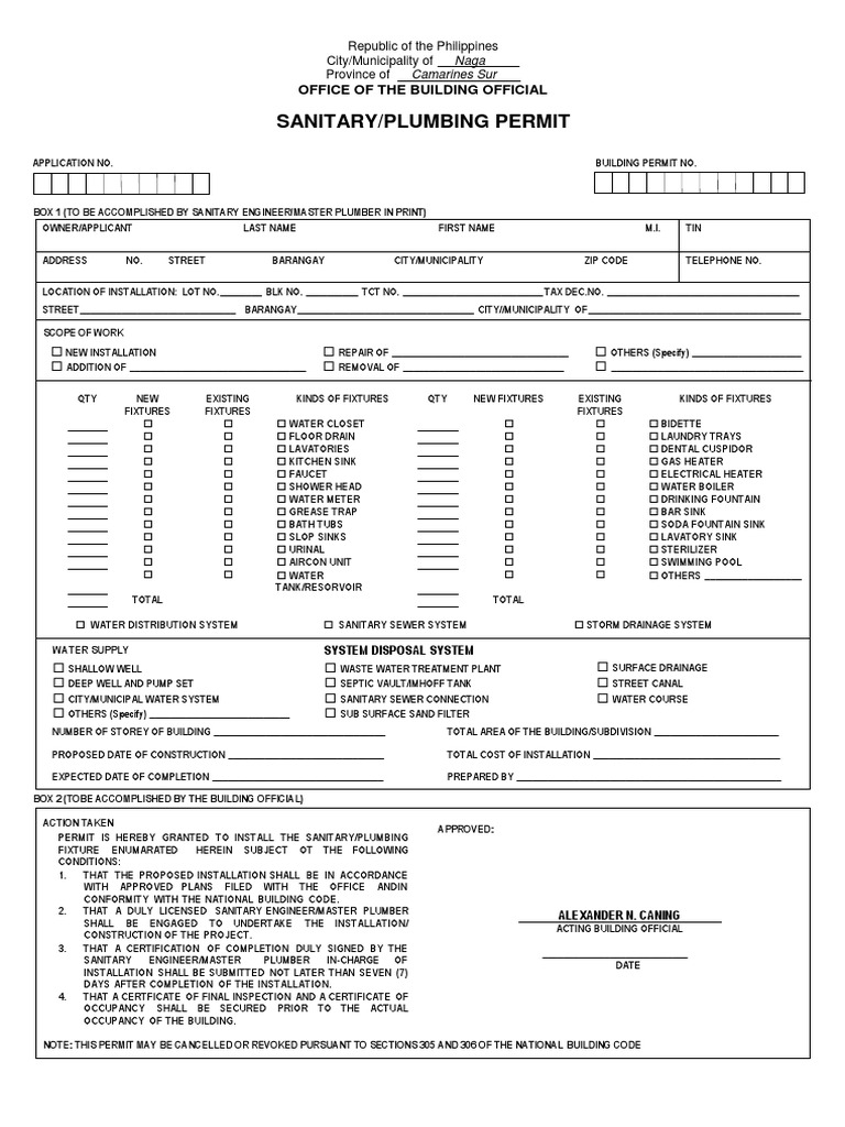
Sanitary/Plumbing Permit Office of The Building Official PDF Edmonton Plumbing Permit Every compulsory trade contractor must be registered with safety codes permits. 3rd floor, edmonton tower 10111 104 avenue nw edmonton ab t5j 0j4 city of edmonton. A plumbing or gas permit is required when installing or altering plumbing, drainage or gas equipment or infrastructure. Find the information you need to apply for permits, schedule an inspection or understand the bylaw. Edmonton Plumbing Permit.
From www.pdffiller.com
Fillable Online Application for plumbing bpermitb demande de permis de Edmonton Plumbing Permit 3rd floor, edmonton tower 10111 104 avenue nw edmonton ab t5j 0j4 city of edmonton. A plumbing or gas permit is required when installing or altering plumbing, drainage or gas equipment or infrastructure. Find the information you need to apply for permits, schedule an inspection or understand the bylaw as related to your. To obtain a plumbing permit, the contractor. Edmonton Plumbing Permit.
From www.signnow.com
Filling Out a Plumbing Permit Fast & easy to use airSlate SignNow Edmonton Plumbing Permit The regulations require you to. Safety codes, permits and inspections edmonton.ca or. A plumbing or gas permit is required when installing or altering plumbing, drainage or gas equipment or infrastructure. A plumbing permit is required under the provincial safety codes act when installing or altering plumbing equipment. To obtain a plumbing permit, the contractor must be licensed with the city. Edmonton Plumbing Permit.
From www.scribd.com
7 PLUMBING PERMIT Final PDF Plumbing Hydraulic Engineering Edmonton Plumbing Permit Plumbing and gas permit application for contractor. 3rd floor, edmonton tower 10111 104 avenue nw edmonton ab t5j 0j4 city of edmonton. To obtain a plumbing permit, the contractor must be licensed with the city of edmonton. Fill in the contractor’s plumbing and gas application to request a permit. Safety codes, permits and inspections edmonton.ca or. A plumbing permit is. Edmonton Plumbing Permit.
From www.scribd.com
Plumbing Permit PDF Plumbing Water Edmonton Plumbing Permit Find the information you need to apply for permits, schedule an inspection or understand the bylaw as related to your. Fill in the contractor’s plumbing and gas application to request a permit. To obtain a plumbing permit, the contractor must be licensed with the city of edmonton. Safety codes, permits and inspections edmonton.ca or. The regulations require you to. 3rd. Edmonton Plumbing Permit.
From docslib.org
PLUMBING PERMIT APPLICATION Residential Commercial New Alteration DocsLib Edmonton Plumbing Permit 3rd floor, edmonton tower 10111 104 avenue nw edmonton ab t5j 0j4 city of edmonton. The regulations require you to. Every compulsory trade contractor must be registered with safety codes permits. Safety codes, permits and inspections edmonton.ca or. A plumbing or gas permit is required when installing or altering plumbing, drainage or gas equipment or infrastructure. Plumbing and gas permit. Edmonton Plumbing Permit.
From cavite.gov.ph
Sanitary/ Plumbing Permit Edmonton Plumbing Permit The regulations require you to. Safety codes, permits and inspections edmonton.ca or. Every compulsory trade contractor must be registered with safety codes permits. Plumbing and gas permit application for contractor. A plumbing permit is required under the provincial safety codes act when installing or altering plumbing equipment. A plumbing or gas permit is required when installing or altering plumbing, drainage. Edmonton Plumbing Permit.
From formspal.com
Mi Plumbing Permit Form ≡ Fill Out Printable PDF Forms Online Edmonton Plumbing Permit Every compulsory trade contractor must be registered with safety codes permits. The regulations require you to. To obtain a plumbing permit, the contractor must be licensed with the city of edmonton. 3rd floor, edmonton tower 10111 104 avenue nw edmonton ab t5j 0j4 city of edmonton. A plumbing or gas permit is required when installing or altering plumbing, drainage or. Edmonton Plumbing Permit.
From www.pdffiller.com
Fillable Online Plumbing Permit Fax Email Edmonton Plumbing Permit To obtain a plumbing permit, the contractor must be licensed with the city of edmonton. Fill in the contractor’s plumbing and gas application to request a permit. Find the information you need to apply for permits, schedule an inspection or understand the bylaw as related to your. Every compulsory trade contractor must be registered with safety codes permits. The regulations. Edmonton Plumbing Permit.
From www.slideserve.com
PPT Building Permit in Edmonton Edmonton Permit PowerPoint Edmonton Plumbing Permit A plumbing permit is required under the provincial safety codes act when installing or altering plumbing equipment. Safety codes, permits and inspections edmonton.ca or. 3rd floor, edmonton tower 10111 104 avenue nw edmonton ab t5j 0j4 city of edmonton. A plumbing or gas permit is required when installing or altering plumbing, drainage or gas equipment or infrastructure. The regulations require. Edmonton Plumbing Permit.
From www.dochub.com
City of edmonton permit search Fill out & sign online DocHub Edmonton Plumbing Permit 3rd floor, edmonton tower 10111 104 avenue nw edmonton ab t5j 0j4 city of edmonton. The regulations require you to. Every compulsory trade contractor must be registered with safety codes permits. A plumbing or gas permit is required when installing or altering plumbing, drainage or gas equipment or infrastructure. To obtain a plumbing permit, the contractor must be licensed with. Edmonton Plumbing Permit.
From www.scribd.com
Sanitary Plumbing Permit PDF Plumbing Water And The Environment Edmonton Plumbing Permit Every compulsory trade contractor must be registered with safety codes permits. To obtain a plumbing permit, the contractor must be licensed with the city of edmonton. Plumbing and gas permit application for contractor. Fill in the contractor’s plumbing and gas application to request a permit. A plumbing or gas permit is required when installing or altering plumbing, drainage or gas. Edmonton Plumbing Permit.
From www.scribd.com
Plumbing Permit PDF Edmonton Plumbing Permit To obtain a plumbing permit, the contractor must be licensed with the city of edmonton. Every compulsory trade contractor must be registered with safety codes permits. The regulations require you to. Fill in the contractor’s plumbing and gas application to request a permit. Safety codes, permits and inspections edmonton.ca or. Find the information you need to apply for permits, schedule. Edmonton Plumbing Permit.
From www.scribd.com
SanitaryPlumbing Permit Form1 A PDF Plumbing Sanitation Edmonton Plumbing Permit Find the information you need to apply for permits, schedule an inspection or understand the bylaw as related to your. A plumbing or gas permit is required when installing or altering plumbing, drainage or gas equipment or infrastructure. Every compulsory trade contractor must be registered with safety codes permits. A plumbing permit is required under the provincial safety codes act. Edmonton Plumbing Permit.
From ezeearticle.com
Top 5 Ways To Select The Best Edmonton Plumbing Company Ezeearticle Edmonton Plumbing Permit Every compulsory trade contractor must be registered with safety codes permits. Fill in the contractor’s plumbing and gas application to request a permit. A plumbing or gas permit is required when installing or altering plumbing, drainage or gas equipment or infrastructure. The regulations require you to. A plumbing permit is required under the provincial safety codes act when installing or. Edmonton Plumbing Permit.
From www.template.net
Plumbing Permit Application Template in Word, Google Docs Download Edmonton Plumbing Permit Safety codes, permits and inspections edmonton.ca or. Every compulsory trade contractor must be registered with safety codes permits. Fill in the contractor’s plumbing and gas application to request a permit. A plumbing permit is required under the provincial safety codes act when installing or altering plumbing equipment. Find the information you need to apply for permits, schedule an inspection or. Edmonton Plumbing Permit.
From www.pdffiller.com
Fillable Online Application for Plumbing Permit (12/2022) Inspection Edmonton Plumbing Permit Find the information you need to apply for permits, schedule an inspection or understand the bylaw as related to your. Fill in the contractor’s plumbing and gas application to request a permit. Plumbing and gas permit application for contractor. Every compulsory trade contractor must be registered with safety codes permits. To obtain a plumbing permit, the contractor must be licensed. Edmonton Plumbing Permit.
From www.dochub.com
Sanitary plumbing permit form Fill out & sign online DocHub Edmonton Plumbing Permit Every compulsory trade contractor must be registered with safety codes permits. Plumbing and gas permit application for contractor. To obtain a plumbing permit, the contractor must be licensed with the city of edmonton. 3rd floor, edmonton tower 10111 104 avenue nw edmonton ab t5j 0j4 city of edmonton. Fill in the contractor’s plumbing and gas application to request a permit.. Edmonton Plumbing Permit.
From ab.locanto.ca
Plumbers in Edmonton AB Pipes Plumbing LTD, Edmonton, Alberta Edmonton Plumbing Permit A plumbing or gas permit is required when installing or altering plumbing, drainage or gas equipment or infrastructure. Safety codes, permits and inspections edmonton.ca or. To obtain a plumbing permit, the contractor must be licensed with the city of edmonton. The regulations require you to. Every compulsory trade contractor must be registered with safety codes permits. Find the information you. Edmonton Plumbing Permit.
From www.template.net
Plumbing Permit Application Template in Word, Google Docs Download Edmonton Plumbing Permit Fill in the contractor’s plumbing and gas application to request a permit. 3rd floor, edmonton tower 10111 104 avenue nw edmonton ab t5j 0j4 city of edmonton. Find the information you need to apply for permits, schedule an inspection or understand the bylaw as related to your. A plumbing or gas permit is required when installing or altering plumbing, drainage. Edmonton Plumbing Permit.
From formspal.com
Plumbing Permit Application ≡ Fill Out Printable PDF Forms Online Edmonton Plumbing Permit Plumbing and gas permit application for contractor. Safety codes, permits and inspections edmonton.ca or. Find the information you need to apply for permits, schedule an inspection or understand the bylaw as related to your. Fill in the contractor’s plumbing and gas application to request a permit. 3rd floor, edmonton tower 10111 104 avenue nw edmonton ab t5j 0j4 city of. Edmonton Plumbing Permit.
From www.formsbank.com
Fillable Plumbing Permit Application printable pdf download Edmonton Plumbing Permit Plumbing and gas permit application for contractor. The regulations require you to. A plumbing or gas permit is required when installing or altering plumbing, drainage or gas equipment or infrastructure. Every compulsory trade contractor must be registered with safety codes permits. 3rd floor, edmonton tower 10111 104 avenue nw edmonton ab t5j 0j4 city of edmonton. To obtain a plumbing. Edmonton Plumbing Permit.
From www.dochub.com
Commercial piping ohio Fill out & sign online DocHub Edmonton Plumbing Permit To obtain a plumbing permit, the contractor must be licensed with the city of edmonton. A plumbing or gas permit is required when installing or altering plumbing, drainage or gas equipment or infrastructure. Safety codes, permits and inspections edmonton.ca or. Find the information you need to apply for permits, schedule an inspection or understand the bylaw as related to your.. Edmonton Plumbing Permit.
From www.pdffiller.com
Fillable Online APPLICATION FOR PLUMBING PERMIT DEMANDE DE PERMIS DE Edmonton Plumbing Permit The regulations require you to. To obtain a plumbing permit, the contractor must be licensed with the city of edmonton. A plumbing or gas permit is required when installing or altering plumbing, drainage or gas equipment or infrastructure. Fill in the contractor’s plumbing and gas application to request a permit. 3rd floor, edmonton tower 10111 104 avenue nw edmonton ab. Edmonton Plumbing Permit.
From www.uslegalforms.com
MD OF BBONNYVILLEb NO 87 PLUMBING Plumbing Permit LABEL Fill and Sign Edmonton Plumbing Permit To obtain a plumbing permit, the contractor must be licensed with the city of edmonton. Every compulsory trade contractor must be registered with safety codes permits. 3rd floor, edmonton tower 10111 104 avenue nw edmonton ab t5j 0j4 city of edmonton. Plumbing and gas permit application for contractor. The regulations require you to. A plumbing permit is required under the. Edmonton Plumbing Permit.
From pipesplumbingltd.medium.com
Residential Plumbing Edmonton Pipes Plumbing Services Ltd Medium Edmonton Plumbing Permit A plumbing or gas permit is required when installing or altering plumbing, drainage or gas equipment or infrastructure. Find the information you need to apply for permits, schedule an inspection or understand the bylaw as related to your. Safety codes, permits and inspections edmonton.ca or. Fill in the contractor’s plumbing and gas application to request a permit. Every compulsory trade. Edmonton Plumbing Permit.
From www.facebook.com
Greater Edmonton Plumbing Edmonton Plumbing Permit Find the information you need to apply for permits, schedule an inspection or understand the bylaw as related to your. A plumbing permit is required under the provincial safety codes act when installing or altering plumbing equipment. 3rd floor, edmonton tower 10111 104 avenue nw edmonton ab t5j 0j4 city of edmonton. A plumbing or gas permit is required when. Edmonton Plumbing Permit.
From vipdrainservices.com
When is a plumbing permit required? VIP Sewer & Drain Services Edmonton Plumbing Permit Fill in the contractor’s plumbing and gas application to request a permit. Find the information you need to apply for permits, schedule an inspection or understand the bylaw as related to your. To obtain a plumbing permit, the contractor must be licensed with the city of edmonton. A plumbing permit is required under the provincial safety codes act when installing. Edmonton Plumbing Permit.
From www.template.net
Plumbing Permit Application Template in Word, Google Docs Download Edmonton Plumbing Permit To obtain a plumbing permit, the contractor must be licensed with the city of edmonton. Plumbing and gas permit application for contractor. A plumbing or gas permit is required when installing or altering plumbing, drainage or gas equipment or infrastructure. Find the information you need to apply for permits, schedule an inspection or understand the bylaw as related to your.. Edmonton Plumbing Permit.
From www.scribd.com
Plumbing Permit Drawings PDF PDF Pipe (Fluid Conveyance) Plumbing Edmonton Plumbing Permit Plumbing and gas permit application for contractor. Every compulsory trade contractor must be registered with safety codes permits. A plumbing permit is required under the provincial safety codes act when installing or altering plumbing equipment. Fill in the contractor’s plumbing and gas application to request a permit. Find the information you need to apply for permits, schedule an inspection or. Edmonton Plumbing Permit.