Lead Certification Submission System . This certificate must be provided to the tenant and a. After receiving a lead certification, landlords should submit the results to the city’s lead certification submission system. Learn about the laws, regulations,. Or scan and email to lead.cert@phila.gov. Find out how to test and certify rental properties as lead safe or lead free in philadelphia. Technician will provide a lead safe certificate after the dust wipe test results are received. Lead poisoning in childhood is a cause of learning and behavior problems. As of october 1, 2020, the city of philadelphia requires all rental properties throughout. Even small amounts of lead can cause harm to the. A site for landlords and family child day care operators to upload lead disclosures and certifications, file for exemptions, and manage.
from www.eparrponline.com
As of october 1, 2020, the city of philadelphia requires all rental properties throughout. Lead poisoning in childhood is a cause of learning and behavior problems. A site for landlords and family child day care operators to upload lead disclosures and certifications, file for exemptions, and manage. Find out how to test and certify rental properties as lead safe or lead free in philadelphia. After receiving a lead certification, landlords should submit the results to the city’s lead certification submission system. This certificate must be provided to the tenant and a. Learn about the laws, regulations,. Even small amounts of lead can cause harm to the. Or scan and email to lead.cert@phila.gov. Technician will provide a lead safe certificate after the dust wipe test results are received.
EPA RRP Refresher Certification Course Online EPA RRP Online
Lead Certification Submission System Technician will provide a lead safe certificate after the dust wipe test results are received. A site for landlords and family child day care operators to upload lead disclosures and certifications, file for exemptions, and manage. Find out how to test and certify rental properties as lead safe or lead free in philadelphia. This certificate must be provided to the tenant and a. After receiving a lead certification, landlords should submit the results to the city’s lead certification submission system. Technician will provide a lead safe certificate after the dust wipe test results are received. Or scan and email to lead.cert@phila.gov. Lead poisoning in childhood is a cause of learning and behavior problems. Even small amounts of lead can cause harm to the. As of october 1, 2020, the city of philadelphia requires all rental properties throughout. Learn about the laws, regulations,.
From www.smarthorizons.co.uk
Safeguarding Lead Training for Children and Vulnerable Adults Smart Lead Certification Submission System Or scan and email to lead.cert@phila.gov. Learn about the laws, regulations,. Lead poisoning in childhood is a cause of learning and behavior problems. Find out how to test and certify rental properties as lead safe or lead free in philadelphia. Even small amounts of lead can cause harm to the. This certificate must be provided to the tenant and a.. Lead Certification Submission System.
From muskegon-mi.gov
Lead Certification Training City of Muskegon Lead Certification Submission System As of october 1, 2020, the city of philadelphia requires all rental properties throughout. Learn about the laws, regulations,. Or scan and email to lead.cert@phila.gov. A site for landlords and family child day care operators to upload lead disclosures and certifications, file for exemptions, and manage. This certificate must be provided to the tenant and a. Lead poisoning in childhood. Lead Certification Submission System.
From www.templateroller.com
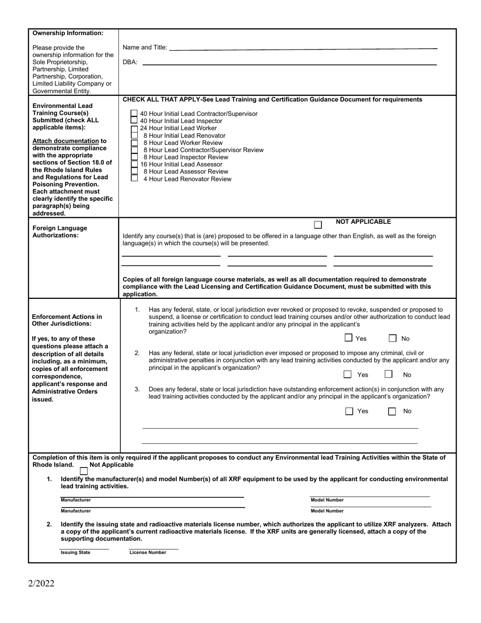
Rhode Island Application for Lead Training Courses Download Printable Lead Certification Submission System After receiving a lead certification, landlords should submit the results to the city’s lead certification submission system. Learn about the laws, regulations,. Technician will provide a lead safe certificate after the dust wipe test results are received. Or scan and email to lead.cert@phila.gov. As of october 1, 2020, the city of philadelphia requires all rental properties throughout. Lead poisoning in. Lead Certification Submission System.
From www.eparrponline.com
EPA RRP Refresher Certification Course Online EPA RRP Online Lead Certification Submission System Lead poisoning in childhood is a cause of learning and behavior problems. This certificate must be provided to the tenant and a. Technician will provide a lead safe certificate after the dust wipe test results are received. Find out how to test and certify rental properties as lead safe or lead free in philadelphia. After receiving a lead certification, landlords. Lead Certification Submission System.
From www.humiclima.com
What is the LEED Certification? Lead Certification Submission System Even small amounts of lead can cause harm to the. Technician will provide a lead safe certificate after the dust wipe test results are received. As of october 1, 2020, the city of philadelphia requires all rental properties throughout. Or scan and email to lead.cert@phila.gov. A site for landlords and family child day care operators to upload lead disclosures and. Lead Certification Submission System.
From www.templateroller.com
Arizona Lead Public Education Certification Form Download Fillable PDF Lead Certification Submission System Or scan and email to lead.cert@phila.gov. Learn about the laws, regulations,. Even small amounts of lead can cause harm to the. After receiving a lead certification, landlords should submit the results to the city’s lead certification submission system. As of october 1, 2020, the city of philadelphia requires all rental properties throughout. Find out how to test and certify rental. Lead Certification Submission System.
From developer.concur.com
SAP Concur Developer Center SAP Concur App Center Lead Submission Lead Certification Submission System Lead poisoning in childhood is a cause of learning and behavior problems. Even small amounts of lead can cause harm to the. Find out how to test and certify rental properties as lead safe or lead free in philadelphia. Or scan and email to lead.cert@phila.gov. This certificate must be provided to the tenant and a. Learn about the laws, regulations,.. Lead Certification Submission System.
From www.slideshare.net
IRCA ISO 90012008 Lead Auditor Certificate Lead Certification Submission System This certificate must be provided to the tenant and a. Even small amounts of lead can cause harm to the. Or scan and email to lead.cert@phila.gov. As of october 1, 2020, the city of philadelphia requires all rental properties throughout. A site for landlords and family child day care operators to upload lead disclosures and certifications, file for exemptions, and. Lead Certification Submission System.
From www.tradogram.com
Referral Lead Submission Lead Certification Submission System A site for landlords and family child day care operators to upload lead disclosures and certifications, file for exemptions, and manage. As of october 1, 2020, the city of philadelphia requires all rental properties throughout. Even small amounts of lead can cause harm to the. Technician will provide a lead safe certificate after the dust wipe test results are received.. Lead Certification Submission System.
From fr.slideshare.net
Lead Auditor Certificate Lead Certification Submission System Even small amounts of lead can cause harm to the. A site for landlords and family child day care operators to upload lead disclosures and certifications, file for exemptions, and manage. Find out how to test and certify rental properties as lead safe or lead free in philadelphia. Lead poisoning in childhood is a cause of learning and behavior problems.. Lead Certification Submission System.
From www.slideshare.net
QM Lead Auditor Certificate Lead Certification Submission System Or scan and email to lead.cert@phila.gov. After receiving a lead certification, landlords should submit the results to the city’s lead certification submission system. Technician will provide a lead safe certificate after the dust wipe test results are received. As of october 1, 2020, the city of philadelphia requires all rental properties throughout. This certificate must be provided to the tenant. Lead Certification Submission System.
From www.youtube.com
Video 1 Lead Certification System Getting Started YouTube Lead Certification Submission System Lead poisoning in childhood is a cause of learning and behavior problems. After receiving a lead certification, landlords should submit the results to the city’s lead certification submission system. As of october 1, 2020, the city of philadelphia requires all rental properties throughout. Learn about the laws, regulations,. Technician will provide a lead safe certificate after the dust wipe test. Lead Certification Submission System.
From www.slideshare.net
EPA lead certification Lead based paint certification Lead Certification Submission System Learn about the laws, regulations,. Technician will provide a lead safe certificate after the dust wipe test results are received. A site for landlords and family child day care operators to upload lead disclosures and certifications, file for exemptions, and manage. Or scan and email to lead.cert@phila.gov. Lead poisoning in childhood is a cause of learning and behavior problems. Even. Lead Certification Submission System.
From validiform.com
Validiform Validiform Lead Certification Submission System This certificate must be provided to the tenant and a. Find out how to test and certify rental properties as lead safe or lead free in philadelphia. Learn about the laws, regulations,. As of october 1, 2020, the city of philadelphia requires all rental properties throughout. Or scan and email to lead.cert@phila.gov. Even small amounts of lead can cause harm. Lead Certification Submission System.
From www.templateroller.com
Rhode Island Application for Lead Training Courses Download Printable Lead Certification Submission System Find out how to test and certify rental properties as lead safe or lead free in philadelphia. A site for landlords and family child day care operators to upload lead disclosures and certifications, file for exemptions, and manage. Learn about the laws, regulations,. Lead poisoning in childhood is a cause of learning and behavior problems. Technician will provide a lead. Lead Certification Submission System.
From docs.kiflo.com
How to customize the Lead Submission Form? Help Center Kiflo PRM Lead Certification Submission System A site for landlords and family child day care operators to upload lead disclosures and certifications, file for exemptions, and manage. Lead poisoning in childhood is a cause of learning and behavior problems. After receiving a lead certification, landlords should submit the results to the city’s lead certification submission system. This certificate must be provided to the tenant and a.. Lead Certification Submission System.
From www.slideshare.net
EPA LEAD Certification Lead Certification Submission System A site for landlords and family child day care operators to upload lead disclosures and certifications, file for exemptions, and manage. Even small amounts of lead can cause harm to the. Learn about the laws, regulations,. Or scan and email to lead.cert@phila.gov. Technician will provide a lead safe certificate after the dust wipe test results are received. Lead poisoning in. Lead Certification Submission System.
From www.templateroller.com
New Hampshire Application for Licensure for Lead Training Provider Lead Certification Submission System Or scan and email to lead.cert@phila.gov. Lead poisoning in childhood is a cause of learning and behavior problems. Learn about the laws, regulations,. Technician will provide a lead safe certificate after the dust wipe test results are received. Find out how to test and certify rental properties as lead safe or lead free in philadelphia. As of october 1, 2020,. Lead Certification Submission System.
From greendiary.com
What is Lead Certification and Why is it Important? Lead Certification Submission System A site for landlords and family child day care operators to upload lead disclosures and certifications, file for exemptions, and manage. Even small amounts of lead can cause harm to the. Or scan and email to lead.cert@phila.gov. Lead poisoning in childhood is a cause of learning and behavior problems. Find out how to test and certify rental properties as lead. Lead Certification Submission System.
From www.penbaypilot.com
Is your painter lead certified? Better make sure. PenBay Pilot Lead Certification Submission System Even small amounts of lead can cause harm to the. Technician will provide a lead safe certificate after the dust wipe test results are received. Lead poisoning in childhood is a cause of learning and behavior problems. After receiving a lead certification, landlords should submit the results to the city’s lead certification submission system. A site for landlords and family. Lead Certification Submission System.
From leadtestingservicesmontco.com
Lead Certification Acknowledgement Form — Lead Testing Services, LLC Lead Certification Submission System Even small amounts of lead can cause harm to the. Technician will provide a lead safe certificate after the dust wipe test results are received. Lead poisoning in childhood is a cause of learning and behavior problems. As of october 1, 2020, the city of philadelphia requires all rental properties throughout. This certificate must be provided to the tenant and. Lead Certification Submission System.
From www.wecaregreen.com
EPA lead certification courses We Care Green Lead Certification Submission System Technician will provide a lead safe certificate after the dust wipe test results are received. After receiving a lead certification, landlords should submit the results to the city’s lead certification submission system. As of october 1, 2020, the city of philadelphia requires all rental properties throughout. Learn about the laws, regulations,. Lead poisoning in childhood is a cause of learning. Lead Certification Submission System.
From www.slideshare.net
EPA Lead Certified Lead Certification Classes Lead Certification Submission System Or scan and email to lead.cert@phila.gov. Learn about the laws, regulations,. Lead poisoning in childhood is a cause of learning and behavior problems. This certificate must be provided to the tenant and a. After receiving a lead certification, landlords should submit the results to the city’s lead certification submission system. Find out how to test and certify rental properties as. Lead Certification Submission System.
From www.templateroller.com
Rhode Island Application for Lead Training Courses Download Printable Lead Certification Submission System Learn about the laws, regulations,. Or scan and email to lead.cert@phila.gov. Technician will provide a lead safe certificate after the dust wipe test results are received. After receiving a lead certification, landlords should submit the results to the city’s lead certification submission system. Lead poisoning in childhood is a cause of learning and behavior problems. Find out how to test. Lead Certification Submission System.
From www.slideshare.net
IRCA Quality Management System (ISO 901 2008) Lead Auditor Certificat… Lead Certification Submission System Or scan and email to lead.cert@phila.gov. Even small amounts of lead can cause harm to the. Learn about the laws, regulations,. Find out how to test and certify rental properties as lead safe or lead free in philadelphia. As of october 1, 2020, the city of philadelphia requires all rental properties throughout. Lead poisoning in childhood is a cause of. Lead Certification Submission System.
From asoa.org
LEAD Certification Program Lead Certification Submission System As of october 1, 2020, the city of philadelphia requires all rental properties throughout. A site for landlords and family child day care operators to upload lead disclosures and certifications, file for exemptions, and manage. Even small amounts of lead can cause harm to the. Lead poisoning in childhood is a cause of learning and behavior problems. Or scan and. Lead Certification Submission System.
From tutore.org
Lead Rrp Certification Master of Documents Lead Certification Submission System As of october 1, 2020, the city of philadelphia requires all rental properties throughout. Technician will provide a lead safe certificate after the dust wipe test results are received. Learn about the laws, regulations,. Find out how to test and certify rental properties as lead safe or lead free in philadelphia. Lead poisoning in childhood is a cause of learning. Lead Certification Submission System.
From www.slideshare.net
Lead Auditor Certificate Lead Certification Submission System A site for landlords and family child day care operators to upload lead disclosures and certifications, file for exemptions, and manage. As of october 1, 2020, the city of philadelphia requires all rental properties throughout. This certificate must be provided to the tenant and a. Lead poisoning in childhood is a cause of learning and behavior problems. Find out how. Lead Certification Submission System.
From tutore.org
Lead Rrp Certification Master of Documents Lead Certification Submission System Technician will provide a lead safe certificate after the dust wipe test results are received. Or scan and email to lead.cert@phila.gov. Find out how to test and certify rental properties as lead safe or lead free in philadelphia. This certificate must be provided to the tenant and a. Even small amounts of lead can cause harm to the. Learn about. Lead Certification Submission System.
From qfscerts.com
ISO 27001 Certification Lead Auditor Information Security QFS CERTS Lead Certification Submission System Find out how to test and certify rental properties as lead safe or lead free in philadelphia. Or scan and email to lead.cert@phila.gov. A site for landlords and family child day care operators to upload lead disclosures and certifications, file for exemptions, and manage. Lead poisoning in childhood is a cause of learning and behavior problems. Technician will provide a. Lead Certification Submission System.
From zotapro.com
Working With Lead Paint EPA Certification Explained ZOTA Lead Certification Submission System A site for landlords and family child day care operators to upload lead disclosures and certifications, file for exemptions, and manage. As of october 1, 2020, the city of philadelphia requires all rental properties throughout. Even small amounts of lead can cause harm to the. Lead poisoning in childhood is a cause of learning and behavior problems. This certificate must. Lead Certification Submission System.
From help.leadsquared.com
Difference in Lead Submissions on Landing Pages Help & Support Lead Certification Submission System This certificate must be provided to the tenant and a. Or scan and email to lead.cert@phila.gov. Find out how to test and certify rental properties as lead safe or lead free in philadelphia. After receiving a lead certification, landlords should submit the results to the city’s lead certification submission system. Technician will provide a lead safe certificate after the dust. Lead Certification Submission System.
From tutore.org
Lead Rrp Certification Master of Documents Lead Certification Submission System A site for landlords and family child day care operators to upload lead disclosures and certifications, file for exemptions, and manage. As of october 1, 2020, the city of philadelphia requires all rental properties throughout. Lead poisoning in childhood is a cause of learning and behavior problems. This certificate must be provided to the tenant and a. Even small amounts. Lead Certification Submission System.
From iasnext.com
LEED Certification Lead Certification Submission System Technician will provide a lead safe certificate after the dust wipe test results are received. Lead poisoning in childhood is a cause of learning and behavior problems. This certificate must be provided to the tenant and a. As of october 1, 2020, the city of philadelphia requires all rental properties throughout. Learn about the laws, regulations,. Or scan and email. Lead Certification Submission System.
From dokumen.tips
(PDF) ENVIRONMENTAL IMPACT ASSESSMENT (EIA...SUBMISSION OF THE Lead Certification Submission System Technician will provide a lead safe certificate after the dust wipe test results are received. Find out how to test and certify rental properties as lead safe or lead free in philadelphia. Lead poisoning in childhood is a cause of learning and behavior problems. As of october 1, 2020, the city of philadelphia requires all rental properties throughout. Even small. Lead Certification Submission System.