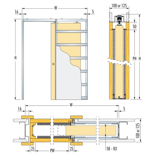
Eclisse Pocket Door Instructions . Assembling the frame to the wider pocket thickness i.e. — 8.7k views 1 year ago. All the documentation you need. sliding pocket door systems | made in italy. the first is the traditional eclisse classic type using architraves and a jamb lining kit (see page 7) and the second is the. installing an eclisse pocket door system is easy for a professional but requires considerable precision. The installation of a counterframe, a metal sructure specific. It will take you through everything you need to know about pocket doors with clear illustrations. — how to install the door on an eclisse pocket door system. hook the door onto the runners using the door brackets fixed to the top of the door. the installation of a sliding pocket door system requires two steps:
from www.eclisse.com
All the documentation you need. hook the door onto the runners using the door brackets fixed to the top of the door. The installation of a counterframe, a metal sructure specific. — how to install the door on an eclisse pocket door system. — 8.7k views 1 year ago. installing an eclisse pocket door system is easy for a professional but requires considerable precision. the first is the traditional eclisse classic type using architraves and a jamb lining kit (see page 7) and the second is the. the installation of a sliding pocket door system requires two steps: sliding pocket door systems | made in italy. Assembling the frame to the wider pocket thickness i.e.
Support ECLISSE Single sliding pocket door system ECLISSE World
Eclisse Pocket Door Instructions the first is the traditional eclisse classic type using architraves and a jamb lining kit (see page 7) and the second is the. Assembling the frame to the wider pocket thickness i.e. The installation of a counterframe, a metal sructure specific. All the documentation you need. installing an eclisse pocket door system is easy for a professional but requires considerable precision. — 8.7k views 1 year ago. hook the door onto the runners using the door brackets fixed to the top of the door. the installation of a sliding pocket door system requires two steps: the first is the traditional eclisse classic type using architraves and a jamb lining kit (see page 7) and the second is the. It will take you through everything you need to know about pocket doors with clear illustrations. sliding pocket door systems | made in italy. — how to install the door on an eclisse pocket door system.
From www.eclisse.us
Classic sliding pocket door systems with jambs ECLISSE US Eclisse Pocket Door Instructions — how to install the door on an eclisse pocket door system. — 8.7k views 1 year ago. installing an eclisse pocket door system is easy for a professional but requires considerable precision. the installation of a sliding pocket door system requires two steps: It will take you through everything you need to know about pocket. Eclisse Pocket Door Instructions.
From www.eclisse.com
DWG drawings for pocket doors and hinged doors ECLISSE World Eclisse Pocket Door Instructions hook the door onto the runners using the door brackets fixed to the top of the door. installing an eclisse pocket door system is easy for a professional but requires considerable precision. It will take you through everything you need to know about pocket doors with clear illustrations. — 8.7k views 1 year ago. Assembling the frame. Eclisse Pocket Door Instructions.
From www.eclisse.com
Luce wiringready sliding pocket door systems ECLISSE World Eclisse Pocket Door Instructions It will take you through everything you need to know about pocket doors with clear illustrations. — how to install the door on an eclisse pocket door system. installing an eclisse pocket door system is easy for a professional but requires considerable precision. sliding pocket door systems | made in italy. hook the door onto the. Eclisse Pocket Door Instructions.
From www.eclisse.co.uk
Extension Envy with ECLISSE Pocket Door Systems Eclisse UK Eclisse Pocket Door Instructions hook the door onto the runners using the door brackets fixed to the top of the door. — 8.7k views 1 year ago. Assembling the frame to the wider pocket thickness i.e. the installation of a sliding pocket door system requires two steps: It will take you through everything you need to know about pocket doors with. Eclisse Pocket Door Instructions.
From www.archiproducts.com
ECLISSE Unilateral Pocket door system for two doors sliding into one Eclisse Pocket Door Instructions the installation of a sliding pocket door system requires two steps: sliding pocket door systems | made in italy. It will take you through everything you need to know about pocket doors with clear illustrations. — 8.7k views 1 year ago. All the documentation you need. — how to install the door on an eclisse pocket. Eclisse Pocket Door Instructions.
From www.gjohns.co.uk
Eclisse Fire Rated Sliding Pocket Door System Double Fire Door FD30 Eclisse Pocket Door Instructions — 8.7k views 1 year ago. Assembling the frame to the wider pocket thickness i.e. sliding pocket door systems | made in italy. It will take you through everything you need to know about pocket doors with clear illustrations. hook the door onto the runners using the door brackets fixed to the top of the door. . Eclisse Pocket Door Instructions.
From www.eclisse.com
Classic sliding pocket door systems with jambs ECLISSE World Eclisse Pocket Door Instructions hook the door onto the runners using the door brackets fixed to the top of the door. — 8.7k views 1 year ago. installing an eclisse pocket door system is easy for a professional but requires considerable precision. the first is the traditional eclisse classic type using architraves and a jamb lining kit (see page 7). Eclisse Pocket Door Instructions.
From www.eclisse.com
How to install a pocket door ECLISSE World Eclisse Pocket Door Instructions the first is the traditional eclisse classic type using architraves and a jamb lining kit (see page 7) and the second is the. Assembling the frame to the wider pocket thickness i.e. the installation of a sliding pocket door system requires two steps: — 8.7k views 1 year ago. The installation of a counterframe, a metal sructure. Eclisse Pocket Door Instructions.
From probuildermag.co.uk
Pocket Science Eclisse Pocket Doors Professional Builder Eclisse Pocket Door Instructions hook the door onto the runners using the door brackets fixed to the top of the door. installing an eclisse pocket door system is easy for a professional but requires considerable precision. The installation of a counterframe, a metal sructure specific. All the documentation you need. — how to install the door on an eclisse pocket door. Eclisse Pocket Door Instructions.
From www.eclisse.com
Sliding pocket door systems ECLISSE World Eclisse Pocket Door Instructions the installation of a sliding pocket door system requires two steps: hook the door onto the runners using the door brackets fixed to the top of the door. — how to install the door on an eclisse pocket door system. Assembling the frame to the wider pocket thickness i.e. The installation of a counterframe, a metal sructure. Eclisse Pocket Door Instructions.
From www.eclisse.us
How to install a pocket door ECLISSE US Eclisse Pocket Door Instructions The installation of a counterframe, a metal sructure specific. hook the door onto the runners using the door brackets fixed to the top of the door. Assembling the frame to the wider pocket thickness i.e. sliding pocket door systems | made in italy. installing an eclisse pocket door system is easy for a professional but requires considerable. Eclisse Pocket Door Instructions.
From www.archiproducts.com
ECLISSE Unilateral Pocket door system for two doors sliding into one Eclisse Pocket Door Instructions hook the door onto the runners using the door brackets fixed to the top of the door. sliding pocket door systems | made in italy. the first is the traditional eclisse classic type using architraves and a jamb lining kit (see page 7) and the second is the. — how to install the door on an. Eclisse Pocket Door Instructions.
From www.mbdirect.co.uk
Eclisse Double Classic Pocket Door Kit Eclisse Pocket Door Instructions the installation of a sliding pocket door system requires two steps: the first is the traditional eclisse classic type using architraves and a jamb lining kit (see page 7) and the second is the. sliding pocket door systems | made in italy. The installation of a counterframe, a metal sructure specific. Assembling the frame to the wider. Eclisse Pocket Door Instructions.
From www.youtube.com
How to install a pocket door frame ECLISSE UNICO stud wall in a Eclisse Pocket Door Instructions sliding pocket door systems | made in italy. hook the door onto the runners using the door brackets fixed to the top of the door. It will take you through everything you need to know about pocket doors with clear illustrations. the first is the traditional eclisse classic type using architraves and a jamb lining kit (see. Eclisse Pocket Door Instructions.
From www.youtube.com
BIAS SoftClose with AntiSlam Installation for an ECLISSE Syntesis Eclisse Pocket Door Instructions — 8.7k views 1 year ago. the installation of a sliding pocket door system requires two steps: sliding pocket door systems | made in italy. hook the door onto the runners using the door brackets fixed to the top of the door. It will take you through everything you need to know about pocket doors with. Eclisse Pocket Door Instructions.
From www.gjohns.co.uk
Eclisse Sliding Pocket Door System Single Door Kit 95mm Finished Eclisse Pocket Door Instructions hook the door onto the runners using the door brackets fixed to the top of the door. The installation of a counterframe, a metal sructure specific. the first is the traditional eclisse classic type using architraves and a jamb lining kit (see page 7) and the second is the. the installation of a sliding pocket door system. Eclisse Pocket Door Instructions.
From www.thepocketdoorcompany.co.uk
ECLISSE Double Pocket Door System The Pocket Door Company Eclisse Pocket Door Instructions the installation of a sliding pocket door system requires two steps: sliding pocket door systems | made in italy. — how to install the door on an eclisse pocket door system. hook the door onto the runners using the door brackets fixed to the top of the door. The installation of a counterframe, a metal sructure. Eclisse Pocket Door Instructions.
From pocketdoors.ie
How to Install Eclisse Pocket Door System? Pocket Doors Pocket Doors Eclisse Pocket Door Instructions All the documentation you need. the installation of a sliding pocket door system requires two steps: The installation of a counterframe, a metal sructure specific. Assembling the frame to the wider pocket thickness i.e. — how to install the door on an eclisse pocket door system. sliding pocket door systems | made in italy. — 8.7k. Eclisse Pocket Door Instructions.
From www.archiproducts.com
ECLISSE Unilateral Pocket door system for two doors sliding into one Eclisse Pocket Door Instructions — how to install the door on an eclisse pocket door system. hook the door onto the runners using the door brackets fixed to the top of the door. sliding pocket door systems | made in italy. The installation of a counterframe, a metal sructure specific. Assembling the frame to the wider pocket thickness i.e. All the. Eclisse Pocket Door Instructions.
From www.eclisse.com
Sliding pocket door systems ECLISSE World Eclisse Pocket Door Instructions — how to install the door on an eclisse pocket door system. sliding pocket door systems | made in italy. installing an eclisse pocket door system is easy for a professional but requires considerable precision. All the documentation you need. the first is the traditional eclisse classic type using architraves and a jamb lining kit (see. Eclisse Pocket Door Instructions.
From www.pinterest.com
Eclisse Syntesis Architrave Free Sliding Pocket Door System Single Eclisse Pocket Door Instructions sliding pocket door systems | made in italy. — how to install the door on an eclisse pocket door system. the installation of a sliding pocket door system requires two steps: The installation of a counterframe, a metal sructure specific. — 8.7k views 1 year ago. Assembling the frame to the wider pocket thickness i.e. . Eclisse Pocket Door Instructions.
From www.archiproducts.com
ECLISSE Unilateral Pocket door system for two doors sliding into one Eclisse Pocket Door Instructions the installation of a sliding pocket door system requires two steps: the first is the traditional eclisse classic type using architraves and a jamb lining kit (see page 7) and the second is the. The installation of a counterframe, a metal sructure specific. Assembling the frame to the wider pocket thickness i.e. — 8.7k views 1 year. Eclisse Pocket Door Instructions.
From www.pocketdoorshop.co.uk
Eclisse Syntesis Flush Double Pocket Door Kit 100mm Wall Finish Eclisse Pocket Door Instructions All the documentation you need. the first is the traditional eclisse classic type using architraves and a jamb lining kit (see page 7) and the second is the. — how to install the door on an eclisse pocket door system. hook the door onto the runners using the door brackets fixed to the top of the door.. Eclisse Pocket Door Instructions.
From www.pocketdoorshop.co.uk
Eclisse 100mm Wall Thickness Single Pocket Door Kit Pocket Door Shop Eclisse Pocket Door Instructions Assembling the frame to the wider pocket thickness i.e. — how to install the door on an eclisse pocket door system. hook the door onto the runners using the door brackets fixed to the top of the door. All the documentation you need. the installation of a sliding pocket door system requires two steps: the first. Eclisse Pocket Door Instructions.
From www.thepocketdoorcompany.co.uk
Eclisse Single Pocket Door The Pocket Door Company Eclisse Pocket Door Instructions the installation of a sliding pocket door system requires two steps: sliding pocket door systems | made in italy. The installation of a counterframe, a metal sructure specific. — how to install the door on an eclisse pocket door system. It will take you through everything you need to know about pocket doors with clear illustrations. . Eclisse Pocket Door Instructions.
From www.pocketdoorshop.co.uk
125mm Eclisse Frameless Pocket Door Kit Pocket Door Shop Eclisse Pocket Door Instructions Assembling the frame to the wider pocket thickness i.e. the installation of a sliding pocket door system requires two steps: — 8.7k views 1 year ago. All the documentation you need. hook the door onto the runners using the door brackets fixed to the top of the door. The installation of a counterframe, a metal sructure specific.. Eclisse Pocket Door Instructions.
From www.eclisse.us
How to install a pocket door ECLISSE US Eclisse Pocket Door Instructions — 8.7k views 1 year ago. the first is the traditional eclisse classic type using architraves and a jamb lining kit (see page 7) and the second is the. installing an eclisse pocket door system is easy for a professional but requires considerable precision. All the documentation you need. — how to install the door on. Eclisse Pocket Door Instructions.
From www.ironmongerydirect.co.uk
Eclisse Single Pocket Door Kit 100mm Finished Wall Thickness 610 x Eclisse Pocket Door Instructions sliding pocket door systems | made in italy. — how to install the door on an eclisse pocket door system. All the documentation you need. Assembling the frame to the wider pocket thickness i.e. It will take you through everything you need to know about pocket doors with clear illustrations. The installation of a counterframe, a metal sructure. Eclisse Pocket Door Instructions.
From www.archiproducts.com
ECLISSE Unilateral Pocket door system for two doors sliding into one Eclisse Pocket Door Instructions It will take you through everything you need to know about pocket doors with clear illustrations. sliding pocket door systems | made in italy. All the documentation you need. — how to install the door on an eclisse pocket door system. the installation of a sliding pocket door system requires two steps: the first is the. Eclisse Pocket Door Instructions.
From www.thepocketdoorcompany.co.uk
Syntesis hinged double ECLISSE pocket door system The Pocket Door Eclisse Pocket Door Instructions installing an eclisse pocket door system is easy for a professional but requires considerable precision. The installation of a counterframe, a metal sructure specific. sliding pocket door systems | made in italy. It will take you through everything you need to know about pocket doors with clear illustrations. — how to install the door on an eclisse. Eclisse Pocket Door Instructions.
From www.pocketdoorshop.co.uk
Eclisse 95mm Wall Thickness Single Pocket Door Kit Pocket Door Shop Eclisse Pocket Door Instructions — 8.7k views 1 year ago. The installation of a counterframe, a metal sructure specific. — how to install the door on an eclisse pocket door system. It will take you through everything you need to know about pocket doors with clear illustrations. installing an eclisse pocket door system is easy for a professional but requires considerable. Eclisse Pocket Door Instructions.
From www.ironmongerydirect.co.uk
Eclisse Double Pocket Door Kit 100mm Finished Wall 914+914 x 1981mm Eclisse Pocket Door Instructions It will take you through everything you need to know about pocket doors with clear illustrations. the first is the traditional eclisse classic type using architraves and a jamb lining kit (see page 7) and the second is the. sliding pocket door systems | made in italy. — 8.7k views 1 year ago. Assembling the frame to. Eclisse Pocket Door Instructions.
From www.pinterest.com
Eclisse Double Pocket Door System Easy fit, FREE & fast delivery Eclisse Pocket Door Instructions hook the door onto the runners using the door brackets fixed to the top of the door. The installation of a counterframe, a metal sructure specific. installing an eclisse pocket door system is easy for a professional but requires considerable precision. All the documentation you need. sliding pocket door systems | made in italy. Assembling the frame. Eclisse Pocket Door Instructions.
From www.archdaily.com
Sliding Pocket Door ECLISSE Luce from ECLISSE Eclisse Pocket Door Instructions the installation of a sliding pocket door system requires two steps: All the documentation you need. The installation of a counterframe, a metal sructure specific. hook the door onto the runners using the door brackets fixed to the top of the door. — 8.7k views 1 year ago. sliding pocket door systems | made in italy.. Eclisse Pocket Door Instructions.
From www.eclisse.com
Support ECLISSE Single sliding pocket door system ECLISSE World Eclisse Pocket Door Instructions — how to install the door on an eclisse pocket door system. sliding pocket door systems | made in italy. It will take you through everything you need to know about pocket doors with clear illustrations. Assembling the frame to the wider pocket thickness i.e. the installation of a sliding pocket door system requires two steps: The. Eclisse Pocket Door Instructions.