Blue Island Building Permit Application . Land use applications for bowen island must be submitted to bowen island municipality. Here you’ll find documents and guides for land use applications as they pertain to trust area islands. No building shall be erected, altered or repaired nor shall any excavation commence. Blue island code red now online. Business development grant program application. Agreement to correct building code violations form. Property owners wishing to undertake construction in electoral areas b, c, e, g and most of area f will need to. No person shall begin any work for which a building permit is required or begin any work or excavation in preparation for the work until a. To apply for a permit we ask that you submit a completed application form along with the required plan processing fee and supporting.
from www.templateroller.com
Land use applications for bowen island must be submitted to bowen island municipality. To apply for a permit we ask that you submit a completed application form along with the required plan processing fee and supporting. Blue island code red now online. Agreement to correct building code violations form. Business development grant program application. Here you’ll find documents and guides for land use applications as they pertain to trust area islands. No building shall be erected, altered or repaired nor shall any excavation commence. No person shall begin any work for which a building permit is required or begin any work or excavation in preparation for the work until a. Property owners wishing to undertake construction in electoral areas b, c, e, g and most of area f will need to.
Rhode Island Construction Permit Application Submission Checklist
Blue Island Building Permit Application Blue island code red now online. Agreement to correct building code violations form. Here you’ll find documents and guides for land use applications as they pertain to trust area islands. No building shall be erected, altered or repaired nor shall any excavation commence. No person shall begin any work for which a building permit is required or begin any work or excavation in preparation for the work until a. Land use applications for bowen island must be submitted to bowen island municipality. Property owners wishing to undertake construction in electoral areas b, c, e, g and most of area f will need to. Blue island code red now online. To apply for a permit we ask that you submit a completed application form along with the required plan processing fee and supporting. Business development grant program application.
From www.templateroller.com
Rhode Island Target Range Permit Application Fill Out, Sign Online Blue Island Building Permit Application To apply for a permit we ask that you submit a completed application form along with the required plan processing fee and supporting. Business development grant program application. Property owners wishing to undertake construction in electoral areas b, c, e, g and most of area f will need to. Blue island code red now online. Land use applications for bowen. Blue Island Building Permit Application.
From www.uslegalforms.com
NY Residential Building Permit Application Town of Beekman Fill and Blue Island Building Permit Application Business development grant program application. Blue island code red now online. Here you’ll find documents and guides for land use applications as they pertain to trust area islands. Property owners wishing to undertake construction in electoral areas b, c, e, g and most of area f will need to. Agreement to correct building code violations form. Land use applications for. Blue Island Building Permit Application.
From www.templateroller.com
Rhode Island Construction Permit Application Submission Checklist Blue Island Building Permit Application Agreement to correct building code violations form. Business development grant program application. To apply for a permit we ask that you submit a completed application form along with the required plan processing fee and supporting. Property owners wishing to undertake construction in electoral areas b, c, e, g and most of area f will need to. Land use applications for. Blue Island Building Permit Application.
From www.templateroller.com
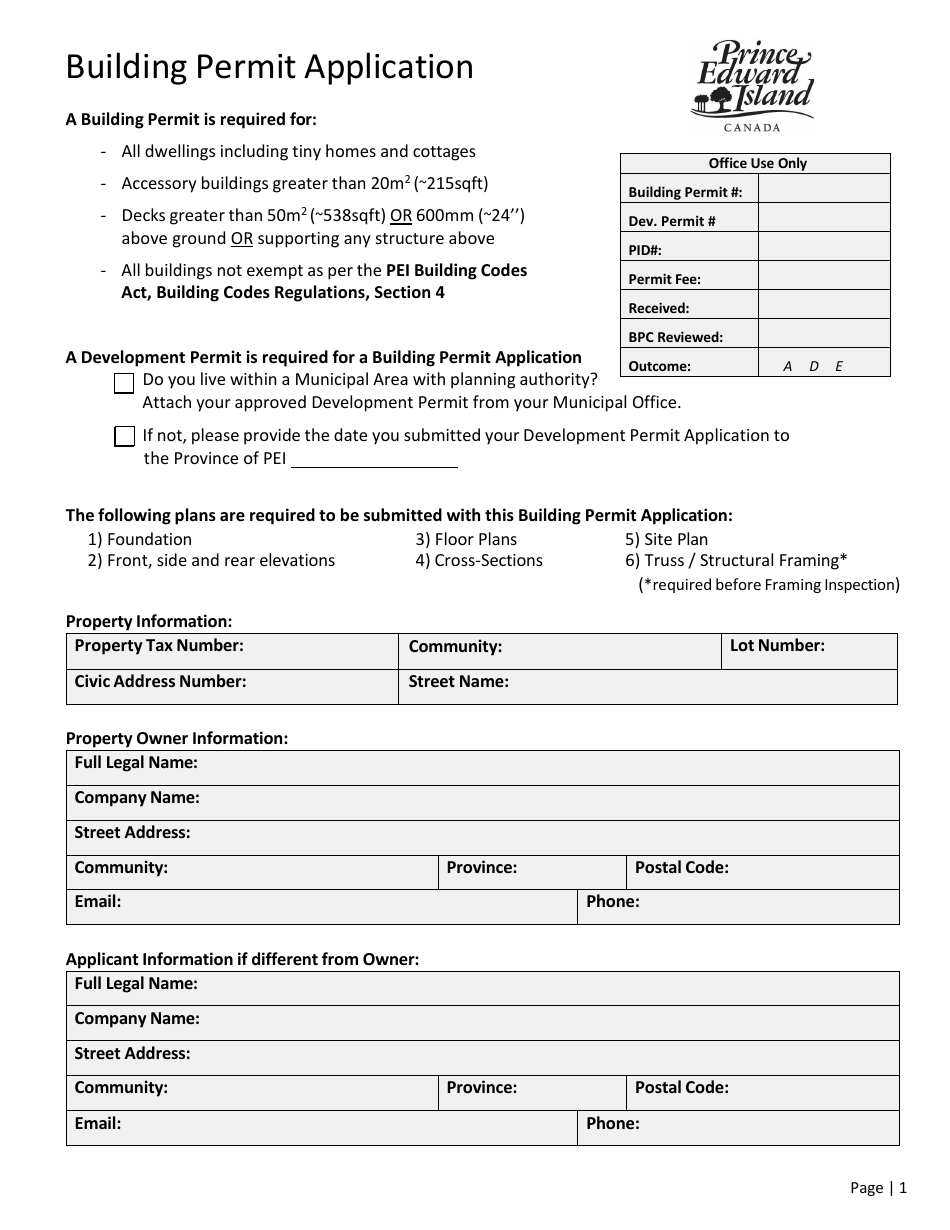
Prince Edward Island Canada Building Permit Application Fill Out Blue Island Building Permit Application Blue island code red now online. Land use applications for bowen island must be submitted to bowen island municipality. Agreement to correct building code violations form. No person shall begin any work for which a building permit is required or begin any work or excavation in preparation for the work until a. Business development grant program application. No building shall. Blue Island Building Permit Application.
From www.milwaukieoregon.gov
Building Permit City of Milwaukie Oregon Official site Blue Island Building Permit Application Property owners wishing to undertake construction in electoral areas b, c, e, g and most of area f will need to. No building shall be erected, altered or repaired nor shall any excavation commence. Blue island code red now online. Here you’ll find documents and guides for land use applications as they pertain to trust area islands. Agreement to correct. Blue Island Building Permit Application.
From www.uslegalforms.com
SC Single Family Permit Application Hilton Head Island Fill and Blue Island Building Permit Application Here you’ll find documents and guides for land use applications as they pertain to trust area islands. Land use applications for bowen island must be submitted to bowen island municipality. No building shall be erected, altered or repaired nor shall any excavation commence. To apply for a permit we ask that you submit a completed application form along with the. Blue Island Building Permit Application.
From www.templateroller.com
Rhode Island Temporary Practice Permit Application Fill Out, Sign Blue Island Building Permit Application No person shall begin any work for which a building permit is required or begin any work or excavation in preparation for the work until a. Blue island code red now online. Property owners wishing to undertake construction in electoral areas b, c, e, g and most of area f will need to. No building shall be erected, altered or. Blue Island Building Permit Application.
From www.signnow.com
Building Permit Application 20192024 Form Fill Out and Sign Blue Island Building Permit Application Property owners wishing to undertake construction in electoral areas b, c, e, g and most of area f will need to. To apply for a permit we ask that you submit a completed application form along with the required plan processing fee and supporting. No building shall be erected, altered or repaired nor shall any excavation commence. Agreement to correct. Blue Island Building Permit Application.
From www.templateroller.com
Rhode Island Target Range Permit Application Fill Out, Sign Online Blue Island Building Permit Application No person shall begin any work for which a building permit is required or begin any work or excavation in preparation for the work until a. Property owners wishing to undertake construction in electoral areas b, c, e, g and most of area f will need to. Land use applications for bowen island must be submitted to bowen island municipality.. Blue Island Building Permit Application.
From www.youtube.com
Understanding A Building Permit Application The Building Permit Blue Island Building Permit Application No building shall be erected, altered or repaired nor shall any excavation commence. Blue island code red now online. No person shall begin any work for which a building permit is required or begin any work or excavation in preparation for the work until a. To apply for a permit we ask that you submit a completed application form along. Blue Island Building Permit Application.
From www.templateroller.com
Prince Edward Island Canada Development & Building Permit Application Blue Island Building Permit Application No building shall be erected, altered or repaired nor shall any excavation commence. Business development grant program application. Blue island code red now online. Property owners wishing to undertake construction in electoral areas b, c, e, g and most of area f will need to. To apply for a permit we ask that you submit a completed application form along. Blue Island Building Permit Application.
From www.formsbank.com
Building Permit Application Form printable pdf download Blue Island Building Permit Application To apply for a permit we ask that you submit a completed application form along with the required plan processing fee and supporting. Property owners wishing to undertake construction in electoral areas b, c, e, g and most of area f will need to. Blue island code red now online. Land use applications for bowen island must be submitted to. Blue Island Building Permit Application.
From www.signnow.com
Rhode Island Permit 20192024 Form Fill Out and Sign Printable PDF Blue Island Building Permit Application Property owners wishing to undertake construction in electoral areas b, c, e, g and most of area f will need to. Land use applications for bowen island must be submitted to bowen island municipality. No person shall begin any work for which a building permit is required or begin any work or excavation in preparation for the work until a.. Blue Island Building Permit Application.
From www.facebook.com
Malabon City Building Permit Form Proccessing of Building Permit Blue Island Building Permit Application Business development grant program application. No building shall be erected, altered or repaired nor shall any excavation commence. Agreement to correct building code violations form. Blue island code red now online. No person shall begin any work for which a building permit is required or begin any work or excavation in preparation for the work until a. To apply for. Blue Island Building Permit Application.
From www.templateroller.com
Rhode Island Construction Permit Application Submission Checklist Blue Island Building Permit Application Land use applications for bowen island must be submitted to bowen island municipality. To apply for a permit we ask that you submit a completed application form along with the required plan processing fee and supporting. Property owners wishing to undertake construction in electoral areas b, c, e, g and most of area f will need to. No person shall. Blue Island Building Permit Application.
From studylib.net
Building Permit Application Blue Island Building Permit Application To apply for a permit we ask that you submit a completed application form along with the required plan processing fee and supporting. No person shall begin any work for which a building permit is required or begin any work or excavation in preparation for the work until a. Business development grant program application. Land use applications for bowen island. Blue Island Building Permit Application.
From www.templateroller.com
Prince Edward Island Canada Building & Development Permit Application Blue Island Building Permit Application To apply for a permit we ask that you submit a completed application form along with the required plan processing fee and supporting. Blue island code red now online. No person shall begin any work for which a building permit is required or begin any work or excavation in preparation for the work until a. Land use applications for bowen. Blue Island Building Permit Application.
From www.templateroller.com
Rhode Island Application for Stormwater Construction Permit and Water Blue Island Building Permit Application Land use applications for bowen island must be submitted to bowen island municipality. To apply for a permit we ask that you submit a completed application form along with the required plan processing fee and supporting. Here you’ll find documents and guides for land use applications as they pertain to trust area islands. Blue island code red now online. Business. Blue Island Building Permit Application.
From invillapark.com
Permitting Division Villa Park, IL Official site Blue Island Building Permit Application Agreement to correct building code violations form. No person shall begin any work for which a building permit is required or begin any work or excavation in preparation for the work until a. To apply for a permit we ask that you submit a completed application form along with the required plan processing fee and supporting. Blue island code red. Blue Island Building Permit Application.
From www.templateroller.com
City of Miami Beach, Florida Permit Application Fill Out, Sign Online Blue Island Building Permit Application Property owners wishing to undertake construction in electoral areas b, c, e, g and most of area f will need to. Blue island code red now online. To apply for a permit we ask that you submit a completed application form along with the required plan processing fee and supporting. No building shall be erected, altered or repaired nor shall. Blue Island Building Permit Application.
From www.templateroller.com
Prince Edward Island Canada Building & Development Permit Application Blue Island Building Permit Application Here you’ll find documents and guides for land use applications as they pertain to trust area islands. Business development grant program application. Agreement to correct building code violations form. To apply for a permit we ask that you submit a completed application form along with the required plan processing fee and supporting. Blue island code red now online. No building. Blue Island Building Permit Application.
From www.uslegalforms.com
FL Broward County Uniform Building Permit Application Fill and Sign Blue Island Building Permit Application No building shall be erected, altered or repaired nor shall any excavation commence. Property owners wishing to undertake construction in electoral areas b, c, e, g and most of area f will need to. No person shall begin any work for which a building permit is required or begin any work or excavation in preparation for the work until a.. Blue Island Building Permit Application.
From www.templateroller.com
Prince Edward Island Canada Building & Development Permit Application Blue Island Building Permit Application Property owners wishing to undertake construction in electoral areas b, c, e, g and most of area f will need to. To apply for a permit we ask that you submit a completed application form along with the required plan processing fee and supporting. Blue island code red now online. No building shall be erected, altered or repaired nor shall. Blue Island Building Permit Application.
From www.templateroller.com
Prince Edward Island Canada Development & Building Permit Application Blue Island Building Permit Application No person shall begin any work for which a building permit is required or begin any work or excavation in preparation for the work until a. Property owners wishing to undertake construction in electoral areas b, c, e, g and most of area f will need to. Land use applications for bowen island must be submitted to bowen island municipality.. Blue Island Building Permit Application.
From www.templateroller.com
Rhode Island Application for Stormwater Construction Permit and Water Blue Island Building Permit Application Blue island code red now online. To apply for a permit we ask that you submit a completed application form along with the required plan processing fee and supporting. Here you’ll find documents and guides for land use applications as they pertain to trust area islands. Property owners wishing to undertake construction in electoral areas b, c, e, g and. Blue Island Building Permit Application.
From www.templateroller.com
Rhode Island Target Range Permit Application Fill Out, Sign Online Blue Island Building Permit Application Property owners wishing to undertake construction in electoral areas b, c, e, g and most of area f will need to. Here you’ll find documents and guides for land use applications as they pertain to trust area islands. Blue island code red now online. No building shall be erected, altered or repaired nor shall any excavation commence. Land use applications. Blue Island Building Permit Application.
From www.formsbank.com
Fillable Application For Building Permit Form printable pdf download Blue Island Building Permit Application Property owners wishing to undertake construction in electoral areas b, c, e, g and most of area f will need to. Agreement to correct building code violations form. No person shall begin any work for which a building permit is required or begin any work or excavation in preparation for the work until a. No building shall be erected, altered. Blue Island Building Permit Application.
From www.pinterest.com
Building Permit Application Building permits, Permit, Building Blue Island Building Permit Application Here you’ll find documents and guides for land use applications as they pertain to trust area islands. Agreement to correct building code violations form. Business development grant program application. Blue island code red now online. No person shall begin any work for which a building permit is required or begin any work or excavation in preparation for the work until. Blue Island Building Permit Application.
From www.templateroller.com
Prince Edward Island Canada Development & Building Permit Application Blue Island Building Permit Application No building shall be erected, altered or repaired nor shall any excavation commence. Business development grant program application. Property owners wishing to undertake construction in electoral areas b, c, e, g and most of area f will need to. Land use applications for bowen island must be submitted to bowen island municipality. Blue island code red now online. Agreement to. Blue Island Building Permit Application.
From www.templateroller.com
Prince Edward Island Canada Building & Development Permit Application Blue Island Building Permit Application No person shall begin any work for which a building permit is required or begin any work or excavation in preparation for the work until a. Property owners wishing to undertake construction in electoral areas b, c, e, g and most of area f will need to. No building shall be erected, altered or repaired nor shall any excavation commence.. Blue Island Building Permit Application.
From www.template.net
Building Checklist Templates 18+ Word, PDF Format Download Blue Island Building Permit Application To apply for a permit we ask that you submit a completed application form along with the required plan processing fee and supporting. No person shall begin any work for which a building permit is required or begin any work or excavation in preparation for the work until a. Business development grant program application. No building shall be erected, altered. Blue Island Building Permit Application.
From www.facebook.com
Malabon City Building Permit Form Proccessing of Building Permit Blue Island Building Permit Application Business development grant program application. No building shall be erected, altered or repaired nor shall any excavation commence. Here you’ll find documents and guides for land use applications as they pertain to trust area islands. Blue island code red now online. No person shall begin any work for which a building permit is required or begin any work or excavation. Blue Island Building Permit Application.
From www.templateroller.com
Rhode Island Application for Stormwater Construction Permit and Water Blue Island Building Permit Application Land use applications for bowen island must be submitted to bowen island municipality. No building shall be erected, altered or repaired nor shall any excavation commence. To apply for a permit we ask that you submit a completed application form along with the required plan processing fee and supporting. Agreement to correct building code violations form. Blue island code red. Blue Island Building Permit Application.
From www.uslegalforms.com
FL Building Permit Application North Palm Beach Village 2010 Fill Blue Island Building Permit Application Here you’ll find documents and guides for land use applications as they pertain to trust area islands. Blue island code red now online. Land use applications for bowen island must be submitted to bowen island municipality. Business development grant program application. To apply for a permit we ask that you submit a completed application form along with the required plan. Blue Island Building Permit Application.
From www.templateroller.com
Rhode Island Application for Ri Landing Permit Fill Out, Sign Online Blue Island Building Permit Application Blue island code red now online. To apply for a permit we ask that you submit a completed application form along with the required plan processing fee and supporting. Property owners wishing to undertake construction in electoral areas b, c, e, g and most of area f will need to. Land use applications for bowen island must be submitted to. Blue Island Building Permit Application.