California Real Estate Ownership Records . Check property records in california, find owner info, search permits & purchase history, lookup up deed, tax, loan and lien records and much more. Search our database of free california residential property records including deed records, titles, mortgages, sales, transfers & ownership history,. To conduct a title search, you will. With a simple address search, you can quickly find exhaustive property records for both residential and commercial properties, including document images. Property records contain property tax records, property ownership records such as deeds, and property lines maps. Viewing records at the assessor’s office: Perform a california property search to find public california property records. The process involves reviewing public records to determine the property’s ownership history, as well as any liens or encumbrances on the property.
from propertyownershiphontate.blogspot.com
Viewing records at the assessor’s office: Property records contain property tax records, property ownership records such as deeds, and property lines maps. Check property records in california, find owner info, search permits & purchase history, lookup up deed, tax, loan and lien records and much more. To conduct a title search, you will. Perform a california property search to find public california property records. Search our database of free california residential property records including deed records, titles, mortgages, sales, transfers & ownership history,. With a simple address search, you can quickly find exhaustive property records for both residential and commercial properties, including document images. The process involves reviewing public records to determine the property’s ownership history, as well as any liens or encumbrances on the property.
Property Ownership Multnomah County Property Ownership Records
California Real Estate Ownership Records The process involves reviewing public records to determine the property’s ownership history, as well as any liens or encumbrances on the property. Check property records in california, find owner info, search permits & purchase history, lookup up deed, tax, loan and lien records and much more. To conduct a title search, you will. Perform a california property search to find public california property records. The process involves reviewing public records to determine the property’s ownership history, as well as any liens or encumbrances on the property. With a simple address search, you can quickly find exhaustive property records for both residential and commercial properties, including document images. Property records contain property tax records, property ownership records such as deeds, and property lines maps. Viewing records at the assessor’s office: Search our database of free california residential property records including deed records, titles, mortgages, sales, transfers & ownership history,.
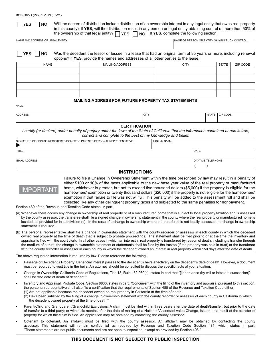
From www.templateroller.com
Form BOE502D Fill Out, Sign Online and Download Fillable PDF California Real Estate Ownership Records With a simple address search, you can quickly find exhaustive property records for both residential and commercial properties, including document images. Property records contain property tax records, property ownership records such as deeds, and property lines maps. Search our database of free california residential property records including deed records, titles, mortgages, sales, transfers & ownership history,. To conduct a title. California Real Estate Ownership Records.
From www.formsbank.com
Proof Of Property Ownership Form printable pdf download California Real Estate Ownership Records The process involves reviewing public records to determine the property’s ownership history, as well as any liens or encumbrances on the property. Check property records in california, find owner info, search permits & purchase history, lookup up deed, tax, loan and lien records and much more. To conduct a title search, you will. Perform a california property search to find. California Real Estate Ownership Records.
From www.templateroller.com
Form BOE502A Download Fillable PDF or Fill Online Preliminary Change California Real Estate Ownership Records Check property records in california, find owner info, search permits & purchase history, lookup up deed, tax, loan and lien records and much more. The process involves reviewing public records to determine the property’s ownership history, as well as any liens or encumbrances on the property. Property records contain property tax records, property ownership records such as deeds, and property. California Real Estate Ownership Records.
From freeforms.com
Free California Real Estate Purchase Agreement Template PDF WORD California Real Estate Ownership Records Perform a california property search to find public california property records. With a simple address search, you can quickly find exhaustive property records for both residential and commercial properties, including document images. The process involves reviewing public records to determine the property’s ownership history, as well as any liens or encumbrances on the property. Viewing records at the assessor’s office:. California Real Estate Ownership Records.
From www.templateroller.com
California Offer to Purchase Real Estate Form Fill Out, Sign Online California Real Estate Ownership Records Perform a california property search to find public california property records. With a simple address search, you can quickly find exhaustive property records for both residential and commercial properties, including document images. Check property records in california, find owner info, search permits & purchase history, lookup up deed, tax, loan and lien records and much more. Viewing records at the. California Real Estate Ownership Records.
From www.templateroller.com
Form BOE502D Fill Out, Sign Online and Download Fillable PDF California Real Estate Ownership Records Property records contain property tax records, property ownership records such as deeds, and property lines maps. Search our database of free california residential property records including deed records, titles, mortgages, sales, transfers & ownership history,. Check property records in california, find owner info, search permits & purchase history, lookup up deed, tax, loan and lien records and much more. Perform. California Real Estate Ownership Records.
From www.orangecountyestateplanninglawyer-blog.com
Deeds to Real Estate — Orange County Estate Planning Lawyer Blog California Real Estate Ownership Records Property records contain property tax records, property ownership records such as deeds, and property lines maps. Viewing records at the assessor’s office: Check property records in california, find owner info, search permits & purchase history, lookup up deed, tax, loan and lien records and much more. Search our database of free california residential property records including deed records, titles, mortgages,. California Real Estate Ownership Records.
From studylib.net
CaliforniaResidentialRealEstatePurchaseAgreement California Real Estate Ownership Records With a simple address search, you can quickly find exhaustive property records for both residential and commercial properties, including document images. To conduct a title search, you will. Property records contain property tax records, property ownership records such as deeds, and property lines maps. Perform a california property search to find public california property records. The process involves reviewing public. California Real Estate Ownership Records.
From real-estate-purchase-contract-california.pdffiller.com
Real Estate Purchase Contract California Fill Online, Printable California Real Estate Ownership Records The process involves reviewing public records to determine the property’s ownership history, as well as any liens or encumbrances on the property. Property records contain property tax records, property ownership records such as deeds, and property lines maps. Check property records in california, find owner info, search permits & purchase history, lookup up deed, tax, loan and lien records and. California Real Estate Ownership Records.
From www.orangecountyestateplanninglawyer-blog.com
Real Estate Category Archives — Orange County Estate Planning Lawyer California Real Estate Ownership Records Check property records in california, find owner info, search permits & purchase history, lookup up deed, tax, loan and lien records and much more. Perform a california property search to find public california property records. The process involves reviewing public records to determine the property’s ownership history, as well as any liens or encumbrances on the property. Viewing records at. California Real Estate Ownership Records.
From esign.com
Free California Residential Purchase and Sale Agreement PDF Word California Real Estate Ownership Records Check property records in california, find owner info, search permits & purchase history, lookup up deed, tax, loan and lien records and much more. Property records contain property tax records, property ownership records such as deeds, and property lines maps. With a simple address search, you can quickly find exhaustive property records for both residential and commercial properties, including document. California Real Estate Ownership Records.
From propertyownershiphontate.blogspot.com
Property Ownership Multnomah County Property Ownership Records California Real Estate Ownership Records The process involves reviewing public records to determine the property’s ownership history, as well as any liens or encumbrances on the property. With a simple address search, you can quickly find exhaustive property records for both residential and commercial properties, including document images. Check property records in california, find owner info, search permits & purchase history, lookup up deed, tax,. California Real Estate Ownership Records.
From newventureescrow.com
What Do You Have to Disclose When Selling a House in California California Real Estate Ownership Records Property records contain property tax records, property ownership records such as deeds, and property lines maps. To conduct a title search, you will. Viewing records at the assessor’s office: With a simple address search, you can quickly find exhaustive property records for both residential and commercial properties, including document images. Perform a california property search to find public california property. California Real Estate Ownership Records.
From stevensonlawoffice.com
California Real Estate Ownership Managing Trusts & Estates California Real Estate Ownership Records Perform a california property search to find public california property records. Viewing records at the assessor’s office: Check property records in california, find owner info, search permits & purchase history, lookup up deed, tax, loan and lien records and much more. To conduct a title search, you will. With a simple address search, you can quickly find exhaustive property records. California Real Estate Ownership Records.
From www.northberkeleyproperties.com
Housing Scams and How to Avoid Them North Berkeley Properties California Real Estate Ownership Records Search our database of free california residential property records including deed records, titles, mortgages, sales, transfers & ownership history,. The process involves reviewing public records to determine the property’s ownership history, as well as any liens or encumbrances on the property. With a simple address search, you can quickly find exhaustive property records for both residential and commercial properties, including. California Real Estate Ownership Records.
From www.youtube.com
Search California Property Records Online. YouTube California Real Estate Ownership Records Check property records in california, find owner info, search permits & purchase history, lookup up deed, tax, loan and lien records and much more. With a simple address search, you can quickly find exhaustive property records for both residential and commercial properties, including document images. Property records contain property tax records, property ownership records such as deeds, and property lines. California Real Estate Ownership Records.
From www.templateroller.com
Form BOE502A Download Fillable PDF or Fill Online Preliminary Change California Real Estate Ownership Records To conduct a title search, you will. With a simple address search, you can quickly find exhaustive property records for both residential and commercial properties, including document images. Property records contain property tax records, property ownership records such as deeds, and property lines maps. Perform a california property search to find public california property records. Search our database of free. California Real Estate Ownership Records.
From www.youtube.com
How To Get Your California Real Estate License In 2023 YouTube California Real Estate Ownership Records Check property records in california, find owner info, search permits & purchase history, lookup up deed, tax, loan and lien records and much more. With a simple address search, you can quickly find exhaustive property records for both residential and commercial properties, including document images. Viewing records at the assessor’s office: The process involves reviewing public records to determine the. California Real Estate Ownership Records.
From klaartdup.blob.core.windows.net
Property Records For California at Stephanie Kennedy blog California Real Estate Ownership Records Viewing records at the assessor’s office: Property records contain property tax records, property ownership records such as deeds, and property lines maps. Search our database of free california residential property records including deed records, titles, mortgages, sales, transfers & ownership history,. With a simple address search, you can quickly find exhaustive property records for both residential and commercial properties, including. California Real Estate Ownership Records.
From fill.io
Fill Free fillable California Department of Real Estate PDF forms California Real Estate Ownership Records Viewing records at the assessor’s office: The process involves reviewing public records to determine the property’s ownership history, as well as any liens or encumbrances on the property. Perform a california property search to find public california property records. To conduct a title search, you will. With a simple address search, you can quickly find exhaustive property records for both. California Real Estate Ownership Records.
From joiuqpzgj.blob.core.windows.net
Property Tax Records In Hampden County Ma at Rufus Griffin blog California Real Estate Ownership Records Search our database of free california residential property records including deed records, titles, mortgages, sales, transfers & ownership history,. The process involves reviewing public records to determine the property’s ownership history, as well as any liens or encumbrances on the property. To conduct a title search, you will. Check property records in california, find owner info, search permits & purchase. California Real Estate Ownership Records.
From printableformsfree.com
Preliminary Change Ownership Form Fillable California Printable Forms California Real Estate Ownership Records Perform a california property search to find public california property records. Viewing records at the assessor’s office: With a simple address search, you can quickly find exhaustive property records for both residential and commercial properties, including document images. Search our database of free california residential property records including deed records, titles, mortgages, sales, transfers & ownership history,. Check property records. California Real Estate Ownership Records.
From www.signnow.com
Agreement Real Property Purchase Complete with ease airSlate SignNow California Real Estate Ownership Records Perform a california property search to find public california property records. Viewing records at the assessor’s office: Property records contain property tax records, property ownership records such as deeds, and property lines maps. Check property records in california, find owner info, search permits & purchase history, lookup up deed, tax, loan and lien records and much more. The process involves. California Real Estate Ownership Records.
From www.templateroller.com
California Change of Ownership Form Fill Out, Sign Online and California Real Estate Ownership Records Property records contain property tax records, property ownership records such as deeds, and property lines maps. Viewing records at the assessor’s office: To conduct a title search, you will. Search our database of free california residential property records including deed records, titles, mortgages, sales, transfers & ownership history,. With a simple address search, you can quickly find exhaustive property records. California Real Estate Ownership Records.
From esign.com
Free California Real Estate Listing Agreement PDF Word California Real Estate Ownership Records To conduct a title search, you will. With a simple address search, you can quickly find exhaustive property records for both residential and commercial properties, including document images. The process involves reviewing public records to determine the property’s ownership history, as well as any liens or encumbrances on the property. Viewing records at the assessor’s office: Check property records in. California Real Estate Ownership Records.
From slideplayer.com
California Real Estate Principles, 10.1 Edition ppt download California Real Estate Ownership Records The process involves reviewing public records to determine the property’s ownership history, as well as any liens or encumbrances on the property. Perform a california property search to find public california property records. Check property records in california, find owner info, search permits & purchase history, lookup up deed, tax, loan and lien records and much more. Viewing records at. California Real Estate Ownership Records.
From eforms.com
Free California Small Estate Affidavit (Affidavit for Collection of California Real Estate Ownership Records Search our database of free california residential property records including deed records, titles, mortgages, sales, transfers & ownership history,. To conduct a title search, you will. Property records contain property tax records, property ownership records such as deeds, and property lines maps. Viewing records at the assessor’s office: Check property records in california, find owner info, search permits & purchase. California Real Estate Ownership Records.
From calestateplanning.blogspot.com
Estate Planning in California Property Ownership Evidence Code California Real Estate Ownership Records To conduct a title search, you will. Property records contain property tax records, property ownership records such as deeds, and property lines maps. Check property records in california, find owner info, search permits & purchase history, lookup up deed, tax, loan and lien records and much more. The process involves reviewing public records to determine the property’s ownership history, as. California Real Estate Ownership Records.
From esign.com
Free California Residential Purchase and Sale Agreement PDF Word California Real Estate Ownership Records Search our database of free california residential property records including deed records, titles, mortgages, sales, transfers & ownership history,. With a simple address search, you can quickly find exhaustive property records for both residential and commercial properties, including document images. Property records contain property tax records, property ownership records such as deeds, and property lines maps. Viewing records at the. California Real Estate Ownership Records.
From www.windermere.com
Q1 2023 Southern California Real Estate Market Update Windermere Real California Real Estate Ownership Records Check property records in california, find owner info, search permits & purchase history, lookup up deed, tax, loan and lien records and much more. Property records contain property tax records, property ownership records such as deeds, and property lines maps. Perform a california property search to find public california property records. The process involves reviewing public records to determine the. California Real Estate Ownership Records.
From www.pinterest.com
Monterey, CA Real Estate Market Update Check out this 3 bedroom, 4.5 California Real Estate Ownership Records The process involves reviewing public records to determine the property’s ownership history, as well as any liens or encumbrances on the property. Perform a california property search to find public california property records. Viewing records at the assessor’s office: Search our database of free california residential property records including deed records, titles, mortgages, sales, transfers & ownership history,. To conduct. California Real Estate Ownership Records.
From tularecounty.ca.gov
Preliminary Change of Ownership Assessor California Real Estate Ownership Records With a simple address search, you can quickly find exhaustive property records for both residential and commercial properties, including document images. Perform a california property search to find public california property records. Viewing records at the assessor’s office: To conduct a title search, you will. Search our database of free california residential property records including deed records, titles, mortgages, sales,. California Real Estate Ownership Records.
From www.thewholesalerstoolbox.com
California Real Estate Wholesaling Guide California Real Estate Ownership Records Viewing records at the assessor’s office: Search our database of free california residential property records including deed records, titles, mortgages, sales, transfers & ownership history,. Check property records in california, find owner info, search permits & purchase history, lookup up deed, tax, loan and lien records and much more. To conduct a title search, you will. The process involves reviewing. California Real Estate Ownership Records.
From vectorseek.com
California Real Estate Inspection Association Logo Vector (.Ai .PNG California Real Estate Ownership Records Check property records in california, find owner info, search permits & purchase history, lookup up deed, tax, loan and lien records and much more. Viewing records at the assessor’s office: To conduct a title search, you will. The process involves reviewing public records to determine the property’s ownership history, as well as any liens or encumbrances on the property. Search. California Real Estate Ownership Records.
From www.templateroller.com
Form BOE502A Download Fillable PDF or Fill Online Preliminary Change California Real Estate Ownership Records Perform a california property search to find public california property records. Search our database of free california residential property records including deed records, titles, mortgages, sales, transfers & ownership history,. With a simple address search, you can quickly find exhaustive property records for both residential and commercial properties, including document images. The process involves reviewing public records to determine the. California Real Estate Ownership Records.