How Does A Tub Box Work . Tub boxes product description and features. Luckily i did fashion up a sort of tub box, so i can put a new drain in once the tub is installed. One piece box method for typical slab. A bathtub’s valve is connected. Here you’ll find a helpful explanation of how a bathtub works, with common tub types, styles and sizes, with bathtub drain plumbing diagrams. Oatey® tub boxes provide a quick and economical method for providing access to the tub waste and drain in slab construction. I can see a water closet exit, a sink exit, and a tub exit. My old p trap was a glue in. When installing under slab plumbing for a tub or shower it’s almost impossible to get the drain. Locate tub box and tie down with rebar. The tub exit is covered by this product:
from proventsystems.com
One piece box method for typical slab. The tub exit is covered by this product: Tub boxes product description and features. When installing under slab plumbing for a tub or shower it’s almost impossible to get the drain. My old p trap was a glue in. Locate tub box and tie down with rebar. Oatey® tub boxes provide a quick and economical method for providing access to the tub waste and drain in slab construction. Here you’ll find a helpful explanation of how a bathtub works, with common tub types, styles and sizes, with bathtub drain plumbing diagrams. I can see a water closet exit, a sink exit, and a tub exit. Luckily i did fashion up a sort of tub box, so i can put a new drain in once the tub is installed.
» B6210D Tub Box Assembly for Precast or Existing ConcreteProVent
How Does A Tub Box Work Oatey® tub boxes provide a quick and economical method for providing access to the tub waste and drain in slab construction. Luckily i did fashion up a sort of tub box, so i can put a new drain in once the tub is installed. Here you’ll find a helpful explanation of how a bathtub works, with common tub types, styles and sizes, with bathtub drain plumbing diagrams. A bathtub’s valve is connected. My old p trap was a glue in. When installing under slab plumbing for a tub or shower it’s almost impossible to get the drain. I can see a water closet exit, a sink exit, and a tub exit. Tub boxes product description and features. Locate tub box and tie down with rebar. Oatey® tub boxes provide a quick and economical method for providing access to the tub waste and drain in slab construction. One piece box method for typical slab. The tub exit is covered by this product:
From www.grainger.com
Tub Box Assembly, 4 1/2 in to 8 in Height, 2 in Diameter Grainger How Does A Tub Box Work One piece box method for typical slab. A bathtub’s valve is connected. Oatey® tub boxes provide a quick and economical method for providing access to the tub waste and drain in slab construction. Luckily i did fashion up a sort of tub box, so i can put a new drain in once the tub is installed. When installing under slab. How Does A Tub Box Work.
From cevurbur.blob.core.windows.net
How Does A Pop Up Shower Work at Shirley Gomez blog How Does A Tub Box Work A bathtub’s valve is connected. Luckily i did fashion up a sort of tub box, so i can put a new drain in once the tub is installed. Here you’ll find a helpful explanation of how a bathtub works, with common tub types, styles and sizes, with bathtub drain plumbing diagrams. Locate tub box and tie down with rebar. Oatey®. How Does A Tub Box Work.
From proventsystems.com
» B6210A Tub Box Assembly for Concrete on Wood FormProVent How Does A Tub Box Work Here you’ll find a helpful explanation of how a bathtub works, with common tub types, styles and sizes, with bathtub drain plumbing diagrams. Locate tub box and tie down with rebar. Oatey® tub boxes provide a quick and economical method for providing access to the tub waste and drain in slab construction. A bathtub’s valve is connected. I can see. How Does A Tub Box Work.
From diagramlibrarygermins.z19.web.core.windows.net
Jetted Tub Diagram How Does A Tub Box Work Tub boxes product description and features. I can see a water closet exit, a sink exit, and a tub exit. A bathtub’s valve is connected. The tub exit is covered by this product: Here you’ll find a helpful explanation of how a bathtub works, with common tub types, styles and sizes, with bathtub drain plumbing diagrams. My old p trap. How Does A Tub Box Work.
From www.youtube.com
Using a Tub Box for Shower Installation YouTube How Does A Tub Box Work One piece box method for typical slab. Luckily i did fashion up a sort of tub box, so i can put a new drain in once the tub is installed. A bathtub’s valve is connected. I can see a water closet exit, a sink exit, and a tub exit. My old p trap was a glue in. Locate tub box. How Does A Tub Box Work.
From terrylove.com
Tub Box in Slab with No Drain Pipe? Terry Love Plumbing Advice How Does A Tub Box Work Luckily i did fashion up a sort of tub box, so i can put a new drain in once the tub is installed. One piece box method for typical slab. The tub exit is covered by this product: I can see a water closet exit, a sink exit, and a tub exit. My old p trap was a glue in.. How Does A Tub Box Work.
From proventsystems.com
» C6211A2 Tub Box Assembly for Shallow Concrete or Corrugated How Does A Tub Box Work The tub exit is covered by this product: Here you’ll find a helpful explanation of how a bathtub works, with common tub types, styles and sizes, with bathtub drain plumbing diagrams. Tub boxes product description and features. A bathtub’s valve is connected. I can see a water closet exit, a sink exit, and a tub exit. One piece box method. How Does A Tub Box Work.
From exyalrinr.blob.core.windows.net
Bathtub Drain Dimensions at Virgil Thomas blog How Does A Tub Box Work Here you’ll find a helpful explanation of how a bathtub works, with common tub types, styles and sizes, with bathtub drain plumbing diagrams. I can see a water closet exit, a sink exit, and a tub exit. Luckily i did fashion up a sort of tub box, so i can put a new drain in once the tub is installed.. How Does A Tub Box Work.
From wireenginevicarships.z21.web.core.windows.net
Bathtub Rough In Plumbing Diagram How Does A Tub Box Work Tub boxes product description and features. A bathtub’s valve is connected. Luckily i did fashion up a sort of tub box, so i can put a new drain in once the tub is installed. Locate tub box and tie down with rebar. One piece box method for typical slab. When installing under slab plumbing for a tub or shower it’s. How Does A Tub Box Work.
From www.plbg.com
Tub box center on riser pipe? How Does A Tub Box Work Here you’ll find a helpful explanation of how a bathtub works, with common tub types, styles and sizes, with bathtub drain plumbing diagrams. I can see a water closet exit, a sink exit, and a tub exit. One piece box method for typical slab. Oatey® tub boxes provide a quick and economical method for providing access to the tub waste. How Does A Tub Box Work.
From dxokvwiuo.blob.core.windows.net
What Does Shower Diverter Mean at Mary Lawson blog How Does A Tub Box Work The tub exit is covered by this product: My old p trap was a glue in. Tub boxes product description and features. Here you’ll find a helpful explanation of how a bathtub works, with common tub types, styles and sizes, with bathtub drain plumbing diagrams. I can see a water closet exit, a sink exit, and a tub exit. Luckily. How Does A Tub Box Work.
From americantubs.com
Walk in Tubs Installation By Licensed Professionals American Tubs How Does A Tub Box Work A bathtub’s valve is connected. I can see a water closet exit, a sink exit, and a tub exit. The tub exit is covered by this product: Tub boxes product description and features. Here you’ll find a helpful explanation of how a bathtub works, with common tub types, styles and sizes, with bathtub drain plumbing diagrams. My old p trap. How Does A Tub Box Work.
From exycrszqg.blob.core.windows.net
How To Install Shower Tub at Dave Gonzales blog How Does A Tub Box Work Tub boxes product description and features. One piece box method for typical slab. A bathtub’s valve is connected. When installing under slab plumbing for a tub or shower it’s almost impossible to get the drain. Oatey® tub boxes provide a quick and economical method for providing access to the tub waste and drain in slab construction. Luckily i did fashion. How Does A Tub Box Work.
From cexuseyy.blob.core.windows.net
Where Does Bathtub Overflow Drain Go at Mari Thompson blog How Does A Tub Box Work Tub boxes product description and features. Luckily i did fashion up a sort of tub box, so i can put a new drain in once the tub is installed. When installing under slab plumbing for a tub or shower it’s almost impossible to get the drain. A bathtub’s valve is connected. One piece box method for typical slab. I can. How Does A Tub Box Work.
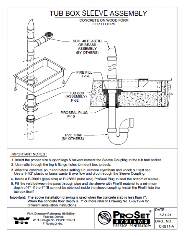
From proventsystems.com
» C6211A Tub Box Assembly for Concrete on Wood FormProVent How Does A Tub Box Work A bathtub’s valve is connected. Luckily i did fashion up a sort of tub box, so i can put a new drain in once the tub is installed. Oatey® tub boxes provide a quick and economical method for providing access to the tub waste and drain in slab construction. My old p trap was a glue in. I can see. How Does A Tub Box Work.
From www.thehomehacksdiy.com
How a Bathtub Works? Plumbing & Drain System The Home Hacks DIY How Does A Tub Box Work One piece box method for typical slab. My old p trap was a glue in. When installing under slab plumbing for a tub or shower it’s almost impossible to get the drain. A bathtub’s valve is connected. I can see a water closet exit, a sink exit, and a tub exit. The tub exit is covered by this product: Oatey®. How Does A Tub Box Work.
From buildersvilla.com
how to build a frame for a drop in tub Builders Villa How Does A Tub Box Work Luckily i did fashion up a sort of tub box, so i can put a new drain in once the tub is installed. When installing under slab plumbing for a tub or shower it’s almost impossible to get the drain. Oatey® tub boxes provide a quick and economical method for providing access to the tub waste and drain in slab. How Does A Tub Box Work.
From giojqqllw.blob.core.windows.net
How Long Does It Take To Drain A Bathtub at Sara Hartness blog How Does A Tub Box Work Luckily i did fashion up a sort of tub box, so i can put a new drain in once the tub is installed. A bathtub’s valve is connected. My old p trap was a glue in. Tub boxes product description and features. Here you’ll find a helpful explanation of how a bathtub works, with common tub types, styles and sizes,. How Does A Tub Box Work.
From theyardzone.com
What is a Hot Tub, How It Works and Benefits! The Yard Zone How Does A Tub Box Work Here you’ll find a helpful explanation of how a bathtub works, with common tub types, styles and sizes, with bathtub drain plumbing diagrams. Oatey® tub boxes provide a quick and economical method for providing access to the tub waste and drain in slab construction. My old p trap was a glue in. Locate tub box and tie down with rebar.. How Does A Tub Box Work.
From proventsystems.com
» P62 Tub Box AssemblyProVent Systems How Does A Tub Box Work A bathtub’s valve is connected. Tub boxes product description and features. Locate tub box and tie down with rebar. Luckily i did fashion up a sort of tub box, so i can put a new drain in once the tub is installed. I can see a water closet exit, a sink exit, and a tub exit. Here you’ll find a. How Does A Tub Box Work.
From stroiteh-msk.ru
Водоснабжение и канализация в доме 8 класс технология 90 фото How Does A Tub Box Work The tub exit is covered by this product: Oatey® tub boxes provide a quick and economical method for providing access to the tub waste and drain in slab construction. Luckily i did fashion up a sort of tub box, so i can put a new drain in once the tub is installed. Here you’ll find a helpful explanation of how. How Does A Tub Box Work.
From brandfuge.com
What is a Tube Heat Exchanger and How Does it Work? BrandFuge How Does A Tub Box Work Tub boxes product description and features. The tub exit is covered by this product: A bathtub’s valve is connected. Luckily i did fashion up a sort of tub box, so i can put a new drain in once the tub is installed. My old p trap was a glue in. Oatey® tub boxes provide a quick and economical method for. How Does A Tub Box Work.
From dxoimlozd.blob.core.windows.net
How To Put In A New Bath Tub at Dana Culbert blog How Does A Tub Box Work A bathtub’s valve is connected. Oatey® tub boxes provide a quick and economical method for providing access to the tub waste and drain in slab construction. One piece box method for typical slab. Luckily i did fashion up a sort of tub box, so i can put a new drain in once the tub is installed. I can see a. How Does A Tub Box Work.
From www.supplyht.com
RectorSeal tub box kits 20210602 Plumbing & Mechanical Supply How Does A Tub Box Work Luckily i did fashion up a sort of tub box, so i can put a new drain in once the tub is installed. I can see a water closet exit, a sink exit, and a tub exit. My old p trap was a glue in. Locate tub box and tie down with rebar. A bathtub’s valve is connected. One piece. How Does A Tub Box Work.
From proventsystems.com
» C6212SSW Tub Box Assembly for Concrete on Wood FormProVent How Does A Tub Box Work When installing under slab plumbing for a tub or shower it’s almost impossible to get the drain. I can see a water closet exit, a sink exit, and a tub exit. One piece box method for typical slab. Tub boxes product description and features. Here you’ll find a helpful explanation of how a bathtub works, with common tub types, styles. How Does A Tub Box Work.
From www.leocdesign.com
How To Plug The Tub Without Stopper Bathtub Designs How Does A Tub Box Work My old p trap was a glue in. Here you’ll find a helpful explanation of how a bathtub works, with common tub types, styles and sizes, with bathtub drain plumbing diagrams. Luckily i did fashion up a sort of tub box, so i can put a new drain in once the tub is installed. I can see a water closet. How Does A Tub Box Work.
From proventsystems.com
» B6210D Tub Box Assembly for Precast or Existing ConcreteProVent How Does A Tub Box Work Locate tub box and tie down with rebar. Here you’ll find a helpful explanation of how a bathtub works, with common tub types, styles and sizes, with bathtub drain plumbing diagrams. Luckily i did fashion up a sort of tub box, so i can put a new drain in once the tub is installed. Tub boxes product description and features.. How Does A Tub Box Work.
From www.plbg.com
Tub box center on riser pipe? How Does A Tub Box Work I can see a water closet exit, a sink exit, and a tub exit. Locate tub box and tie down with rebar. Oatey® tub boxes provide a quick and economical method for providing access to the tub waste and drain in slab construction. When installing under slab plumbing for a tub or shower it’s almost impossible to get the drain.. How Does A Tub Box Work.
From www.oatey.com
Oatey® Tub Box Oatey How Does A Tub Box Work The tub exit is covered by this product: A bathtub’s valve is connected. Oatey® tub boxes provide a quick and economical method for providing access to the tub waste and drain in slab construction. Tub boxes product description and features. Locate tub box and tie down with rebar. My old p trap was a glue in. Here you’ll find a. How Does A Tub Box Work.
From www.plumbersstock.com
Proset C6211E Plastic Tub Box Assembly PlumbersStock How Does A Tub Box Work Tub boxes product description and features. I can see a water closet exit, a sink exit, and a tub exit. Luckily i did fashion up a sort of tub box, so i can put a new drain in once the tub is installed. A bathtub’s valve is connected. The tub exit is covered by this product: Locate tub box and. How Does A Tub Box Work.
From www.hilti.com
CP 681 Tub box kit Accessories Hilti USA How Does A Tub Box Work When installing under slab plumbing for a tub or shower it’s almost impossible to get the drain. Tub boxes product description and features. My old p trap was a glue in. Here you’ll find a helpful explanation of how a bathtub works, with common tub types, styles and sizes, with bathtub drain plumbing diagrams. Locate tub box and tie down. How Does A Tub Box Work.
From www.pinterest.com
How a Bathtub Works Types & Plumbing Diagrams Plumbing drains How Does A Tub Box Work Locate tub box and tie down with rebar. A bathtub’s valve is connected. My old p trap was a glue in. Oatey® tub boxes provide a quick and economical method for providing access to the tub waste and drain in slab construction. One piece box method for typical slab. Luckily i did fashion up a sort of tub box, so. How Does A Tub Box Work.
From schematicdiagramtelium.z13.web.core.windows.net
Plumbing Diagram For Bathtub How Does A Tub Box Work A bathtub’s valve is connected. I can see a water closet exit, a sink exit, and a tub exit. Locate tub box and tie down with rebar. Oatey® tub boxes provide a quick and economical method for providing access to the tub waste and drain in slab construction. One piece box method for typical slab. Tub boxes product description and. How Does A Tub Box Work.
From www.youtube.com
Freestanding Soaking Tub Easiest Way to Install l PLAN LEARN BUILD How Does A Tub Box Work Luckily i did fashion up a sort of tub box, so i can put a new drain in once the tub is installed. Locate tub box and tie down with rebar. My old p trap was a glue in. Oatey® tub boxes provide a quick and economical method for providing access to the tub waste and drain in slab construction.. How Does A Tub Box Work.
From dxoideqvu.blob.core.windows.net
Youtube Install Bathtub at Gregory Reeves blog How Does A Tub Box Work Locate tub box and tie down with rebar. Luckily i did fashion up a sort of tub box, so i can put a new drain in once the tub is installed. I can see a water closet exit, a sink exit, and a tub exit. One piece box method for typical slab. My old p trap was a glue in.. How Does A Tub Box Work.