Enclosure Permit Notification Of Transfer Application . The crown lands and irrigation legislation amendment (removal of transfer restrictions) act 1997 removes the requirement for minister's. Use this online form to notify the department of planning and environment when a parcel of land to which an enclosure permit is attached has been. As at april 2024, minimum rent is $595. In addition to annual rent, a fee applies for each application, alteration or notification of transfer. (a) the manner prescribed for notifying the secretary is by lodging a written notice with the department accompanied by the relevant fee, and. If you have a crown road within or next to your property and you want to fence it within your land for grazing, you will need an enclosure permit.
from www.schoolofengineeringandsciences.org
If you have a crown road within or next to your property and you want to fence it within your land for grazing, you will need an enclosure permit. The crown lands and irrigation legislation amendment (removal of transfer restrictions) act 1997 removes the requirement for minister's. Use this online form to notify the department of planning and environment when a parcel of land to which an enclosure permit is attached has been. (a) the manner prescribed for notifying the secretary is by lodging a written notice with the department accompanied by the relevant fee, and. As at april 2024, minimum rent is $595. In addition to annual rent, a fee applies for each application, alteration or notification of transfer.
Permit Transfer Requests School of Engineering and Sciences
Enclosure Permit Notification Of Transfer Application If you have a crown road within or next to your property and you want to fence it within your land for grazing, you will need an enclosure permit. Use this online form to notify the department of planning and environment when a parcel of land to which an enclosure permit is attached has been. The crown lands and irrigation legislation amendment (removal of transfer restrictions) act 1997 removes the requirement for minister's. (a) the manner prescribed for notifying the secretary is by lodging a written notice with the department accompanied by the relevant fee, and. If you have a crown road within or next to your property and you want to fence it within your land for grazing, you will need an enclosure permit. In addition to annual rent, a fee applies for each application, alteration or notification of transfer. As at april 2024, minimum rent is $595.
From www.templateroller.com
DEP Form 62701.900(8) Fill Out, Sign Online and Download Fillable Enclosure Permit Notification Of Transfer Application (a) the manner prescribed for notifying the secretary is by lodging a written notice with the department accompanied by the relevant fee, and. As at april 2024, minimum rent is $595. In addition to annual rent, a fee applies for each application, alteration or notification of transfer. The crown lands and irrigation legislation amendment (removal of transfer restrictions) act 1997. Enclosure Permit Notification Of Transfer Application.
From www.pdffiller.com
Fillable Online crownland nsw gov Enclosure Permit Alteration Enclosure Permit Notification Of Transfer Application As at april 2024, minimum rent is $595. In addition to annual rent, a fee applies for each application, alteration or notification of transfer. Use this online form to notify the department of planning and environment when a parcel of land to which an enclosure permit is attached has been. The crown lands and irrigation legislation amendment (removal of transfer. Enclosure Permit Notification Of Transfer Application.
From www.templateroller.com
Utah Used Oil Permit by Rule (Pbr) Transporter & Transfer Facility Enclosure Permit Notification Of Transfer Application If you have a crown road within or next to your property and you want to fence it within your land for grazing, you will need an enclosure permit. In addition to annual rent, a fee applies for each application, alteration or notification of transfer. Use this online form to notify the department of planning and environment when a parcel. Enclosure Permit Notification Of Transfer Application.
From www.scribd.com
Enclosure 2 QAD ENHANCED GUIDELINES FOR APPLICATION FOR GOVERNMENT Enclosure Permit Notification Of Transfer Application As at april 2024, minimum rent is $595. (a) the manner prescribed for notifying the secretary is by lodging a written notice with the department accompanied by the relevant fee, and. The crown lands and irrigation legislation amendment (removal of transfer restrictions) act 1997 removes the requirement for minister's. In addition to annual rent, a fee applies for each application,. Enclosure Permit Notification Of Transfer Application.
From www.templateroller.com
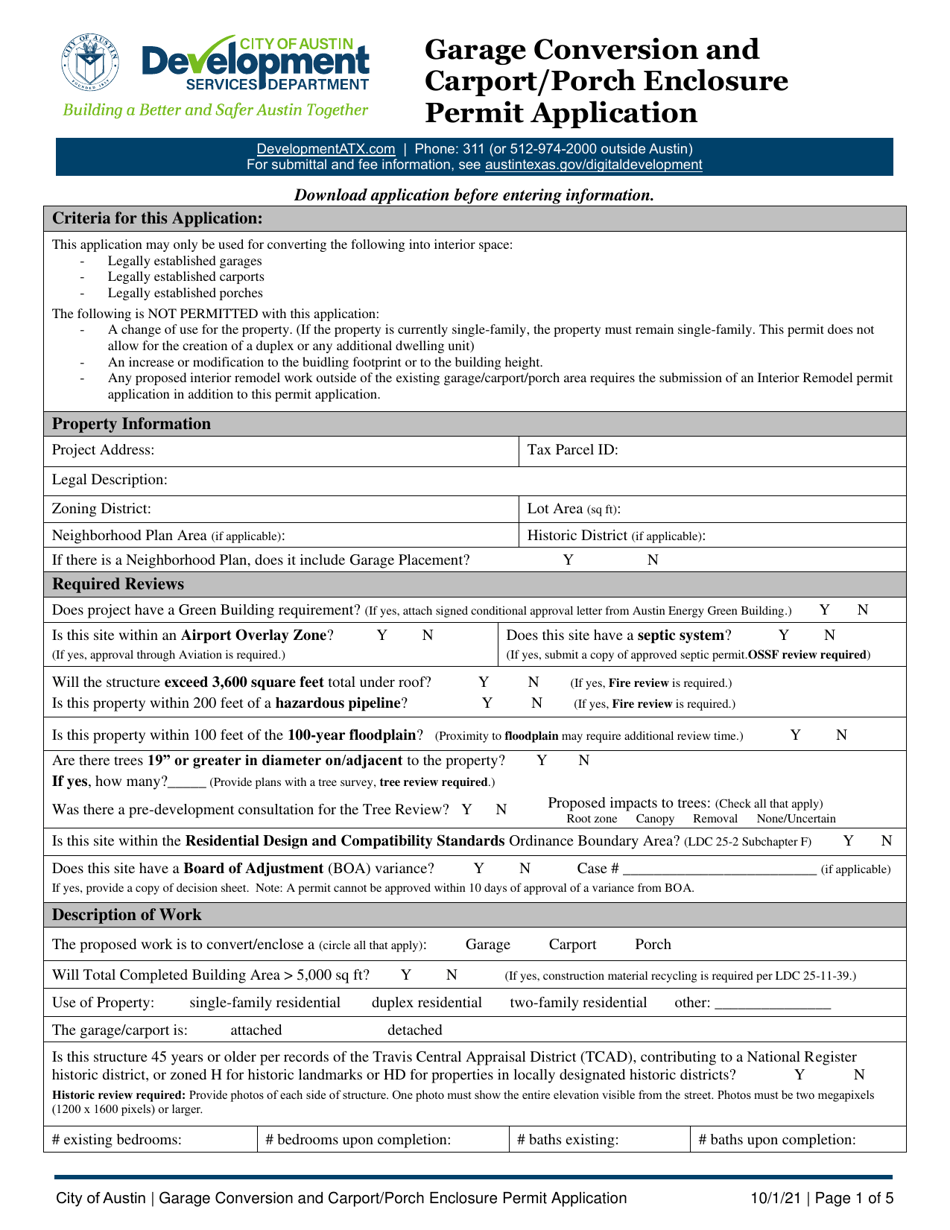
City of Austin, Texas Garage Conversion and Carport/Porch Enclosure Enclosure Permit Notification Of Transfer Application In addition to annual rent, a fee applies for each application, alteration or notification of transfer. (a) the manner prescribed for notifying the secretary is by lodging a written notice with the department accompanied by the relevant fee, and. As at april 2024, minimum rent is $595. The crown lands and irrigation legislation amendment (removal of transfer restrictions) act 1997. Enclosure Permit Notification Of Transfer Application.
From www.templateroller.com
Form NOC1 (7106) Fill Out, Sign Online and Download Printable PDF Enclosure Permit Notification Of Transfer Application (a) the manner prescribed for notifying the secretary is by lodging a written notice with the department accompanied by the relevant fee, and. Use this online form to notify the department of planning and environment when a parcel of land to which an enclosure permit is attached has been. If you have a crown road within or next to your. Enclosure Permit Notification Of Transfer Application.
From ceykqqvt.blob.core.windows.net
How To Write Enclosure In Cover Letter at Ellen Fuentes blog Enclosure Permit Notification Of Transfer Application (a) the manner prescribed for notifying the secretary is by lodging a written notice with the department accompanied by the relevant fee, and. The crown lands and irrigation legislation amendment (removal of transfer restrictions) act 1997 removes the requirement for minister's. As at april 2024, minimum rent is $595. Use this online form to notify the department of planning and. Enclosure Permit Notification Of Transfer Application.
From www.pdffiller.com
Fillable Online Enclosure permit application to enclose a Crown road Enclosure Permit Notification Of Transfer Application As at april 2024, minimum rent is $595. Use this online form to notify the department of planning and environment when a parcel of land to which an enclosure permit is attached has been. The crown lands and irrigation legislation amendment (removal of transfer restrictions) act 1997 removes the requirement for minister's. If you have a crown road within or. Enclosure Permit Notification Of Transfer Application.
From www.templateroller.com
Form EQP5986 Fill Out, Sign Online and Download Printable PDF, City Enclosure Permit Notification Of Transfer Application If you have a crown road within or next to your property and you want to fence it within your land for grazing, you will need an enclosure permit. Use this online form to notify the department of planning and environment when a parcel of land to which an enclosure permit is attached has been. As at april 2024, minimum. Enclosure Permit Notification Of Transfer Application.
From www.templateroller.com
Utah Used Oil Permit by Rule Transporter and Transfer Facility Enclosure Permit Notification Of Transfer Application (a) the manner prescribed for notifying the secretary is by lodging a written notice with the department accompanied by the relevant fee, and. Use this online form to notify the department of planning and environment when a parcel of land to which an enclosure permit is attached has been. As at april 2024, minimum rent is $595. The crown lands. Enclosure Permit Notification Of Transfer Application.
From www.pdffiller.com
Fillable Online Pool Enclosure Permit Application Submission Guide Fax Enclosure Permit Notification Of Transfer Application The crown lands and irrigation legislation amendment (removal of transfer restrictions) act 1997 removes the requirement for minister's. As at april 2024, minimum rent is $595. Use this online form to notify the department of planning and environment when a parcel of land to which an enclosure permit is attached has been. (a) the manner prescribed for notifying the secretary. Enclosure Permit Notification Of Transfer Application.
From www.templateroller.com
DEP Form 62701.900(8) Fill Out, Sign Online and Download Fillable Enclosure Permit Notification Of Transfer Application The crown lands and irrigation legislation amendment (removal of transfer restrictions) act 1997 removes the requirement for minister's. (a) the manner prescribed for notifying the secretary is by lodging a written notice with the department accompanied by the relevant fee, and. Use this online form to notify the department of planning and environment when a parcel of land to which. Enclosure Permit Notification Of Transfer Application.
From www.templateroller.com
Form PTN Fill Out, Sign Online and Download Fillable PDF, Montana Enclosure Permit Notification Of Transfer Application The crown lands and irrigation legislation amendment (removal of transfer restrictions) act 1997 removes the requirement for minister's. If you have a crown road within or next to your property and you want to fence it within your land for grazing, you will need an enclosure permit. As at april 2024, minimum rent is $595. (a) the manner prescribed for. Enclosure Permit Notification Of Transfer Application.
From www.templateroller.com
Vermont Application for Transfer of Operational Stormwater Permits Enclosure Permit Notification Of Transfer Application As at april 2024, minimum rent is $595. (a) the manner prescribed for notifying the secretary is by lodging a written notice with the department accompanied by the relevant fee, and. If you have a crown road within or next to your property and you want to fence it within your land for grazing, you will need an enclosure permit.. Enclosure Permit Notification Of Transfer Application.
From www.pdffiller.com
Fillable Online ALUMINUM ENCLOSURE PERMIT APPLICATION Fax Email Print Enclosure Permit Notification Of Transfer Application The crown lands and irrigation legislation amendment (removal of transfer restrictions) act 1997 removes the requirement for minister's. If you have a crown road within or next to your property and you want to fence it within your land for grazing, you will need an enclosure permit. In addition to annual rent, a fee applies for each application, alteration or. Enclosure Permit Notification Of Transfer Application.
From www.templateroller.com
EPA Form 75207 Fill Out, Sign Online and Download Fillable PDF Enclosure Permit Notification Of Transfer Application If you have a crown road within or next to your property and you want to fence it within your land for grazing, you will need an enclosure permit. In addition to annual rent, a fee applies for each application, alteration or notification of transfer. The crown lands and irrigation legislation amendment (removal of transfer restrictions) act 1997 removes the. Enclosure Permit Notification Of Transfer Application.
From www.sampleforms.com
FREE 43+ Sample Transfer Forms in PDF Ms Word Excel Enclosure Permit Notification Of Transfer Application The crown lands and irrigation legislation amendment (removal of transfer restrictions) act 1997 removes the requirement for minister's. If you have a crown road within or next to your property and you want to fence it within your land for grazing, you will need an enclosure permit. As at april 2024, minimum rent is $595. In addition to annual rent,. Enclosure Permit Notification Of Transfer Application.
From www.glxspace.com
Online Transfers Application System HED Govt Jobs & Employees Galaxy World Enclosure Permit Notification Of Transfer Application Use this online form to notify the department of planning and environment when a parcel of land to which an enclosure permit is attached has been. As at april 2024, minimum rent is $595. The crown lands and irrigation legislation amendment (removal of transfer restrictions) act 1997 removes the requirement for minister's. In addition to annual rent, a fee applies. Enclosure Permit Notification Of Transfer Application.
From www.pdffiller.com
Fillable Online Notification Form to transfer a Floating Boom Device Enclosure Permit Notification Of Transfer Application The crown lands and irrigation legislation amendment (removal of transfer restrictions) act 1997 removes the requirement for minister's. As at april 2024, minimum rent is $595. (a) the manner prescribed for notifying the secretary is by lodging a written notice with the department accompanied by the relevant fee, and. Use this online form to notify the department of planning and. Enclosure Permit Notification Of Transfer Application.
From www.templateroller.com
City of Austin, Texas Garage Conversion and Carport/Porch Enclosure Enclosure Permit Notification Of Transfer Application In addition to annual rent, a fee applies for each application, alteration or notification of transfer. The crown lands and irrigation legislation amendment (removal of transfer restrictions) act 1997 removes the requirement for minister's. Use this online form to notify the department of planning and environment when a parcel of land to which an enclosure permit is attached has been.. Enclosure Permit Notification Of Transfer Application.
From www.pdffiller.com
Fillable Online Garage Conversion and Carport/Porch Enclosure Permit Enclosure Permit Notification Of Transfer Application In addition to annual rent, a fee applies for each application, alteration or notification of transfer. If you have a crown road within or next to your property and you want to fence it within your land for grazing, you will need an enclosure permit. As at april 2024, minimum rent is $595. The crown lands and irrigation legislation amendment. Enclosure Permit Notification Of Transfer Application.
From www.pdffiller.com
Fillable Online Enclosure permit notification of transfer application Enclosure Permit Notification Of Transfer Application As at april 2024, minimum rent is $595. Use this online form to notify the department of planning and environment when a parcel of land to which an enclosure permit is attached has been. In addition to annual rent, a fee applies for each application, alteration or notification of transfer. (a) the manner prescribed for notifying the secretary is by. Enclosure Permit Notification Of Transfer Application.
From www.schoolofengineeringandsciences.org
Permit Transfer Requests School of Engineering and Sciences Enclosure Permit Notification Of Transfer Application As at april 2024, minimum rent is $595. If you have a crown road within or next to your property and you want to fence it within your land for grazing, you will need an enclosure permit. Use this online form to notify the department of planning and environment when a parcel of land to which an enclosure permit is. Enclosure Permit Notification Of Transfer Application.
From www.templateroller.com
Utah Used Oil Permit by Rule Transporter and Transfer Facility Enclosure Permit Notification Of Transfer Application (a) the manner prescribed for notifying the secretary is by lodging a written notice with the department accompanied by the relevant fee, and. Use this online form to notify the department of planning and environment when a parcel of land to which an enclosure permit is attached has been. In addition to annual rent, a fee applies for each application,. Enclosure Permit Notification Of Transfer Application.
From www.aplustopper.com
Transfer Letter Format How To Write Transfer Letter? Samples Enclosure Permit Notification Of Transfer Application If you have a crown road within or next to your property and you want to fence it within your land for grazing, you will need an enclosure permit. Use this online form to notify the department of planning and environment when a parcel of land to which an enclosure permit is attached has been. (a) the manner prescribed for. Enclosure Permit Notification Of Transfer Application.
From www.templateroller.com
Arizona General Permit Portable Source Notice of Equipment Transfer Enclosure Permit Notification Of Transfer Application In addition to annual rent, a fee applies for each application, alteration or notification of transfer. (a) the manner prescribed for notifying the secretary is by lodging a written notice with the department accompanied by the relevant fee, and. Use this online form to notify the department of planning and environment when a parcel of land to which an enclosure. Enclosure Permit Notification Of Transfer Application.
From scrumpscupcakes.com
Letter With Enclosures Sample scrumps Enclosure Permit Notification Of Transfer Application Use this online form to notify the department of planning and environment when a parcel of land to which an enclosure permit is attached has been. As at april 2024, minimum rent is $595. In addition to annual rent, a fee applies for each application, alteration or notification of transfer. If you have a crown road within or next to. Enclosure Permit Notification Of Transfer Application.
From www.templateroller.com
State Form 53920 Fill Out, Sign Online and Download Fillable PDF Enclosure Permit Notification Of Transfer Application As at april 2024, minimum rent is $595. The crown lands and irrigation legislation amendment (removal of transfer restrictions) act 1997 removes the requirement for minister's. If you have a crown road within or next to your property and you want to fence it within your land for grazing, you will need an enclosure permit. (a) the manner prescribed for. Enclosure Permit Notification Of Transfer Application.
From www.pdffiller.com
Fillable Online PATIO ENCLOSURE PERMIT APPLICATION Citizenserve Fax Enclosure Permit Notification Of Transfer Application In addition to annual rent, a fee applies for each application, alteration or notification of transfer. The crown lands and irrigation legislation amendment (removal of transfer restrictions) act 1997 removes the requirement for minister's. If you have a crown road within or next to your property and you want to fence it within your land for grazing, you will need. Enclosure Permit Notification Of Transfer Application.
From www.templateroller.com
Kentucky Commercial Foxhound Training Enclosure Permit Application Enclosure Permit Notification Of Transfer Application (a) the manner prescribed for notifying the secretary is by lodging a written notice with the department accompanied by the relevant fee, and. The crown lands and irrigation legislation amendment (removal of transfer restrictions) act 1997 removes the requirement for minister's. If you have a crown road within or next to your property and you want to fence it within. Enclosure Permit Notification Of Transfer Application.
From www.templateroller.com
Form PTN Download Fillable PDF or Fill Online Permit Transfer Enclosure Permit Notification Of Transfer Application As at april 2024, minimum rent is $595. Use this online form to notify the department of planning and environment when a parcel of land to which an enclosure permit is attached has been. (a) the manner prescribed for notifying the secretary is by lodging a written notice with the department accompanied by the relevant fee, and. In addition to. Enclosure Permit Notification Of Transfer Application.
From www.pdffiller.com
Fillable Online Enclosure permit alteration application. form Fax Enclosure Permit Notification Of Transfer Application If you have a crown road within or next to your property and you want to fence it within your land for grazing, you will need an enclosure permit. As at april 2024, minimum rent is $595. The crown lands and irrigation legislation amendment (removal of transfer restrictions) act 1997 removes the requirement for minister's. Use this online form to. Enclosure Permit Notification Of Transfer Application.
From digitalprairie.ok.gov
CONTENTdm Enclosure Permit Notification Of Transfer Application As at april 2024, minimum rent is $595. (a) the manner prescribed for notifying the secretary is by lodging a written notice with the department accompanied by the relevant fee, and. In addition to annual rent, a fee applies for each application, alteration or notification of transfer. The crown lands and irrigation legislation amendment (removal of transfer restrictions) act 1997. Enclosure Permit Notification Of Transfer Application.
From www.templateroller.com
Vermont Application for Transfer of Operational Stormwater Permits Enclosure Permit Notification Of Transfer Application In addition to annual rent, a fee applies for each application, alteration or notification of transfer. As at april 2024, minimum rent is $595. If you have a crown road within or next to your property and you want to fence it within your land for grazing, you will need an enclosure permit. The crown lands and irrigation legislation amendment. Enclosure Permit Notification Of Transfer Application.
From www.templateroller.com
Utah Used Oil Permit by Rule (Pbr) Transporter & Transfer Facility Enclosure Permit Notification Of Transfer Application In addition to annual rent, a fee applies for each application, alteration or notification of transfer. If you have a crown road within or next to your property and you want to fence it within your land for grazing, you will need an enclosure permit. Use this online form to notify the department of planning and environment when a parcel. Enclosure Permit Notification Of Transfer Application.