Land Disturbance Permit Missouri . A land disturbance permit is a document required by the state of missouri for construction sites that disturb large amounts of land. A land disturbance permit is required for all sites disturbing 1 acre or more, or sites that disturb less than 1 acre when part of a larger common plan of development or sale that will. In addition to the county permit, a permit issued by the missouri department of natural resources (mdnr) is required to be obtained for land. The following information shall be submitted for a residential ordinary land disturbance permit (disturbance less than 1 acre or 43,560 square.
from issuu.com
The following information shall be submitted for a residential ordinary land disturbance permit (disturbance less than 1 acre or 43,560 square. A land disturbance permit is a document required by the state of missouri for construction sites that disturb large amounts of land. A land disturbance permit is required for all sites disturbing 1 acre or more, or sites that disturb less than 1 acre when part of a larger common plan of development or sale that will. In addition to the county permit, a permit issued by the missouri department of natural resources (mdnr) is required to be obtained for land.
MODNR Land Disturbance Permit St. Louis County by STLCOGOV Issuu
Land Disturbance Permit Missouri In addition to the county permit, a permit issued by the missouri department of natural resources (mdnr) is required to be obtained for land. The following information shall be submitted for a residential ordinary land disturbance permit (disturbance less than 1 acre or 43,560 square. A land disturbance permit is required for all sites disturbing 1 acre or more, or sites that disturb less than 1 acre when part of a larger common plan of development or sale that will. A land disturbance permit is a document required by the state of missouri for construction sites that disturb large amounts of land. In addition to the county permit, a permit issued by the missouri department of natural resources (mdnr) is required to be obtained for land.
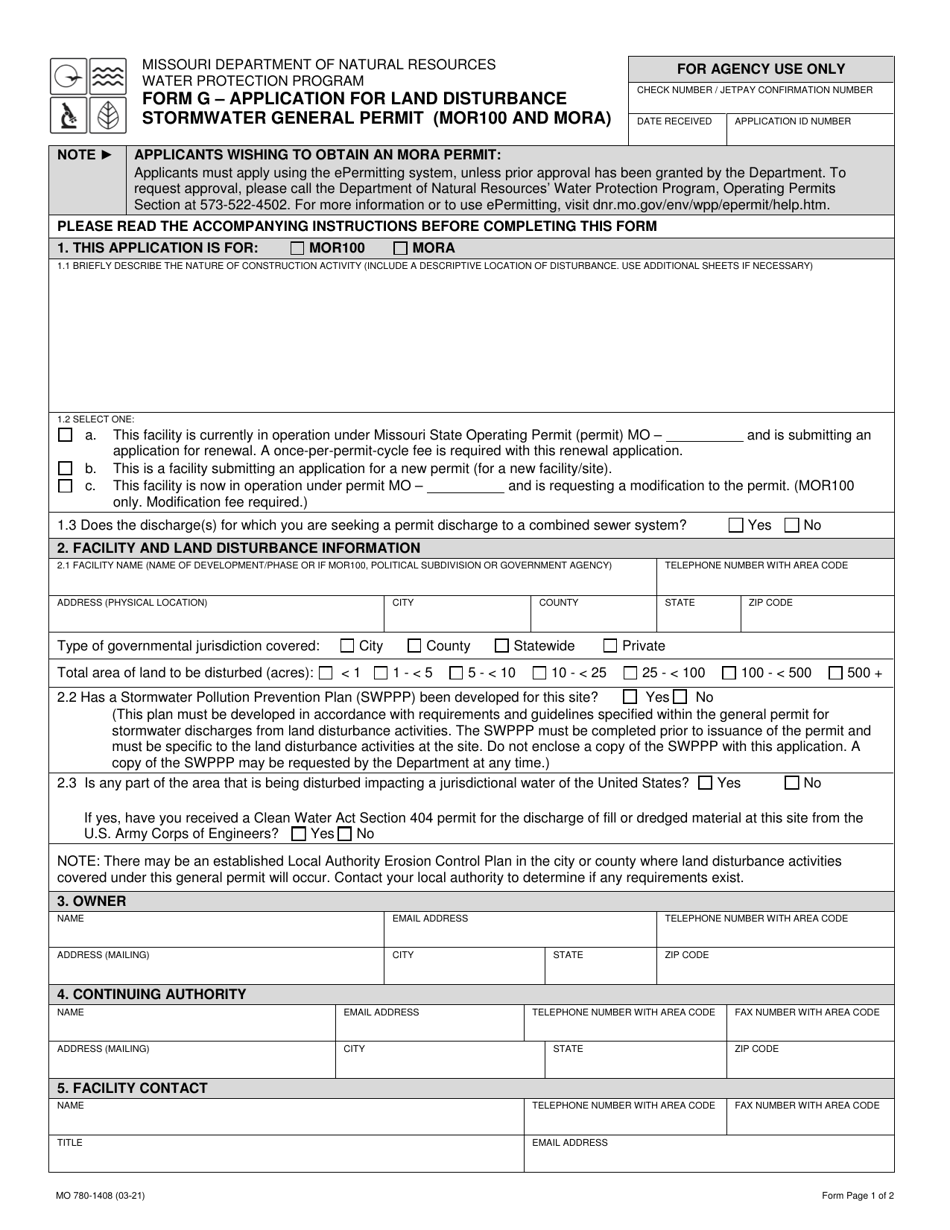
From www.templateroller.com
Form MO7801408 (G) Fill Out, Sign Online and Download Fillable PDF Land Disturbance Permit Missouri In addition to the county permit, a permit issued by the missouri department of natural resources (mdnr) is required to be obtained for land. The following information shall be submitted for a residential ordinary land disturbance permit (disturbance less than 1 acre or 43,560 square. A land disturbance permit is a document required by the state of missouri for construction. Land Disturbance Permit Missouri.
From www.pdffiller.com
Fillable Online LAND DISTURBANCE PERMIT / MAJOR SUBDIVISION REVIEW Land Disturbance Permit Missouri A land disturbance permit is required for all sites disturbing 1 acre or more, or sites that disturb less than 1 acre when part of a larger common plan of development or sale that will. A land disturbance permit is a document required by the state of missouri for construction sites that disturb large amounts of land. In addition to. Land Disturbance Permit Missouri.
From www.pdffiller.com
Fillable Online LAND DISTURBANCE PERMIT (LDP) PRESCREEN FORM Fax Email Land Disturbance Permit Missouri In addition to the county permit, a permit issued by the missouri department of natural resources (mdnr) is required to be obtained for land. The following information shall be submitted for a residential ordinary land disturbance permit (disturbance less than 1 acre or 43,560 square. A land disturbance permit is a document required by the state of missouri for construction. Land Disturbance Permit Missouri.
From www.signnow.com
LAND DISTURBANCE PERMIT APPLICATION & CHECKLIST Fill Out and Sign Land Disturbance Permit Missouri A land disturbance permit is required for all sites disturbing 1 acre or more, or sites that disturb less than 1 acre when part of a larger common plan of development or sale that will. The following information shall be submitted for a residential ordinary land disturbance permit (disturbance less than 1 acre or 43,560 square. A land disturbance permit. Land Disturbance Permit Missouri.
From issuu.com
MODNR Land Disturbance Permit St. Louis County by STLCOGOV Issuu Land Disturbance Permit Missouri A land disturbance permit is required for all sites disturbing 1 acre or more, or sites that disturb less than 1 acre when part of a larger common plan of development or sale that will. The following information shall be submitted for a residential ordinary land disturbance permit (disturbance less than 1 acre or 43,560 square. In addition to the. Land Disturbance Permit Missouri.
From studylib.net
Land Disturbance Permit Application Land Disturbance Permit Missouri A land disturbance permit is required for all sites disturbing 1 acre or more, or sites that disturb less than 1 acre when part of a larger common plan of development or sale that will. In addition to the county permit, a permit issued by the missouri department of natural resources (mdnr) is required to be obtained for land. The. Land Disturbance Permit Missouri.
From www.youtube.com
Get the scoop on The State of Missouri updated 2022 Land Disturbance Land Disturbance Permit Missouri A land disturbance permit is a document required by the state of missouri for construction sites that disturb large amounts of land. A land disturbance permit is required for all sites disturbing 1 acre or more, or sites that disturb less than 1 acre when part of a larger common plan of development or sale that will. In addition to. Land Disturbance Permit Missouri.
From fill.io
Fill Free fillable Boone County, Missouri PDF forms Land Disturbance Permit Missouri The following information shall be submitted for a residential ordinary land disturbance permit (disturbance less than 1 acre or 43,560 square. In addition to the county permit, a permit issued by the missouri department of natural resources (mdnr) is required to be obtained for land. A land disturbance permit is required for all sites disturbing 1 acre or more, or. Land Disturbance Permit Missouri.
From www.pdffiller.com
Fillable Online This Land Disturbance Permit application packet Land Disturbance Permit Missouri A land disturbance permit is a document required by the state of missouri for construction sites that disturb large amounts of land. In addition to the county permit, a permit issued by the missouri department of natural resources (mdnr) is required to be obtained for land. A land disturbance permit is required for all sites disturbing 1 acre or more,. Land Disturbance Permit Missouri.
From www.templateroller.com
Form MO7801408 (G) Fill Out, Sign Online and Download Fillable PDF Land Disturbance Permit Missouri A land disturbance permit is required for all sites disturbing 1 acre or more, or sites that disturb less than 1 acre when part of a larger common plan of development or sale that will. In addition to the county permit, a permit issued by the missouri department of natural resources (mdnr) is required to be obtained for land. The. Land Disturbance Permit Missouri.
From www.pdffiller.com
civil plan review/land disturbance permit checklist Doc Template Land Disturbance Permit Missouri The following information shall be submitted for a residential ordinary land disturbance permit (disturbance less than 1 acre or 43,560 square. A land disturbance permit is required for all sites disturbing 1 acre or more, or sites that disturb less than 1 acre when part of a larger common plan of development or sale that will. A land disturbance permit. Land Disturbance Permit Missouri.
From www.pdffiller.com
Fillable Online IMPROVEMENT LOCATION/LAND DISTURBANCE PERMIT Fax Email Land Disturbance Permit Missouri A land disturbance permit is a document required by the state of missouri for construction sites that disturb large amounts of land. The following information shall be submitted for a residential ordinary land disturbance permit (disturbance less than 1 acre or 43,560 square. In addition to the county permit, a permit issued by the missouri department of natural resources (mdnr). Land Disturbance Permit Missouri.
From www.pdffiller.com
Fillable Online Land Disturbance Permits to Now be Processed by the Land Disturbance Permit Missouri In addition to the county permit, a permit issued by the missouri department of natural resources (mdnr) is required to be obtained for land. A land disturbance permit is a document required by the state of missouri for construction sites that disturb large amounts of land. A land disturbance permit is required for all sites disturbing 1 acre or more,. Land Disturbance Permit Missouri.
From www.formsbank.com
Fillable Land Disturbance Permit Application Form Greenville County Land Disturbance Permit Missouri The following information shall be submitted for a residential ordinary land disturbance permit (disturbance less than 1 acre or 43,560 square. A land disturbance permit is required for all sites disturbing 1 acre or more, or sites that disturb less than 1 acre when part of a larger common plan of development or sale that will. In addition to the. Land Disturbance Permit Missouri.
From www.templateroller.com
Form G (MO7801408) Download Fillable PDF or Fill Online Application Land Disturbance Permit Missouri A land disturbance permit is a document required by the state of missouri for construction sites that disturb large amounts of land. In addition to the county permit, a permit issued by the missouri department of natural resources (mdnr) is required to be obtained for land. The following information shall be submitted for a residential ordinary land disturbance permit (disturbance. Land Disturbance Permit Missouri.
From www.templateroller.com
Form G (MO7801408) Download Fillable PDF or Fill Online Application Land Disturbance Permit Missouri The following information shall be submitted for a residential ordinary land disturbance permit (disturbance less than 1 acre or 43,560 square. In addition to the county permit, a permit issued by the missouri department of natural resources (mdnr) is required to be obtained for land. A land disturbance permit is a document required by the state of missouri for construction. Land Disturbance Permit Missouri.
From www.youtube.com
Land Disturbance Permits in a Common Plan of Development for Boone Land Disturbance Permit Missouri A land disturbance permit is a document required by the state of missouri for construction sites that disturb large amounts of land. In addition to the county permit, a permit issued by the missouri department of natural resources (mdnr) is required to be obtained for land. A land disturbance permit is required for all sites disturbing 1 acre or more,. Land Disturbance Permit Missouri.
From www.pdffiller.com
Fillable Online Early Grading/Land Disturbance Permit Application Fax Land Disturbance Permit Missouri The following information shall be submitted for a residential ordinary land disturbance permit (disturbance less than 1 acre or 43,560 square. In addition to the county permit, a permit issued by the missouri department of natural resources (mdnr) is required to be obtained for land. A land disturbance permit is a document required by the state of missouri for construction. Land Disturbance Permit Missouri.
From www.springfieldmo.gov
Land Disturbance Permit Springfield, MO Official site Land Disturbance Permit Missouri In addition to the county permit, a permit issued by the missouri department of natural resources (mdnr) is required to be obtained for land. A land disturbance permit is a document required by the state of missouri for construction sites that disturb large amounts of land. The following information shall be submitted for a residential ordinary land disturbance permit (disturbance. Land Disturbance Permit Missouri.
From www.signnow.com
Land Disturbance Permit 20172024 Form Fill Out and Sign Printable Land Disturbance Permit Missouri A land disturbance permit is a document required by the state of missouri for construction sites that disturb large amounts of land. A land disturbance permit is required for all sites disturbing 1 acre or more, or sites that disturb less than 1 acre when part of a larger common plan of development or sale that will. The following information. Land Disturbance Permit Missouri.
From www.templateroller.com
Form MO7801408 (G) Fill Out, Sign Online and Download Fillable PDF Land Disturbance Permit Missouri A land disturbance permit is a document required by the state of missouri for construction sites that disturb large amounts of land. In addition to the county permit, a permit issued by the missouri department of natural resources (mdnr) is required to be obtained for land. The following information shall be submitted for a residential ordinary land disturbance permit (disturbance. Land Disturbance Permit Missouri.
From www.pdffiller.com
city of belle meade land disturbance permit application Doc Template Land Disturbance Permit Missouri The following information shall be submitted for a residential ordinary land disturbance permit (disturbance less than 1 acre or 43,560 square. A land disturbance permit is a document required by the state of missouri for construction sites that disturb large amounts of land. In addition to the county permit, a permit issued by the missouri department of natural resources (mdnr). Land Disturbance Permit Missouri.
From www.scribd.com
DeKalb County Land Disturbance Permit Review For Cop City PDF Flood Land Disturbance Permit Missouri In addition to the county permit, a permit issued by the missouri department of natural resources (mdnr) is required to be obtained for land. The following information shall be submitted for a residential ordinary land disturbance permit (disturbance less than 1 acre or 43,560 square. A land disturbance permit is required for all sites disturbing 1 acre or more, or. Land Disturbance Permit Missouri.
From www.pdffiller.com
Fillable Online Land Disturbance Permit Application Fax Email Print Land Disturbance Permit Missouri A land disturbance permit is a document required by the state of missouri for construction sites that disturb large amounts of land. The following information shall be submitted for a residential ordinary land disturbance permit (disturbance less than 1 acre or 43,560 square. A land disturbance permit is required for all sites disturbing 1 acre or more, or sites that. Land Disturbance Permit Missouri.
From www.pdffiller.com
Fillable Online land disturbance permit application Atlantic Beach Land Disturbance Permit Missouri A land disturbance permit is required for all sites disturbing 1 acre or more, or sites that disturb less than 1 acre when part of a larger common plan of development or sale that will. A land disturbance permit is a document required by the state of missouri for construction sites that disturb large amounts of land. In addition to. Land Disturbance Permit Missouri.
From www.demarrengineering.com
Fairfax County’s Stormwater Management (SWM) Requirements DeMarr Land Disturbance Permit Missouri In addition to the county permit, a permit issued by the missouri department of natural resources (mdnr) is required to be obtained for land. A land disturbance permit is a document required by the state of missouri for construction sites that disturb large amounts of land. The following information shall be submitted for a residential ordinary land disturbance permit (disturbance. Land Disturbance Permit Missouri.
From www.pdffiller.com
Fillable Online Request for Termination of a Land Disturbance Permit Land Disturbance Permit Missouri In addition to the county permit, a permit issued by the missouri department of natural resources (mdnr) is required to be obtained for land. A land disturbance permit is required for all sites disturbing 1 acre or more, or sites that disturb less than 1 acre when part of a larger common plan of development or sale that will. The. Land Disturbance Permit Missouri.
From www.pdffiller.com
Fillable Online claytonmo Land Disturbance Permit and SWPPP Checklist Land Disturbance Permit Missouri In addition to the county permit, a permit issued by the missouri department of natural resources (mdnr) is required to be obtained for land. A land disturbance permit is required for all sites disturbing 1 acre or more, or sites that disturb less than 1 acre when part of a larger common plan of development or sale that will. The. Land Disturbance Permit Missouri.
From www.pdffiller.com
Fillable Online fill.ioLandDisturbancePermitFill Free fillable Land Land Disturbance Permit Missouri A land disturbance permit is required for all sites disturbing 1 acre or more, or sites that disturb less than 1 acre when part of a larger common plan of development or sale that will. The following information shall be submitted for a residential ordinary land disturbance permit (disturbance less than 1 acre or 43,560 square. A land disturbance permit. Land Disturbance Permit Missouri.
From fill.io
Fill Free fillable Land Disturbance Permit Application (Boone County Land Disturbance Permit Missouri In addition to the county permit, a permit issued by the missouri department of natural resources (mdnr) is required to be obtained for land. The following information shall be submitted for a residential ordinary land disturbance permit (disturbance less than 1 acre or 43,560 square. A land disturbance permit is required for all sites disturbing 1 acre or more, or. Land Disturbance Permit Missouri.
From www.pdffiller.com
Fillable Online LAND DISTURBANCE/ STORMWATER MANAGEMENT PERMIT Fax Land Disturbance Permit Missouri The following information shall be submitted for a residential ordinary land disturbance permit (disturbance less than 1 acre or 43,560 square. A land disturbance permit is required for all sites disturbing 1 acre or more, or sites that disturb less than 1 acre when part of a larger common plan of development or sale that will. In addition to the. Land Disturbance Permit Missouri.
From www.templateroller.com
Form G (MO7801408) Download Fillable PDF or Fill Online Application Land Disturbance Permit Missouri The following information shall be submitted for a residential ordinary land disturbance permit (disturbance less than 1 acre or 43,560 square. A land disturbance permit is required for all sites disturbing 1 acre or more, or sites that disturb less than 1 acre when part of a larger common plan of development or sale that will. A land disturbance permit. Land Disturbance Permit Missouri.
From www.templateroller.com
Form G (MO7801408) Download Fillable PDF or Fill Online Application Land Disturbance Permit Missouri The following information shall be submitted for a residential ordinary land disturbance permit (disturbance less than 1 acre or 43,560 square. A land disturbance permit is a document required by the state of missouri for construction sites that disturb large amounts of land. In addition to the county permit, a permit issued by the missouri department of natural resources (mdnr). Land Disturbance Permit Missouri.
From fill.io
Fill Free fillable Land Disturbance Permit Application (Boone County Land Disturbance Permit Missouri The following information shall be submitted for a residential ordinary land disturbance permit (disturbance less than 1 acre or 43,560 square. A land disturbance permit is a document required by the state of missouri for construction sites that disturb large amounts of land. In addition to the county permit, a permit issued by the missouri department of natural resources (mdnr). Land Disturbance Permit Missouri.
From www.pdffiller.com
Fillable Online building inspection department land disturbance permit Land Disturbance Permit Missouri A land disturbance permit is required for all sites disturbing 1 acre or more, or sites that disturb less than 1 acre when part of a larger common plan of development or sale that will. In addition to the county permit, a permit issued by the missouri department of natural resources (mdnr) is required to be obtained for land. The. Land Disturbance Permit Missouri.