Conrad Farms Lewisville Nc . Conrad farm is an exciting new development in the pfafftown lewisville area of north carolina. This group is for current. Calabash is a 4 bedroom, 3 bathroom, from 2,713 sqft new single family home floor plan at conrad farm located in lewisville, nc. View 41 photos for 7168 conrad farm rd, pfafftown, nc 27040, a 4 bed, 3 bath, 2,728 sq. View images and get all size and pricing details at livabl. Conrad farm is a neighborhood of homes in lewisville north carolina offering an assortment of beautiful styles, varying sizes and affordable. The historic conrad family farmhouse (circa 1850's) located on the iconic. 7575 benwicke court is a 3 bedroom houses unit at conrad farm. Single family home built in 2020 that was last. Residence 1940 spring wind road is a 4 bedroom, 3 bathroom, 3,123 sqft new single family home at conrad farm located in lewisville, nc. New plans are moving forward for a section of conrad road in lewisville, with two sets of residential estates as the primary focus rather than a tightly. Once in a lifetime opportunity to own a landmark in lewisville, nc!
from www.realtor.com
Once in a lifetime opportunity to own a landmark in lewisville, nc! The historic conrad family farmhouse (circa 1850's) located on the iconic. New plans are moving forward for a section of conrad road in lewisville, with two sets of residential estates as the primary focus rather than a tightly. View 41 photos for 7168 conrad farm rd, pfafftown, nc 27040, a 4 bed, 3 bath, 2,728 sq. Conrad farm is an exciting new development in the pfafftown lewisville area of north carolina. This group is for current. Single family home built in 2020 that was last. View images and get all size and pricing details at livabl. 7575 benwicke court is a 3 bedroom houses unit at conrad farm. Conrad farm is a neighborhood of homes in lewisville north carolina offering an assortment of beautiful styles, varying sizes and affordable.
Conrad Rd, Lewisville, NC 27023
Conrad Farms Lewisville Nc New plans are moving forward for a section of conrad road in lewisville, with two sets of residential estates as the primary focus rather than a tightly. Conrad farm is an exciting new development in the pfafftown lewisville area of north carolina. New plans are moving forward for a section of conrad road in lewisville, with two sets of residential estates as the primary focus rather than a tightly. This group is for current. View 41 photos for 7168 conrad farm rd, pfafftown, nc 27040, a 4 bed, 3 bath, 2,728 sq. Residence 1940 spring wind road is a 4 bedroom, 3 bathroom, 3,123 sqft new single family home at conrad farm located in lewisville, nc. 7575 benwicke court is a 3 bedroom houses unit at conrad farm. The historic conrad family farmhouse (circa 1850's) located on the iconic. Conrad farm is a neighborhood of homes in lewisville north carolina offering an assortment of beautiful styles, varying sizes and affordable. View images and get all size and pricing details at livabl. Single family home built in 2020 that was last. Calabash is a 4 bedroom, 3 bathroom, from 2,713 sqft new single family home floor plan at conrad farm located in lewisville, nc. Once in a lifetime opportunity to own a landmark in lewisville, nc!
From www.clemmonscourier.net
Lewisville housing market ‘explosive’ clemmonscourier clemmonscourier Conrad Farms Lewisville Nc Calabash is a 4 bedroom, 3 bathroom, from 2,713 sqft new single family home floor plan at conrad farm located in lewisville, nc. This group is for current. View images and get all size and pricing details at livabl. Conrad farm is an exciting new development in the pfafftown lewisville area of north carolina. 7575 benwicke court is a 3. Conrad Farms Lewisville Nc.
From www.redfin.com
146 Conrad Rd, Lewisville, NC 27023 MLS 1084801 Redfin Conrad Farms Lewisville Nc Conrad farm is an exciting new development in the pfafftown lewisville area of north carolina. The historic conrad family farmhouse (circa 1850's) located on the iconic. 7575 benwicke court is a 3 bedroom houses unit at conrad farm. This group is for current. Single family home built in 2020 that was last. Residence 1940 spring wind road is a 4. Conrad Farms Lewisville Nc.
From www.bizjournals.com
Developer plans to break ground soon on Conrad Farm in Lewisville Conrad Farms Lewisville Nc Conrad farm is a neighborhood of homes in lewisville north carolina offering an assortment of beautiful styles, varying sizes and affordable. 7575 benwicke court is a 3 bedroom houses unit at conrad farm. Conrad farm is an exciting new development in the pfafftown lewisville area of north carolina. This group is for current. Once in a lifetime opportunity to own. Conrad Farms Lewisville Nc.
From www.coldwellbankerhomes.com
Lot 1 Conrad Estates Conrad Rd, Lewisville, NC 27023 MLS 1099016 Conrad Farms Lewisville Nc This group is for current. Once in a lifetime opportunity to own a landmark in lewisville, nc! 7575 benwicke court is a 3 bedroom houses unit at conrad farm. The historic conrad family farmhouse (circa 1850's) located on the iconic. Residence 1940 spring wind road is a 4 bedroom, 3 bathroom, 3,123 sqft new single family home at conrad farm. Conrad Farms Lewisville Nc.
From www.realtor.com
Conrad Rd, Lewisville, NC 27023 Conrad Farms Lewisville Nc Conrad farm is a neighborhood of homes in lewisville north carolina offering an assortment of beautiful styles, varying sizes and affordable. New plans are moving forward for a section of conrad road in lewisville, with two sets of residential estates as the primary focus rather than a tightly. This group is for current. The historic conrad family farmhouse (circa 1850's). Conrad Farms Lewisville Nc.
From www.realtor.com
Conrad Rd, Lewisville, NC 27023 Conrad Farms Lewisville Nc View 41 photos for 7168 conrad farm rd, pfafftown, nc 27040, a 4 bed, 3 bath, 2,728 sq. View images and get all size and pricing details at livabl. Calabash is a 4 bedroom, 3 bathroom, from 2,713 sqft new single family home floor plan at conrad farm located in lewisville, nc. Residence 1940 spring wind road is a 4. Conrad Farms Lewisville Nc.
From photos.nextdoor.com
Conrad Farms, Pfafftown News, Crime, Lost Pets, Free Stuff Conrad Farms Lewisville Nc Calabash is a 4 bedroom, 3 bathroom, from 2,713 sqft new single family home floor plan at conrad farm located in lewisville, nc. Conrad farm is an exciting new development in the pfafftown lewisville area of north carolina. Single family home built in 2020 that was last. Residence 1940 spring wind road is a 4 bedroom, 3 bathroom, 3,123 sqft. Conrad Farms Lewisville Nc.
From www.photohound.co
Image of Conrad Road Farm by Joe Becker 1008003 Conrad Farms Lewisville Nc Conrad farm is a neighborhood of homes in lewisville north carolina offering an assortment of beautiful styles, varying sizes and affordable. Residence 1940 spring wind road is a 4 bedroom, 3 bathroom, 3,123 sqft new single family home at conrad farm located in lewisville, nc. View 41 photos for 7168 conrad farm rd, pfafftown, nc 27040, a 4 bed, 3. Conrad Farms Lewisville Nc.
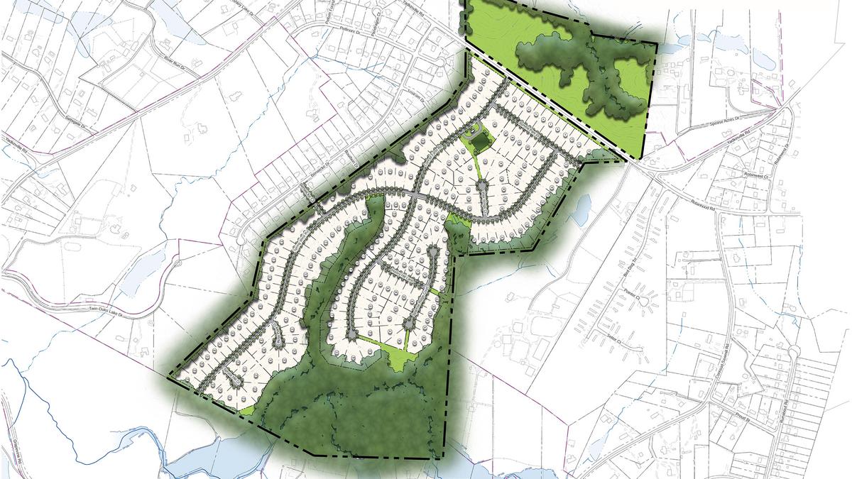
From www.labellapc.com
Conrad Farm Residential Neighborhood LaBella Conrad Farms Lewisville Nc Calabash is a 4 bedroom, 3 bathroom, from 2,713 sqft new single family home floor plan at conrad farm located in lewisville, nc. View 41 photos for 7168 conrad farm rd, pfafftown, nc 27040, a 4 bed, 3 bath, 2,728 sq. New plans are moving forward for a section of conrad road in lewisville, with two sets of residential estates. Conrad Farms Lewisville Nc.
From piedmonthistorichomes.com
Farms and Homes with Acreage Piedmont Historic Homes Conrad Farms Lewisville Nc View images and get all size and pricing details at livabl. View 41 photos for 7168 conrad farm rd, pfafftown, nc 27040, a 4 bed, 3 bath, 2,728 sq. Single family home built in 2020 that was last. Once in a lifetime opportunity to own a landmark in lewisville, nc! Conrad farm is an exciting new development in the pfafftown. Conrad Farms Lewisville Nc.
From www.kw.com
7111 Conrad Farm Road, Pfafftown, NC 27040 Conrad Farms Lewisville Nc Once in a lifetime opportunity to own a landmark in lewisville, nc! This group is for current. Conrad farm is an exciting new development in the pfafftown lewisville area of north carolina. View 41 photos for 7168 conrad farm rd, pfafftown, nc 27040, a 4 bed, 3 bath, 2,728 sq. 7575 benwicke court is a 3 bedroom houses unit at. Conrad Farms Lewisville Nc.
From www.realtor.com
Conrad Rd, Lewisville, NC 27023 Conrad Farms Lewisville Nc The historic conrad family farmhouse (circa 1850's) located on the iconic. Calabash is a 4 bedroom, 3 bathroom, from 2,713 sqft new single family home floor plan at conrad farm located in lewisville, nc. Residence 1940 spring wind road is a 4 bedroom, 3 bathroom, 3,123 sqft new single family home at conrad farm located in lewisville, nc. Once in. Conrad Farms Lewisville Nc.
From www.realtor.com
Conrad Rd, Lewisville, NC 27023 Conrad Farms Lewisville Nc Once in a lifetime opportunity to own a landmark in lewisville, nc! Conrad farm is a neighborhood of homes in lewisville north carolina offering an assortment of beautiful styles, varying sizes and affordable. Calabash is a 4 bedroom, 3 bathroom, from 2,713 sqft new single family home floor plan at conrad farm located in lewisville, nc. Single family home built. Conrad Farms Lewisville Nc.
From www.realtor.com
Conrad Rd, Lewisville, NC 27023 Conrad Farms Lewisville Nc View images and get all size and pricing details at livabl. New plans are moving forward for a section of conrad road in lewisville, with two sets of residential estates as the primary focus rather than a tightly. Once in a lifetime opportunity to own a landmark in lewisville, nc! Single family home built in 2020 that was last. Residence. Conrad Farms Lewisville Nc.
From www.redfin.com
Lot 6 Conrad Estates Conrad Rd, Lewisville, NC 27023 MLS 1140904 Conrad Farms Lewisville Nc Calabash is a 4 bedroom, 3 bathroom, from 2,713 sqft new single family home floor plan at conrad farm located in lewisville, nc. Residence 1940 spring wind road is a 4 bedroom, 3 bathroom, 3,123 sqft new single family home at conrad farm located in lewisville, nc. Conrad farm is a neighborhood of homes in lewisville north carolina offering an. Conrad Farms Lewisville Nc.
From www.clemmonscourier.net
Lewisville housing market ‘explosive’ clemmonscourier clemmonscourier Conrad Farms Lewisville Nc 7575 benwicke court is a 3 bedroom houses unit at conrad farm. Single family home built in 2020 that was last. View 41 photos for 7168 conrad farm rd, pfafftown, nc 27040, a 4 bed, 3 bath, 2,728 sq. View images and get all size and pricing details at livabl. The historic conrad family farmhouse (circa 1850's) located on the. Conrad Farms Lewisville Nc.
From www.trulia.com
Lot 5 Conrad Estates Rd, Lewisville, NC 27023 MLS 1109427 Trulia Conrad Farms Lewisville Nc New plans are moving forward for a section of conrad road in lewisville, with two sets of residential estates as the primary focus rather than a tightly. This group is for current. The historic conrad family farmhouse (circa 1850's) located on the iconic. View images and get all size and pricing details at livabl. Single family home built in 2020. Conrad Farms Lewisville Nc.
From www.redfin.com
111 Conrad Rd, Lewisville, NC 27023 MLS 888144 Redfin Conrad Farms Lewisville Nc The historic conrad family farmhouse (circa 1850's) located on the iconic. New plans are moving forward for a section of conrad road in lewisville, with two sets of residential estates as the primary focus rather than a tightly. This group is for current. Conrad farm is an exciting new development in the pfafftown lewisville area of north carolina. 7575 benwicke. Conrad Farms Lewisville Nc.
From www.realtor.com
Conrad Rd, Lewisville, NC 27023 Conrad Farms Lewisville Nc Single family home built in 2020 that was last. The historic conrad family farmhouse (circa 1850's) located on the iconic. Calabash is a 4 bedroom, 3 bathroom, from 2,713 sqft new single family home floor plan at conrad farm located in lewisville, nc. New plans are moving forward for a section of conrad road in lewisville, with two sets of. Conrad Farms Lewisville Nc.
From blog.ncagr.gov
Flourishing Flowers at Conrad Farms In the Field Conrad Farms Lewisville Nc Conrad farm is a neighborhood of homes in lewisville north carolina offering an assortment of beautiful styles, varying sizes and affordable. The historic conrad family farmhouse (circa 1850's) located on the iconic. 7575 benwicke court is a 3 bedroom houses unit at conrad farm. View images and get all size and pricing details at livabl. Residence 1940 spring wind road. Conrad Farms Lewisville Nc.
From www.zillow.com
0 Conrad Rd, Lewisville, NC 27023 MLS 1050139 Zillow Conrad Farms Lewisville Nc Conrad farm is an exciting new development in the pfafftown lewisville area of north carolina. Residence 1940 spring wind road is a 4 bedroom, 3 bathroom, 3,123 sqft new single family home at conrad farm located in lewisville, nc. Once in a lifetime opportunity to own a landmark in lewisville, nc! View images and get all size and pricing details. Conrad Farms Lewisville Nc.
From www.coldwellbankerhomes.com
7168 Conrad Farm Rd, Pfafftown, NC 27040 MLS 1081314 Coldwell Banker Conrad Farms Lewisville Nc New plans are moving forward for a section of conrad road in lewisville, with two sets of residential estates as the primary focus rather than a tightly. Calabash is a 4 bedroom, 3 bathroom, from 2,713 sqft new single family home floor plan at conrad farm located in lewisville, nc. The historic conrad family farmhouse (circa 1850's) located on the. Conrad Farms Lewisville Nc.
From www.loopnet.com
Conrad Rd, Lewisville, NC 27023 Land for Sale Conrad Farms Lewisville Nc Residence 1940 spring wind road is a 4 bedroom, 3 bathroom, 3,123 sqft new single family home at conrad farm located in lewisville, nc. View images and get all size and pricing details at livabl. Once in a lifetime opportunity to own a landmark in lewisville, nc! View 41 photos for 7168 conrad farm rd, pfafftown, nc 27040, a 4. Conrad Farms Lewisville Nc.
From www.trulia.com
Lot 2 Conrad Estates Rd, Lewisville, NC 27023 MLS 1099121 Trulia Conrad Farms Lewisville Nc Conrad farm is a neighborhood of homes in lewisville north carolina offering an assortment of beautiful styles, varying sizes and affordable. This group is for current. Conrad farm is an exciting new development in the pfafftown lewisville area of north carolina. Calabash is a 4 bedroom, 3 bathroom, from 2,713 sqft new single family home floor plan at conrad farm. Conrad Farms Lewisville Nc.
From www.trulia.com
870 Conrad Rd, Lewisville, NC 27023 Trulia Conrad Farms Lewisville Nc 7575 benwicke court is a 3 bedroom houses unit at conrad farm. This group is for current. View 41 photos for 7168 conrad farm rd, pfafftown, nc 27040, a 4 bed, 3 bath, 2,728 sq. New plans are moving forward for a section of conrad road in lewisville, with two sets of residential estates as the primary focus rather than. Conrad Farms Lewisville Nc.
From www.realtor.com
Conrad Rd, Lewisville, NC 27023 Conrad Farms Lewisville Nc Single family home built in 2020 that was last. View 41 photos for 7168 conrad farm rd, pfafftown, nc 27040, a 4 bed, 3 bath, 2,728 sq. Calabash is a 4 bedroom, 3 bathroom, from 2,713 sqft new single family home floor plan at conrad farm located in lewisville, nc. This group is for current. Conrad farm is a neighborhood. Conrad Farms Lewisville Nc.
From www.livabl.com
Coastal floor plan at Conrad Farm in Lewisville, NC Conrad Farms Lewisville Nc View images and get all size and pricing details at livabl. Calabash is a 4 bedroom, 3 bathroom, from 2,713 sqft new single family home floor plan at conrad farm located in lewisville, nc. 7575 benwicke court is a 3 bedroom houses unit at conrad farm. Residence 1940 spring wind road is a 4 bedroom, 3 bathroom, 3,123 sqft new. Conrad Farms Lewisville Nc.
From www.greenhavenrealty.com
Conrad Farm Pfafftown, NC Conrad Farms Lewisville Nc View images and get all size and pricing details at livabl. Single family home built in 2020 that was last. Conrad farm is a neighborhood of homes in lewisville north carolina offering an assortment of beautiful styles, varying sizes and affordable. The historic conrad family farmhouse (circa 1850's) located on the iconic. Conrad farm is an exciting new development in. Conrad Farms Lewisville Nc.
From www.loopnet.com
Conrad Rd, Lewisville, NC 27023 Land for Sale Conrad Farms Lewisville Nc View images and get all size and pricing details at livabl. The historic conrad family farmhouse (circa 1850's) located on the iconic. Once in a lifetime opportunity to own a landmark in lewisville, nc! View 41 photos for 7168 conrad farm rd, pfafftown, nc 27040, a 4 bed, 3 bath, 2,728 sq. 7575 benwicke court is a 3 bedroom houses. Conrad Farms Lewisville Nc.
From www.clemmonscourier.net
Lewisville housing market ‘explosive’ clemmonscourier clemmonscourier Conrad Farms Lewisville Nc View 41 photos for 7168 conrad farm rd, pfafftown, nc 27040, a 4 bed, 3 bath, 2,728 sq. New plans are moving forward for a section of conrad road in lewisville, with two sets of residential estates as the primary focus rather than a tightly. Once in a lifetime opportunity to own a landmark in lewisville, nc! View images and. Conrad Farms Lewisville Nc.
From www.crexi.com
Conrad Rd, Lewisville, NC 27023 Land for Sale Conrad Road Land Conrad Farms Lewisville Nc Conrad farm is an exciting new development in the pfafftown lewisville area of north carolina. The historic conrad family farmhouse (circa 1850's) located on the iconic. 7575 benwicke court is a 3 bedroom houses unit at conrad farm. This group is for current. Conrad farm is a neighborhood of homes in lewisville north carolina offering an assortment of beautiful styles,. Conrad Farms Lewisville Nc.
From www.realtor.com
Conrad Rd, Lewisville, NC 27023 Conrad Farms Lewisville Nc The historic conrad family farmhouse (circa 1850's) located on the iconic. This group is for current. View images and get all size and pricing details at livabl. View 41 photos for 7168 conrad farm rd, pfafftown, nc 27040, a 4 bed, 3 bath, 2,728 sq. Once in a lifetime opportunity to own a landmark in lewisville, nc! Single family home. Conrad Farms Lewisville Nc.
From www.realtor.com
Conrad Rd, Lewisville, NC 27023 Conrad Farms Lewisville Nc New plans are moving forward for a section of conrad road in lewisville, with two sets of residential estates as the primary focus rather than a tightly. Conrad farm is a neighborhood of homes in lewisville north carolina offering an assortment of beautiful styles, varying sizes and affordable. Conrad farm is an exciting new development in the pfafftown lewisville area. Conrad Farms Lewisville Nc.
From www.photohound.co
Image of Conrad Road Farm by Joe Becker 1008002 Conrad Farms Lewisville Nc 7575 benwicke court is a 3 bedroom houses unit at conrad farm. Once in a lifetime opportunity to own a landmark in lewisville, nc! The historic conrad family farmhouse (circa 1850's) located on the iconic. View images and get all size and pricing details at livabl. Calabash is a 4 bedroom, 3 bathroom, from 2,713 sqft new single family home. Conrad Farms Lewisville Nc.
From www.livabl.com
Conrad Farm by D.R. Horton in Lewisville NC Livabl Conrad Farms Lewisville Nc New plans are moving forward for a section of conrad road in lewisville, with two sets of residential estates as the primary focus rather than a tightly. Conrad farm is a neighborhood of homes in lewisville north carolina offering an assortment of beautiful styles, varying sizes and affordable. 7575 benwicke court is a 3 bedroom houses unit at conrad farm.. Conrad Farms Lewisville Nc.