House On Hudson River . Some of these homes are hot. Inside a new york mansion with a frank gehry roof. Zillow has 47 homes for sale in hudson ny matching hudson river. This $45 million modernist masterpiece ‘floats’ over the hudson river just 90 miles from nyc, the place comes with a helipad and float plane dock. Zillow has 1579 homes for sale in new york matching hudson river. View listing photos, review sales history, and use our detailed real. View listing photos, review sales history, and use our detailed real. There are currently 947 homes for sale matching hudson river in new york at a median listing price of $925k. Today ad travels 2 hours north of new york. 26 acres of gilded age elegance, storied ambiance, and modern amenities on the hudson river since 1840. Greek revival with hudson river views.
from architizer.com
There are currently 947 homes for sale matching hudson river in new york at a median listing price of $925k. This $45 million modernist masterpiece ‘floats’ over the hudson river just 90 miles from nyc, the place comes with a helipad and float plane dock. Inside a new york mansion with a frank gehry roof. 26 acres of gilded age elegance, storied ambiance, and modern amenities on the hudson river since 1840. Today ad travels 2 hours north of new york. View listing photos, review sales history, and use our detailed real. Greek revival with hudson river views. Zillow has 1579 homes for sale in new york matching hudson river. Zillow has 47 homes for sale in hudson ny matching hudson river. Some of these homes are hot.
Hudson River House by 1100 Architect Architizer
House On Hudson River 26 acres of gilded age elegance, storied ambiance, and modern amenities on the hudson river since 1840. Inside a new york mansion with a frank gehry roof. Today ad travels 2 hours north of new york. Some of these homes are hot. 26 acres of gilded age elegance, storied ambiance, and modern amenities on the hudson river since 1840. View listing photos, review sales history, and use our detailed real. There are currently 947 homes for sale matching hudson river in new york at a median listing price of $925k. View listing photos, review sales history, and use our detailed real. Greek revival with hudson river views. Zillow has 1579 homes for sale in new york matching hudson river. This $45 million modernist masterpiece ‘floats’ over the hudson river just 90 miles from nyc, the place comes with a helipad and float plane dock. Zillow has 47 homes for sale in hudson ny matching hudson river.
From davidneffarchitect.com
Hudson River Modern House DAVID NEFF ARCHITECT House On Hudson River Inside a new york mansion with a frank gehry roof. Zillow has 47 homes for sale in hudson ny matching hudson river. Greek revival with hudson river views. View listing photos, review sales history, and use our detailed real. 26 acres of gilded age elegance, storied ambiance, and modern amenities on the hudson river since 1840. Some of these homes. House On Hudson River.
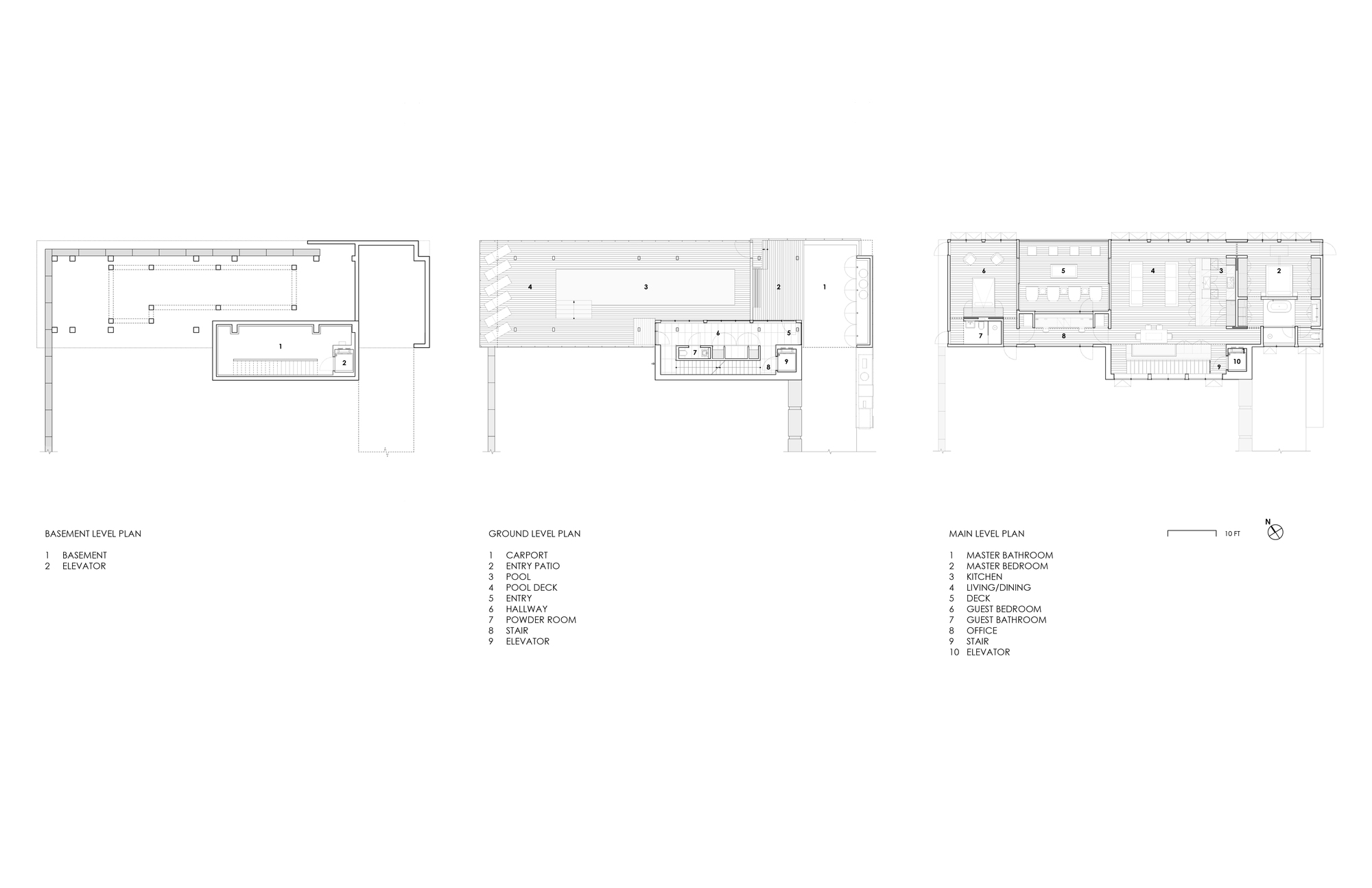
From www.archdaily.com
Gallery of Hudson River House / Resolution 4 Architecture 19 House On Hudson River Greek revival with hudson river views. This $45 million modernist masterpiece ‘floats’ over the hudson river just 90 miles from nyc, the place comes with a helipad and float plane dock. View listing photos, review sales history, and use our detailed real. There are currently 947 homes for sale matching hudson river in new york at a median listing price. House On Hudson River.
From www.newyorkupstate.com
PHOTOS 3.55M midcentury modern home with amazing views of Hudson House On Hudson River 26 acres of gilded age elegance, storied ambiance, and modern amenities on the hudson river since 1840. View listing photos, review sales history, and use our detailed real. Inside a new york mansion with a frank gehry roof. This $45 million modernist masterpiece ‘floats’ over the hudson river just 90 miles from nyc, the place comes with a helipad and. House On Hudson River.
From architizer.com
Hudson River House by Resolution 4 Architecture Architizer House On Hudson River Some of these homes are hot. 26 acres of gilded age elegance, storied ambiance, and modern amenities on the hudson river since 1840. Today ad travels 2 hours north of new york. View listing photos, review sales history, and use our detailed real. View listing photos, review sales history, and use our detailed real. Greek revival with hudson river views.. House On Hudson River.
From www.priceypads.com
18,000 Sq. Ft. NY Manor On 2.83Acres With Hudson River Views Lists For House On Hudson River Zillow has 1579 homes for sale in new york matching hudson river. Today ad travels 2 hours north of new york. 26 acres of gilded age elegance, storied ambiance, and modern amenities on the hudson river since 1840. Inside a new york mansion with a frank gehry roof. View listing photos, review sales history, and use our detailed real. Greek. House On Hudson River.
From architizer.com
Hudson River Valley House by PELLETIER SALGADO Architizer House On Hudson River There are currently 947 homes for sale matching hudson river in new york at a median listing price of $925k. View listing photos, review sales history, and use our detailed real. Today ad travels 2 hours north of new york. Zillow has 1579 homes for sale in new york matching hudson river. Inside a new york mansion with a frank. House On Hudson River.
From www.architecturaldigest.com
Discover the Most Bucolic Country Estates Along the Hudson River House On Hudson River Greek revival with hudson river views. View listing photos, review sales history, and use our detailed real. Inside a new york mansion with a frank gehry roof. 26 acres of gilded age elegance, storied ambiance, and modern amenities on the hudson river since 1840. Zillow has 1579 homes for sale in new york matching hudson river. Some of these homes. House On Hudson River.
From robbreport.com
This Glamorous Mansion Overlooks the Hudson River Robb Report House On Hudson River Some of these homes are hot. There are currently 947 homes for sale matching hudson river in new york at a median listing price of $925k. Today ad travels 2 hours north of new york. Zillow has 1579 homes for sale in new york matching hudson river. View listing photos, review sales history, and use our detailed real. Inside a. House On Hudson River.
From architizer.com
Hudson River House by Resolution 4 Architecture Architizer House On Hudson River There are currently 947 homes for sale matching hudson river in new york at a median listing price of $925k. This $45 million modernist masterpiece ‘floats’ over the hudson river just 90 miles from nyc, the place comes with a helipad and float plane dock. 26 acres of gilded age elegance, storied ambiance, and modern amenities on the hudson river. House On Hudson River.
From architizer.com
Hudson River House by 1100 Architect Architizer House On Hudson River Zillow has 47 homes for sale in hudson ny matching hudson river. Zillow has 1579 homes for sale in new york matching hudson river. Today ad travels 2 hours north of new york. There are currently 947 homes for sale matching hudson river in new york at a median listing price of $925k. Inside a new york mansion with a. House On Hudson River.
From www.dreamstime.com
Wilderstein Mansion, 19thcentury QueenAnnestyle Country House on the House On Hudson River Inside a new york mansion with a frank gehry roof. Zillow has 1579 homes for sale in new york matching hudson river. View listing photos, review sales history, and use our detailed real. Some of these homes are hot. Zillow has 47 homes for sale in hudson ny matching hudson river. There are currently 947 homes for sale matching hudson. House On Hudson River.
From hudsonriverpark.org
Home — Hudson River Park House On Hudson River View listing photos, review sales history, and use our detailed real. Greek revival with hudson river views. Some of these homes are hot. Zillow has 47 homes for sale in hudson ny matching hudson river. Zillow has 1579 homes for sale in new york matching hudson river. 26 acres of gilded age elegance, storied ambiance, and modern amenities on the. House On Hudson River.
From www.animalia-life.club
Hudson River Valley Mansions House On Hudson River Some of these homes are hot. Zillow has 1579 homes for sale in new york matching hudson river. This $45 million modernist masterpiece ‘floats’ over the hudson river just 90 miles from nyc, the place comes with a helipad and float plane dock. View listing photos, review sales history, and use our detailed real. Zillow has 47 homes for sale. House On Hudson River.
From www.pinterest.com
Hudson River Mansion with handmade brick. Old mansions, House On Hudson River Some of these homes are hot. Zillow has 1579 homes for sale in new york matching hudson river. Inside a new york mansion with a frank gehry roof. View listing photos, review sales history, and use our detailed real. Today ad travels 2 hours north of new york. There are currently 947 homes for sale matching hudson river in new. House On Hudson River.
From architizer.com
Hudson River House by Resolution 4 Architecture Architizer House On Hudson River View listing photos, review sales history, and use our detailed real. Inside a new york mansion with a frank gehry roof. View listing photos, review sales history, and use our detailed real. This $45 million modernist masterpiece ‘floats’ over the hudson river just 90 miles from nyc, the place comes with a helipad and float plane dock. Zillow has 1579. House On Hudson River.
From giggster.com
Stunning House With Hudson River Views Rent this location on Giggster House On Hudson River Some of these homes are hot. View listing photos, review sales history, and use our detailed real. Greek revival with hudson river views. Today ad travels 2 hours north of new york. Zillow has 47 homes for sale in hudson ny matching hudson river. Inside a new york mansion with a frank gehry roof. 26 acres of gilded age elegance,. House On Hudson River.
From bkskarch.com
Hudson River Residence BKSK Architects House On Hudson River Some of these homes are hot. View listing photos, review sales history, and use our detailed real. Greek revival with hudson river views. There are currently 947 homes for sale matching hudson river in new york at a median listing price of $925k. Zillow has 47 homes for sale in hudson ny matching hudson river. View listing photos, review sales. House On Hudson River.
From wowowhome.com
hudsonriverhousebyresolution4architecture20 Wowow Home Magazine House On Hudson River Today ad travels 2 hours north of new york. Zillow has 1579 homes for sale in new york matching hudson river. Inside a new york mansion with a frank gehry roof. Some of these homes are hot. 26 acres of gilded age elegance, storied ambiance, and modern amenities on the hudson river since 1840. Greek revival with hudson river views.. House On Hudson River.
From architizer.com
Hudson River House by Virgona & Virgona Architects Architizer House On Hudson River Greek revival with hudson river views. Inside a new york mansion with a frank gehry roof. View listing photos, review sales history, and use our detailed real. Zillow has 1579 homes for sale in new york matching hudson river. View listing photos, review sales history, and use our detailed real. 26 acres of gilded age elegance, storied ambiance, and modern. House On Hudson River.
From untappedcities.com
28 Hudson Valley Estates to Visit in New York Untapped New York House On Hudson River This $45 million modernist masterpiece ‘floats’ over the hudson river just 90 miles from nyc, the place comes with a helipad and float plane dock. 26 acres of gilded age elegance, storied ambiance, and modern amenities on the hudson river since 1840. View listing photos, review sales history, and use our detailed real. Greek revival with hudson river views. Today. House On Hudson River.
From architizer.com
Hudson River House by 1100 Architect Architizer House On Hudson River Today ad travels 2 hours north of new york. This $45 million modernist masterpiece ‘floats’ over the hudson river just 90 miles from nyc, the place comes with a helipad and float plane dock. View listing photos, review sales history, and use our detailed real. Some of these homes are hot. View listing photos, review sales history, and use our. House On Hudson River.
From design-milk.com
Weekend Home on the Hudson River Design Milk House On Hudson River Some of these homes are hot. This $45 million modernist masterpiece ‘floats’ over the hudson river just 90 miles from nyc, the place comes with a helipad and float plane dock. View listing photos, review sales history, and use our detailed real. Greek revival with hudson river views. Zillow has 47 homes for sale in hudson ny matching hudson river.. House On Hudson River.
From davidneffarchitect.com
Hudson River Modern House DAVID NEFF ARCHITECT House On Hudson River View listing photos, review sales history, and use our detailed real. 26 acres of gilded age elegance, storied ambiance, and modern amenities on the hudson river since 1840. Zillow has 1579 homes for sale in new york matching hudson river. Greek revival with hudson river views. Zillow has 47 homes for sale in hudson ny matching hudson river. View listing. House On Hudson River.
From architizer.com
Hudson River House by Virgona & Virgona Architects Architizer House On Hudson River 26 acres of gilded age elegance, storied ambiance, and modern amenities on the hudson river since 1840. Inside a new york mansion with a frank gehry roof. Today ad travels 2 hours north of new york. View listing photos, review sales history, and use our detailed real. There are currently 947 homes for sale matching hudson river in new york. House On Hudson River.
From www.animalia-life.club
Hudson River Valley Mansions House On Hudson River View listing photos, review sales history, and use our detailed real. Zillow has 47 homes for sale in hudson ny matching hudson river. Some of these homes are hot. Zillow has 1579 homes for sale in new york matching hudson river. This $45 million modernist masterpiece ‘floats’ over the hudson river just 90 miles from nyc, the place comes with. House On Hudson River.
From toptenrealestatedeals.com
Hudson River Cliff House! Top Ten Real Estate Deals House On Hudson River Today ad travels 2 hours north of new york. Zillow has 47 homes for sale in hudson ny matching hudson river. Inside a new york mansion with a frank gehry roof. Greek revival with hudson river views. View listing photos, review sales history, and use our detailed real. Some of these homes are hot. 26 acres of gilded age elegance,. House On Hudson River.
From architizer.com
Hudson River House by Virgona & Virgona Architects Architizer House On Hudson River Inside a new york mansion with a frank gehry roof. There are currently 947 homes for sale matching hudson river in new york at a median listing price of $925k. Some of these homes are hot. View listing photos, review sales history, and use our detailed real. 26 acres of gilded age elegance, storied ambiance, and modern amenities on the. House On Hudson River.
From www.merrimackdesign.com
Hudson River House Merrimack Design Architects, PLLC House On Hudson River There are currently 947 homes for sale matching hudson river in new york at a median listing price of $925k. Zillow has 47 homes for sale in hudson ny matching hudson river. Zillow has 1579 homes for sale in new york matching hudson river. 26 acres of gilded age elegance, storied ambiance, and modern amenities on the hudson river since. House On Hudson River.
From www.architecturaldigest.com
Tour a Modern House with Hudson River Views Near Rhinebeck, New York House On Hudson River View listing photos, review sales history, and use our detailed real. This $45 million modernist masterpiece ‘floats’ over the hudson river just 90 miles from nyc, the place comes with a helipad and float plane dock. Zillow has 1579 homes for sale in new york matching hudson river. Today ad travels 2 hours north of new york. View listing photos,. House On Hudson River.
From architizer.com
Hudson River House by 1100 Architect Architizer House On Hudson River Today ad travels 2 hours north of new york. 26 acres of gilded age elegance, storied ambiance, and modern amenities on the hudson river since 1840. Greek revival with hudson river views. This $45 million modernist masterpiece ‘floats’ over the hudson river just 90 miles from nyc, the place comes with a helipad and float plane dock. Zillow has 47. House On Hudson River.
From www.archdaily.com
Gallery of Hudson River House / Resolution 4 Architecture 19 House On Hudson River Today ad travels 2 hours north of new york. Greek revival with hudson river views. Some of these homes are hot. View listing photos, review sales history, and use our detailed real. 26 acres of gilded age elegance, storied ambiance, and modern amenities on the hudson river since 1840. Zillow has 1579 homes for sale in new york matching hudson. House On Hudson River.
From www.architecturalrecord.com
Hudson River House by 1100 Architect 20120116 Architectural Record House On Hudson River This $45 million modernist masterpiece ‘floats’ over the hudson river just 90 miles from nyc, the place comes with a helipad and float plane dock. 26 acres of gilded age elegance, storied ambiance, and modern amenities on the hudson river since 1840. Zillow has 47 homes for sale in hudson ny matching hudson river. View listing photos, review sales history,. House On Hudson River.
From architizer.com
Hudson River House by Virgona & Virgona Architects Architizer House On Hudson River This $45 million modernist masterpiece ‘floats’ over the hudson river just 90 miles from nyc, the place comes with a helipad and float plane dock. There are currently 947 homes for sale matching hudson river in new york at a median listing price of $925k. Today ad travels 2 hours north of new york. Inside a new york mansion with. House On Hudson River.
From www.dreamstime.com
House on the Hudson River with Boat and Mountains Landscape Stock Photo House On Hudson River Inside a new york mansion with a frank gehry roof. Zillow has 47 homes for sale in hudson ny matching hudson river. This $45 million modernist masterpiece ‘floats’ over the hudson river just 90 miles from nyc, the place comes with a helipad and float plane dock. Today ad travels 2 hours north of new york. Zillow has 1579 homes. House On Hudson River.
From www.dreamstime.com
Historic Bronck House, Hudson River Valley, Spring Stock Photo Image House On Hudson River Zillow has 47 homes for sale in hudson ny matching hudson river. Zillow has 1579 homes for sale in new york matching hudson river. There are currently 947 homes for sale matching hudson river in new york at a median listing price of $925k. Greek revival with hudson river views. Inside a new york mansion with a frank gehry roof.. House On Hudson River.