Safety Inspection Washington Mo . The motor vehicle inspection section of the driver and vehicle safety division administers missouri's motor vehicle safety inspection. Automobile inspection stations services in washington on yp.com. See reviews, photos, directions, phone numbers and more for the. The missouri department of revenue (dor) requires residents to complete regular vehicle inspections. Auto safety inspection in washington on yp.com. See riechers tire and auto for your safety inspection. 11 rows missouri law requires motor vehicles to pass a vehicle safety inspection performed by an authorized inspection station. See reviews, photos, directions, phone numbers and more for the best automobile inspection. We'll go through our checklist to ensure your vehicle is not only safe, but ready. The site offers a range of services to help vehicle owners and buyers ensure that their vehicles are safe, reliable, and compliant with local.
from www.formsbank.com
Automobile inspection stations services in washington on yp.com. See reviews, photos, directions, phone numbers and more for the. We'll go through our checklist to ensure your vehicle is not only safe, but ready. The missouri department of revenue (dor) requires residents to complete regular vehicle inspections. The site offers a range of services to help vehicle owners and buyers ensure that their vehicles are safe, reliable, and compliant with local. See riechers tire and auto for your safety inspection. 11 rows missouri law requires motor vehicles to pass a vehicle safety inspection performed by an authorized inspection station. Auto safety inspection in washington on yp.com. See reviews, photos, directions, phone numbers and more for the best automobile inspection. The motor vehicle inspection section of the driver and vehicle safety division administers missouri's motor vehicle safety inspection.
Fire Prevention Inspection Checklist printable pdf download
Safety Inspection Washington Mo The motor vehicle inspection section of the driver and vehicle safety division administers missouri's motor vehicle safety inspection. 11 rows missouri law requires motor vehicles to pass a vehicle safety inspection performed by an authorized inspection station. The site offers a range of services to help vehicle owners and buyers ensure that their vehicles are safe, reliable, and compliant with local. We'll go through our checklist to ensure your vehicle is not only safe, but ready. The missouri department of revenue (dor) requires residents to complete regular vehicle inspections. See reviews, photos, directions, phone numbers and more for the. Auto safety inspection in washington on yp.com. The motor vehicle inspection section of the driver and vehicle safety division administers missouri's motor vehicle safety inspection. See reviews, photos, directions, phone numbers and more for the best automobile inspection. See riechers tire and auto for your safety inspection. Automobile inspection stations services in washington on yp.com.
From www.youtube.com
How to Pass your State Safety Emissions Inspection YouTube Safety Inspection Washington Mo Automobile inspection stations services in washington on yp.com. See reviews, photos, directions, phone numbers and more for the. The site offers a range of services to help vehicle owners and buyers ensure that their vehicles are safe, reliable, and compliant with local. The motor vehicle inspection section of the driver and vehicle safety division administers missouri's motor vehicle safety inspection.. Safety Inspection Washington Mo.
From eandmmechanical.com.au
Safety Inspections E & M Mechanical Safety Inspection Washington Mo See riechers tire and auto for your safety inspection. See reviews, photos, directions, phone numbers and more for the. See reviews, photos, directions, phone numbers and more for the best automobile inspection. 11 rows missouri law requires motor vehicles to pass a vehicle safety inspection performed by an authorized inspection station. The site offers a range of services to help. Safety Inspection Washington Mo.
From www.reddit.com
Change in Missouri vehicle safety inspection law takes effect missouri Safety Inspection Washington Mo Automobile inspection stations services in washington on yp.com. 11 rows missouri law requires motor vehicles to pass a vehicle safety inspection performed by an authorized inspection station. The motor vehicle inspection section of the driver and vehicle safety division administers missouri's motor vehicle safety inspection. See reviews, photos, directions, phone numbers and more for the best automobile inspection. The site. Safety Inspection Washington Mo.
From www.youtube.com
What are Safety Inspections? YouTube Safety Inspection Washington Mo See reviews, photos, directions, phone numbers and more for the. Auto safety inspection in washington on yp.com. The site offers a range of services to help vehicle owners and buyers ensure that their vehicles are safe, reliable, and compliant with local. 11 rows missouri law requires motor vehicles to pass a vehicle safety inspection performed by an authorized inspection station.. Safety Inspection Washington Mo.
From www.youtube.com
12 Basic principles of Safety Inspection part 5 How to conduct an Safety Inspection Washington Mo See riechers tire and auto for your safety inspection. The motor vehicle inspection section of the driver and vehicle safety division administers missouri's motor vehicle safety inspection. Automobile inspection stations services in washington on yp.com. The missouri department of revenue (dor) requires residents to complete regular vehicle inspections. See reviews, photos, directions, phone numbers and more for the. We'll go. Safety Inspection Washington Mo.
From www.templateroller.com
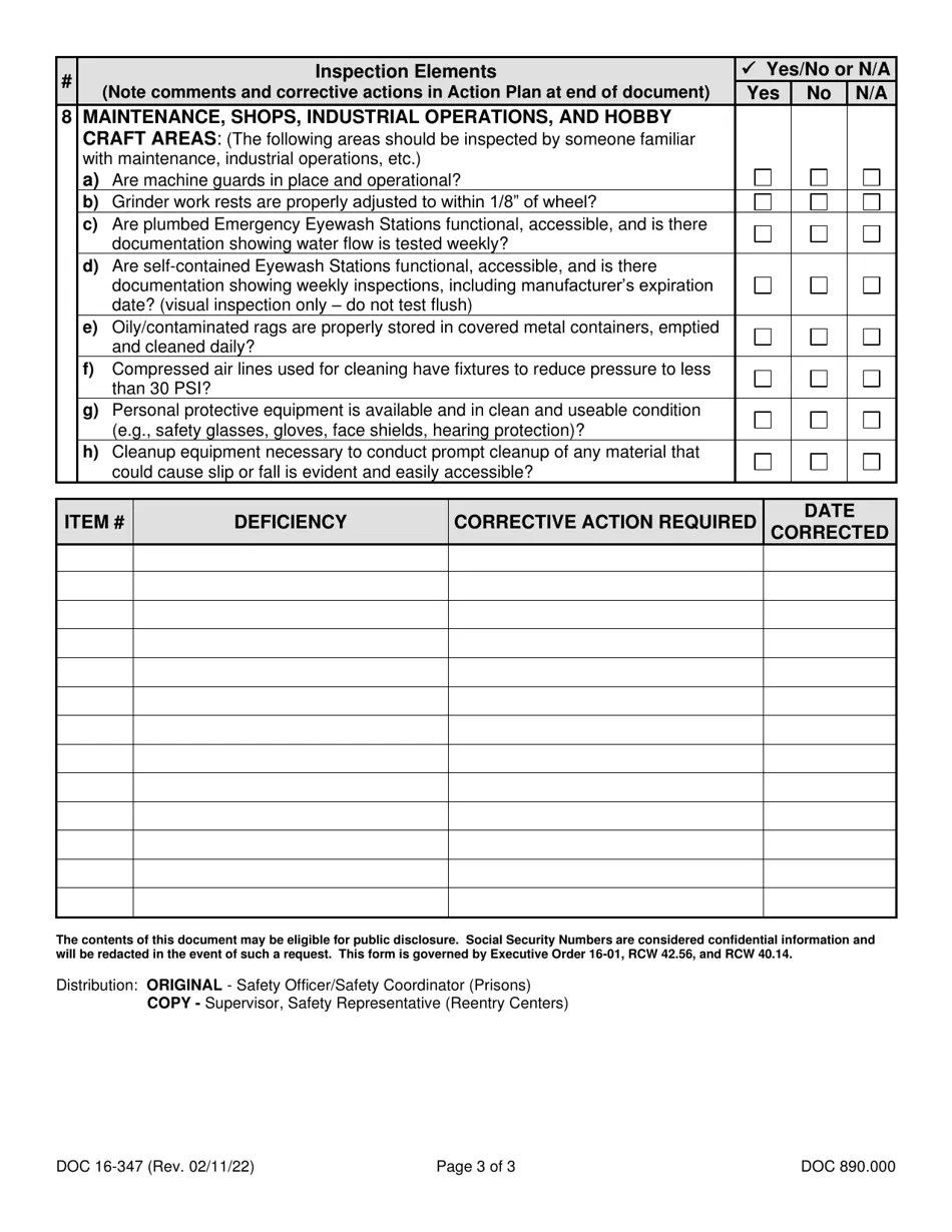
Form DOC16347 Fill Out, Sign Online and Download Printable PDF Safety Inspection Washington Mo 11 rows missouri law requires motor vehicles to pass a vehicle safety inspection performed by an authorized inspection station. The motor vehicle inspection section of the driver and vehicle safety division administers missouri's motor vehicle safety inspection. The site offers a range of services to help vehicle owners and buyers ensure that their vehicles are safe, reliable, and compliant with. Safety Inspection Washington Mo.
From www.dexform.com
Sample safety inspection checklist in Word and Pdf formats Safety Inspection Washington Mo See reviews, photos, directions, phone numbers and more for the best automobile inspection. Auto safety inspection in washington on yp.com. We'll go through our checklist to ensure your vehicle is not only safe, but ready. See reviews, photos, directions, phone numbers and more for the. Automobile inspection stations services in washington on yp.com. See riechers tire and auto for your. Safety Inspection Washington Mo.
From www.templateroller.com
Form DOC16347 Fill Out, Sign Online and Download Printable PDF Safety Inspection Washington Mo 11 rows missouri law requires motor vehicles to pass a vehicle safety inspection performed by an authorized inspection station. See reviews, photos, directions, phone numbers and more for the best automobile inspection. The missouri department of revenue (dor) requires residents to complete regular vehicle inspections. We'll go through our checklist to ensure your vehicle is not only safe, but ready.. Safety Inspection Washington Mo.
From www.youtube.com
How to Write a Safety Inspection Report YouTube Safety Inspection Washington Mo Automobile inspection stations services in washington on yp.com. The site offers a range of services to help vehicle owners and buyers ensure that their vehicles are safe, reliable, and compliant with local. See reviews, photos, directions, phone numbers and more for the. See riechers tire and auto for your safety inspection. The missouri department of revenue (dor) requires residents to. Safety Inspection Washington Mo.
From www.typecalendar.com
Free Printable Vehicle Checklist [Inspection & Maintenance] Word, PDF Safety Inspection Washington Mo We'll go through our checklist to ensure your vehicle is not only safe, but ready. Automobile inspection stations services in washington on yp.com. See riechers tire and auto for your safety inspection. Auto safety inspection in washington on yp.com. See reviews, photos, directions, phone numbers and more for the. 11 rows missouri law requires motor vehicles to pass a vehicle. Safety Inspection Washington Mo.
From www.uslegalforms.com
Facility Safety Inspection Checklist Fill and Sign Printable Template Safety Inspection Washington Mo See reviews, photos, directions, phone numbers and more for the best automobile inspection. The site offers a range of services to help vehicle owners and buyers ensure that their vehicles are safe, reliable, and compliant with local. Automobile inspection stations services in washington on yp.com. See riechers tire and auto for your safety inspection. The missouri department of revenue (dor). Safety Inspection Washington Mo.
From www.typecalendar.com
Free Printable Vehicle Checklist [Inspection & Maintenance] Word, PDF Safety Inspection Washington Mo See reviews, photos, directions, phone numbers and more for the best automobile inspection. The missouri department of revenue (dor) requires residents to complete regular vehicle inspections. 11 rows missouri law requires motor vehicles to pass a vehicle safety inspection performed by an authorized inspection station. Automobile inspection stations services in washington on yp.com. We'll go through our checklist to ensure. Safety Inspection Washington Mo.
From www.templateroller.com
Form DOC16347 Download Printable PDF or Fill Online Monthly Safety and Safety Inspection Washington Mo See reviews, photos, directions, phone numbers and more for the. Automobile inspection stations services in washington on yp.com. The site offers a range of services to help vehicle owners and buyers ensure that their vehicles are safe, reliable, and compliant with local. Auto safety inspection in washington on yp.com. See riechers tire and auto for your safety inspection. See reviews,. Safety Inspection Washington Mo.
From www.youtube.com
Safety Inspection Types of Safety Inspection HSE STUDY GUIDE YouTube Safety Inspection Washington Mo The motor vehicle inspection section of the driver and vehicle safety division administers missouri's motor vehicle safety inspection. Auto safety inspection in washington on yp.com. See riechers tire and auto for your safety inspection. See reviews, photos, directions, phone numbers and more for the. 11 rows missouri law requires motor vehicles to pass a vehicle safety inspection performed by an. Safety Inspection Washington Mo.
From fyonnfctn.blob.core.windows.net
What Is Included In Car Safety Inspection at Tracie Peltier blog Safety Inspection Washington Mo See reviews, photos, directions, phone numbers and more for the best automobile inspection. See riechers tire and auto for your safety inspection. See reviews, photos, directions, phone numbers and more for the. The site offers a range of services to help vehicle owners and buyers ensure that their vehicles are safe, reliable, and compliant with local. The motor vehicle inspection. Safety Inspection Washington Mo.
From www.formsbank.com
Fire Prevention Inspection Checklist printable pdf download Safety Inspection Washington Mo The motor vehicle inspection section of the driver and vehicle safety division administers missouri's motor vehicle safety inspection. The site offers a range of services to help vehicle owners and buyers ensure that their vehicles are safe, reliable, and compliant with local. Auto safety inspection in washington on yp.com. See reviews, photos, directions, phone numbers and more for the best. Safety Inspection Washington Mo.
From www.templateroller.com
Form DOC16347 Download Printable PDF or Fill Online Monthly Safety and Safety Inspection Washington Mo We'll go through our checklist to ensure your vehicle is not only safe, but ready. See riechers tire and auto for your safety inspection. The site offers a range of services to help vehicle owners and buyers ensure that their vehicles are safe, reliable, and compliant with local. The missouri department of revenue (dor) requires residents to complete regular vehicle. Safety Inspection Washington Mo.
From studylib.net
Missouri Safety Assessment Safety Inspection Washington Mo Automobile inspection stations services in washington on yp.com. The motor vehicle inspection section of the driver and vehicle safety division administers missouri's motor vehicle safety inspection. See riechers tire and auto for your safety inspection. See reviews, photos, directions, phone numbers and more for the best automobile inspection. We'll go through our checklist to ensure your vehicle is not only. Safety Inspection Washington Mo.
From www.cabledahmerbgkc.com
Free Missouri State Safety Inspection Cable Dahmer Buick GMC Truck Safety Inspection Washington Mo 11 rows missouri law requires motor vehicles to pass a vehicle safety inspection performed by an authorized inspection station. See reviews, photos, directions, phone numbers and more for the. Auto safety inspection in washington on yp.com. The motor vehicle inspection section of the driver and vehicle safety division administers missouri's motor vehicle safety inspection. See reviews, photos, directions, phone numbers. Safety Inspection Washington Mo.
From hawleyhomeinspectionsllc.com
What Is Included In A Missouri Home Inspection Checklist? Hawley Home Safety Inspection Washington Mo See reviews, photos, directions, phone numbers and more for the. See riechers tire and auto for your safety inspection. See reviews, photos, directions, phone numbers and more for the best automobile inspection. 11 rows missouri law requires motor vehicles to pass a vehicle safety inspection performed by an authorized inspection station. The site offers a range of services to help. Safety Inspection Washington Mo.
From www.youtube.com
Safety Inspection and Compliance Dashboard YouTube Safety Inspection Washington Mo We'll go through our checklist to ensure your vehicle is not only safe, but ready. Auto safety inspection in washington on yp.com. See reviews, photos, directions, phone numbers and more for the. 11 rows missouri law requires motor vehicles to pass a vehicle safety inspection performed by an authorized inspection station. The missouri department of revenue (dor) requires residents to. Safety Inspection Washington Mo.
From datamyte.com
6 Levels of Fleet Inspection and Maintenance DataMyte Safety Inspection Washington Mo 11 rows missouri law requires motor vehicles to pass a vehicle safety inspection performed by an authorized inspection station. See riechers tire and auto for your safety inspection. The missouri department of revenue (dor) requires residents to complete regular vehicle inspections. Auto safety inspection in washington on yp.com. See reviews, photos, directions, phone numbers and more for the. Automobile inspection. Safety Inspection Washington Mo.
From www.templateroller.com
Form DOC16347 Fill Out, Sign Online and Download Printable PDF Safety Inspection Washington Mo Automobile inspection stations services in washington on yp.com. See riechers tire and auto for your safety inspection. The missouri department of revenue (dor) requires residents to complete regular vehicle inspections. The motor vehicle inspection section of the driver and vehicle safety division administers missouri's motor vehicle safety inspection. See reviews, photos, directions, phone numbers and more for the. The site. Safety Inspection Washington Mo.
From safetycenter.org
Continuous Safety Inspections Safety Inspection Washington Mo See reviews, photos, directions, phone numbers and more for the. The missouri department of revenue (dor) requires residents to complete regular vehicle inspections. See reviews, photos, directions, phone numbers and more for the best automobile inspection. Auto safety inspection in washington on yp.com. The site offers a range of services to help vehicle owners and buyers ensure that their vehicles. Safety Inspection Washington Mo.
From inspexion.com
Workplace Safety Inspections Safety Inspection Washington Mo Automobile inspection stations services in washington on yp.com. The missouri department of revenue (dor) requires residents to complete regular vehicle inspections. The motor vehicle inspection section of the driver and vehicle safety division administers missouri's motor vehicle safety inspection. See reviews, photos, directions, phone numbers and more for the. We'll go through our checklist to ensure your vehicle is not. Safety Inspection Washington Mo.
From nilaconseil.com
Safety Inspection and Compliance Dashboard Safety Inspection Washington Mo The site offers a range of services to help vehicle owners and buyers ensure that their vehicles are safe, reliable, and compliant with local. See reviews, photos, directions, phone numbers and more for the best automobile inspection. Auto safety inspection in washington on yp.com. See riechers tire and auto for your safety inspection. The missouri department of revenue (dor) requires. Safety Inspection Washington Mo.
From www.lucidity.io
A guide to health and safety inspections in the workplace Safety Inspection Washington Mo Auto safety inspection in washington on yp.com. Automobile inspection stations services in washington on yp.com. 11 rows missouri law requires motor vehicles to pass a vehicle safety inspection performed by an authorized inspection station. The missouri department of revenue (dor) requires residents to complete regular vehicle inspections. The site offers a range of services to help vehicle owners and buyers. Safety Inspection Washington Mo.
From www.guardiansecurity.com
Fire Alarm Inspections in Washington State Guardian Security Systems Safety Inspection Washington Mo Automobile inspection stations services in washington on yp.com. See riechers tire and auto for your safety inspection. 11 rows missouri law requires motor vehicles to pass a vehicle safety inspection performed by an authorized inspection station. The missouri department of revenue (dor) requires residents to complete regular vehicle inspections. We'll go through our checklist to ensure your vehicle is not. Safety Inspection Washington Mo.
From www.youtube.com
Why Safety Inspections or HSE Observations are IMPORTANT? Basics of Safety Inspection Washington Mo See reviews, photos, directions, phone numbers and more for the best automobile inspection. Auto safety inspection in washington on yp.com. See reviews, photos, directions, phone numbers and more for the. The site offers a range of services to help vehicle owners and buyers ensure that their vehicles are safe, reliable, and compliant with local. The motor vehicle inspection section of. Safety Inspection Washington Mo.
From www.compliancequest.com
key safety inspection process to reduce incidents Safety Inspection Washington Mo See reviews, photos, directions, phone numbers and more for the. See reviews, photos, directions, phone numbers and more for the best automobile inspection. We'll go through our checklist to ensure your vehicle is not only safe, but ready. The motor vehicle inspection section of the driver and vehicle safety division administers missouri's motor vehicle safety inspection. Auto safety inspection in. Safety Inspection Washington Mo.
From www.safetymint.com
OSHA Construction Safety Inspection Checklist Download Free PDF Safety Inspection Washington Mo Auto safety inspection in washington on yp.com. See reviews, photos, directions, phone numbers and more for the best automobile inspection. 11 rows missouri law requires motor vehicles to pass a vehicle safety inspection performed by an authorized inspection station. The missouri department of revenue (dor) requires residents to complete regular vehicle inspections. The site offers a range of services to. Safety Inspection Washington Mo.
From www.templateroller.com
Form DOC16347 Download Printable PDF or Fill Online Monthly Safety and Safety Inspection Washington Mo Automobile inspection stations services in washington on yp.com. The motor vehicle inspection section of the driver and vehicle safety division administers missouri's motor vehicle safety inspection. The missouri department of revenue (dor) requires residents to complete regular vehicle inspections. See riechers tire and auto for your safety inspection. See reviews, photos, directions, phone numbers and more for the. We'll go. Safety Inspection Washington Mo.
From www.appenate.com
Your Guide to Onsite Safety Inspections In The Construction Industry Safety Inspection Washington Mo The motor vehicle inspection section of the driver and vehicle safety division administers missouri's motor vehicle safety inspection. The missouri department of revenue (dor) requires residents to complete regular vehicle inspections. We'll go through our checklist to ensure your vehicle is not only safe, but ready. See reviews, photos, directions, phone numbers and more for the. Auto safety inspection in. Safety Inspection Washington Mo.
From templates.rjuuc.edu.np
Osha Safety Inspection Checklist Template Safety Inspection Washington Mo See reviews, photos, directions, phone numbers and more for the. See reviews, photos, directions, phone numbers and more for the best automobile inspection. We'll go through our checklist to ensure your vehicle is not only safe, but ready. The motor vehicle inspection section of the driver and vehicle safety division administers missouri's motor vehicle safety inspection. Auto safety inspection in. Safety Inspection Washington Mo.
From www.loufuszbuickgmc.com
Missouri State Safety Inspection in St. Louis, MO Lou Fusz Buick GMC Safety Inspection Washington Mo Automobile inspection stations services in washington on yp.com. The missouri department of revenue (dor) requires residents to complete regular vehicle inspections. See riechers tire and auto for your safety inspection. See reviews, photos, directions, phone numbers and more for the. Auto safety inspection in washington on yp.com. The motor vehicle inspection section of the driver and vehicle safety division administers. Safety Inspection Washington Mo.