Grounding And Bonding Checklist . But the electrical principles on which we base grounding and. Electrical grounding and bonding are important safety practices for preventing static discharge and reducing the possibility of a fire. Becoming familiar with the proper use of these. A bonding system connects various pieces of conductive equipment and structures together to keep them at the same potential. “recent studies indicate that as much as 80% of all failures of sensitive electronic equipment attributed to poor power quality may result from. These tables help you properly size wiring for the grounding and bonding of your electrical system. 250 is critical to understanding the grounding and bonding requirements within the nec®. The following definitions are commonly used. Grounding, bonding and power quality. Grounding and bonding limit overvoltages, stabilize the voltage to the ground during regular functioning, and ease the proper operation of circuit breakers and fuses. Learn about the general requirements for grounding and bonding in line with the nec 2023. Bonding and grounding are very effective techniques for minimizing the likelihood of ignition from static electricity. This checklist identifies design requirements for grounding in systems and equipment for ensuring acceptable system performance and. The purpose of grounding is the safety of people and property.
from www.scribd.com
Becoming familiar with the proper use of these. These tables help you properly size wiring for the grounding and bonding of your electrical system. A bonding system connects various pieces of conductive equipment and structures together to keep them at the same potential. Electrical grounding and bonding are important safety practices for preventing static discharge and reducing the possibility of a fire. The purpose of grounding is the safety of people and property. This checklist identifies design requirements for grounding in systems and equipment for ensuring acceptable system performance and. Grounding and bonding limit overvoltages, stabilize the voltage to the ground during regular functioning, and ease the proper operation of circuit breakers and fuses. Grounding, bonding and power quality. The following definitions are commonly used. 250 is critical to understanding the grounding and bonding requirements within the nec®.
Earthing Checklist
Grounding And Bonding Checklist “recent studies indicate that as much as 80% of all failures of sensitive electronic equipment attributed to poor power quality may result from. The purpose of grounding is the safety of people and property. These tables help you properly size wiring for the grounding and bonding of your electrical system. “recent studies indicate that as much as 80% of all failures of sensitive electronic equipment attributed to poor power quality may result from. 250 is critical to understanding the grounding and bonding requirements within the nec®. Learn about the general requirements for grounding and bonding in line with the nec 2023. Electrical grounding and bonding are important safety practices for preventing static discharge and reducing the possibility of a fire. A bonding system connects various pieces of conductive equipment and structures together to keep them at the same potential. Bonding and grounding are very effective techniques for minimizing the likelihood of ignition from static electricity. Grounding, bonding and power quality. The following definitions are commonly used. Grounding and bonding limit overvoltages, stabilize the voltage to the ground during regular functioning, and ease the proper operation of circuit breakers and fuses. Becoming familiar with the proper use of these. But the electrical principles on which we base grounding and. This checklist identifies design requirements for grounding in systems and equipment for ensuring acceptable system performance and.
From www.scribd.com
Bonding InProcess Inspection Checklist PDF Building Engineering Grounding And Bonding Checklist A bonding system connects various pieces of conductive equipment and structures together to keep them at the same potential. Grounding, bonding and power quality. “recent studies indicate that as much as 80% of all failures of sensitive electronic equipment attributed to poor power quality may result from. Learn about the general requirements for grounding and bonding in line with the. Grounding And Bonding Checklist.
From www.youtube.com
How to Bond Neutral and Ground With 2023 NEC Code Book and Handbook Grounding And Bonding Checklist The purpose of grounding is the safety of people and property. Becoming familiar with the proper use of these. A bonding system connects various pieces of conductive equipment and structures together to keep them at the same potential. These tables help you properly size wiring for the grounding and bonding of your electrical system. Grounding, bonding and power quality. But. Grounding And Bonding Checklist.
From dokumen.tips
(PDF) Grounding & Bonding Applications Ergonomia40 Safety Checklist Grounding And Bonding Checklist But the electrical principles on which we base grounding and. Bonding and grounding are very effective techniques for minimizing the likelihood of ignition from static electricity. These tables help you properly size wiring for the grounding and bonding of your electrical system. “recent studies indicate that as much as 80% of all failures of sensitive electronic equipment attributed to poor. Grounding And Bonding Checklist.
From www.scribd.com
Aircraft Ground Handling Checklist PDF Aviation Manufactured Goods Grounding And Bonding Checklist Grounding, bonding and power quality. This checklist identifies design requirements for grounding in systems and equipment for ensuring acceptable system performance and. “recent studies indicate that as much as 80% of all failures of sensitive electronic equipment attributed to poor power quality may result from. The following definitions are commonly used. Grounding and bonding limit overvoltages, stabilize the voltage to. Grounding And Bonding Checklist.
From lpigroup.com
Earthing Systems What You Need to Know LPI Group Grounding And Bonding Checklist The following definitions are commonly used. A bonding system connects various pieces of conductive equipment and structures together to keep them at the same potential. These tables help you properly size wiring for the grounding and bonding of your electrical system. But the electrical principles on which we base grounding and. Grounding, bonding and power quality. 250 is critical to. Grounding And Bonding Checklist.
From www.scribd.com
Grounding Check List PDF Water Transport Ships Grounding And Bonding Checklist The following definitions are commonly used. A bonding system connects various pieces of conductive equipment and structures together to keep them at the same potential. Grounding and bonding limit overvoltages, stabilize the voltage to the ground during regular functioning, and ease the proper operation of circuit breakers and fuses. The purpose of grounding is the safety of people and property.. Grounding And Bonding Checklist.
From www.mikeholt.com
Grounding and Bonding Poster Grounding And Bonding Checklist These tables help you properly size wiring for the grounding and bonding of your electrical system. A bonding system connects various pieces of conductive equipment and structures together to keep them at the same potential. The purpose of grounding is the safety of people and property. This checklist identifies design requirements for grounding in systems and equipment for ensuring acceptable. Grounding And Bonding Checklist.
From www.slideserve.com
PPT Grounding & Bonding PowerPoint Presentation, free download ID Grounding And Bonding Checklist The purpose of grounding is the safety of people and property. Becoming familiar with the proper use of these. 250 is critical to understanding the grounding and bonding requirements within the nec®. This checklist identifies design requirements for grounding in systems and equipment for ensuring acceptable system performance and. Electrical grounding and bonding are important safety practices for preventing static. Grounding And Bonding Checklist.
From paktechpoint.com
Bonding and Grounding Installation of Grounding and Bonding Conductors Grounding And Bonding Checklist These tables help you properly size wiring for the grounding and bonding of your electrical system. Grounding and bonding limit overvoltages, stabilize the voltage to the ground during regular functioning, and ease the proper operation of circuit breakers and fuses. Becoming familiar with the proper use of these. The purpose of grounding is the safety of people and property. Grounding,. Grounding And Bonding Checklist.
From blanker.org
DA Form 74525R. Grounding and Bonding Connection Checklist for Grounding And Bonding Checklist A bonding system connects various pieces of conductive equipment and structures together to keep them at the same potential. These tables help you properly size wiring for the grounding and bonding of your electrical system. Grounding and bonding limit overvoltages, stabilize the voltage to the ground during regular functioning, and ease the proper operation of circuit breakers and fuses. Learn. Grounding And Bonding Checklist.
From paktechpoint.com
Bonding and Grounding Installation of Grounding and Bonding Grounding And Bonding Checklist Electrical grounding and bonding are important safety practices for preventing static discharge and reducing the possibility of a fire. The following definitions are commonly used. These tables help you properly size wiring for the grounding and bonding of your electrical system. Becoming familiar with the proper use of these. “recent studies indicate that as much as 80% of all failures. Grounding And Bonding Checklist.
From pdfslide.net
(PDF) Electrical Inspection Checklists...• Chapter 5 Grounding and Grounding And Bonding Checklist “recent studies indicate that as much as 80% of all failures of sensitive electronic equipment attributed to poor power quality may result from. The following definitions are commonly used. Grounding, bonding and power quality. Becoming familiar with the proper use of these. These tables help you properly size wiring for the grounding and bonding of your electrical system. The purpose. Grounding And Bonding Checklist.
From www.buildersbook.com
Mike Holt's Illustrated Guide to Bonding and Grounding (textbook), 2017 Grounding And Bonding Checklist Grounding, bonding and power quality. The purpose of grounding is the safety of people and property. Electrical grounding and bonding are important safety practices for preventing static discharge and reducing the possibility of a fire. But the electrical principles on which we base grounding and. Becoming familiar with the proper use of these. The following definitions are commonly used. 250. Grounding And Bonding Checklist.
From thompsonlearningco.com
Article 250 Grounding & Bonding Definitions 1 Thompson Learning Grounding And Bonding Checklist “recent studies indicate that as much as 80% of all failures of sensitive electronic equipment attributed to poor power quality may result from. 250 is critical to understanding the grounding and bonding requirements within the nec®. Electrical grounding and bonding are important safety practices for preventing static discharge and reducing the possibility of a fire. The purpose of grounding is. Grounding And Bonding Checklist.
From www.scribd.com
Grounding Installation Inspection and Test Plan (ITP) Specification Grounding And Bonding Checklist Bonding and grounding are very effective techniques for minimizing the likelihood of ignition from static electricity. Becoming familiar with the proper use of these. But the electrical principles on which we base grounding and. A bonding system connects various pieces of conductive equipment and structures together to keep them at the same potential. Grounding, bonding and power quality. The purpose. Grounding And Bonding Checklist.
From studylib.net
ATTTP76416 Grounding and Bonding Requirements for Network Grounding And Bonding Checklist “recent studies indicate that as much as 80% of all failures of sensitive electronic equipment attributed to poor power quality may result from. Grounding, bonding and power quality. This checklist identifies design requirements for grounding in systems and equipment for ensuring acceptable system performance and. But the electrical principles on which we base grounding and. These tables help you properly. Grounding And Bonding Checklist.
From www.scribd.com
Inspection Checklist For Installation of Earthing System PDF Grounding And Bonding Checklist This checklist identifies design requirements for grounding in systems and equipment for ensuring acceptable system performance and. The purpose of grounding is the safety of people and property. 250 is critical to understanding the grounding and bonding requirements within the nec®. “recent studies indicate that as much as 80% of all failures of sensitive electronic equipment attributed to poor power. Grounding And Bonding Checklist.
From studylib.net
groundingbondingfocussheet Grounding And Bonding Checklist Grounding, bonding and power quality. 250 is critical to understanding the grounding and bonding requirements within the nec®. Electrical grounding and bonding are important safety practices for preventing static discharge and reducing the possibility of a fire. A bonding system connects various pieces of conductive equipment and structures together to keep them at the same potential. The purpose of grounding. Grounding And Bonding Checklist.
From www.scribd.com
Grounding Checklist Attachment XXXVI.xls Ships Sea Grounding And Bonding Checklist Bonding and grounding are very effective techniques for minimizing the likelihood of ignition from static electricity. This checklist identifies design requirements for grounding in systems and equipment for ensuring acceptable system performance and. Grounding, bonding and power quality. But the electrical principles on which we base grounding and. Becoming familiar with the proper use of these. These tables help you. Grounding And Bonding Checklist.
From smartpowerph.com
The Importance of Proper Grounding and Bonding SmartPower PH Grounding And Bonding Checklist Bonding and grounding are very effective techniques for minimizing the likelihood of ignition from static electricity. The purpose of grounding is the safety of people and property. Electrical grounding and bonding are important safety practices for preventing static discharge and reducing the possibility of a fire. “recent studies indicate that as much as 80% of all failures of sensitive electronic. Grounding And Bonding Checklist.
From www.justanswer.com
I want to know how grounding and bonding is properly performed inside Grounding And Bonding Checklist Becoming familiar with the proper use of these. Electrical grounding and bonding are important safety practices for preventing static discharge and reducing the possibility of a fire. But the electrical principles on which we base grounding and. The following definitions are commonly used. Learn about the general requirements for grounding and bonding in line with the nec 2023. Grounding and. Grounding And Bonding Checklist.
From www.scribd.com
Earthing Checklist Grounding And Bonding Checklist This checklist identifies design requirements for grounding in systems and equipment for ensuring acceptable system performance and. “recent studies indicate that as much as 80% of all failures of sensitive electronic equipment attributed to poor power quality may result from. 250 is critical to understanding the grounding and bonding requirements within the nec®. These tables help you properly size wiring. Grounding And Bonding Checklist.
From dokumen.tips
(PDF) Electrical Inspection Checklists...• Chapter 5 Grounding and Grounding And Bonding Checklist Grounding and bonding limit overvoltages, stabilize the voltage to the ground during regular functioning, and ease the proper operation of circuit breakers and fuses. Electrical grounding and bonding are important safety practices for preventing static discharge and reducing the possibility of a fire. 250 is critical to understanding the grounding and bonding requirements within the nec®. Learn about the general. Grounding And Bonding Checklist.
From dxodiywsg.blob.core.windows.net
Osha Grounding And Bonding Requirements at Brian Winton blog Grounding And Bonding Checklist Learn about the general requirements for grounding and bonding in line with the nec 2023. The purpose of grounding is the safety of people and property. Electrical grounding and bonding are important safety practices for preventing static discharge and reducing the possibility of a fire. Grounding and bonding limit overvoltages, stabilize the voltage to the ground during regular functioning, and. Grounding And Bonding Checklist.
From www.jadelearning.com
Grounding Versus Bonding Part 1 JADE Learning Grounding And Bonding Checklist Learn about the general requirements for grounding and bonding in line with the nec 2023. This checklist identifies design requirements for grounding in systems and equipment for ensuring acceptable system performance and. The purpose of grounding is the safety of people and property. Becoming familiar with the proper use of these. Grounding and bonding limit overvoltages, stabilize the voltage to. Grounding And Bonding Checklist.
From inspectionandtestplan.com
Full ITP for Earthing & Lightning Protection Systems Installation with Grounding And Bonding Checklist These tables help you properly size wiring for the grounding and bonding of your electrical system. This checklist identifies design requirements for grounding in systems and equipment for ensuring acceptable system performance and. Bonding and grounding are very effective techniques for minimizing the likelihood of ignition from static electricity. But the electrical principles on which we base grounding and. Learn. Grounding And Bonding Checklist.
From www.nachi.org
InterNACHI Inspection Graphics Library Plumbing » General » grounding Grounding And Bonding Checklist But the electrical principles on which we base grounding and. This checklist identifies design requirements for grounding in systems and equipment for ensuring acceptable system performance and. Becoming familiar with the proper use of these. The purpose of grounding is the safety of people and property. A bonding system connects various pieces of conductive equipment and structures together to keep. Grounding And Bonding Checklist.
From www.ncwhomeinspections.com
Bonding and Grounding, What they mean and which is more important Grounding And Bonding Checklist But the electrical principles on which we base grounding and. The purpose of grounding is the safety of people and property. Electrical grounding and bonding are important safety practices for preventing static discharge and reducing the possibility of a fire. A bonding system connects various pieces of conductive equipment and structures together to keep them at the same potential. This. Grounding And Bonding Checklist.
From joirfnwhq.blob.core.windows.net
How Does Grounding Work Electricity at Domingo Valdez blog Grounding And Bonding Checklist A bonding system connects various pieces of conductive equipment and structures together to keep them at the same potential. This checklist identifies design requirements for grounding in systems and equipment for ensuring acceptable system performance and. Learn about the general requirements for grounding and bonding in line with the nec 2023. “recent studies indicate that as much as 80% of. Grounding And Bonding Checklist.
From www.scribd.com
Grounding Checklist PDF Grounding And Bonding Checklist The following definitions are commonly used. 250 is critical to understanding the grounding and bonding requirements within the nec®. “recent studies indicate that as much as 80% of all failures of sensitive electronic equipment attributed to poor power quality may result from. This checklist identifies design requirements for grounding in systems and equipment for ensuring acceptable system performance and. Bonding. Grounding And Bonding Checklist.
From www.youtube.com
Earthing and Bonding Part 5 Chapter 54 BS76712018 18th Edition Grounding And Bonding Checklist Grounding and bonding limit overvoltages, stabilize the voltage to the ground during regular functioning, and ease the proper operation of circuit breakers and fuses. The following definitions are commonly used. “recent studies indicate that as much as 80% of all failures of sensitive electronic equipment attributed to poor power quality may result from. A bonding system connects various pieces of. Grounding And Bonding Checklist.
From inspectionandtestplan.com
Full ITP for Earthing & Lightning Protection Systems Installation with Grounding And Bonding Checklist But the electrical principles on which we base grounding and. Bonding and grounding are very effective techniques for minimizing the likelihood of ignition from static electricity. A bonding system connects various pieces of conductive equipment and structures together to keep them at the same potential. These tables help you properly size wiring for the grounding and bonding of your electrical. Grounding And Bonding Checklist.
From www.ecmweb.com
Grounding vs Bonding Part 1 of 12 EC&M Grounding And Bonding Checklist Bonding and grounding are very effective techniques for minimizing the likelihood of ignition from static electricity. The purpose of grounding is the safety of people and property. 250 is critical to understanding the grounding and bonding requirements within the nec®. “recent studies indicate that as much as 80% of all failures of sensitive electronic equipment attributed to poor power quality. Grounding And Bonding Checklist.
From www.scribd.com
Checklist Grounding Grounding And Bonding Checklist The following definitions are commonly used. These tables help you properly size wiring for the grounding and bonding of your electrical system. 250 is critical to understanding the grounding and bonding requirements within the nec®. Bonding and grounding are very effective techniques for minimizing the likelihood of ignition from static electricity. “recent studies indicate that as much as 80% of. Grounding And Bonding Checklist.
From www.scribd.com
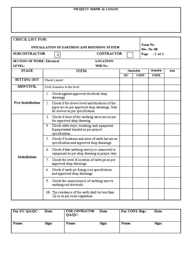
Checklist For Earthing & Bonding System Installation PDF Grounding And Bonding Checklist But the electrical principles on which we base grounding and. This checklist identifies design requirements for grounding in systems and equipment for ensuring acceptable system performance and. A bonding system connects various pieces of conductive equipment and structures together to keep them at the same potential. Bonding and grounding are very effective techniques for minimizing the likelihood of ignition from. Grounding And Bonding Checklist.