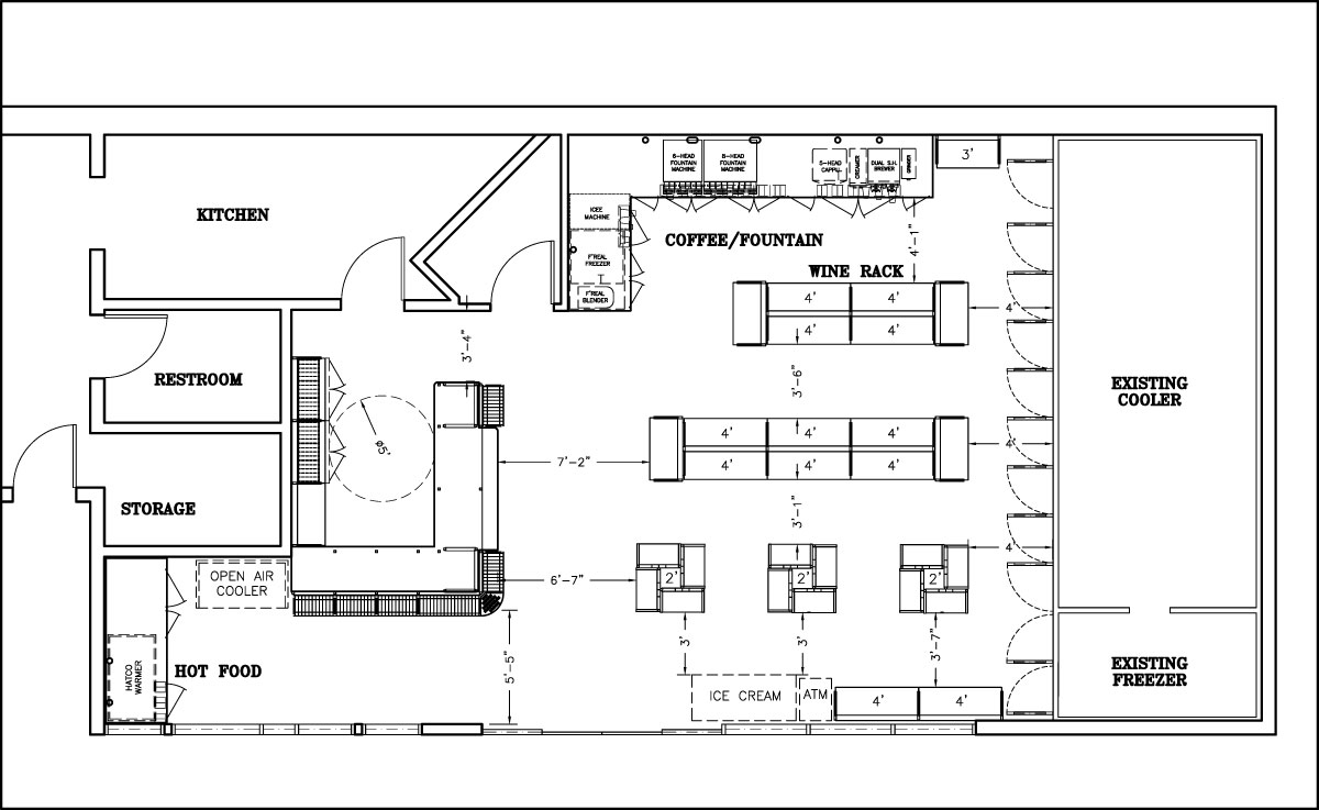
Small Ice Cream Shop Floor Plan . Use software or graph paper for layout. 7 best design ideas and color for ice cream shop counter. Autocad dwg file available for free download that provides a comprehensive design of an ice cream shop, including both plan and elevation views. Allocate spaces for serving, seating, kitchen, storage, and restroom. Unlike larger stores and craft workshops, there is very little room to maneuver and so are the options for structuring environments. To create a floor plan for an ice cream shop, you should measure the space accurately. What are the basic requirements. Identify key areas like serving counter, seating, kitchen, and storage. As such, whether you’re considering starting your business from scratch or making. To create a floor plan for an ice cream parlor, you should sketch the layout with accurate measurements. To start creating an ice cream shop layout, you should plan space efficiently, designate areas for service, seating, and kitchen, prioritize customer flow, and consider aesthetic elements.
from mavink.com
7 best design ideas and color for ice cream shop counter. Unlike larger stores and craft workshops, there is very little room to maneuver and so are the options for structuring environments. To create a floor plan for an ice cream parlor, you should sketch the layout with accurate measurements. Identify key areas like serving counter, seating, kitchen, and storage. Use software or graph paper for layout. As such, whether you’re considering starting your business from scratch or making. Allocate spaces for serving, seating, kitchen, storage, and restroom. To start creating an ice cream shop layout, you should plan space efficiently, designate areas for service, seating, and kitchen, prioritize customer flow, and consider aesthetic elements. To create a floor plan for an ice cream shop, you should measure the space accurately. What are the basic requirements.
Ice Cream Shop Floor Plan
Small Ice Cream Shop Floor Plan Use software or graph paper for layout. 7 best design ideas and color for ice cream shop counter. Unlike larger stores and craft workshops, there is very little room to maneuver and so are the options for structuring environments. Autocad dwg file available for free download that provides a comprehensive design of an ice cream shop, including both plan and elevation views. To start creating an ice cream shop layout, you should plan space efficiently, designate areas for service, seating, and kitchen, prioritize customer flow, and consider aesthetic elements. Allocate spaces for serving, seating, kitchen, storage, and restroom. To create a floor plan for an ice cream parlor, you should sketch the layout with accurate measurements. Identify key areas like serving counter, seating, kitchen, and storage. As such, whether you’re considering starting your business from scratch or making. To create a floor plan for an ice cream shop, you should measure the space accurately. What are the basic requirements. Use software or graph paper for layout.
From dezeenarchdaily.netlify.app
Ice Cream Shop Floor Plans Small Ice Cream Shop Floor Plan Autocad dwg file available for free download that provides a comprehensive design of an ice cream shop, including both plan and elevation views. To create a floor plan for an ice cream parlor, you should sketch the layout with accurate measurements. Allocate spaces for serving, seating, kitchen, storage, and restroom. To create a floor plan for an ice cream shop,. Small Ice Cream Shop Floor Plan.
From www.pinterest.com
Pin by Andrew T on Diagrams Ice cream shop, How to plan, Architect design Small Ice Cream Shop Floor Plan 7 best design ideas and color for ice cream shop counter. Allocate spaces for serving, seating, kitchen, storage, and restroom. What are the basic requirements. As such, whether you’re considering starting your business from scratch or making. Identify key areas like serving counter, seating, kitchen, and storage. Autocad dwg file available for free download that provides a comprehensive design of. Small Ice Cream Shop Floor Plan.
From dezeenarchdaily.netlify.app
Ice Cream Shop Floor Plans Small Ice Cream Shop Floor Plan Allocate spaces for serving, seating, kitchen, storage, and restroom. To create a floor plan for an ice cream parlor, you should sketch the layout with accurate measurements. As such, whether you’re considering starting your business from scratch or making. To create a floor plan for an ice cream shop, you should measure the space accurately. Autocad dwg file available for. Small Ice Cream Shop Floor Plan.
From jerseystrife.blogspot.com
How To Write A Business Plan For Ice Cream Shop Darrin Kenney's Templates Small Ice Cream Shop Floor Plan Identify key areas like serving counter, seating, kitchen, and storage. To create a floor plan for an ice cream parlor, you should sketch the layout with accurate measurements. Autocad dwg file available for free download that provides a comprehensive design of an ice cream shop, including both plan and elevation views. As such, whether you’re considering starting your business from. Small Ice Cream Shop Floor Plan.
From mavink.com
Ice Cream Shop Floor Plan Small Ice Cream Shop Floor Plan To start creating an ice cream shop layout, you should plan space efficiently, designate areas for service, seating, and kitchen, prioritize customer flow, and consider aesthetic elements. To create a floor plan for an ice cream parlor, you should sketch the layout with accurate measurements. Identify key areas like serving counter, seating, kitchen, and storage. Allocate spaces for serving, seating,. Small Ice Cream Shop Floor Plan.
From cadbull.com
Front elevation Ice cream shop layout file Cadbull Small Ice Cream Shop Floor Plan Allocate spaces for serving, seating, kitchen, storage, and restroom. To start creating an ice cream shop layout, you should plan space efficiently, designate areas for service, seating, and kitchen, prioritize customer flow, and consider aesthetic elements. What are the basic requirements. To create a floor plan for an ice cream shop, you should measure the space accurately. 7 best design. Small Ice Cream Shop Floor Plan.
From www.pinterest.com
ice cream shop kitchen layout Google Search Planos de cafeterias Small Ice Cream Shop Floor Plan To create a floor plan for an ice cream parlor, you should sketch the layout with accurate measurements. Autocad dwg file available for free download that provides a comprehensive design of an ice cream shop, including both plan and elevation views. 7 best design ideas and color for ice cream shop counter. Unlike larger stores and craft workshops, there is. Small Ice Cream Shop Floor Plan.
From www.youtube.com
Floor Plan Ice Cream Shop YouTube Small Ice Cream Shop Floor Plan Identify key areas like serving counter, seating, kitchen, and storage. Unlike larger stores and craft workshops, there is very little room to maneuver and so are the options for structuring environments. What are the basic requirements. Allocate spaces for serving, seating, kitchen, storage, and restroom. Use software or graph paper for layout. 7 best design ideas and color for ice. Small Ice Cream Shop Floor Plan.
From www.pinterest.com
Creame Ice Cream Shop on Behance Ice cream shop, Cafe ice cream Small Ice Cream Shop Floor Plan To start creating an ice cream shop layout, you should plan space efficiently, designate areas for service, seating, and kitchen, prioritize customer flow, and consider aesthetic elements. As such, whether you’re considering starting your business from scratch or making. 7 best design ideas and color for ice cream shop counter. Allocate spaces for serving, seating, kitchen, storage, and restroom. Identify. Small Ice Cream Shop Floor Plan.
From mavink.com
Ice Cream Shop Floor Plan Small Ice Cream Shop Floor Plan Unlike larger stores and craft workshops, there is very little room to maneuver and so are the options for structuring environments. To create a floor plan for an ice cream shop, you should measure the space accurately. 7 best design ideas and color for ice cream shop counter. Autocad dwg file available for free download that provides a comprehensive design. Small Ice Cream Shop Floor Plan.
From mungfali.com
Ice Cream Shop Layout Small Ice Cream Shop Floor Plan Allocate spaces for serving, seating, kitchen, storage, and restroom. To start creating an ice cream shop layout, you should plan space efficiently, designate areas for service, seating, and kitchen, prioritize customer flow, and consider aesthetic elements. To create a floor plan for an ice cream shop, you should measure the space accurately. Autocad dwg file available for free download that. Small Ice Cream Shop Floor Plan.
From davidkohn.co.uk
David Kohn Architects Ice Cream Factory Small Ice Cream Shop Floor Plan 7 best design ideas and color for ice cream shop counter. To create a floor plan for an ice cream shop, you should measure the space accurately. Unlike larger stores and craft workshops, there is very little room to maneuver and so are the options for structuring environments. What are the basic requirements. Allocate spaces for serving, seating, kitchen, storage,. Small Ice Cream Shop Floor Plan.
From www.archdaily.com
Izzy’s Ice Cream Kitchen & Retail Shop / Salmela Architect ArchDaily Small Ice Cream Shop Floor Plan To create a floor plan for an ice cream shop, you should measure the space accurately. Identify key areas like serving counter, seating, kitchen, and storage. Unlike larger stores and craft workshops, there is very little room to maneuver and so are the options for structuring environments. Allocate spaces for serving, seating, kitchen, storage, and restroom. Autocad dwg file available. Small Ice Cream Shop Floor Plan.
From mungfali.com
Ice Cream Shop Floor Plan Small Ice Cream Shop Floor Plan Identify key areas like serving counter, seating, kitchen, and storage. Use software or graph paper for layout. Autocad dwg file available for free download that provides a comprehensive design of an ice cream shop, including both plan and elevation views. To create a floor plan for an ice cream parlor, you should sketch the layout with accurate measurements. 7 best. Small Ice Cream Shop Floor Plan.
From uniquekiosk.com
Ice Cream Shop Inside Layout Design High Quality Bakery Furniture Small Ice Cream Shop Floor Plan Allocate spaces for serving, seating, kitchen, storage, and restroom. 7 best design ideas and color for ice cream shop counter. Autocad dwg file available for free download that provides a comprehensive design of an ice cream shop, including both plan and elevation views. Identify key areas like serving counter, seating, kitchen, and storage. What are the basic requirements. Use software. Small Ice Cream Shop Floor Plan.
From cadbull.com
Ice cream shop layout file Cadbull Small Ice Cream Shop Floor Plan To create a floor plan for an ice cream shop, you should measure the space accurately. Unlike larger stores and craft workshops, there is very little room to maneuver and so are the options for structuring environments. Autocad dwg file available for free download that provides a comprehensive design of an ice cream shop, including both plan and elevation views.. Small Ice Cream Shop Floor Plan.
From www.archdaily.com
Gallery of Taiu Ice Cream Shop / Sivak+Partners Studio 26 Small Ice Cream Shop Floor Plan What are the basic requirements. Identify key areas like serving counter, seating, kitchen, and storage. To create a floor plan for an ice cream parlor, you should sketch the layout with accurate measurements. To start creating an ice cream shop layout, you should plan space efficiently, designate areas for service, seating, and kitchen, prioritize customer flow, and consider aesthetic elements.. Small Ice Cream Shop Floor Plan.
From www.isaitaly.com
How to fitting a small ice cream shop ISA Small Ice Cream Shop Floor Plan What are the basic requirements. To create a floor plan for an ice cream parlor, you should sketch the layout with accurate measurements. Unlike larger stores and craft workshops, there is very little room to maneuver and so are the options for structuring environments. Autocad dwg file available for free download that provides a comprehensive design of an ice cream. Small Ice Cream Shop Floor Plan.
From mavink.com
Ice Cream Shop Floor Plan Small Ice Cream Shop Floor Plan To start creating an ice cream shop layout, you should plan space efficiently, designate areas for service, seating, and kitchen, prioritize customer flow, and consider aesthetic elements. Unlike larger stores and craft workshops, there is very little room to maneuver and so are the options for structuring environments. As such, whether you’re considering starting your business from scratch or making.. Small Ice Cream Shop Floor Plan.
From mavink.com
Ice Cream Shop Floor Plan Small Ice Cream Shop Floor Plan 7 best design ideas and color for ice cream shop counter. Identify key areas like serving counter, seating, kitchen, and storage. What are the basic requirements. To create a floor plan for an ice cream shop, you should measure the space accurately. To start creating an ice cream shop layout, you should plan space efficiently, designate areas for service, seating,. Small Ice Cream Shop Floor Plan.
From mavink.com
Ice Cream Shop Floor Plan Small Ice Cream Shop Floor Plan Identify key areas like serving counter, seating, kitchen, and storage. Allocate spaces for serving, seating, kitchen, storage, and restroom. As such, whether you’re considering starting your business from scratch or making. To start creating an ice cream shop layout, you should plan space efficiently, designate areas for service, seating, and kitchen, prioritize customer flow, and consider aesthetic elements. Use software. Small Ice Cream Shop Floor Plan.
From 40southnews.com
New Boardwalk Waffles & Ice Cream floor plan revealed 40 South News Small Ice Cream Shop Floor Plan 7 best design ideas and color for ice cream shop counter. To create a floor plan for an ice cream parlor, you should sketch the layout with accurate measurements. Unlike larger stores and craft workshops, there is very little room to maneuver and so are the options for structuring environments. As such, whether you’re considering starting your business from scratch. Small Ice Cream Shop Floor Plan.
From mavink.com
Ice Cream Shop Floor Plan Small Ice Cream Shop Floor Plan Use software or graph paper for layout. As such, whether you’re considering starting your business from scratch or making. To start creating an ice cream shop layout, you should plan space efficiently, designate areas for service, seating, and kitchen, prioritize customer flow, and consider aesthetic elements. To create a floor plan for an ice cream parlor, you should sketch the. Small Ice Cream Shop Floor Plan.
From floorplans.click
Ice Cream Shop Floor Plan floorplans.click Small Ice Cream Shop Floor Plan 7 best design ideas and color for ice cream shop counter. Allocate spaces for serving, seating, kitchen, storage, and restroom. Autocad dwg file available for free download that provides a comprehensive design of an ice cream shop, including both plan and elevation views. As such, whether you’re considering starting your business from scratch or making. Use software or graph paper. Small Ice Cream Shop Floor Plan.
From www.shopcousa.com
500 1000 SqFt Layouts SHOPCO U.S.A., Inc. Small Ice Cream Shop Floor Plan Unlike larger stores and craft workshops, there is very little room to maneuver and so are the options for structuring environments. To create a floor plan for an ice cream shop, you should measure the space accurately. Identify key areas like serving counter, seating, kitchen, and storage. Allocate spaces for serving, seating, kitchen, storage, and restroom. 7 best design ideas. Small Ice Cream Shop Floor Plan.
From cadbull.com
Ice Cream Shop All Detail in CAD File Cadbull Small Ice Cream Shop Floor Plan Allocate spaces for serving, seating, kitchen, storage, and restroom. What are the basic requirements. Autocad dwg file available for free download that provides a comprehensive design of an ice cream shop, including both plan and elevation views. To create a floor plan for an ice cream parlor, you should sketch the layout with accurate measurements. As such, whether you’re considering. Small Ice Cream Shop Floor Plan.
From cadbull.com
Ice Cream Parlour Floor plan for DWG File Cadbull Small Ice Cream Shop Floor Plan Autocad dwg file available for free download that provides a comprehensive design of an ice cream shop, including both plan and elevation views. Use software or graph paper for layout. Identify key areas like serving counter, seating, kitchen, and storage. To start creating an ice cream shop layout, you should plan space efficiently, designate areas for service, seating, and kitchen,. Small Ice Cream Shop Floor Plan.
From mavink.com
Ice Cream Store Layout Small Ice Cream Shop Floor Plan To start creating an ice cream shop layout, you should plan space efficiently, designate areas for service, seating, and kitchen, prioritize customer flow, and consider aesthetic elements. Autocad dwg file available for free download that provides a comprehensive design of an ice cream shop, including both plan and elevation views. As such, whether you’re considering starting your business from scratch. Small Ice Cream Shop Floor Plan.
From antdisplay.com
Small size ice cream shop interior 3D design ideas Small Ice Cream Shop Floor Plan Identify key areas like serving counter, seating, kitchen, and storage. Autocad dwg file available for free download that provides a comprehensive design of an ice cream shop, including both plan and elevation views. As such, whether you’re considering starting your business from scratch or making. Use software or graph paper for layout. To create a floor plan for an ice. Small Ice Cream Shop Floor Plan.
From easy-peasy.ai
Compact Ice Cream Shop Floor Plan Frosty Florets Design AI Art Small Ice Cream Shop Floor Plan To create a floor plan for an ice cream parlor, you should sketch the layout with accurate measurements. Unlike larger stores and craft workshops, there is very little room to maneuver and so are the options for structuring environments. Autocad dwg file available for free download that provides a comprehensive design of an ice cream shop, including both plan and. Small Ice Cream Shop Floor Plan.
From www.isaitaly.com
How to fitting a small ice cream shop ISA Small Ice Cream Shop Floor Plan What are the basic requirements. Use software or graph paper for layout. Identify key areas like serving counter, seating, kitchen, and storage. Autocad dwg file available for free download that provides a comprehensive design of an ice cream shop, including both plan and elevation views. To create a floor plan for an ice cream parlor, you should sketch the layout. Small Ice Cream Shop Floor Plan.
From worldarchitecture.org
Ice Cream Shop by Solar and Marta Jarabo translates historical layers Small Ice Cream Shop Floor Plan Autocad dwg file available for free download that provides a comprehensive design of an ice cream shop, including both plan and elevation views. To create a floor plan for an ice cream parlor, you should sketch the layout with accurate measurements. To start creating an ice cream shop layout, you should plan space efficiently, designate areas for service, seating, and. Small Ice Cream Shop Floor Plan.
From floorplans.click
Ice Cream Shop Floor Plan floorplans.click Small Ice Cream Shop Floor Plan As such, whether you’re considering starting your business from scratch or making. Unlike larger stores and craft workshops, there is very little room to maneuver and so are the options for structuring environments. To create a floor plan for an ice cream parlor, you should sketch the layout with accurate measurements. Allocate spaces for serving, seating, kitchen, storage, and restroom.. Small Ice Cream Shop Floor Plan.
From antdisplay.com
Ice Cream Shop Design Ice Cream Parlor Design & Store Interior Decor Small Ice Cream Shop Floor Plan To start creating an ice cream shop layout, you should plan space efficiently, designate areas for service, seating, and kitchen, prioritize customer flow, and consider aesthetic elements. Identify key areas like serving counter, seating, kitchen, and storage. To create a floor plan for an ice cream parlor, you should sketch the layout with accurate measurements. As such, whether you’re considering. Small Ice Cream Shop Floor Plan.
From www.cult-design.com.ua
Planning of icecream shop "Fayni Lyodu" Interior design Studio Small Ice Cream Shop Floor Plan Autocad dwg file available for free download that provides a comprehensive design of an ice cream shop, including both plan and elevation views. Unlike larger stores and craft workshops, there is very little room to maneuver and so are the options for structuring environments. What are the basic requirements. To create a floor plan for an ice cream parlor, you. Small Ice Cream Shop Floor Plan.