How To Pay Rent Board Fee San Francisco . You will need to set up an account. Update ownership and business contact information; Apply to raise rents for capital. Pay your rent board fee. The rent board fee and housing inventory portal is a secure database that allows users to view property information, comply with the city’s. If you own residential property in san francisco, find out if you need to pay the rent board fee, how much, and how to pay. If you believe that one or more of your units is exempt from the rent board fee, you must complete an exemption. If a tenant does not pay it, the landlord. Obtain a license to increase rents for tenants covered by rent control; The rent board portal is where you can pay your rent board fee and file with the housing inventory.
from thefrontsteps.com
The rent board portal is where you can pay your rent board fee and file with the housing inventory. Pay your rent board fee. If a tenant does not pay it, the landlord. You will need to set up an account. If you own residential property in san francisco, find out if you need to pay the rent board fee, how much, and how to pay. Apply to raise rents for capital. The rent board fee and housing inventory portal is a secure database that allows users to view property information, comply with the city’s. If you believe that one or more of your units is exempt from the rent board fee, you must complete an exemption. Obtain a license to increase rents for tenants covered by rent control; Update ownership and business contact information;
In San Francisco More Households Making Over 150,000/year Choose To
How To Pay Rent Board Fee San Francisco Obtain a license to increase rents for tenants covered by rent control; If a tenant does not pay it, the landlord. If you believe that one or more of your units is exempt from the rent board fee, you must complete an exemption. The rent board fee and housing inventory portal is a secure database that allows users to view property information, comply with the city’s. You will need to set up an account. The rent board portal is where you can pay your rent board fee and file with the housing inventory. If you own residential property in san francisco, find out if you need to pay the rent board fee, how much, and how to pay. Pay your rent board fee. Apply to raise rents for capital. Update ownership and business contact information; Obtain a license to increase rents for tenants covered by rent control;
From penniqpaloma.pages.dev
Allowable Rent Increase San Francisco 2024 Donni Gaylene How To Pay Rent Board Fee San Francisco If you believe that one or more of your units is exempt from the rent board fee, you must complete an exemption. If you own residential property in san francisco, find out if you need to pay the rent board fee, how much, and how to pay. If a tenant does not pay it, the landlord. Pay your rent board. How To Pay Rent Board Fee San Francisco.
From www.businessinsider.com
San Francisco Rent Map Business Insider How To Pay Rent Board Fee San Francisco Obtain a license to increase rents for tenants covered by rent control; The rent board fee and housing inventory portal is a secure database that allows users to view property information, comply with the city’s. If you believe that one or more of your units is exempt from the rent board fee, you must complete an exemption. You will need. How To Pay Rent Board Fee San Francisco.
From www.zumper.com
These Are the Best Months to Rent in San Francisco How To Pay Rent Board Fee San Francisco If you believe that one or more of your units is exempt from the rent board fee, you must complete an exemption. If you own residential property in san francisco, find out if you need to pay the rent board fee, how much, and how to pay. Pay your rent board fee. The rent board portal is where you can. How To Pay Rent Board Fee San Francisco.
From www.bizjournals.com
S.F. office vacancy continues to climb, rents drop across the board in How To Pay Rent Board Fee San Francisco The rent board fee and housing inventory portal is a secure database that allows users to view property information, comply with the city’s. The rent board portal is where you can pay your rent board fee and file with the housing inventory. If you believe that one or more of your units is exempt from the rent board fee, you. How To Pay Rent Board Fee San Francisco.
From lingschrealty.com
2019 San Francisco Rent Board Rates — Lingsch Realty How To Pay Rent Board Fee San Francisco If you believe that one or more of your units is exempt from the rent board fee, you must complete an exemption. If a tenant does not pay it, the landlord. The rent board portal is where you can pay your rent board fee and file with the housing inventory. If you own residential property in san francisco, find out. How To Pay Rent Board Fee San Francisco.
From stevenhodges.pages.dev
Allowable Rent Increase San Francisco 2025 Steven Hodges How To Pay Rent Board Fee San Francisco Pay your rent board fee. Update ownership and business contact information; If a tenant does not pay it, the landlord. You will need to set up an account. If you believe that one or more of your units is exempt from the rent board fee, you must complete an exemption. The rent board portal is where you can pay your. How To Pay Rent Board Fee San Francisco.
From www.sfchronicle.com
These charts show just how extreme the rent declines in San Francisco How To Pay Rent Board Fee San Francisco If you believe that one or more of your units is exempt from the rent board fee, you must complete an exemption. If you own residential property in san francisco, find out if you need to pay the rent board fee, how much, and how to pay. The rent board portal is where you can pay your rent board fee. How To Pay Rent Board Fee San Francisco.
From loeiegrer.blob.core.windows.net
How Much Does It Cost To Rent A House In San Francisco at Judy East blog How To Pay Rent Board Fee San Francisco If a tenant does not pay it, the landlord. Pay your rent board fee. The rent board fee and housing inventory portal is a secure database that allows users to view property information, comply with the city’s. Obtain a license to increase rents for tenants covered by rent control; The rent board portal is where you can pay your rent. How To Pay Rent Board Fee San Francisco.
From www.co-ownership.org
Fees and Rent CoOwnership How To Pay Rent Board Fee San Francisco Apply to raise rents for capital. If a tenant does not pay it, the landlord. If you believe that one or more of your units is exempt from the rent board fee, you must complete an exemption. The rent board fee and housing inventory portal is a secure database that allows users to view property information, comply with the city’s.. How To Pay Rent Board Fee San Francisco.
From www.sf.gov
Rent Board San Francisco How To Pay Rent Board Fee San Francisco You will need to set up an account. The rent board fee and housing inventory portal is a secure database that allows users to view property information, comply with the city’s. Pay your rent board fee. Update ownership and business contact information; If you own residential property in san francisco, find out if you need to pay the rent board. How To Pay Rent Board Fee San Francisco.
From sf.curbed.com
San Francisco rent prices down slightly Curbed SF How To Pay Rent Board Fee San Francisco The rent board fee and housing inventory portal is a secure database that allows users to view property information, comply with the city’s. Obtain a license to increase rents for tenants covered by rent control; Pay your rent board fee. If you believe that one or more of your units is exempt from the rent board fee, you must complete. How To Pay Rent Board Fee San Francisco.
From www.sfchronicle.com
These charts show just how extreme the rent declines in San Francisco How To Pay Rent Board Fee San Francisco Obtain a license to increase rents for tenants covered by rent control; Apply to raise rents for capital. You will need to set up an account. Update ownership and business contact information; Pay your rent board fee. The rent board portal is where you can pay your rent board fee and file with the housing inventory. If you believe that. How To Pay Rent Board Fee San Francisco.
From www.sf.gov
Rent Board San Francisco How To Pay Rent Board Fee San Francisco If a tenant does not pay it, the landlord. If you own residential property in san francisco, find out if you need to pay the rent board fee, how much, and how to pay. You will need to set up an account. Update ownership and business contact information; Obtain a license to increase rents for tenants covered by rent control;. How To Pay Rent Board Fee San Francisco.
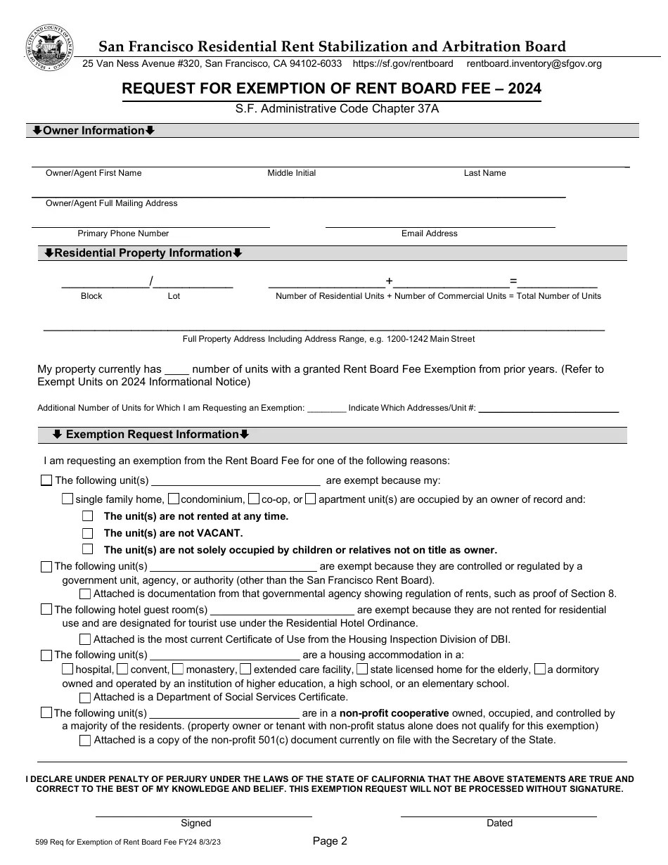
From www.templateroller.com
Form 599 2023 Fill Out, Sign Online and Download Fillable PDF, City How To Pay Rent Board Fee San Francisco Update ownership and business contact information; Obtain a license to increase rents for tenants covered by rent control; If you own residential property in san francisco, find out if you need to pay the rent board fee, how much, and how to pay. The rent board portal is where you can pay your rent board fee and file with the. How To Pay Rent Board Fee San Francisco.
From www.sf.gov
The Rent Board Housing Inventory San Francisco How To Pay Rent Board Fee San Francisco Apply to raise rents for capital. The rent board fee and housing inventory portal is a secure database that allows users to view property information, comply with the city’s. Pay your rent board fee. The rent board portal is where you can pay your rent board fee and file with the housing inventory. You will need to set up an. How To Pay Rent Board Fee San Francisco.
From www.templateroller.com
Form 599 Download Fillable PDF or Fill Online Request for Exemption of How To Pay Rent Board Fee San Francisco If a tenant does not pay it, the landlord. Update ownership and business contact information; The rent board portal is where you can pay your rent board fee and file with the housing inventory. Obtain a license to increase rents for tenants covered by rent control; Apply to raise rents for capital. The rent board fee and housing inventory portal. How To Pay Rent Board Fee San Francisco.
From www.leading-sf.com
A Guide to San Francisco Rent Control Leading Properties How To Pay Rent Board Fee San Francisco Obtain a license to increase rents for tenants covered by rent control; The rent board fee and housing inventory portal is a secure database that allows users to view property information, comply with the city’s. If you believe that one or more of your units is exempt from the rent board fee, you must complete an exemption. Update ownership and. How To Pay Rent Board Fee San Francisco.
From smartasset.com
The Needed to Pay Rent in the Largest U.S. Cities How To Pay Rent Board Fee San Francisco The rent board fee and housing inventory portal is a secure database that allows users to view property information, comply with the city’s. If you own residential property in san francisco, find out if you need to pay the rent board fee, how much, and how to pay. The rent board portal is where you can pay your rent board. How To Pay Rent Board Fee San Francisco.
From bornstein.law
San Francisco Update for March 2024 How To Pay Rent Board Fee San Francisco Apply to raise rents for capital. If a tenant does not pay it, the landlord. Pay your rent board fee. If you own residential property in san francisco, find out if you need to pay the rent board fee, how much, and how to pay. If you believe that one or more of your units is exempt from the rent. How To Pay Rent Board Fee San Francisco.
From www.zumper.com
See How San Francisco Rent Prices Changed in 2015 How To Pay Rent Board Fee San Francisco If you own residential property in san francisco, find out if you need to pay the rent board fee, how much, and how to pay. Pay your rent board fee. Apply to raise rents for capital. If a tenant does not pay it, the landlord. The rent board portal is where you can pay your rent board fee and file. How To Pay Rent Board Fee San Francisco.
From www.inman.com
San Francisco median wages keeping up with rents Inman How To Pay Rent Board Fee San Francisco Pay your rent board fee. Update ownership and business contact information; If you believe that one or more of your units is exempt from the rent board fee, you must complete an exemption. If you own residential property in san francisco, find out if you need to pay the rent board fee, how much, and how to pay. Obtain a. How To Pay Rent Board Fee San Francisco.
From www.businessinsider.com
Chart Shows How Expensive San Francisco Rent Became in 2014 How To Pay Rent Board Fee San Francisco The rent board fee and housing inventory portal is a secure database that allows users to view property information, comply with the city’s. If you believe that one or more of your units is exempt from the rent board fee, you must complete an exemption. Apply to raise rents for capital. If a tenant does not pay it, the landlord.. How To Pay Rent Board Fee San Francisco.
From www.furnrentals.co.nz
Rates 2020 Furn Rentals How To Pay Rent Board Fee San Francisco Obtain a license to increase rents for tenants covered by rent control; Apply to raise rents for capital. If you own residential property in san francisco, find out if you need to pay the rent board fee, how much, and how to pay. The rent board portal is where you can pay your rent board fee and file with the. How To Pay Rent Board Fee San Francisco.
From www.templateroller.com
Form 599 Download Fillable PDF or Fill Online Request for Exemption of How To Pay Rent Board Fee San Francisco If you believe that one or more of your units is exempt from the rent board fee, you must complete an exemption. Obtain a license to increase rents for tenants covered by rent control; If a tenant does not pay it, the landlord. Pay your rent board fee. You will need to set up an account. Update ownership and business. How To Pay Rent Board Fee San Francisco.
From www.bancalsf.com
The Proper Way to Collect Rent From Your San Francisco Tenants How To Pay Rent Board Fee San Francisco If a tenant does not pay it, the landlord. The rent board portal is where you can pay your rent board fee and file with the housing inventory. If you believe that one or more of your units is exempt from the rent board fee, you must complete an exemption. Apply to raise rents for capital. You will need to. How To Pay Rent Board Fee San Francisco.
From gpmsf.com
San Francisco's New Legislation Rent Board Fee Collection Gordon PM How To Pay Rent Board Fee San Francisco If you own residential property in san francisco, find out if you need to pay the rent board fee, how much, and how to pay. Update ownership and business contact information; The rent board portal is where you can pay your rent board fee and file with the housing inventory. If you believe that one or more of your units. How To Pay Rent Board Fee San Francisco.
From bornstein.law
SF rent registry deadline passes How To Pay Rent Board Fee San Francisco If you own residential property in san francisco, find out if you need to pay the rent board fee, how much, and how to pay. The rent board fee and housing inventory portal is a secure database that allows users to view property information, comply with the city’s. If you believe that one or more of your units is exempt. How To Pay Rent Board Fee San Francisco.
From klaobdtms.blob.core.windows.net
Best Time To Rent Apartment In San Francisco at Jonathan Myers blog How To Pay Rent Board Fee San Francisco You will need to set up an account. If you believe that one or more of your units is exempt from the rent board fee, you must complete an exemption. Update ownership and business contact information; If you own residential property in san francisco, find out if you need to pay the rent board fee, how much, and how to. How To Pay Rent Board Fee San Francisco.
From www.dealmoon.com
三藩市出租單位費用 San Francisco Rent Board Fee北美省钱快报 攻略 How To Pay Rent Board Fee San Francisco Pay your rent board fee. Apply to raise rents for capital. If a tenant does not pay it, the landlord. The rent board portal is where you can pay your rent board fee and file with the housing inventory. Update ownership and business contact information; If you own residential property in san francisco, find out if you need to pay. How To Pay Rent Board Fee San Francisco.
From www.onerent.co
San Francisco Bay Area Rent Control Cheat Sheet Free Download How To Pay Rent Board Fee San Francisco Pay your rent board fee. Apply to raise rents for capital. If you believe that one or more of your units is exempt from the rent board fee, you must complete an exemption. The rent board portal is where you can pay your rent board fee and file with the housing inventory. If you own residential property in san francisco,. How To Pay Rent Board Fee San Francisco.
From www.sf.gov
The Rent Board Fee San Francisco How To Pay Rent Board Fee San Francisco Pay your rent board fee. The rent board fee and housing inventory portal is a secure database that allows users to view property information, comply with the city’s. Apply to raise rents for capital. Update ownership and business contact information; If you believe that one or more of your units is exempt from the rent board fee, you must complete. How To Pay Rent Board Fee San Francisco.
From www.reddit.com
[Landlord US, CA, SF] anyone know the background of rent board How To Pay Rent Board Fee San Francisco The rent board portal is where you can pay your rent board fee and file with the housing inventory. If a tenant does not pay it, the landlord. Apply to raise rents for capital. Obtain a license to increase rents for tenants covered by rent control; The rent board fee and housing inventory portal is a secure database that allows. How To Pay Rent Board Fee San Francisco.
From www.sfgate.com
Bay Area rents, home prices up sharply SFGate How To Pay Rent Board Fee San Francisco Update ownership and business contact information; Apply to raise rents for capital. The rent board portal is where you can pay your rent board fee and file with the housing inventory. If a tenant does not pay it, the landlord. You will need to set up an account. Pay your rent board fee. The rent board fee and housing inventory. How To Pay Rent Board Fee San Francisco.
From www.phillymag.com
Map Average Rental Prices in San Francisco. Whoa. How To Pay Rent Board Fee San Francisco The rent board portal is where you can pay your rent board fee and file with the housing inventory. Pay your rent board fee. If a tenant does not pay it, the landlord. Obtain a license to increase rents for tenants covered by rent control; Update ownership and business contact information; You will need to set up an account. The. How To Pay Rent Board Fee San Francisco.
From thefrontsteps.com
In San Francisco More Households Making Over 150,000/year Choose To How To Pay Rent Board Fee San Francisco If you believe that one or more of your units is exempt from the rent board fee, you must complete an exemption. The rent board portal is where you can pay your rent board fee and file with the housing inventory. If you own residential property in san francisco, find out if you need to pay the rent board fee,. How To Pay Rent Board Fee San Francisco.