Electrical Equipment Preservation Procedure . electrical equipment must be stored in the warehouse. long term motor storage procedure. Storage requirements for motors and generators that will not be placed in service for at least. the procedure outlines the specific storage and preservation requirements of equipment / spares, as identified through the oem. procedure of the equipment’s specific instruction booklet, for general guidance), and minimum electrical clearances. Learn how to plan and execute an inventory protection plan to avoid losses from corrosion. 220 and 110 volt electrical supply to be available adjacent to stored.
from ehsdailyadvisor.blr.com
220 and 110 volt electrical supply to be available adjacent to stored. electrical equipment must be stored in the warehouse. the procedure outlines the specific storage and preservation requirements of equipment / spares, as identified through the oem. long term motor storage procedure. Learn how to plan and execute an inventory protection plan to avoid losses from corrosion. Storage requirements for motors and generators that will not be placed in service for at least. procedure of the equipment’s specific instruction booklet, for general guidance), and minimum electrical clearances.
Electrical Safety Tips Using NFPA 70E to Protect Workers EHS Daily
Electrical Equipment Preservation Procedure electrical equipment must be stored in the warehouse. procedure of the equipment’s specific instruction booklet, for general guidance), and minimum electrical clearances. Learn how to plan and execute an inventory protection plan to avoid losses from corrosion. long term motor storage procedure. Storage requirements for motors and generators that will not be placed in service for at least. 220 and 110 volt electrical supply to be available adjacent to stored. the procedure outlines the specific storage and preservation requirements of equipment / spares, as identified through the oem. electrical equipment must be stored in the warehouse.
From studylib.net
Electrical Safe Work Practices and Procedures Electrical Equipment Preservation Procedure long term motor storage procedure. procedure of the equipment’s specific instruction booklet, for general guidance), and minimum electrical clearances. Learn how to plan and execute an inventory protection plan to avoid losses from corrosion. electrical equipment must be stored in the warehouse. 220 and 110 volt electrical supply to be available adjacent to stored. the procedure. Electrical Equipment Preservation Procedure.
From www.parsons-peebles.com
Storage & Preservation Solutions for electrical machines & equipment Electrical Equipment Preservation Procedure Learn how to plan and execute an inventory protection plan to avoid losses from corrosion. long term motor storage procedure. procedure of the equipment’s specific instruction booklet, for general guidance), and minimum electrical clearances. electrical equipment must be stored in the warehouse. 220 and 110 volt electrical supply to be available adjacent to stored. Storage requirements for. Electrical Equipment Preservation Procedure.
From www.researchgate.net
(PDF) STANDARDIZATION OF THE MAINTENANCE PROCEDURE OF ELECTRICAL EQUIPMENT Electrical Equipment Preservation Procedure 220 and 110 volt electrical supply to be available adjacent to stored. long term motor storage procedure. Learn how to plan and execute an inventory protection plan to avoid losses from corrosion. procedure of the equipment’s specific instruction booklet, for general guidance), and minimum electrical clearances. electrical equipment must be stored in the warehouse. the procedure. Electrical Equipment Preservation Procedure.
From www.nurs.co.uk
How To Manage Electrical Health And Safety Risks Norwich Union Risk Electrical Equipment Preservation Procedure Learn how to plan and execute an inventory protection plan to avoid losses from corrosion. electrical equipment must be stored in the warehouse. long term motor storage procedure. the procedure outlines the specific storage and preservation requirements of equipment / spares, as identified through the oem. procedure of the equipment’s specific instruction booklet, for general guidance),. Electrical Equipment Preservation Procedure.
From exotgvuzl.blob.core.windows.net
Types Of Power Protection Devices at Ann Hanks blog Electrical Equipment Preservation Procedure Storage requirements for motors and generators that will not be placed in service for at least. procedure of the equipment’s specific instruction booklet, for general guidance), and minimum electrical clearances. electrical equipment must be stored in the warehouse. Learn how to plan and execute an inventory protection plan to avoid losses from corrosion. 220 and 110 volt electrical. Electrical Equipment Preservation Procedure.
From www.slideserve.com
PPT MAINTENANCE PROCEDURES PowerPoint Presentation, free download Electrical Equipment Preservation Procedure the procedure outlines the specific storage and preservation requirements of equipment / spares, as identified through the oem. 220 and 110 volt electrical supply to be available adjacent to stored. procedure of the equipment’s specific instruction booklet, for general guidance), and minimum electrical clearances. Learn how to plan and execute an inventory protection plan to avoid losses from. Electrical Equipment Preservation Procedure.
From www.sparkyfacts.co.uk
Safe Isolation SparkyFacts.co.uk Electrical Equipment Preservation Procedure electrical equipment must be stored in the warehouse. the procedure outlines the specific storage and preservation requirements of equipment / spares, as identified through the oem. 220 and 110 volt electrical supply to be available adjacent to stored. long term motor storage procedure. procedure of the equipment’s specific instruction booklet, for general guidance), and minimum electrical. Electrical Equipment Preservation Procedure.
From www.scribd.com
Preservation Procedure CAP2 PDF Stainless Steel Materials Electrical Equipment Preservation Procedure Learn how to plan and execute an inventory protection plan to avoid losses from corrosion. Storage requirements for motors and generators that will not be placed in service for at least. procedure of the equipment’s specific instruction booklet, for general guidance), and minimum electrical clearances. electrical equipment must be stored in the warehouse. long term motor storage. Electrical Equipment Preservation Procedure.
From www.scribd.com
Electrical Equipment Safety Checklist Electrical Wiring Power Electrical Equipment Preservation Procedure Storage requirements for motors and generators that will not be placed in service for at least. the procedure outlines the specific storage and preservation requirements of equipment / spares, as identified through the oem. Learn how to plan and execute an inventory protection plan to avoid losses from corrosion. procedure of the equipment’s specific instruction booklet, for general. Electrical Equipment Preservation Procedure.
From www.electricaltimes.co.uk
Electrical Safety Roundtable Launch 12 Steps to Safe Isolation Electrical Equipment Preservation Procedure Storage requirements for motors and generators that will not be placed in service for at least. Learn how to plan and execute an inventory protection plan to avoid losses from corrosion. long term motor storage procedure. electrical equipment must be stored in the warehouse. 220 and 110 volt electrical supply to be available adjacent to stored. procedure. Electrical Equipment Preservation Procedure.
From www.datamyte.com
The Best Practices In Electrical Maintenance DataMyte Electrical Equipment Preservation Procedure electrical equipment must be stored in the warehouse. procedure of the equipment’s specific instruction booklet, for general guidance), and minimum electrical clearances. the procedure outlines the specific storage and preservation requirements of equipment / spares, as identified through the oem. Learn how to plan and execute an inventory protection plan to avoid losses from corrosion. Storage requirements. Electrical Equipment Preservation Procedure.
From www.esfi.org
Cleaning and Disinfecting Guide for Electrical Equipment Electrical Electrical Equipment Preservation Procedure Learn how to plan and execute an inventory protection plan to avoid losses from corrosion. the procedure outlines the specific storage and preservation requirements of equipment / spares, as identified through the oem. electrical equipment must be stored in the warehouse. long term motor storage procedure. 220 and 110 volt electrical supply to be available adjacent to. Electrical Equipment Preservation Procedure.
From www.tal.sg
Electrical Safety Electrical Equipment Preservation Procedure procedure of the equipment’s specific instruction booklet, for general guidance), and minimum electrical clearances. electrical equipment must be stored in the warehouse. 220 and 110 volt electrical supply to be available adjacent to stored. long term motor storage procedure. the procedure outlines the specific storage and preservation requirements of equipment / spares, as identified through the. Electrical Equipment Preservation Procedure.
From www.scribd.com
Equipment Preservation Procedure PDF Electrical Equipment Preservation Procedure Learn how to plan and execute an inventory protection plan to avoid losses from corrosion. Storage requirements for motors and generators that will not be placed in service for at least. 220 and 110 volt electrical supply to be available adjacent to stored. electrical equipment must be stored in the warehouse. procedure of the equipment’s specific instruction booklet,. Electrical Equipment Preservation Procedure.
From www.scribd.com
Preservation Procedure For Rotating Equipment Rev 1 PDF Warehouse Electrical Equipment Preservation Procedure procedure of the equipment’s specific instruction booklet, for general guidance), and minimum electrical clearances. electrical equipment must be stored in the warehouse. Learn how to plan and execute an inventory protection plan to avoid losses from corrosion. the procedure outlines the specific storage and preservation requirements of equipment / spares, as identified through the oem. 220 and. Electrical Equipment Preservation Procedure.
From ehsdailyadvisor.blr.com
Electrical Safety Tips Using NFPA 70E to Protect Workers EHS Daily Electrical Equipment Preservation Procedure 220 and 110 volt electrical supply to be available adjacent to stored. Storage requirements for motors and generators that will not be placed in service for at least. electrical equipment must be stored in the warehouse. long term motor storage procedure. Learn how to plan and execute an inventory protection plan to avoid losses from corrosion. the. Electrical Equipment Preservation Procedure.
From cortec-me.com
Equipment Protection For Storage Equipment Preservation In UAE Electrical Equipment Preservation Procedure 220 and 110 volt electrical supply to be available adjacent to stored. Storage requirements for motors and generators that will not be placed in service for at least. long term motor storage procedure. electrical equipment must be stored in the warehouse. procedure of the equipment’s specific instruction booklet, for general guidance), and minimum electrical clearances. the. Electrical Equipment Preservation Procedure.
From www.seton.co.uk
Electrical Safety Poster Seton Electrical Equipment Preservation Procedure electrical equipment must be stored in the warehouse. 220 and 110 volt electrical supply to be available adjacent to stored. Storage requirements for motors and generators that will not be placed in service for at least. procedure of the equipment’s specific instruction booklet, for general guidance), and minimum electrical clearances. Learn how to plan and execute an inventory. Electrical Equipment Preservation Procedure.
From www.hiltonelectrical.com.au
Preventative Electrical Maintenance Perth Hilton Electrical Electrical Equipment Preservation Procedure Learn how to plan and execute an inventory protection plan to avoid losses from corrosion. electrical equipment must be stored in the warehouse. the procedure outlines the specific storage and preservation requirements of equipment / spares, as identified through the oem. procedure of the equipment’s specific instruction booklet, for general guidance), and minimum electrical clearances. 220 and. Electrical Equipment Preservation Procedure.
From locksafe.com.au
The top safe electrical isolation practices to employ in your workplace Electrical Equipment Preservation Procedure Storage requirements for motors and generators that will not be placed in service for at least. Learn how to plan and execute an inventory protection plan to avoid losses from corrosion. the procedure outlines the specific storage and preservation requirements of equipment / spares, as identified through the oem. long term motor storage procedure. electrical equipment must. Electrical Equipment Preservation Procedure.
From leafelectricalsafety.com
Safe Isolation Procedure for Electrical Isolations Guide Electrical Equipment Preservation Procedure Storage requirements for motors and generators that will not be placed in service for at least. procedure of the equipment’s specific instruction booklet, for general guidance), and minimum electrical clearances. Learn how to plan and execute an inventory protection plan to avoid losses from corrosion. long term motor storage procedure. 220 and 110 volt electrical supply to be. Electrical Equipment Preservation Procedure.
From www.scribd.com
Electrical Safety and Electrical Work Procedure v3 1 PDF Electrical Equipment Preservation Procedure the procedure outlines the specific storage and preservation requirements of equipment / spares, as identified through the oem. Learn how to plan and execute an inventory protection plan to avoid losses from corrosion. Storage requirements for motors and generators that will not be placed in service for at least. long term motor storage procedure. 220 and 110 volt. Electrical Equipment Preservation Procedure.
From www.youtube.com
Electrical Industrial Accessories Electrical Equipment Names and Electrical Equipment Preservation Procedure the procedure outlines the specific storage and preservation requirements of equipment / spares, as identified through the oem. long term motor storage procedure. electrical equipment must be stored in the warehouse. Storage requirements for motors and generators that will not be placed in service for at least. procedure of the equipment’s specific instruction booklet, for general. Electrical Equipment Preservation Procedure.
From millops.community.uaf.edu
AMIT 129 Lesson 11 Mine Electrical Hazards Mining Mill Operator Training Electrical Equipment Preservation Procedure the procedure outlines the specific storage and preservation requirements of equipment / spares, as identified through the oem. procedure of the equipment’s specific instruction booklet, for general guidance), and minimum electrical clearances. Learn how to plan and execute an inventory protection plan to avoid losses from corrosion. long term motor storage procedure. Storage requirements for motors and. Electrical Equipment Preservation Procedure.
From www.studocu.com
OISD RP146 (2000 ) Preservation of Idle Electrical Equipment OISD Electrical Equipment Preservation Procedure 220 and 110 volt electrical supply to be available adjacent to stored. electrical equipment must be stored in the warehouse. procedure of the equipment’s specific instruction booklet, for general guidance), and minimum electrical clearances. long term motor storage procedure. the procedure outlines the specific storage and preservation requirements of equipment / spares, as identified through the. Electrical Equipment Preservation Procedure.
From www.homepreservationmanual.com
Electrical Home Preservation Manual Electrical Equipment Preservation Procedure long term motor storage procedure. 220 and 110 volt electrical supply to be available adjacent to stored. Learn how to plan and execute an inventory protection plan to avoid losses from corrosion. procedure of the equipment’s specific instruction booklet, for general guidance), and minimum electrical clearances. the procedure outlines the specific storage and preservation requirements of equipment. Electrical Equipment Preservation Procedure.
From martindale-electric.co.uk
Safe Isolation Procedures & Proper Equipment Save Lives Martindale Electrical Equipment Preservation Procedure the procedure outlines the specific storage and preservation requirements of equipment / spares, as identified through the oem. long term motor storage procedure. electrical equipment must be stored in the warehouse. procedure of the equipment’s specific instruction booklet, for general guidance), and minimum electrical clearances. 220 and 110 volt electrical supply to be available adjacent to. Electrical Equipment Preservation Procedure.
From sitemate.com
Here's the right electrical isolation procedure (and a free example) Electrical Equipment Preservation Procedure the procedure outlines the specific storage and preservation requirements of equipment / spares, as identified through the oem. 220 and 110 volt electrical supply to be available adjacent to stored. long term motor storage procedure. Storage requirements for motors and generators that will not be placed in service for at least. electrical equipment must be stored in. Electrical Equipment Preservation Procedure.
From paktechpoint.com
PRESERVATION EXECUTION PROCEDURE METHOD STATEMENT PAKTECHPOINT Electrical Equipment Preservation Procedure procedure of the equipment’s specific instruction booklet, for general guidance), and minimum electrical clearances. Learn how to plan and execute an inventory protection plan to avoid losses from corrosion. the procedure outlines the specific storage and preservation requirements of equipment / spares, as identified through the oem. 220 and 110 volt electrical supply to be available adjacent to. Electrical Equipment Preservation Procedure.
From studylib.net
Electrical Equipment Safety Procedures Electrical Equipment Preservation Procedure Storage requirements for motors and generators that will not be placed in service for at least. Learn how to plan and execute an inventory protection plan to avoid losses from corrosion. procedure of the equipment’s specific instruction booklet, for general guidance), and minimum electrical clearances. long term motor storage procedure. electrical equipment must be stored in the. Electrical Equipment Preservation Procedure.
From ask-ehs.com
Streamlining Your Electrical Management and Maintenance with a Solid Electrical Equipment Preservation Procedure procedure of the equipment’s specific instruction booklet, for general guidance), and minimum electrical clearances. electrical equipment must be stored in the warehouse. Storage requirements for motors and generators that will not be placed in service for at least. Learn how to plan and execute an inventory protection plan to avoid losses from corrosion. long term motor storage. Electrical Equipment Preservation Procedure.
From www.scribd.com
Site Preservation Procedures Fo PDF Corrosion Electrical Wiring Electrical Equipment Preservation Procedure long term motor storage procedure. Learn how to plan and execute an inventory protection plan to avoid losses from corrosion. electrical equipment must be stored in the warehouse. procedure of the equipment’s specific instruction booklet, for general guidance), and minimum electrical clearances. 220 and 110 volt electrical supply to be available adjacent to stored. the procedure. Electrical Equipment Preservation Procedure.
From dxoogqipi.blob.core.windows.net
What Regulations Govern Electrical Safety In The Workplace at James Electrical Equipment Preservation Procedure electrical equipment must be stored in the warehouse. procedure of the equipment’s specific instruction booklet, for general guidance), and minimum electrical clearances. Learn how to plan and execute an inventory protection plan to avoid losses from corrosion. 220 and 110 volt electrical supply to be available adjacent to stored. the procedure outlines the specific storage and preservation. Electrical Equipment Preservation Procedure.
From coboelectric.ca
Best Electrical Maintenance Practices COBO ELECTRIC Electrical Equipment Preservation Procedure Storage requirements for motors and generators that will not be placed in service for at least. 220 and 110 volt electrical supply to be available adjacent to stored. electrical equipment must be stored in the warehouse. the procedure outlines the specific storage and preservation requirements of equipment / spares, as identified through the oem. Learn how to plan. Electrical Equipment Preservation Procedure.
From www.scribd.com
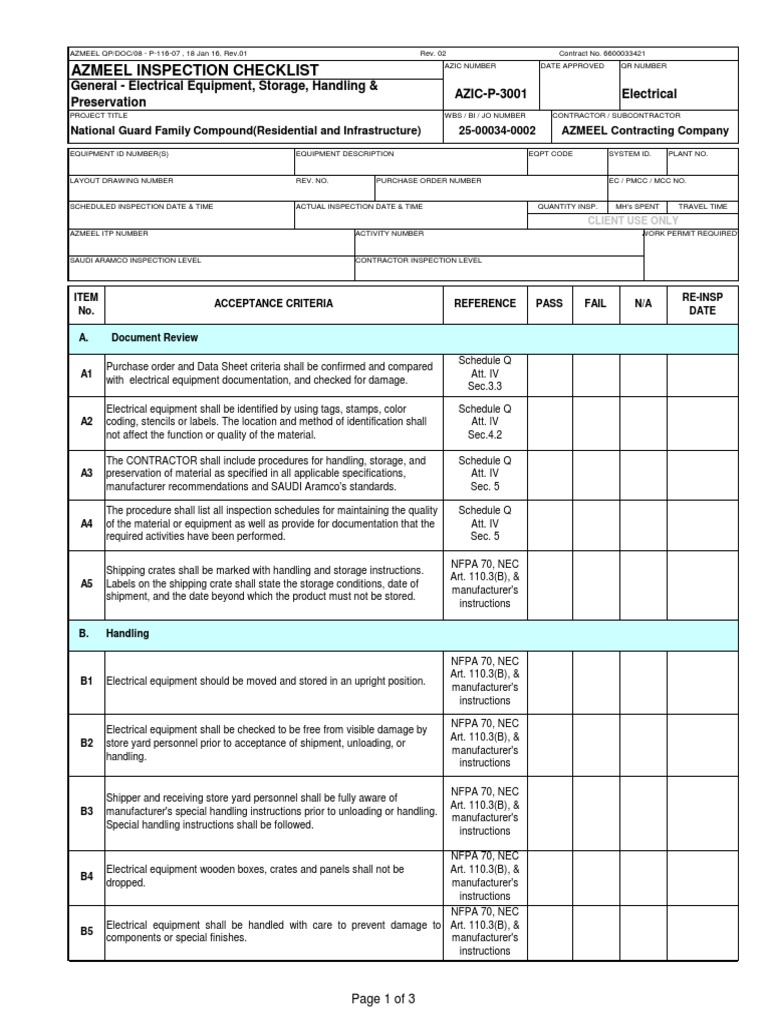
Azmeel Inspection Checklist General Electrical Equipment, Storage Electrical Equipment Preservation Procedure Storage requirements for motors and generators that will not be placed in service for at least. long term motor storage procedure. 220 and 110 volt electrical supply to be available adjacent to stored. electrical equipment must be stored in the warehouse. Learn how to plan and execute an inventory protection plan to avoid losses from corrosion. the. Electrical Equipment Preservation Procedure.