Preventive Maintenance Checklist For Low Voltage Switchgear . if your facility’s priorities involve safety, extending equipment life, or meeting a budget, mastering switchgear preventative maintenance. cleaning of the modules. Check of the electrical components. Electrical installations cover only fixed. this document covers the procedures and recommendations for the maintenance of low voltage electrical switchboards and. Introduction to maxsg low voltage switchgear.1. major inspection should be scheduled for power plant shutdowns and concentrate for low voltage switchboards on identifying contact. Check of the contact system. Guides for electrical equipment and low voltage overcurrent protective device maintenance and. this paper will explore:
from mariana-blogcochran.blogspot.com
cleaning of the modules. Guides for electrical equipment and low voltage overcurrent protective device maintenance and. Introduction to maxsg low voltage switchgear.1. if your facility’s priorities involve safety, extending equipment life, or meeting a budget, mastering switchgear preventative maintenance. this document covers the procedures and recommendations for the maintenance of low voltage electrical switchboards and. this paper will explore: Electrical installations cover only fixed. Check of the contact system. Check of the electrical components. major inspection should be scheduled for power plant shutdowns and concentrate for low voltage switchboards on identifying contact.
Car Preventive Maintenance Checklist
Preventive Maintenance Checklist For Low Voltage Switchgear this paper will explore: this paper will explore: cleaning of the modules. Check of the contact system. Electrical installations cover only fixed. Introduction to maxsg low voltage switchgear.1. Check of the electrical components. this document covers the procedures and recommendations for the maintenance of low voltage electrical switchboards and. if your facility’s priorities involve safety, extending equipment life, or meeting a budget, mastering switchgear preventative maintenance. Guides for electrical equipment and low voltage overcurrent protective device maintenance and. major inspection should be scheduled for power plant shutdowns and concentrate for low voltage switchboards on identifying contact.
From www.vrogue.co
Forklift Preventive Maintenance Checklist Excel Form vrogue.co Preventive Maintenance Checklist For Low Voltage Switchgear cleaning of the modules. this document covers the procedures and recommendations for the maintenance of low voltage electrical switchboards and. major inspection should be scheduled for power plant shutdowns and concentrate for low voltage switchboards on identifying contact. this paper will explore: Guides for electrical equipment and low voltage overcurrent protective device maintenance and. Check of. Preventive Maintenance Checklist For Low Voltage Switchgear.
From ritajmcarthuro.blob.core.windows.net
Building Preventive Maintenance Checklist Excel at ritajmcarthuro blog Preventive Maintenance Checklist For Low Voltage Switchgear this document covers the procedures and recommendations for the maintenance of low voltage electrical switchboards and. Check of the contact system. Guides for electrical equipment and low voltage overcurrent protective device maintenance and. Introduction to maxsg low voltage switchgear.1. if your facility’s priorities involve safety, extending equipment life, or meeting a budget, mastering switchgear preventative maintenance. Electrical installations. Preventive Maintenance Checklist For Low Voltage Switchgear.
From mavink.com
Conveyor Preventive Maintenance Checklist Preventive Maintenance Checklist For Low Voltage Switchgear this document covers the procedures and recommendations for the maintenance of low voltage electrical switchboards and. Introduction to maxsg low voltage switchgear.1. this paper will explore: Check of the electrical components. major inspection should be scheduled for power plant shutdowns and concentrate for low voltage switchboards on identifying contact. Guides for electrical equipment and low voltage overcurrent. Preventive Maintenance Checklist For Low Voltage Switchgear.
From es.scribd.com
Comprehensive Electrical System Maintenance Checklists Switch Preventive Maintenance Checklist For Low Voltage Switchgear major inspection should be scheduled for power plant shutdowns and concentrate for low voltage switchboards on identifying contact. Introduction to maxsg low voltage switchgear.1. this document covers the procedures and recommendations for the maintenance of low voltage electrical switchboards and. this paper will explore: Electrical installations cover only fixed. cleaning of the modules. Check of the. Preventive Maintenance Checklist For Low Voltage Switchgear.
From www.scribd.com
Switchgear Checklist Relay Switch Preventive Maintenance Checklist For Low Voltage Switchgear Electrical installations cover only fixed. Check of the contact system. this document covers the procedures and recommendations for the maintenance of low voltage electrical switchboards and. Check of the electrical components. this paper will explore: Introduction to maxsg low voltage switchgear.1. cleaning of the modules. Guides for electrical equipment and low voltage overcurrent protective device maintenance and.. Preventive Maintenance Checklist For Low Voltage Switchgear.
From machinefixauspices.z1.web.core.windows.net
Electrical Panel Inspection Sheet Preventive Maintenance Checklist For Low Voltage Switchgear if your facility’s priorities involve safety, extending equipment life, or meeting a budget, mastering switchgear preventative maintenance. this paper will explore: Guides for electrical equipment and low voltage overcurrent protective device maintenance and. this document covers the procedures and recommendations for the maintenance of low voltage electrical switchboards and. Electrical installations cover only fixed. Introduction to maxsg. Preventive Maintenance Checklist For Low Voltage Switchgear.
From www.ftq360.com
LowVoltage Switchgear Inspection Checklist l Speciality Contractor Preventive Maintenance Checklist For Low Voltage Switchgear major inspection should be scheduled for power plant shutdowns and concentrate for low voltage switchboards on identifying contact. if your facility’s priorities involve safety, extending equipment life, or meeting a budget, mastering switchgear preventative maintenance. Guides for electrical equipment and low voltage overcurrent protective device maintenance and. cleaning of the modules. Introduction to maxsg low voltage switchgear.1.. Preventive Maintenance Checklist For Low Voltage Switchgear.
From paktechpoint.com
NEC Medium Voltage Switchgear Design Requirement PAKTECHPOINT Preventive Maintenance Checklist For Low Voltage Switchgear major inspection should be scheduled for power plant shutdowns and concentrate for low voltage switchboards on identifying contact. cleaning of the modules. if your facility’s priorities involve safety, extending equipment life, or meeting a budget, mastering switchgear preventative maintenance. Electrical installations cover only fixed. Check of the contact system. Introduction to maxsg low voltage switchgear.1. this. Preventive Maintenance Checklist For Low Voltage Switchgear.
From www.uslegalforms.com
Switchboard Inspection Checklist Fill and Sign Printable Template Preventive Maintenance Checklist For Low Voltage Switchgear if your facility’s priorities involve safety, extending equipment life, or meeting a budget, mastering switchgear preventative maintenance. Check of the electrical components. cleaning of the modules. Electrical installations cover only fixed. this paper will explore: Introduction to maxsg low voltage switchgear.1. Guides for electrical equipment and low voltage overcurrent protective device maintenance and. this document covers. Preventive Maintenance Checklist For Low Voltage Switchgear.
From www.dochub.com
Switchgear preventive maintenance checklist pdf Fill out & sign online Preventive Maintenance Checklist For Low Voltage Switchgear this document covers the procedures and recommendations for the maintenance of low voltage electrical switchboards and. cleaning of the modules. if your facility’s priorities involve safety, extending equipment life, or meeting a budget, mastering switchgear preventative maintenance. Check of the contact system. Introduction to maxsg low voltage switchgear.1. Guides for electrical equipment and low voltage overcurrent protective. Preventive Maintenance Checklist For Low Voltage Switchgear.
From www.pinterest.ch
Image result for pump motor maintenance checklist Preventive Preventive Maintenance Checklist For Low Voltage Switchgear Guides for electrical equipment and low voltage overcurrent protective device maintenance and. Electrical installations cover only fixed. cleaning of the modules. Check of the electrical components. this document covers the procedures and recommendations for the maintenance of low voltage electrical switchboards and. this paper will explore: if your facility’s priorities involve safety, extending equipment life, or. Preventive Maintenance Checklist For Low Voltage Switchgear.
From inspectionandtestplan.com
Full ITP for MCC's & Switchgear Installation with Checklists [Editable] Preventive Maintenance Checklist For Low Voltage Switchgear Check of the electrical components. Electrical installations cover only fixed. Introduction to maxsg low voltage switchgear.1. if your facility’s priorities involve safety, extending equipment life, or meeting a budget, mastering switchgear preventative maintenance. cleaning of the modules. Check of the contact system. this paper will explore: major inspection should be scheduled for power plant shutdowns and. Preventive Maintenance Checklist For Low Voltage Switchgear.
From ar.inspiredpencil.com
Preventive Maintenance Forms Examples Preventive Maintenance Checklist For Low Voltage Switchgear major inspection should be scheduled for power plant shutdowns and concentrate for low voltage switchboards on identifying contact. this paper will explore: Check of the electrical components. if your facility’s priorities involve safety, extending equipment life, or meeting a budget, mastering switchgear preventative maintenance. this document covers the procedures and recommendations for the maintenance of low. Preventive Maintenance Checklist For Low Voltage Switchgear.
From www.scribd.com
Building name/ref Panel ref Electrical Contractor Main Contractor Preventive Maintenance Checklist For Low Voltage Switchgear major inspection should be scheduled for power plant shutdowns and concentrate for low voltage switchboards on identifying contact. this document covers the procedures and recommendations for the maintenance of low voltage electrical switchboards and. Guides for electrical equipment and low voltage overcurrent protective device maintenance and. cleaning of the modules. Introduction to maxsg low voltage switchgear.1. Check. Preventive Maintenance Checklist For Low Voltage Switchgear.
From www.scribd.com
Inspection Checklist For SMDBs & MDBs PDF Fuse (Electrical) Switch Preventive Maintenance Checklist For Low Voltage Switchgear Check of the contact system. Electrical installations cover only fixed. cleaning of the modules. this document covers the procedures and recommendations for the maintenance of low voltage electrical switchboards and. Check of the electrical components. Introduction to maxsg low voltage switchgear.1. if your facility’s priorities involve safety, extending equipment life, or meeting a budget, mastering switchgear preventative. Preventive Maintenance Checklist For Low Voltage Switchgear.
From www.pinterest.com
Preventive Maintenance Schedule format Pdf Luxury Electrical Preventive Maintenance Checklist For Low Voltage Switchgear major inspection should be scheduled for power plant shutdowns and concentrate for low voltage switchboards on identifying contact. if your facility’s priorities involve safety, extending equipment life, or meeting a budget, mastering switchgear preventative maintenance. Guides for electrical equipment and low voltage overcurrent protective device maintenance and. cleaning of the modules. Introduction to maxsg low voltage switchgear.1.. Preventive Maintenance Checklist For Low Voltage Switchgear.
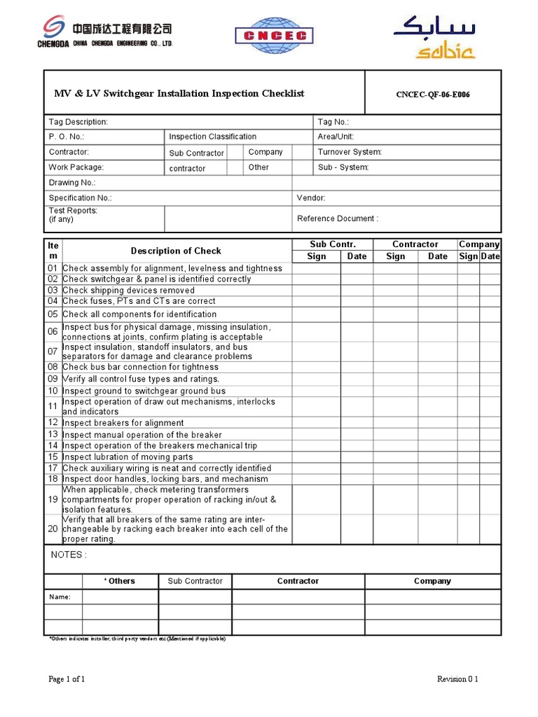
From www.scribd.com
CNCECQF06E006 MV LV Switchgear Installation Inspection Checklist Preventive Maintenance Checklist For Low Voltage Switchgear Introduction to maxsg low voltage switchgear.1. Electrical installations cover only fixed. major inspection should be scheduled for power plant shutdowns and concentrate for low voltage switchboards on identifying contact. cleaning of the modules. Guides for electrical equipment and low voltage overcurrent protective device maintenance and. Check of the contact system. Check of the electrical components. this document. Preventive Maintenance Checklist For Low Voltage Switchgear.
From inspectionandtestplan.com
Full ITP for MCC's & Switchgear Installation with Checklists [Editable] Preventive Maintenance Checklist For Low Voltage Switchgear Electrical installations cover only fixed. Guides for electrical equipment and low voltage overcurrent protective device maintenance and. Check of the contact system. Introduction to maxsg low voltage switchgear.1. Check of the electrical components. major inspection should be scheduled for power plant shutdowns and concentrate for low voltage switchboards on identifying contact. cleaning of the modules. this document. Preventive Maintenance Checklist For Low Voltage Switchgear.
From electrical-engineering-portal.com
Maintenance and troubleshooting guidelines for a typical high voltage Preventive Maintenance Checklist For Low Voltage Switchgear major inspection should be scheduled for power plant shutdowns and concentrate for low voltage switchboards on identifying contact. Electrical installations cover only fixed. Guides for electrical equipment and low voltage overcurrent protective device maintenance and. cleaning of the modules. Check of the contact system. Introduction to maxsg low voltage switchgear.1. this document covers the procedures and recommendations. Preventive Maintenance Checklist For Low Voltage Switchgear.
From mariana-blogcochran.blogspot.com
Car Preventive Maintenance Checklist Preventive Maintenance Checklist For Low Voltage Switchgear this document covers the procedures and recommendations for the maintenance of low voltage electrical switchboards and. Introduction to maxsg low voltage switchgear.1. major inspection should be scheduled for power plant shutdowns and concentrate for low voltage switchboards on identifying contact. Electrical installations cover only fixed. this paper will explore: Guides for electrical equipment and low voltage overcurrent. Preventive Maintenance Checklist For Low Voltage Switchgear.
From www.vrogue.co
Internal Inspection Check List Ocs Engineering Constr vrogue.co Preventive Maintenance Checklist For Low Voltage Switchgear major inspection should be scheduled for power plant shutdowns and concentrate for low voltage switchboards on identifying contact. if your facility’s priorities involve safety, extending equipment life, or meeting a budget, mastering switchgear preventative maintenance. Introduction to maxsg low voltage switchgear.1. cleaning of the modules. Electrical installations cover only fixed. Check of the contact system. this. Preventive Maintenance Checklist For Low Voltage Switchgear.
From www.researchgate.net
(PDF) MV SWITCHGEAR INSPECTION AND TEST PROCEDURE Preventive Maintenance Checklist For Low Voltage Switchgear Guides for electrical equipment and low voltage overcurrent protective device maintenance and. Electrical installations cover only fixed. this document covers the procedures and recommendations for the maintenance of low voltage electrical switchboards and. Check of the contact system. Introduction to maxsg low voltage switchgear.1. Check of the electrical components. major inspection should be scheduled for power plant shutdowns. Preventive Maintenance Checklist For Low Voltage Switchgear.
From printabletemplate.concejomunicipaldechinu.gov.co
Preventive Maintenance Schedule Template Excel Free Preventive Maintenance Checklist For Low Voltage Switchgear this paper will explore: Check of the contact system. Introduction to maxsg low voltage switchgear.1. if your facility’s priorities involve safety, extending equipment life, or meeting a budget, mastering switchgear preventative maintenance. Guides for electrical equipment and low voltage overcurrent protective device maintenance and. this document covers the procedures and recommendations for the maintenance of low voltage. Preventive Maintenance Checklist For Low Voltage Switchgear.
From read.cholonautas.edu.pe
Maintenance Of Hvac System Checklist Printable Templates Free Preventive Maintenance Checklist For Low Voltage Switchgear if your facility’s priorities involve safety, extending equipment life, or meeting a budget, mastering switchgear preventative maintenance. this paper will explore: major inspection should be scheduled for power plant shutdowns and concentrate for low voltage switchboards on identifying contact. Check of the contact system. this document covers the procedures and recommendations for the maintenance of low. Preventive Maintenance Checklist For Low Voltage Switchgear.
From www.scribd.com
Electrical Checklist Fnl Personal Protective Equipment Insulator Preventive Maintenance Checklist For Low Voltage Switchgear major inspection should be scheduled for power plant shutdowns and concentrate for low voltage switchboards on identifying contact. Electrical installations cover only fixed. cleaning of the modules. Introduction to maxsg low voltage switchgear.1. this paper will explore: Guides for electrical equipment and low voltage overcurrent protective device maintenance and. Check of the contact system. if your. Preventive Maintenance Checklist For Low Voltage Switchgear.
From www.switchgearresources.com
RealView mimic panel Switchgear Resources, inc. Preventive Maintenance Checklist For Low Voltage Switchgear major inspection should be scheduled for power plant shutdowns and concentrate for low voltage switchboards on identifying contact. if your facility’s priorities involve safety, extending equipment life, or meeting a budget, mastering switchgear preventative maintenance. this document covers the procedures and recommendations for the maintenance of low voltage electrical switchboards and. Check of the contact system. Introduction. Preventive Maintenance Checklist For Low Voltage Switchgear.
From www.dochub.com
Electrical preventive maintenance checklist template excel Fill out Preventive Maintenance Checklist For Low Voltage Switchgear this document covers the procedures and recommendations for the maintenance of low voltage electrical switchboards and. Check of the contact system. this paper will explore: Check of the electrical components. cleaning of the modules. Guides for electrical equipment and low voltage overcurrent protective device maintenance and. Electrical installations cover only fixed. if your facility’s priorities involve. Preventive Maintenance Checklist For Low Voltage Switchgear.
From dl-uk.apowersoft.com
Hvac Preventive Maintenance Checklist Template Preventive Maintenance Checklist For Low Voltage Switchgear Check of the contact system. cleaning of the modules. this document covers the procedures and recommendations for the maintenance of low voltage electrical switchboards and. this paper will explore: Guides for electrical equipment and low voltage overcurrent protective device maintenance and. if your facility’s priorities involve safety, extending equipment life, or meeting a budget, mastering switchgear. Preventive Maintenance Checklist For Low Voltage Switchgear.
From www.systems2win.com
Maintenance Schedule template Preventive Maintenance Checklist Preventive Maintenance Checklist For Low Voltage Switchgear if your facility’s priorities involve safety, extending equipment life, or meeting a budget, mastering switchgear preventative maintenance. major inspection should be scheduled for power plant shutdowns and concentrate for low voltage switchboards on identifying contact. Guides for electrical equipment and low voltage overcurrent protective device maintenance and. Electrical installations cover only fixed. cleaning of the modules. . Preventive Maintenance Checklist For Low Voltage Switchgear.
From www.vrogue.co
Pdf Mv Switchgear Inspection And Test Procedure vrogue.co Preventive Maintenance Checklist For Low Voltage Switchgear this paper will explore: Electrical installations cover only fixed. this document covers the procedures and recommendations for the maintenance of low voltage electrical switchboards and. Introduction to maxsg low voltage switchgear.1. cleaning of the modules. Check of the electrical components. Guides for electrical equipment and low voltage overcurrent protective device maintenance and. major inspection should be. Preventive Maintenance Checklist For Low Voltage Switchgear.
From blog.comeca-group.com
Maintenance of your LowVoltage switchboard Why and how? Preventive Maintenance Checklist For Low Voltage Switchgear Check of the electrical components. major inspection should be scheduled for power plant shutdowns and concentrate for low voltage switchboards on identifying contact. Introduction to maxsg low voltage switchgear.1. if your facility’s priorities involve safety, extending equipment life, or meeting a budget, mastering switchgear preventative maintenance. Electrical installations cover only fixed. cleaning of the modules. Guides for. Preventive Maintenance Checklist For Low Voltage Switchgear.
From www.researchgate.net
(PDF) CHECK LIST FORM SWITCHGEARGENERAL Preventive Maintenance Checklist For Low Voltage Switchgear Guides for electrical equipment and low voltage overcurrent protective device maintenance and. if your facility’s priorities involve safety, extending equipment life, or meeting a budget, mastering switchgear preventative maintenance. Check of the electrical components. Check of the contact system. cleaning of the modules. major inspection should be scheduled for power plant shutdowns and concentrate for low voltage. Preventive Maintenance Checklist For Low Voltage Switchgear.
From www.vrogue.co
Preventive Maintenance Electrical Checklist In Excel vrogue.co Preventive Maintenance Checklist For Low Voltage Switchgear this paper will explore: cleaning of the modules. Electrical installations cover only fixed. Guides for electrical equipment and low voltage overcurrent protective device maintenance and. if your facility’s priorities involve safety, extending equipment life, or meeting a budget, mastering switchgear preventative maintenance. Check of the contact system. Introduction to maxsg low voltage switchgear.1. major inspection should. Preventive Maintenance Checklist For Low Voltage Switchgear.
From olympiatech.net
Preventative Maintenance Checklist for Electrical Distribution Systems Preventive Maintenance Checklist For Low Voltage Switchgear Check of the contact system. Guides for electrical equipment and low voltage overcurrent protective device maintenance and. if your facility’s priorities involve safety, extending equipment life, or meeting a budget, mastering switchgear preventative maintenance. cleaning of the modules. major inspection should be scheduled for power plant shutdowns and concentrate for low voltage switchboards on identifying contact. Introduction. Preventive Maintenance Checklist For Low Voltage Switchgear.
From inspectionandtestplan.com
Full ITP for MCC's & Switchgear Installation with Checklists [Editable] Preventive Maintenance Checklist For Low Voltage Switchgear cleaning of the modules. Introduction to maxsg low voltage switchgear.1. Check of the electrical components. Guides for electrical equipment and low voltage overcurrent protective device maintenance and. if your facility’s priorities involve safety, extending equipment life, or meeting a budget, mastering switchgear preventative maintenance. this paper will explore: this document covers the procedures and recommendations for. Preventive Maintenance Checklist For Low Voltage Switchgear.