Pile Cap Slab . We just need to model this as a slab with its properties and incorporating. In this section, we will talk specifically about the calculations for pile caps. Since the pile cap is like a slab (but on the ground) we can use the safe program by csi to design a pile cap. Pile cap serves to transmit the load of the building into the hard strata of the soil via a pile or group of piles. Pile caps are thick concrete slabs that rest on top of a group of piles, effectively distributing the load and providing stability to the foundation. In this article, we are going to show how the structural design of reinforced concrete pile foundations and pile caps can be done. The main purpose of the construction of the pile cap is to distribute the load of the columns, which is usually too large for large construction, for underlying piles. These design results are not available when using piles and a slab to create your pile cap.
from www.thestructuralworld.com
The main purpose of the construction of the pile cap is to distribute the load of the columns, which is usually too large for large construction, for underlying piles. Since the pile cap is like a slab (but on the ground) we can use the safe program by csi to design a pile cap. These design results are not available when using piles and a slab to create your pile cap. In this section, we will talk specifically about the calculations for pile caps. In this article, we are going to show how the structural design of reinforced concrete pile foundations and pile caps can be done. Pile cap serves to transmit the load of the building into the hard strata of the soil via a pile or group of piles. We just need to model this as a slab with its properties and incorporating. Pile caps are thick concrete slabs that rest on top of a group of piles, effectively distributing the load and providing stability to the foundation.
How to Design Pile Caps in SAFE The Structural World
Pile Cap Slab In this article, we are going to show how the structural design of reinforced concrete pile foundations and pile caps can be done. In this section, we will talk specifically about the calculations for pile caps. We just need to model this as a slab with its properties and incorporating. Pile caps are thick concrete slabs that rest on top of a group of piles, effectively distributing the load and providing stability to the foundation. Pile cap serves to transmit the load of the building into the hard strata of the soil via a pile or group of piles. Since the pile cap is like a slab (but on the ground) we can use the safe program by csi to design a pile cap. In this article, we are going to show how the structural design of reinforced concrete pile foundations and pile caps can be done. The main purpose of the construction of the pile cap is to distribute the load of the columns, which is usually too large for large construction, for underlying piles. These design results are not available when using piles and a slab to create your pile cap.
From www.youtube.com
Pile Cap Foundation Tutorial Staad Pro Tutorial YouTube Pile Cap Slab Since the pile cap is like a slab (but on the ground) we can use the safe program by csi to design a pile cap. In this article, we are going to show how the structural design of reinforced concrete pile foundations and pile caps can be done. Pile caps are thick concrete slabs that rest on top of a. Pile Cap Slab.
From www.youtube.com
Understanding Pile foundation reinforcement Pile cap rebar details Pile Cap Slab Pile cap serves to transmit the load of the building into the hard strata of the soil via a pile or group of piles. Pile caps are thick concrete slabs that rest on top of a group of piles, effectively distributing the load and providing stability to the foundation. Since the pile cap is like a slab (but on the. Pile Cap Slab.
From www.youtube.com
Construction Pile Cap Building Ground Foundation Concrete Works, Pile Pile Cap Slab Pile cap serves to transmit the load of the building into the hard strata of the soil via a pile or group of piles. We just need to model this as a slab with its properties and incorporating. These design results are not available when using piles and a slab to create your pile cap. In this article, we are. Pile Cap Slab.
From www.youtube.com
Construction Piling Layout with Column & Stump Schedule. Pile Cap Pile Cap Slab We just need to model this as a slab with its properties and incorporating. Pile caps are thick concrete slabs that rest on top of a group of piles, effectively distributing the load and providing stability to the foundation. Since the pile cap is like a slab (but on the ground) we can use the safe program by csi to. Pile Cap Slab.
From www.youtube.com
Bridge Foundation Concrete Volume Calculation PilePile CapAbutment Pile Cap Slab The main purpose of the construction of the pile cap is to distribute the load of the columns, which is usually too large for large construction, for underlying piles. These design results are not available when using piles and a slab to create your pile cap. In this section, we will talk specifically about the calculations for pile caps. We. Pile Cap Slab.
From cadbull.com
Longitudinal and slab reinforcement details of the pile cap section are Pile Cap Slab Since the pile cap is like a slab (but on the ground) we can use the safe program by csi to design a pile cap. Pile caps are thick concrete slabs that rest on top of a group of piles, effectively distributing the load and providing stability to the foundation. These design results are not available when using piles and. Pile Cap Slab.
From www.geoengineer.org
Channel Slab Pile CAP Assemblies by Hubbell Pile Cap Slab In this section, we will talk specifically about the calculations for pile caps. We just need to model this as a slab with its properties and incorporating. Since the pile cap is like a slab (but on the ground) we can use the safe program by csi to design a pile cap. Pile caps are thick concrete slabs that rest. Pile Cap Slab.
From www.youtube.com
Pile cap shuttering and concreting plinth beam, raft slab work one Pile Cap Slab In this section, we will talk specifically about the calculations for pile caps. Pile cap serves to transmit the load of the building into the hard strata of the soil via a pile or group of piles. We just need to model this as a slab with its properties and incorporating. Since the pile cap is like a slab (but. Pile Cap Slab.
From www.structuralguide.com
Pile Cap Design Structural Guide Pile Cap Slab In this section, we will talk specifically about the calculations for pile caps. Pile caps are thick concrete slabs that rest on top of a group of piles, effectively distributing the load and providing stability to the foundation. The main purpose of the construction of the pile cap is to distribute the load of the columns, which is usually too. Pile Cap Slab.
From navimumbaihouses.com
Pile Cap Everything You Need To Know About Pile Cap Pile Cap Slab Pile cap serves to transmit the load of the building into the hard strata of the soil via a pile or group of piles. Pile caps are thick concrete slabs that rest on top of a group of piles, effectively distributing the load and providing stability to the foundation. In this article, we are going to show how the structural. Pile Cap Slab.
From mavink.com
Pile Cap Jembatan Pile Cap Slab These design results are not available when using piles and a slab to create your pile cap. Since the pile cap is like a slab (but on the ground) we can use the safe program by csi to design a pile cap. In this article, we are going to show how the structural design of reinforced concrete pile foundations and. Pile Cap Slab.
From engineering.stackexchange.com
structural engineering At what level is the Grade Beam most effective Pile Cap Slab The main purpose of the construction of the pile cap is to distribute the load of the columns, which is usually too large for large construction, for underlying piles. These design results are not available when using piles and a slab to create your pile cap. Pile cap serves to transmit the load of the building into the hard strata. Pile Cap Slab.
From www.thestructuralworld.com
How to Design Pile Caps in SAFE The Structural World Pile Cap Slab Pile cap serves to transmit the load of the building into the hard strata of the soil via a pile or group of piles. These design results are not available when using piles and a slab to create your pile cap. In this section, we will talk specifically about the calculations for pile caps. In this article, we are going. Pile Cap Slab.
From www.cforcivil.com
Pile cap and its details in the construction of structures Pile Cap Slab These design results are not available when using piles and a slab to create your pile cap. In this article, we are going to show how the structural design of reinforced concrete pile foundations and pile caps can be done. In this section, we will talk specifically about the calculations for pile caps. The main purpose of the construction of. Pile Cap Slab.
From www.structuralguide.com
Design of Pile Cap Design of Single Pile Cap Structural Guide Pile Cap Slab Pile cap serves to transmit the load of the building into the hard strata of the soil via a pile or group of piles. These design results are not available when using piles and a slab to create your pile cap. In this section, we will talk specifically about the calculations for pile caps. Pile caps are thick concrete slabs. Pile Cap Slab.
From www.geoengineer.org
Raise the concrete slab edge with Porch pile cap assemplies Pile Cap Slab In this section, we will talk specifically about the calculations for pile caps. We just need to model this as a slab with its properties and incorporating. Pile cap serves to transmit the load of the building into the hard strata of the soil via a pile or group of piles. These design results are not available when using piles. Pile Cap Slab.
From popularspek.blogspot.com
Penting Slab On Grade Pile Cap Details, Terbaru! Pile Cap Slab In this section, we will talk specifically about the calculations for pile caps. Pile cap serves to transmit the load of the building into the hard strata of the soil via a pile or group of piles. Since the pile cap is like a slab (but on the ground) we can use the safe program by csi to design a. Pile Cap Slab.
From www.aecinfo.com
News Xypex Treatment of Pile Caps and Pile Supported Mat Slabs Pile Cap Slab In this section, we will talk specifically about the calculations for pile caps. Pile caps are thick concrete slabs that rest on top of a group of piles, effectively distributing the load and providing stability to the foundation. Since the pile cap is like a slab (but on the ground) we can use the safe program by csi to design. Pile Cap Slab.
From www.scscare.in
Breaking Pile Caps in Construction and Best Practices Pile Cap Slab Pile caps are thick concrete slabs that rest on top of a group of piles, effectively distributing the load and providing stability to the foundation. We just need to model this as a slab with its properties and incorporating. The main purpose of the construction of the pile cap is to distribute the load of the columns, which is usually. Pile Cap Slab.
From www.cforcivil.com
Pile cap and its details in the construction of structures Pile Cap Slab We just need to model this as a slab with its properties and incorporating. Pile cap serves to transmit the load of the building into the hard strata of the soil via a pile or group of piles. In this article, we are going to show how the structural design of reinforced concrete pile foundations and pile caps can be. Pile Cap Slab.
From surefootfootings.com.au
Sf 250 Pile Cap Screw Pile Foundations Melbourne Surefoot Footing Pile Cap Slab Pile cap serves to transmit the load of the building into the hard strata of the soil via a pile or group of piles. In this article, we are going to show how the structural design of reinforced concrete pile foundations and pile caps can be done. In this section, we will talk specifically about the calculations for pile caps.. Pile Cap Slab.
From magoh.blogspot.com
Jonathan & Holly Barrett Foundation Pile Caps Pile Cap Slab We just need to model this as a slab with its properties and incorporating. Pile cap serves to transmit the load of the building into the hard strata of the soil via a pile or group of piles. In this section, we will talk specifically about the calculations for pile caps. These design results are not available when using piles. Pile Cap Slab.
From www.engineeringdiscoveries.net
Design Of Pile Cap Engineering Discoveries Pile Cap Slab We just need to model this as a slab with its properties and incorporating. Since the pile cap is like a slab (but on the ground) we can use the safe program by csi to design a pile cap. Pile cap serves to transmit the load of the building into the hard strata of the soil via a pile or. Pile Cap Slab.
From www.thestructuralworld.com
Pile Cap Design Assumptions & The Structural World Pile Cap Slab In this article, we are going to show how the structural design of reinforced concrete pile foundations and pile caps can be done. Pile caps are thick concrete slabs that rest on top of a group of piles, effectively distributing the load and providing stability to the foundation. In this section, we will talk specifically about the calculations for pile. Pile Cap Slab.
From stock.adobe.com
Pile cap is part of building substructure and foundation. Stock Photo Pile Cap Slab In this article, we are going to show how the structural design of reinforced concrete pile foundations and pile caps can be done. Pile caps are thick concrete slabs that rest on top of a group of piles, effectively distributing the load and providing stability to the foundation. We just need to model this as a slab with its properties. Pile Cap Slab.
From www.detallesconstructivos.net
pile caps Pile Cap Slab Pile cap serves to transmit the load of the building into the hard strata of the soil via a pile or group of piles. In this article, we are going to show how the structural design of reinforced concrete pile foundations and pile caps can be done. In this section, we will talk specifically about the calculations for pile caps.. Pile Cap Slab.
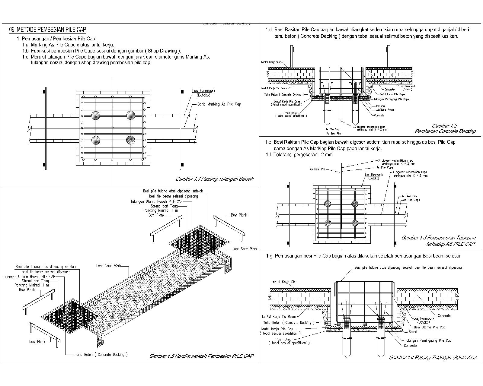
From adiruhyat93.blogspot.com
Dunia Konstruksi METODE PEMBESIAN PILE CAP Pile Cap Slab We just need to model this as a slab with its properties and incorporating. These design results are not available when using piles and a slab to create your pile cap. The main purpose of the construction of the pile cap is to distribute the load of the columns, which is usually too large for large construction, for underlying piles.. Pile Cap Slab.
From popularspek.blogspot.com
Penting Slab On Grade Pile Cap Details, Terbaru! Pile Cap Slab The main purpose of the construction of the pile cap is to distribute the load of the columns, which is usually too large for large construction, for underlying piles. We just need to model this as a slab with its properties and incorporating. Since the pile cap is like a slab (but on the ground) we can use the safe. Pile Cap Slab.
From www.cforcivil.com
Pile cap and its details in the construction of structures Pile Cap Slab In this article, we are going to show how the structural design of reinforced concrete pile foundations and pile caps can be done. The main purpose of the construction of the pile cap is to distribute the load of the columns, which is usually too large for large construction, for underlying piles. We just need to model this as a. Pile Cap Slab.
From www.eigenplus.com
Design steps of pile foundation eigenplus Pile Cap Slab Since the pile cap is like a slab (but on the ground) we can use the safe program by csi to design a pile cap. Pile cap serves to transmit the load of the building into the hard strata of the soil via a pile or group of piles. These design results are not available when using piles and a. Pile Cap Slab.
From www.thestructuralworld.com
How to Design Pile Caps in SAFE The Structural World Pile Cap Slab The main purpose of the construction of the pile cap is to distribute the load of the columns, which is usually too large for large construction, for underlying piles. Since the pile cap is like a slab (but on the ground) we can use the safe program by csi to design a pile cap. These design results are not available. Pile Cap Slab.
From structville.com
Structural Aspects of Pile Foundation Design A Practical Example Pile Cap Slab Pile cap serves to transmit the load of the building into the hard strata of the soil via a pile or group of piles. Pile caps are thick concrete slabs that rest on top of a group of piles, effectively distributing the load and providing stability to the foundation. We just need to model this as a slab with its. Pile Cap Slab.
From www.vrogue.co
Pile Caps Detallesconstructivos Net Riset vrogue.co Pile Cap Slab Since the pile cap is like a slab (but on the ground) we can use the safe program by csi to design a pile cap. Pile caps are thick concrete slabs that rest on top of a group of piles, effectively distributing the load and providing stability to the foundation. In this section, we will talk specifically about the calculations. Pile Cap Slab.
From www.thestructuralworld.com
Pile Cap Design Assumptions & The Structural World Pile Cap Slab In this article, we are going to show how the structural design of reinforced concrete pile foundations and pile caps can be done. We just need to model this as a slab with its properties and incorporating. Since the pile cap is like a slab (but on the ground) we can use the safe program by csi to design a. Pile Cap Slab.
From www.thestructuralworld.com
Basic Principle of Pile Cap Design The Structural World Pile Cap Slab These design results are not available when using piles and a slab to create your pile cap. Pile cap serves to transmit the load of the building into the hard strata of the soil via a pile or group of piles. In this article, we are going to show how the structural design of reinforced concrete pile foundations and pile. Pile Cap Slab.