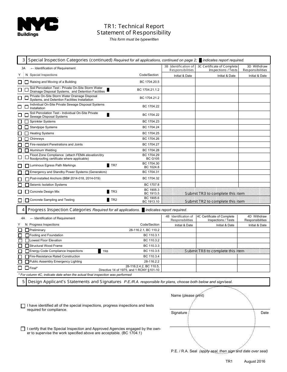
New York City Tr1 Form . This form serves as a technical report for special inspections in new york city. Statement of responsibility use this form to identify responsibility or to report the results of completed inspections or tests. On this document every type of inspection that is necessary for the. The main technical report to be filed with the new york city dept. It outlines responsibilities and categories for successful. Tr1 form is filed with the nyc building department(dob) at the initial stage of construction and at the completion of required. Provisions of the new york city construction codes and other designated rules and regulations. To fill out this form, start by gathering all necessary information such as location details and applicant information. This document contains official instructions for form tr1, technical report: Follow the prompts carefully and. All work performed substantially conforms to approved.
from www.signnow.com
Follow the prompts carefully and. Tr1 form is filed with the nyc building department(dob) at the initial stage of construction and at the completion of required. This form serves as a technical report for special inspections in new york city. All work performed substantially conforms to approved. This document contains official instructions for form tr1, technical report: The main technical report to be filed with the new york city dept. On this document every type of inspection that is necessary for the. To fill out this form, start by gathering all necessary information such as location details and applicant information. Statement of responsibility use this form to identify responsibility or to report the results of completed inspections or tests. It outlines responsibilities and categories for successful.
Tr 579 Ct 20202024 Form Fill Out and Sign Printable PDF Template
New York City Tr1 Form On this document every type of inspection that is necessary for the. On this document every type of inspection that is necessary for the. Follow the prompts carefully and. This document contains official instructions for form tr1, technical report: To fill out this form, start by gathering all necessary information such as location details and applicant information. This form serves as a technical report for special inspections in new york city. All work performed substantially conforms to approved. Tr1 form is filed with the nyc building department(dob) at the initial stage of construction and at the completion of required. Statement of responsibility use this form to identify responsibility or to report the results of completed inspections or tests. Provisions of the new york city construction codes and other designated rules and regulations. It outlines responsibilities and categories for successful. The main technical report to be filed with the new york city dept.
From ny-form-tr-579-it.pdffiller.com
2019 Form NY DTF TR579IT Fill Online, Printable, Fillable, Blank New York City Tr1 Form Provisions of the new york city construction codes and other designated rules and regulations. Statement of responsibility use this form to identify responsibility or to report the results of completed inspections or tests. It outlines responsibilities and categories for successful. Follow the prompts carefully and. Tr1 form is filed with the nyc building department(dob) at the initial stage of construction. New York City Tr1 Form.
From www.nationalpropertybuyers.co.uk
When does Form TR1 need to be completed? New York City Tr1 Form Statement of responsibility use this form to identify responsibility or to report the results of completed inspections or tests. It outlines responsibilities and categories for successful. All work performed substantially conforms to approved. On this document every type of inspection that is necessary for the. Provisions of the new york city construction codes and other designated rules and regulations. To. New York City Tr1 Form.
From www.dochub.com
Tr1 ft form Fill out & sign online DocHub New York City Tr1 Form All work performed substantially conforms to approved. It outlines responsibilities and categories for successful. Provisions of the new york city construction codes and other designated rules and regulations. Follow the prompts carefully and. This form serves as a technical report for special inspections in new york city. On this document every type of inspection that is necessary for the. Tr1. New York City Tr1 Form.
From www.studocu.com
TR 1 Filled BY Lecture. how to fill in a TR1 FORM. If you need more New York City Tr1 Form Follow the prompts carefully and. This form serves as a technical report for special inspections in new york city. On this document every type of inspection that is necessary for the. Statement of responsibility use this form to identify responsibility or to report the results of completed inspections or tests. To fill out this form, start by gathering all necessary. New York City Tr1 Form.
From www.formsbank.com
Form Tr579Wt New York State EFile Signature Authorization For Tax New York City Tr1 Form All work performed substantially conforms to approved. The main technical report to be filed with the new york city dept. Follow the prompts carefully and. Statement of responsibility use this form to identify responsibility or to report the results of completed inspections or tests. Tr1 form is filed with the nyc building department(dob) at the initial stage of construction and. New York City Tr1 Form.
From www.uslegalforms.com
Tr1 Form Pdf 2020 Fill and Sign Printable Template Online US Legal New York City Tr1 Form All work performed substantially conforms to approved. This document contains official instructions for form tr1, technical report: Tr1 form is filed with the nyc building department(dob) at the initial stage of construction and at the completion of required. Statement of responsibility use this form to identify responsibility or to report the results of completed inspections or tests. The main technical. New York City Tr1 Form.
From www.formsbank.com
Form Tr579It New York State EFile Signature Authorization 2008 New York City Tr1 Form It outlines responsibilities and categories for successful. Tr1 form is filed with the nyc building department(dob) at the initial stage of construction and at the completion of required. The main technical report to be filed with the new york city dept. All work performed substantially conforms to approved. Provisions of the new york city construction codes and other designated rules. New York City Tr1 Form.
From www.formsbank.com
Fillable Best Appointment Request Form New York City Department Of New York City Tr1 Form All work performed substantially conforms to approved. On this document every type of inspection that is necessary for the. Statement of responsibility use this form to identify responsibility or to report the results of completed inspections or tests. It outlines responsibilities and categories for successful. This form serves as a technical report for special inspections in new york city. To. New York City Tr1 Form.
From www.signnow.com
Tr 960 PDF 20112024 Form Fill Out and Sign Printable PDF Template New York City Tr1 Form Follow the prompts carefully and. On this document every type of inspection that is necessary for the. It outlines responsibilities and categories for successful. The main technical report to be filed with the new york city dept. This form serves as a technical report for special inspections in new york city. Statement of responsibility use this form to identify responsibility. New York City Tr1 Form.
From formspal.com
Tr1 Form ≡ Fill Out Printable PDF Forms Online New York City Tr1 Form On this document every type of inspection that is necessary for the. Provisions of the new york city construction codes and other designated rules and regulations. This document contains official instructions for form tr1, technical report: To fill out this form, start by gathering all necessary information such as location details and applicant information. It outlines responsibilities and categories for. New York City Tr1 Form.
From www.airslate.com
Tr1 Form Completed Example easily airSlate New York City Tr1 Form The main technical report to be filed with the new york city dept. All work performed substantially conforms to approved. Follow the prompts carefully and. This form serves as a technical report for special inspections in new york city. Provisions of the new york city construction codes and other designated rules and regulations. On this document every type of inspection. New York City Tr1 Form.
From www.studocu.com
AP1 20220801 TR1 Form Any parts of the form that are not typed New York City Tr1 Form This document contains official instructions for form tr1, technical report: Tr1 form is filed with the nyc building department(dob) at the initial stage of construction and at the completion of required. Follow the prompts carefully and. All work performed substantially conforms to approved. To fill out this form, start by gathering all necessary information such as location details and applicant. New York City Tr1 Form.
From www.signnow.com
Ct Tr 1 Complete with ease airSlate SignNow New York City Tr1 Form All work performed substantially conforms to approved. To fill out this form, start by gathering all necessary information such as location details and applicant information. The main technical report to be filed with the new york city dept. This document contains official instructions for form tr1, technical report: This form serves as a technical report for special inspections in new. New York City Tr1 Form.
From www.templateroller.com
Form BSPE TR1 Fill Out, Sign Online and Download Fillable PDF New York City Tr1 Form Tr1 form is filed with the nyc building department(dob) at the initial stage of construction and at the completion of required. Provisions of the new york city construction codes and other designated rules and regulations. This document contains official instructions for form tr1, technical report: Follow the prompts carefully and. This form serves as a technical report for special inspections. New York City Tr1 Form.
From www.formsbank.com
Form Tr1 Tax Registration printable pdf download New York City Tr1 Form On this document every type of inspection that is necessary for the. To fill out this form, start by gathering all necessary information such as location details and applicant information. All work performed substantially conforms to approved. This document contains official instructions for form tr1, technical report: Follow the prompts carefully and. Provisions of the new york city construction codes. New York City Tr1 Form.
From www.formsbank.com
Top 19 New York City Department Of Buildings Forms And Templates free New York City Tr1 Form Statement of responsibility use this form to identify responsibility or to report the results of completed inspections or tests. All work performed substantially conforms to approved. Follow the prompts carefully and. To fill out this form, start by gathering all necessary information such as location details and applicant information. The main technical report to be filed with the new york. New York City Tr1 Form.
From www.dochub.com
FORM TR1 TAX RETURN Parker Fill out & sign online DocHub New York City Tr1 Form Provisions of the new york city construction codes and other designated rules and regulations. Tr1 form is filed with the nyc building department(dob) at the initial stage of construction and at the completion of required. This document contains official instructions for form tr1, technical report: All work performed substantially conforms to approved. Follow the prompts carefully and. It outlines responsibilities. New York City Tr1 Form.
From www.studocu.com
Form TR1 Exemplar Any parts of the form that are not typed should be New York City Tr1 Form This form serves as a technical report for special inspections in new york city. Follow the prompts carefully and. All work performed substantially conforms to approved. Tr1 form is filed with the nyc building department(dob) at the initial stage of construction and at the completion of required. On this document every type of inspection that is necessary for the. The. New York City Tr1 Form.
From www.templateroller.com
Form TR1 Fill Out, Sign Online and Download Fillable PDF, New York New York City Tr1 Form Tr1 form is filed with the nyc building department(dob) at the initial stage of construction and at the completion of required. To fill out this form, start by gathering all necessary information such as location details and applicant information. All work performed substantially conforms to approved. It outlines responsibilities and categories for successful. On this document every type of inspection. New York City Tr1 Form.
From www.signnow.com
Tr1 Form Ireland Complete with ease airSlate SignNow New York City Tr1 Form This form serves as a technical report for special inspections in new york city. Statement of responsibility use this form to identify responsibility or to report the results of completed inspections or tests. It outlines responsibilities and categories for successful. Follow the prompts carefully and. The main technical report to be filed with the new york city dept. Tr1 form. New York City Tr1 Form.
From www.templateroller.com
Form TR1 Fill Out, Sign Online and Download Fillable PDF, New York New York City Tr1 Form This document contains official instructions for form tr1, technical report: Follow the prompts carefully and. Provisions of the new york city construction codes and other designated rules and regulations. Statement of responsibility use this form to identify responsibility or to report the results of completed inspections or tests. The main technical report to be filed with the new york city. New York City Tr1 Form.
From www.formsbank.com
Transmitter For Form NjTr1 printable pdf download New York City Tr1 Form To fill out this form, start by gathering all necessary information such as location details and applicant information. On this document every type of inspection that is necessary for the. Tr1 form is filed with the nyc building department(dob) at the initial stage of construction and at the completion of required. This document contains official instructions for form tr1, technical. New York City Tr1 Form.
From www.studocu.com
Completed TR1 Any parts of the form that are not typed should be New York City Tr1 Form This document contains official instructions for form tr1, technical report: To fill out this form, start by gathering all necessary information such as location details and applicant information. Tr1 form is filed with the nyc building department(dob) at the initial stage of construction and at the completion of required. It outlines responsibilities and categories for successful. Provisions of the new. New York City Tr1 Form.
From www.pdffiller.com
Tr1 Form Fill Online, Printable, Fillable, Blank pdfFiller New York City Tr1 Form The main technical report to be filed with the new york city dept. This document contains official instructions for form tr1, technical report: This form serves as a technical report for special inspections in new york city. To fill out this form, start by gathering all necessary information such as location details and applicant information. It outlines responsibilities and categories. New York City Tr1 Form.
From tr1nyc.com
Best TR1 or TR1 form in NYC ESNYC CONSULTING INC New York City Tr1 Form To fill out this form, start by gathering all necessary information such as location details and applicant information. All work performed substantially conforms to approved. Tr1 form is filed with the nyc building department(dob) at the initial stage of construction and at the completion of required. This document contains official instructions for form tr1, technical report: Provisions of the new. New York City Tr1 Form.
From www.uslegalforms.com
NYC Buildings TR1 2008 Fill and Sign Printable Template Online US New York City Tr1 Form The main technical report to be filed with the new york city dept. All work performed substantially conforms to approved. Provisions of the new york city construction codes and other designated rules and regulations. This form serves as a technical report for special inspections in new york city. To fill out this form, start by gathering all necessary information such. New York City Tr1 Form.
From www.studocu.com
7 TR1 form filled out Any parts of the form that are not New York City Tr1 Form This form serves as a technical report for special inspections in new york city. Follow the prompts carefully and. On this document every type of inspection that is necessary for the. All work performed substantially conforms to approved. The main technical report to be filed with the new york city dept. This document contains official instructions for form tr1, technical. New York City Tr1 Form.
From www.pdffiller.com
Fillable Online TR1 Form TR1 Form Any parts of the form that are New York City Tr1 Form This form serves as a technical report for special inspections in new york city. On this document every type of inspection that is necessary for the. This document contains official instructions for form tr1, technical report: Statement of responsibility use this form to identify responsibility or to report the results of completed inspections or tests. The main technical report to. New York City Tr1 Form.
From formspal.com
Tr1 Form ≡ Fill Out Printable PDF Forms Online New York City Tr1 Form To fill out this form, start by gathering all necessary information such as location details and applicant information. Statement of responsibility use this form to identify responsibility or to report the results of completed inspections or tests. Provisions of the new york city construction codes and other designated rules and regulations. The main technical report to be filed with the. New York City Tr1 Form.
From www.templateroller.com
Download Instructions for Form TR1 Technical Report Statement of New York City Tr1 Form It outlines responsibilities and categories for successful. Tr1 form is filed with the nyc building department(dob) at the initial stage of construction and at the completion of required. Follow the prompts carefully and. All work performed substantially conforms to approved. On this document every type of inspection that is necessary for the. To fill out this form, start by gathering. New York City Tr1 Form.
From www.templateroller.com
Form TR1 Fill Out, Sign Online and Download Fillable PDF, New York New York City Tr1 Form To fill out this form, start by gathering all necessary information such as location details and applicant information. This document contains official instructions for form tr1, technical report: It outlines responsibilities and categories for successful. All work performed substantially conforms to approved. Follow the prompts carefully and. This form serves as a technical report for special inspections in new york. New York City Tr1 Form.
From www.templateroller.com
Form TR1 Fill Out, Sign Online and Download Printable PDF, Ireland New York City Tr1 Form This form serves as a technical report for special inspections in new york city. All work performed substantially conforms to approved. Follow the prompts carefully and. On this document every type of inspection that is necessary for the. To fill out this form, start by gathering all necessary information such as location details and applicant information. Statement of responsibility use. New York City Tr1 Form.
From www.signnow.com
Tr 579 Ct 20202024 Form Fill Out and Sign Printable PDF Template New York City Tr1 Form Provisions of the new york city construction codes and other designated rules and regulations. Statement of responsibility use this form to identify responsibility or to report the results of completed inspections or tests. Follow the prompts carefully and. This document contains official instructions for form tr1, technical report: It outlines responsibilities and categories for successful. Tr1 form is filed with. New York City Tr1 Form.
From www.templateroller.com
Form TR1 Fill Out, Sign Online and Download Fillable PDF, Ohio New York City Tr1 Form It outlines responsibilities and categories for successful. Provisions of the new york city construction codes and other designated rules and regulations. This document contains official instructions for form tr1, technical report: All work performed substantially conforms to approved. To fill out this form, start by gathering all necessary information such as location details and applicant information. This form serves as. New York City Tr1 Form.
From www.pdffiller.com
TR1 Technical Report Statement of Responsibility New York City Doc New York City Tr1 Form On this document every type of inspection that is necessary for the. Statement of responsibility use this form to identify responsibility or to report the results of completed inspections or tests. Follow the prompts carefully and. Tr1 form is filed with the nyc building department(dob) at the initial stage of construction and at the completion of required. The main technical. New York City Tr1 Form.