Residential Property Seller Disclosure Statement Iowa . This law requires certain sellers of residential property that includes at least one and no more than four dwelling units to disclose information. Seller discloses the following information regarding the property and certifies this information is true. Residential property seller disclosure statement property address: Use this statement to disclose information as required. This law requires this law requires certain sellers of. Use this statement to disclose information as required by iowa code chapter 558a. Use this statement to disclose information as required by iowa code chapter 558a. An iowa property disclosure statement is used by home sellers to describe the condition of their real estate and identify defects that might. Residential property seller disclosure statement property address: This law requires this law requires certain sellers of. Use this statement to disclose information as required.
from www.pdffiller.com
Residential property seller disclosure statement property address: Seller discloses the following information regarding the property and certifies this information is true. This law requires certain sellers of residential property that includes at least one and no more than four dwelling units to disclose information. Use this statement to disclose information as required. Use this statement to disclose information as required. Use this statement to disclose information as required by iowa code chapter 558a. This law requires this law requires certain sellers of. Use this statement to disclose information as required by iowa code chapter 558a. An iowa property disclosure statement is used by home sellers to describe the condition of their real estate and identify defects that might. This law requires this law requires certain sellers of.
Fillable Online PDF RESIDENTIAL PROPERTY SELLER DISCLOSURE STATEMENT
Residential Property Seller Disclosure Statement Iowa Use this statement to disclose information as required. Use this statement to disclose information as required by iowa code chapter 558a. Use this statement to disclose information as required by iowa code chapter 558a. This law requires this law requires certain sellers of. An iowa property disclosure statement is used by home sellers to describe the condition of their real estate and identify defects that might. Use this statement to disclose information as required. Use this statement to disclose information as required. Seller discloses the following information regarding the property and certifies this information is true. Residential property seller disclosure statement property address: Residential property seller disclosure statement property address: This law requires certain sellers of residential property that includes at least one and no more than four dwelling units to disclose information. This law requires this law requires certain sellers of.
From www.pdffiller.com
Fillable Online Iowa Seller Disclosure FormFill Out and Use This PDF Residential Property Seller Disclosure Statement Iowa This law requires certain sellers of residential property that includes at least one and no more than four dwelling units to disclose information. Use this statement to disclose information as required. This law requires this law requires certain sellers of. Use this statement to disclose information as required by iowa code chapter 558a. An iowa property disclosure statement is used. Residential Property Seller Disclosure Statement Iowa.
From www.uslegalforms.com
Commercial Property Disclosure Form For Residential US Legal Forms Residential Property Seller Disclosure Statement Iowa This law requires certain sellers of residential property that includes at least one and no more than four dwelling units to disclose information. Seller discloses the following information regarding the property and certifies this information is true. This law requires this law requires certain sellers of. Use this statement to disclose information as required. Use this statement to disclose information. Residential Property Seller Disclosure Statement Iowa.
From esign.com
Free Missouri Property Disclosure Statement PDF Residential Property Seller Disclosure Statement Iowa An iowa property disclosure statement is used by home sellers to describe the condition of their real estate and identify defects that might. This law requires certain sellers of residential property that includes at least one and no more than four dwelling units to disclose information. Residential property seller disclosure statement property address: Use this statement to disclose information as. Residential Property Seller Disclosure Statement Iowa.
From www.pdffiller.com
Fillable Online PDF RESIDENTIAL PROPERTY SELLER DISCLOSURE STATEMENT Residential Property Seller Disclosure Statement Iowa This law requires certain sellers of residential property that includes at least one and no more than four dwelling units to disclose information. Use this statement to disclose information as required. This law requires this law requires certain sellers of. Residential property seller disclosure statement property address: Use this statement to disclose information as required by iowa code chapter 558a.. Residential Property Seller Disclosure Statement Iowa.
From www.uslegalforms.com
Damage Disclosure Statement Iowa Withholding US Legal Forms Residential Property Seller Disclosure Statement Iowa An iowa property disclosure statement is used by home sellers to describe the condition of their real estate and identify defects that might. Use this statement to disclose information as required by iowa code chapter 558a. Residential property seller disclosure statement property address: Residential property seller disclosure statement property address: This law requires this law requires certain sellers of. Use. Residential Property Seller Disclosure Statement Iowa.
From www.uslegalforms.com
Damage Disclosure Statement Iowa Withholding US Legal Forms Residential Property Seller Disclosure Statement Iowa This law requires this law requires certain sellers of. Use this statement to disclose information as required by iowa code chapter 558a. Residential property seller disclosure statement property address: This law requires certain sellers of residential property that includes at least one and no more than four dwelling units to disclose information. Seller discloses the following information regarding the property. Residential Property Seller Disclosure Statement Iowa.
From www.uslegalforms.com
Texas Residential Real Estate Sales Disclosure Statement US Legal Forms Residential Property Seller Disclosure Statement Iowa Use this statement to disclose information as required. An iowa property disclosure statement is used by home sellers to describe the condition of their real estate and identify defects that might. Residential property seller disclosure statement property address: Use this statement to disclose information as required. Residential property seller disclosure statement property address: This law requires this law requires certain. Residential Property Seller Disclosure Statement Iowa.
From esign.com
Free New Jersey Property Disclosure Statement PDF Residential Property Seller Disclosure Statement Iowa This law requires certain sellers of residential property that includes at least one and no more than four dwelling units to disclose information. Residential property seller disclosure statement property address: Residential property seller disclosure statement property address: This law requires this law requires certain sellers of. Seller discloses the following information regarding the property and certifies this information is true.. Residential Property Seller Disclosure Statement Iowa.
From www.uslegalforms.com
Iowa Damage Disclosure Statement Form US Legal Forms Residential Property Seller Disclosure Statement Iowa Seller discloses the following information regarding the property and certifies this information is true. An iowa property disclosure statement is used by home sellers to describe the condition of their real estate and identify defects that might. This law requires this law requires certain sellers of. Use this statement to disclose information as required. Use this statement to disclose information. Residential Property Seller Disclosure Statement Iowa.
From www.templateroller.com
Iowa Residential Property Seller Disclosure Statement Fill Out, Sign Residential Property Seller Disclosure Statement Iowa Residential property seller disclosure statement property address: This law requires this law requires certain sellers of. An iowa property disclosure statement is used by home sellers to describe the condition of their real estate and identify defects that might. Use this statement to disclose information as required. Seller discloses the following information regarding the property and certifies this information is. Residential Property Seller Disclosure Statement Iowa.
From www.templateroller.com
Iowa Residential Property Seller Disclosure Statement Fill Out, Sign Residential Property Seller Disclosure Statement Iowa This law requires this law requires certain sellers of. Use this statement to disclose information as required. Use this statement to disclose information as required by iowa code chapter 558a. Seller discloses the following information regarding the property and certifies this information is true. Residential property seller disclosure statement property address: This law requires this law requires certain sellers of.. Residential Property Seller Disclosure Statement Iowa.
From esign.com
Free Kansas Property Disclosure Statement PDF Residential Property Seller Disclosure Statement Iowa Use this statement to disclose information as required. This law requires this law requires certain sellers of. Residential property seller disclosure statement property address: This law requires this law requires certain sellers of. Use this statement to disclose information as required. An iowa property disclosure statement is used by home sellers to describe the condition of their real estate and. Residential Property Seller Disclosure Statement Iowa.
From freeforms.com
Free Property Disclosure Statement PDF WORD Residential Property Seller Disclosure Statement Iowa This law requires this law requires certain sellers of. An iowa property disclosure statement is used by home sellers to describe the condition of their real estate and identify defects that might. Use this statement to disclose information as required by iowa code chapter 558a. Use this statement to disclose information as required by iowa code chapter 558a. Residential property. Residential Property Seller Disclosure Statement Iowa.
From www.templateroller.com
Iowa Residential Property Seller Disclosure Statement Fill Out, Sign Residential Property Seller Disclosure Statement Iowa This law requires this law requires certain sellers of. Residential property seller disclosure statement property address: Seller discloses the following information regarding the property and certifies this information is true. Residential property seller disclosure statement property address: This law requires this law requires certain sellers of. Use this statement to disclose information as required. An iowa property disclosure statement is. Residential Property Seller Disclosure Statement Iowa.
From www.uslegalforms.com
Dpor Residential Property Disclosure Fill and Sign Printable Template Residential Property Seller Disclosure Statement Iowa Seller discloses the following information regarding the property and certifies this information is true. Residential property seller disclosure statement property address: Residential property seller disclosure statement property address: This law requires certain sellers of residential property that includes at least one and no more than four dwelling units to disclose information. This law requires this law requires certain sellers of.. Residential Property Seller Disclosure Statement Iowa.
From www.templateroller.com
Iowa Residential Property Seller Disclosure Statement Fill Out, Sign Residential Property Seller Disclosure Statement Iowa This law requires this law requires certain sellers of. Residential property seller disclosure statement property address: This law requires this law requires certain sellers of. An iowa property disclosure statement is used by home sellers to describe the condition of their real estate and identify defects that might. Use this statement to disclose information as required. This law requires certain. Residential Property Seller Disclosure Statement Iowa.
From www.templateroller.com
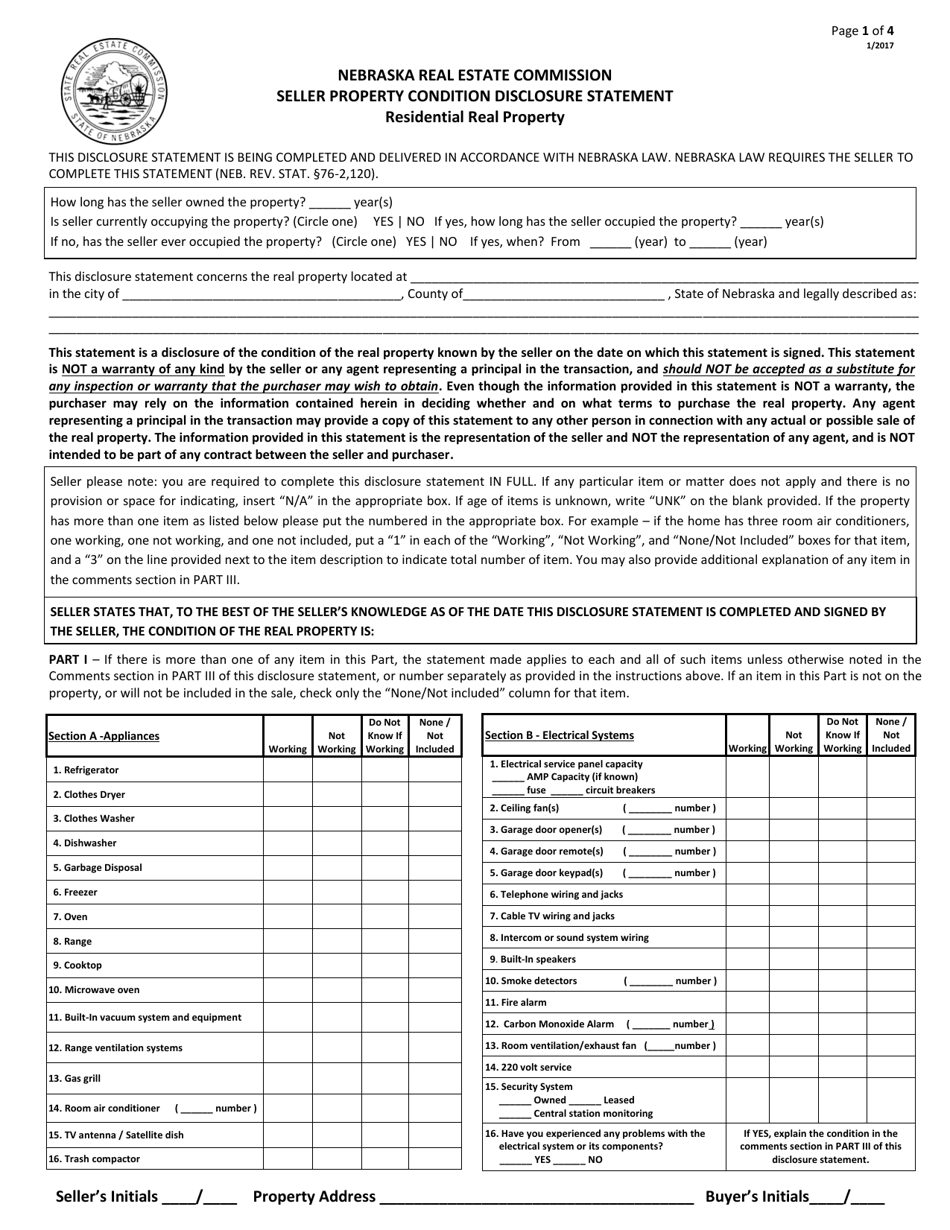
Nebraska Seller Property Condition Disclosure Statement Residential Residential Property Seller Disclosure Statement Iowa Residential property seller disclosure statement property address: Use this statement to disclose information as required by iowa code chapter 558a. This law requires this law requires certain sellers of. Use this statement to disclose information as required by iowa code chapter 558a. Seller discloses the following information regarding the property and certifies this information is true. This law requires certain. Residential Property Seller Disclosure Statement Iowa.
From www.templateroller.com
Iowa Residential Property Seller Disclosure Statement Fill Out, Sign Residential Property Seller Disclosure Statement Iowa Residential property seller disclosure statement property address: Use this statement to disclose information as required by iowa code chapter 558a. Residential property seller disclosure statement property address: This law requires this law requires certain sellers of. This law requires this law requires certain sellers of. Use this statement to disclose information as required. Seller discloses the following information regarding the. Residential Property Seller Disclosure Statement Iowa.
From esign.com
Free Property Disclosure Statement PDF Word Residential Property Seller Disclosure Statement Iowa This law requires this law requires certain sellers of. An iowa property disclosure statement is used by home sellers to describe the condition of their real estate and identify defects that might. This law requires certain sellers of residential property that includes at least one and no more than four dwelling units to disclose information. Use this statement to disclose. Residential Property Seller Disclosure Statement Iowa.
From www.uslegalforms.com
Damage Disclosure Statement Iowa Withholding US Legal Forms Residential Property Seller Disclosure Statement Iowa This law requires this law requires certain sellers of. Use this statement to disclose information as required. Use this statement to disclose information as required. Seller discloses the following information regarding the property and certifies this information is true. This law requires this law requires certain sellers of. Residential property seller disclosure statement property address: Use this statement to disclose. Residential Property Seller Disclosure Statement Iowa.
From www.pdffiller.com
Real Estate Disclosure Form Fill Online, Printable, Fillable, Blank Residential Property Seller Disclosure Statement Iowa Residential property seller disclosure statement property address: This law requires this law requires certain sellers of. Use this statement to disclose information as required. An iowa property disclosure statement is used by home sellers to describe the condition of their real estate and identify defects that might. Use this statement to disclose information as required by iowa code chapter 558a.. Residential Property Seller Disclosure Statement Iowa.
From www.uslegalforms.com
Kansas Residential Real Estate Sales Disclosure Statement Real Estate Residential Property Seller Disclosure Statement Iowa Use this statement to disclose information as required. This law requires certain sellers of residential property that includes at least one and no more than four dwelling units to disclose information. This law requires this law requires certain sellers of. Residential property seller disclosure statement property address: An iowa property disclosure statement is used by home sellers to describe the. Residential Property Seller Disclosure Statement Iowa.
From www.pdffiller.com
New Mexico Seller's Property Disclosure Fill Online, Printable Residential Property Seller Disclosure Statement Iowa Use this statement to disclose information as required by iowa code chapter 558a. This law requires this law requires certain sellers of. Use this statement to disclose information as required. Seller discloses the following information regarding the property and certifies this information is true. This law requires certain sellers of residential property that includes at least one and no more. Residential Property Seller Disclosure Statement Iowa.
From www.dochub.com
Seller's property disclosure statement pdf Fill out & sign online DocHub Residential Property Seller Disclosure Statement Iowa This law requires this law requires certain sellers of. This law requires this law requires certain sellers of. This law requires certain sellers of residential property that includes at least one and no more than four dwelling units to disclose information. Residential property seller disclosure statement property address: Use this statement to disclose information as required by iowa code chapter. Residential Property Seller Disclosure Statement Iowa.
From esign.com
Free South Carolina Property Disclosure Statement PDF Residential Property Seller Disclosure Statement Iowa This law requires this law requires certain sellers of. Residential property seller disclosure statement property address: Use this statement to disclose information as required by iowa code chapter 558a. Residential property seller disclosure statement property address: An iowa property disclosure statement is used by home sellers to describe the condition of their real estate and identify defects that might. Seller. Residential Property Seller Disclosure Statement Iowa.
From www.signnow.com
Property Condition Disclosure Statement Complete with ease airSlate Residential Property Seller Disclosure Statement Iowa Use this statement to disclose information as required by iowa code chapter 558a. This law requires certain sellers of residential property that includes at least one and no more than four dwelling units to disclose information. Seller discloses the following information regarding the property and certifies this information is true. Residential property seller disclosure statement property address: Use this statement. Residential Property Seller Disclosure Statement Iowa.
From www.pdffiller.com
Sellers Disclosure Missouri Fill Online, Printable, Fillable, Blank Residential Property Seller Disclosure Statement Iowa Use this statement to disclose information as required. This law requires certain sellers of residential property that includes at least one and no more than four dwelling units to disclose information. Seller discloses the following information regarding the property and certifies this information is true. Residential property seller disclosure statement property address: Use this statement to disclose information as required. Residential Property Seller Disclosure Statement Iowa.
From seattlepropertylawyer.com
Form 17 Explained — Real Estate Lawyer Residential Property Seller Disclosure Statement Iowa Use this statement to disclose information as required. This law requires certain sellers of residential property that includes at least one and no more than four dwelling units to disclose information. Seller discloses the following information regarding the property and certifies this information is true. An iowa property disclosure statement is used by home sellers to describe the condition of. Residential Property Seller Disclosure Statement Iowa.
From esign.com
Free California Property Disclosure Statement PDF Residential Property Seller Disclosure Statement Iowa An iowa property disclosure statement is used by home sellers to describe the condition of their real estate and identify defects that might. Use this statement to disclose information as required by iowa code chapter 558a. Residential property seller disclosure statement property address: Residential property seller disclosure statement property address: This law requires this law requires certain sellers of. Seller. Residential Property Seller Disclosure Statement Iowa.
From www.templateroller.com
Iowa Residential Property Seller Disclosure Statement Fill Out, Sign Residential Property Seller Disclosure Statement Iowa Seller discloses the following information regarding the property and certifies this information is true. Residential property seller disclosure statement property address: Use this statement to disclose information as required by iowa code chapter 558a. This law requires this law requires certain sellers of. An iowa property disclosure statement is used by home sellers to describe the condition of their real. Residential Property Seller Disclosure Statement Iowa.
From eforms.com
Free Property Disclosure Statement PDF Word eForms Residential Property Seller Disclosure Statement Iowa Use this statement to disclose information as required. Residential property seller disclosure statement property address: This law requires this law requires certain sellers of. Use this statement to disclose information as required. This law requires certain sellers of residential property that includes at least one and no more than four dwelling units to disclose information. Use this statement to disclose. Residential Property Seller Disclosure Statement Iowa.
From www.signnow.com
Arkansas Seller Property Disclosure Form Complete with ease airSlate Residential Property Seller Disclosure Statement Iowa Use this statement to disclose information as required. Seller discloses the following information regarding the property and certifies this information is true. Use this statement to disclose information as required. This law requires this law requires certain sellers of. This law requires certain sellers of residential property that includes at least one and no more than four dwelling units to. Residential Property Seller Disclosure Statement Iowa.
From esign.com
Free Maine Property Disclosure Statement PDF Residential Property Seller Disclosure Statement Iowa This law requires this law requires certain sellers of. This law requires this law requires certain sellers of. Use this statement to disclose information as required by iowa code chapter 558a. Residential property seller disclosure statement property address: Use this statement to disclose information as required by iowa code chapter 558a. An iowa property disclosure statement is used by home. Residential Property Seller Disclosure Statement Iowa.
From www.printablerealestateforms.com
Free Printable Sellers Disclosure Statement Form (WORD) Residential Property Seller Disclosure Statement Iowa Residential property seller disclosure statement property address: Residential property seller disclosure statement property address: Use this statement to disclose information as required. Use this statement to disclose information as required by iowa code chapter 558a. Use this statement to disclose information as required. Use this statement to disclose information as required by iowa code chapter 558a. Seller discloses the following. Residential Property Seller Disclosure Statement Iowa.
From www.templateroller.com
Nebraska Seller Property Condition Disclosure Statement Residential Residential Property Seller Disclosure Statement Iowa An iowa property disclosure statement is used by home sellers to describe the condition of their real estate and identify defects that might. Seller discloses the following information regarding the property and certifies this information is true. This law requires this law requires certain sellers of. This law requires certain sellers of residential property that includes at least one and. Residential Property Seller Disclosure Statement Iowa.