Does A Lanai Count As Square Footage . Outside, garages are not included, period. A typical residential lanai ranges from 130 to 170 square feet (12 to 16 square meters). Total square feet can include garage and screened in porch/balcony. There are 2 different square footage numbers. This allows fitting essential patio furniture like a. Lanais come in all shapes and sizes, exactly like kitchens, bedrooms and bathrooms, and the floor plan you choose will include lanai space that’s proportionate to your square. Find out the criteria for enclosed porches, garage apartments,. Not all of the space under your roof counts as living space from an appraiser’s perspective. Learn how appraisers measure and value heated and cooled living area (gla) and what areas are not included in gla. Any part of a house that requires the use of a ladder to get to it doesn't count. If the garage is attached to the house, the shared wall will serve as the. Learn how a lanai differs from a patio and a porch in terms of location, design, structure, and function. Measuring a house, what counts?
from www.architecturaldesigns.com
A typical residential lanai ranges from 130 to 170 square feet (12 to 16 square meters). Learn how a lanai differs from a patio and a porch in terms of location, design, structure, and function. Not all of the space under your roof counts as living space from an appraiser’s perspective. Total square feet can include garage and screened in porch/balcony. Find out the criteria for enclosed porches, garage apartments,. Any part of a house that requires the use of a ladder to get to it doesn't count. Learn how appraisers measure and value heated and cooled living area (gla) and what areas are not included in gla. Lanais come in all shapes and sizes, exactly like kitchens, bedrooms and bathrooms, and the floor plan you choose will include lanai space that’s proportionate to your square. If the garage is attached to the house, the shared wall will serve as the. This allows fitting essential patio furniture like a.
OneStory Mediterranean House Plan with Lovely Lanai 66152GW
Does A Lanai Count As Square Footage Any part of a house that requires the use of a ladder to get to it doesn't count. Total square feet can include garage and screened in porch/balcony. Find out the criteria for enclosed porches, garage apartments,. This allows fitting essential patio furniture like a. Not all of the space under your roof counts as living space from an appraiser’s perspective. Learn how appraisers measure and value heated and cooled living area (gla) and what areas are not included in gla. Lanais come in all shapes and sizes, exactly like kitchens, bedrooms and bathrooms, and the floor plan you choose will include lanai space that’s proportionate to your square. A typical residential lanai ranges from 130 to 170 square feet (12 to 16 square meters). Any part of a house that requires the use of a ladder to get to it doesn't count. Measuring a house, what counts? Outside, garages are not included, period. There are 2 different square footage numbers. Learn how a lanai differs from a patio and a porch in terms of location, design, structure, and function. If the garage is attached to the house, the shared wall will serve as the.
From gambrick.com
Does A Garage Count As Square Footage? Does A Lanai Count As Square Footage Find out the criteria for enclosed porches, garage apartments,. Not all of the space under your roof counts as living space from an appraiser’s perspective. If the garage is attached to the house, the shared wall will serve as the. There are 2 different square footage numbers. Measuring a house, what counts? Lanais come in all shapes and sizes, exactly. Does A Lanai Count As Square Footage.
From houseunderconstruction.com
How to calculate square footage of a roof with different shapes? Does A Lanai Count As Square Footage Learn how appraisers measure and value heated and cooled living area (gla) and what areas are not included in gla. If the garage is attached to the house, the shared wall will serve as the. Total square feet can include garage and screened in porch/balcony. This allows fitting essential patio furniture like a. Find out the criteria for enclosed porches,. Does A Lanai Count As Square Footage.
From civiljungle.com
Does a Garage Count as Square Footage Do Garages Count Towards the Does A Lanai Count As Square Footage Outside, garages are not included, period. If the garage is attached to the house, the shared wall will serve as the. Find out the criteria for enclosed porches, garage apartments,. Total square feet can include garage and screened in porch/balcony. Learn how appraisers measure and value heated and cooled living area (gla) and what areas are not included in gla.. Does A Lanai Count As Square Footage.
From klaypnbey.blob.core.windows.net
Square Foot Calculator Real Estate at Tommy Merwin blog Does A Lanai Count As Square Footage Not all of the space under your roof counts as living space from an appraiser’s perspective. Learn how a lanai differs from a patio and a porch in terms of location, design, structure, and function. Learn how appraisers measure and value heated and cooled living area (gla) and what areas are not included in gla. Total square feet can include. Does A Lanai Count As Square Footage.
From raleighrealtyhomes.com
7 Tips How to Measure Square Footage of a House Does A Lanai Count As Square Footage Total square feet can include garage and screened in porch/balcony. Find out the criteria for enclosed porches, garage apartments,. Lanais come in all shapes and sizes, exactly like kitchens, bedrooms and bathrooms, and the floor plan you choose will include lanai space that’s proportionate to your square. A typical residential lanai ranges from 130 to 170 square feet (12 to. Does A Lanai Count As Square Footage.
From www.architecturaldesigns.com
Lanai on Two Floors 66260WE Architectural Designs House Plans Does A Lanai Count As Square Footage Lanais come in all shapes and sizes, exactly like kitchens, bedrooms and bathrooms, and the floor plan you choose will include lanai space that’s proportionate to your square. Learn how a lanai differs from a patio and a porch in terms of location, design, structure, and function. Measuring a house, what counts? A typical residential lanai ranges from 130 to. Does A Lanai Count As Square Footage.
From exovywfzn.blob.core.windows.net
Does Basement Count In House Square Footage at Joe Mcdevitt blog Does A Lanai Count As Square Footage Find out the criteria for enclosed porches, garage apartments,. Learn how appraisers measure and value heated and cooled living area (gla) and what areas are not included in gla. Outside, garages are not included, period. Measuring a house, what counts? Lanais come in all shapes and sizes, exactly like kitchens, bedrooms and bathrooms, and the floor plan you choose will. Does A Lanai Count As Square Footage.
From www.renotalk.com
The Ultimate Guide to Calculating Square Footage Does A Lanai Count As Square Footage Measuring a house, what counts? Total square feet can include garage and screened in porch/balcony. Not all of the space under your roof counts as living space from an appraiser’s perspective. A typical residential lanai ranges from 130 to 170 square feet (12 to 16 square meters). There are 2 different square footage numbers. Outside, garages are not included, period.. Does A Lanai Count As Square Footage.
From www.tileclub.com
How to Measure a Room for Tile and Calculate Square Footage Does A Lanai Count As Square Footage Learn how appraisers measure and value heated and cooled living area (gla) and what areas are not included in gla. Learn how a lanai differs from a patio and a porch in terms of location, design, structure, and function. This allows fitting essential patio furniture like a. A typical residential lanai ranges from 130 to 170 square feet (12 to. Does A Lanai Count As Square Footage.
From www.lanaiguys.com
Details to Consider When Extending a Lanai Screened Porch — Lanai Guy Does A Lanai Count As Square Footage Total square feet can include garage and screened in porch/balcony. Find out the criteria for enclosed porches, garage apartments,. Measuring a house, what counts? Learn how a lanai differs from a patio and a porch in terms of location, design, structure, and function. Any part of a house that requires the use of a ladder to get to it doesn't. Does A Lanai Count As Square Footage.
From wallcraftusainc.com
Does a Screened Porch Count As Square Footage? Wallcraft Exterior Does A Lanai Count As Square Footage Total square feet can include garage and screened in porch/balcony. Any part of a house that requires the use of a ladder to get to it doesn't count. There are 2 different square footage numbers. Lanais come in all shapes and sizes, exactly like kitchens, bedrooms and bathrooms, and the floor plan you choose will include lanai space that’s proportionate. Does A Lanai Count As Square Footage.
From www.architecturaldesigns.com
Coastal Contemporary House Plan Under 2600 Square Feet with LShaped Does A Lanai Count As Square Footage If the garage is attached to the house, the shared wall will serve as the. There are 2 different square footage numbers. Find out the criteria for enclosed porches, garage apartments,. Learn how a lanai differs from a patio and a porch in terms of location, design, structure, and function. Lanais come in all shapes and sizes, exactly like kitchens,. Does A Lanai Count As Square Footage.
From www.tileme.ca
How to Find Square Footage StepbyStep Tutorial TileMe.ca Does A Lanai Count As Square Footage Not all of the space under your roof counts as living space from an appraiser’s perspective. Measuring a house, what counts? If the garage is attached to the house, the shared wall will serve as the. Lanais come in all shapes and sizes, exactly like kitchens, bedrooms and bathrooms, and the floor plan you choose will include lanai space that’s. Does A Lanai Count As Square Footage.
From laytonre.com
How to Calculate the Square Footage of a House A Comprehensive Guide Does A Lanai Count As Square Footage Find out the criteria for enclosed porches, garage apartments,. Lanais come in all shapes and sizes, exactly like kitchens, bedrooms and bathrooms, and the floor plan you choose will include lanai space that’s proportionate to your square. There are 2 different square footage numbers. If the garage is attached to the house, the shared wall will serve as the. Any. Does A Lanai Count As Square Footage.
From www.scribd.com
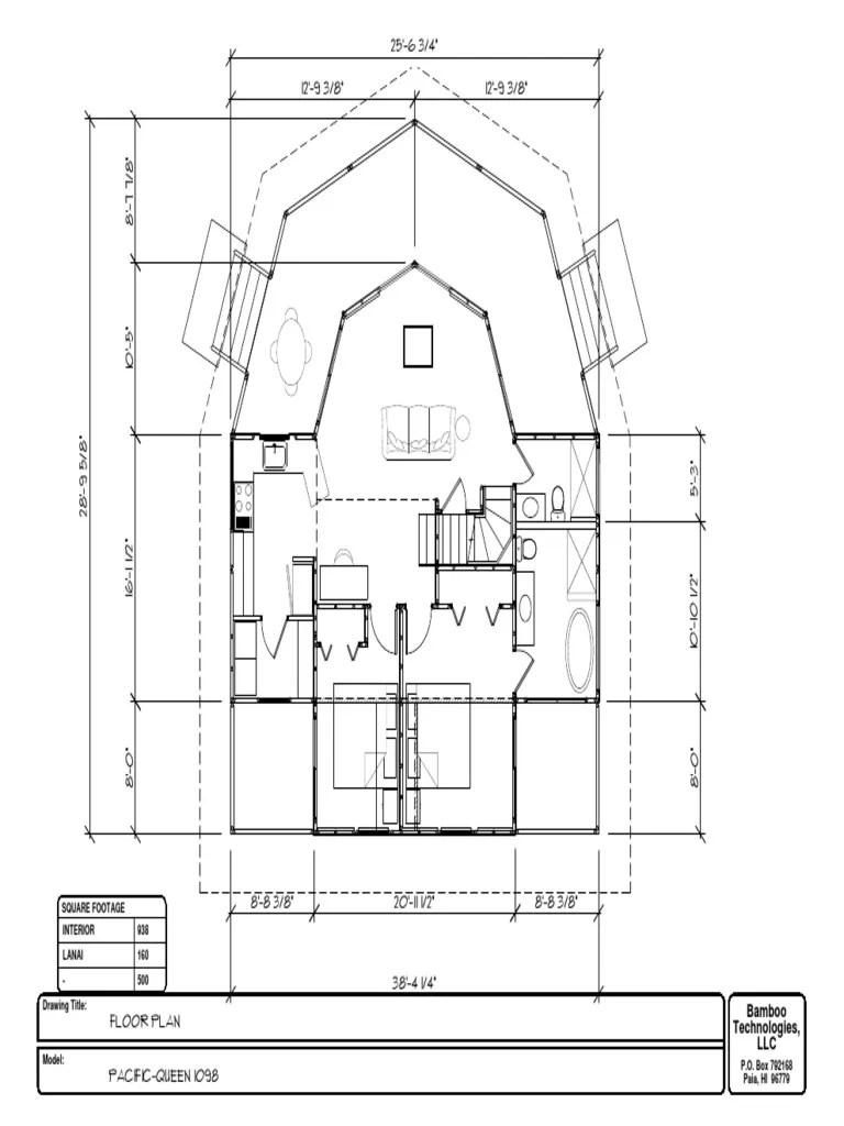
Bamboo Technologies, LLC Square Footage Interior Lanai 938 160 500 Does A Lanai Count As Square Footage Any part of a house that requires the use of a ladder to get to it doesn't count. Find out the criteria for enclosed porches, garage apartments,. Learn how appraisers measure and value heated and cooled living area (gla) and what areas are not included in gla. Outside, garages are not included, period. There are 2 different square footage numbers.. Does A Lanai Count As Square Footage.
From viewfloor.co
How Do You Figure Out Square Footage For Flooring Viewfloor.co Does A Lanai Count As Square Footage Lanais come in all shapes and sizes, exactly like kitchens, bedrooms and bathrooms, and the floor plan you choose will include lanai space that’s proportionate to your square. Find out the criteria for enclosed porches, garage apartments,. There are 2 different square footage numbers. A typical residential lanai ranges from 130 to 170 square feet (12 to 16 square meters).. Does A Lanai Count As Square Footage.
From www.newdimensionsinc.com
How Is Square Footage Calculated? NDI Does A Lanai Count As Square Footage Lanais come in all shapes and sizes, exactly like kitchens, bedrooms and bathrooms, and the floor plan you choose will include lanai space that’s proportionate to your square. Any part of a house that requires the use of a ladder to get to it doesn't count. Measuring a house, what counts? There are 2 different square footage numbers. Total square. Does A Lanai Count As Square Footage.
From www.youtube.com
New Lanai/Porch Screen Enclosure Installation Lakewood Ranch Does A Lanai Count As Square Footage Any part of a house that requires the use of a ladder to get to it doesn't count. This allows fitting essential patio furniture like a. A typical residential lanai ranges from 130 to 170 square feet (12 to 16 square meters). Outside, garages are not included, period. Learn how appraisers measure and value heated and cooled living area (gla). Does A Lanai Count As Square Footage.
From www.businessinsider.in
Lanai is 140 square miles of land, the sixthlargest of the Hawaiian Does A Lanai Count As Square Footage Any part of a house that requires the use of a ladder to get to it doesn't count. A typical residential lanai ranges from 130 to 170 square feet (12 to 16 square meters). Measuring a house, what counts? This allows fitting essential patio furniture like a. Lanais come in all shapes and sizes, exactly like kitchens, bedrooms and bathrooms,. Does A Lanai Count As Square Footage.
From www.architecturaldesigns.com
OneStory Mediterranean House Plan with Lovely Lanai 66152GW Does A Lanai Count As Square Footage Lanais come in all shapes and sizes, exactly like kitchens, bedrooms and bathrooms, and the floor plan you choose will include lanai space that’s proportionate to your square. There are 2 different square footage numbers. Any part of a house that requires the use of a ladder to get to it doesn't count. A typical residential lanai ranges from 130. Does A Lanai Count As Square Footage.
From www.youtube.com
Two Ways To Measure Your Homes Square Footage Building And Real Does A Lanai Count As Square Footage If the garage is attached to the house, the shared wall will serve as the. A typical residential lanai ranges from 130 to 170 square feet (12 to 16 square meters). Find out the criteria for enclosed porches, garage apartments,. Learn how a lanai differs from a patio and a porch in terms of location, design, structure, and function. Outside,. Does A Lanai Count As Square Footage.
From civilgang.com
Does a Garage Count as Square Footage? CivilGang Does A Lanai Count As Square Footage This allows fitting essential patio furniture like a. Total square feet can include garage and screened in porch/balcony. Measuring a house, what counts? There are 2 different square footage numbers. Find out the criteria for enclosed porches, garage apartments,. Lanais come in all shapes and sizes, exactly like kitchens, bedrooms and bathrooms, and the floor plan you choose will include. Does A Lanai Count As Square Footage.
From rennisonroofing.com
Roofing Squares A Way To Measure Your Roof Rennison Roofing and Does A Lanai Count As Square Footage Learn how a lanai differs from a patio and a porch in terms of location, design, structure, and function. Measuring a house, what counts? Find out the criteria for enclosed porches, garage apartments,. Learn how appraisers measure and value heated and cooled living area (gla) and what areas are not included in gla. This allows fitting essential patio furniture like. Does A Lanai Count As Square Footage.
From www.drgfl.com
How to Calculate the Square Footage of a House Diamond Realty Group LLC Does A Lanai Count As Square Footage Lanais come in all shapes and sizes, exactly like kitchens, bedrooms and bathrooms, and the floor plan you choose will include lanai space that’s proportionate to your square. Not all of the space under your roof counts as living space from an appraiser’s perspective. Learn how a lanai differs from a patio and a porch in terms of location, design,. Does A Lanai Count As Square Footage.
From www.neighbor.com
Square Footage How to Calculate It, How Much You Need, and More Does A Lanai Count As Square Footage Outside, garages are not included, period. Lanais come in all shapes and sizes, exactly like kitchens, bedrooms and bathrooms, and the floor plan you choose will include lanai space that’s proportionate to your square. A typical residential lanai ranges from 130 to 170 square feet (12 to 16 square meters). This allows fitting essential patio furniture like a. Any part. Does A Lanai Count As Square Footage.
From civiljungle.com
Does a Garage Count as Square Footage Do Garages Count Towards the Does A Lanai Count As Square Footage Outside, garages are not included, period. Find out the criteria for enclosed porches, garage apartments,. Measuring a house, what counts? This allows fitting essential patio furniture like a. Any part of a house that requires the use of a ladder to get to it doesn't count. Learn how a lanai differs from a patio and a porch in terms of. Does A Lanai Count As Square Footage.
From www.youtube.com
How to Calculate Square Footage of a Home YouTube Does A Lanai Count As Square Footage Learn how a lanai differs from a patio and a porch in terms of location, design, structure, and function. Find out the criteria for enclosed porches, garage apartments,. Any part of a house that requires the use of a ladder to get to it doesn't count. If the garage is attached to the house, the shared wall will serve as. Does A Lanai Count As Square Footage.
From homedecorbliss.com
David Ribeiro, Author at Home Decor Bliss Does A Lanai Count As Square Footage Total square feet can include garage and screened in porch/balcony. Learn how a lanai differs from a patio and a porch in terms of location, design, structure, and function. Lanais come in all shapes and sizes, exactly like kitchens, bedrooms and bathrooms, and the floor plan you choose will include lanai space that’s proportionate to your square. There are 2. Does A Lanai Count As Square Footage.
From www.archtoolbox.com
Building Area Square Footage Calculations Archtoolbox Does A Lanai Count As Square Footage Learn how appraisers measure and value heated and cooled living area (gla) and what areas are not included in gla. This allows fitting essential patio furniture like a. Find out the criteria for enclosed porches, garage apartments,. Outside, garages are not included, period. Total square feet can include garage and screened in porch/balcony. Any part of a house that requires. Does A Lanai Count As Square Footage.
From www.rent.com
How to Calculate the Square Footage of a House Rent. Blog Does A Lanai Count As Square Footage A typical residential lanai ranges from 130 to 170 square feet (12 to 16 square meters). This allows fitting essential patio furniture like a. Outside, garages are not included, period. Lanais come in all shapes and sizes, exactly like kitchens, bedrooms and bathrooms, and the floor plan you choose will include lanai space that’s proportionate to your square. There are. Does A Lanai Count As Square Footage.
From www.homedepot.com
How to Calculate Square Footage Does A Lanai Count As Square Footage Find out the criteria for enclosed porches, garage apartments,. Learn how a lanai differs from a patio and a porch in terms of location, design, structure, and function. There are 2 different square footage numbers. Lanais come in all shapes and sizes, exactly like kitchens, bedrooms and bathrooms, and the floor plan you choose will include lanai space that’s proportionate. Does A Lanai Count As Square Footage.
From www.architecturaldesigns.com
Magnificent Covered Lanai 66316WE Architectural Designs House Plans Does A Lanai Count As Square Footage Not all of the space under your roof counts as living space from an appraiser’s perspective. Measuring a house, what counts? Learn how a lanai differs from a patio and a porch in terms of location, design, structure, and function. Outside, garages are not included, period. Find out the criteria for enclosed porches, garage apartments,. There are 2 different square. Does A Lanai Count As Square Footage.
From captainpatio.com
Do Enclosed Patios Count as Home Square Footage? Captain Patio Does A Lanai Count As Square Footage Learn how a lanai differs from a patio and a porch in terms of location, design, structure, and function. Lanais come in all shapes and sizes, exactly like kitchens, bedrooms and bathrooms, and the floor plan you choose will include lanai space that’s proportionate to your square. This allows fitting essential patio furniture like a. There are 2 different square. Does A Lanai Count As Square Footage.
From ipipeline.net
How To Calculate Square Footage Of A Kitchen Floor Things In The Kitchen Does A Lanai Count As Square Footage Learn how appraisers measure and value heated and cooled living area (gla) and what areas are not included in gla. Total square feet can include garage and screened in porch/balcony. Outside, garages are not included, period. A typical residential lanai ranges from 130 to 170 square feet (12 to 16 square meters). This allows fitting essential patio furniture like a.. Does A Lanai Count As Square Footage.
From viewfloor.co
How Do You Calculate Square Footage Of A Floor Plan Viewfloor.co Does A Lanai Count As Square Footage Lanais come in all shapes and sizes, exactly like kitchens, bedrooms and bathrooms, and the floor plan you choose will include lanai space that’s proportionate to your square. If the garage is attached to the house, the shared wall will serve as the. Any part of a house that requires the use of a ladder to get to it doesn't. Does A Lanai Count As Square Footage.