New Jersey Senior Property Tax Deduction . The 2025 budget includes $220 million for the program, which will be. Learn if you are eligible for a property tax deduction or credit based on your domicile, income, and residence type in new jersey. The senior freeze program reimburses eligible senior citizens and disabled persons for property tax or mobile home park site fee. The bill would also close a loophole in the original legislation that could have caused awards under stay nj in one year to reduce. If you are age 65 or older, or disabled, and have been a new jersey resident for at least one year, you may be eligible for an annual $250. Most older homeowners would see their property tax bills cut in half, with a maximum benefit of $6,500. Staynj is a plan to cut property taxes in half for seniors with incomes up to $500,000 in new jersey. New jersey lawmakers took a major step monday toward launching the new staynj property tax relief plan, which would provide. The agreement still must be.
from www.formsbank.com
Staynj is a plan to cut property taxes in half for seniors with incomes up to $500,000 in new jersey. The agreement still must be. If you are age 65 or older, or disabled, and have been a new jersey resident for at least one year, you may be eligible for an annual $250. The senior freeze program reimburses eligible senior citizens and disabled persons for property tax or mobile home park site fee. The bill would also close a loophole in the original legislation that could have caused awards under stay nj in one year to reduce. Learn if you are eligible for a property tax deduction or credit based on your domicile, income, and residence type in new jersey. The 2025 budget includes $220 million for the program, which will be. Most older homeowners would see their property tax bills cut in half, with a maximum benefit of $6,500. New jersey lawmakers took a major step monday toward launching the new staynj property tax relief plan, which would provide.
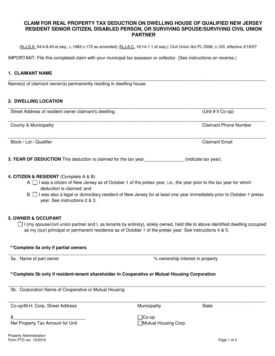
Fillable Claim For Real Property Tax Deduction On Dwelling House Of
New Jersey Senior Property Tax Deduction If you are age 65 or older, or disabled, and have been a new jersey resident for at least one year, you may be eligible for an annual $250. The agreement still must be. The 2025 budget includes $220 million for the program, which will be. Learn if you are eligible for a property tax deduction or credit based on your domicile, income, and residence type in new jersey. If you are age 65 or older, or disabled, and have been a new jersey resident for at least one year, you may be eligible for an annual $250. The senior freeze program reimburses eligible senior citizens and disabled persons for property tax or mobile home park site fee. New jersey lawmakers took a major step monday toward launching the new staynj property tax relief plan, which would provide. Staynj is a plan to cut property taxes in half for seniors with incomes up to $500,000 in new jersey. The bill would also close a loophole in the original legislation that could have caused awards under stay nj in one year to reduce. Most older homeowners would see their property tax bills cut in half, with a maximum benefit of $6,500.
From www.templateroller.com
Form PTR1 2020 Fill Out, Sign Online and Download Fillable PDF New Jersey Senior Property Tax Deduction Staynj is a plan to cut property taxes in half for seniors with incomes up to $500,000 in new jersey. The 2025 budget includes $220 million for the program, which will be. If you are age 65 or older, or disabled, and have been a new jersey resident for at least one year, you may be eligible for an annual. New Jersey Senior Property Tax Deduction.
From www.formsbank.com
Fillable Form Ptd Claim For Real Property Tax Deduction On Dwelling New Jersey Senior Property Tax Deduction New jersey lawmakers took a major step monday toward launching the new staynj property tax relief plan, which would provide. Most older homeowners would see their property tax bills cut in half, with a maximum benefit of $6,500. The 2025 budget includes $220 million for the program, which will be. If you are age 65 or older, or disabled, and. New Jersey Senior Property Tax Deduction.
From www.tapinto.net
Everything You Need to Know About the New Jersey Senior Freeze Property New Jersey Senior Property Tax Deduction New jersey lawmakers took a major step monday toward launching the new staynj property tax relief plan, which would provide. The 2025 budget includes $220 million for the program, which will be. If you are age 65 or older, or disabled, and have been a new jersey resident for at least one year, you may be eligible for an annual. New Jersey Senior Property Tax Deduction.
From www.templateroller.com
Form PTD Download Fillable PDF or Fill Online Claim for Real Property New Jersey Senior Property Tax Deduction The agreement still must be. Most older homeowners would see their property tax bills cut in half, with a maximum benefit of $6,500. Staynj is a plan to cut property taxes in half for seniors with incomes up to $500,000 in new jersey. New jersey lawmakers took a major step monday toward launching the new staynj property tax relief plan,. New Jersey Senior Property Tax Deduction.
From www.templateroller.com
Form V.S.S. Download Fillable PDF or Fill Online Property Tax Deduction New Jersey Senior Property Tax Deduction If you are age 65 or older, or disabled, and have been a new jersey resident for at least one year, you may be eligible for an annual $250. New jersey lawmakers took a major step monday toward launching the new staynj property tax relief plan, which would provide. The 2025 budget includes $220 million for the program, which will. New Jersey Senior Property Tax Deduction.
From prorfety.blogspot.com
PRORFETY New Jersey's Senior Freeze Property Tax Relief Program New Jersey Senior Property Tax Deduction The bill would also close a loophole in the original legislation that could have caused awards under stay nj in one year to reduce. Most older homeowners would see their property tax bills cut in half, with a maximum benefit of $6,500. The senior freeze program reimburses eligible senior citizens and disabled persons for property tax or mobile home park. New Jersey Senior Property Tax Deduction.
From nj1015.com
Seniors to receive 50 property tax cut to stay in New Jersey New Jersey Senior Property Tax Deduction The agreement still must be. Staynj is a plan to cut property taxes in half for seniors with incomes up to $500,000 in new jersey. The 2025 budget includes $220 million for the program, which will be. New jersey lawmakers took a major step monday toward launching the new staynj property tax relief plan, which would provide. The senior freeze. New Jersey Senior Property Tax Deduction.
From www.formsbank.com
Form Ptd Claim For Real Property Tax Deduction On Dwelling House Of New Jersey Senior Property Tax Deduction If you are age 65 or older, or disabled, and have been a new jersey resident for at least one year, you may be eligible for an annual $250. Staynj is a plan to cut property taxes in half for seniors with incomes up to $500,000 in new jersey. The bill would also close a loophole in the original legislation. New Jersey Senior Property Tax Deduction.
From fyojxcctx.blob.core.windows.net
Property Tax Nj Deduction at Armando Randolph blog New Jersey Senior Property Tax Deduction The senior freeze program reimburses eligible senior citizens and disabled persons for property tax or mobile home park site fee. New jersey lawmakers took a major step monday toward launching the new staynj property tax relief plan, which would provide. The bill would also close a loophole in the original legislation that could have caused awards under stay nj in. New Jersey Senior Property Tax Deduction.
From www.amboybank.com
Senior Property Tax Amboy Bank New Jersey Senior Property Tax Deduction Most older homeowners would see their property tax bills cut in half, with a maximum benefit of $6,500. If you are age 65 or older, or disabled, and have been a new jersey resident for at least one year, you may be eligible for an annual $250. The agreement still must be. New jersey lawmakers took a major step monday. New Jersey Senior Property Tax Deduction.
From www.formsbank.com
Fillable Form Pd4 Notice Of Disallowance Of Claim For A Real Property New Jersey Senior Property Tax Deduction The bill would also close a loophole in the original legislation that could have caused awards under stay nj in one year to reduce. If you are age 65 or older, or disabled, and have been a new jersey resident for at least one year, you may be eligible for an annual $250. New jersey lawmakers took a major step. New Jersey Senior Property Tax Deduction.
From www.kaigi.biz
Nj Property Tax Relief For Seniors New Jersey Senior Property Tax Deduction If you are age 65 or older, or disabled, and have been a new jersey resident for at least one year, you may be eligible for an annual $250. The senior freeze program reimburses eligible senior citizens and disabled persons for property tax or mobile home park site fee. Learn if you are eligible for a property tax deduction or. New Jersey Senior Property Tax Deduction.
From exooeidsz.blob.core.windows.net
New Jersey Property Tax Deduction 2021 at Paul Sackett blog New Jersey Senior Property Tax Deduction The senior freeze program reimburses eligible senior citizens and disabled persons for property tax or mobile home park site fee. Staynj is a plan to cut property taxes in half for seniors with incomes up to $500,000 in new jersey. The 2025 budget includes $220 million for the program, which will be. Most older homeowners would see their property tax. New Jersey Senior Property Tax Deduction.
From www.nj.com
Property Tax Deduction Guide New Jersey Senior Property Tax Deduction If you are age 65 or older, or disabled, and have been a new jersey resident for at least one year, you may be eligible for an annual $250. New jersey lawmakers took a major step monday toward launching the new staynj property tax relief plan, which would provide. The senior freeze program reimburses eligible senior citizens and disabled persons. New Jersey Senior Property Tax Deduction.
From staybite11.bitbucket.io
How To Lower Property Taxes In Nj Staybite11 New Jersey Senior Property Tax Deduction The 2025 budget includes $220 million for the program, which will be. New jersey lawmakers took a major step monday toward launching the new staynj property tax relief plan, which would provide. The senior freeze program reimburses eligible senior citizens and disabled persons for property tax or mobile home park site fee. The agreement still must be. Staynj is a. New Jersey Senior Property Tax Deduction.
From www.deeds.com
Property Tax Breaks for Older Homeowners (New Changes for NJ, PA, and New Jersey Senior Property Tax Deduction New jersey lawmakers took a major step monday toward launching the new staynj property tax relief plan, which would provide. Learn if you are eligible for a property tax deduction or credit based on your domicile, income, and residence type in new jersey. If you are age 65 or older, or disabled, and have been a new jersey resident for. New Jersey Senior Property Tax Deduction.
From newjerseymonitor.com
Tax credits could replace senior freeze rebates • New Jersey Monitor New Jersey Senior Property Tax Deduction Learn if you are eligible for a property tax deduction or credit based on your domicile, income, and residence type in new jersey. The agreement still must be. The bill would also close a loophole in the original legislation that could have caused awards under stay nj in one year to reduce. If you are age 65 or older, or. New Jersey Senior Property Tax Deduction.
From www.app.com
New Jersey Senior Freeze property tax relief program changes rules New Jersey Senior Property Tax Deduction Learn if you are eligible for a property tax deduction or credit based on your domicile, income, and residence type in new jersey. Most older homeowners would see their property tax bills cut in half, with a maximum benefit of $6,500. New jersey lawmakers took a major step monday toward launching the new staynj property tax relief plan, which would. New Jersey Senior Property Tax Deduction.
From www.slideserve.com
PPT New Jersey Property Tax Relief Programs PowerPoint Presentation New Jersey Senior Property Tax Deduction Most older homeowners would see their property tax bills cut in half, with a maximum benefit of $6,500. Learn if you are eligible for a property tax deduction or credit based on your domicile, income, and residence type in new jersey. If you are age 65 or older, or disabled, and have been a new jersey resident for at least. New Jersey Senior Property Tax Deduction.
From www.northjersey.com
NJ seniors could get property taxes break with StayNJ plan New Jersey Senior Property Tax Deduction The bill would also close a loophole in the original legislation that could have caused awards under stay nj in one year to reduce. The 2025 budget includes $220 million for the program, which will be. If you are age 65 or older, or disabled, and have been a new jersey resident for at least one year, you may be. New Jersey Senior Property Tax Deduction.
From www.califonboro.org
Senior Freeze Property Tax Reimbursement 2022 Califon, New Jersey New Jersey Senior Property Tax Deduction The bill would also close a loophole in the original legislation that could have caused awards under stay nj in one year to reduce. Learn if you are eligible for a property tax deduction or credit based on your domicile, income, and residence type in new jersey. If you are age 65 or older, or disabled, and have been a. New Jersey Senior Property Tax Deduction.
From www.njpp.org
Millions of New Jerseyans Deduct Billions in State and Local Taxes Each New Jersey Senior Property Tax Deduction The 2025 budget includes $220 million for the program, which will be. Learn if you are eligible for a property tax deduction or credit based on your domicile, income, and residence type in new jersey. The agreement still must be. The senior freeze program reimburses eligible senior citizens and disabled persons for property tax or mobile home park site fee.. New Jersey Senior Property Tax Deduction.
From www.templateroller.com
Form PTD Fill Out, Sign Online and Download Fillable PDF, New Jersey New Jersey Senior Property Tax Deduction Learn if you are eligible for a property tax deduction or credit based on your domicile, income, and residence type in new jersey. The agreement still must be. The senior freeze program reimburses eligible senior citizens and disabled persons for property tax or mobile home park site fee. The 2025 budget includes $220 million for the program, which will be.. New Jersey Senior Property Tax Deduction.
From www.njpp.org
State and Local Tax Deductions Benefit Tens of Thousands of New New Jersey Senior Property Tax Deduction Most older homeowners would see their property tax bills cut in half, with a maximum benefit of $6,500. The 2025 budget includes $220 million for the program, which will be. Staynj is a plan to cut property taxes in half for seniors with incomes up to $500,000 in new jersey. Learn if you are eligible for a property tax deduction. New Jersey Senior Property Tax Deduction.
From www.kaigi.biz
Nj Property Tax Relief For Seniors New Jersey Senior Property Tax Deduction Learn if you are eligible for a property tax deduction or credit based on your domicile, income, and residence type in new jersey. The agreement still must be. If you are age 65 or older, or disabled, and have been a new jersey resident for at least one year, you may be eligible for an annual $250. Most older homeowners. New Jersey Senior Property Tax Deduction.
From www.formsbank.com
Fillable Claim For Real Property Tax Deduction On Dwelling House Of New Jersey Senior Property Tax Deduction New jersey lawmakers took a major step monday toward launching the new staynj property tax relief plan, which would provide. Learn if you are eligible for a property tax deduction or credit based on your domicile, income, and residence type in new jersey. The bill would also close a loophole in the original legislation that could have caused awards under. New Jersey Senior Property Tax Deduction.
From www.northjersey.com
NJ senior property tax freeze reimbursement deadline now Feb. 1 New Jersey Senior Property Tax Deduction The senior freeze program reimburses eligible senior citizens and disabled persons for property tax or mobile home park site fee. New jersey lawmakers took a major step monday toward launching the new staynj property tax relief plan, which would provide. Learn if you are eligible for a property tax deduction or credit based on your domicile, income, and residence type. New Jersey Senior Property Tax Deduction.
From www.slideserve.com
PPT New Jersey Property Tax Relief Programs PowerPoint Presentation New Jersey Senior Property Tax Deduction The agreement still must be. If you are age 65 or older, or disabled, and have been a new jersey resident for at least one year, you may be eligible for an annual $250. Staynj is a plan to cut property taxes in half for seniors with incomes up to $500,000 in new jersey. The 2025 budget includes $220 million. New Jersey Senior Property Tax Deduction.
From www.templateroller.com
Form PTD Download Fillable PDF or Fill Online Claim for Real Property New Jersey Senior Property Tax Deduction Learn if you are eligible for a property tax deduction or credit based on your domicile, income, and residence type in new jersey. The senior freeze program reimburses eligible senior citizens and disabled persons for property tax or mobile home park site fee. The agreement still must be. Staynj is a plan to cut property taxes in half for seniors. New Jersey Senior Property Tax Deduction.
From randenewetti.pages.dev
2024 Standard Tax Deduction For Seniors Over 60 Rey Lenore New Jersey Senior Property Tax Deduction Learn if you are eligible for a property tax deduction or credit based on your domicile, income, and residence type in new jersey. Staynj is a plan to cut property taxes in half for seniors with incomes up to $500,000 in new jersey. If you are age 65 or older, or disabled, and have been a new jersey resident for. New Jersey Senior Property Tax Deduction.
From www.templateroller.com
Form PTD Fill Out, Sign Online and Download Fillable PDF, New Jersey New Jersey Senior Property Tax Deduction The senior freeze program reimburses eligible senior citizens and disabled persons for property tax or mobile home park site fee. The agreement still must be. The bill would also close a loophole in the original legislation that could have caused awards under stay nj in one year to reduce. Learn if you are eligible for a property tax deduction or. New Jersey Senior Property Tax Deduction.
From dxobexoeh.blob.core.windows.net
New Jersey State Property Tax Deduction at Robert Larson blog New Jersey Senior Property Tax Deduction The bill would also close a loophole in the original legislation that could have caused awards under stay nj in one year to reduce. If you are age 65 or older, or disabled, and have been a new jersey resident for at least one year, you may be eligible for an annual $250. The agreement still must be. The 2025. New Jersey Senior Property Tax Deduction.
From slideplayer.com
Itemized Deductions NJ Property Tax Deduction / Credit ppt download New Jersey Senior Property Tax Deduction The bill would also close a loophole in the original legislation that could have caused awards under stay nj in one year to reduce. Staynj is a plan to cut property taxes in half for seniors with incomes up to $500,000 in new jersey. The agreement still must be. Most older homeowners would see their property tax bills cut in. New Jersey Senior Property Tax Deduction.
From www.slideserve.com
PPT New Jersey Property Tax Relief Programs PowerPoint Presentation New Jersey Senior Property Tax Deduction The bill would also close a loophole in the original legislation that could have caused awards under stay nj in one year to reduce. If you are age 65 or older, or disabled, and have been a new jersey resident for at least one year, you may be eligible for an annual $250. Staynj is a plan to cut property. New Jersey Senior Property Tax Deduction.
From exooeidsz.blob.core.windows.net
New Jersey Property Tax Deduction 2021 at Paul Sackett blog New Jersey Senior Property Tax Deduction The agreement still must be. The 2025 budget includes $220 million for the program, which will be. Staynj is a plan to cut property taxes in half for seniors with incomes up to $500,000 in new jersey. Most older homeowners would see their property tax bills cut in half, with a maximum benefit of $6,500. If you are age 65. New Jersey Senior Property Tax Deduction.