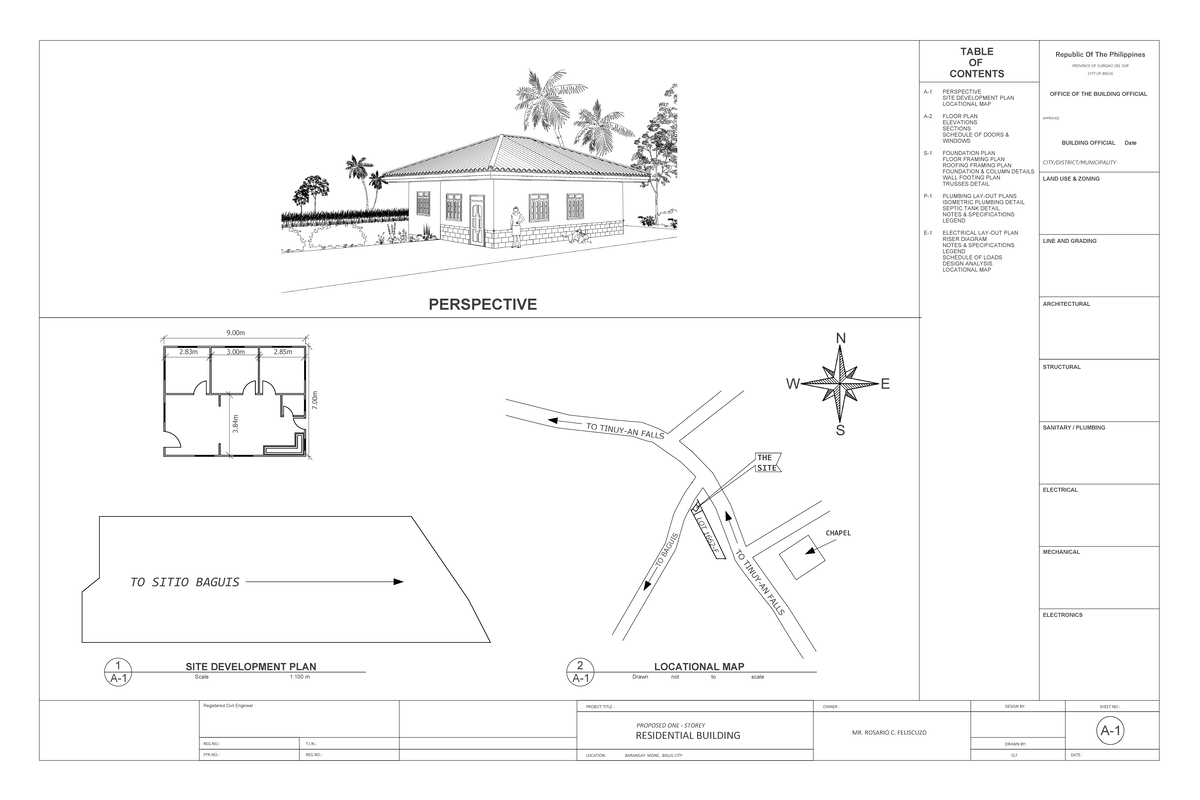
Complete Set Of Residential Construction Drawings Pdf Philippines . Perspective view & table of contents. This handbook is made to provide simple information to house owners, to house designers and builders, and building monitors. This document contains the table of contents for construction plans of a proposed building in the municipality of bantay, iloco sur, philippines. Pdf package will be for those who want a study set of the design. Office of the city engineer/building official. This document is a table of contents for architectural. Our complete working drawings provide detailed plans essential for successful construction. Detailed bill of materials and detailed electrical design in pdf copy. Complete set of plans (architectural plans, structural plans, sanitary/plumbing plans and electrical plans) in pdf copy. It consists of the following: It lists various architectural and structural drawings including a site development plan, vicinity map, floor plan, roof plan, elevations, sections, schedules, and foundation and roof beam.
from archihacks.com
Detailed bill of materials and detailed electrical design in pdf copy. This handbook is made to provide simple information to house owners, to house designers and builders, and building monitors. Pdf package will be for those who want a study set of the design. It consists of the following: Complete set of plans (architectural plans, structural plans, sanitary/plumbing plans and electrical plans) in pdf copy. This document contains the table of contents for construction plans of a proposed building in the municipality of bantay, iloco sur, philippines. Our complete working drawings provide detailed plans essential for successful construction. It lists various architectural and structural drawings including a site development plan, vicinity map, floor plan, roof plan, elevations, sections, schedules, and foundation and roof beam. This document is a table of contents for architectural. Office of the city engineer/building official.
Anatomy of the Construction Set Drawings Archi Hacks
Complete Set Of Residential Construction Drawings Pdf Philippines It lists various architectural and structural drawings including a site development plan, vicinity map, floor plan, roof plan, elevations, sections, schedules, and foundation and roof beam. This document is a table of contents for architectural. Office of the city engineer/building official. This handbook is made to provide simple information to house owners, to house designers and builders, and building monitors. It lists various architectural and structural drawings including a site development plan, vicinity map, floor plan, roof plan, elevations, sections, schedules, and foundation and roof beam. Perspective view & table of contents. Our complete working drawings provide detailed plans essential for successful construction. It consists of the following: Pdf package will be for those who want a study set of the design. This document contains the table of contents for construction plans of a proposed building in the municipality of bantay, iloco sur, philippines. Complete set of plans (architectural plans, structural plans, sanitary/plumbing plans and electrical plans) in pdf copy. Detailed bill of materials and detailed electrical design in pdf copy.
From bodaqwasuaq.github.io
House Plan Drawing Samples Plan Floor 2d Samples Plans Examples Complete Set Of Residential Construction Drawings Pdf Philippines This document is a table of contents for architectural. This document contains the table of contents for construction plans of a proposed building in the municipality of bantay, iloco sur, philippines. Detailed bill of materials and detailed electrical design in pdf copy. It lists various architectural and structural drawings including a site development plan, vicinity map, floor plan, roof plan,. Complete Set Of Residential Construction Drawings Pdf Philippines.
From www.housedesignideas.us
Residential Building Plans And Elevations Pdf House Design Ideas Complete Set Of Residential Construction Drawings Pdf Philippines It lists various architectural and structural drawings including a site development plan, vicinity map, floor plan, roof plan, elevations, sections, schedules, and foundation and roof beam. Detailed bill of materials and detailed electrical design in pdf copy. It consists of the following: Pdf package will be for those who want a study set of the design. This document contains the. Complete Set Of Residential Construction Drawings Pdf Philippines.
From houseplanphotos.blogspot.com
39+ House Plan For Building Permit Philippines, Cool! Complete Set Of Residential Construction Drawings Pdf Philippines Complete set of plans (architectural plans, structural plans, sanitary/plumbing plans and electrical plans) in pdf copy. This handbook is made to provide simple information to house owners, to house designers and builders, and building monitors. Office of the city engineer/building official. This document contains the table of contents for construction plans of a proposed building in the municipality of bantay,. Complete Set Of Residential Construction Drawings Pdf Philippines.
From kirstensaarah.blogspot.com
12+ Full Set Of Construction Documents Pdf KirstenSaarah Complete Set Of Residential Construction Drawings Pdf Philippines It lists various architectural and structural drawings including a site development plan, vicinity map, floor plan, roof plan, elevations, sections, schedules, and foundation and roof beam. This document contains the table of contents for construction plans of a proposed building in the municipality of bantay, iloco sur, philippines. This handbook is made to provide simple information to house owners, to. Complete Set Of Residential Construction Drawings Pdf Philippines.
From viewfloor.co
House Floor Plan Samples Philippines Pdf Viewfloor.co Complete Set Of Residential Construction Drawings Pdf Philippines Perspective view & table of contents. This handbook is made to provide simple information to house owners, to house designers and builders, and building monitors. This document is a table of contents for architectural. Complete set of plans (architectural plans, structural plans, sanitary/plumbing plans and electrical plans) in pdf copy. It lists various architectural and structural drawings including a site. Complete Set Of Residential Construction Drawings Pdf Philippines.
From www.pinterest.com
SAMPLE MASTER SETS Architecture drawing, Construction drawings Complete Set Of Residential Construction Drawings Pdf Philippines Detailed bill of materials and detailed electrical design in pdf copy. Our complete working drawings provide detailed plans essential for successful construction. This document contains the table of contents for construction plans of a proposed building in the municipality of bantay, iloco sur, philippines. Complete set of plans (architectural plans, structural plans, sanitary/plumbing plans and electrical plans) in pdf copy.. Complete Set Of Residential Construction Drawings Pdf Philippines.
From www.craighdesign.com
The 6 Key Drawing Types For Residential Construction Documents Craig Complete Set Of Residential Construction Drawings Pdf Philippines This document contains the table of contents for construction plans of a proposed building in the municipality of bantay, iloco sur, philippines. It lists various architectural and structural drawings including a site development plan, vicinity map, floor plan, roof plan, elevations, sections, schedules, and foundation and roof beam. Perspective view & table of contents. Our complete working drawings provide detailed. Complete Set Of Residential Construction Drawings Pdf Philippines.
From www.satro.org.uk
Satro Construction Drawing Complete Set Of Residential Construction Drawings Pdf Philippines It consists of the following: Office of the city engineer/building official. This document is a table of contents for architectural. This handbook is made to provide simple information to house owners, to house designers and builders, and building monitors. Complete set of plans (architectural plans, structural plans, sanitary/plumbing plans and electrical plans) in pdf copy. It lists various architectural and. Complete Set Of Residential Construction Drawings Pdf Philippines.
From www.housedesignideas.us
Residential Building Plans And Elevations Pdf Complete Set Of Residential Construction Drawings Pdf Philippines Pdf package will be for those who want a study set of the design. Perspective view & table of contents. Complete set of plans (architectural plans, structural plans, sanitary/plumbing plans and electrical plans) in pdf copy. Our complete working drawings provide detailed plans essential for successful construction. It lists various architectural and structural drawings including a site development plan, vicinity. Complete Set Of Residential Construction Drawings Pdf Philippines.
From jdugganassociates.com
Residential Construction Drawings J. Duggan Associates Complete Set Of Residential Construction Drawings Pdf Philippines Pdf package will be for those who want a study set of the design. Detailed bill of materials and detailed electrical design in pdf copy. This handbook is made to provide simple information to house owners, to house designers and builders, and building monitors. It lists various architectural and structural drawings including a site development plan, vicinity map, floor plan,. Complete Set Of Residential Construction Drawings Pdf Philippines.
From www.houseplans.pro
Free Sample House Plans Construction Documents Complete Set Of Residential Construction Drawings Pdf Philippines It consists of the following: Perspective view & table of contents. This handbook is made to provide simple information to house owners, to house designers and builders, and building monitors. Detailed bill of materials and detailed electrical design in pdf copy. This document contains the table of contents for construction plans of a proposed building in the municipality of bantay,. Complete Set Of Residential Construction Drawings Pdf Philippines.
From cadbull.com
Architecture House Plan And Elevation Complete Drawing Cadbull Complete Set Of Residential Construction Drawings Pdf Philippines Detailed bill of materials and detailed electrical design in pdf copy. This handbook is made to provide simple information to house owners, to house designers and builders, and building monitors. This document is a table of contents for architectural. It consists of the following: Perspective view & table of contents. This document contains the table of contents for construction plans. Complete Set Of Residential Construction Drawings Pdf Philippines.
From www.files.construction
Two Storey House Complete CAD Plan Construction Documents And Templates Complete Set Of Residential Construction Drawings Pdf Philippines This document is a table of contents for architectural. This handbook is made to provide simple information to house owners, to house designers and builders, and building monitors. This document contains the table of contents for construction plans of a proposed building in the municipality of bantay, iloco sur, philippines. It lists various architectural and structural drawings including a site. Complete Set Of Residential Construction Drawings Pdf Philippines.
From jdugganassociates.com
Residential Construction Drawings J. Duggan Associates Complete Set Of Residential Construction Drawings Pdf Philippines This document contains the table of contents for construction plans of a proposed building in the municipality of bantay, iloco sur, philippines. It consists of the following: Perspective view & table of contents. It lists various architectural and structural drawings including a site development plan, vicinity map, floor plan, roof plan, elevations, sections, schedules, and foundation and roof beam. Office. Complete Set Of Residential Construction Drawings Pdf Philippines.
From www.houseplans.pro
Free Sample House Plans Construction Documents Complete Set Of Residential Construction Drawings Pdf Philippines It lists various architectural and structural drawings including a site development plan, vicinity map, floor plan, roof plan, elevations, sections, schedules, and foundation and roof beam. This handbook is made to provide simple information to house owners, to house designers and builders, and building monitors. Detailed bill of materials and detailed electrical design in pdf copy. Pdf package will be. Complete Set Of Residential Construction Drawings Pdf Philippines.
From sater.myshopify.com
What is in a Set of House Plans? Sater Design Collection Home Plans Complete Set Of Residential Construction Drawings Pdf Philippines Perspective view & table of contents. This document is a table of contents for architectural. It consists of the following: Office of the city engineer/building official. It lists various architectural and structural drawings including a site development plan, vicinity map, floor plan, roof plan, elevations, sections, schedules, and foundation and roof beam. This document contains the table of contents for. Complete Set Of Residential Construction Drawings Pdf Philippines.
From www.craighdesign.com
The 6 Key Drawing Types For Residential Construction Documents Craig Complete Set Of Residential Construction Drawings Pdf Philippines Pdf package will be for those who want a study set of the design. This handbook is made to provide simple information to house owners, to house designers and builders, and building monitors. Detailed bill of materials and detailed electrical design in pdf copy. Office of the city engineer/building official. It lists various architectural and structural drawings including a site. Complete Set Of Residential Construction Drawings Pdf Philippines.
From peacecommission.kdsg.gov.ng
Construction Drawing Set Complete Set Of Residential Construction Drawings Pdf Philippines This document contains the table of contents for construction plans of a proposed building in the municipality of bantay, iloco sur, philippines. Pdf package will be for those who want a study set of the design. Complete set of plans (architectural plans, structural plans, sanitary/plumbing plans and electrical plans) in pdf copy. Our complete working drawings provide detailed plans essential. Complete Set Of Residential Construction Drawings Pdf Philippines.
From berniecorrela.blogspot.com
complete set of residential construction drawings pdf philippines Complete Set Of Residential Construction Drawings Pdf Philippines It consists of the following: This document is a table of contents for architectural. Perspective view & table of contents. Detailed bill of materials and detailed electrical design in pdf copy. This handbook is made to provide simple information to house owners, to house designers and builders, and building monitors. Complete set of plans (architectural plans, structural plans, sanitary/plumbing plans. Complete Set Of Residential Construction Drawings Pdf Philippines.
From archihacks.com
Anatomy of the Construction Set Drawings Archi Hacks Complete Set Of Residential Construction Drawings Pdf Philippines Our complete working drawings provide detailed plans essential for successful construction. Detailed bill of materials and detailed electrical design in pdf copy. This handbook is made to provide simple information to house owners, to house designers and builders, and building monitors. Pdf package will be for those who want a study set of the design. This document contains the table. Complete Set Of Residential Construction Drawings Pdf Philippines.
From houseplancontemporary.blogspot.com
Best 24+ House Plan Working Drawing Complete Set Of Residential Construction Drawings Pdf Philippines Complete set of plans (architectural plans, structural plans, sanitary/plumbing plans and electrical plans) in pdf copy. Our complete working drawings provide detailed plans essential for successful construction. Pdf package will be for those who want a study set of the design. It lists various architectural and structural drawings including a site development plan, vicinity map, floor plan, roof plan, elevations,. Complete Set Of Residential Construction Drawings Pdf Philippines.
From garrisontopinterior.blogspot.com
House Construction Drawing Set / 21 with Complete Set Of Construction Complete Set Of Residential Construction Drawings Pdf Philippines It lists various architectural and structural drawings including a site development plan, vicinity map, floor plan, roof plan, elevations, sections, schedules, and foundation and roof beam. Office of the city engineer/building official. This handbook is made to provide simple information to house owners, to house designers and builders, and building monitors. Detailed bill of materials and detailed electrical design in. Complete Set Of Residential Construction Drawings Pdf Philippines.
From jdugganassociates.com
Residential Construction Drawings J. Duggan Associates Complete Set Of Residential Construction Drawings Pdf Philippines This document contains the table of contents for construction plans of a proposed building in the municipality of bantay, iloco sur, philippines. It lists various architectural and structural drawings including a site development plan, vicinity map, floor plan, roof plan, elevations, sections, schedules, and foundation and roof beam. Complete set of plans (architectural plans, structural plans, sanitary/plumbing plans and electrical. Complete Set Of Residential Construction Drawings Pdf Philippines.
From suppa-scarboro99.blogspot.com
complete set of residential construction drawings pdf suppascarboro99 Complete Set Of Residential Construction Drawings Pdf Philippines Perspective view & table of contents. Complete set of plans (architectural plans, structural plans, sanitary/plumbing plans and electrical plans) in pdf copy. This handbook is made to provide simple information to house owners, to house designers and builders, and building monitors. This document is a table of contents for architectural. Our complete working drawings provide detailed plans essential for successful. Complete Set Of Residential Construction Drawings Pdf Philippines.
From berniecorrela.blogspot.com
complete set of residential construction drawings pdf philippines Complete Set Of Residential Construction Drawings Pdf Philippines Detailed bill of materials and detailed electrical design in pdf copy. This document contains the table of contents for construction plans of a proposed building in the municipality of bantay, iloco sur, philippines. This document is a table of contents for architectural. Pdf package will be for those who want a study set of the design. This handbook is made. Complete Set Of Residential Construction Drawings Pdf Philippines.
From pinoyhousedesigns.com
Package Descriptions Pinoy House Designs Complete Set Of Residential Construction Drawings Pdf Philippines Our complete working drawings provide detailed plans essential for successful construction. It lists various architectural and structural drawings including a site development plan, vicinity map, floor plan, roof plan, elevations, sections, schedules, and foundation and roof beam. Perspective view & table of contents. Office of the city engineer/building official. It consists of the following: Detailed bill of materials and detailed. Complete Set Of Residential Construction Drawings Pdf Philippines.
From construction-drawings.com
Home Page Complete Set Of Residential Construction Drawings Pdf Philippines This document is a table of contents for architectural. Pdf package will be for those who want a study set of the design. Perspective view & table of contents. It consists of the following: This handbook is made to provide simple information to house owners, to house designers and builders, and building monitors. Our complete working drawings provide detailed plans. Complete Set Of Residential Construction Drawings Pdf Philippines.
From berniecorrela.blogspot.com
complete set of residential construction drawings pdf philippines Complete Set Of Residential Construction Drawings Pdf Philippines It lists various architectural and structural drawings including a site development plan, vicinity map, floor plan, roof plan, elevations, sections, schedules, and foundation and roof beam. This handbook is made to provide simple information to house owners, to house designers and builders, and building monitors. Detailed bill of materials and detailed electrical design in pdf copy. This document is a. Complete Set Of Residential Construction Drawings Pdf Philippines.
From www.planmarketplace.com
2 Storey House Plan Complete Construction Drawing CAD Files, DWG Complete Set Of Residential Construction Drawings Pdf Philippines This handbook is made to provide simple information to house owners, to house designers and builders, and building monitors. Perspective view & table of contents. Pdf package will be for those who want a study set of the design. Detailed bill of materials and detailed electrical design in pdf copy. This document contains the table of contents for construction plans. Complete Set Of Residential Construction Drawings Pdf Philippines.
From homeplan.cloud
Full House Design Plan Pdf homeplan.cloud Complete Set Of Residential Construction Drawings Pdf Philippines It lists various architectural and structural drawings including a site development plan, vicinity map, floor plan, roof plan, elevations, sections, schedules, and foundation and roof beam. This document is a table of contents for architectural. Detailed bill of materials and detailed electrical design in pdf copy. Perspective view & table of contents. This document contains the table of contents for. Complete Set Of Residential Construction Drawings Pdf Philippines.
From www.planmarketplace.com
2 Storey House Plan Complete Construction Drawing CAD Files, DWG Complete Set Of Residential Construction Drawings Pdf Philippines Detailed bill of materials and detailed electrical design in pdf copy. Office of the city engineer/building official. It consists of the following: This document contains the table of contents for construction plans of a proposed building in the municipality of bantay, iloco sur, philippines. This document is a table of contents for architectural. Perspective view & table of contents. Pdf. Complete Set Of Residential Construction Drawings Pdf Philippines.
From brlaririt01.blogspot.com
TECHNICAL INFORMATIONS FOR ARCHITECTURAL AND INDUSTRIAL RELATED WORKS Complete Set Of Residential Construction Drawings Pdf Philippines It consists of the following: Perspective view & table of contents. Detailed bill of materials and detailed electrical design in pdf copy. It lists various architectural and structural drawings including a site development plan, vicinity map, floor plan, roof plan, elevations, sections, schedules, and foundation and roof beam. This document is a table of contents for architectural. Our complete working. Complete Set Of Residential Construction Drawings Pdf Philippines.
From freehouseplan2019.blogspot.com
House Plan Section Elevation Pdf Complete Set Of Residential Construction Drawings Pdf Philippines It consists of the following: This document is a table of contents for architectural. Our complete working drawings provide detailed plans essential for successful construction. Perspective view & table of contents. Pdf package will be for those who want a study set of the design. This document contains the table of contents for construction plans of a proposed building in. Complete Set Of Residential Construction Drawings Pdf Philippines.
From www.studocu.com
House Plans ( Design) PROJECT TITLE LOCATION BARANGAY MONE, BISLIG Complete Set Of Residential Construction Drawings Pdf Philippines It consists of the following: Perspective view & table of contents. It lists various architectural and structural drawings including a site development plan, vicinity map, floor plan, roof plan, elevations, sections, schedules, and foundation and roof beam. This handbook is made to provide simple information to house owners, to house designers and builders, and building monitors. Our complete working drawings. Complete Set Of Residential Construction Drawings Pdf Philippines.
From www.homepedian.com
Structural Drawing For Residential Building A Comprehensive Guide Complete Set Of Residential Construction Drawings Pdf Philippines Office of the city engineer/building official. This handbook is made to provide simple information to house owners, to house designers and builders, and building monitors. This document is a table of contents for architectural. It lists various architectural and structural drawings including a site development plan, vicinity map, floor plan, roof plan, elevations, sections, schedules, and foundation and roof beam.. Complete Set Of Residential Construction Drawings Pdf Philippines.