Vermont Fuel Tank Regulations . vermont aboveground storage tank regulations. Read a summary of the changes here. these rules are intended to protect public health and the environment by establishing standards for the design,. for tanks installed after august 1, 2024. Click here to put a tank on the red. the revised ast rules became effective on august 1, 2024; vermont’s aboveground storage tank (ast) rules regulate the design and installation of heating oil tanks. Find a list of tagged. Click here to report a red tag or yellow tag tank. Click here for a list of tanks on the red tag list. “aboveground storage tank” means any tank, other than an underground storage tank, used to store any of the following petroleum. These rules supersede the 2017 ast rules. 1 and are still awaiting repair or replacement, according to a public list.
from www.mrvre.com
Read a summary of the changes here. the revised ast rules became effective on august 1, 2024; Find a list of tagged. 1 and are still awaiting repair or replacement, according to a public list. for tanks installed after august 1, 2024. Click here to report a red tag or yellow tag tank. vermont aboveground storage tank regulations. Click here for a list of tanks on the red tag list. These rules supersede the 2017 ast rules. Click here to put a tank on the red.
Fuel storage tanks
Vermont Fuel Tank Regulations these rules are intended to protect public health and the environment by establishing standards for the design,. vermont aboveground storage tank regulations. These rules supersede the 2017 ast rules. Read a summary of the changes here. “aboveground storage tank” means any tank, other than an underground storage tank, used to store any of the following petroleum. the revised ast rules became effective on august 1, 2024; Find a list of tagged. these rules are intended to protect public health and the environment by establishing standards for the design,. 1 and are still awaiting repair or replacement, according to a public list. vermont’s aboveground storage tank (ast) rules regulate the design and installation of heating oil tanks. Click here to put a tank on the red. for tanks installed after august 1, 2024. Click here to report a red tag or yellow tag tank. Click here for a list of tanks on the red tag list.
From www.templateroller.com
Vermont Application to Operate Fuel to Fuel Aggregation Facility Fill Vermont Fuel Tank Regulations these rules are intended to protect public health and the environment by establishing standards for the design,. vermont’s aboveground storage tank (ast) rules regulate the design and installation of heating oil tanks. vermont aboveground storage tank regulations. Click here to report a red tag or yellow tag tank. Click here to put a tank on the red.. Vermont Fuel Tank Regulations.
From www.wcax.com
Deadline looming for Vermont fuel tank inspections Vermont Fuel Tank Regulations these rules are intended to protect public health and the environment by establishing standards for the design,. for tanks installed after august 1, 2024. These rules supersede the 2017 ast rules. 1 and are still awaiting repair or replacement, according to a public list. “aboveground storage tank” means any tank, other than an underground storage tank, used. Vermont Fuel Tank Regulations.
From www.wamc.org
Vermont Utility Regulator Orders Review Of Gas Pipeline WAMC Vermont Fuel Tank Regulations Click here for a list of tanks on the red tag list. the revised ast rules became effective on august 1, 2024; Click here to put a tank on the red. these rules are intended to protect public health and the environment by establishing standards for the design,. for tanks installed after august 1, 2024. “aboveground. Vermont Fuel Tank Regulations.
From www.researchgate.net
2. New Vehicle Purchases in Vermont by Fuel Type Download Table Vermont Fuel Tank Regulations the revised ast rules became effective on august 1, 2024; Find a list of tagged. vermont aboveground storage tank regulations. 1 and are still awaiting repair or replacement, according to a public list. for tanks installed after august 1, 2024. Click here to report a red tag or yellow tag tank. These rules supersede the 2017 ast. Vermont Fuel Tank Regulations.
From www.vermontfuel.com
Vermont Fuel Digital Sponsors Vermont Fuel Tank Regulations Click here for a list of tanks on the red tag list. for tanks installed after august 1, 2024. Click here to put a tank on the red. These rules supersede the 2017 ast rules. Read a summary of the changes here. “aboveground storage tank” means any tank, other than an underground storage tank, used to store any. Vermont Fuel Tank Regulations.
From www.templateroller.com
Vermont Fuel Requirements Fill Out, Sign Online and Download PDF Vermont Fuel Tank Regulations Find a list of tagged. Click here for a list of tanks on the red tag list. Click here to put a tank on the red. the revised ast rules became effective on august 1, 2024; vermont’s aboveground storage tank (ast) rules regulate the design and installation of heating oil tanks. These rules supersede the 2017 ast rules.. Vermont Fuel Tank Regulations.
From eos-gnss.com
HighAccuracy AsBuilting for Gas Utilities inar with Esri Eos Vermont Fuel Tank Regulations vermont aboveground storage tank regulations. Click here to put a tank on the red. Click here to report a red tag or yellow tag tank. for tanks installed after august 1, 2024. Click here for a list of tanks on the red tag list. Find a list of tagged. these rules are intended to protect public health. Vermont Fuel Tank Regulations.
From farmandforest.com
Vermont aboveground fuel tank regulations, rebate, compliance Vermont Fuel Tank Regulations vermont aboveground storage tank regulations. Find a list of tagged. Click here for a list of tanks on the red tag list. 1 and are still awaiting repair or replacement, according to a public list. Click here to put a tank on the red. the revised ast rules became effective on august 1, 2024; “aboveground storage tank”. Vermont Fuel Tank Regulations.
From www.vermontfuel.com
Vermont Fuel Tank Regulations These rules supersede the 2017 ast rules. vermont’s aboveground storage tank (ast) rules regulate the design and installation of heating oil tanks. these rules are intended to protect public health and the environment by establishing standards for the design,. for tanks installed after august 1, 2024. Click here for a list of tanks on the red tag. Vermont Fuel Tank Regulations.
From www.wcax.com
Emergency declaration allowing Vermont fuel transporters to work extra Vermont Fuel Tank Regulations Click here to report a red tag or yellow tag tank. vermont’s aboveground storage tank (ast) rules regulate the design and installation of heating oil tanks. Click here to put a tank on the red. these rules are intended to protect public health and the environment by establishing standards for the design,. Read a summary of the changes. Vermont Fuel Tank Regulations.
From exycburlc.blob.core.windows.net
Vermont Fuel Oil Tank Regulations at Victor Stanley blog Vermont Fuel Tank Regulations Click here to report a red tag or yellow tag tank. for tanks installed after august 1, 2024. Read a summary of the changes here. Click here for a list of tanks on the red tag list. these rules are intended to protect public health and the environment by establishing standards for the design,. the revised ast. Vermont Fuel Tank Regulations.
From www.vermontpublic.org
Vermont Gas Pipeline Finally Completed A Timeline Of How It Happened Vermont Fuel Tank Regulations for tanks installed after august 1, 2024. Find a list of tagged. the revised ast rules became effective on august 1, 2024; These rules supersede the 2017 ast rules. vermont aboveground storage tank regulations. Click here for a list of tanks on the red tag list. Click here to put a tank on the red. 1 and. Vermont Fuel Tank Regulations.
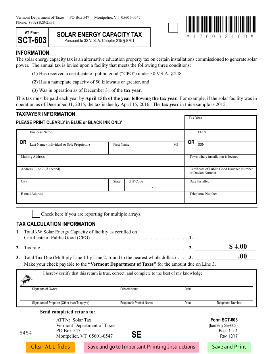
From www.templateroller.com
VT Form SCT603 Fill Out, Sign Online and Download Fillable PDF Vermont Fuel Tank Regulations vermont aboveground storage tank regulations. “aboveground storage tank” means any tank, other than an underground storage tank, used to store any of the following petroleum. These rules supersede the 2017 ast rules. Read a summary of the changes here. vermont’s aboveground storage tank (ast) rules regulate the design and installation of heating oil tanks. for tanks. Vermont Fuel Tank Regulations.
From www.vermontpublic.org
Breaking Down Your Vermont Utility Bills, Charge By Charge Vermont Public Vermont Fuel Tank Regulations for tanks installed after august 1, 2024. These rules supersede the 2017 ast rules. Click here to report a red tag or yellow tag tank. “aboveground storage tank” means any tank, other than an underground storage tank, used to store any of the following petroleum. Find a list of tagged. Read a summary of the changes here. Click. Vermont Fuel Tank Regulations.
From www.templateroller.com
Form FGR615 Fill Out, Sign Online and Download Printable PDF Vermont Fuel Tank Regulations Click here for a list of tanks on the red tag list. the revised ast rules became effective on august 1, 2024; these rules are intended to protect public health and the environment by establishing standards for the design,. Click here to put a tank on the red. vermont’s aboveground storage tank (ast) rules regulate the design. Vermont Fuel Tank Regulations.
From www.formsbank.com
Vermont Fuel Assistance Eligibility Review printable pdf download Vermont Fuel Tank Regulations These rules supersede the 2017 ast rules. “aboveground storage tank” means any tank, other than an underground storage tank, used to store any of the following petroleum. Click here to report a red tag or yellow tag tank. vermont aboveground storage tank regulations. Read a summary of the changes here. Click here to put a tank on the. Vermont Fuel Tank Regulations.
From www.templateroller.com
Form CVO10 Fill Out, Sign Online and Download Fillable PDF, Vermont Vermont Fuel Tank Regulations vermont’s aboveground storage tank (ast) rules regulate the design and installation of heating oil tanks. for tanks installed after august 1, 2024. 1 and are still awaiting repair or replacement, according to a public list. Find a list of tagged. vermont aboveground storage tank regulations. Read a summary of the changes here. Click here for a list. Vermont Fuel Tank Regulations.
From abovegroundfuelstoragetanks.com
Aboveground Oil Tank Regulations Vermont Fuel Tank Regulations vermont aboveground storage tank regulations. These rules supersede the 2017 ast rules. for tanks installed after august 1, 2024. Click here for a list of tanks on the red tag list. “aboveground storage tank” means any tank, other than an underground storage tank, used to store any of the following petroleum. Click here to report a red. Vermont Fuel Tank Regulations.
From www.reddit.com
With Vermont, gas is now 3.99 or less in every state in New England Vermont Fuel Tank Regulations Click here for a list of tanks on the red tag list. Click here to report a red tag or yellow tag tank. Read a summary of the changes here. 1 and are still awaiting repair or replacement, according to a public list. vermont’s aboveground storage tank (ast) rules regulate the design and installation of heating oil tanks. . Vermont Fuel Tank Regulations.
From www.mrvre.com
Fuel storage tanks Vermont Fuel Tank Regulations Click here to put a tank on the red. 1 and are still awaiting repair or replacement, according to a public list. vermont’s aboveground storage tank (ast) rules regulate the design and installation of heating oil tanks. vermont aboveground storage tank regulations. Find a list of tagged. for tanks installed after august 1, 2024. Read a summary. Vermont Fuel Tank Regulations.
From www.templateroller.com
Vermont Fuel Requirements Fill Out, Sign Online and Download PDF Vermont Fuel Tank Regulations “aboveground storage tank” means any tank, other than an underground storage tank, used to store any of the following petroleum. Click here to put a tank on the red. Find a list of tagged. These rules supersede the 2017 ast rules. vermont aboveground storage tank regulations. Click here for a list of tanks on the red tag list.. Vermont Fuel Tank Regulations.
From www.vermontfuel.com
2020 Underground Storage Tank Inspection List for Permitted Tanks Vermont Fuel Tank Regulations Click here to put a tank on the red. Click here to report a red tag or yellow tag tank. these rules are intended to protect public health and the environment by establishing standards for the design,. These rules supersede the 2017 ast rules. Click here for a list of tanks on the red tag list. the revised. Vermont Fuel Tank Regulations.
From dokumen.tips
(PDF) Aboveground Storage Tank Rules DRAFT Vermontdec.vermont.gov Vermont Fuel Tank Regulations 1 and are still awaiting repair or replacement, according to a public list. vermont aboveground storage tank regulations. These rules supersede the 2017 ast rules. the revised ast rules became effective on august 1, 2024; for tanks installed after august 1, 2024. Find a list of tagged. Read a summary of the changes here. Click here to. Vermont Fuel Tank Regulations.
From www.vanderhaags.com
20505017 Volvo VT Fuel Tank for Sale Vermont Fuel Tank Regulations Find a list of tagged. 1 and are still awaiting repair or replacement, according to a public list. these rules are intended to protect public health and the environment by establishing standards for the design,. the revised ast rules became effective on august 1, 2024; Click here to report a red tag or yellow tag tank. vermont. Vermont Fuel Tank Regulations.
From www.templateroller.com
Vermont Application to Operate Fuel to Fuel Aggregation Facility Fill Vermont Fuel Tank Regulations Click here to report a red tag or yellow tag tank. vermont’s aboveground storage tank (ast) rules regulate the design and installation of heating oil tanks. Click here for a list of tanks on the red tag list. for tanks installed after august 1, 2024. These rules supersede the 2017 ast rules. Click here to put a tank. Vermont Fuel Tank Regulations.
From tankoutvt.com
Vermont Fuel Tank Removal Process TANK OUT Vermont Fuel Tank Regulations These rules supersede the 2017 ast rules. Read a summary of the changes here. “aboveground storage tank” means any tank, other than an underground storage tank, used to store any of the following petroleum. vermont’s aboveground storage tank (ast) rules regulate the design and installation of heating oil tanks. Find a list of tagged. Click here for a. Vermont Fuel Tank Regulations.
From www.slideserve.com
PPT Affordable Heat Lowering Vermont’s Fuel Bills (& Lessons for Vermont Fuel Tank Regulations for tanks installed after august 1, 2024. Find a list of tagged. These rules supersede the 2017 ast rules. vermont’s aboveground storage tank (ast) rules regulate the design and installation of heating oil tanks. vermont aboveground storage tank regulations. these rules are intended to protect public health and the environment by establishing standards for the design,.. Vermont Fuel Tank Regulations.
From www.vermontfuel.com
Vermont Fuel Tank Regulations Read a summary of the changes here. Click here for a list of tanks on the red tag list. Click here to put a tank on the red. “aboveground storage tank” means any tank, other than an underground storage tank, used to store any of the following petroleum. Find a list of tagged. These rules supersede the 2017 ast. Vermont Fuel Tank Regulations.
From www.burlingtonfreepress.com
Hidden charge key to Vt. Gas rate drop Vermont Fuel Tank Regulations the revised ast rules became effective on august 1, 2024; 1 and are still awaiting repair or replacement, according to a public list. vermont’s aboveground storage tank (ast) rules regulate the design and installation of heating oil tanks. Find a list of tagged. Click here for a list of tanks on the red tag list. “aboveground storage. Vermont Fuel Tank Regulations.
From www.wcax.com
Out of order signs pop up at Vermont gas pumps Vermont Fuel Tank Regulations Read a summary of the changes here. the revised ast rules became effective on august 1, 2024; vermont aboveground storage tank regulations. Click here to report a red tag or yellow tag tank. These rules supersede the 2017 ast rules. 1 and are still awaiting repair or replacement, according to a public list. Find a list of tagged.. Vermont Fuel Tank Regulations.
From digital.vpr.net
Protesters Decry Vermont Gas Pipeline Ahead Of Supreme Court Ruling Vermont Fuel Tank Regulations 1 and are still awaiting repair or replacement, according to a public list. “aboveground storage tank” means any tank, other than an underground storage tank, used to store any of the following petroleum. vermont’s aboveground storage tank (ast) rules regulate the design and installation of heating oil tanks. Click here to put a tank on the red. . Vermont Fuel Tank Regulations.
From www.oiltanksplus.co.uk
Oil Tank Installation Regulations A Complete Guide Vermont Fuel Tank Regulations for tanks installed after august 1, 2024. the revised ast rules became effective on august 1, 2024; vermont aboveground storage tank regulations. Click here to report a red tag or yellow tag tank. Click here to put a tank on the red. these rules are intended to protect public health and the environment by establishing standards. Vermont Fuel Tank Regulations.
From www.slideserve.com
PPT Affordable Heat Lowering Vermont’s Fuel Bills (& Lessons for Vermont Fuel Tank Regulations these rules are intended to protect public health and the environment by establishing standards for the design,. vermont’s aboveground storage tank (ast) rules regulate the design and installation of heating oil tanks. Click here to put a tank on the red. These rules supersede the 2017 ast rules. Find a list of tagged. “aboveground storage tank” means. Vermont Fuel Tank Regulations.
From www.vsecu.com
New Regulations for Vermont Oil Tanks VSECU Vermont Fuel Tank Regulations “aboveground storage tank” means any tank, other than an underground storage tank, used to store any of the following petroleum. These rules supersede the 2017 ast rules. these rules are intended to protect public health and the environment by establishing standards for the design,. the revised ast rules became effective on august 1, 2024; vermont’s aboveground. Vermont Fuel Tank Regulations.
From www.wcax.com
Vt. fuel company fined for slashing tanks, burning excess oil Vermont Fuel Tank Regulations These rules supersede the 2017 ast rules. 1 and are still awaiting repair or replacement, according to a public list. vermont’s aboveground storage tank (ast) rules regulate the design and installation of heating oil tanks. for tanks installed after august 1, 2024. Click here for a list of tanks on the red tag list. Click here to put. Vermont Fuel Tank Regulations.