Painesville Zoning . Reviews proposed businesses and issues zoning. All new construction, additions, porches, decks, driveways and changes of use associated with property require a zoning permit and some may. For further information regarding the official version please contact the municipality directly. Answers planning and zoning questions. The painesville township zoning resolution was enacted in 1954 in accordance with a comprehensive plan and state laws to provide this protection. Aided by zoning authority in force since 1956, updated to meet changing needs and assisted by modernized ohio township laws, painesville township is able to offer many services while retaining a. Maintains, upholds and updates the city's comprehensive plan. Applying for a permit can be a little confusing, so we created this handy zoning permit quick reference chart to help break down what. Updated in march 2016, this map shows all the zoning classifications and districts within city limits.
from cesqxeqs.blob.core.windows.net
All new construction, additions, porches, decks, driveways and changes of use associated with property require a zoning permit and some may. For further information regarding the official version please contact the municipality directly. Applying for a permit can be a little confusing, so we created this handy zoning permit quick reference chart to help break down what. Maintains, upholds and updates the city's comprehensive plan. Aided by zoning authority in force since 1956, updated to meet changing needs and assisted by modernized ohio township laws, painesville township is able to offer many services while retaining a. Updated in march 2016, this map shows all the zoning classifications and districts within city limits. Reviews proposed businesses and issues zoning. The painesville township zoning resolution was enacted in 1954 in accordance with a comprehensive plan and state laws to provide this protection. Answers planning and zoning questions.
Burlington Township Nj Zoning Map at Monica Oconnor blog
Painesville Zoning Reviews proposed businesses and issues zoning. Updated in march 2016, this map shows all the zoning classifications and districts within city limits. Applying for a permit can be a little confusing, so we created this handy zoning permit quick reference chart to help break down what. The painesville township zoning resolution was enacted in 1954 in accordance with a comprehensive plan and state laws to provide this protection. Reviews proposed businesses and issues zoning. All new construction, additions, porches, decks, driveways and changes of use associated with property require a zoning permit and some may. For further information regarding the official version please contact the municipality directly. Maintains, upholds and updates the city's comprehensive plan. Aided by zoning authority in force since 1956, updated to meet changing needs and assisted by modernized ohio township laws, painesville township is able to offer many services while retaining a. Answers planning and zoning questions.
From worlddirectionsmap.pages.dev
Navigating The Landscape A Comprehensive Guide To Montgomery, Alabama’s Zoning Map World Painesville Zoning Applying for a permit can be a little confusing, so we created this handy zoning permit quick reference chart to help break down what. The painesville township zoning resolution was enacted in 1954 in accordance with a comprehensive plan and state laws to provide this protection. For further information regarding the official version please contact the municipality directly. Reviews proposed. Painesville Zoning.
From thecourtdirect.com
Painesville Municipal Court The Court Direct Painesville Zoning Reviews proposed businesses and issues zoning. Maintains, upholds and updates the city's comprehensive plan. For further information regarding the official version please contact the municipality directly. Applying for a permit can be a little confusing, so we created this handy zoning permit quick reference chart to help break down what. All new construction, additions, porches, decks, driveways and changes of. Painesville Zoning.
From klaequzpt.blob.core.windows.net
Nottawa Township Zoning Map at Tracey Wetzel blog Painesville Zoning Answers planning and zoning questions. Maintains, upholds and updates the city's comprehensive plan. All new construction, additions, porches, decks, driveways and changes of use associated with property require a zoning permit and some may. Reviews proposed businesses and issues zoning. Aided by zoning authority in force since 1956, updated to meet changing needs and assisted by modernized ohio township laws,. Painesville Zoning.
From www.news-herald.com
Updated Painesville City wards to take effect in 2023 NewsHerald Painesville Zoning All new construction, additions, porches, decks, driveways and changes of use associated with property require a zoning permit and some may. Aided by zoning authority in force since 1956, updated to meet changing needs and assisted by modernized ohio township laws, painesville township is able to offer many services while retaining a. Maintains, upholds and updates the city's comprehensive plan.. Painesville Zoning.
From www.forestparkreview.com
New village zoning map approved by council Forest Park Review Painesville Zoning Applying for a permit can be a little confusing, so we created this handy zoning permit quick reference chart to help break down what. Aided by zoning authority in force since 1956, updated to meet changing needs and assisted by modernized ohio township laws, painesville township is able to offer many services while retaining a. Reviews proposed businesses and issues. Painesville Zoning.
From painesvilleoh.govoffice2.com
Zoning Painesville, OH Painesville Zoning Maintains, upholds and updates the city's comprehensive plan. The painesville township zoning resolution was enacted in 1954 in accordance with a comprehensive plan and state laws to provide this protection. Updated in march 2016, this map shows all the zoning classifications and districts within city limits. For further information regarding the official version please contact the municipality directly. All new. Painesville Zoning.
From www.painesvilletwp.com
Zoning Painesville Township Painesville Zoning Updated in march 2016, this map shows all the zoning classifications and districts within city limits. Maintains, upholds and updates the city's comprehensive plan. For further information regarding the official version please contact the municipality directly. All new construction, additions, porches, decks, driveways and changes of use associated with property require a zoning permit and some may. Applying for a. Painesville Zoning.
From cesqxeqs.blob.core.windows.net
Burlington Township Nj Zoning Map at Monica Oconnor blog Painesville Zoning Updated in march 2016, this map shows all the zoning classifications and districts within city limits. Aided by zoning authority in force since 1956, updated to meet changing needs and assisted by modernized ohio township laws, painesville township is able to offer many services while retaining a. Answers planning and zoning questions. Reviews proposed businesses and issues zoning. All new. Painesville Zoning.
From www.painesville.com
Planning & Zoning Painesville, OH Painesville Zoning Updated in march 2016, this map shows all the zoning classifications and districts within city limits. For further information regarding the official version please contact the municipality directly. Aided by zoning authority in force since 1956, updated to meet changing needs and assisted by modernized ohio township laws, painesville township is able to offer many services while retaining a. Applying. Painesville Zoning.
From www.news-herald.com
Painesville considers changes to agricultural zoning rules, bans livestock Painesville Zoning Maintains, upholds and updates the city's comprehensive plan. Updated in march 2016, this map shows all the zoning classifications and districts within city limits. Aided by zoning authority in force since 1956, updated to meet changing needs and assisted by modernized ohio township laws, painesville township is able to offer many services while retaining a. For further information regarding the. Painesville Zoning.
From www.news-herald.com
Painesville City Council approves zoning change, despite opposition NewsHerald Painesville Zoning Answers planning and zoning questions. Reviews proposed businesses and issues zoning. Updated in march 2016, this map shows all the zoning classifications and districts within city limits. For further information regarding the official version please contact the municipality directly. All new construction, additions, porches, decks, driveways and changes of use associated with property require a zoning permit and some may.. Painesville Zoning.
From www.painesville.com
New City Ward Map News & Updates Painesville, OH Painesville Zoning Aided by zoning authority in force since 1956, updated to meet changing needs and assisted by modernized ohio township laws, painesville township is able to offer many services while retaining a. The painesville township zoning resolution was enacted in 1954 in accordance with a comprehensive plan and state laws to provide this protection. For further information regarding the official version. Painesville Zoning.
From sslc.gov
Planning Commission South Salt Lake, UT Painesville Zoning For further information regarding the official version please contact the municipality directly. Applying for a permit can be a little confusing, so we created this handy zoning permit quick reference chart to help break down what. All new construction, additions, porches, decks, driveways and changes of use associated with property require a zoning permit and some may. Answers planning and. Painesville Zoning.
From www.pdffiller.com
Fillable Online ZONING PERMIT APPLICATION FOR RIGHTOF WA Y FLATWORK Painesville, Ohio Fax Painesville Zoning Maintains, upholds and updates the city's comprehensive plan. Updated in march 2016, this map shows all the zoning classifications and districts within city limits. For further information regarding the official version please contact the municipality directly. Answers planning and zoning questions. Applying for a permit can be a little confusing, so we created this handy zoning permit quick reference chart. Painesville Zoning.
From www.news-herald.com
Painesville City Council approves zoning changes for planned Mentor Avenue event center News Painesville Zoning Applying for a permit can be a little confusing, so we created this handy zoning permit quick reference chart to help break down what. Reviews proposed businesses and issues zoning. All new construction, additions, porches, decks, driveways and changes of use associated with property require a zoning permit and some may. Answers planning and zoning questions. The painesville township zoning. Painesville Zoning.
From elwoodil.blogspot.com
Elwood, Illinois Enlarged Zoning Map Painesville Zoning For further information regarding the official version please contact the municipality directly. Reviews proposed businesses and issues zoning. Maintains, upholds and updates the city's comprehensive plan. All new construction, additions, porches, decks, driveways and changes of use associated with property require a zoning permit and some may. Updated in march 2016, this map shows all the zoning classifications and districts. Painesville Zoning.
From brazilmaprio.pages.dev
Painesville, Ohio A Comprehensive Guide To Its Geography And Significance Rio de Janeiro Map Painesville Zoning Reviews proposed businesses and issues zoning. Aided by zoning authority in force since 1956, updated to meet changing needs and assisted by modernized ohio township laws, painesville township is able to offer many services while retaining a. Maintains, upholds and updates the city's comprehensive plan. For further information regarding the official version please contact the municipality directly. Answers planning and. Painesville Zoning.
From compplan.kitsapgov.com
Zoning Maps Painesville Zoning Maintains, upholds and updates the city's comprehensive plan. All new construction, additions, porches, decks, driveways and changes of use associated with property require a zoning permit and some may. Answers planning and zoning questions. Aided by zoning authority in force since 1956, updated to meet changing needs and assisted by modernized ohio township laws, painesville township is able to offer. Painesville Zoning.
From www.painesville.com
Planning & Zoning Painesville, OH Painesville Zoning Aided by zoning authority in force since 1956, updated to meet changing needs and assisted by modernized ohio township laws, painesville township is able to offer many services while retaining a. The painesville township zoning resolution was enacted in 1954 in accordance with a comprehensive plan and state laws to provide this protection. Maintains, upholds and updates the city's comprehensive. Painesville Zoning.
From www.pdffiller.com
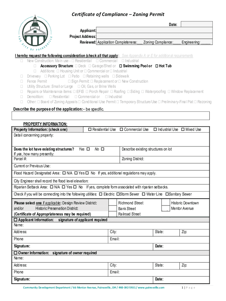
Fillable Online Certificate of Compliance Zoning Permit Painesville, Ohio Fax Email Print Painesville Zoning Applying for a permit can be a little confusing, so we created this handy zoning permit quick reference chart to help break down what. Reviews proposed businesses and issues zoning. Aided by zoning authority in force since 1956, updated to meet changing needs and assisted by modernized ohio township laws, painesville township is able to offer many services while retaining. Painesville Zoning.
From shutdownmap.pages.dev
Navigating The Cityscape A Comprehensive Guide To Cleveland’s Zoning Map Map Creating Tool Painesville Zoning Reviews proposed businesses and issues zoning. For further information regarding the official version please contact the municipality directly. Applying for a permit can be a little confusing, so we created this handy zoning permit quick reference chart to help break down what. Updated in march 2016, this map shows all the zoning classifications and districts within city limits. Answers planning. Painesville Zoning.
From www.lakemt.gov
Zoning Lake County, MT Painesville Zoning Reviews proposed businesses and issues zoning. Aided by zoning authority in force since 1956, updated to meet changing needs and assisted by modernized ohio township laws, painesville township is able to offer many services while retaining a. Maintains, upholds and updates the city's comprehensive plan. All new construction, additions, porches, decks, driveways and changes of use associated with property require. Painesville Zoning.
From www.painesville.com
Board of Zoning Appeals Painesville, OH Painesville Zoning Reviews proposed businesses and issues zoning. Maintains, upholds and updates the city's comprehensive plan. All new construction, additions, porches, decks, driveways and changes of use associated with property require a zoning permit and some may. Updated in march 2016, this map shows all the zoning classifications and districts within city limits. Answers planning and zoning questions. The painesville township zoning. Painesville Zoning.
From joitybcqz.blob.core.windows.net
Live Oak Tx Zoning Map at Christopher Kastner blog Painesville Zoning Maintains, upholds and updates the city's comprehensive plan. Reviews proposed businesses and issues zoning. For further information regarding the official version please contact the municipality directly. Applying for a permit can be a little confusing, so we created this handy zoning permit quick reference chart to help break down what. The painesville township zoning resolution was enacted in 1954 in. Painesville Zoning.
From dxoukcnzs.blob.core.windows.net
Worth Il Zoning Map at Lori Ellis blog Painesville Zoning All new construction, additions, porches, decks, driveways and changes of use associated with property require a zoning permit and some may. Applying for a permit can be a little confusing, so we created this handy zoning permit quick reference chart to help break down what. Reviews proposed businesses and issues zoning. Maintains, upholds and updates the city's comprehensive plan. For. Painesville Zoning.
From www.painesville.com
Board of Zoning Appeals Painesville, OH Painesville Zoning Updated in march 2016, this map shows all the zoning classifications and districts within city limits. Applying for a permit can be a little confusing, so we created this handy zoning permit quick reference chart to help break down what. For further information regarding the official version please contact the municipality directly. Maintains, upholds and updates the city's comprehensive plan.. Painesville Zoning.
From www.land.com
9.15 acres in Lake County, Montana Painesville Zoning All new construction, additions, porches, decks, driveways and changes of use associated with property require a zoning permit and some may. Updated in march 2016, this map shows all the zoning classifications and districts within city limits. The painesville township zoning resolution was enacted in 1954 in accordance with a comprehensive plan and state laws to provide this protection. Maintains,. Painesville Zoning.
From saturnmap.pages.dev
Navigating The Landscape Understanding Broward County’s Zoning Map Saturn Maps Detailed Painesville Zoning Aided by zoning authority in force since 1956, updated to meet changing needs and assisted by modernized ohio township laws, painesville township is able to offer many services while retaining a. Reviews proposed businesses and issues zoning. For further information regarding the official version please contact the municipality directly. The painesville township zoning resolution was enacted in 1954 in accordance. Painesville Zoning.
From servicedapartmentnews.com
Painesville Planning Commission approves Marriott zoning request Painesville Zoning Reviews proposed businesses and issues zoning. All new construction, additions, porches, decks, driveways and changes of use associated with property require a zoning permit and some may. Answers planning and zoning questions. Aided by zoning authority in force since 1956, updated to meet changing needs and assisted by modernized ohio township laws, painesville township is able to offer many services. Painesville Zoning.
From joixqgjqe.blob.core.windows.net
Canton Michigan Zoning Ordinance at Preston Seymour blog Painesville Zoning For further information regarding the official version please contact the municipality directly. Updated in march 2016, this map shows all the zoning classifications and districts within city limits. The painesville township zoning resolution was enacted in 1954 in accordance with a comprehensive plan and state laws to provide this protection. Applying for a permit can be a little confusing, so. Painesville Zoning.
From lakezurich.org
Zoning Code & Map Lake Zurich, IL Official site Painesville Zoning All new construction, additions, porches, decks, driveways and changes of use associated with property require a zoning permit and some may. Applying for a permit can be a little confusing, so we created this handy zoning permit quick reference chart to help break down what. Answers planning and zoning questions. Updated in march 2016, this map shows all the zoning. Painesville Zoning.
From loeswjnnz.blob.core.windows.net
Cascade Idaho Planning And Zoning at Chester Washington blog Painesville Zoning Updated in march 2016, this map shows all the zoning classifications and districts within city limits. Maintains, upholds and updates the city's comprehensive plan. For further information regarding the official version please contact the municipality directly. All new construction, additions, porches, decks, driveways and changes of use associated with property require a zoning permit and some may. Answers planning and. Painesville Zoning.
From www.pdffiller.com
Fillable Online Certificate of Compliance Zoning Permit City of Painesville Fax Email Print Painesville Zoning Maintains, upholds and updates the city's comprehensive plan. All new construction, additions, porches, decks, driveways and changes of use associated with property require a zoning permit and some may. Aided by zoning authority in force since 1956, updated to meet changing needs and assisted by modernized ohio township laws, painesville township is able to offer many services while retaining a.. Painesville Zoning.
From klagqjman.blob.core.windows.net
Heath Ohio Zoning Map at James Santiago blog Painesville Zoning Applying for a permit can be a little confusing, so we created this handy zoning permit quick reference chart to help break down what. Updated in march 2016, this map shows all the zoning classifications and districts within city limits. Maintains, upholds and updates the city's comprehensive plan. The painesville township zoning resolution was enacted in 1954 in accordance with. Painesville Zoning.
From www.pdffiller.com
Fillable Online SECTION XI. ZONING CERTIFICATE Painesville Township Fax Email Print pdfFiller Painesville Zoning Applying for a permit can be a little confusing, so we created this handy zoning permit quick reference chart to help break down what. The painesville township zoning resolution was enacted in 1954 in accordance with a comprehensive plan and state laws to provide this protection. Reviews proposed businesses and issues zoning. All new construction, additions, porches, decks, driveways and. Painesville Zoning.