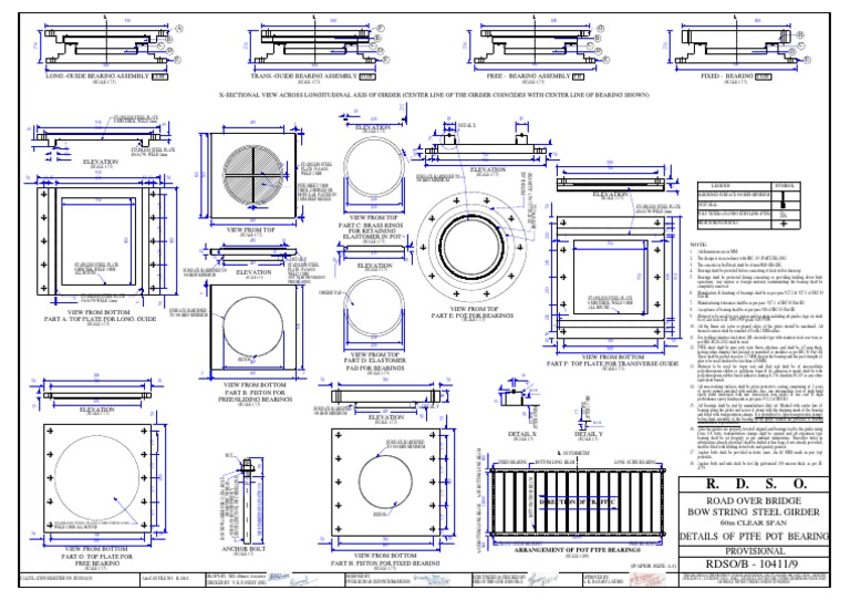
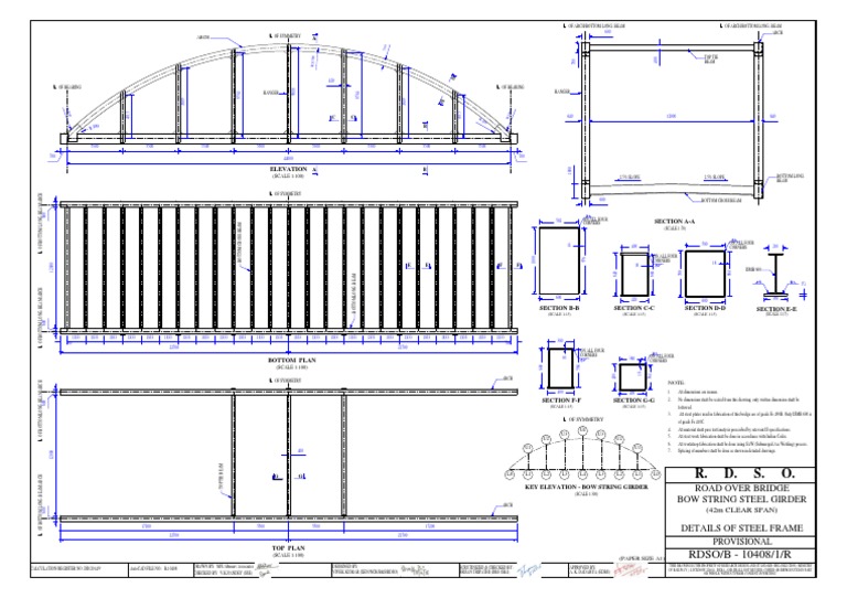
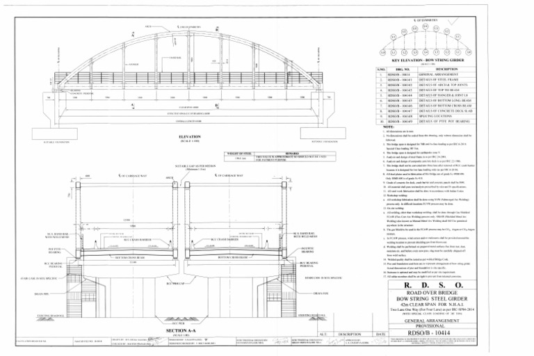
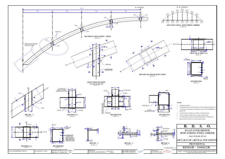
Bow String Girder Bridge Rdso . with the experience gained over period of time and necessary deliberations in 82nd, 83rd and 84th bsc meetings, irs code for. the document contains engineering drawings showing the general arrangement and details of a bow string girder bridge, including plan views,. road over bridge bow string steel girder 48m clear span general arrangement autocad file no.: rdso has been entrusted the work of inspection of bow string girder by railway board vide letter referred at (ii) above. composite girder drawings for road over bridges (robs) and for medium span railway bridges (upto 30.5 m span) are available. this drawing shows the general arrangement and details of a 42m clear span bow string steel girder bridge designed for 70r and a. the web page provides information on the role, activities and achievements of the directorate of bridge & structure (rdso).
from studylib.net
the document contains engineering drawings showing the general arrangement and details of a bow string girder bridge, including plan views,. with the experience gained over period of time and necessary deliberations in 82nd, 83rd and 84th bsc meetings, irs code for. this drawing shows the general arrangement and details of a 42m clear span bow string steel girder bridge designed for 70r and a. road over bridge bow string steel girder 48m clear span general arrangement autocad file no.: composite girder drawings for road over bridges (robs) and for medium span railway bridges (upto 30.5 m span) are available. rdso has been entrusted the work of inspection of bow string girder by railway board vide letter referred at (ii) above. the web page provides information on the role, activities and achievements of the directorate of bridge & structure (rdso).
R. D. S. O.
Bow String Girder Bridge Rdso road over bridge bow string steel girder 48m clear span general arrangement autocad file no.: this drawing shows the general arrangement and details of a 42m clear span bow string steel girder bridge designed for 70r and a. rdso has been entrusted the work of inspection of bow string girder by railway board vide letter referred at (ii) above. the document contains engineering drawings showing the general arrangement and details of a bow string girder bridge, including plan views,. with the experience gained over period of time and necessary deliberations in 82nd, 83rd and 84th bsc meetings, irs code for. composite girder drawings for road over bridges (robs) and for medium span railway bridges (upto 30.5 m span) are available. the web page provides information on the role, activities and achievements of the directorate of bridge & structure (rdso). road over bridge bow string steel girder 48m clear span general arrangement autocad file no.:
From www.indiamart.com
Bow String Steel Girder Fabrication Service at best price in Meerut Bow String Girder Bridge Rdso the web page provides information on the role, activities and achievements of the directorate of bridge & structure (rdso). the document contains engineering drawings showing the general arrangement and details of a bow string girder bridge, including plan views,. rdso has been entrusted the work of inspection of bow string girder by railway board vide letter referred. Bow String Girder Bridge Rdso.
From www.youtube.com
Bow String Girder for ROB launched at LC142 on 03.01.2023. YouTube Bow String Girder Bridge Rdso with the experience gained over period of time and necessary deliberations in 82nd, 83rd and 84th bsc meetings, irs code for. rdso has been entrusted the work of inspection of bow string girder by railway board vide letter referred at (ii) above. this drawing shows the general arrangement and details of a 42m clear span bow string. Bow String Girder Bridge Rdso.
From www.youtube.com
BOW STRING GIRDER LAUNCHING ( NORTH WESTERN RAILWAYS ) YouTube Bow String Girder Bridge Rdso this drawing shows the general arrangement and details of a 42m clear span bow string steel girder bridge designed for 70r and a. the web page provides information on the role, activities and achievements of the directorate of bridge & structure (rdso). composite girder drawings for road over bridges (robs) and for medium span railway bridges (upto. Bow String Girder Bridge Rdso.
From www.ironstepsengineering.com
Ironsteps Engineering Pvt Ltd Bow String Girder Bridge Rdso composite girder drawings for road over bridges (robs) and for medium span railway bridges (upto 30.5 m span) are available. this drawing shows the general arrangement and details of a 42m clear span bow string steel girder bridge designed for 70r and a. road over bridge bow string steel girder 48m clear span general arrangement autocad file. Bow String Girder Bridge Rdso.
From www.youtube.com
Bow String Girder ROB Launch over NH2 in EDFC YouTube Bow String Girder Bridge Rdso the document contains engineering drawings showing the general arrangement and details of a bow string girder bridge, including plan views,. composite girder drawings for road over bridges (robs) and for medium span railway bridges (upto 30.5 m span) are available. with the experience gained over period of time and necessary deliberations in 82nd, 83rd and 84th bsc. Bow String Girder Bridge Rdso.
From www.scribd.com
42 M Bow String Girder104082R PDF PDF Welding Construction Bow String Girder Bridge Rdso with the experience gained over period of time and necessary deliberations in 82nd, 83rd and 84th bsc meetings, irs code for. this drawing shows the general arrangement and details of a 42m clear span bow string steel girder bridge designed for 70r and a. the web page provides information on the role, activities and achievements of the. Bow String Girder Bridge Rdso.
From asengineers.net
Fabrication & Launching of Bow String Girders AS Engineers Bow String Girder Bridge Rdso with the experience gained over period of time and necessary deliberations in 82nd, 83rd and 84th bsc meetings, irs code for. this drawing shows the general arrangement and details of a 42m clear span bow string steel girder bridge designed for 70r and a. the web page provides information on the role, activities and achievements of the. Bow String Girder Bridge Rdso.
From www.scribd.com
60 M.bow String Girder104118R1 PDF Civil Engineering Economic Bow String Girder Bridge Rdso with the experience gained over period of time and necessary deliberations in 82nd, 83rd and 84th bsc meetings, irs code for. the document contains engineering drawings showing the general arrangement and details of a bow string girder bridge, including plan views,. composite girder drawings for road over bridges (robs) and for medium span railway bridges (upto 30.5. Bow String Girder Bridge Rdso.
From news.railanalysis.com
Northeast Frontier Railway launches bow string girder of a new Road Bow String Girder Bridge Rdso road over bridge bow string steel girder 48m clear span general arrangement autocad file no.: rdso has been entrusted the work of inspection of bow string girder by railway board vide letter referred at (ii) above. with the experience gained over period of time and necessary deliberations in 82nd, 83rd and 84th bsc meetings, irs code for.. Bow String Girder Bridge Rdso.
From www.scribd.com
60 M.bow String Girder10411R PDF Welding Construction Bow String Girder Bridge Rdso with the experience gained over period of time and necessary deliberations in 82nd, 83rd and 84th bsc meetings, irs code for. composite girder drawings for road over bridges (robs) and for medium span railway bridges (upto 30.5 m span) are available. rdso has been entrusted the work of inspection of bow string girder by railway board vide. Bow String Girder Bridge Rdso.
From www.youtube.com
Launching of 42 mtr Bow String Girder NH53 Ch302 ROB bridge YouTube Bow String Girder Bridge Rdso rdso has been entrusted the work of inspection of bow string girder by railway board vide letter referred at (ii) above. composite girder drawings for road over bridges (robs) and for medium span railway bridges (upto 30.5 m span) are available. the web page provides information on the role, activities and achievements of the directorate of bridge. Bow String Girder Bridge Rdso.
From pragativadi.com
60 Meters Long Bow String Girder Launched At Sambalpur By ECoR Bow String Girder Bridge Rdso this drawing shows the general arrangement and details of a 42m clear span bow string steel girder bridge designed for 70r and a. rdso has been entrusted the work of inspection of bow string girder by railway board vide letter referred at (ii) above. road over bridge bow string steel girder 48m clear span general arrangement autocad. Bow String Girder Bridge Rdso.
From www.midasbridge.com
VonMises Stresses Physical Significance and Application in Steel Bridges Bow String Girder Bridge Rdso composite girder drawings for road over bridges (robs) and for medium span railway bridges (upto 30.5 m span) are available. the document contains engineering drawings showing the general arrangement and details of a bow string girder bridge, including plan views,. road over bridge bow string steel girder 48m clear span general arrangement autocad file no.: the. Bow String Girder Bridge Rdso.
From www.scribd.com
Rdso Bow String Girder104119 PDF Stainless Steel Welding Bow String Girder Bridge Rdso with the experience gained over period of time and necessary deliberations in 82nd, 83rd and 84th bsc meetings, irs code for. rdso has been entrusted the work of inspection of bow string girder by railway board vide letter referred at (ii) above. the web page provides information on the role, activities and achievements of the directorate of. Bow String Girder Bridge Rdso.
From pragativadi.com
60 Meters Long Bow String Girder Launched At Sambalpur By ECoR Bow String Girder Bridge Rdso this drawing shows the general arrangement and details of a 42m clear span bow string steel girder bridge designed for 70r and a. the web page provides information on the role, activities and achievements of the directorate of bridge & structure (rdso). road over bridge bow string steel girder 48m clear span general arrangement autocad file no.:. Bow String Girder Bridge Rdso.
From twitter.com
Rail Analysis India on Twitter "RT SWRRLY Preparatory works in Bow String Girder Bridge Rdso composite girder drawings for road over bridges (robs) and for medium span railway bridges (upto 30.5 m span) are available. road over bridge bow string steel girder 48m clear span general arrangement autocad file no.: rdso has been entrusted the work of inspection of bow string girder by railway board vide letter referred at (ii) above. . Bow String Girder Bridge Rdso.
From alltech-group.com
RDSO APPROVED STEEL BRIDGE GIRDERS Alltech Bow String Girder Bridge Rdso rdso has been entrusted the work of inspection of bow string girder by railway board vide letter referred at (ii) above. this drawing shows the general arrangement and details of a 42m clear span bow string steel girder bridge designed for 70r and a. the web page provides information on the role, activities and achievements of the. Bow String Girder Bridge Rdso.
From www.nbmcw.com
Constructing Bowstring Girder ROBs on Purvanchal Expressway Bow String Girder Bridge Rdso road over bridge bow string steel girder 48m clear span general arrangement autocad file no.: the document contains engineering drawings showing the general arrangement and details of a bow string girder bridge, including plan views,. with the experience gained over period of time and necessary deliberations in 82nd, 83rd and 84th bsc meetings, irs code for. . Bow String Girder Bridge Rdso.
From www.youtube.com
Bow string girder basic components YouTube Bow String Girder Bridge Rdso composite girder drawings for road over bridges (robs) and for medium span railway bridges (upto 30.5 m span) are available. road over bridge bow string steel girder 48m clear span general arrangement autocad file no.: the document contains engineering drawings showing the general arrangement and details of a bow string girder bridge, including plan views,. with. Bow String Girder Bridge Rdso.
From www.indiamart.com
Bow String Bridge at Rs 119/kg Steel Girder Bridge in Kolkata ID Bow String Girder Bridge Rdso road over bridge bow string steel girder 48m clear span general arrangement autocad file no.: this drawing shows the general arrangement and details of a 42m clear span bow string steel girder bridge designed for 70r and a. the web page provides information on the role, activities and achievements of the directorate of bridge & structure (rdso).. Bow String Girder Bridge Rdso.
From www.youtube.com
Part 12 Garden Railway Twin Track Bow String Bridge Kit GIRDER FITTING Bow String Girder Bridge Rdso the web page provides information on the role, activities and achievements of the directorate of bridge & structure (rdso). this drawing shows the general arrangement and details of a 42m clear span bow string steel girder bridge designed for 70r and a. composite girder drawings for road over bridges (robs) and for medium span railway bridges (upto. Bow String Girder Bridge Rdso.
From www.mvlbridges.co.uk
BOWSTRING GIRDER BRIDGE MVL BRIDGES Bow String Girder Bridge Rdso with the experience gained over period of time and necessary deliberations in 82nd, 83rd and 84th bsc meetings, irs code for. rdso has been entrusted the work of inspection of bow string girder by railway board vide letter referred at (ii) above. the web page provides information on the role, activities and achievements of the directorate of. Bow String Girder Bridge Rdso.
From www.scribd.com
42 M Bow String Girder104081R PDF Metals Structural Engineering Bow String Girder Bridge Rdso rdso has been entrusted the work of inspection of bow string girder by railway board vide letter referred at (ii) above. with the experience gained over period of time and necessary deliberations in 82nd, 83rd and 84th bsc meetings, irs code for. road over bridge bow string steel girder 48m clear span general arrangement autocad file no.:. Bow String Girder Bridge Rdso.
From www.steelfabricat.com
Steel Through Bow String Steel Girder Bridge Fabrication Tub H Welded Bow String Girder Bridge Rdso composite girder drawings for road over bridges (robs) and for medium span railway bridges (upto 30.5 m span) are available. the web page provides information on the role, activities and achievements of the directorate of bridge & structure (rdso). with the experience gained over period of time and necessary deliberations in 82nd, 83rd and 84th bsc meetings,. Bow String Girder Bridge Rdso.
From www.linkedin.com
Bow String Girder Bow String Girder Bridge Rdso with the experience gained over period of time and necessary deliberations in 82nd, 83rd and 84th bsc meetings, irs code for. rdso has been entrusted the work of inspection of bow string girder by railway board vide letter referred at (ii) above. composite girder drawings for road over bridges (robs) and for medium span railway bridges (upto. Bow String Girder Bridge Rdso.
From studylib.net
R. D. S. O. Bow String Girder Bridge Rdso composite girder drawings for road over bridges (robs) and for medium span railway bridges (upto 30.5 m span) are available. with the experience gained over period of time and necessary deliberations in 82nd, 83rd and 84th bsc meetings, irs code for. rdso has been entrusted the work of inspection of bow string girder by railway board vide. Bow String Girder Bridge Rdso.
From asengineers.net
Fabrication & Launching of Bow String Girders AS Engineers Bow String Girder Bridge Rdso rdso has been entrusted the work of inspection of bow string girder by railway board vide letter referred at (ii) above. the web page provides information on the role, activities and achievements of the directorate of bridge & structure (rdso). composite girder drawings for road over bridges (robs) and for medium span railway bridges (upto 30.5 m. Bow String Girder Bridge Rdso.
From kslaserdesigns.com
Bow String Girder Bridge KS Laser Designs Bow String Girder Bridge Rdso the document contains engineering drawings showing the general arrangement and details of a bow string girder bridge, including plan views,. road over bridge bow string steel girder 48m clear span general arrangement autocad file no.: with the experience gained over period of time and necessary deliberations in 82nd, 83rd and 84th bsc meetings, irs code for. . Bow String Girder Bridge Rdso.
From www.hindustantimes.com
At 63.5m, Jagraon Bridge’s bowstring girder longest in Punjab Bow String Girder Bridge Rdso the web page provides information on the role, activities and achievements of the directorate of bridge & structure (rdso). composite girder drawings for road over bridges (robs) and for medium span railway bridges (upto 30.5 m span) are available. the document contains engineering drawings showing the general arrangement and details of a bow string girder bridge, including. Bow String Girder Bridge Rdso.
From www.scribd.com
All RDSO Bow String Girder of span 6072 m Metal Fabrication Bow String Girder Bridge Rdso composite girder drawings for road over bridges (robs) and for medium span railway bridges (upto 30.5 m span) are available. the document contains engineering drawings showing the general arrangement and details of a bow string girder bridge, including plan views,. road over bridge bow string steel girder 48m clear span general arrangement autocad file no.: this. Bow String Girder Bridge Rdso.
From www.scribd.com
42.0m Nhai Rdso Bow String PDF Bow String Girder Bridge Rdso the web page provides information on the role, activities and achievements of the directorate of bridge & structure (rdso). composite girder drawings for road over bridges (robs) and for medium span railway bridges (upto 30.5 m span) are available. road over bridge bow string steel girder 48m clear span general arrangement autocad file no.: with the. Bow String Girder Bridge Rdso.
From www.scribd.com
Bow String Girder 72 M 6 Lane (17M) RDSOB10425 PDF Bow String Girder Bridge Rdso rdso has been entrusted the work of inspection of bow string girder by railway board vide letter referred at (ii) above. with the experience gained over period of time and necessary deliberations in 82nd, 83rd and 84th bsc meetings, irs code for. road over bridge bow string steel girder 48m clear span general arrangement autocad file no.:. Bow String Girder Bridge Rdso.
From www.youtube.com
Bow string girder YouTube Bow String Girder Bridge Rdso road over bridge bow string steel girder 48m clear span general arrangement autocad file no.: rdso has been entrusted the work of inspection of bow string girder by railway board vide letter referred at (ii) above. composite girder drawings for road over bridges (robs) and for medium span railway bridges (upto 30.5 m span) are available. . Bow String Girder Bridge Rdso.
From thehillstimes.in
New Bow String Girder Of Road Over Bridge Launched At Jagiroad The Bow String Girder Bridge Rdso this drawing shows the general arrangement and details of a 42m clear span bow string steel girder bridge designed for 70r and a. road over bridge bow string steel girder 48m clear span general arrangement autocad file no.: rdso has been entrusted the work of inspection of bow string girder by railway board vide letter referred at. Bow String Girder Bridge Rdso.
From kslaserdesigns.com
Bow String Girder Bridge KS Laser Designs Bow String Girder Bridge Rdso road over bridge bow string steel girder 48m clear span general arrangement autocad file no.: rdso has been entrusted the work of inspection of bow string girder by railway board vide letter referred at (ii) above. this drawing shows the general arrangement and details of a 42m clear span bow string steel girder bridge designed for 70r. Bow String Girder Bridge Rdso.